Property
Account |
| Property ID: | 17674 | Abbreviated Legal Description: | S30 T27 R1W TAX 9 (LESS N12') LESS TAX 27 |
| Parcel # / Geo ID: | 701301010 | Agent Code: | |
| Type: | Real | | |
| Tax Area: | 0321 - 1-48F2E2H2C2L1 | Land Use Code | 91 |
| Open Space: | N | DFL | N |
| Historic Property: | N | Remodel Property: | N |
| Multi-Family Redevelopment: | N | | |
| Township: | 27N | Section: | 30 |
| Range: | 1W |
Location |
| Address: | 2700 E QUILCENE RD QUILCENE, WA 98376 | Mapsco: | 148/011 |
| Neighborhood: | S30 & S31 T27N R1W + S5 & S6 T26N R1W + GAETZ & GUSTAVSON SP | Map ID: | |
| Neighborhood CD: | 2355 |
Owner |
| Name: | GINA HUMPHREYS | Owner ID: | 111814 |
| Mailing Address: | 4724 KINGSESSING AVE PHILADELPHIA, PA 19143-3819 | % Ownership: | 100.0000000000% |
| | | Exemptions: | |
Pay Tax Due
Select the appropriate checkbox next to the year to be paid. Multiple years may be selected.
*Convenience Fee not included
Taxes and Assessment Details
Property Tax Information as of
03/10/2026
Click on "Statement Details" to expand or collapse a tax statement.
* Please enter a valid date ** Please enter a valid date *
Statement Details |
| 2026 | 7212 | STATE - STATE LEVY (SCHOOL) | $148.33 | $148.32 | $0.00 | $0.00 | $0.00 | $296.65 |
| 2026 | 7212 | COUNTY - COUNTY LEVIES (CE, DD, VET, MH) | $59.31 | $59.28 | $0.00 | $0.00 | $0.00 | $118.59 |
| 2026 | 7212 | CONSERVE - CONSERVATION FUTURES | $1.78 | $1.78 | $0.00 | $0.00 | $0.00 | $3.56 |
| 2026 | 7212 | COROADS - COUNTY ROADS (ROADS, DIV TO CE) | $47.84 | $47.84 | $0.00 | $0.00 | $0.00 | $95.68 |
| 2026 | 7212 | PORTPT - PORT DISTRICT | $23.95 | $23.95 | $0.00 | $0.00 | $0.00 | $47.90 |
| 2026 | 7212 | PUD1 - PUD #1 | $3.86 | $3.85 | $0.00 | $0.00 | $0.00 | $7.71 |
| 2026 | 7212 | LIB1 - LIBRARY DIST #1 | $18.51 | $18.51 | $0.00 | $0.00 | $0.00 | $37.02 |
| 2026 | 7212 | HD2 - HOSP DIST #2 | $3.46 | $3.46 | $0.00 | $0.00 | $0.00 | $6.92 |
| 2026 | 7212 | SD48 - SCHOOL DIST #48 | $91.10 | $91.10 | $0.00 | $0.00 | $0.00 | $182.20 |
| 2026 | 7212 | FD2 - FIRE DISTRICT #2 | $48.71 | $48.71 | $0.00 | $0.00 | $0.00 | $97.42 |
| 2026 | 7212 | EMS2 - FIRE DIST #2 EMS | $27.43 | $27.43 | $0.00 | $0.00 | $0.00 | $54.86 |
| 2026 | 7212 | CEM2 - CEMETERY DIST #2 | $1.56 | $1.55 | $0.00 | $0.00 | $0.00 | $3.11 |
| 2026 | 7212 | FP - DNR Forest Fire Protection Assmt | $8.50 | $8.50 | $0.00 | $0.00 | $0.00 | $17.00 |
| 2026 | 7212 | FPLCA - DNR Landowner Contingency Assmt | $3.00 | $3.00 | $0.00 | $0.00 | $0.00 | $6.00 |
| 2026 | 7212 | JCCD - JC Conservation District | $2.57 | $2.57 | $0.00 | $0.00 | $0.00 | $5.14 |
| 2026 | 7212 | NWA - Noxious Weed Assessment | $3.20 | $3.20 | $0.00 | $0.00 | $0.00 | $6.40 |
| 2026 | 7212 | WAT - Clean Water District | $13.00 | $13.00 | $0.00 | $0.00 | $0.00 | $26.00 |
| 2026 | 7212 | FP ADMIN - FP ADMIN | $0.50 | $0.00 | $0.00 | $0.00 | $0.00 | $0.50 |
| 2026 | 7212 | TOTAL: | $506.61 | $506.05 | $0.00 | $0.00 | $0.00 | $1012.66 |
|
| 2026 | 7212 | $506.61 | $506.05 | $0.00 | $0.00 | $0.00 | $1012.66 |
Statement Details |
| 2025 | 7233 | STATE - STATE LEVY (SCHOOL) | $92.50 | $92.48 | $0.00 | $0.00 | $184.98 | $0.00 |
| 2025 | 7233 | COUNTY - COUNTY LEVIES (CE, DD, VET, MH) | $36.38 | $36.36 | $0.00 | $0.00 | $72.74 | $0.00 |
| 2025 | 7233 | CONSERVE - CONSERVATION FUTURES | $1.09 | $1.09 | $0.00 | $0.00 | $2.18 | $0.00 |
| 2025 | 7233 | COROADS - COUNTY ROADS (ROADS, DIV TO CE) | $29.14 | $29.14 | $0.00 | $0.00 | $58.28 | $0.00 |
| 2025 | 7233 | PORTPT - PORT DISTRICT | $14.84 | $14.84 | $0.00 | $0.00 | $29.68 | $0.00 |
| 2025 | 7233 | PUD1 - PUD #1 | $2.38 | $2.38 | $0.00 | $0.00 | $4.76 | $0.00 |
| 2025 | 7233 | LIB1 - LIBRARY DIST #1 | $11.28 | $11.27 | $0.00 | $0.00 | $22.55 | $0.00 |
| 2025 | 7233 | HD2 - HOSP DIST #2 | $2.12 | $2.12 | $0.00 | $0.00 | $4.24 | $0.00 |
| 2025 | 7233 | SD48 - SCHOOL DIST #48 | $54.47 | $54.46 | $0.00 | $0.00 | $108.93 | $0.00 |
| 2025 | 7233 | FD2 - FIRE DISTRICT #2 | $30.07 | $30.07 | $0.00 | $0.00 | $60.14 | $0.00 |
| 2025 | 7233 | EMS2 - FIRE DIST #2 EMS | $16.93 | $16.93 | $0.00 | $0.00 | $33.86 | $0.00 |
| 2025 | 7233 | CEM2 - CEMETERY DIST #2 | $0.96 | $0.96 | $0.00 | $0.00 | $1.92 | $0.00 |
| 2025 | 7233 | FP - DNR Forest Fire Protection Assmt | $8.50 | $8.50 | $0.00 | $0.00 | $17.00 | $0.00 |
| 2025 | 7233 | FPLCA - DNR Landowner Contingency Assmt | $3.00 | $3.00 | $0.00 | $0.00 | $6.00 | $0.00 |
| 2025 | 7233 | JCCD - JC Conservation District | $2.57 | $2.57 | $0.00 | $0.00 | $5.14 | $0.00 |
| 2025 | 7233 | NWA - Noxious Weed Assessment | $2.30 | $2.30 | $0.00 | $0.00 | $4.60 | $0.00 |
| 2025 | 7233 | WAT - Clean Water District | $13.00 | $13.00 | $0.00 | $0.00 | $26.00 | $0.00 |
| 2025 | 7233 | FP ADMIN - FP ADMIN | $0.50 | $0.00 | $0.00 | $0.00 | $0.50 | $0.00 |
| 2025 | 7233 | TOTAL: | $322.03 | $321.47 | $0.00 | $0.00 | $643.50 | $0.00 |
|
| 2025 | 7233 | $322.03 | $321.47 | $0.00 | $0.00 | $643.50 | $0.00 |
Statement Details |
| 2024 | 7256 | STATE - STATE LEVY (SCHOOL) | $81.12 | $81.12 | $0.00 | $0.00 | $162.24 | $0.00 |
| 2024 | 7256 | COUNTY - COUNTY LEVIES (CE, DD, VET, MH) | $34.72 | $34.70 | $0.00 | $0.00 | $69.42 | $0.00 |
| 2024 | 7256 | CONSERVE - CONSERVATION FUTURES | $1.04 | $1.04 | $0.00 | $0.00 | $2.08 | $0.00 |
| 2024 | 7256 | COROADS - COUNTY ROADS (ROADS, DIV TO CE) | $27.94 | $27.92 | $0.00 | $0.00 | $55.86 | $0.00 |
| 2024 | 7256 | PORTPT - PORT DISTRICT | $14.34 | $14.33 | $0.00 | $0.00 | $28.67 | $0.00 |
| 2024 | 7256 | PUD1 - PUD #1 | $2.28 | $2.28 | $0.00 | $0.00 | $4.56 | $0.00 |
| 2024 | 7256 | LIB1 - LIBRARY DIST #1 | $10.81 | $10.80 | $0.00 | $0.00 | $21.61 | $0.00 |
| 2024 | 7256 | HD2 - HOSP DIST #2 | $2.03 | $2.02 | $0.00 | $0.00 | $4.05 | $0.00 |
| 2024 | 7256 | SD48 - SCHOOL DIST #48 | $36.33 | $36.33 | $0.00 | $0.00 | $72.66 | $0.00 |
| 2024 | 7256 | FD2 - FIRE DISTRICT #2 | $28.86 | $28.86 | $0.00 | $0.00 | $57.72 | $0.00 |
| 2024 | 7256 | EMS2 - FIRE DIST #2 EMS | $16.25 | $16.24 | $0.00 | $0.00 | $32.49 | $0.00 |
| 2024 | 7256 | CEM2 - CEMETERY DIST #2 | $0.93 | $0.92 | $0.00 | $0.00 | $1.85 | $0.00 |
| 2024 | 7256 | FP - DNR Forest Fire Protection Assmt | $8.50 | $8.50 | $0.00 | $0.00 | $17.00 | $0.00 |
| 2024 | 7256 | FPLCA - DNR Landowner Contingency Assmt | $3.00 | $3.00 | $0.00 | $0.00 | $6.00 | $0.00 |
| 2024 | 7256 | JCCD - JC Conservation District | $2.57 | $2.57 | $0.00 | $0.00 | $5.14 | $0.00 |
| 2024 | 7256 | NWA - Noxious Weed Assessment | $2.30 | $2.30 | $0.00 | $0.00 | $4.60 | $0.00 |
| 2024 | 7256 | WAT - Clean Water District | $12.50 | $12.50 | $0.00 | $0.00 | $25.00 | $0.00 |
| 2024 | 7256 | FP ADMIN - FP ADMIN | $0.50 | $0.00 | $0.00 | $0.00 | $0.50 | $0.00 |
| 2024 | 7256 | TOTAL: | $286.02 | $285.43 | $0.00 | $0.00 | $571.45 | $0.00 |
|
| 2024 | 7256 | $286.02 | $285.43 | $0.00 | $0.00 | $571.45 | $0.00 |
Statement Details |
| 2023 | 7270 | STATE - STATE LEVY (SCHOOL) | $82.55 | $82.54 | $0.00 | $0.00 | $165.09 | $0.00 |
| 2023 | 7270 | COUNTY - COUNTY LEVIES (CE, DD, VET, MH) | $36.04 | $36.00 | $0.00 | $0.00 | $72.04 | $0.00 |
| 2023 | 7270 | CONSERVE - CONSERVATION FUTURES | $1.08 | $1.08 | $0.00 | $0.00 | $2.16 | $0.00 |
| 2023 | 7270 | COROADS - COUNTY ROADS (ROADS, DIV TO CE) | $29.14 | $29.14 | $0.00 | $0.00 | $58.28 | $0.00 |
| 2023 | 7270 | PORTPT - PORT DISTRICT | $15.18 | $15.16 | $0.00 | $0.00 | $30.34 | $0.00 |
| 2023 | 7270 | PUD1 - PUD #1 | $2.39 | $2.39 | $0.00 | $0.00 | $4.78 | $0.00 |
| 2023 | 7270 | LIB1 - LIBRARY DIST #1 | $11.28 | $11.27 | $0.00 | $0.00 | $22.55 | $0.00 |
| 2023 | 7270 | HD2 - HOSP DIST #2 | $2.11 | $2.10 | $0.00 | $0.00 | $4.21 | $0.00 |
| 2023 | 7270 | SD48 - SCHOOL DIST #48 | $39.86 | $39.86 | $0.00 | $0.00 | $79.72 | $0.00 |
| 2023 | 7270 | FD2 - FIRE DISTRICT #2 | $31.27 | $31.26 | $0.00 | $0.00 | $62.53 | $0.00 |
| 2023 | 7270 | EMS2 - FIRE DIST #2 EMS | $17.53 | $17.53 | $0.00 | $0.00 | $35.06 | $0.00 |
| 2023 | 7270 | CEM2 - CEMETERY DIST #2 | $1.00 | $0.99 | $0.00 | $0.00 | $1.99 | $0.00 |
| 2023 | 7270 | FP - DNR Forest Fire Protection Assmt | $8.50 | $8.50 | $0.00 | $0.00 | $17.00 | $0.00 |
| 2023 | 7270 | FPLCA - DNR Landowner Contingency Assmt | $3.00 | $3.00 | $0.00 | $0.00 | $6.00 | $0.00 |
| 2023 | 7270 | JCCD - JC Conservation District | $2.57 | $2.57 | $0.00 | $0.00 | $5.14 | $0.00 |
| 2023 | 7270 | NWA - Noxious Weed Assessment | $2.30 | $2.30 | $0.00 | $0.00 | $4.60 | $0.00 |
| 2023 | 7270 | WAT - Clean Water District | $12.00 | $12.00 | $0.00 | $0.00 | $24.00 | $0.00 |
| 2023 | 7270 | FP ADMIN - FP ADMIN | $0.50 | $0.00 | $0.00 | $0.00 | $0.50 | $0.00 |
| 2023 | 7270 | TOTAL: | $298.30 | $297.69 | $0.00 | $0.00 | $595.99 | $0.00 |
|
| 2023 | 7270 | $298.30 | $297.69 | $0.00 | $0.00 | $595.99 | $0.00 |
Values
| (+) Improvement Homesite Value: | + | $0 | |
| (+) Improvement Non-Homesite Value: | + | $0 | |
| (+) Land Homesite Value: | + | $0 | |
| (+) Land Non-Homesite Value: | + | $129,030 | |
| (+) Curr Use (HS): | + | $0 | $0 |
| (+) Curr Use (NHS): | + | $0 | $0 |
| | | -------------------------- | |
| (=) Market Value: | = | $129,030 | |
| (–) Productivity Loss: | – | $0 | |
| | | -------------------------- | |
| (=) Subtotal: | = | $129,030 | |
| (+) Senior Appraised Value: | + | $0 | |
| (+) Non-Senior Appraised Value: | + | $129,030 | |
| | | -------------------------- | |
| (=) Total Appraised Value: | = | $129,030 | |
| (–) Senior Exemption Loss: | – | $0 | |
| (–) Exemption Loss: | – | $0 | |
| | | -------------------------- | |
| (=) Taxable Value: | = | $129,030 | |
Taxing Jurisdiction
| Owner: | GINA HUMPHREYS | | |
| % Ownership: | 100.0000000000% | | |
| Total Value: | $129,030 | | |
| Tax Area: | 0321 - 1-48F2E2H2C2L1 |
| CE | COUNTY CURRENT EXPENSE | 0.9034619479 | $129,030 | $129,030 | $116.57 | | |
| CNTYDD | DEVELOPMENTAL DISABILITIES | 0.0052121823 | $129,030 | $129,030 | $0.67 | | |
| CNTYVET | VETERANS RELIEF | 0.0052777810 | $129,030 | $129,030 | $0.68 | | |
| MENTAL | MENTAL HEALTH | 0.0052121823 | $129,030 | $129,030 | $0.67 | | |
| ROADS | COUNTY ROADS | 0.7415066410 | $129,030 | $129,030 | $95.68 | | |
| ROADSCU | COUNTY ROADS TO CUR EXP | 0.0000000000 | $129,030 | $129,030 | $0.00 | | |
| HOSP2CASH | HOSP DIST #2 GENERAL | 0.0536075306 | $129,030 | $129,030 | $6.92 | | |
| SCH48MO | SCHOOL DIST #48 EP & O | 1.4120478917 | $129,030 | $129,030 | $182.20 | | |
| CEM2 | CEMETERY DIST #2 GENERAL | 0.0241266154 | $129,030 | $129,030 | $3.11 | | |
| CONSERVE | CONSERVATION FUTURES | 0.0275621078 | $129,030 | $129,030 | $3.56 | | |
| FD2 | FIRE DIST #2 GENERAL | 0.7549976873 | $129,030 | $129,030 | $97.42 | | |
| LIB1 | LIBRARY DIST #1 GENERAL | 0.2868827388 | $129,030 | $129,030 | $37.02 | | |
| PORTPT | PORT OF PT GENERAL | 0.1134941229 | $129,030 | $129,030 | $14.64 | | |
| PORTPTIDD | PORT OF PT IDD 2019 | 0.2577346692 | $129,030 | $129,030 | $33.26 | | |
| PUD1 | PUD #1 GENERAL | 0.0597888892 | $129,030 | $129,030 | $7.71 | | |
| STATE | STATE SCHOOL PART 1 | 1.4940692947 | $129,030 | $129,030 | $192.78 | | |
| STATE2 | STATE SCHOOL PART 2 | 0.8050170049 | $129,030 | $129,030 | $103.87 | | |
| EMS2 | FIRE DIST #2 EMS | 0.4251727858 | $129,030 | $129,030 | $54.86 | | |
| | Total Tax Rate: | 7.3751720728 | | | | | |
| | | | | Taxes w/Current Exemptions: | $951.62 | | |
| | | | | Taxes w/o Exemptions: | $951.62 | | |
Improvement / Building
Sketch
| No sketches available for this property. |
Property Image
Land
| 1 | 2355-1535F | | 0.0000 | 0.00 | 0.00 | 0.00 | 0.00 | $78,200 | $0 |
| 2 | 2355-1535F | | 0.0000 | 0.00 | 0.00 | 0.00 | 0.00 | $50,830 | $0 |
Roll Value History
| 2026 | N/A | N/A | N/A | N/A | N/A |
| 2025 | $0 | $129,030 | $0 | $129,030 | $129,030 |
| 2024 | $0 | $77,138 | $0 | $77,138 | $77,138 |
| 2023 | $0 | $70,125 | $0 | $70,125 | $70,125 |
| 2022 | $0 | $70,125 | $0 | $70,125 | $70,125 |
Deed and Sales History
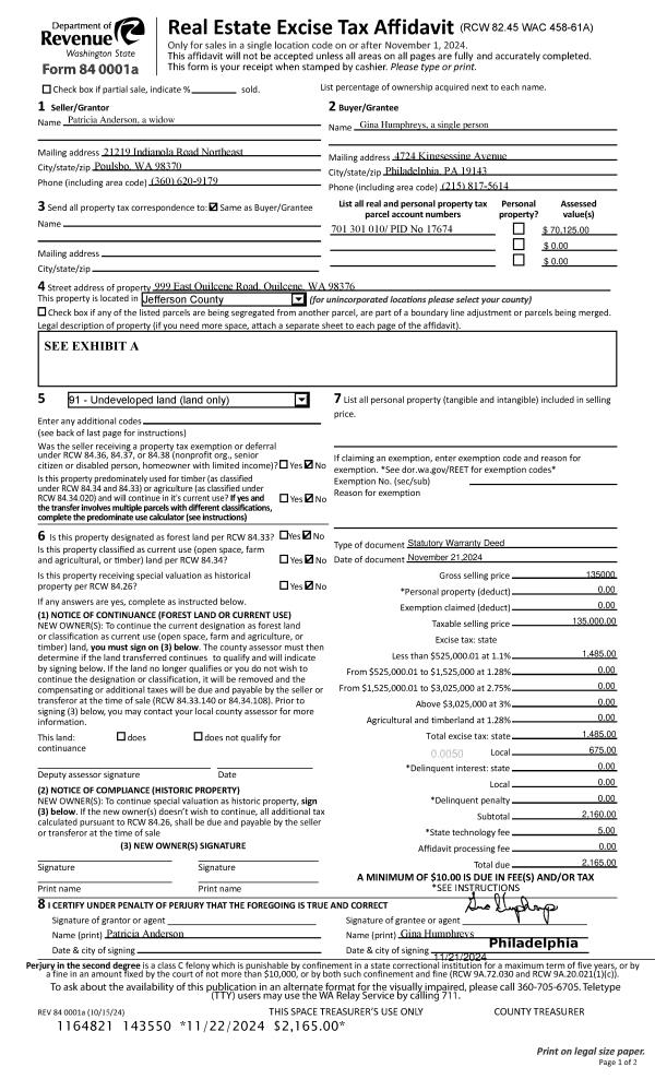
| 1 | 11/21/2024 | SWD | Statutory Warranty Deed | PATRICIA ANDERSON | GINA HUMPHREYS | | | $135,000.00 | 143550 | |
| 2 | 09/16/2014 | CPA | Community Property Agreement | JOHN ANDERSON | PATRICIA ANDERSON | | | | 0 | D/C KITSAP SEE EVENTS |
| 3 | 11/22/2004 | SWD | Statutory Warranty Deed | FRANKLYN/CAROL HARDAN | ANDERSON, JOHN/PATRICIA | 0 | 0 | $50,000.00 | 102343 | 0 |
| 4 | 11/09/2004 | QCD | Quit Claim Deed | SHARP, DARYN AKA SHARP, D | SHARP, DONN A | 0 | 0 | $0.00 | 101983 | 0 |
| 5 | 11/02/1995 | QCD | Quit Claim Deed | KATHOL, CARROLL W, ESTATE | KATHOL, ROBERTA TRUSTEE | 0 | 0 | $0.00 | 78188 | 0 |
Payout Agreement
| No payout information available.. |