Property
Account |
| Property ID: | 17714 | Abbreviated Legal Description: | S30 T27 R1W TX 23(S100' LYING W OF RD) WITH EASE |
| Parcel # / Geo ID: | 701304011 | Agent Code: | |
| Type: | Real | | |
| Tax Area: | 0321 - 1-48F2E2H2C2L1 | Land Use Code | 18 |
| Open Space: | N | DFL | N |
| Historic Property: | N | Remodel Property: | N |
| Multi-Family Redevelopment: | N | | |
| Township: | 27N | Section: | 30 |
| Range: | 1W |
Location |
| Address: | | Mapsco: | 148/029 |
| Neighborhood: | S30 & S31 T27N R1W + S5 & S6 T26N R1W + GAETZ & GUSTAVSON SP | Map ID: | |
| Neighborhood CD: | 2355 |
Owner |
| Name: | LAURIE & ALAN WELLS | Owner ID: | 100813 |
| Mailing Address: | 36306 53RD AVE S AUBURN, WA 98001-9143 | % Ownership: | 100.0000000000% |
| | | Exemptions: | |
Pay Tax Due
Select the appropriate checkbox next to the year to be paid. Multiple years may be selected.
*Convenience Fee not included
Taxes and Assessment Details
Property Tax Information as of
03/12/2026
Click on "Statement Details" to expand or collapse a tax statement.
* Please enter a valid date ** Please enter a valid date *
Statement Details |
| 2026 | 7252 | STATE - STATE LEVY (SCHOOL) | $301.68 | $301.67 | $0.00 | $0.00 | $0.00 | $603.35 |
| 2026 | 7252 | COUNTY - COUNTY LEVIES (CE, DD, VET, MH) | $120.63 | $120.60 | $0.00 | $0.00 | $0.00 | $241.23 |
| 2026 | 7252 | CONSERVE - CONSERVATION FUTURES | $3.62 | $3.61 | $0.00 | $0.00 | $0.00 | $7.23 |
| 2026 | 7252 | COROADS - COUNTY ROADS (ROADS, DIV TO CE) | $97.30 | $97.29 | $0.00 | $0.00 | $0.00 | $194.59 |
| 2026 | 7252 | PORTPT - PORT DISTRICT | $48.71 | $48.71 | $0.00 | $0.00 | $0.00 | $97.42 |
| 2026 | 7252 | PUD1 - PUD #1 | $7.85 | $7.84 | $0.00 | $0.00 | $0.00 | $15.69 |
| 2026 | 7252 | LIB1 - LIBRARY DIST #1 | $37.65 | $37.64 | $0.00 | $0.00 | $0.00 | $75.29 |
| 2026 | 7252 | HD2 - HOSP DIST #2 | $7.04 | $7.03 | $0.00 | $0.00 | $0.00 | $14.07 |
| 2026 | 7252 | SD48 - SCHOOL DIST #48 | $185.28 | $185.28 | $0.00 | $0.00 | $0.00 | $370.56 |
| 2026 | 7252 | FD2 - FIRE DISTRICT #2 | $99.07 | $99.06 | $0.00 | $0.00 | $0.00 | $198.13 |
| 2026 | 7252 | EMS2 - FIRE DIST #2 EMS | $55.79 | $55.79 | $0.00 | $0.00 | $0.00 | $111.58 |
| 2026 | 7252 | CEM2 - CEMETERY DIST #2 | $3.17 | $3.16 | $0.00 | $0.00 | $0.00 | $6.33 |
| 2026 | 7252 | FP - DNR Forest Fire Protection Assmt | $8.50 | $8.50 | $0.00 | $0.00 | $0.00 | $17.00 |
| 2026 | 7252 | FPLCA - DNR Landowner Contingency Assmt | $3.00 | $3.00 | $0.00 | $0.00 | $0.00 | $6.00 |
| 2026 | 7252 | JCCD - JC Conservation District | $2.57 | $2.57 | $0.00 | $0.00 | $0.00 | $5.14 |
| 2026 | 7252 | NWA - Noxious Weed Assessment | $3.20 | $3.20 | $0.00 | $0.00 | $0.00 | $6.40 |
| 2026 | 7252 | OSS - On Site Septic | $23.10 | $23.10 | $0.00 | $0.00 | $0.00 | $46.20 |
| 2026 | 7252 | WAT - Clean Water District | $13.00 | $13.00 | $0.00 | $0.00 | $0.00 | $26.00 |
| 2026 | 7252 | FP ADMIN - FP ADMIN | $0.50 | $0.00 | $0.00 | $0.00 | $0.00 | $0.50 |
| 2026 | 7252 | TOTAL: | $1021.66 | $1021.05 | $0.00 | $0.00 | $0.00 | $2042.71 |
|
| 2026 | 7252 | $1021.66 | $1021.05 | $0.00 | $0.00 | $0.00 | $2042.71 |
Statement Details |
| 2025 | 7273 | STATE - STATE LEVY (SCHOOL) | $301.00 | $300.99 | $0.00 | $0.00 | $601.99 | $0.00 |
| 2025 | 7273 | COUNTY - COUNTY LEVIES (CE, DD, VET, MH) | $118.37 | $118.36 | $0.00 | $0.00 | $236.73 | $0.00 |
| 2025 | 7273 | CONSERVE - CONSERVATION FUTURES | $3.55 | $3.55 | $0.00 | $0.00 | $7.10 | $0.00 |
| 2025 | 7273 | COROADS - COUNTY ROADS (ROADS, DIV TO CE) | $94.84 | $94.82 | $0.00 | $0.00 | $189.66 | $0.00 |
| 2025 | 7273 | PORTPT - PORT DISTRICT | $48.31 | $48.29 | $0.00 | $0.00 | $96.60 | $0.00 |
| 2025 | 7273 | PUD1 - PUD #1 | $7.75 | $7.74 | $0.00 | $0.00 | $15.49 | $0.00 |
| 2025 | 7273 | LIB1 - LIBRARY DIST #1 | $36.69 | $36.69 | $0.00 | $0.00 | $73.38 | $0.00 |
| 2025 | 7273 | HD2 - HOSP DIST #2 | $6.91 | $6.90 | $0.00 | $0.00 | $13.81 | $0.00 |
| 2025 | 7273 | SD48 - SCHOOL DIST #48 | $177.25 | $177.24 | $0.00 | $0.00 | $354.49 | $0.00 |
| 2025 | 7273 | FD2 - FIRE DISTRICT #2 | $97.86 | $97.86 | $0.00 | $0.00 | $195.72 | $0.00 |
| 2025 | 7273 | EMS2 - FIRE DIST #2 EMS | $55.11 | $55.10 | $0.00 | $0.00 | $110.21 | $0.00 |
| 2025 | 7273 | CEM2 - CEMETERY DIST #2 | $3.12 | $3.12 | $0.00 | $0.00 | $6.24 | $0.00 |
| 2025 | 7273 | FP - DNR Forest Fire Protection Assmt | $8.50 | $8.50 | $0.00 | $0.00 | $17.00 | $0.00 |
| 2025 | 7273 | FPLCA - DNR Landowner Contingency Assmt | $3.00 | $3.00 | $0.00 | $0.00 | $6.00 | $0.00 |
| 2025 | 7273 | JCCD - JC Conservation District | $2.60 | $2.60 | $0.00 | $0.00 | $5.20 | $0.00 |
| 2025 | 7273 | NWA - Noxious Weed Assessment | $2.30 | $2.30 | $0.00 | $0.00 | $4.60 | $0.00 |
| 2025 | 7273 | OSS - On Site Septic | $21.50 | $21.50 | $0.00 | $0.00 | $43.00 | $0.00 |
| 2025 | 7273 | WAT - Clean Water District | $13.00 | $13.00 | $0.00 | $0.00 | $26.00 | $0.00 |
| 2025 | 7273 | FP ADMIN - FP ADMIN | $0.50 | $0.00 | $0.00 | $0.00 | $0.50 | $0.00 |
| 2025 | 7273 | TOTAL: | $1002.16 | $1001.56 | $0.00 | $0.00 | $2003.72 | $0.00 |
|
| 2025 | 7273 | $1002.16 | $1001.56 | $0.00 | $0.00 | $2003.72 | $0.00 |
Statement Details |
| 2024 | 7296 | STATE - STATE LEVY (SCHOOL) | $264.44 | $264.43 | $0.00 | $0.00 | $528.87 | $0.00 |
| 2024 | 7296 | COUNTY - COUNTY LEVIES (CE, DD, VET, MH) | $113.16 | $113.15 | $0.00 | $0.00 | $226.31 | $0.00 |
| 2024 | 7296 | CONSERVE - CONSERVATION FUTURES | $3.40 | $3.39 | $0.00 | $0.00 | $6.79 | $0.00 |
| 2024 | 7296 | COROADS - COUNTY ROADS (ROADS, DIV TO CE) | $91.06 | $91.05 | $0.00 | $0.00 | $182.11 | $0.00 |
| 2024 | 7296 | PORTPT - PORT DISTRICT | $46.74 | $46.73 | $0.00 | $0.00 | $93.47 | $0.00 |
| 2024 | 7296 | PUD1 - PUD #1 | $7.43 | $7.43 | $0.00 | $0.00 | $14.86 | $0.00 |
| 2024 | 7296 | LIB1 - LIBRARY DIST #1 | $35.23 | $35.22 | $0.00 | $0.00 | $70.45 | $0.00 |
| 2024 | 7296 | HD2 - HOSP DIST #2 | $6.60 | $6.60 | $0.00 | $0.00 | $13.20 | $0.00 |
| 2024 | 7296 | SD48 - SCHOOL DIST #48 | $118.44 | $118.43 | $0.00 | $0.00 | $236.87 | $0.00 |
| 2024 | 7296 | FD2 - FIRE DISTRICT #2 | $94.07 | $94.07 | $0.00 | $0.00 | $188.14 | $0.00 |
| 2024 | 7296 | EMS2 - FIRE DIST #2 EMS | $52.96 | $52.95 | $0.00 | $0.00 | $105.91 | $0.00 |
| 2024 | 7296 | CEM2 - CEMETERY DIST #2 | $3.01 | $3.01 | $0.00 | $0.00 | $6.02 | $0.00 |
| 2024 | 7296 | FP - DNR Forest Fire Protection Assmt | $8.50 | $8.50 | $0.00 | $0.00 | $17.00 | $0.00 |
| 2024 | 7296 | FPLCA - DNR Landowner Contingency Assmt | $3.00 | $3.00 | $0.00 | $0.00 | $6.00 | $0.00 |
| 2024 | 7296 | JCCD - JC Conservation District | $2.60 | $2.60 | $0.00 | $0.00 | $5.20 | $0.00 |
| 2024 | 7296 | NWA - Noxious Weed Assessment | $2.30 | $2.30 | $0.00 | $0.00 | $4.60 | $0.00 |
| 2024 | 7296 | OSS - On Site Septic | $21.00 | $21.00 | $0.00 | $0.00 | $42.00 | $0.00 |
| 2024 | 7296 | WAT - Clean Water District | $12.50 | $12.50 | $0.00 | $0.00 | $25.00 | $0.00 |
| 2024 | 7296 | FP ADMIN - FP ADMIN | $0.50 | $0.00 | $0.00 | $0.00 | $0.50 | $0.00 |
| 2024 | 7296 | TOTAL: | $886.94 | $886.36 | $0.00 | $0.00 | $1773.30 | $0.00 |
|
| 2024 | 7296 | $886.94 | $886.36 | $0.00 | $0.00 | $1773.30 | $0.00 |
Statement Details |
| 2023 | 7310 | STATE - STATE LEVY (SCHOOL) | $268.27 | $268.25 | $0.00 | $0.00 | $536.52 | $0.00 |
| 2023 | 7310 | COUNTY - COUNTY LEVIES (CE, DD, VET, MH) | $117.08 | $117.04 | $0.00 | $0.00 | $234.12 | $0.00 |
| 2023 | 7310 | CONSERVE - CONSERVATION FUTURES | $3.51 | $3.51 | $0.00 | $0.00 | $7.02 | $0.00 |
| 2023 | 7310 | COROADS - COUNTY ROADS (ROADS, DIV TO CE) | $94.72 | $94.70 | $0.00 | $0.00 | $189.42 | $0.00 |
| 2023 | 7310 | PORTPT - PORT DISTRICT | $49.32 | $49.31 | $0.00 | $0.00 | $98.63 | $0.00 |
| 2023 | 7310 | PUD1 - PUD #1 | $7.76 | $7.76 | $0.00 | $0.00 | $15.52 | $0.00 |
| 2023 | 7310 | LIB1 - LIBRARY DIST #1 | $36.64 | $36.64 | $0.00 | $0.00 | $73.28 | $0.00 |
| 2023 | 7310 | HD2 - HOSP DIST #2 | $6.83 | $6.83 | $0.00 | $0.00 | $13.66 | $0.00 |
| 2023 | 7310 | SD48 - SCHOOL DIST #48 | $129.55 | $129.54 | $0.00 | $0.00 | $259.09 | $0.00 |
| 2023 | 7310 | FD2 - FIRE DISTRICT #2 | $101.61 | $101.61 | $0.00 | $0.00 | $203.22 | $0.00 |
| 2023 | 7310 | EMS2 - FIRE DIST #2 EMS | $56.98 | $56.97 | $0.00 | $0.00 | $113.95 | $0.00 |
| 2023 | 7310 | CEM2 - CEMETERY DIST #2 | $3.24 | $3.23 | $0.00 | $0.00 | $6.47 | $0.00 |
| 2023 | 7310 | FP - DNR Forest Fire Protection Assmt | $8.50 | $8.50 | $0.00 | $0.00 | $17.00 | $0.00 |
| 2023 | 7310 | FPLCA - DNR Landowner Contingency Assmt | $3.00 | $3.00 | $0.00 | $0.00 | $6.00 | $0.00 |
| 2023 | 7310 | JCCD - JC Conservation District | $2.60 | $2.60 | $0.00 | $0.00 | $5.20 | $0.00 |
| 2023 | 7310 | NWA - Noxious Weed Assessment | $2.30 | $2.30 | $0.00 | $0.00 | $4.60 | $0.00 |
| 2023 | 7310 | OSS - On Site Septic | $20.50 | $20.50 | $0.00 | $0.00 | $41.00 | $0.00 |
| 2023 | 7310 | WAT - Clean Water District | $12.00 | $12.00 | $0.00 | $0.00 | $24.00 | $0.00 |
| 2023 | 7310 | FP ADMIN - FP ADMIN | $0.50 | $0.00 | $0.00 | $0.00 | $0.50 | $0.00 |
| 2023 | 7310 | TOTAL: | $924.91 | $924.29 | $0.00 | $0.00 | $1849.20 | $0.00 |
|
| 2023 | 7310 | $924.91 | $924.29 | $0.00 | $0.00 | $1849.20 | $0.00 |
Values
| (+) Improvement Homesite Value: | + | $0 | |
| (+) Improvement Non-Homesite Value: | + | $8,280 | |
| (+) Land Homesite Value: | + | $0 | |
| (+) Land Non-Homesite Value: | + | $254,150 | |
| (+) Curr Use (HS): | + | $0 | $0 |
| (+) Curr Use (NHS): | + | $0 | $0 |
| | | -------------------------- | |
| (=) Market Value: | = | $262,430 | |
| (–) Productivity Loss: | – | $0 | |
| | | -------------------------- | |
| (=) Subtotal: | = | $262,430 | |
| (+) Senior Appraised Value: | + | $0 | |
| (+) Non-Senior Appraised Value: | + | $262,430 | |
| | | -------------------------- | |
| (=) Total Appraised Value: | = | $262,430 | |
| (–) Senior Exemption Loss: | – | $0 | |
| (–) Exemption Loss: | – | $0 | |
| | | -------------------------- | |
| (=) Taxable Value: | = | $262,430 | |
Taxing Jurisdiction
| Owner: | LAURIE & ALAN WELLS | | |
| % Ownership: | 100.0000000000% | | |
| Total Value: | $262,430 | | |
| Tax Area: | 0321 - 1-48F2E2H2C2L1 |
| CE | COUNTY CURRENT EXPENSE | 0.9034619479 | $262,430 | $262,430 | $237.10 | | |
| CNTYDD | DEVELOPMENTAL DISABILITIES | 0.0052121823 | $262,430 | $262,430 | $1.37 | | |
| CNTYVET | VETERANS RELIEF | 0.0052777810 | $262,430 | $262,430 | $1.39 | | |
| MENTAL | MENTAL HEALTH | 0.0052121823 | $262,430 | $262,430 | $1.37 | | |
| ROADS | COUNTY ROADS | 0.7415066410 | $262,430 | $262,430 | $194.59 | | |
| ROADSCU | COUNTY ROADS TO CUR EXP | 0.0000000000 | $262,430 | $262,430 | $0.00 | | |
| HOSP2CASH | HOSP DIST #2 GENERAL | 0.0536075306 | $262,430 | $262,430 | $14.07 | | |
| SCH48MO | SCHOOL DIST #48 EP & O | 1.4120478917 | $262,430 | $262,430 | $370.56 | | |
| CEM2 | CEMETERY DIST #2 GENERAL | 0.0241266154 | $262,430 | $262,430 | $6.33 | | |
| CONSERVE | CONSERVATION FUTURES | 0.0275621078 | $262,430 | $262,430 | $7.23 | | |
| FD2 | FIRE DIST #2 GENERAL | 0.7549976873 | $262,430 | $262,430 | $198.13 | | |
| LIB1 | LIBRARY DIST #1 GENERAL | 0.2868827388 | $262,430 | $262,430 | $75.29 | | |
| PORTPT | PORT OF PT GENERAL | 0.1134941229 | $262,430 | $262,430 | $29.78 | | |
| PORTPTIDD | PORT OF PT IDD 2019 | 0.2577346692 | $262,430 | $262,430 | $67.64 | | |
| PUD1 | PUD #1 GENERAL | 0.0597888892 | $262,430 | $262,430 | $15.69 | | |
| STATE | STATE SCHOOL PART 1 | 1.4940692947 | $262,430 | $262,430 | $392.09 | | |
| STATE2 | STATE SCHOOL PART 2 | 0.8050170049 | $262,430 | $262,430 | $211.26 | | |
| EMS2 | FIRE DIST #2 EMS | 0.4251727858 | $262,430 | $262,430 | $111.58 | | |
| | Total Tax Rate: | 7.3751720728 | | | | | |
| | | | | Taxes w/Current Exemptions: | $1,935.47 | | |
| | | | | Taxes w/o Exemptions: | $1,935.47 | | |
Improvement / Building
| Improvement #1: | Site Improvements | State Code: | 18 | 0.0 sqft | Value: | $8,280 |
Sketch
| No sketches available for this property. |
Property Image
Land
| 1 | 2355-1515F | | 0.0000 | 0.00 | 0.00 | 0.00 | 0.00 | $254,150 | $0 |
Roll Value History
| 2026 | N/A | N/A | N/A | N/A | N/A |
| 2025 | $8,280 | $254,150 | $0 | $262,430 | $262,430 |
| 2024 | $7,935 | $243,100 | $0 | $251,035 | $251,035 |
| 2023 | $7,590 | $221,000 | $0 | $228,590 | $228,590 |
| 2022 | $6,900 | $221,000 | $0 | $227,900 | $227,900 |
Deed and Sales History
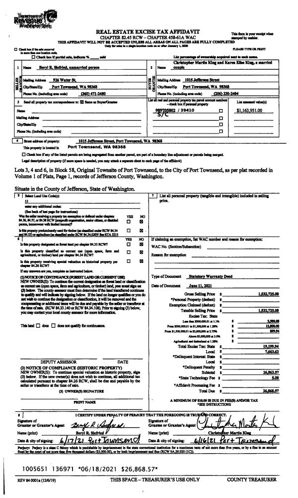
| 1 | 04/08/2019 | SWD | Statutory Warranty Deed | STUART & LYNNE WEST REV LIVING TRUST | LAURIE & ALAN WELLS | | | $188,700.00 | 132121 | |
| 2 | 11/11/2018 | QCD | Quit Claim Deed | | | | | | 131472 | |
| 3 | 09/21/2018 | QCD | Quit Claim Deed | | | | | | 131242 | |
| 4 | 11/17/2014 | QCD | Quit Claim Deed | STUART J WEST | STUART & LYNNE WEST REV LIVING TRUST | | | | 122304 | |
Payout Agreement
| No payout information available.. |