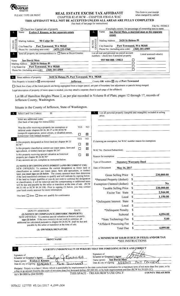
Property
Account |
| Property ID: | 17723 | Abbreviated Legal Description: | S30 T27 R1W TAX 31 BND BY BLA#134523 PARCEL A V38/P359 |
| Parcel # / Geo ID: | 701304020 | Agent Code: | |
| Type: | Real | | |
| Tax Area: | 0321 - 1-48F2E2H2C2L1 | Land Use Code | 91 |
| Open Space: | N | DFL | N |
| Historic Property: | N | Remodel Property: | N |
| Multi-Family Redevelopment: | N | | |
| Township: | 27N | Section: | 30 |
| Range: | 1W |
Location |
| Address: | | Mapsco: | 148/036 |
| Neighborhood: | S30 & S31 T27N R1W + S5 & S6 T26N R1W + GAETZ & GUSTAVSON SP | Map ID: | |
| Neighborhood CD: | 2355 |
Owner |
| Name: | RICHARD G & CLARA C NELSON | Owner ID: | 104332 |
| Mailing Address: | 20917 8TH AVE S DES MOINES, WA 98198-3249 | % Ownership: | 100.0000000000% |
| | | Exemptions: | |
Pay Tax Due
Select the appropriate checkbox next to the year to be paid. Multiple years may be selected.
*Convenience Fee not included
Taxes and Assessment Details
Property Tax Information as of
03/10/2026
Click on "Statement Details" to expand or collapse a tax statement.
* Please enter a valid date ** Please enter a valid date *
Statement Details |
| 2026 | 7261 | STATE - STATE LEVY (SCHOOL) | $127.05 | $127.04 | $0.00 | $0.00 | $0.00 | $254.09 |
| 2026 | 7261 | COUNTY - COUNTY LEVIES (CE, DD, VET, MH) | $50.80 | $50.79 | $0.00 | $0.00 | $0.00 | $101.59 |
| 2026 | 7261 | CONSERVE - CONSERVATION FUTURES | $1.53 | $1.52 | $0.00 | $0.00 | $0.00 | $3.05 |
| 2026 | 7261 | COROADS - COUNTY ROADS (ROADS, DIV TO CE) | $40.98 | $40.97 | $0.00 | $0.00 | $0.00 | $81.95 |
| 2026 | 7261 | PORTPT - PORT DISTRICT | $20.51 | $20.51 | $0.00 | $0.00 | $0.00 | $41.02 |
| 2026 | 7261 | PUD1 - PUD #1 | $3.31 | $3.30 | $0.00 | $0.00 | $0.00 | $6.61 |
| 2026 | 7261 | LIB1 - LIBRARY DIST #1 | $15.85 | $15.85 | $0.00 | $0.00 | $0.00 | $31.70 |
| 2026 | 7261 | HD2 - HOSP DIST #2 | $2.96 | $2.96 | $0.00 | $0.00 | $0.00 | $5.92 |
| 2026 | 7261 | SD48 - SCHOOL DIST #48 | $78.03 | $78.02 | $0.00 | $0.00 | $0.00 | $156.05 |
| 2026 | 7261 | FD2 - FIRE DISTRICT #2 | $41.72 | $41.72 | $0.00 | $0.00 | $0.00 | $83.44 |
| 2026 | 7261 | EMS2 - FIRE DIST #2 EMS | $23.50 | $23.49 | $0.00 | $0.00 | $0.00 | $46.99 |
| 2026 | 7261 | CEM2 - CEMETERY DIST #2 | $1.34 | $1.33 | $0.00 | $0.00 | $0.00 | $2.67 |
| 2026 | 7261 | FP - DNR Forest Fire Protection Assmt | $8.50 | $8.50 | $0.00 | $0.00 | $0.00 | $17.00 |
| 2026 | 7261 | FPLCA - DNR Landowner Contingency Assmt | $3.00 | $3.00 | $0.00 | $0.00 | $0.00 | $6.00 |
| 2026 | 7261 | JCCD - JC Conservation District | $2.53 | $2.53 | $0.00 | $0.00 | $0.00 | $5.06 |
| 2026 | 7261 | NWA - Noxious Weed Assessment | $2.98 | $2.97 | $0.00 | $0.00 | $0.00 | $5.95 |
| 2026 | 7261 | WAT - Clean Water District | $13.00 | $13.00 | $0.00 | $0.00 | $0.00 | $26.00 |
| 2026 | 7261 | FP ADMIN - FP ADMIN | $0.50 | $0.00 | $0.00 | $0.00 | $0.00 | $0.50 |
| 2026 | 7261 | TOTAL: | $438.09 | $437.50 | $0.00 | $0.00 | $0.00 | $875.59 |
|
| 2026 | 7261 | $438.09 | $437.50 | $0.00 | $0.00 | $0.00 | $875.59 |
Statement Details |
| 2025 | 7282 | STATE - STATE LEVY (SCHOOL) | $126.75 | $126.75 | $0.00 | $0.00 | $253.50 | $0.00 |
| 2025 | 7282 | COUNTY - COUNTY LEVIES (CE, DD, VET, MH) | $49.85 | $49.83 | $0.00 | $0.00 | $99.68 | $0.00 |
| 2025 | 7282 | CONSERVE - CONSERVATION FUTURES | $1.50 | $1.49 | $0.00 | $0.00 | $2.99 | $0.00 |
| 2025 | 7282 | COROADS - COUNTY ROADS (ROADS, DIV TO CE) | $39.94 | $39.92 | $0.00 | $0.00 | $79.86 | $0.00 |
| 2025 | 7282 | PORTPT - PORT DISTRICT | $20.35 | $20.33 | $0.00 | $0.00 | $40.68 | $0.00 |
| 2025 | 7282 | PUD1 - PUD #1 | $3.26 | $3.26 | $0.00 | $0.00 | $6.52 | $0.00 |
| 2025 | 7282 | LIB1 - LIBRARY DIST #1 | $15.45 | $15.45 | $0.00 | $0.00 | $30.90 | $0.00 |
| 2025 | 7282 | HD2 - HOSP DIST #2 | $2.91 | $2.91 | $0.00 | $0.00 | $5.82 | $0.00 |
| 2025 | 7282 | SD48 - SCHOOL DIST #48 | $74.64 | $74.64 | $0.00 | $0.00 | $149.28 | $0.00 |
| 2025 | 7282 | FD2 - FIRE DISTRICT #2 | $41.21 | $41.21 | $0.00 | $0.00 | $82.42 | $0.00 |
| 2025 | 7282 | EMS2 - FIRE DIST #2 EMS | $23.21 | $23.20 | $0.00 | $0.00 | $46.41 | $0.00 |
| 2025 | 7282 | CEM2 - CEMETERY DIST #2 | $1.32 | $1.31 | $0.00 | $0.00 | $2.63 | $0.00 |
| 2025 | 7282 | FP - DNR Forest Fire Protection Assmt | $8.50 | $8.50 | $0.00 | $0.00 | $17.00 | $0.00 |
| 2025 | 7282 | FPLCA - DNR Landowner Contingency Assmt | $3.00 | $3.00 | $0.00 | $0.00 | $6.00 | $0.00 |
| 2025 | 7282 | JCCD - JC Conservation District | $2.53 | $2.53 | $0.00 | $0.00 | $5.06 | $0.00 |
| 2025 | 7282 | NWA - Noxious Weed Assessment | $2.15 | $2.15 | $0.00 | $0.00 | $4.30 | $0.00 |
| 2025 | 7282 | WAT - Clean Water District | $13.00 | $13.00 | $0.00 | $0.00 | $26.00 | $0.00 |
| 2025 | 7282 | FP ADMIN - FP ADMIN | $0.50 | $0.00 | $0.00 | $0.00 | $0.50 | $0.00 |
| 2025 | 7282 | TOTAL: | $430.07 | $429.48 | $0.00 | $0.00 | $859.55 | $0.00 |
|
| 2025 | 7282 | $430.07 | $429.48 | $0.00 | $0.00 | $859.55 | $0.00 |
Statement Details |
| 2024 | 7305 | STATE - STATE LEVY (SCHOOL) | $107.63 | $107.62 | $0.00 | $0.00 | $215.25 | $0.00 |
| 2024 | 7305 | COUNTY - COUNTY LEVIES (CE, DD, VET, MH) | $46.06 | $46.05 | $0.00 | $0.00 | $92.11 | $0.00 |
| 2024 | 7305 | CONSERVE - CONSERVATION FUTURES | $1.38 | $1.38 | $0.00 | $0.00 | $2.76 | $0.00 |
| 2024 | 7305 | COROADS - COUNTY ROADS (ROADS, DIV TO CE) | $37.06 | $37.06 | $0.00 | $0.00 | $74.12 | $0.00 |
| 2024 | 7305 | PORTPT - PORT DISTRICT | $19.03 | $19.01 | $0.00 | $0.00 | $38.04 | $0.00 |
| 2024 | 7305 | PUD1 - PUD #1 | $3.03 | $3.02 | $0.00 | $0.00 | $6.05 | $0.00 |
| 2024 | 7305 | LIB1 - LIBRARY DIST #1 | $14.34 | $14.34 | $0.00 | $0.00 | $28.68 | $0.00 |
| 2024 | 7305 | HD2 - HOSP DIST #2 | $2.69 | $2.68 | $0.00 | $0.00 | $5.37 | $0.00 |
| 2024 | 7305 | SD48 - SCHOOL DIST #48 | $48.21 | $48.20 | $0.00 | $0.00 | $96.41 | $0.00 |
| 2024 | 7305 | FD2 - FIRE DISTRICT #2 | $38.29 | $38.29 | $0.00 | $0.00 | $76.58 | $0.00 |
| 2024 | 7305 | EMS2 - FIRE DIST #2 EMS | $21.56 | $21.55 | $0.00 | $0.00 | $43.11 | $0.00 |
| 2024 | 7305 | CEM2 - CEMETERY DIST #2 | $1.23 | $1.22 | $0.00 | $0.00 | $2.45 | $0.00 |
| 2024 | 7305 | FP - DNR Forest Fire Protection Assmt | $8.50 | $8.50 | $0.00 | $0.00 | $17.00 | $0.00 |
| 2024 | 7305 | FPLCA - DNR Landowner Contingency Assmt | $3.00 | $3.00 | $0.00 | $0.00 | $6.00 | $0.00 |
| 2024 | 7305 | JCCD - JC Conservation District | $2.53 | $2.53 | $0.00 | $0.00 | $5.06 | $0.00 |
| 2024 | 7305 | NWA - Noxious Weed Assessment | $2.15 | $2.15 | $0.00 | $0.00 | $4.30 | $0.00 |
| 2024 | 7305 | WAT - Clean Water District | $12.50 | $12.50 | $0.00 | $0.00 | $25.00 | $0.00 |
| 2024 | 7305 | FP ADMIN - FP ADMIN | $0.50 | $0.00 | $0.00 | $0.00 | $0.50 | $0.00 |
| 2024 | 7305 | TOTAL: | $369.69 | $369.10 | $0.00 | $0.00 | $738.79 | $0.00 |
|
| 2024 | 7305 | $369.69 | $369.10 | $0.00 | $0.00 | $738.79 | $0.00 |
Statement Details |
| 2023 | 7319 | STATE - STATE LEVY (SCHOOL) | $95.12 | $95.10 | $0.00 | $0.00 | $190.22 | $0.00 |
| 2023 | 7319 | COUNTY - COUNTY LEVIES (CE, DD, VET, MH) | $41.51 | $41.49 | $0.00 | $0.00 | $83.00 | $0.00 |
| 2023 | 7319 | CONSERVE - CONSERVATION FUTURES | $1.25 | $1.24 | $0.00 | $0.00 | $2.49 | $0.00 |
| 2023 | 7319 | COROADS - COUNTY ROADS (ROADS, DIV TO CE) | $33.58 | $33.57 | $0.00 | $0.00 | $67.15 | $0.00 |
| 2023 | 7319 | PORTPT - PORT DISTRICT | $17.49 | $17.48 | $0.00 | $0.00 | $34.97 | $0.00 |
| 2023 | 7319 | PUD1 - PUD #1 | $2.75 | $2.75 | $0.00 | $0.00 | $5.50 | $0.00 |
| 2023 | 7319 | LIB1 - LIBRARY DIST #1 | $12.99 | $12.99 | $0.00 | $0.00 | $25.98 | $0.00 |
| 2023 | 7319 | HD2 - HOSP DIST #2 | $2.43 | $2.41 | $0.00 | $0.00 | $4.84 | $0.00 |
| 2023 | 7319 | SD48 - SCHOOL DIST #48 | $45.93 | $45.93 | $0.00 | $0.00 | $91.86 | $0.00 |
| 2023 | 7319 | FD2 - FIRE DISTRICT #2 | $36.03 | $36.02 | $0.00 | $0.00 | $72.05 | $0.00 |
| 2023 | 7319 | EMS2 - FIRE DIST #2 EMS | $20.20 | $20.20 | $0.00 | $0.00 | $40.40 | $0.00 |
| 2023 | 7319 | CEM2 - CEMETERY DIST #2 | $1.15 | $1.14 | $0.00 | $0.00 | $2.29 | $0.00 |
| 2023 | 7319 | FP - DNR Forest Fire Protection Assmt | $8.50 | $8.50 | $0.00 | $0.00 | $17.00 | $0.00 |
| 2023 | 7319 | FPLCA - DNR Landowner Contingency Assmt | $3.00 | $3.00 | $0.00 | $0.00 | $6.00 | $0.00 |
| 2023 | 7319 | JCCD - JC Conservation District | $2.53 | $2.53 | $0.00 | $0.00 | $5.06 | $0.00 |
| 2023 | 7319 | NWA - Noxious Weed Assessment | $2.15 | $2.15 | $0.00 | $0.00 | $4.30 | $0.00 |
| 2023 | 7319 | WAT - Clean Water District | $12.00 | $12.00 | $0.00 | $0.00 | $24.00 | $0.00 |
| 2023 | 7319 | FP ADMIN - FP ADMIN | $0.50 | $0.00 | $0.00 | $0.00 | $0.50 | $0.00 |
| 2023 | 7319 | TOTAL: | $339.11 | $338.50 | $0.00 | $0.00 | $677.61 | $0.00 |
|
| 2023 | 7319 | $339.11 | $338.50 | $0.00 | $0.00 | $677.61 | $0.00 |
Values
| (+) Improvement Homesite Value: | + | $0 | |
| (+) Improvement Non-Homesite Value: | + | $0 | |
| (+) Land Homesite Value: | + | $0 | |
| (+) Land Non-Homesite Value: | + | $110,515 | |
| (+) Curr Use (HS): | + | $0 | $0 |
| (+) Curr Use (NHS): | + | $0 | $0 |
| | | -------------------------- | |
| (=) Market Value: | = | $110,515 | |
| (–) Productivity Loss: | – | $0 | |
| | | -------------------------- | |
| (=) Subtotal: | = | $110,515 | |
| (+) Senior Appraised Value: | + | $0 | |
| (+) Non-Senior Appraised Value: | + | $110,515 | |
| | | -------------------------- | |
| (=) Total Appraised Value: | = | $110,515 | |
| (–) Senior Exemption Loss: | – | $0 | |
| (–) Exemption Loss: | – | $0 | |
| | | -------------------------- | |
| (=) Taxable Value: | = | $110,515 | |
Taxing Jurisdiction
| Owner: | RICHARD G & CLARA C NELSON | | |
| % Ownership: | 100.0000000000% | | |
| Total Value: | $110,515 | | |
| Tax Area: | 0321 - 1-48F2E2H2C2L1 |
| CE | COUNTY CURRENT EXPENSE | 0.9034619479 | $110,515 | $110,515 | $99.85 | | |
| CNTYDD | DEVELOPMENTAL DISABILITIES | 0.0052121823 | $110,515 | $110,515 | $0.58 | | |
| CNTYVET | VETERANS RELIEF | 0.0052777810 | $110,515 | $110,515 | $0.58 | | |
| MENTAL | MENTAL HEALTH | 0.0052121823 | $110,515 | $110,515 | $0.58 | | |
| ROADS | COUNTY ROADS | 0.7415066410 | $110,515 | $110,515 | $81.95 | | |
| ROADSCU | COUNTY ROADS TO CUR EXP | 0.0000000000 | $110,515 | $110,515 | $0.00 | | |
| HOSP2CASH | HOSP DIST #2 GENERAL | 0.0536075306 | $110,515 | $110,515 | $5.92 | | |
| SCH48MO | SCHOOL DIST #48 EP & O | 1.4120478917 | $110,515 | $110,515 | $156.05 | | |
| CEM2 | CEMETERY DIST #2 GENERAL | 0.0241266154 | $110,515 | $110,515 | $2.67 | | |
| CONSERVE | CONSERVATION FUTURES | 0.0275621078 | $110,515 | $110,515 | $3.05 | | |
| FD2 | FIRE DIST #2 GENERAL | 0.7549976873 | $110,515 | $110,515 | $83.44 | | |
| LIB1 | LIBRARY DIST #1 GENERAL | 0.2868827388 | $110,515 | $110,515 | $31.70 | | |
| PORTPT | PORT OF PT GENERAL | 0.1134941229 | $110,515 | $110,515 | $12.54 | | |
| PORTPTIDD | PORT OF PT IDD 2019 | 0.2577346692 | $110,515 | $110,515 | $28.48 | | |
| PUD1 | PUD #1 GENERAL | 0.0597888892 | $110,515 | $110,515 | $6.61 | | |
| STATE | STATE SCHOOL PART 1 | 1.4940692947 | $110,515 | $110,515 | $165.12 | | |
| STATE2 | STATE SCHOOL PART 2 | 0.8050170049 | $110,515 | $110,515 | $88.97 | | |
| EMS2 | FIRE DIST #2 EMS | 0.4251727858 | $110,515 | $110,515 | $46.99 | | |
| | Total Tax Rate: | 7.3751720728 | | | | | |
| | | | | Taxes w/Current Exemptions: | $815.08 | | |
| | | | | Taxes w/o Exemptions: | $815.08 | | |
Improvement / Building
Sketch
| No sketches available for this property. |
Property Image
Land
| 1 | 1572A | | 4.0800 | 177724.80 | 0.00 | 0.00 | 0.00 | $64,515 | $0 |
| 2 | 2355-1365S | | 1.0000 | 43560.00 | 0.00 | 0.00 | 1.00 | $46,000 | $0 |
Roll Value History
| 2026 | N/A | N/A | N/A | N/A | N/A |
| 2025 | $0 | $110,515 | $0 | $110,515 | $110,515 |
| 2024 | $0 | $105,710 | $0 | $105,710 | $105,710 |
| 2023 | $0 | $93,040 | $0 | $93,040 | $93,040 |
| 2022 | $0 | $80,800 | $0 | $80,800 | $80,800 |
Deed and Sales History
| 1 | 03/10/2021 | SWD | Statutory Warranty Deed | JESSICA KNUTTEL | RICHARD G & CLARA C NELSON | | | $94,000.00 | 136287 | |
| 2 | 12/16/2019 | BLA | Boundary Line Adjustment | JESSICA KNUTTEL | BOULTON REVOCABLE LIVING TRUST | | | | 134523 | |
| 3 | 06/23/2020 | SWD | Statutory Warranty Deed | JOHN BOULTON | JESSICA KNUTTEL | | | $79,000.00 | 134567 | |
| 4 | 09/18/2017 | SWD | Statutory Warranty Deed | LISA A RUPP | JOHN & RUTH BOULTON | | | $12,000.00 | 128643 | |
| 5 | 06/14/2017 | BSD | Bargain and Sale Deed | | | | | | 128644 | |
| 6 | 08/28/2017 | EXD | Executor's Deed | | | | | | 128502 | |
| 7 | 06/14/2017 | EXD | Executor's Deed | | | | | | 128088 | |
Payout Agreement
| No payout information available.. |