Property
Account |
| Property ID: | 17797 | Abbreviated Legal Description: | DABOB K-TRACTS TRACT 4 SUBJ/EASE |
| Parcel # / Geo ID: | 701325004 | Agent Code: | |
| Type: | Real | | |
| Tax Area: | 0321 - 1-48F2E2H2C2L1 | Land Use Code | 18 |
| Open Space: | N | DFL | N |
| Historic Property: | N | Remodel Property: | N |
| Multi-Family Redevelopment: | N | | |
| Township: | 27N | Section: | 32 |
| Range: | 1W |
Location |
| Address: | | Mapsco: | 181/053 |
| Neighborhood: | S28, S29, S32, S33 T27N R1W CHILDS/GRINDLE/PICKETT/HUDSON SP | Map ID: | |
| Neighborhood CD: | 2350 |
Owner |
| Name: | ERIC S JANNAZZO & KATHARINE E FITZPATRICK | Owner ID: | 104496 |
| Mailing Address: | 4233 WOODLAWN AVE N SEATTLE, WA 98103-7522 | % Ownership: | 100.0000000000% |
| | | Exemptions: | |
Pay Tax Due
Select the appropriate checkbox next to the year to be paid. Multiple years may be selected.
*Convenience Fee not included
Taxes and Assessment Details
Property Tax Information as of
03/11/2026
Click on "Statement Details" to expand or collapse a tax statement.
* Please enter a valid date ** Please enter a valid date *
Statement Details |
| 2026 | 7335 | STATE - STATE LEVY (SCHOOL) | $224.50 | $224.49 | $0.00 | $0.00 | $0.00 | $448.99 |
| 2026 | 7335 | COUNTY - COUNTY LEVIES (CE, DD, VET, MH) | $89.76 | $89.75 | $0.00 | $0.00 | $0.00 | $179.51 |
| 2026 | 7335 | CONSERVE - CONSERVATION FUTURES | $2.69 | $2.69 | $0.00 | $0.00 | $0.00 | $5.38 |
| 2026 | 7335 | COROADS - COUNTY ROADS (ROADS, DIV TO CE) | $72.41 | $72.40 | $0.00 | $0.00 | $0.00 | $144.81 |
| 2026 | 7335 | PORTPT - PORT DISTRICT | $36.25 | $36.24 | $0.00 | $0.00 | $0.00 | $72.49 |
| 2026 | 7335 | PUD1 - PUD #1 | $5.84 | $5.84 | $0.00 | $0.00 | $0.00 | $11.68 |
| 2026 | 7335 | LIB1 - LIBRARY DIST #1 | $28.02 | $28.01 | $0.00 | $0.00 | $0.00 | $56.03 |
| 2026 | 7335 | HD2 - HOSP DIST #2 | $5.24 | $5.23 | $0.00 | $0.00 | $0.00 | $10.47 |
| 2026 | 7335 | SD48 - SCHOOL DIST #48 | $137.88 | $137.88 | $0.00 | $0.00 | $0.00 | $275.76 |
| 2026 | 7335 | FD2 - FIRE DISTRICT #2 | $73.72 | $73.72 | $0.00 | $0.00 | $0.00 | $147.44 |
| 2026 | 7335 | EMS2 - FIRE DIST #2 EMS | $41.52 | $41.51 | $0.00 | $0.00 | $0.00 | $83.03 |
| 2026 | 7335 | CEM2 - CEMETERY DIST #2 | $2.36 | $2.35 | $0.00 | $0.00 | $0.00 | $4.71 |
| 2026 | 7335 | FP - DNR Forest Fire Protection Assmt | $8.50 | $8.50 | $0.00 | $0.00 | $0.00 | $17.00 |
| 2026 | 7335 | FPLCA - DNR Landowner Contingency Assmt | $3.00 | $3.00 | $0.00 | $0.00 | $0.00 | $6.00 |
| 2026 | 7335 | JCCD - JC Conservation District | $2.69 | $2.69 | $0.00 | $0.00 | $0.00 | $5.38 |
| 2026 | 7335 | NWA - Noxious Weed Assessment | $3.88 | $3.87 | $0.00 | $0.00 | $0.00 | $7.75 |
| 2026 | 7335 | OSS - On Site Septic | $23.10 | $23.10 | $0.00 | $0.00 | $0.00 | $46.20 |
| 2026 | 7335 | WAT - Clean Water District | $13.00 | $13.00 | $0.00 | $0.00 | $0.00 | $26.00 |
| 2026 | 7335 | FP ADMIN - FP ADMIN | $0.50 | $0.00 | $0.00 | $0.00 | $0.00 | $0.50 |
| 2026 | 7335 | TOTAL: | $774.86 | $774.27 | $0.00 | $0.00 | $0.00 | $1549.13 |
|
| 2026 | 7335 | $774.86 | $774.27 | $0.00 | $0.00 | $0.00 | $1549.13 |
Statement Details |
| 2025 | 7356 | STATE - STATE LEVY (SCHOOL) | $211.03 | $211.02 | $0.00 | $0.00 | $422.05 | $0.00 |
| 2025 | 7356 | COUNTY - COUNTY LEVIES (CE, DD, VET, MH) | $82.99 | $82.98 | $0.00 | $0.00 | $165.97 | $0.00 |
| 2025 | 7356 | CONSERVE - CONSERVATION FUTURES | $2.49 | $2.49 | $0.00 | $0.00 | $4.98 | $0.00 |
| 2025 | 7356 | COROADS - COUNTY ROADS (ROADS, DIV TO CE) | $66.49 | $66.48 | $0.00 | $0.00 | $132.97 | $0.00 |
| 2025 | 7356 | PORTPT - PORT DISTRICT | $33.87 | $33.85 | $0.00 | $0.00 | $67.72 | $0.00 |
| 2025 | 7356 | PUD1 - PUD #1 | $5.43 | $5.43 | $0.00 | $0.00 | $10.86 | $0.00 |
| 2025 | 7356 | LIB1 - LIBRARY DIST #1 | $25.72 | $25.72 | $0.00 | $0.00 | $51.44 | $0.00 |
| 2025 | 7356 | HD2 - HOSP DIST #2 | $4.84 | $4.84 | $0.00 | $0.00 | $9.68 | $0.00 |
| 2025 | 7356 | SD48 - SCHOOL DIST #48 | $124.27 | $124.26 | $0.00 | $0.00 | $248.53 | $0.00 |
| 2025 | 7356 | FD2 - FIRE DISTRICT #2 | $68.61 | $68.61 | $0.00 | $0.00 | $137.22 | $0.00 |
| 2025 | 7356 | EMS2 - FIRE DIST #2 EMS | $38.64 | $38.63 | $0.00 | $0.00 | $77.27 | $0.00 |
| 2025 | 7356 | CEM2 - CEMETERY DIST #2 | $2.19 | $2.19 | $0.00 | $0.00 | $4.38 | $0.00 |
| 2025 | 7356 | FP - DNR Forest Fire Protection Assmt | $8.50 | $8.50 | $0.00 | $0.00 | $17.00 | $0.00 |
| 2025 | 7356 | FPLCA - DNR Landowner Contingency Assmt | $3.00 | $3.00 | $0.00 | $0.00 | $6.00 | $0.00 |
| 2025 | 7356 | JCCD - JC Conservation District | $2.69 | $2.69 | $0.00 | $0.00 | $5.38 | $0.00 |
| 2025 | 7356 | NWA - Noxious Weed Assessment | $2.75 | $2.75 | $0.00 | $0.00 | $5.50 | $0.00 |
| 2025 | 7356 | WAT - Clean Water District | $13.00 | $13.00 | $0.00 | $0.00 | $26.00 | $0.00 |
| 2025 | 7356 | FP ADMIN - FP ADMIN | $0.50 | $0.00 | $0.00 | $0.00 | $0.50 | $0.00 |
| 2025 | 7356 | TOTAL: | $697.01 | $696.44 | $0.00 | $0.00 | $1393.45 | $0.00 |
|
| 2025 | 7356 | $697.01 | $696.44 | $0.00 | $0.00 | $1393.45 | $0.00 |
Statement Details |
| 2024 | 7379 | STATE - STATE LEVY (SCHOOL) | $185.09 | $185.08 | $0.00 | $0.00 | $370.17 | $0.00 |
| 2024 | 7379 | COUNTY - COUNTY LEVIES (CE, DD, VET, MH) | $79.22 | $79.18 | $0.00 | $0.00 | $158.40 | $0.00 |
| 2024 | 7379 | CONSERVE - CONSERVATION FUTURES | $2.38 | $2.37 | $0.00 | $0.00 | $4.75 | $0.00 |
| 2024 | 7379 | COROADS - COUNTY ROADS (ROADS, DIV TO CE) | $63.73 | $63.73 | $0.00 | $0.00 | $127.46 | $0.00 |
| 2024 | 7379 | PORTPT - PORT DISTRICT | $32.72 | $32.71 | $0.00 | $0.00 | $65.43 | $0.00 |
| 2024 | 7379 | PUD1 - PUD #1 | $5.20 | $5.20 | $0.00 | $0.00 | $10.40 | $0.00 |
| 2024 | 7379 | LIB1 - LIBRARY DIST #1 | $24.66 | $24.65 | $0.00 | $0.00 | $49.31 | $0.00 |
| 2024 | 7379 | HD2 - HOSP DIST #2 | $4.62 | $4.62 | $0.00 | $0.00 | $9.24 | $0.00 |
| 2024 | 7379 | SD48 - SCHOOL DIST #48 | $82.90 | $82.89 | $0.00 | $0.00 | $165.79 | $0.00 |
| 2024 | 7379 | FD2 - FIRE DISTRICT #2 | $65.85 | $65.84 | $0.00 | $0.00 | $131.69 | $0.00 |
| 2024 | 7379 | EMS2 - FIRE DIST #2 EMS | $37.07 | $37.06 | $0.00 | $0.00 | $74.13 | $0.00 |
| 2024 | 7379 | CEM2 - CEMETERY DIST #2 | $2.11 | $2.10 | $0.00 | $0.00 | $4.21 | $0.00 |
| 2024 | 7379 | FP - DNR Forest Fire Protection Assmt | $8.50 | $8.50 | $0.00 | $0.00 | $17.00 | $0.00 |
| 2024 | 7379 | FPLCA - DNR Landowner Contingency Assmt | $3.00 | $3.00 | $0.00 | $0.00 | $6.00 | $0.00 |
| 2024 | 7379 | JCCD - JC Conservation District | $2.69 | $2.69 | $0.00 | $0.00 | $5.38 | $0.00 |
| 2024 | 7379 | NWA - Noxious Weed Assessment | $2.75 | $2.75 | $0.00 | $0.00 | $5.50 | $0.00 |
| 2024 | 7379 | WAT - Clean Water District | $12.50 | $12.50 | $0.00 | $0.00 | $25.00 | $0.00 |
| 2024 | 7379 | FP ADMIN - FP ADMIN | $0.50 | $0.00 | $0.00 | $0.00 | $0.50 | $0.00 |
| 2024 | 7379 | TOTAL: | $615.49 | $614.87 | $0.00 | $0.00 | $1230.36 | $0.00 |
|
| 2024 | 7379 | $615.49 | $614.87 | $0.00 | $0.00 | $1230.36 | $0.00 |
Statement Details |
| 2023 | 7393 | STATE - STATE LEVY (SCHOOL) | $188.33 | $188.33 | $0.00 | $0.00 | $376.66 | $0.00 |
| 2023 | 7393 | COUNTY - COUNTY LEVIES (CE, DD, VET, MH) | $82.19 | $82.16 | $0.00 | $0.00 | $164.35 | $0.00 |
| 2023 | 7393 | CONSERVE - CONSERVATION FUTURES | $2.47 | $2.46 | $0.00 | $0.00 | $4.93 | $0.00 |
| 2023 | 7393 | COROADS - COUNTY ROADS (ROADS, DIV TO CE) | $66.50 | $66.49 | $0.00 | $0.00 | $132.99 | $0.00 |
| 2023 | 7393 | PORTPT - PORT DISTRICT | $34.62 | $34.62 | $0.00 | $0.00 | $69.24 | $0.00 |
| 2023 | 7393 | PUD1 - PUD #1 | $5.45 | $5.45 | $0.00 | $0.00 | $10.90 | $0.00 |
| 2023 | 7393 | LIB1 - LIBRARY DIST #1 | $25.73 | $25.72 | $0.00 | $0.00 | $51.45 | $0.00 |
| 2023 | 7393 | HD2 - HOSP DIST #2 | $4.80 | $4.79 | $0.00 | $0.00 | $9.59 | $0.00 |
| 2023 | 7393 | SD48 - SCHOOL DIST #48 | $90.95 | $90.95 | $0.00 | $0.00 | $181.90 | $0.00 |
| 2023 | 7393 | FD2 - FIRE DISTRICT #2 | $71.34 | $71.33 | $0.00 | $0.00 | $142.67 | $0.00 |
| 2023 | 7393 | EMS2 - FIRE DIST #2 EMS | $40.00 | $40.00 | $0.00 | $0.00 | $80.00 | $0.00 |
| 2023 | 7393 | CEM2 - CEMETERY DIST #2 | $2.27 | $2.27 | $0.00 | $0.00 | $4.54 | $0.00 |
| 2023 | 7393 | FP - DNR Forest Fire Protection Assmt | $8.50 | $8.50 | $0.00 | $0.00 | $17.00 | $0.00 |
| 2023 | 7393 | FPLCA - DNR Landowner Contingency Assmt | $3.00 | $3.00 | $0.00 | $0.00 | $6.00 | $0.00 |
| 2023 | 7393 | JCCD - JC Conservation District | $2.69 | $2.69 | $0.00 | $0.00 | $5.38 | $0.00 |
| 2023 | 7393 | NWA - Noxious Weed Assessment | $2.75 | $2.75 | $0.00 | $0.00 | $5.50 | $0.00 |
| 2023 | 7393 | WAT - Clean Water District | $12.00 | $12.00 | $0.00 | $0.00 | $24.00 | $0.00 |
| 2023 | 7393 | FP ADMIN - FP ADMIN | $0.50 | $0.00 | $0.00 | $0.00 | $0.50 | $0.00 |
| 2023 | 7393 | TOTAL: | $644.09 | $643.51 | $0.00 | $0.00 | $1287.60 | $0.00 |
|
| 2023 | 7393 | $644.09 | $643.51 | $0.00 | $0.00 | $1287.60 | $0.00 |
Values
| (+) Improvement Homesite Value: | + | $0 | |
| (+) Improvement Non-Homesite Value: | + | $11,291 | |
| (+) Land Homesite Value: | + | $0 | |
| (+) Land Non-Homesite Value: | + | $184,000 | |
| (+) Curr Use (HS): | + | $0 | $0 |
| (+) Curr Use (NHS): | + | $0 | $0 |
| | | -------------------------- | |
| (=) Market Value: | = | $195,291 | |
| (–) Productivity Loss: | – | $0 | |
| | | -------------------------- | |
| (=) Subtotal: | = | $195,291 | |
| (+) Senior Appraised Value: | + | $0 | |
| (+) Non-Senior Appraised Value: | + | $195,291 | |
| | | -------------------------- | |
| (=) Total Appraised Value: | = | $195,291 | |
| (–) Senior Exemption Loss: | – | $0 | |
| (–) Exemption Loss: | – | $0 | |
| | | -------------------------- | |
| (=) Taxable Value: | = | $195,291 | |
Taxing Jurisdiction
| Owner: | ERIC S JANNAZZO & KATHARINE E FITZPATRICK | | |
| % Ownership: | 100.0000000000% | | |
| Total Value: | $195,291 | | |
| Tax Area: | 0321 - 1-48F2E2H2C2L1 |
| CE | COUNTY CURRENT EXPENSE | 0.9034619479 | $195,291 | $195,291 | $176.44 | | |
| CNTYDD | DEVELOPMENTAL DISABILITIES | 0.0052121823 | $195,291 | $195,291 | $1.02 | | |
| CNTYVET | VETERANS RELIEF | 0.0052777810 | $195,291 | $195,291 | $1.03 | | |
| MENTAL | MENTAL HEALTH | 0.0052121823 | $195,291 | $195,291 | $1.02 | | |
| ROADS | COUNTY ROADS | 0.7415066410 | $195,291 | $195,291 | $144.81 | | |
| ROADSCU | COUNTY ROADS TO CUR EXP | 0.0000000000 | $195,291 | $195,291 | $0.00 | | |
| HOSP2CASH | HOSP DIST #2 GENERAL | 0.0536075306 | $195,291 | $195,291 | $10.47 | | |
| SCH48MO | SCHOOL DIST #48 EP & O | 1.4120478917 | $195,291 | $195,291 | $275.76 | | |
| CEM2 | CEMETERY DIST #2 GENERAL | 0.0241266154 | $195,291 | $195,291 | $4.71 | | |
| CONSERVE | CONSERVATION FUTURES | 0.0275621078 | $195,291 | $195,291 | $5.38 | | |
| FD2 | FIRE DIST #2 GENERAL | 0.7549976873 | $195,291 | $195,291 | $147.44 | | |
| LIB1 | LIBRARY DIST #1 GENERAL | 0.2868827388 | $195,291 | $195,291 | $56.03 | | |
| PORTPT | PORT OF PT GENERAL | 0.1134941229 | $195,291 | $195,291 | $22.16 | | |
| PORTPTIDD | PORT OF PT IDD 2019 | 0.2577346692 | $195,291 | $195,291 | $50.33 | | |
| PUD1 | PUD #1 GENERAL | 0.0597888892 | $195,291 | $195,291 | $11.68 | | |
| STATE | STATE SCHOOL PART 1 | 1.4940692947 | $195,291 | $195,291 | $291.78 | | |
| STATE2 | STATE SCHOOL PART 2 | 0.8050170049 | $195,291 | $195,291 | $157.21 | | |
| EMS2 | FIRE DIST #2 EMS | 0.4251727858 | $195,291 | $195,291 | $83.03 | | |
| | Total Tax Rate: | 7.3751720728 | | | | | |
| | | | | Taxes w/Current Exemptions: | $1,440.30 | | |
| | | | | Taxes w/o Exemptions: | $1,440.30 | | |
Improvement / Building
| Improvement #1: | Residential Bldg | State Code: | 11 | 0.0 sqft | Value: | $11,291 |
Sketch
Property Image
Land
| 1 | 2350-1435S | | 1.0000 | 43560.00 | 0.00 | 0.00 | 1.00 | $184,000 | $0 |
Roll Value History
| 2026 | N/A | N/A | N/A | N/A | N/A |
| 2025 | $11,291 | $184,000 | $0 | $195,291 | $195,291 |
| 2024 | $0 | $176,000 | $0 | $176,000 | $176,000 |
| 2023 | $0 | $160,000 | $0 | $160,000 | $160,000 |
| 2022 | $0 | $160,000 | $0 | $160,000 | $160,000 |
Deed and Sales History
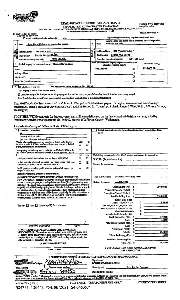
| 1 | 04/01/2021 | SWD | Statutory Warranty Deed | JOAN C GOLSTON | ERIC S JANNAZZO & KATHARINE E FITZPATRICK | | | $290,000.00 | 136443 | |
| 2 | 12/22/2015 | TRED | Trustee Deed | LYDIA B GOLSTON TRUSTEE | JOAN C GOLSTON | | | | 126511 | |
| 3 | 06/06/2006 | QCD | Quit Claim Deed | GOLSTON REVOCABLE TRUST | GOLSTON DECEDENT TRUST | | | $0.00 | 106931 | 0 |
| 4 | 07/27/2005 | QCD | Quit Claim Deed | WASHINGTON EXCHANGE SERVI | GOLSTON REVOCABLE TRUST | 0 | 0 | $30,789.00 | 104464 | 0 |
| 5 | 04/19/2005 | SWD | Statutory Warranty Deed | DONALDSON, JAMES D/MARGAR | WASHINGTON EXCHANGE SERVICES | | | $124,000.00 | 103273 | 0 |
Payout Agreement
| No payout information available.. |