Property
Account |
| Property ID: | 17826 | Abbreviated Legal Description: | S34 T27 R1W TAX 8(REVISED) |
| Parcel # / Geo ID: | 701344013 | Agent Code: | |
| Type: | Real | | |
| Tax Area: | 0323 - 1-48F2E2P1H2C2L1 | Land Use Code | 91 |
| Open Space: | N | DFL | N |
| Historic Property: | N | Remodel Property: | N |
| Multi-Family Redevelopment: | N | | |
| Township: | 27N | Section: | 34 |
| Range: | 1W |
Location |
| Address: | | Mapsco: | 151/015 |
| Neighborhood: | S27, 34 & 35 T27N R1W BATH SHORT PLAT | Map ID: | |
| Neighborhood CD: | 2380 |
Owner |
| Name: | DABOB BAY MEB LLC | Owner ID: | 106848 |
| Mailing Address: | C/O GRAYDON BOUCHILLON 1682 NOB HILL PL DALLAS, TX 75208-2616 | % Ownership: | 100.0000000000% |
| | | Exemptions: | |
Pay Tax Due
Select the appropriate checkbox next to the year to be paid. Multiple years may be selected.
*Convenience Fee not included
Taxes and Assessment Details
Property Tax Information as of
03/12/2026
Click on "Statement Details" to expand or collapse a tax statement.
* Please enter a valid date ** Please enter a valid date *
Statement Details |
| 2026 | 7364 | STATE - STATE LEVY (SCHOOL) | $213.08 | $213.06 | $0.00 | $0.00 | $0.00 | $426.14 |
| 2026 | 7364 | COUNTY - COUNTY LEVIES (CE, DD, VET, MH) | $85.20 | $85.18 | $0.00 | $0.00 | $0.00 | $170.38 |
| 2026 | 7364 | CONSERVE - CONSERVATION FUTURES | $2.56 | $2.55 | $0.00 | $0.00 | $0.00 | $5.11 |
| 2026 | 7364 | COROADS - COUNTY ROADS (ROADS, DIV TO CE) | $68.72 | $68.72 | $0.00 | $0.00 | $0.00 | $137.44 |
| 2026 | 7364 | PORTPT - PORT DISTRICT | $34.41 | $34.40 | $0.00 | $0.00 | $0.00 | $68.81 |
| 2026 | 7364 | PUD1 - PUD #1 | $5.54 | $5.54 | $0.00 | $0.00 | $0.00 | $11.08 |
| 2026 | 7364 | LIB1 - LIBRARY DIST #1 | $26.59 | $26.58 | $0.00 | $0.00 | $0.00 | $53.17 |
| 2026 | 7364 | HD2 - HOSP DIST #2 | $4.97 | $4.97 | $0.00 | $0.00 | $0.00 | $9.94 |
| 2026 | 7364 | SD48 - SCHOOL DIST #48 | $130.87 | $130.86 | $0.00 | $0.00 | $0.00 | $261.73 |
| 2026 | 7364 | FD2 - FIRE DISTRICT #2 | $69.97 | $69.97 | $0.00 | $0.00 | $0.00 | $139.94 |
| 2026 | 7364 | EMS2 - FIRE DIST #2 EMS | $39.41 | $39.40 | $0.00 | $0.00 | $0.00 | $78.81 |
| 2026 | 7364 | CEM2 - CEMETERY DIST #2 | $2.24 | $2.23 | $0.00 | $0.00 | $0.00 | $4.47 |
| 2026 | 7364 | PARK1 - PARK & REC DIST #1 | $13.67 | $13.66 | $0.00 | $0.00 | $0.00 | $27.33 |
| 2026 | 7364 | FPLCA - DNR Landowner Contingency Assmt | $3.00 | $3.00 | $0.00 | $0.00 | $0.00 | $6.00 |
| 2026 | 7364 | JCCD - JC Conservation District | $2.69 | $2.69 | $0.00 | $0.00 | $0.00 | $5.38 |
| 2026 | 7364 | NWA - Noxious Weed Assessment | $3.88 | $3.87 | $0.00 | $0.00 | $0.00 | $7.75 |
| 2026 | 7364 | WAT - Clean Water District | $13.00 | $13.00 | $0.00 | $0.00 | $0.00 | $26.00 |
| 2026 | 7364 | TOTAL: | $719.80 | $719.68 | $0.00 | $0.00 | $0.00 | $1439.48 |
|
| 2026 | 7364 | $719.80 | $719.68 | $0.00 | $0.00 | $0.00 | $1439.48 |
Statement Details |
| 2025 | 7385 | STATE - STATE LEVY (SCHOOL) | $212.58 | $212.57 | $0.00 | $0.00 | $425.15 | $0.00 |
| 2025 | 7385 | COUNTY - COUNTY LEVIES (CE, DD, VET, MH) | $83.61 | $83.59 | $0.00 | $0.00 | $167.20 | $0.00 |
| 2025 | 7385 | CONSERVE - CONSERVATION FUTURES | $2.51 | $2.50 | $0.00 | $0.00 | $5.01 | $0.00 |
| 2025 | 7385 | COROADS - COUNTY ROADS (ROADS, DIV TO CE) | $66.98 | $66.97 | $0.00 | $0.00 | $133.95 | $0.00 |
| 2025 | 7385 | PORTPT - PORT DISTRICT | $34.11 | $34.11 | $0.00 | $0.00 | $68.22 | $0.00 |
| 2025 | 7385 | PUD1 - PUD #1 | $5.47 | $5.47 | $0.00 | $0.00 | $10.94 | $0.00 |
| 2025 | 7385 | LIB1 - LIBRARY DIST #1 | $25.91 | $25.91 | $0.00 | $0.00 | $51.82 | $0.00 |
| 2025 | 7385 | HD2 - HOSP DIST #2 | $4.88 | $4.87 | $0.00 | $0.00 | $9.75 | $0.00 |
| 2025 | 7385 | SD48 - SCHOOL DIST #48 | $125.18 | $125.18 | $0.00 | $0.00 | $250.36 | $0.00 |
| 2025 | 7385 | FD2 - FIRE DISTRICT #2 | $69.12 | $69.11 | $0.00 | $0.00 | $138.23 | $0.00 |
| 2025 | 7385 | EMS2 - FIRE DIST #2 EMS | $38.92 | $38.91 | $0.00 | $0.00 | $77.83 | $0.00 |
| 2025 | 7385 | CEM2 - CEMETERY DIST #2 | $2.21 | $2.20 | $0.00 | $0.00 | $4.41 | $0.00 |
| 2025 | 7385 | PARK1 - PARK & REC DIST #1 | $10.10 | $10.10 | $0.00 | $0.00 | $20.20 | $0.00 |
| 2025 | 7385 | FPLCA - DNR Landowner Contingency Assmt | $3.00 | $3.00 | $0.00 | $0.00 | $6.00 | $0.00 |
| 2025 | 7385 | JCCD - JC Conservation District | $2.69 | $2.69 | $0.00 | $0.00 | $5.38 | $0.00 |
| 2025 | 7385 | NWA - Noxious Weed Assessment | $2.75 | $2.75 | $0.00 | $0.00 | $5.50 | $0.00 |
| 2025 | 7385 | WAT - Clean Water District | $13.00 | $13.00 | $0.00 | $0.00 | $26.00 | $0.00 |
| 2025 | 7385 | TOTAL: | $703.02 | $702.93 | $0.00 | $0.00 | $1405.95 | $0.00 |
|
| 2025 | 7385 | $703.02 | $702.93 | $0.00 | $0.00 | $1405.95 | $0.00 |
Statement Details |
| 2024 | 7408 | STATE - STATE LEVY (SCHOOL) | $192.33 | $192.33 | $0.00 | $0.00 | $384.66 | $0.00 |
| 2024 | 7408 | COUNTY - COUNTY LEVIES (CE, DD, VET, MH) | $82.31 | $82.29 | $0.00 | $0.00 | $164.60 | $0.00 |
| 2024 | 7408 | CONSERVE - CONSERVATION FUTURES | $2.47 | $2.47 | $0.00 | $0.00 | $4.94 | $0.00 |
| 2024 | 7408 | COROADS - COUNTY ROADS (ROADS, DIV TO CE) | $66.23 | $66.22 | $0.00 | $0.00 | $132.45 | $0.00 |
| 2024 | 7408 | PORTPT - PORT DISTRICT | $33.99 | $33.99 | $0.00 | $0.00 | $67.98 | $0.00 |
| 2024 | 7408 | PUD1 - PUD #1 | $5.41 | $5.40 | $0.00 | $0.00 | $10.81 | $0.00 |
| 2024 | 7408 | LIB1 - LIBRARY DIST #1 | $25.62 | $25.62 | $0.00 | $0.00 | $51.24 | $0.00 |
| 2024 | 7408 | HD2 - HOSP DIST #2 | $4.80 | $4.80 | $0.00 | $0.00 | $9.60 | $0.00 |
| 2024 | 7408 | SD48 - SCHOOL DIST #48 | $86.14 | $86.14 | $0.00 | $0.00 | $172.28 | $0.00 |
| 2024 | 7408 | FD2 - FIRE DISTRICT #2 | $68.42 | $68.42 | $0.00 | $0.00 | $136.84 | $0.00 |
| 2024 | 7408 | EMS2 - FIRE DIST #2 EMS | $38.52 | $38.51 | $0.00 | $0.00 | $77.03 | $0.00 |
| 2024 | 7408 | CEM2 - CEMETERY DIST #2 | $2.19 | $2.19 | $0.00 | $0.00 | $4.38 | $0.00 |
| 2024 | 7408 | PARK1 - PARK & REC DIST #1 | $9.61 | $9.61 | $0.00 | $0.00 | $19.22 | $0.00 |
| 2024 | 7408 | FPLCA - DNR Landowner Contingency Assmt | $3.00 | $3.00 | $0.00 | $0.00 | $6.00 | $0.00 |
| 2024 | 7408 | JCCD - JC Conservation District | $2.69 | $2.69 | $0.00 | $0.00 | $5.38 | $0.00 |
| 2024 | 7408 | NWA - Noxious Weed Assessment | $2.75 | $2.75 | $0.00 | $0.00 | $5.50 | $0.00 |
| 2024 | 7408 | WAT - Clean Water District | $12.50 | $12.50 | $0.00 | $0.00 | $25.00 | $0.00 |
| 2024 | 7408 | TOTAL: | $638.98 | $638.93 | $0.00 | $0.00 | $1277.91 | $0.00 |
|
| 2024 | 7408 | $638.98 | $638.93 | $0.00 | $0.00 | $1277.91 | $0.00 |
Statement Details |
| 2023 | 7422 | STATE - STATE LEVY (SCHOOL) | $179.71 | $179.70 | $0.00 | $0.00 | $359.41 | $0.00 |
| 2023 | 7422 | COUNTY - COUNTY LEVIES (CE, DD, VET, MH) | $78.43 | $78.40 | $0.00 | $0.00 | $156.83 | $0.00 |
| 2023 | 7422 | CONSERVE - CONSERVATION FUTURES | $2.35 | $2.35 | $0.00 | $0.00 | $4.70 | $0.00 |
| 2023 | 7422 | COROADS - COUNTY ROADS (ROADS, DIV TO CE) | $63.45 | $63.44 | $0.00 | $0.00 | $126.89 | $0.00 |
| 2023 | 7422 | PORTPT - PORT DISTRICT | $33.04 | $33.03 | $0.00 | $0.00 | $66.07 | $0.00 |
| 2023 | 7422 | PUD1 - PUD #1 | $5.20 | $5.20 | $0.00 | $0.00 | $10.40 | $0.00 |
| 2023 | 7422 | LIB1 - LIBRARY DIST #1 | $24.55 | $24.54 | $0.00 | $0.00 | $49.09 | $0.00 |
| 2023 | 7422 | HD2 - HOSP DIST #2 | $4.58 | $4.57 | $0.00 | $0.00 | $9.15 | $0.00 |
| 2023 | 7422 | SD48 - SCHOOL DIST #48 | $86.78 | $86.78 | $0.00 | $0.00 | $173.56 | $0.00 |
| 2023 | 7422 | FD2 - FIRE DISTRICT #2 | $68.07 | $68.07 | $0.00 | $0.00 | $136.14 | $0.00 |
| 2023 | 7422 | EMS2 - FIRE DIST #2 EMS | $38.17 | $38.17 | $0.00 | $0.00 | $76.34 | $0.00 |
| 2023 | 7422 | CEM2 - CEMETERY DIST #2 | $2.17 | $2.16 | $0.00 | $0.00 | $4.33 | $0.00 |
| 2023 | 7422 | PARK1 - PARK & REC DIST #1 | $8.53 | $8.52 | $0.00 | $0.00 | $17.05 | $0.00 |
| 2023 | 7422 | FPLCA - DNR Landowner Contingency Assmt | $3.00 | $3.00 | $0.00 | $0.00 | $6.00 | $0.00 |
| 2023 | 7422 | JCCD - JC Conservation District | $2.69 | $2.69 | $0.00 | $0.00 | $5.38 | $0.00 |
| 2023 | 7422 | NWA - Noxious Weed Assessment | $2.75 | $2.75 | $0.00 | $0.00 | $5.50 | $0.00 |
| 2023 | 7422 | WAT - Clean Water District | $12.00 | $12.00 | $0.00 | $0.00 | $24.00 | $0.00 |
| 2023 | 7422 | TOTAL: | $615.47 | $615.37 | $0.00 | $0.00 | $1230.84 | $0.00 |
|
| 2023 | 7422 | $615.47 | $615.37 | $0.00 | $0.00 | $1230.84 | $0.00 |
Values
| (+) Improvement Homesite Value: | + | $0 | |
| (+) Improvement Non-Homesite Value: | + | $0 | |
| (+) Land Homesite Value: | + | $0 | |
| (+) Land Non-Homesite Value: | + | $185,352 | |
| (+) Curr Use (HS): | + | $0 | $0 |
| (+) Curr Use (NHS): | + | $0 | $0 |
| | | -------------------------- | |
| (=) Market Value: | = | $185,352 | |
| (–) Productivity Loss: | – | $0 | |
| | | -------------------------- | |
| (=) Subtotal: | = | $185,352 | |
| (+) Senior Appraised Value: | + | $0 | |
| (+) Non-Senior Appraised Value: | + | $185,352 | |
| | | -------------------------- | |
| (=) Total Appraised Value: | = | $185,352 | |
| (–) Senior Exemption Loss: | – | $0 | |
| (–) Exemption Loss: | – | $0 | |
| | | -------------------------- | |
| (=) Taxable Value: | = | $185,352 | |
Taxing Jurisdiction
| Owner: | DABOB BAY MEB LLC | | |
| % Ownership: | 100.0000000000% | | |
| Total Value: | $185,352 | | |
| Tax Area: | 0323 - 1-48F2E2P1H2C2L1 |
| CE | COUNTY CURRENT EXPENSE | 0.9034619479 | $185,352 | $185,352 | $167.46 | | |
| CNTYDD | DEVELOPMENTAL DISABILITIES | 0.0052121823 | $185,352 | $185,352 | $0.97 | | |
| CNTYVET | VETERANS RELIEF | 0.0052777810 | $185,352 | $185,352 | $0.98 | | |
| MENTAL | MENTAL HEALTH | 0.0052121823 | $185,352 | $185,352 | $0.97 | | |
| ROADS | COUNTY ROADS | 0.7415066410 | $185,352 | $185,352 | $137.44 | | |
| ROADSCU | COUNTY ROADS TO CUR EXP | 0.0000000000 | $185,352 | $185,352 | $0.00 | | |
| HOSP2CASH | HOSP DIST #2 GENERAL | 0.0536075306 | $185,352 | $185,352 | $9.94 | | |
| SCH48MO | SCHOOL DIST #48 EP & O | 1.4120478917 | $185,352 | $185,352 | $261.73 | | |
| CEM2 | CEMETERY DIST #2 GENERAL | 0.0241266154 | $185,352 | $185,352 | $4.47 | | |
| CONSERVE | CONSERVATION FUTURES | 0.0275621078 | $185,352 | $185,352 | $5.11 | | |
| FD2 | FIRE DIST #2 GENERAL | 0.7549976873 | $185,352 | $185,352 | $139.94 | | |
| LIB1 | LIBRARY DIST #1 GENERAL | 0.2868827388 | $185,352 | $185,352 | $53.17 | | |
| PARK1 | PARK & REC DIST #1 GENERAL | 0.1474441110 | $185,352 | $185,352 | $27.33 | | |
| PORTPT | PORT OF PT GENERAL | 0.1134941229 | $185,352 | $185,352 | $21.04 | | |
| PORTPTIDD | PORT OF PT IDD 2019 | 0.2577346692 | $185,352 | $185,352 | $47.77 | | |
| PUD1 | PUD #1 GENERAL | 0.0597888892 | $185,352 | $185,352 | $11.08 | | |
| STATE | STATE SCHOOL PART 1 | 1.4940692947 | $185,352 | $185,352 | $276.93 | | |
| STATE2 | STATE SCHOOL PART 2 | 0.8050170049 | $185,352 | $185,352 | $149.21 | | |
| EMS2 | FIRE DIST #2 EMS | 0.4251727858 | $185,352 | $185,352 | $78.81 | | |
| | Total Tax Rate: | 7.5226161838 | | | | | |
| | | | | Taxes w/Current Exemptions: | $1,394.35 | | |
| | | | | Taxes w/o Exemptions: | $1,394.35 | | |
Improvement / Building
Sketch
| No sketches available for this property. |
Property Image
Land
| 1 | 1571A | | 3.7800 | 164656.80 | 0.00 | 0.00 | 0.00 | $70,639 | $0 |
| 2 | 2380-1343S | | 1.0000 | 43560.00 | 0.00 | 0.00 | 1.00 | $114,713 | $0 |
Roll Value History
| 2026 | N/A | N/A | N/A | N/A | N/A |
| 2025 | $0 | $185,352 | $0 | $185,352 | $185,352 |
| 2024 | $0 | $177,293 | $0 | $177,293 | $177,293 |
| 2023 | $0 | $166,258 | $0 | $166,258 | $166,258 |
| 2022 | $0 | $152,670 | $0 | $152,670 | $152,670 |
Deed and Sales History
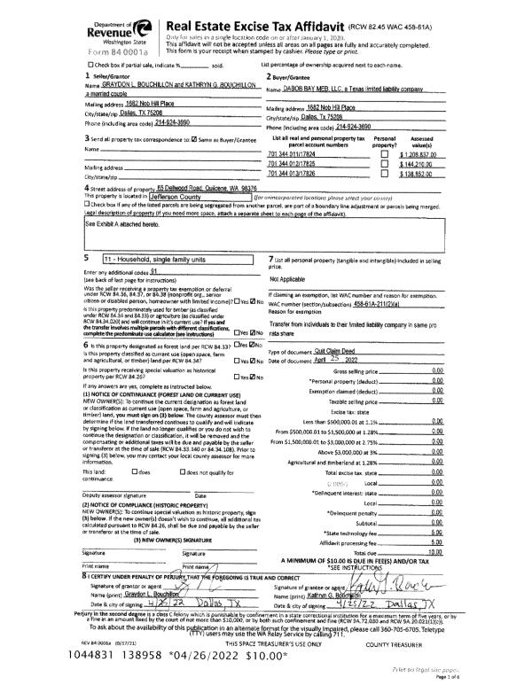
| 1 | 04/25/2022 | QCD | Quit Claim Deed | GRAYDON & KATHRYN BOUCHILLON | DABOB BAY MEB LLC | | | | 138958 | |
| 2 | 01/18/2021 | SWD | Statutory Warranty Deed | CHARLES H THRASHER | GRAYDON & KATHRYN BOUCHILLON | | | $1,713,500.00 | 136025 | |
|   | |
| 3 | 03/10/2005 | QCD | Quit Claim Deed | THRASHER, CH/BOYKER, KW | THRASHER, CH/BOYKER, KW | | | $0.00 | 103157 | 0 |
| 4 | 04/15/1998 | QCD | Quit Claim Deed | BOYKER, KATHRYN W | BOYKER, KATHRYN W/TRUSTEE | 0 | 0 | $0.00 | 84280 | 0 |
| 5 | 04/26/1995 | SWD | Statutory Warranty Deed | TOANDOS TREE FARMS TRUST | THRASHER, C H/BOYKER, K W | 0 | 0 | $148,000.00 | 76854 | 0 |
|   | |
| 6 | 11/01/1993 | SWD | Statutory Warranty Deed | WEST, KELLY A/WILLIAM D | TOANDOS TREE FARMS TRUST | 0 | 0 | $48,000.00 | 72508 | 0 |
|   | |
Payout Agreement
| No payout information available.. |