Property
Account |
| Property ID: | 17864 | Abbreviated Legal Description: | S35 T27 R1W TAX 2 PARCEL B SURVEY V12/PG228 |
| Parcel # / Geo ID: | 701353004 | Agent Code: | |
| Type: | Real | | |
| Tax Area: | 0323 - 1-48F2E2P1H2C2L1 | Land Use Code | 91 |
| Open Space: | N | DFL | N |
| Historic Property: | N | Remodel Property: | N |
| Multi-Family Redevelopment: | N | | |
| Township: | 27N | Section: | 35 |
| Range: | 1W |
Location |
| Address: | | Mapsco: | 152/033 |
| Neighborhood: | S27, 34 & 35 T27N R1W BATH SHORT PLAT | Map ID: | |
| Neighborhood CD: | 2380 |
Owner |
| Name: | TREVOR P & JENNIFER WEAVER | Owner ID: | 112905 |
| Mailing Address: | TYLER R & MICHELLE WEAVER PSC 489 BOX 911 APO, AE 09751-0010 | % Ownership: | 100.0000000000% |
| | | Exemptions: | |
Pay Tax Due
Select the appropriate checkbox next to the year to be paid. Multiple years may be selected.
*Convenience Fee not included
Taxes and Assessment Details
Property Tax Information as of
03/11/2026
Click on "Statement Details" to expand or collapse a tax statement.
* Please enter a valid date ** Please enter a valid date *
Statement Details |
| 2026 | 7401 | STATE - STATE LEVY (SCHOOL) | $51.72 | $51.72 | $0.00 | $0.00 | $0.00 | $103.44 |
| 2026 | 7401 | COUNTY - COUNTY LEVIES (CE, DD, VET, MH) | $20.68 | $20.66 | $0.00 | $0.00 | $0.00 | $41.34 |
| 2026 | 7401 | CONSERVE - CONSERVATION FUTURES | $0.62 | $0.62 | $0.00 | $0.00 | $0.00 | $1.24 |
| 2026 | 7401 | COROADS - COUNTY ROADS (ROADS, DIV TO CE) | $16.68 | $16.68 | $0.00 | $0.00 | $0.00 | $33.36 |
| 2026 | 7401 | PORTPT - PORT DISTRICT | $8.36 | $8.34 | $0.00 | $0.00 | $0.00 | $16.70 |
| 2026 | 7401 | PUD1 - PUD #1 | $1.35 | $1.34 | $0.00 | $0.00 | $0.00 | $2.69 |
| 2026 | 7401 | LIB1 - LIBRARY DIST #1 | $6.46 | $6.45 | $0.00 | $0.00 | $0.00 | $12.91 |
| 2026 | 7401 | HD2 - HOSP DIST #2 | $1.21 | $1.20 | $0.00 | $0.00 | $0.00 | $2.41 |
| 2026 | 7401 | SD48 - SCHOOL DIST #48 | $31.77 | $31.76 | $0.00 | $0.00 | $0.00 | $63.53 |
| 2026 | 7401 | FD2 - FIRE DISTRICT #2 | $16.99 | $16.98 | $0.00 | $0.00 | $0.00 | $33.97 |
| 2026 | 7401 | EMS2 - FIRE DIST #2 EMS | $9.57 | $9.56 | $0.00 | $0.00 | $0.00 | $19.13 |
| 2026 | 7401 | CEM2 - CEMETERY DIST #2 | $0.55 | $0.54 | $0.00 | $0.00 | $0.00 | $1.09 |
| 2026 | 7401 | PARK1 - PARK & REC DIST #1 | $3.32 | $3.31 | $0.00 | $0.00 | $0.00 | $6.63 |
| 2026 | 7401 | FPLCA - DNR Landowner Contingency Assmt | $3.00 | $3.00 | $0.00 | $0.00 | $0.00 | $6.00 |
| 2026 | 7401 | JCCD - JC Conservation District | $2.65 | $2.65 | $0.00 | $0.00 | $0.00 | $5.30 |
| 2026 | 7401 | NWA - Noxious Weed Assessment | $3.65 | $3.65 | $0.00 | $0.00 | $0.00 | $7.30 |
| 2026 | 7401 | WAT - Clean Water District | $13.00 | $13.00 | $0.00 | $0.00 | $0.00 | $26.00 |
| 2026 | 7401 | TOTAL: | $191.58 | $191.46 | $0.00 | $0.00 | $0.00 | $383.04 |
|
| 2026 | 7401 | $191.58 | $191.46 | $0.00 | $0.00 | $0.00 | $383.04 |
Statement Details |
| 2025 | 7422 | STATE - STATE LEVY (SCHOOL) | $51.60 | $51.59 | $0.00 | $0.00 | $103.19 | $0.00 |
| 2025 | 7422 | COUNTY - COUNTY LEVIES (CE, DD, VET, MH) | $20.31 | $20.27 | $0.00 | $0.00 | $40.58 | $0.00 |
| 2025 | 7422 | CONSERVE - CONSERVATION FUTURES | $0.61 | $0.61 | $0.00 | $0.00 | $1.22 | $0.00 |
| 2025 | 7422 | COROADS - COUNTY ROADS (ROADS, DIV TO CE) | $16.26 | $16.25 | $0.00 | $0.00 | $32.51 | $0.00 |
| 2025 | 7422 | PORTPT - PORT DISTRICT | $8.29 | $8.27 | $0.00 | $0.00 | $16.56 | $0.00 |
| 2025 | 7422 | PUD1 - PUD #1 | $1.33 | $1.33 | $0.00 | $0.00 | $2.66 | $0.00 |
| 2025 | 7422 | LIB1 - LIBRARY DIST #1 | $6.29 | $6.29 | $0.00 | $0.00 | $12.58 | $0.00 |
| 2025 | 7422 | HD2 - HOSP DIST #2 | $1.19 | $1.18 | $0.00 | $0.00 | $2.37 | $0.00 |
| 2025 | 7422 | SD48 - SCHOOL DIST #48 | $30.39 | $30.38 | $0.00 | $0.00 | $60.77 | $0.00 |
| 2025 | 7422 | FD2 - FIRE DISTRICT #2 | $16.78 | $16.77 | $0.00 | $0.00 | $33.55 | $0.00 |
| 2025 | 7422 | EMS2 - FIRE DIST #2 EMS | $9.45 | $9.44 | $0.00 | $0.00 | $18.89 | $0.00 |
| 2025 | 7422 | CEM2 - CEMETERY DIST #2 | $0.54 | $0.53 | $0.00 | $0.00 | $1.07 | $0.00 |
| 2025 | 7422 | PARK1 - PARK & REC DIST #1 | $2.45 | $2.45 | $0.00 | $0.00 | $4.90 | $0.00 |
| 2025 | 7422 | FPLCA - DNR Landowner Contingency Assmt | $3.00 | $3.00 | $0.00 | $0.00 | $6.00 | $0.00 |
| 2025 | 7422 | JCCD - JC Conservation District | $2.65 | $2.65 | $0.00 | $0.00 | $5.30 | $0.00 |
| 2025 | 7422 | NWA - Noxious Weed Assessment | $2.60 | $2.60 | $0.00 | $0.00 | $5.20 | $0.00 |
| 2025 | 7422 | WAT - Clean Water District | $13.00 | $13.00 | $0.00 | $0.00 | $26.00 | $0.00 |
| 2025 | 7422 | TOTAL: | $186.74 | $186.61 | $0.00 | $0.00 | $373.35 | $0.00 |
|
| 2025 | 7422 | $186.74 | $186.61 | $0.00 | $0.00 | $373.35 | $0.00 |
Statement Details |
| 2024 | 7445 | STATE - STATE LEVY (SCHOOL) | $46.07 | $46.06 | $0.00 | $0.00 | $92.13 | $0.00 |
| 2024 | 7445 | COUNTY - COUNTY LEVIES (CE, DD, VET, MH) | $19.72 | $19.70 | $0.00 | $0.00 | $39.42 | $0.00 |
| 2024 | 7445 | CONSERVE - CONSERVATION FUTURES | $0.59 | $0.59 | $0.00 | $0.00 | $1.18 | $0.00 |
| 2024 | 7445 | COROADS - COUNTY ROADS (ROADS, DIV TO CE) | $15.87 | $15.85 | $0.00 | $0.00 | $31.72 | $0.00 |
| 2024 | 7445 | PORTPT - PORT DISTRICT | $8.15 | $8.14 | $0.00 | $0.00 | $16.29 | $0.00 |
| 2024 | 7445 | PUD1 - PUD #1 | $1.30 | $1.29 | $0.00 | $0.00 | $2.59 | $0.00 |
| 2024 | 7445 | LIB1 - LIBRARY DIST #1 | $6.14 | $6.13 | $0.00 | $0.00 | $12.27 | $0.00 |
| 2024 | 7445 | HD2 - HOSP DIST #2 | $1.15 | $1.15 | $0.00 | $0.00 | $2.30 | $0.00 |
| 2024 | 7445 | SD48 - SCHOOL DIST #48 | $20.63 | $20.63 | $0.00 | $0.00 | $41.26 | $0.00 |
| 2024 | 7445 | FD2 - FIRE DISTRICT #2 | $16.39 | $16.38 | $0.00 | $0.00 | $32.77 | $0.00 |
| 2024 | 7445 | EMS2 - FIRE DIST #2 EMS | $9.23 | $9.22 | $0.00 | $0.00 | $18.45 | $0.00 |
| 2024 | 7445 | CEM2 - CEMETERY DIST #2 | $0.53 | $0.52 | $0.00 | $0.00 | $1.05 | $0.00 |
| 2024 | 7445 | PARK1 - PARK & REC DIST #1 | $2.30 | $2.30 | $0.00 | $0.00 | $4.60 | $0.00 |
| 2024 | 7445 | FPLCA - DNR Landowner Contingency Assmt | $3.00 | $3.00 | $0.00 | $0.00 | $6.00 | $0.00 |
| 2024 | 7445 | JCCD - JC Conservation District | $2.65 | $2.65 | $0.00 | $0.00 | $5.30 | $0.00 |
| 2024 | 7445 | NWA - Noxious Weed Assessment | $2.60 | $2.60 | $0.00 | $0.00 | $5.20 | $0.00 |
| 2024 | 7445 | WAT - Clean Water District | $12.50 | $12.50 | $0.00 | $0.00 | $25.00 | $0.00 |
| 2024 | 7445 | TOTAL: | $168.82 | $168.71 | $0.00 | $0.00 | $337.53 | $0.00 |
|
| 2024 | 7445 | $168.82 | $168.71 | $0.00 | $0.00 | $337.53 | $0.00 |
Statement Details |
| 2023 | 7459 | STATE - STATE LEVY (SCHOOL) | $42.53 | $42.53 | $0.00 | $0.00 | $85.06 | $0.00 |
| 2023 | 7459 | COUNTY - COUNTY LEVIES (CE, DD, VET, MH) | $18.57 | $18.54 | $0.00 | $0.00 | $37.11 | $0.00 |
| 2023 | 7459 | CONSERVE - CONSERVATION FUTURES | $0.56 | $0.55 | $0.00 | $0.00 | $1.11 | $0.00 |
| 2023 | 7459 | COROADS - COUNTY ROADS (ROADS, DIV TO CE) | $15.02 | $15.01 | $0.00 | $0.00 | $30.03 | $0.00 |
| 2023 | 7459 | PORTPT - PORT DISTRICT | $7.82 | $7.81 | $0.00 | $0.00 | $15.63 | $0.00 |
| 2023 | 7459 | PUD1 - PUD #1 | $1.23 | $1.23 | $0.00 | $0.00 | $2.46 | $0.00 |
| 2023 | 7459 | LIB1 - LIBRARY DIST #1 | $5.81 | $5.81 | $0.00 | $0.00 | $11.62 | $0.00 |
| 2023 | 7459 | HD2 - HOSP DIST #2 | $1.09 | $1.08 | $0.00 | $0.00 | $2.17 | $0.00 |
| 2023 | 7459 | SD48 - SCHOOL DIST #48 | $20.54 | $20.54 | $0.00 | $0.00 | $41.08 | $0.00 |
| 2023 | 7459 | FD2 - FIRE DISTRICT #2 | $16.11 | $16.11 | $0.00 | $0.00 | $32.22 | $0.00 |
| 2023 | 7459 | EMS2 - FIRE DIST #2 EMS | $9.04 | $9.03 | $0.00 | $0.00 | $18.07 | $0.00 |
| 2023 | 7459 | CEM2 - CEMETERY DIST #2 | $0.52 | $0.51 | $0.00 | $0.00 | $1.03 | $0.00 |
| 2023 | 7459 | PARK1 - PARK & REC DIST #1 | $2.02 | $2.02 | $0.00 | $0.00 | $4.04 | $0.00 |
| 2023 | 7459 | FPLCA - DNR Landowner Contingency Assmt | $3.00 | $3.00 | $0.00 | $0.00 | $6.00 | $0.00 |
| 2023 | 7459 | JCCD - JC Conservation District | $2.65 | $2.65 | $0.00 | $0.00 | $5.30 | $0.00 |
| 2023 | 7459 | NWA - Noxious Weed Assessment | $2.60 | $2.60 | $0.00 | $0.00 | $5.20 | $0.00 |
| 2023 | 7459 | WAT - Clean Water District | $12.00 | $12.00 | $0.00 | $0.00 | $24.00 | $0.00 |
| 2023 | 7459 | TOTAL: | $161.11 | $161.02 | $0.00 | $0.00 | $322.13 | $0.00 |
|
| 2023 | 7459 | $161.11 | $161.02 | $0.00 | $0.00 | $322.13 | $0.00 |
Values
| (+) Improvement Homesite Value: | + | $0 | |
| (+) Improvement Non-Homesite Value: | + | $0 | |
| (+) Land Homesite Value: | + | $0 | |
| (+) Land Non-Homesite Value: | + | $44,988 | |
| (+) Curr Use (HS): | + | $0 | $0 |
| (+) Curr Use (NHS): | + | $0 | $0 |
| | | -------------------------- | |
| (=) Market Value: | = | $44,988 | |
| (–) Productivity Loss: | – | $0 | |
| | | -------------------------- | |
| (=) Subtotal: | = | $44,988 | |
| (+) Senior Appraised Value: | + | $0 | |
| (+) Non-Senior Appraised Value: | + | $44,988 | |
| | | -------------------------- | |
| (=) Total Appraised Value: | = | $44,988 | |
| (–) Senior Exemption Loss: | – | $0 | |
| (–) Exemption Loss: | – | $0 | |
| | | -------------------------- | |
| (=) Taxable Value: | = | $44,988 | |
Taxing Jurisdiction
| Owner: | TREVOR P & JENNIFER WEAVER | | |
| % Ownership: | 100.0000000000% | | |
| Total Value: | N/A | | |
| Tax Area: | 0323 - 1-48F2E2P1H2C2L1 |
| CE | COUNTY CURRENT EXPENSE | N/A | N/A | N/A | N/A | | |
| CNTYDD | DEVELOPMENTAL DISABILITIES | N/A | N/A | N/A | N/A | | |
| CNTYVET | VETERANS RELIEF | N/A | N/A | N/A | N/A | | |
| MENTAL | MENTAL HEALTH | N/A | N/A | N/A | N/A | | |
| ROADS | COUNTY ROADS | N/A | N/A | N/A | N/A | | |
| HOSP2CASH | HOSP DIST #2 GENERAL | N/A | N/A | N/A | N/A | | |
| SCH48MO | SCHOOL DIST #48 EP & O | N/A | N/A | N/A | N/A | | |
| CEM2 | CEMETERY DIST #2 GENERAL | N/A | N/A | N/A | N/A | | |
| CONSERVE | CONSERVATION FUTURES | N/A | N/A | N/A | N/A | | |
| FD2 | FIRE DIST #2 GENERAL | N/A | N/A | N/A | N/A | | |
| LIB1 | LIBRARY DIST #1 GENERAL | N/A | N/A | N/A | N/A | | |
| PARK1 | PARK & REC DIST #1 GENERAL | N/A | N/A | N/A | N/A | | |
| PORTPT | PORT OF PT GENERAL | N/A | N/A | N/A | N/A | | |
| PORTPTIDD | PORT OF PT IDD 2019 | N/A | N/A | N/A | N/A | | |
| PUD1 | PUD #1 GENERAL | N/A | N/A | N/A | N/A | | |
| STATE | STATE SCHOOL PART 1 | N/A | N/A | N/A | N/A | | |
| STATE2 | STATE SCHOOL PART 2 | N/A | N/A | N/A | N/A | | |
| EMS2 | FIRE DIST #2 EMS | N/A | N/A | N/A | N/A | | |
| | Total Tax Rate: | N/A | | | | | |
| | | | | Taxes w/Current Exemptions: | N/A | | |
| | | | | Taxes w/o Exemptions: | N/A | | |
Improvement / Building
Sketch
| No sketches available for this property. |
Property Image
Land
| 1 | 1575A | | 2.3900 | 104108.40 | 0.00 | 0.00 | 0.00 | $21,988 | $0 |
| 2 | 2380-1385S | | 1.0000 | 43560.00 | 0.00 | 0.00 | 1.00 | $23,000 | $0 |
Roll Value History
| 2026 | N/A | N/A | N/A | N/A | N/A |
| 2025 | $0 | $44,988 | $0 | $44,988 | $44,988 |
| 2024 | $0 | $43,032 | $0 | $43,032 | $43,032 |
| 2023 | $0 | $39,821 | $0 | $39,821 | $39,821 |
| 2022 | $0 | $36,133 | $0 | $36,133 | $36,133 |
Deed and Sales History
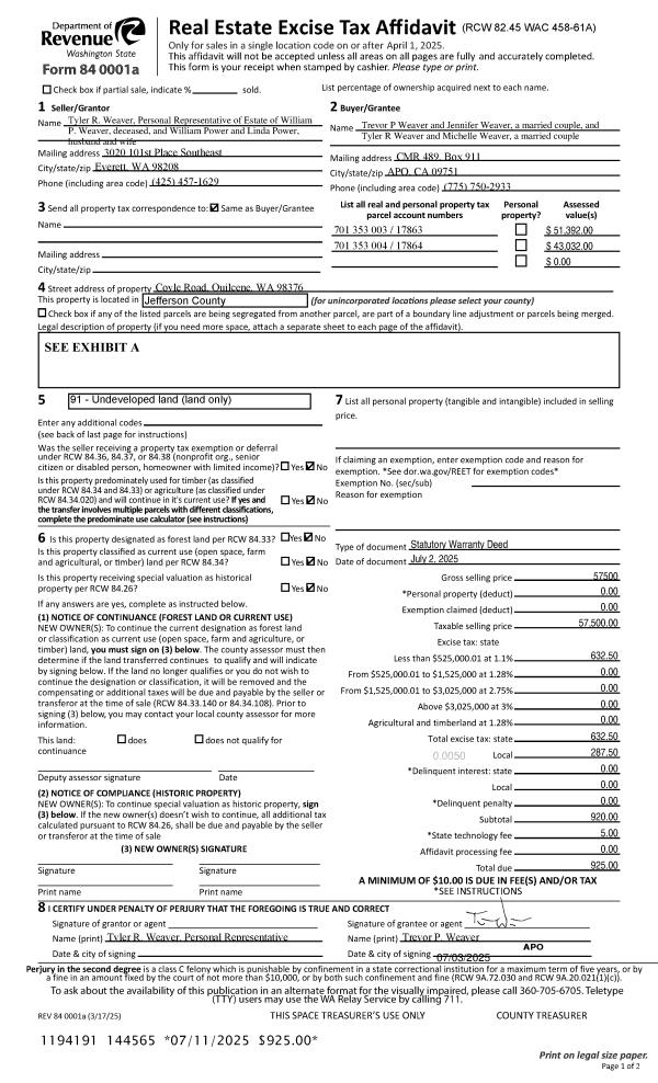
| 1 | 07/02/2025 | SWD | Statutory Warranty Deed | WILLIAM P WEAVER | TREVOR P & JENNIFER WEAVER | | | $57,500.00 | 144565 | |
|   | |
| 2 | 06/14/2017 | SWD | Statutory Warranty Deed | SUSAN CHESNEY | WILLIAM P WEAVER | | | | 127912 | |
| 3 | 06/29/2016 | QCD | Quit Claim Deed | | | | | | 125719 | |
| 4 | 12/20/1999 | QCD | Quit Claim Deed | CHESNEY, DANIEL BARRY/EST | CHESNEY, SUSAN/MICHAEL H | 0 | 0 | $0.00 | 88622 | 0 |
| 5 | 12/23/1997 | QCD | Quit Claim Deed | CHESNEY, WILLIAM H/EST | CHESNEY, DANIEL B/ET AL | 0 | 0 | $0.00 | 84618 | 0 |
Payout Agreement
| No payout information available.. |