Property
Account |
| Property ID: | 17867 | Abbreviated Legal Description: | SILENT LAKE LARGE LOT LOT 2 |
| Parcel # / Geo ID: | 701355002 | Agent Code: | |
| Type: | Real | | |
| Tax Area: | 0323 - 1-48F2E2P1H2C2L1 | Land Use Code | 11 |
| Open Space: | N | DFL | N |
| Historic Property: | N | Remodel Property: | N |
| Multi-Family Redevelopment: | N | | |
| Township: | 27N | Section: | 35 |
| Range: | 1W |
Location |
| Address: | 595 SILENT LAKE RD QUILCENE, WA 98376 | Mapsco: | 183/023 |
| Neighborhood: | S27, 34 & 35 T27N R1W BATH SHORT PLAT | Map ID: | |
| Neighborhood CD: | 2380 |
Owner |
| Name: | JERADEAN E & JOHN M MASCIOCCHI TRUST | Owner ID: | 101625 |
| Mailing Address: | JOHN M MASCIOCCHI TRUSTEE JERADEAN E MASCIOCCHI TRUSTEE 2410 NE DUNCKLEY ST PORTLAND, OR 97212-1557 | % Ownership: | 100.0000000000% |
| | | Exemptions: | |
Pay Tax Due
Select the appropriate checkbox next to the year to be paid. Multiple years may be selected.
*Convenience Fee not included
Taxes and Assessment Details
Property Tax Information as of
03/10/2026
Click on "Statement Details" to expand or collapse a tax statement.
* Please enter a valid date ** Please enter a valid date *
Statement Details |
| 2026 | 7404 | STATE - STATE LEVY (SCHOOL) | $701.17 | $701.16 | $0.00 | $0.00 | $0.00 | $1402.33 |
| 2026 | 7404 | COUNTY - COUNTY LEVIES (CE, DD, VET, MH) | $280.33 | $280.32 | $0.00 | $0.00 | $0.00 | $560.65 |
| 2026 | 7404 | CONSERVE - CONSERVATION FUTURES | $8.41 | $8.40 | $0.00 | $0.00 | $0.00 | $16.81 |
| 2026 | 7404 | COROADS - COUNTY ROADS (ROADS, DIV TO CE) | $226.14 | $226.14 | $0.00 | $0.00 | $0.00 | $452.28 |
| 2026 | 7404 | PORTPT - PORT DISTRICT | $113.23 | $113.21 | $0.00 | $0.00 | $0.00 | $226.44 |
| 2026 | 7404 | PUD1 - PUD #1 | $18.24 | $18.23 | $0.00 | $0.00 | $0.00 | $36.47 |
| 2026 | 7404 | LIB1 - LIBRARY DIST #1 | $87.49 | $87.49 | $0.00 | $0.00 | $0.00 | $174.98 |
| 2026 | 7404 | HD2 - HOSP DIST #2 | $16.35 | $16.35 | $0.00 | $0.00 | $0.00 | $32.70 |
| 2026 | 7404 | SD48 - SCHOOL DIST #48 | $430.64 | $430.64 | $0.00 | $0.00 | $0.00 | $861.28 |
| 2026 | 7404 | FD2 - FIRE DISTRICT #2 | $230.26 | $230.25 | $0.00 | $0.00 | $0.00 | $460.51 |
| 2026 | 7404 | EMS2 - FIRE DIST #2 EMS | $129.67 | $129.66 | $0.00 | $0.00 | $0.00 | $259.33 |
| 2026 | 7404 | CEM2 - CEMETERY DIST #2 | $7.36 | $7.36 | $0.00 | $0.00 | $0.00 | $14.72 |
| 2026 | 7404 | PARK1 - PARK & REC DIST #1 | $44.97 | $44.96 | $0.00 | $0.00 | $0.00 | $89.93 |
| 2026 | 7404 | FP - DNR Forest Fire Protection Assmt | $8.50 | $8.50 | $0.00 | $0.00 | $0.00 | $17.00 |
| 2026 | 7404 | FPLCA - DNR Landowner Contingency Assmt | $3.00 | $3.00 | $0.00 | $0.00 | $0.00 | $6.00 |
| 2026 | 7404 | JCCD - JC Conservation District | $2.80 | $2.80 | $0.00 | $0.00 | $0.00 | $5.60 |
| 2026 | 7404 | NWA - Noxious Weed Assessment | $4.10 | $4.10 | $0.00 | $0.00 | $0.00 | $8.20 |
| 2026 | 7404 | OSS - On Site Septic | $23.10 | $23.10 | $0.00 | $0.00 | $0.00 | $46.20 |
| 2026 | 7404 | WAT - Clean Water District | $13.00 | $13.00 | $0.00 | $0.00 | $0.00 | $26.00 |
| 2026 | 7404 | FP ADMIN - FP ADMIN | $0.50 | $0.00 | $0.00 | $0.00 | $0.00 | $0.50 |
| 2026 | 7404 | TOTAL: | $2349.26 | $2348.67 | $0.00 | $0.00 | $0.00 | $4697.93 |
|
| 2026 | 7404 | $2349.26 | $2348.67 | $0.00 | $0.00 | $0.00 | $4697.93 |
Statement Details |
| 2025 | 7425 | STATE - STATE LEVY (SCHOOL) | $700.39 | $700.39 | $0.00 | $0.00 | $1400.78 | $0.00 |
| 2025 | 7425 | COUNTY - COUNTY LEVIES (CE, DD, VET, MH) | $275.43 | $275.43 | $0.00 | $0.00 | $550.86 | $0.00 |
| 2025 | 7425 | CONSERVE - CONSERVATION FUTURES | $8.26 | $8.26 | $0.00 | $0.00 | $16.52 | $0.00 |
| 2025 | 7425 | COROADS - COUNTY ROADS (ROADS, DIV TO CE) | $220.66 | $220.65 | $0.00 | $0.00 | $441.31 | $0.00 |
| 2025 | 7425 | PORTPT - PORT DISTRICT | $112.39 | $112.39 | $0.00 | $0.00 | $224.78 | $0.00 |
| 2025 | 7425 | PUD1 - PUD #1 | $18.02 | $18.02 | $0.00 | $0.00 | $36.04 | $0.00 |
| 2025 | 7425 | LIB1 - LIBRARY DIST #1 | $85.37 | $85.37 | $0.00 | $0.00 | $170.74 | $0.00 |
| 2025 | 7425 | HD2 - HOSP DIST #2 | $16.07 | $16.07 | $0.00 | $0.00 | $32.14 | $0.00 |
| 2025 | 7425 | SD48 - SCHOOL DIST #48 | $412.44 | $412.44 | $0.00 | $0.00 | $824.88 | $0.00 |
| 2025 | 7425 | FD2 - FIRE DISTRICT #2 | $227.72 | $227.72 | $0.00 | $0.00 | $455.44 | $0.00 |
| 2025 | 7425 | EMS2 - FIRE DIST #2 EMS | $128.22 | $128.22 | $0.00 | $0.00 | $256.44 | $0.00 |
| 2025 | 7425 | CEM2 - CEMETERY DIST #2 | $7.27 | $7.26 | $0.00 | $0.00 | $14.53 | $0.00 |
| 2025 | 7425 | PARK1 - PARK & REC DIST #1 | $33.27 | $33.27 | $0.00 | $0.00 | $66.54 | $0.00 |
| 2025 | 7425 | FP - DNR Forest Fire Protection Assmt | $8.50 | $8.50 | $0.00 | $0.00 | $17.00 | $0.00 |
| 2025 | 7425 | FPLCA - DNR Landowner Contingency Assmt | $3.00 | $3.00 | $0.00 | $0.00 | $6.00 | $0.00 |
| 2025 | 7425 | JCCD - JC Conservation District | $2.80 | $2.80 | $0.00 | $0.00 | $5.60 | $0.00 |
| 2025 | 7425 | NWA - Noxious Weed Assessment | $2.90 | $2.90 | $0.00 | $0.00 | $5.80 | $0.00 |
| 2025 | 7425 | OSS - On Site Septic | $21.50 | $21.50 | $0.00 | $0.00 | $43.00 | $0.00 |
| 2025 | 7425 | WAT - Clean Water District | $13.00 | $13.00 | $0.00 | $0.00 | $26.00 | $0.00 |
| 2025 | 7425 | FP ADMIN - FP ADMIN | $0.50 | $0.00 | $0.00 | $0.00 | $0.50 | $0.00 |
| 2025 | 7425 | TOTAL: | $2297.71 | $2297.19 | $0.00 | $0.00 | $4594.90 | $0.00 |
|
| 2025 | 7425 | $2297.71 | $2297.19 | $0.00 | $0.00 | $4594.90 | $0.00 |
Statement Details |
| 2024 | 7448 | STATE - STATE LEVY (SCHOOL) | $639.80 | $639.80 | $0.00 | $0.00 | $1279.60 | $0.00 |
| 2024 | 7448 | COUNTY - COUNTY LEVIES (CE, DD, VET, MH) | $273.79 | $273.76 | $0.00 | $0.00 | $547.55 | $0.00 |
| 2024 | 7448 | CONSERVE - CONSERVATION FUTURES | $8.21 | $8.21 | $0.00 | $0.00 | $16.42 | $0.00 |
| 2024 | 7448 | COROADS - COUNTY ROADS (ROADS, DIV TO CE) | $220.31 | $220.29 | $0.00 | $0.00 | $440.60 | $0.00 |
| 2024 | 7448 | PORTPT - PORT DISTRICT | $113.09 | $113.07 | $0.00 | $0.00 | $226.16 | $0.00 |
| 2024 | 7448 | PUD1 - PUD #1 | $17.99 | $17.98 | $0.00 | $0.00 | $35.97 | $0.00 |
| 2024 | 7448 | LIB1 - LIBRARY DIST #1 | $85.23 | $85.23 | $0.00 | $0.00 | $170.46 | $0.00 |
| 2024 | 7448 | HD2 - HOSP DIST #2 | $15.98 | $15.97 | $0.00 | $0.00 | $31.95 | $0.00 |
| 2024 | 7448 | SD48 - SCHOOL DIST #48 | $286.56 | $286.55 | $0.00 | $0.00 | $573.11 | $0.00 |
| 2024 | 7448 | FD2 - FIRE DISTRICT #2 | $227.61 | $227.60 | $0.00 | $0.00 | $455.21 | $0.00 |
| 2024 | 7448 | EMS2 - FIRE DIST #2 EMS | $128.13 | $128.12 | $0.00 | $0.00 | $256.25 | $0.00 |
| 2024 | 7448 | CEM2 - CEMETERY DIST #2 | $7.29 | $7.28 | $0.00 | $0.00 | $14.57 | $0.00 |
| 2024 | 7448 | PARK1 - PARK & REC DIST #1 | $31.98 | $31.97 | $0.00 | $0.00 | $63.95 | $0.00 |
| 2024 | 7448 | FP - DNR Forest Fire Protection Assmt | $8.50 | $8.50 | $0.00 | $0.00 | $17.00 | $0.00 |
| 2024 | 7448 | FPLCA - DNR Landowner Contingency Assmt | $3.00 | $3.00 | $0.00 | $0.00 | $6.00 | $0.00 |
| 2024 | 7448 | JCCD - JC Conservation District | $2.80 | $2.80 | $0.00 | $0.00 | $5.60 | $0.00 |
| 2024 | 7448 | NWA - Noxious Weed Assessment | $2.90 | $2.90 | $0.00 | $0.00 | $5.80 | $0.00 |
| 2024 | 7448 | WAT - Clean Water District | $12.50 | $12.50 | $0.00 | $0.00 | $25.00 | $0.00 |
| 2024 | 7448 | FP ADMIN - FP ADMIN | $0.50 | $0.00 | $0.00 | $0.00 | $0.50 | $0.00 |
| 2024 | 7448 | TOTAL: | $2086.17 | $2085.53 | $0.00 | $0.00 | $4171.70 | $0.00 |
|
| 2024 | 7448 | $2086.17 | $2085.53 | $0.00 | $0.00 | $4171.70 | $0.00 |
Statement Details |
| 2023 | 7462 | STATE - STATE LEVY (SCHOOL) | $595.86 | $595.84 | $0.00 | $0.00 | $1191.70 | $0.00 |
| 2023 | 7462 | COUNTY - COUNTY LEVIES (CE, DD, VET, MH) | $260.02 | $259.99 | $0.00 | $0.00 | $520.01 | $0.00 |
| 2023 | 7462 | CONSERVE - CONSERVATION FUTURES | $7.80 | $7.79 | $0.00 | $0.00 | $15.59 | $0.00 |
| 2023 | 7462 | COROADS - COUNTY ROADS (ROADS, DIV TO CE) | $210.37 | $210.36 | $0.00 | $0.00 | $420.73 | $0.00 |
| 2023 | 7462 | PORTPT - PORT DISTRICT | $109.54 | $109.52 | $0.00 | $0.00 | $219.06 | $0.00 |
| 2023 | 7462 | PUD1 - PUD #1 | $17.24 | $17.23 | $0.00 | $0.00 | $34.47 | $0.00 |
| 2023 | 7462 | LIB1 - LIBRARY DIST #1 | $81.39 | $81.39 | $0.00 | $0.00 | $162.78 | $0.00 |
| 2023 | 7462 | HD2 - HOSP DIST #2 | $15.18 | $15.16 | $0.00 | $0.00 | $30.34 | $0.00 |
| 2023 | 7462 | SD48 - SCHOOL DIST #48 | $287.74 | $287.74 | $0.00 | $0.00 | $575.48 | $0.00 |
| 2023 | 7462 | FD2 - FIRE DISTRICT #2 | $225.70 | $225.69 | $0.00 | $0.00 | $451.39 | $0.00 |
| 2023 | 7462 | EMS2 - FIRE DIST #2 EMS | $126.55 | $126.55 | $0.00 | $0.00 | $253.10 | $0.00 |
| 2023 | 7462 | CEM2 - CEMETERY DIST #2 | $7.19 | $7.18 | $0.00 | $0.00 | $14.37 | $0.00 |
| 2023 | 7462 | PARK1 - PARK & REC DIST #1 | $28.27 | $28.26 | $0.00 | $0.00 | $56.53 | $0.00 |
| 2023 | 7462 | FP - DNR Forest Fire Protection Assmt | $8.50 | $8.50 | $0.00 | $0.00 | $17.00 | $0.00 |
| 2023 | 7462 | FPLCA - DNR Landowner Contingency Assmt | $3.00 | $3.00 | $0.00 | $0.00 | $6.00 | $0.00 |
| 2023 | 7462 | JCCD - JC Conservation District | $2.80 | $2.80 | $0.00 | $0.00 | $5.60 | $0.00 |
| 2023 | 7462 | NWA - Noxious Weed Assessment | $2.90 | $2.90 | $0.00 | $0.00 | $5.80 | $0.00 |
| 2023 | 7462 | WAT - Clean Water District | $12.00 | $12.00 | $0.00 | $0.00 | $24.00 | $0.00 |
| 2023 | 7462 | FP ADMIN - FP ADMIN | $0.50 | $0.00 | $0.00 | $0.00 | $0.50 | $0.00 |
| 2023 | 7462 | TOTAL: | $2002.55 | $2001.90 | $0.00 | $0.00 | $4004.45 | $0.00 |
|
| 2023 | 7462 | $2002.55 | $2001.90 | $0.00 | $0.00 | $4004.45 | $0.00 |
Values
| (+) Improvement Homesite Value: | + | $0 | |
| (+) Improvement Non-Homesite Value: | + | $391,450 | |
| (+) Land Homesite Value: | + | $0 | |
| (+) Land Non-Homesite Value: | + | $218,500 | |
| (+) Curr Use (HS): | + | $0 | $0 |
| (+) Curr Use (NHS): | + | $0 | $0 |
| | | -------------------------- | |
| (=) Market Value: | = | $609,950 | |
| (–) Productivity Loss: | – | $0 | |
| | | -------------------------- | |
| (=) Subtotal: | = | $609,950 | |
| (+) Senior Appraised Value: | + | $0 | |
| (+) Non-Senior Appraised Value: | + | $609,950 | |
| | | -------------------------- | |
| (=) Total Appraised Value: | = | $609,950 | |
| (–) Senior Exemption Loss: | – | $0 | |
| (–) Exemption Loss: | – | $0 | |
| | | -------------------------- | |
| (=) Taxable Value: | = | $609,950 | |
Taxing Jurisdiction
| Owner: | JERADEAN E & JOHN M MASCIOCCHI TRUST | | |
| % Ownership: | 100.0000000000% | | |
| Total Value: | $609,950 | | |
| Tax Area: | 0323 - 1-48F2E2P1H2C2L1 |
| CE | COUNTY CURRENT EXPENSE | 0.9034619479 | $609,950 | $609,950 | $551.07 | | |
| CNTYDD | DEVELOPMENTAL DISABILITIES | 0.0052121823 | $609,950 | $609,950 | $3.18 | | |
| CNTYVET | VETERANS RELIEF | 0.0052777810 | $609,950 | $609,950 | $3.22 | | |
| MENTAL | MENTAL HEALTH | 0.0052121823 | $609,950 | $609,950 | $3.18 | | |
| ROADS | COUNTY ROADS | 0.7415066410 | $609,950 | $609,950 | $452.28 | | |
| ROADSCU | COUNTY ROADS TO CUR EXP | 0.0000000000 | $609,950 | $609,950 | $0.00 | | |
| HOSP2CASH | HOSP DIST #2 GENERAL | 0.0536075306 | $609,950 | $609,950 | $32.70 | | |
| SCH48MO | SCHOOL DIST #48 EP & O | 1.4120478917 | $609,950 | $609,950 | $861.28 | | |
| CEM2 | CEMETERY DIST #2 GENERAL | 0.0241266154 | $609,950 | $609,950 | $14.72 | | |
| CONSERVE | CONSERVATION FUTURES | 0.0275621078 | $609,950 | $609,950 | $16.81 | | |
| FD2 | FIRE DIST #2 GENERAL | 0.7549976873 | $609,950 | $609,950 | $460.51 | | |
| LIB1 | LIBRARY DIST #1 GENERAL | 0.2868827388 | $609,950 | $609,950 | $174.98 | | |
| PARK1 | PARK & REC DIST #1 GENERAL | 0.1474441110 | $609,950 | $609,950 | $89.93 | | |
| PORTPT | PORT OF PT GENERAL | 0.1134941229 | $609,950 | $609,950 | $69.23 | | |
| PORTPTIDD | PORT OF PT IDD 2019 | 0.2577346692 | $609,950 | $609,950 | $157.21 | | |
| PUD1 | PUD #1 GENERAL | 0.0597888892 | $609,950 | $609,950 | $36.47 | | |
| STATE | STATE SCHOOL PART 1 | 1.4940692947 | $609,950 | $609,950 | $911.31 | | |
| STATE2 | STATE SCHOOL PART 2 | 0.8050170049 | $609,950 | $609,950 | $491.02 | | |
| EMS2 | FIRE DIST #2 EMS | 0.4251727858 | $609,950 | $609,950 | $259.33 | | |
| | Total Tax Rate: | 7.5226161838 | | | | | |
| | | | | Taxes w/Current Exemptions: | $4,588.43 | | |
| | | | | Taxes w/o Exemptions: | $4,588.43 | | |
Improvement / Building
| Improvement #1: | Residential Bldg | State Code: | 11 | 1260.0 sqft | Value: | $391,450 |
| Bathrooms (#): | 1 (FULL) | Bedrooms (#): | 1 | | Exterior Wall: | PL/T1 | Foundation: | CONPR | | Heating/Cooling: | OTHER | Roof Cover: | METAL |
|
| | Type | Description | Class CD | Sub Class CD | Year Built | Area |
| | MA | Main Area | 4+ | 1S | 2021 | 1260.0 |
| | GDET | Detached Garage | 5 | 1S | 2021 | 832.0 |
| | HDECK | House Deck | 4 | 1S | 2021 | 120.0 |
Sketch
Property Image
Land
| 1 | 2380-1415S | | 5.1100 | 222591.60 | 0.00 | 0.00 | 1.00 | $218,500 | $0 |
Roll Value History
| 2026 | N/A | N/A | N/A | N/A | N/A |
| 2025 | $391,450 | $218,500 | $0 | $609,950 | $609,950 |
| 2024 | $375,139 | $209,000 | $0 | $584,139 | $584,139 |
| 2023 | $358,829 | $194,250 | $0 | $553,079 | $553,079 |
| 2022 | $326,208 | $180,000 | $0 | $506,208 | $506,208 |
Deed and Sales History
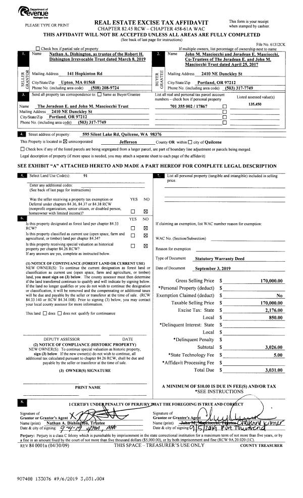
| 1 | 09/03/2019 | SWD | Statutory Warranty Deed | ROBERT H DISHINGTON IRREVOCABLE TRUST | JERADEAN E & JOHN M MASCIOCCHI TRUST | | | $170,000.00 | 133076 | |
| 2 | 01/31/2005 | QCD | Quit Claim Deed | DISHINGTON, CATHERINE | DISHINGTON, ROBERT | 0 | 0 | $0.00 | 103030 | 0 |
| 3 | 07/07/2004 | SWD | Statutory Warranty Deed | DAHLANDER, NOEL L III/HEL | DISHINGTON, ROBERT H | 0 | 0 | $120,000.00 | 100732 | 0 |
| 4 | 08/08/1996 | SWD | Statutory Warranty Deed | JAL ASSOCIATES | DAHLANDER, NOEL L/III/HELENE R | 0 | 0 | $109,000.00 | 80177 | 0 |
Payout Agreement
| No payout information available.. |