Property
Account |
| Property ID: | 17885 | Abbreviated Legal Description: | S1 T27 R2W LOT 4(LESS W 660') LESS R/W WITH EASE |
| Parcel # / Geo ID: | 702012003 | Agent Code: | |
| Type: | Real | | |
| Tax Area: | 0324 - 1-48F2E2H2C2L1Z3 | Land Use Code | 91 |
| Open Space: | N | DFL | N |
| Historic Property: | N | Remodel Property: | N |
| Multi-Family Redevelopment: | N | | |
| Township: | 27N | Section: | 1 |
| Range: | 2W |
Location |
| Address: | | Mapsco: | 154/004 |
| Neighborhood: | S1 & S2 T27N R2W | Map ID: | |
| Neighborhood CD: | 2510 |
Owner |
| Name: | TREVOR ALTPETER | Owner ID: | 105923 |
| Mailing Address: | 52 ALEASE DR FAYETTEVILLE, TN 37334-7407 | % Ownership: | 100.0000000000% |
| | | Exemptions: | |
Pay Tax Due
Select the appropriate checkbox next to the year to be paid. Multiple years may be selected.
*Convenience Fee not included
Taxes and Assessment Details
Property Tax Information as of
03/10/2026
Click on "Statement Details" to expand or collapse a tax statement.
* Please enter a valid date ** Please enter a valid date *
Statement Details |
| 2026 | 7422 | STATE - STATE LEVY (SCHOOL) | $228.18 | $228.16 | $0.00 | $0.00 | $0.00 | $456.34 |
| 2026 | 7422 | COUNTY - COUNTY LEVIES (CE, DD, VET, MH) | $91.24 | $91.20 | $0.00 | $0.00 | $0.00 | $182.44 |
| 2026 | 7422 | CONSERVE - CONSERVATION FUTURES | $2.74 | $2.73 | $0.00 | $0.00 | $0.00 | $5.47 |
| 2026 | 7422 | COROADS - COUNTY ROADS (ROADS, DIV TO CE) | $73.59 | $73.59 | $0.00 | $0.00 | $0.00 | $147.18 |
| 2026 | 7422 | PORTPT - PORT DISTRICT | $36.85 | $36.84 | $0.00 | $0.00 | $0.00 | $73.69 |
| 2026 | 7422 | PUD1 - PUD #1 | $5.94 | $5.93 | $0.00 | $0.00 | $0.00 | $11.87 |
| 2026 | 7422 | LIB1 - LIBRARY DIST #1 | $28.47 | $28.47 | $0.00 | $0.00 | $0.00 | $56.94 |
| 2026 | 7422 | HD2 - HOSP DIST #2 | $5.32 | $5.32 | $0.00 | $0.00 | $0.00 | $10.64 |
| 2026 | 7422 | SD48 - SCHOOL DIST #48 | $140.14 | $140.13 | $0.00 | $0.00 | $0.00 | $280.27 |
| 2026 | 7422 | FD2 - FIRE DISTRICT #2 | $74.93 | $74.93 | $0.00 | $0.00 | $0.00 | $149.86 |
| 2026 | 7422 | EMS2 - FIRE DIST #2 EMS | $42.20 | $42.19 | $0.00 | $0.00 | $0.00 | $84.39 |
| 2026 | 7422 | CEM2 - CEMETERY DIST #2 | $2.40 | $2.39 | $0.00 | $0.00 | $0.00 | $4.79 |
| 2026 | 7422 | FP - DNR Forest Fire Protection Assmt | $8.50 | $8.50 | $0.00 | $0.00 | $0.00 | $17.00 |
| 2026 | 7422 | FPLCA - DNR Landowner Contingency Assmt | $3.00 | $3.00 | $0.00 | $0.00 | $0.00 | $6.00 |
| 2026 | 7422 | JCCD - JC Conservation District | $3.37 | $3.37 | $0.00 | $0.00 | $0.00 | $6.74 |
| 2026 | 7422 | NWA - Noxious Weed Assessment | $7.70 | $7.70 | $0.00 | $0.00 | $0.00 | $15.40 |
| 2026 | 7422 | WAT - Clean Water District | $13.00 | $13.00 | $0.00 | $0.00 | $0.00 | $26.00 |
| 2026 | 7422 | FP ADMIN - FP ADMIN | $0.50 | $0.00 | $0.00 | $0.00 | $0.00 | $0.50 |
| 2026 | 7422 | TOTAL: | $768.07 | $767.45 | $0.00 | $0.00 | $0.00 | $1535.52 |
|
| 2026 | 7422 | $768.07 | $767.45 | $0.00 | $0.00 | $0.00 | $1535.52 |
Statement Details |
| 2025 | 7443 | STATE - STATE LEVY (SCHOOL) | $227.65 | $227.64 | $0.00 | $0.00 | $455.29 | $0.00 |
| 2025 | 7443 | COUNTY - COUNTY LEVIES (CE, DD, VET, MH) | $89.54 | $89.50 | $0.00 | $0.00 | $179.04 | $0.00 |
| 2025 | 7443 | CONSERVE - CONSERVATION FUTURES | $2.69 | $2.68 | $0.00 | $0.00 | $5.37 | $0.00 |
| 2025 | 7443 | COROADS - COUNTY ROADS (ROADS, DIV TO CE) | $71.72 | $71.71 | $0.00 | $0.00 | $143.43 | $0.00 |
| 2025 | 7443 | PORTPT - PORT DISTRICT | $36.54 | $36.52 | $0.00 | $0.00 | $73.06 | $0.00 |
| 2025 | 7443 | PUD1 - PUD #1 | $5.86 | $5.86 | $0.00 | $0.00 | $11.72 | $0.00 |
| 2025 | 7443 | LIB1 - LIBRARY DIST #1 | $27.75 | $27.74 | $0.00 | $0.00 | $55.49 | $0.00 |
| 2025 | 7443 | HD2 - HOSP DIST #2 | $5.23 | $5.22 | $0.00 | $0.00 | $10.45 | $0.00 |
| 2025 | 7443 | SD48 - SCHOOL DIST #48 | $134.05 | $134.05 | $0.00 | $0.00 | $268.10 | $0.00 |
| 2025 | 7443 | FD2 - FIRE DISTRICT #2 | $74.02 | $74.01 | $0.00 | $0.00 | $148.03 | $0.00 |
| 2025 | 7443 | EMS2 - FIRE DIST #2 EMS | $41.68 | $41.67 | $0.00 | $0.00 | $83.35 | $0.00 |
| 2025 | 7443 | CEM2 - CEMETERY DIST #2 | $2.36 | $2.36 | $0.00 | $0.00 | $4.72 | $0.00 |
| 2025 | 7443 | FP - DNR Forest Fire Protection Assmt | $8.50 | $8.50 | $0.00 | $0.00 | $17.00 | $0.00 |
| 2025 | 7443 | FPLCA - DNR Landowner Contingency Assmt | $3.00 | $3.00 | $0.00 | $0.00 | $6.00 | $0.00 |
| 2025 | 7443 | JCCD - JC Conservation District | $3.37 | $3.37 | $0.00 | $0.00 | $6.74 | $0.00 |
| 2025 | 7443 | NWA - Noxious Weed Assessment | $5.30 | $5.30 | $0.00 | $0.00 | $10.60 | $0.00 |
| 2025 | 7443 | WAT - Clean Water District | $13.00 | $13.00 | $0.00 | $0.00 | $26.00 | $0.00 |
| 2025 | 7443 | FP ADMIN - FP ADMIN | $0.50 | $0.00 | $0.00 | $0.00 | $0.50 | $0.00 |
| 2025 | 7443 | TOTAL: | $752.76 | $752.13 | $0.00 | $0.00 | $1504.89 | $0.00 |
|
| 2025 | 7443 | $752.76 | $752.13 | $0.00 | $0.00 | $1504.89 | $0.00 |
Statement Details |
| 2024 | 7466 | STATE - STATE LEVY (SCHOOL) | $205.36 | $205.34 | $0.00 | $0.00 | $410.70 | $0.00 |
| 2024 | 7466 | COUNTY - COUNTY LEVIES (CE, DD, VET, MH) | $87.88 | $87.85 | $0.00 | $0.00 | $175.73 | $0.00 |
| 2024 | 7466 | CONSERVE - CONSERVATION FUTURES | $2.64 | $2.63 | $0.00 | $0.00 | $5.27 | $0.00 |
| 2024 | 7466 | COROADS - COUNTY ROADS (ROADS, DIV TO CE) | $70.71 | $70.70 | $0.00 | $0.00 | $141.41 | $0.00 |
| 2024 | 7466 | PORTPT - PORT DISTRICT | $36.30 | $36.29 | $0.00 | $0.00 | $72.59 | $0.00 |
| 2024 | 7466 | PUD1 - PUD #1 | $5.77 | $5.77 | $0.00 | $0.00 | $11.54 | $0.00 |
| 2024 | 7466 | LIB1 - LIBRARY DIST #1 | $27.36 | $27.35 | $0.00 | $0.00 | $54.71 | $0.00 |
| 2024 | 7466 | HD2 - HOSP DIST #2 | $5.13 | $5.12 | $0.00 | $0.00 | $10.25 | $0.00 |
| 2024 | 7466 | SD48 - SCHOOL DIST #48 | $91.98 | $91.97 | $0.00 | $0.00 | $183.95 | $0.00 |
| 2024 | 7466 | FD2 - FIRE DISTRICT #2 | $73.05 | $73.05 | $0.00 | $0.00 | $146.10 | $0.00 |
| 2024 | 7466 | EMS2 - FIRE DIST #2 EMS | $41.13 | $41.12 | $0.00 | $0.00 | $82.25 | $0.00 |
| 2024 | 7466 | CEM2 - CEMETERY DIST #2 | $2.34 | $2.34 | $0.00 | $0.00 | $4.68 | $0.00 |
| 2024 | 7466 | FP - DNR Forest Fire Protection Assmt | $8.50 | $8.50 | $0.00 | $0.00 | $17.00 | $0.00 |
| 2024 | 7466 | FPLCA - DNR Landowner Contingency Assmt | $3.00 | $3.00 | $0.00 | $0.00 | $6.00 | $0.00 |
| 2024 | 7466 | JCCD - JC Conservation District | $3.37 | $3.37 | $0.00 | $0.00 | $6.74 | $0.00 |
| 2024 | 7466 | NWA - Noxious Weed Assessment | $5.30 | $5.30 | $0.00 | $0.00 | $10.60 | $0.00 |
| 2024 | 7466 | WAT - Clean Water District | $12.50 | $12.50 | $0.00 | $0.00 | $25.00 | $0.00 |
| 2024 | 7466 | FP ADMIN - FP ADMIN | $0.50 | $0.00 | $0.00 | $0.00 | $0.50 | $0.00 |
| 2024 | 7466 | TOTAL: | $682.82 | $682.20 | $0.00 | $0.00 | $1365.02 | $0.00 |
|
| 2024 | 7466 | $682.82 | $682.20 | $0.00 | $0.00 | $1365.02 | $0.00 |
Statement Details |
| 2023 | 7480 | STATE - STATE LEVY (SCHOOL) | $190.69 | $190.68 | $0.00 | $0.00 | $381.37 | $0.00 |
| 2023 | 7480 | COUNTY - COUNTY LEVIES (CE, DD, VET, MH) | $83.21 | $83.20 | $0.00 | $0.00 | $166.41 | $0.00 |
| 2023 | 7480 | CONSERVE - CONSERVATION FUTURES | $2.50 | $2.49 | $0.00 | $0.00 | $4.99 | $0.00 |
| 2023 | 7480 | COROADS - COUNTY ROADS (ROADS, DIV TO CE) | $67.33 | $67.32 | $0.00 | $0.00 | $134.65 | $0.00 |
| 2023 | 7480 | PORTPT - PORT DISTRICT | $35.06 | $35.05 | $0.00 | $0.00 | $70.11 | $0.00 |
| 2023 | 7480 | PUD1 - PUD #1 | $5.52 | $5.51 | $0.00 | $0.00 | $11.03 | $0.00 |
| 2023 | 7480 | LIB1 - LIBRARY DIST #1 | $26.05 | $26.04 | $0.00 | $0.00 | $52.09 | $0.00 |
| 2023 | 7480 | HD2 - HOSP DIST #2 | $4.86 | $4.86 | $0.00 | $0.00 | $9.72 | $0.00 |
| 2023 | 7480 | SD48 - SCHOOL DIST #48 | $92.09 | $92.08 | $0.00 | $0.00 | $184.17 | $0.00 |
| 2023 | 7480 | FD2 - FIRE DISTRICT #2 | $72.23 | $72.22 | $0.00 | $0.00 | $144.45 | $0.00 |
| 2023 | 7480 | EMS2 - FIRE DIST #2 EMS | $40.50 | $40.50 | $0.00 | $0.00 | $81.00 | $0.00 |
| 2023 | 7480 | CEM2 - CEMETERY DIST #2 | $2.30 | $2.30 | $0.00 | $0.00 | $4.60 | $0.00 |
| 2023 | 7480 | FP - DNR Forest Fire Protection Assmt | $8.50 | $8.50 | $0.00 | $0.00 | $17.00 | $0.00 |
| 2023 | 7480 | FPLCA - DNR Landowner Contingency Assmt | $3.00 | $3.00 | $0.00 | $0.00 | $6.00 | $0.00 |
| 2023 | 7480 | JCCD - JC Conservation District | $3.37 | $3.37 | $0.00 | $0.00 | $6.74 | $0.00 |
| 2023 | 7480 | NWA - Noxious Weed Assessment | $5.30 | $5.30 | $0.00 | $0.00 | $10.60 | $0.00 |
| 2023 | 7480 | WAT - Clean Water District | $12.00 | $12.00 | $0.00 | $0.00 | $24.00 | $0.00 |
| 2023 | 7480 | FP ADMIN - FP ADMIN | $0.50 | $0.00 | $0.00 | $0.00 | $0.50 | $0.00 |
| 2023 | 7480 | TOTAL: | $655.01 | $654.42 | $0.00 | $0.00 | $1309.43 | $0.00 |
|
| 2023 | 7480 | $655.01 | $654.42 | $0.00 | $0.00 | $1309.43 | $0.00 |
Values
| (+) Improvement Homesite Value: | + | $0 | |
| (+) Improvement Non-Homesite Value: | + | $0 | |
| (+) Land Homesite Value: | + | $0 | |
| (+) Land Non-Homesite Value: | + | $198,488 | |
| (+) Curr Use (HS): | + | $0 | $0 |
| (+) Curr Use (NHS): | + | $0 | $0 |
| | | -------------------------- | |
| (=) Market Value: | = | $198,488 | |
| (–) Productivity Loss: | – | $0 | |
| | | -------------------------- | |
| (=) Subtotal: | = | $198,488 | |
| (+) Senior Appraised Value: | + | $0 | |
| (+) Non-Senior Appraised Value: | + | $198,488 | |
| | | -------------------------- | |
| (=) Total Appraised Value: | = | $198,488 | |
| (–) Senior Exemption Loss: | – | $0 | |
| (–) Exemption Loss: | – | $0 | |
| | | -------------------------- | |
| (=) Taxable Value: | = | $198,488 | |
Taxing Jurisdiction
| Owner: | TREVOR ALTPETER | | |
| % Ownership: | 100.0000000000% | | |
| Total Value: | $198,488 | | |
| Tax Area: | 0324 - 1-48F2E2H2C2L1Z3 |
| CE | COUNTY CURRENT EXPENSE | 0.9034619479 | $198,488 | $198,488 | $179.33 | | |
| CNTYDD | DEVELOPMENTAL DISABILITIES | 0.0052121823 | $198,488 | $198,488 | $1.03 | | |
| CNTYVET | VETERANS RELIEF | 0.0052777810 | $198,488 | $198,488 | $1.05 | | |
| MENTAL | MENTAL HEALTH | 0.0052121823 | $198,488 | $198,488 | $1.03 | | |
| ROADS | COUNTY ROADS | 0.7415066410 | $198,488 | $198,488 | $147.18 | | |
| ROADSCU | COUNTY ROADS TO CUR EXP | 0.0000000000 | $198,488 | $198,488 | $0.00 | | |
| HOSP2CASH | HOSP DIST #2 GENERAL | 0.0536075306 | $198,488 | $198,488 | $10.64 | | |
| SCH48MO | SCHOOL DIST #48 EP & O | 1.4120478917 | $198,488 | $198,488 | $280.27 | | |
| CEM2 | CEMETERY DIST #2 GENERAL | 0.0241266154 | $198,488 | $198,488 | $4.79 | | |
| CONSERVE | CONSERVATION FUTURES | 0.0275621078 | $198,488 | $198,488 | $5.47 | | |
| FD2 | FIRE DIST #2 GENERAL | 0.7549976873 | $198,488 | $198,488 | $149.86 | | |
| LIB1 | LIBRARY DIST #1 GENERAL | 0.2868827388 | $198,488 | $198,488 | $56.94 | | |
| PORTPT | PORT OF PT GENERAL | 0.1134941229 | $198,488 | $198,488 | $22.53 | | |
| PORTPTIDD | PORT OF PT IDD 2019 | 0.2577346692 | $198,488 | $198,488 | $51.16 | | |
| PUD1 | PUD #1 GENERAL | 0.0597888892 | $198,488 | $198,488 | $11.87 | | |
| STATE | STATE SCHOOL PART 1 | 1.4940692947 | $198,488 | $198,488 | $296.55 | | |
| STATE2 | STATE SCHOOL PART 2 | 0.8050170049 | $198,488 | $198,488 | $159.79 | | |
| EMS2 | FIRE DIST #2 EMS | 0.4251727858 | $198,488 | $198,488 | $84.39 | | |
| | Total Tax Rate: | 7.3751720728 | | | | | |
| | | | | Taxes w/Current Exemptions: | $1,463.88 | | |
| | | | | Taxes w/o Exemptions: | $1,463.88 | | |
Improvement / Building
Sketch
| No sketches available for this property. |
Property Image
Land
| 1 | 2510-1372S | | 1.0000 | 43560.00 | 0.00 | 0.00 | 1.00 | $64,400 | $0 |
| 2 | 1771A | | 20.1900 | 879476.40 | 0.00 | 0.00 | 0.00 | $134,088 | $0 |
Roll Value History
| 2026 | N/A | N/A | N/A | N/A | N/A |
| 2025 | $0 | $198,488 | $0 | $198,488 | $198,488 |
| 2024 | $0 | $189,858 | $0 | $189,858 | $189,858 |
| 2023 | $0 | $177,517 | $0 | $177,517 | $177,517 |
| 2022 | $0 | $161,998 | $0 | $161,998 | $161,998 |
Deed and Sales History
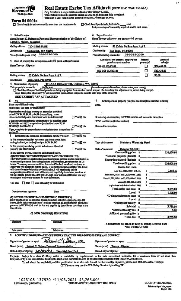
| 1 | 10/25/2021 | SWD | Statutory Warranty Deed | LLOYD H NELSON | TREVOR ALTPETER | | | $235,000.00 | 137970 | |
|   | |
| 2 | 04/11/2019 | PRD | Personal Representatives Deed | JOHN E NELSON | LLOYD H NELSON | | | | 132132 | |
| 3 | 08/23/1993 | SWD | Statutory Warranty Deed | IVERSEN, INGRED L | NELSON, JOHN E | 0 | 0 | $55,000.00 | 72011 | 0 |
Payout Agreement
| No payout information available.. |