Property
Account |
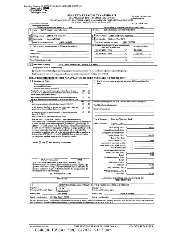
| Property ID: | 17905 | Abbreviated Legal Description: | S2 T27 R2W TX 7 |
| Parcel # / Geo ID: | 702021007 | Agent Code: | |
| Type: | Real | | |
| Tax Area: | 0324 - 1-48F2E2H2C2L1Z3 | Land Use Code | 91 |
| Open Space: | N | DFL | N |
| Historic Property: | N | Remodel Property: | N |
| Multi-Family Redevelopment: | N | | |
| Township: | 27N | Section: | 2 |
| Range: | 2W |
Location |
| Address: | | Mapsco: | 155/018 |
| Neighborhood: | S1 & S2 T27N R2W | Map ID: | |
| Neighborhood CD: | 2510 |
Owner |
| Name: | DYLAN BRACKNEY | Owner ID: | 93125 |
| Mailing Address: | 3251 LELAND VALLEY RD W QUILCENE, WA 98376 | % Ownership: | 100.0000000000% |
| | | Exemptions: | |
Pay Tax Due
Select the appropriate checkbox next to the year to be paid. Multiple years may be selected.
*Convenience Fee not included
Taxes and Assessment Details
Property Tax Information as of
03/13/2026
Click on "Statement Details" to expand or collapse a tax statement.
* Please enter a valid date ** Please enter a valid date *
Statement Details |
| 2026 | 7442 | STATE - STATE LEVY (SCHOOL) | $14.88 | $14.87 | $0.00 | $0.00 | $0.00 | $29.75 |
| 2026 | 7442 | COUNTY - COUNTY LEVIES (CE, DD, VET, MH) | $5.97 | $5.93 | $0.00 | $0.00 | $0.00 | $11.90 |
| 2026 | 7442 | CONSERVE - CONSERVATION FUTURES | $0.18 | $0.18 | $0.00 | $0.00 | $0.00 | $0.36 |
| 2026 | 7442 | COROADS - COUNTY ROADS (ROADS, DIV TO CE) | $4.80 | $4.79 | $0.00 | $0.00 | $0.00 | $9.59 |
| 2026 | 7442 | PORTPT - PORT DISTRICT | $2.41 | $2.39 | $0.00 | $0.00 | $0.00 | $4.80 |
| 2026 | 7442 | PUD1 - PUD #1 | $0.39 | $0.38 | $0.00 | $0.00 | $0.00 | $0.77 |
| 2026 | 7442 | LIB1 - LIBRARY DIST #1 | $1.86 | $1.85 | $0.00 | $0.00 | $0.00 | $3.71 |
| 2026 | 7442 | HD2 - HOSP DIST #2 | $0.35 | $0.34 | $0.00 | $0.00 | $0.00 | $0.69 |
| 2026 | 7442 | SD48 - SCHOOL DIST #48 | $9.14 | $9.13 | $0.00 | $0.00 | $0.00 | $18.27 |
| 2026 | 7442 | FD2 - FIRE DISTRICT #2 | $4.89 | $4.88 | $0.00 | $0.00 | $0.00 | $9.77 |
| 2026 | 7442 | EMS2 - FIRE DIST #2 EMS | $2.75 | $2.75 | $0.00 | $0.00 | $0.00 | $5.50 |
| 2026 | 7442 | CEM2 - CEMETERY DIST #2 | $0.16 | $0.15 | $0.00 | $0.00 | $0.00 | $0.31 |
| 2026 | 7442 | FPLCA - DNR Landowner Contingency Assmt | $3.00 | $3.00 | $0.00 | $0.00 | $0.00 | $6.00 |
| 2026 | 7442 | JCCD - JC Conservation District | $2.53 | $2.53 | $0.00 | $0.00 | $0.00 | $5.06 |
| 2026 | 7442 | NWA - Noxious Weed Assessment | $2.98 | $2.97 | $0.00 | $0.00 | $0.00 | $5.95 |
| 2026 | 7442 | WAT - Clean Water District | $13.00 | $13.00 | $0.00 | $0.00 | $0.00 | $26.00 |
| 2026 | 7442 | TOTAL: | $69.29 | $69.14 | $0.00 | $0.00 | $0.00 | $138.43 |
|
| 2026 | 7442 | $69.29 | $69.14 | $0.00 | $0.00 | $0.00 | $138.43 |
Statement Details |
| 2025 | 7463 | STATE - STATE LEVY (SCHOOL) | $14.84 | $14.83 | $3.26 | $3.26 | $0.00 | $36.19 |
| 2025 | 7463 | COUNTY - COUNTY LEVIES (CE, DD, VET, MH) | $5.86 | $5.82 | $1.29 | $1.29 | $0.00 | $14.26 |
| 2025 | 7463 | CONSERVE - CONSERVATION FUTURES | $0.18 | $0.17 | $0.04 | $0.04 | $0.00 | $0.43 |
| 2025 | 7463 | COROADS - COUNTY ROADS (ROADS, DIV TO CE) | $4.68 | $4.67 | $1.03 | $1.03 | $0.00 | $11.41 |
| 2025 | 7463 | PORTPT - PORT DISTRICT | $2.38 | $2.38 | $0.53 | $0.53 | $0.00 | $5.82 |
| 2025 | 7463 | PUD1 - PUD #1 | $0.38 | $0.38 | $0.08 | $0.08 | $0.00 | $0.92 |
| 2025 | 7463 | LIB1 - LIBRARY DIST #1 | $1.81 | $1.81 | $0.40 | $0.40 | $0.00 | $4.42 |
| 2025 | 7463 | HD2 - HOSP DIST #2 | $0.34 | $0.34 | $0.07 | $0.07 | $0.00 | $0.82 |
| 2025 | 7463 | SD48 - SCHOOL DIST #48 | $8.74 | $8.74 | $1.92 | $1.92 | $0.00 | $21.32 |
| 2025 | 7463 | FD2 - FIRE DISTRICT #2 | $4.83 | $4.82 | $1.06 | $1.06 | $0.00 | $11.77 |
| 2025 | 7463 | EMS2 - FIRE DIST #2 EMS | $2.72 | $2.71 | $0.59 | $0.60 | $0.00 | $6.62 |
| 2025 | 7463 | CEM2 - CEMETERY DIST #2 | $0.16 | $0.15 | $0.03 | $0.03 | $0.00 | $0.37 |
| 2025 | 7463 | FPLCA - DNR Landowner Contingency Assmt | $3.00 | $3.00 | $0.66 | $0.66 | $0.00 | $7.32 |
| 2025 | 7463 | JCCD - JC Conservation District | $2.53 | $2.53 | $0.55 | $0.56 | $0.00 | $6.17 |
| 2025 | 7463 | NWA - Noxious Weed Assessment | $2.15 | $2.15 | $0.47 | $0.47 | $0.00 | $5.24 |
| 2025 | 7463 | WAT - Clean Water District | $13.00 | $13.00 | $2.86 | $2.86 | $0.00 | $31.72 |
| 2025 | 7463 | TOTAL: | $67.60 | $67.50 | $14.84 | $14.86 | $0.00 | $164.80 |
|
| 2025 | 7463 | $67.60 | $67.50 | $14.84 | $14.86 | $0.00 | $164.80 |
Statement Details |
| 2024 | 7486 | STATE - STATE LEVY (SCHOOL) | $13.67 | $13.66 | $1.09 | $2.32 | $13.67 | $17.07 |
| 2024 | 7486 | COUNTY - COUNTY LEVIES (CE, DD, VET, MH) | $5.87 | $5.84 | $0.46 | $1.01 | $5.87 | $7.31 |
| 2024 | 7486 | CONSERVE - CONSERVATION FUTURES | $0.18 | $0.17 | $0.01 | $0.03 | $0.18 | $0.21 |
| 2024 | 7486 | COROADS - COUNTY ROADS (ROADS, DIV TO CE) | $4.71 | $4.70 | $0.38 | $0.80 | $4.71 | $5.88 |
| 2024 | 7486 | PORTPT - PORT DISTRICT | $2.42 | $2.41 | $0.20 | $0.41 | $2.42 | $3.02 |
| 2024 | 7486 | PUD1 - PUD #1 | $0.39 | $0.38 | $0.03 | $0.06 | $0.39 | $0.47 |
| 2024 | 7486 | LIB1 - LIBRARY DIST #1 | $1.82 | $1.82 | $0.15 | $0.31 | $1.82 | $2.28 |
| 2024 | 7486 | HD2 - HOSP DIST #2 | $0.34 | $0.34 | $0.03 | $0.06 | $0.34 | $0.43 |
| 2024 | 7486 | SD48 - SCHOOL DIST #48 | $6.12 | $6.12 | $0.49 | $1.04 | $6.12 | $7.65 |
| 2024 | 7486 | FD2 - FIRE DISTRICT #2 | $4.86 | $4.86 | $0.39 | $0.83 | $4.86 | $6.08 |
| 2024 | 7486 | EMS2 - FIRE DIST #2 EMS | $2.74 | $2.73 | $0.22 | $0.46 | $2.74 | $3.41 |
| 2024 | 7486 | CEM2 - CEMETERY DIST #2 | $0.16 | $0.15 | $0.01 | $0.03 | $0.16 | $0.19 |
| 2024 | 7486 | FPLCA - DNR Landowner Contingency Assmt | $3.00 | $3.00 | $0.24 | $0.51 | $3.00 | $3.75 |
| 2024 | 7486 | JCCD - JC Conservation District | $2.53 | $2.53 | $0.20 | $0.43 | $2.53 | $3.16 |
| 2024 | 7486 | NWA - Noxious Weed Assessment | $2.15 | $2.15 | $0.17 | $0.37 | $2.15 | $2.69 |
| 2024 | 7486 | WAT - Clean Water District | $12.50 | $12.50 | $1.00 | $2.12 | $12.50 | $15.62 |
| 2024 | 7486 | TOTAL: | $63.46 | $63.36 | $5.07 | $10.79 | $63.46 | $79.22 |
|
| 2024 | 7486 | $63.46 | $63.36 | $5.07 | $10.79 | $63.46 | $79.22 |
Statement Details |
| 2023 | 7500 | STATE - STATE LEVY (SCHOOL) | $13.25 | $13.23 | $0.00 | $0.00 | $26.48 | $0.00 |
| 2023 | 7500 | COUNTY - COUNTY LEVIES (CE, DD, VET, MH) | $5.80 | $5.77 | $0.00 | $0.00 | $11.57 | $0.00 |
| 2023 | 7500 | CONSERVE - CONSERVATION FUTURES | $0.18 | $0.17 | $0.00 | $0.00 | $0.35 | $0.00 |
| 2023 | 7500 | COROADS - COUNTY ROADS (ROADS, DIV TO CE) | $4.68 | $4.67 | $0.00 | $0.00 | $9.35 | $0.00 |
| 2023 | 7500 | PORTPT - PORT DISTRICT | $2.44 | $2.43 | $0.00 | $0.00 | $4.87 | $0.00 |
| 2023 | 7500 | PUD1 - PUD #1 | $0.39 | $0.38 | $0.00 | $0.00 | $0.77 | $0.00 |
| 2023 | 7500 | LIB1 - LIBRARY DIST #1 | $1.81 | $1.81 | $0.00 | $0.00 | $3.62 | $0.00 |
| 2023 | 7500 | HD2 - HOSP DIST #2 | $0.34 | $0.33 | $0.00 | $0.00 | $0.67 | $0.00 |
| 2023 | 7500 | SD48 - SCHOOL DIST #48 | $6.40 | $6.39 | $0.00 | $0.00 | $12.79 | $0.00 |
| 2023 | 7500 | FD2 - FIRE DISTRICT #2 | $5.02 | $5.01 | $0.00 | $0.00 | $10.03 | $0.00 |
| 2023 | 7500 | EMS2 - FIRE DIST #2 EMS | $2.82 | $2.81 | $0.00 | $0.00 | $5.63 | $0.00 |
| 2023 | 7500 | CEM2 - CEMETERY DIST #2 | $0.16 | $0.16 | $0.00 | $0.00 | $0.32 | $0.00 |
| 2023 | 7500 | FPLCA - DNR Landowner Contingency Assmt | $3.00 | $3.00 | $0.00 | $0.00 | $6.00 | $0.00 |
| 2023 | 7500 | JCCD - JC Conservation District | $2.53 | $2.53 | $0.00 | $0.00 | $5.06 | $0.00 |
| 2023 | 7500 | NWA - Noxious Weed Assessment | $2.15 | $2.15 | $0.00 | $0.00 | $4.30 | $0.00 |
| 2023 | 7500 | WAT - Clean Water District | $12.00 | $12.00 | $0.00 | $0.00 | $24.00 | $0.00 |
| 2023 | 7500 | TOTAL: | $62.97 | $62.84 | $0.00 | $0.00 | $125.81 | $0.00 |
|
| 2023 | 7500 | $62.97 | $62.84 | $0.00 | $0.00 | $125.81 | $0.00 |
Values
| (+) Improvement Homesite Value: | + | $0 | |
| (+) Improvement Non-Homesite Value: | + | $0 | |
| (+) Land Homesite Value: | + | $0 | |
| (+) Land Non-Homesite Value: | + | $12,938 | |
| (+) Curr Use (HS): | + | $0 | $0 |
| (+) Curr Use (NHS): | + | $0 | $0 |
| | | -------------------------- | |
| (=) Market Value: | = | $12,938 | |
| (–) Productivity Loss: | – | $0 | |
| | | -------------------------- | |
| (=) Subtotal: | = | $12,938 | |
| (+) Senior Appraised Value: | + | $0 | |
| (+) Non-Senior Appraised Value: | + | $12,938 | |
| | | -------------------------- | |
| (=) Total Appraised Value: | = | $12,938 | |
| (–) Senior Exemption Loss: | – | $0 | |
| (–) Exemption Loss: | – | $0 | |
| | | -------------------------- | |
| (=) Taxable Value: | = | $12,938 | |
Taxing Jurisdiction
| Owner: | DYLAN BRACKNEY | | |
| % Ownership: | 100.0000000000% | | |
| Total Value: | N/A | | |
| Tax Area: | 0324 - 1-48F2E2H2C2L1Z3 |
| CE | COUNTY CURRENT EXPENSE | N/A | N/A | N/A | N/A | | |
| CNTYDD | DEVELOPMENTAL DISABILITIES | N/A | N/A | N/A | N/A | | |
| CNTYVET | VETERANS RELIEF | N/A | N/A | N/A | N/A | | |
| MENTAL | MENTAL HEALTH | N/A | N/A | N/A | N/A | | |
| ROADS | COUNTY ROADS | N/A | N/A | N/A | N/A | | |
| HOSP2CASH | HOSP DIST #2 GENERAL | N/A | N/A | N/A | N/A | | |
| SCH48MO | SCHOOL DIST #48 EP & O | N/A | N/A | N/A | N/A | | |
| CEM2 | CEMETERY DIST #2 GENERAL | N/A | N/A | N/A | N/A | | |
| CONSERVE | CONSERVATION FUTURES | N/A | N/A | N/A | N/A | | |
| FD2 | FIRE DIST #2 GENERAL | N/A | N/A | N/A | N/A | | |
| LIB1 | LIBRARY DIST #1 GENERAL | N/A | N/A | N/A | N/A | | |
| PORTPT | PORT OF PT GENERAL | N/A | N/A | N/A | N/A | | |
| PORTPTIDD | PORT OF PT IDD 2019 | N/A | N/A | N/A | N/A | | |
| PUD1 | PUD #1 GENERAL | N/A | N/A | N/A | N/A | | |
| STATE | STATE SCHOOL PART 1 | N/A | N/A | N/A | N/A | | |
| STATE2 | STATE SCHOOL PART 2 | N/A | N/A | N/A | N/A | | |
| EMS2 | FIRE DIST #2 EMS | N/A | N/A | N/A | N/A | | |
| | Total Tax Rate: | N/A | | | | | |
| | | | | Taxes w/Current Exemptions: | N/A | | |
| | | | | Taxes w/o Exemptions: | N/A | | |
Improvement / Building
Sketch
| No sketches available for this property. |
Property Image
Land
| 1 | 2510-1375S | | 0.0000 | 0.00 | 0.00 | 0.00 | 1.00 | $12,938 | $0 |
Roll Value History
| 2026 | N/A | N/A | N/A | N/A | N/A |
| 2025 | $0 | $12,938 | $0 | $12,938 | $12,938 |
| 2024 | $0 | $12,375 | $0 | $12,375 | $12,375 |
| 2023 | $0 | $11,813 | $0 | $11,813 | $11,813 |
| 2022 | $0 | $11,250 | $0 | $11,250 | $11,250 |
Deed and Sales History
| 1 | 08/12/2022 | SWD | Statutory Warranty Deed | DAN ULVILA | DYLAN BRACKNEY | | | $7,000.00 | 139641 | |
|   | |
| 2 | 10/28/1997 | SWD | Statutory Warranty Deed | ROLLINS, JOYCE M | ULVILA, DAN/SUSAN | 0 | 0 | $74,000.00 | 83123 | 0 |
|   | |
Payout Agreement
| No payout information available.. |