Property
Account |
| Property ID: | 17909 | Abbreviated Legal Description: | S2 T27 R2W TX 11 |
| Parcel # / Geo ID: | 702021011 | Agent Code: | |
| Type: | Real | | |
| Tax Area: | 0324 - 1-48F2E2H2C2L1Z3 | Land Use Code | 91 |
| Open Space: | N | DFL | N |
| Historic Property: | N | Remodel Property: | N |
| Multi-Family Redevelopment: | N | | |
| Township: | 27N | Section: | 2 |
| Range: | 2W |
Location |
| Address: | | Mapsco: | 155/022 |
| Neighborhood: | S1 & S2 T27N R2W | Map ID: | |
| Neighborhood CD: | 2510 |
Owner |
| Name: | DYLAN BRACKNEY | Owner ID: | 93125 |
| Mailing Address: | 3251 LELAND VALLEY RD W QUILCENE, WA 98376 | % Ownership: | 100.0000000000% |
| | | Exemptions: | |
Pay Tax Due
Select the appropriate checkbox next to the year to be paid. Multiple years may be selected.
*Convenience Fee not included
Taxes and Assessment Details
Property Tax Information as of
03/12/2026
Click on "Statement Details" to expand or collapse a tax statement.
* Please enter a valid date ** Please enter a valid date *
Statement Details |
| 2026 | 7446 | STATE - STATE LEVY (SCHOOL) | $11.90 | $11.89 | $0.00 | $0.00 | $0.00 | $23.79 |
| 2026 | 7446 | COUNTY - COUNTY LEVIES (CE, DD, VET, MH) | $4.77 | $4.73 | $0.00 | $0.00 | $0.00 | $9.50 |
| 2026 | 7446 | CONSERVE - CONSERVATION FUTURES | $0.15 | $0.14 | $0.00 | $0.00 | $0.00 | $0.29 |
| 2026 | 7446 | COROADS - COUNTY ROADS (ROADS, DIV TO CE) | $3.84 | $3.83 | $0.00 | $0.00 | $0.00 | $7.67 |
| 2026 | 7446 | PORTPT - PORT DISTRICT | $1.93 | $1.91 | $0.00 | $0.00 | $0.00 | $3.84 |
| 2026 | 7446 | PUD1 - PUD #1 | $0.31 | $0.31 | $0.00 | $0.00 | $0.00 | $0.62 |
| 2026 | 7446 | LIB1 - LIBRARY DIST #1 | $1.49 | $1.48 | $0.00 | $0.00 | $0.00 | $2.97 |
| 2026 | 7446 | HD2 - HOSP DIST #2 | $0.28 | $0.27 | $0.00 | $0.00 | $0.00 | $0.55 |
| 2026 | 7446 | SD48 - SCHOOL DIST #48 | $7.31 | $7.30 | $0.00 | $0.00 | $0.00 | $14.61 |
| 2026 | 7446 | FD2 - FIRE DISTRICT #2 | $3.91 | $3.90 | $0.00 | $0.00 | $0.00 | $7.81 |
| 2026 | 7446 | EMS2 - FIRE DIST #2 EMS | $2.20 | $2.20 | $0.00 | $0.00 | $0.00 | $4.40 |
| 2026 | 7446 | CEM2 - CEMETERY DIST #2 | $0.13 | $0.12 | $0.00 | $0.00 | $0.00 | $0.25 |
| 2026 | 7446 | FPLCA - DNR Landowner Contingency Assmt | $3.00 | $3.00 | $0.00 | $0.00 | $0.00 | $6.00 |
| 2026 | 7446 | JCCD - JC Conservation District | $2.53 | $2.53 | $0.00 | $0.00 | $0.00 | $5.06 |
| 2026 | 7446 | NWA - Noxious Weed Assessment | $2.98 | $2.97 | $0.00 | $0.00 | $0.00 | $5.95 |
| 2026 | 7446 | WAT - Clean Water District | $13.00 | $13.00 | $0.00 | $0.00 | $0.00 | $26.00 |
| 2026 | 7446 | TOTAL: | $59.73 | $59.58 | $0.00 | $0.00 | $0.00 | $119.31 |
|
| 2026 | 7446 | $59.73 | $59.58 | $0.00 | $0.00 | $0.00 | $119.31 |
Statement Details |
| 2025 | 7467 | STATE - STATE LEVY (SCHOOL) | $11.88 | $11.86 | $2.60 | $2.61 | $0.00 | $28.95 |
| 2025 | 7467 | COUNTY - COUNTY LEVIES (CE, DD, VET, MH) | $4.68 | $4.65 | $1.01 | $1.04 | $0.00 | $11.38 |
| 2025 | 7467 | CONSERVE - CONSERVATION FUTURES | $0.14 | $0.14 | $0.03 | $0.03 | $0.00 | $0.34 |
| 2025 | 7467 | COROADS - COUNTY ROADS (ROADS, DIV TO CE) | $3.75 | $3.73 | $0.82 | $0.82 | $0.00 | $9.12 |
| 2025 | 7467 | PORTPT - PORT DISTRICT | $1.91 | $1.90 | $0.41 | $0.42 | $0.00 | $4.64 |
| 2025 | 7467 | PUD1 - PUD #1 | $0.31 | $0.30 | $0.07 | $0.07 | $0.00 | $0.75 |
| 2025 | 7467 | LIB1 - LIBRARY DIST #1 | $1.45 | $1.44 | $0.32 | $0.32 | $0.00 | $3.53 |
| 2025 | 7467 | HD2 - HOSP DIST #2 | $0.27 | $0.27 | $0.06 | $0.06 | $0.00 | $0.66 |
| 2025 | 7467 | SD48 - SCHOOL DIST #48 | $6.99 | $6.99 | $1.54 | $1.54 | $0.00 | $17.06 |
| 2025 | 7467 | FD2 - FIRE DISTRICT #2 | $3.86 | $3.86 | $0.85 | $0.85 | $0.00 | $9.42 |
| 2025 | 7467 | EMS2 - FIRE DIST #2 EMS | $2.18 | $2.17 | $0.48 | $0.48 | $0.00 | $5.31 |
| 2025 | 7467 | CEM2 - CEMETERY DIST #2 | $0.13 | $0.12 | $0.03 | $0.03 | $0.00 | $0.31 |
| 2025 | 7467 | FPLCA - DNR Landowner Contingency Assmt | $3.00 | $3.00 | $0.66 | $0.66 | $0.00 | $7.32 |
| 2025 | 7467 | JCCD - JC Conservation District | $2.53 | $2.53 | $0.55 | $0.56 | $0.00 | $6.17 |
| 2025 | 7467 | NWA - Noxious Weed Assessment | $2.15 | $2.15 | $0.47 | $0.47 | $0.00 | $5.24 |
| 2025 | 7467 | WAT - Clean Water District | $13.00 | $13.00 | $2.86 | $2.86 | $0.00 | $31.72 |
| 2025 | 7467 | TOTAL: | $58.23 | $58.11 | $12.76 | $12.82 | $0.00 | $141.92 |
|
| 2025 | 7467 | $58.23 | $58.11 | $12.76 | $12.82 | $0.00 | $141.92 |
Statement Details |
| 2024 | 7490 | STATE - STATE LEVY (SCHOOL) | $10.94 | $10.92 | $0.87 | $1.86 | $10.94 | $13.65 |
| 2024 | 7490 | COUNTY - COUNTY LEVIES (CE, DD, VET, MH) | $4.69 | $4.66 | $0.37 | $0.78 | $4.69 | $5.81 |
| 2024 | 7490 | CONSERVE - CONSERVATION FUTURES | $0.14 | $0.14 | $0.01 | $0.02 | $0.14 | $0.17 |
| 2024 | 7490 | COROADS - COUNTY ROADS (ROADS, DIV TO CE) | $3.77 | $3.76 | $0.30 | $0.64 | $3.77 | $4.70 |
| 2024 | 7490 | PORTPT - PORT DISTRICT | $1.94 | $1.93 | $0.16 | $0.33 | $1.94 | $2.42 |
| 2024 | 7490 | PUD1 - PUD #1 | $0.31 | $0.30 | $0.02 | $0.05 | $0.31 | $0.37 |
| 2024 | 7490 | LIB1 - LIBRARY DIST #1 | $1.46 | $1.45 | $0.12 | $0.25 | $1.46 | $1.82 |
| 2024 | 7490 | HD2 - HOSP DIST #2 | $0.28 | $0.27 | $0.02 | $0.05 | $0.28 | $0.34 |
| 2024 | 7490 | SD48 - SCHOOL DIST #48 | $4.90 | $4.89 | $0.39 | $0.83 | $4.90 | $6.11 |
| 2024 | 7490 | FD2 - FIRE DISTRICT #2 | $3.89 | $3.89 | $0.31 | $0.66 | $3.89 | $4.86 |
| 2024 | 7490 | EMS2 - FIRE DIST #2 EMS | $2.19 | $2.19 | $0.18 | $0.37 | $2.19 | $2.74 |
| 2024 | 7490 | CEM2 - CEMETERY DIST #2 | $0.13 | $0.12 | $0.01 | $0.02 | $0.13 | $0.15 |
| 2024 | 7490 | FPLCA - DNR Landowner Contingency Assmt | $3.00 | $3.00 | $0.24 | $0.51 | $3.00 | $3.75 |
| 2024 | 7490 | JCCD - JC Conservation District | $2.53 | $2.53 | $0.20 | $0.43 | $2.53 | $3.16 |
| 2024 | 7490 | NWA - Noxious Weed Assessment | $2.15 | $2.15 | $0.17 | $0.37 | $2.15 | $2.69 |
| 2024 | 7490 | WAT - Clean Water District | $12.50 | $12.50 | $1.00 | $2.12 | $12.50 | $15.62 |
| 2024 | 7490 | TOTAL: | $54.82 | $54.70 | $4.37 | $9.29 | $54.82 | $68.36 |
|
| 2024 | 7490 | $54.82 | $54.70 | $4.37 | $9.29 | $54.82 | $68.36 |
Statement Details |
| 2023 | 7504 | STATE - STATE LEVY (SCHOOL) | $10.59 | $10.59 | $0.00 | $0.00 | $21.18 | $0.00 |
| 2023 | 7504 | COUNTY - COUNTY LEVIES (CE, DD, VET, MH) | $4.64 | $4.60 | $0.00 | $0.00 | $9.24 | $0.00 |
| 2023 | 7504 | CONSERVE - CONSERVATION FUTURES | $0.14 | $0.14 | $0.00 | $0.00 | $0.28 | $0.00 |
| 2023 | 7504 | COROADS - COUNTY ROADS (ROADS, DIV TO CE) | $3.74 | $3.74 | $0.00 | $0.00 | $7.48 | $0.00 |
| 2023 | 7504 | PORTPT - PORT DISTRICT | $1.95 | $1.94 | $0.00 | $0.00 | $3.89 | $0.00 |
| 2023 | 7504 | PUD1 - PUD #1 | $0.31 | $0.30 | $0.00 | $0.00 | $0.61 | $0.00 |
| 2023 | 7504 | LIB1 - LIBRARY DIST #1 | $1.45 | $1.44 | $0.00 | $0.00 | $2.89 | $0.00 |
| 2023 | 7504 | HD2 - HOSP DIST #2 | $0.28 | $0.26 | $0.00 | $0.00 | $0.54 | $0.00 |
| 2023 | 7504 | SD48 - SCHOOL DIST #48 | $5.12 | $5.11 | $0.00 | $0.00 | $10.23 | $0.00 |
| 2023 | 7504 | FD2 - FIRE DISTRICT #2 | $4.02 | $4.01 | $0.00 | $0.00 | $8.03 | $0.00 |
| 2023 | 7504 | EMS2 - FIRE DIST #2 EMS | $2.25 | $2.25 | $0.00 | $0.00 | $4.50 | $0.00 |
| 2023 | 7504 | CEM2 - CEMETERY DIST #2 | $0.13 | $0.13 | $0.00 | $0.00 | $0.26 | $0.00 |
| 2023 | 7504 | FPLCA - DNR Landowner Contingency Assmt | $3.00 | $3.00 | $0.00 | $0.00 | $6.00 | $0.00 |
| 2023 | 7504 | JCCD - JC Conservation District | $2.53 | $2.53 | $0.00 | $0.00 | $5.06 | $0.00 |
| 2023 | 7504 | NWA - Noxious Weed Assessment | $2.15 | $2.15 | $0.00 | $0.00 | $4.30 | $0.00 |
| 2023 | 7504 | WAT - Clean Water District | $12.00 | $12.00 | $0.00 | $0.00 | $24.00 | $0.00 |
| 2023 | 7504 | TOTAL: | $54.30 | $54.19 | $0.00 | $0.00 | $108.49 | $0.00 |
|
| 2023 | 7504 | $54.30 | $54.19 | $0.00 | $0.00 | $108.49 | $0.00 |
Values
| (+) Improvement Homesite Value: | + | $0 | |
| (+) Improvement Non-Homesite Value: | + | $0 | |
| (+) Land Homesite Value: | + | $0 | |
| (+) Land Non-Homesite Value: | + | $10,350 | |
| (+) Curr Use (HS): | + | $0 | $0 |
| (+) Curr Use (NHS): | + | $0 | $0 |
| | | -------------------------- | |
| (=) Market Value: | = | $10,350 | |
| (–) Productivity Loss: | – | $0 | |
| | | -------------------------- | |
| (=) Subtotal: | = | $10,350 | |
| (+) Senior Appraised Value: | + | $0 | |
| (+) Non-Senior Appraised Value: | + | $10,350 | |
| | | -------------------------- | |
| (=) Total Appraised Value: | = | $10,350 | |
| (–) Senior Exemption Loss: | – | $0 | |
| (–) Exemption Loss: | – | $0 | |
| | | -------------------------- | |
| (=) Taxable Value: | = | $10,350 | |
Taxing Jurisdiction
| Owner: | DYLAN BRACKNEY | | |
| % Ownership: | 100.0000000000% | | |
| Total Value: | $10,350 | | |
| Tax Area: | 0324 - 1-48F2E2H2C2L1Z3 |
| CE | COUNTY CURRENT EXPENSE | 0.9034619479 | $10,350 | $10,350 | $9.35 | | |
| CNTYDD | DEVELOPMENTAL DISABILITIES | 0.0052121823 | $10,350 | $10,350 | $0.05 | | |
| CNTYVET | VETERANS RELIEF | 0.0052777810 | $10,350 | $10,350 | $0.05 | | |
| MENTAL | MENTAL HEALTH | 0.0052121823 | $10,350 | $10,350 | $0.05 | | |
| ROADS | COUNTY ROADS | 0.7415066410 | $10,350 | $10,350 | $7.67 | | |
| ROADSCU | COUNTY ROADS TO CUR EXP | 0.0000000000 | $10,350 | $10,350 | $0.00 | | |
| HOSP2CASH | HOSP DIST #2 GENERAL | 0.0536075306 | $10,350 | $10,350 | $0.55 | | |
| SCH48MO | SCHOOL DIST #48 EP & O | 1.4120478917 | $10,350 | $10,350 | $14.61 | | |
| CEM2 | CEMETERY DIST #2 GENERAL | 0.0241266154 | $10,350 | $10,350 | $0.25 | | |
| CONSERVE | CONSERVATION FUTURES | 0.0275621078 | $10,350 | $10,350 | $0.29 | | |
| FD2 | FIRE DIST #2 GENERAL | 0.7549976873 | $10,350 | $10,350 | $7.81 | | |
| LIB1 | LIBRARY DIST #1 GENERAL | 0.2868827388 | $10,350 | $10,350 | $2.97 | | |
| PORTPT | PORT OF PT GENERAL | 0.1134941229 | $10,350 | $10,350 | $1.17 | | |
| PORTPTIDD | PORT OF PT IDD 2019 | 0.2577346692 | $10,350 | $10,350 | $2.67 | | |
| PUD1 | PUD #1 GENERAL | 0.0597888892 | $10,350 | $10,350 | $0.62 | | |
| STATE | STATE SCHOOL PART 1 | 1.4940692947 | $10,350 | $10,350 | $15.46 | | |
| STATE2 | STATE SCHOOL PART 2 | 0.8050170049 | $10,350 | $10,350 | $8.33 | | |
| EMS2 | FIRE DIST #2 EMS | 0.4251727858 | $10,350 | $10,350 | $4.40 | | |
| | Total Tax Rate: | 7.3751720728 | | | | | |
| | | | | Taxes w/Current Exemptions: | $76.30 | | |
| | | | | Taxes w/o Exemptions: | $76.30 | | |
Improvement / Building
Sketch
| No sketches available for this property. |
Property Image
Land
| 1 | 2510-1375S | | 0.0000 | 0.00 | 0.00 | 0.00 | 1.00 | $10,350 | $0 |
Roll Value History
| 2026 | N/A | N/A | N/A | N/A | N/A |
| 2025 | $0 | $10,350 | $0 | $10,350 | $10,350 |
| 2024 | $0 | $9,900 | $0 | $9,900 | $9,900 |
| 2023 | $0 | $9,450 | $0 | $9,450 | $9,450 |
| 2022 | $0 | $9,000 | $0 | $9,000 | $9,000 |
Deed and Sales History
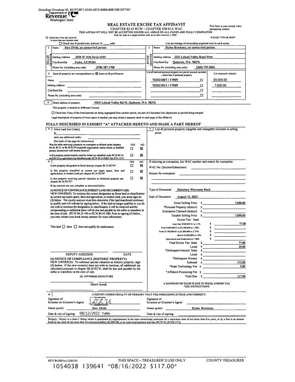
| 1 | 08/12/2022 | SWD | Statutory Warranty Deed | DAN ULVILA | DYLAN BRACKNEY | | | $7,000.00 | 139641 | |
|   | |
| 2 | 10/28/1997 | SWD | Statutory Warranty Deed | ROLLINS, JOYCE M | ULVILA, DAN/SUSAN | 0 | 0 | $74,000.00 | 83123 | 0 |
|   | |
Payout Agreement
| No payout information available.. |