Property
Account |
| Property ID: | 17933 | Abbreviated Legal Description: | S2 T27 R2W S1/2 SE(E'LY OF CREEK & ST HWY) LESS TAX 4 |
| Parcel # / Geo ID: | 702024008 | Agent Code: | |
| Type: | Real | | |
| Tax Area: | 0324 - 1-48F2E2H2C2L1Z3 | Land Use Code | 11 |
| Open Space: | N | DFL | N |
| Historic Property: | N | Remodel Property: | N |
| Multi-Family Redevelopment: | N | | |
| Township: | 27N | Section: | 2 |
| Range: | 2W |
Location |
| Address: | 292465 HIGHWAY 101 QUILCENE, WA 98376 | Mapsco: | 155/010 |
| Neighborhood: | S1 & S2 T27N R2W | Map ID: | |
| Neighborhood CD: | 2510 |
Owner |
| Name: | JARRED & SANDY DEGRAW | Owner ID: | 104771 |
| Mailing Address: | PO BOX 444 QUILCENE, WA 98376 | % Ownership: | 100.0000000000% |
| | | Exemptions: | |
Pay Tax Due
Select the appropriate checkbox next to the year to be paid. Multiple years may be selected.
*Convenience Fee not included
Taxes and Assessment Details
Property Tax Information as of
03/10/2026
Click on "Statement Details" to expand or collapse a tax statement.
* Please enter a valid date ** Please enter a valid date *
Statement Details |
| 2026 | 7470 | STATE - STATE LEVY (SCHOOL) | $910.68 | $910.67 | $0.00 | $0.00 | $0.00 | $1821.35 |
| 2026 | 7470 | COUNTY - COUNTY LEVIES (CE, DD, VET, MH) | $364.10 | $364.07 | $0.00 | $0.00 | $0.00 | $728.17 |
| 2026 | 7470 | CONSERVE - CONSERVATION FUTURES | $10.92 | $10.91 | $0.00 | $0.00 | $0.00 | $21.83 |
| 2026 | 7470 | COROADS - COUNTY ROADS (ROADS, DIV TO CE) | $293.71 | $293.71 | $0.00 | $0.00 | $0.00 | $587.42 |
| 2026 | 7470 | PORTPT - PORT DISTRICT | $147.05 | $147.04 | $0.00 | $0.00 | $0.00 | $294.09 |
| 2026 | 7470 | PUD1 - PUD #1 | $23.68 | $23.68 | $0.00 | $0.00 | $0.00 | $47.36 |
| 2026 | 7470 | LIB1 - LIBRARY DIST #1 | $113.64 | $113.63 | $0.00 | $0.00 | $0.00 | $227.27 |
| 2026 | 7470 | HD2 - HOSP DIST #2 | $21.24 | $21.23 | $0.00 | $0.00 | $0.00 | $42.47 |
| 2026 | 7470 | SD48 - SCHOOL DIST #48 | $559.32 | $559.31 | $0.00 | $0.00 | $0.00 | $1118.63 |
| 2026 | 7470 | FD2 - FIRE DISTRICT #2 | $299.06 | $299.05 | $0.00 | $0.00 | $0.00 | $598.11 |
| 2026 | 7470 | EMS2 - FIRE DIST #2 EMS | $168.41 | $168.41 | $0.00 | $0.00 | $0.00 | $336.82 |
| 2026 | 7470 | CEM2 - CEMETERY DIST #2 | $9.56 | $9.55 | $0.00 | $0.00 | $0.00 | $19.11 |
| 2026 | 7470 | FPLCA - DNR Landowner Contingency Assmt | $3.00 | $3.00 | $0.00 | $0.00 | $0.00 | $6.00 |
| 2026 | 7470 | JCCD - JC Conservation District | $2.75 | $2.75 | $0.00 | $0.00 | $0.00 | $5.50 |
| 2026 | 7470 | NWA - Noxious Weed Assessment | $3.88 | $3.87 | $0.00 | $0.00 | $0.00 | $7.75 |
| 2026 | 7470 | OSS - On Site Septic | $23.10 | $23.10 | $0.00 | $0.00 | $0.00 | $46.20 |
| 2026 | 7470 | WAT - Clean Water District | $13.00 | $13.00 | $0.00 | $0.00 | $0.00 | $26.00 |
| 2026 | 7470 | TOTAL: | $2967.10 | $2966.98 | $0.00 | $0.00 | $0.00 | $5934.08 |
|
| 2026 | 7470 | $2967.10 | $2966.98 | $0.00 | $0.00 | $0.00 | $5934.08 |
Statement Details |
| 2025 | 7491 | STATE - STATE LEVY (SCHOOL) | $909.95 | $909.93 | $0.00 | $0.00 | $1819.88 | $0.00 |
| 2025 | 7491 | COUNTY - COUNTY LEVIES (CE, DD, VET, MH) | $357.84 | $357.82 | $0.00 | $0.00 | $715.66 | $0.00 |
| 2025 | 7491 | CONSERVE - CONSERVATION FUTURES | $10.73 | $10.73 | $0.00 | $0.00 | $21.46 | $0.00 |
| 2025 | 7491 | COROADS - COUNTY ROADS (ROADS, DIV TO CE) | $286.68 | $286.68 | $0.00 | $0.00 | $573.36 | $0.00 |
| 2025 | 7491 | PORTPT - PORT DISTRICT | $146.02 | $146.01 | $0.00 | $0.00 | $292.03 | $0.00 |
| 2025 | 7491 | PUD1 - PUD #1 | $23.42 | $23.41 | $0.00 | $0.00 | $46.83 | $0.00 |
| 2025 | 7491 | LIB1 - LIBRARY DIST #1 | $110.92 | $110.91 | $0.00 | $0.00 | $221.83 | $0.00 |
| 2025 | 7491 | HD2 - HOSP DIST #2 | $20.88 | $20.87 | $0.00 | $0.00 | $41.75 | $0.00 |
| 2025 | 7491 | SD48 - SCHOOL DIST #48 | $535.84 | $535.84 | $0.00 | $0.00 | $1071.68 | $0.00 |
| 2025 | 7491 | FD2 - FIRE DISTRICT #2 | $295.85 | $295.85 | $0.00 | $0.00 | $591.70 | $0.00 |
| 2025 | 7491 | EMS2 - FIRE DIST #2 EMS | $166.59 | $166.58 | $0.00 | $0.00 | $333.17 | $0.00 |
| 2025 | 7491 | CEM2 - CEMETERY DIST #2 | $9.44 | $9.44 | $0.00 | $0.00 | $18.88 | $0.00 |
| 2025 | 7491 | FPLCA - DNR Landowner Contingency Assmt | $3.00 | $3.00 | $0.00 | $0.00 | $6.00 | $0.00 |
| 2025 | 7491 | JCCD - JC Conservation District | $2.75 | $2.75 | $0.00 | $0.00 | $5.50 | $0.00 |
| 2025 | 7491 | NWA - Noxious Weed Assessment | $2.75 | $2.75 | $0.00 | $0.00 | $5.50 | $0.00 |
| 2025 | 7491 | OSS - On Site Septic | $21.50 | $21.50 | $0.00 | $0.00 | $43.00 | $0.00 |
| 2025 | 7491 | WAT - Clean Water District | $13.00 | $13.00 | $0.00 | $0.00 | $26.00 | $0.00 |
| 2025 | 7491 | TOTAL: | $2917.16 | $2917.07 | $0.00 | $0.00 | $5834.23 | $0.00 |
|
| 2025 | 7491 | $2917.16 | $2917.07 | $0.00 | $0.00 | $5834.23 | $0.00 |
Statement Details |
| 2024 | 7514 | STATE - STATE LEVY (SCHOOL) | $830.96 | $830.96 | $0.00 | $0.00 | $1661.92 | $0.00 |
| 2024 | 7514 | COUNTY - COUNTY LEVIES (CE, DD, VET, MH) | $355.59 | $355.58 | $0.00 | $0.00 | $711.17 | $0.00 |
| 2024 | 7514 | CONSERVE - CONSERVATION FUTURES | $10.66 | $10.66 | $0.00 | $0.00 | $21.32 | $0.00 |
| 2024 | 7514 | COROADS - COUNTY ROADS (ROADS, DIV TO CE) | $286.12 | $286.12 | $0.00 | $0.00 | $572.24 | $0.00 |
| 2024 | 7514 | PORTPT - PORT DISTRICT | $146.88 | $146.86 | $0.00 | $0.00 | $293.74 | $0.00 |
| 2024 | 7514 | PUD1 - PUD #1 | $23.36 | $23.35 | $0.00 | $0.00 | $46.71 | $0.00 |
| 2024 | 7514 | LIB1 - LIBRARY DIST #1 | $110.70 | $110.70 | $0.00 | $0.00 | $221.40 | $0.00 |
| 2024 | 7514 | HD2 - HOSP DIST #2 | $20.75 | $20.74 | $0.00 | $0.00 | $41.49 | $0.00 |
| 2024 | 7514 | SD48 - SCHOOL DIST #48 | $372.18 | $372.17 | $0.00 | $0.00 | $744.35 | $0.00 |
| 2024 | 7514 | FD2 - FIRE DISTRICT #2 | $295.61 | $295.61 | $0.00 | $0.00 | $591.22 | $0.00 |
| 2024 | 7514 | EMS2 - FIRE DIST #2 EMS | $166.41 | $166.41 | $0.00 | $0.00 | $332.82 | $0.00 |
| 2024 | 7514 | CEM2 - CEMETERY DIST #2 | $9.46 | $9.46 | $0.00 | $0.00 | $18.92 | $0.00 |
| 2024 | 7514 | FPLCA - DNR Landowner Contingency Assmt | $3.00 | $3.00 | $0.00 | $0.00 | $6.00 | $0.00 |
| 2024 | 7514 | JCCD - JC Conservation District | $2.75 | $2.75 | $0.00 | $0.00 | $5.50 | $0.00 |
| 2024 | 7514 | NWA - Noxious Weed Assessment | $2.75 | $2.75 | $0.00 | $0.00 | $5.50 | $0.00 |
| 2024 | 7514 | OSS - On Site Septic | $21.00 | $21.00 | $0.00 | $0.00 | $42.00 | $0.00 |
| 2024 | 7514 | WAT - Clean Water District | $12.50 | $12.50 | $0.00 | $0.00 | $25.00 | $0.00 |
| 2024 | 7514 | TOTAL: | $2670.68 | $2670.62 | $0.00 | $0.00 | $5341.30 | $0.00 |
|
| 2024 | 7514 | $2670.68 | $2670.62 | $0.00 | $0.00 | $5341.30 | $0.00 |
Statement Details |
| 2023 | 7528 | STATE - STATE LEVY (SCHOOL) | $767.47 | $767.46 | $0.00 | $0.00 | $1534.93 | $0.00 |
| 2023 | 7528 | COUNTY - COUNTY LEVIES (CE, DD, VET, MH) | $334.90 | $334.89 | $0.00 | $0.00 | $669.79 | $0.00 |
| 2023 | 7528 | CONSERVE - CONSERVATION FUTURES | $10.04 | $10.04 | $0.00 | $0.00 | $20.08 | $0.00 |
| 2023 | 7528 | COROADS - COUNTY ROADS (ROADS, DIV TO CE) | $270.96 | $270.95 | $0.00 | $0.00 | $541.91 | $0.00 |
| 2023 | 7528 | PORTPT - PORT DISTRICT | $141.08 | $141.07 | $0.00 | $0.00 | $282.15 | $0.00 |
| 2023 | 7528 | PUD1 - PUD #1 | $22.20 | $22.20 | $0.00 | $0.00 | $44.40 | $0.00 |
| 2023 | 7528 | LIB1 - LIBRARY DIST #1 | $104.83 | $104.83 | $0.00 | $0.00 | $209.66 | $0.00 |
| 2023 | 7528 | HD2 - HOSP DIST #2 | $19.55 | $19.54 | $0.00 | $0.00 | $39.09 | $0.00 |
| 2023 | 7528 | SD48 - SCHOOL DIST #48 | $370.62 | $370.61 | $0.00 | $0.00 | $741.23 | $0.00 |
| 2023 | 7528 | FD2 - FIRE DISTRICT #2 | $290.70 | $290.70 | $0.00 | $0.00 | $581.40 | $0.00 |
| 2023 | 7528 | EMS2 - FIRE DIST #2 EMS | $163.00 | $163.00 | $0.00 | $0.00 | $326.00 | $0.00 |
| 2023 | 7528 | CEM2 - CEMETERY DIST #2 | $9.26 | $9.25 | $0.00 | $0.00 | $18.51 | $0.00 |
| 2023 | 7528 | FPLCA - DNR Landowner Contingency Assmt | $3.00 | $3.00 | $0.00 | $0.00 | $6.00 | $0.00 |
| 2023 | 7528 | JCCD - JC Conservation District | $2.75 | $2.75 | $0.00 | $0.00 | $5.50 | $0.00 |
| 2023 | 7528 | NWA - Noxious Weed Assessment | $2.75 | $2.75 | $0.00 | $0.00 | $5.50 | $0.00 |
| 2023 | 7528 | OSS - On Site Septic | $20.50 | $20.50 | $0.00 | $0.00 | $41.00 | $0.00 |
| 2023 | 7528 | WAT - Clean Water District | $12.00 | $12.00 | $0.00 | $0.00 | $24.00 | $0.00 |
| 2023 | 7528 | TOTAL: | $2545.61 | $2545.54 | $0.00 | $0.00 | $5091.15 | $0.00 |
|
| 2023 | 7528 | $2545.61 | $2545.54 | $0.00 | $0.00 | $5091.15 | $0.00 |
Values
| (+) Improvement Homesite Value: | + | $0 | |
| (+) Improvement Non-Homesite Value: | + | $634,470 | |
| (+) Land Homesite Value: | + | $0 | |
| (+) Land Non-Homesite Value: | + | $157,734 | |
| (+) Curr Use (HS): | + | $0 | $0 |
| (+) Curr Use (NHS): | + | $0 | $0 |
| | | -------------------------- | |
| (=) Market Value: | = | $792,204 | |
| (–) Productivity Loss: | – | $0 | |
| | | -------------------------- | |
| (=) Subtotal: | = | $792,204 | |
| (+) Senior Appraised Value: | + | $0 | |
| (+) Non-Senior Appraised Value: | + | $792,204 | |
| | | -------------------------- | |
| (=) Total Appraised Value: | = | $792,204 | |
| (–) Senior Exemption Loss: | – | $0 | |
| (–) Exemption Loss: | – | $0 | |
| | | -------------------------- | |
| (=) Taxable Value: | = | $792,204 | |
Taxing Jurisdiction
| Owner: | JARRED & SANDY DEGRAW | | |
| % Ownership: | 100.0000000000% | | |
| Total Value: | $792,204 | | |
| Tax Area: | 0324 - 1-48F2E2H2C2L1Z3 |
| CE | COUNTY CURRENT EXPENSE | 0.9034619479 | $792,204 | $792,204 | $715.73 | | |
| CNTYDD | DEVELOPMENTAL DISABILITIES | 0.0052121823 | $792,204 | $792,204 | $4.13 | | |
| CNTYVET | VETERANS RELIEF | 0.0052777810 | $792,204 | $792,204 | $4.18 | | |
| MENTAL | MENTAL HEALTH | 0.0052121823 | $792,204 | $792,204 | $4.13 | | |
| ROADS | COUNTY ROADS | 0.7415066410 | $792,204 | $792,204 | $587.42 | | |
| ROADSCU | COUNTY ROADS TO CUR EXP | 0.0000000000 | $792,204 | $792,204 | $0.00 | | |
| HOSP2CASH | HOSP DIST #2 GENERAL | 0.0536075306 | $792,204 | $792,204 | $42.47 | | |
| SCH48MO | SCHOOL DIST #48 EP & O | 1.4120478917 | $792,204 | $792,204 | $1,118.63 | | |
| CEM2 | CEMETERY DIST #2 GENERAL | 0.0241266154 | $792,204 | $792,204 | $19.11 | | |
| CONSERVE | CONSERVATION FUTURES | 0.0275621078 | $792,204 | $792,204 | $21.83 | | |
| FD2 | FIRE DIST #2 GENERAL | 0.7549976873 | $792,204 | $792,204 | $598.11 | | |
| LIB1 | LIBRARY DIST #1 GENERAL | 0.2868827388 | $792,204 | $792,204 | $227.27 | | |
| PORTPT | PORT OF PT GENERAL | 0.1134941229 | $792,204 | $792,204 | $89.91 | | |
| PORTPTIDD | PORT OF PT IDD 2019 | 0.2577346692 | $792,204 | $792,204 | $204.18 | | |
| PUD1 | PUD #1 GENERAL | 0.0597888892 | $792,204 | $792,204 | $47.36 | | |
| STATE | STATE SCHOOL PART 1 | 1.4940692947 | $792,204 | $792,204 | $1,183.61 | | |
| STATE2 | STATE SCHOOL PART 2 | 0.8050170049 | $792,204 | $792,204 | $637.74 | | |
| EMS2 | FIRE DIST #2 EMS | 0.4251727858 | $792,204 | $792,204 | $336.82 | | |
| | Total Tax Rate: | 7.3751720728 | | | | | |
| | | | | Taxes w/Current Exemptions: | $5,842.63 | | |
| | | | | Taxes w/o Exemptions: | $5,842.63 | | |
Improvement / Building
| Improvement #1: | Residential Bldg | State Code: | 11 | 2052.0 sqft | Value: | $634,470 |
| Bathrooms (#): | 1 (FULL) | Bathrooms (#): | 1 (HALF) | | Bedrooms (#): | 2 | Exterior Wall: | BL/VE | | Fireplace: | SIN 2-GOOD | Floor Construction: | FRAME | | Foundation: | CONPR | Heating/Cooling: | ELBB | | Roof Cover: | COMP |   |   |
|
| | Type | Description | Class CD | Sub Class CD | Year Built | Area |
| | MA | Main Area | 4+ | 1S | 1954 | 2052.0 |
| | HCPOR | House Concrete Porch | 4 | * | 1954 | 252.0 |
| | GDET | Detached Garage | 4 | 1S | 1954 | 633.0 |
| | BSMTF | House basement finished | 4 | * | 1954 | 820.8 |
| | BSMTU | House basement unfinished | 4 | * | 1954 | 1231.2 |
| | SHED | Shed (Table Not Dep) | 3 | * | 1954 | 0.0 |
Sketch
Property Image
Land
| 1 | 2510-1372S | | 1.0000 | 43560.00 | 0.00 | 0.00 | 1.00 | $126,500 | $0 |
| 2 | 1577A | | 3.8800 | 169012.80 | 0.00 | 0.00 | 0.00 | $31,234 | $0 |
Roll Value History
| 2026 | N/A | N/A | N/A | N/A | N/A |
| 2025 | $634,470 | $157,734 | $0 | $792,204 | $792,204 |
| 2024 | $608,034 | $150,876 | $0 | $758,910 | $758,910 |
| 2023 | $581,598 | $136,731 | $0 | $718,329 | $718,329 |
| 2022 | $528,725 | $123,280 | $0 | $652,005 | $652,005 |
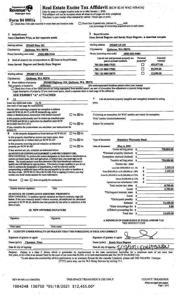
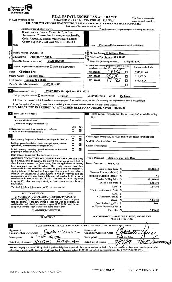
Deed and Sales History
| 1 | 05/06/2021 | SWD | Statutory Warranty Deed | CHARLOTTE PRICE | JARRED & SANDY DEGRAW | | | $750,000.00 | 136750 | |
|   | |
| 2 | 07/06/2017 | SWD | Statutory Warranty Deed | THOMAS ARNESEN | CHARLOTTE PRICE | | | $395,000.00 | 128133 | |
|   | |
| 3 | 11/26/2012 | QCD | Quit Claim Deed | TOM ARNESEN | THOMAS ARNESEN | | | | 118367 | |
| 4 | 04/16/2007 | SWD | Statutory Warranty Deed | TENBRINK TRSTEE, PAUL M | ARNESEN, TOM/DYAN | | | $493,000.00 | 109010 | 0 |
| 5 | 03/26/2001 | EASE | Assignment of Easement | TENBRINK, PAUL/MARY | AMERICAN TOWERS, INC. A DELAWA | 0 | 0 | $5,000.00 | 92146 | 0 |
| 6 | 10/12/2000 | QCD | Quit Claim Deed | TENBRINK, PAUL M/MARY LOU | TENBRINK, PAUL & MARY L/TRUST | 0 | 0 | $0.00 | 90915 | 0 |
| 7 | 10/11/2000 | QCD | Quit Claim Deed | TENBRINK, PAUL M/MARY L | TENBRINK, PAUL M/ MARY L TRUST | 0 | 0 | $0.00 | 91478 | 0 |
Payout Agreement
| No payout information available.. |