Property
Account |
| Property ID: | 17986 | Abbreviated Legal Description: | S11 T27 R2W NW SW NE (ENLGD BY TAX 50) BOUND BY BLA #88204 |
| Parcel # / Geo ID: | 702111007 | Agent Code: | |
| Type: | Real | | |
| Tax Area: | 0324 - 1-48F2E2H2C2L1Z3 | Land Use Code | 91 |
| Open Space: | N | DFL | N |
| Historic Property: | N | Remodel Property: | N |
| Multi-Family Redevelopment: | N | | |
| Township: | 27N | Section: | 11 |
| Range: | 2W |
Location |
| Address: | | Mapsco: | 156/010 |
| Neighborhood: | S11 T27N R2W & K. ELLIS #1, D. ELLIS, & WOODWARD SHORT PLATS | Map ID: | |
| Neighborhood CD: | 2520 |
Owner |
| Name: | DENISE L DILLMAN | Owner ID: | 107429 |
| Mailing Address: | 20 BARBERRY DR OSCEOLA, IN 46561-9573 | % Ownership: | 100.0000000000% |
| | | Exemptions: | |
Pay Tax Due
Select the appropriate checkbox next to the year to be paid. Multiple years may be selected.
*Convenience Fee not included
Taxes and Assessment Details
Property Tax Information as of
03/10/2026
Click on "Statement Details" to expand or collapse a tax statement.
* Please enter a valid date ** Please enter a valid date *
Statement Details |
| 2026 | 7522 | STATE - STATE LEVY (SCHOOL) | $232.24 | $232.23 | $0.00 | $0.00 | $0.00 | $464.47 |
| 2026 | 7522 | COUNTY - COUNTY LEVIES (CE, DD, VET, MH) | $92.86 | $92.83 | $0.00 | $0.00 | $0.00 | $185.69 |
| 2026 | 7522 | CONSERVE - CONSERVATION FUTURES | $2.79 | $2.78 | $0.00 | $0.00 | $0.00 | $5.57 |
| 2026 | 7522 | COROADS - COUNTY ROADS (ROADS, DIV TO CE) | $74.90 | $74.90 | $0.00 | $0.00 | $0.00 | $149.80 |
| 2026 | 7522 | PORTPT - PORT DISTRICT | $37.51 | $37.49 | $0.00 | $0.00 | $0.00 | $75.00 |
| 2026 | 7522 | PUD1 - PUD #1 | $6.04 | $6.04 | $0.00 | $0.00 | $0.00 | $12.08 |
| 2026 | 7522 | LIB1 - LIBRARY DIST #1 | $28.98 | $28.98 | $0.00 | $0.00 | $0.00 | $57.96 |
| 2026 | 7522 | HD2 - HOSP DIST #2 | $5.42 | $5.41 | $0.00 | $0.00 | $0.00 | $10.83 |
| 2026 | 7522 | SD48 - SCHOOL DIST #48 | $142.64 | $142.63 | $0.00 | $0.00 | $0.00 | $285.27 |
| 2026 | 7522 | FD2 - FIRE DISTRICT #2 | $76.27 | $76.26 | $0.00 | $0.00 | $0.00 | $152.53 |
| 2026 | 7522 | EMS2 - FIRE DIST #2 EMS | $42.95 | $42.95 | $0.00 | $0.00 | $0.00 | $85.90 |
| 2026 | 7522 | CEM2 - CEMETERY DIST #2 | $2.44 | $2.43 | $0.00 | $0.00 | $0.00 | $4.87 |
| 2026 | 7522 | FP - DNR Forest Fire Protection Assmt | $8.50 | $8.50 | $0.00 | $0.00 | $0.00 | $17.00 |
| 2026 | 7522 | FPLCA - DNR Landowner Contingency Assmt | $3.00 | $3.00 | $0.00 | $0.00 | $0.00 | $6.00 |
| 2026 | 7522 | JCCD - JC Conservation District | $2.89 | $2.89 | $0.00 | $0.00 | $0.00 | $5.78 |
| 2026 | 7522 | NWA - Noxious Weed Assessment | $5.00 | $5.00 | $0.00 | $0.00 | $0.00 | $10.00 |
| 2026 | 7522 | WAT - Clean Water District | $13.00 | $13.00 | $0.00 | $0.00 | $0.00 | $26.00 |
| 2026 | 7522 | FP ADMIN - FP ADMIN | $0.50 | $0.00 | $0.00 | $0.00 | $0.00 | $0.50 |
| 2026 | 7522 | TOTAL: | $777.93 | $777.32 | $0.00 | $0.00 | $0.00 | $1555.25 |
|
| 2026 | 7522 | $777.93 | $777.32 | $0.00 | $0.00 | $0.00 | $1555.25 |
Statement Details |
| 2025 | 7543 | STATE - STATE LEVY (SCHOOL) | $231.71 | $231.69 | $0.00 | $0.00 | $463.40 | $0.00 |
| 2025 | 7543 | COUNTY - COUNTY LEVIES (CE, DD, VET, MH) | $91.12 | $91.10 | $0.00 | $0.00 | $182.22 | $0.00 |
| 2025 | 7543 | CONSERVE - CONSERVATION FUTURES | $2.73 | $2.73 | $0.00 | $0.00 | $5.46 | $0.00 |
| 2025 | 7543 | COROADS - COUNTY ROADS (ROADS, DIV TO CE) | $73.00 | $72.99 | $0.00 | $0.00 | $145.99 | $0.00 |
| 2025 | 7543 | PORTPT - PORT DISTRICT | $37.18 | $37.18 | $0.00 | $0.00 | $74.36 | $0.00 |
| 2025 | 7543 | PUD1 - PUD #1 | $5.96 | $5.96 | $0.00 | $0.00 | $11.92 | $0.00 |
| 2025 | 7543 | LIB1 - LIBRARY DIST #1 | $28.24 | $28.24 | $0.00 | $0.00 | $56.48 | $0.00 |
| 2025 | 7543 | HD2 - HOSP DIST #2 | $5.32 | $5.31 | $0.00 | $0.00 | $10.63 | $0.00 |
| 2025 | 7543 | SD48 - SCHOOL DIST #48 | $136.44 | $136.44 | $0.00 | $0.00 | $272.88 | $0.00 |
| 2025 | 7543 | FD2 - FIRE DISTRICT #2 | $75.33 | $75.33 | $0.00 | $0.00 | $150.66 | $0.00 |
| 2025 | 7543 | EMS2 - FIRE DIST #2 EMS | $42.42 | $42.41 | $0.00 | $0.00 | $84.83 | $0.00 |
| 2025 | 7543 | CEM2 - CEMETERY DIST #2 | $2.41 | $2.40 | $0.00 | $0.00 | $4.81 | $0.00 |
| 2025 | 7543 | FP - DNR Forest Fire Protection Assmt | $8.50 | $8.50 | $0.00 | $0.00 | $17.00 | $0.00 |
| 2025 | 7543 | FPLCA - DNR Landowner Contingency Assmt | $3.00 | $3.00 | $0.00 | $0.00 | $6.00 | $0.00 |
| 2025 | 7543 | JCCD - JC Conservation District | $2.89 | $2.89 | $0.00 | $0.00 | $5.78 | $0.00 |
| 2025 | 7543 | NWA - Noxious Weed Assessment | $3.50 | $3.50 | $0.00 | $0.00 | $7.00 | $0.00 |
| 2025 | 7543 | WAT - Clean Water District | $13.00 | $13.00 | $0.00 | $0.00 | $26.00 | $0.00 |
| 2025 | 7543 | FP ADMIN - FP ADMIN | $0.50 | $0.00 | $0.00 | $0.00 | $0.50 | $0.00 |
| 2025 | 7543 | TOTAL: | $763.25 | $762.67 | $0.00 | $0.00 | $1525.92 | $0.00 |
|
| 2025 | 7543 | $763.25 | $762.67 | $0.00 | $0.00 | $1525.92 | $0.00 |
Statement Details |
| 2024 | 7566 | STATE - STATE LEVY (SCHOOL) | $195.65 | $195.63 | $0.00 | $0.00 | $391.28 | $0.00 |
| 2024 | 7566 | COUNTY - COUNTY LEVIES (CE, DD, VET, MH) | $83.74 | $83.71 | $0.00 | $0.00 | $167.45 | $0.00 |
| 2024 | 7566 | CONSERVE - CONSERVATION FUTURES | $2.51 | $2.51 | $0.00 | $0.00 | $5.02 | $0.00 |
| 2024 | 7566 | COROADS - COUNTY ROADS (ROADS, DIV TO CE) | $67.37 | $67.36 | $0.00 | $0.00 | $134.73 | $0.00 |
| 2024 | 7566 | PORTPT - PORT DISTRICT | $34.58 | $34.57 | $0.00 | $0.00 | $69.15 | $0.00 |
| 2024 | 7566 | PUD1 - PUD #1 | $5.50 | $5.50 | $0.00 | $0.00 | $11.00 | $0.00 |
| 2024 | 7566 | LIB1 - LIBRARY DIST #1 | $26.07 | $26.06 | $0.00 | $0.00 | $52.13 | $0.00 |
| 2024 | 7566 | HD2 - HOSP DIST #2 | $4.89 | $4.88 | $0.00 | $0.00 | $9.77 | $0.00 |
| 2024 | 7566 | SD48 - SCHOOL DIST #48 | $87.63 | $87.62 | $0.00 | $0.00 | $175.25 | $0.00 |
| 2024 | 7566 | FD2 - FIRE DISTRICT #2 | $69.60 | $69.60 | $0.00 | $0.00 | $139.20 | $0.00 |
| 2024 | 7566 | EMS2 - FIRE DIST #2 EMS | $39.18 | $39.18 | $0.00 | $0.00 | $78.36 | $0.00 |
| 2024 | 7566 | CEM2 - CEMETERY DIST #2 | $2.23 | $2.22 | $0.00 | $0.00 | $4.45 | $0.00 |
| 2024 | 7566 | FP - DNR Forest Fire Protection Assmt | $8.50 | $8.50 | $0.00 | $0.00 | $17.00 | $0.00 |
| 2024 | 7566 | FPLCA - DNR Landowner Contingency Assmt | $3.00 | $3.00 | $0.00 | $0.00 | $6.00 | $0.00 |
| 2024 | 7566 | JCCD - JC Conservation District | $2.89 | $2.89 | $0.00 | $0.00 | $5.78 | $0.00 |
| 2024 | 7566 | NWA - Noxious Weed Assessment | $3.50 | $3.50 | $0.00 | $0.00 | $7.00 | $0.00 |
| 2024 | 7566 | WAT - Clean Water District | $12.50 | $12.50 | $0.00 | $0.00 | $25.00 | $0.00 |
| 2024 | 7566 | FP ADMIN - FP ADMIN | $0.50 | $0.00 | $0.00 | $0.00 | $0.50 | $0.00 |
| 2024 | 7566 | TOTAL: | $649.84 | $649.23 | $0.00 | $0.00 | $1299.07 | $0.00 |
|
| 2024 | 7566 | $649.84 | $649.23 | $0.00 | $0.00 | $1299.07 | $0.00 |
Statement Details |
| 2023 | 7580 | STATE - STATE LEVY (SCHOOL) | $173.38 | $173.38 | $0.00 | $0.00 | $346.76 | $0.00 |
| 2023 | 7580 | COUNTY - COUNTY LEVIES (CE, DD, VET, MH) | $75.67 | $75.65 | $0.00 | $0.00 | $151.32 | $0.00 |
| 2023 | 7580 | CONSERVE - CONSERVATION FUTURES | $2.27 | $2.27 | $0.00 | $0.00 | $4.54 | $0.00 |
| 2023 | 7580 | COROADS - COUNTY ROADS (ROADS, DIV TO CE) | $61.22 | $61.21 | $0.00 | $0.00 | $122.43 | $0.00 |
| 2023 | 7580 | PORTPT - PORT DISTRICT | $31.87 | $31.87 | $0.00 | $0.00 | $63.74 | $0.00 |
| 2023 | 7580 | PUD1 - PUD #1 | $5.02 | $5.01 | $0.00 | $0.00 | $10.03 | $0.00 |
| 2023 | 7580 | LIB1 - LIBRARY DIST #1 | $23.69 | $23.68 | $0.00 | $0.00 | $47.37 | $0.00 |
| 2023 | 7580 | HD2 - HOSP DIST #2 | $4.42 | $4.42 | $0.00 | $0.00 | $8.84 | $0.00 |
| 2023 | 7580 | SD48 - SCHOOL DIST #48 | $83.73 | $83.73 | $0.00 | $0.00 | $167.46 | $0.00 |
| 2023 | 7580 | FD2 - FIRE DISTRICT #2 | $65.68 | $65.67 | $0.00 | $0.00 | $131.35 | $0.00 |
| 2023 | 7580 | EMS2 - FIRE DIST #2 EMS | $36.83 | $36.82 | $0.00 | $0.00 | $73.65 | $0.00 |
| 2023 | 7580 | CEM2 - CEMETERY DIST #2 | $2.09 | $2.09 | $0.00 | $0.00 | $4.18 | $0.00 |
| 2023 | 7580 | FP - DNR Forest Fire Protection Assmt | $8.50 | $8.50 | $0.00 | $0.00 | $17.00 | $0.00 |
| 2023 | 7580 | FPLCA - DNR Landowner Contingency Assmt | $3.00 | $3.00 | $0.00 | $0.00 | $6.00 | $0.00 |
| 2023 | 7580 | JCCD - JC Conservation District | $2.89 | $2.89 | $0.00 | $0.00 | $5.78 | $0.00 |
| 2023 | 7580 | NWA - Noxious Weed Assessment | $3.50 | $3.50 | $0.00 | $0.00 | $7.00 | $0.00 |
| 2023 | 7580 | WAT - Clean Water District | $12.00 | $12.00 | $0.00 | $0.00 | $24.00 | $0.00 |
| 2023 | 7580 | FP ADMIN - FP ADMIN | $0.50 | $0.00 | $0.00 | $0.00 | $0.50 | $0.00 |
| 2023 | 7580 | TOTAL: | $596.26 | $595.69 | $0.00 | $0.00 | $1191.95 | $0.00 |
|
| 2023 | 7580 | $596.26 | $595.69 | $0.00 | $0.00 | $1191.95 | $0.00 |
Values
| (+) Improvement Homesite Value: | + | $0 | |
| (+) Improvement Non-Homesite Value: | + | $0 | |
| (+) Land Homesite Value: | + | $0 | |
| (+) Land Non-Homesite Value: | + | $202,024 | |
| (+) Curr Use (HS): | + | $0 | $0 |
| (+) Curr Use (NHS): | + | $0 | $0 |
| | | -------------------------- | |
| (=) Market Value: | = | $202,024 | |
| (–) Productivity Loss: | – | $0 | |
| | | -------------------------- | |
| (=) Subtotal: | = | $202,024 | |
| (+) Senior Appraised Value: | + | $0 | |
| (+) Non-Senior Appraised Value: | + | $202,024 | |
| | | -------------------------- | |
| (=) Total Appraised Value: | = | $202,024 | |
| (–) Senior Exemption Loss: | – | $0 | |
| (–) Exemption Loss: | – | $0 | |
| | | -------------------------- | |
| (=) Taxable Value: | = | $202,024 | |
Taxing Jurisdiction
| Owner: | DENISE L DILLMAN | | |
| % Ownership: | 100.0000000000% | | |
| Total Value: | $202,024 | | |
| Tax Area: | 0324 - 1-48F2E2H2C2L1Z3 |
| CE | COUNTY CURRENT EXPENSE | 0.9034619479 | $202,024 | $202,024 | $182.52 | | |
| CNTYDD | DEVELOPMENTAL DISABILITIES | 0.0052121823 | $202,024 | $202,024 | $1.05 | | |
| CNTYVET | VETERANS RELIEF | 0.0052777810 | $202,024 | $202,024 | $1.07 | | |
| MENTAL | MENTAL HEALTH | 0.0052121823 | $202,024 | $202,024 | $1.05 | | |
| ROADS | COUNTY ROADS | 0.7415066410 | $202,024 | $202,024 | $149.80 | | |
| ROADSCU | COUNTY ROADS TO CUR EXP | 0.0000000000 | $202,024 | $202,024 | $0.00 | | |
| HOSP2CASH | HOSP DIST #2 GENERAL | 0.0536075306 | $202,024 | $202,024 | $10.83 | | |
| SCH48MO | SCHOOL DIST #48 EP & O | 1.4120478917 | $202,024 | $202,024 | $285.27 | | |
| CEM2 | CEMETERY DIST #2 GENERAL | 0.0241266154 | $202,024 | $202,024 | $4.87 | | |
| CONSERVE | CONSERVATION FUTURES | 0.0275621078 | $202,024 | $202,024 | $5.57 | | |
| FD2 | FIRE DIST #2 GENERAL | 0.7549976873 | $202,024 | $202,024 | $152.53 | | |
| LIB1 | LIBRARY DIST #1 GENERAL | 0.2868827388 | $202,024 | $202,024 | $57.96 | | |
| PORTPT | PORT OF PT GENERAL | 0.1134941229 | $202,024 | $202,024 | $22.93 | | |
| PORTPTIDD | PORT OF PT IDD 2019 | 0.2577346692 | $202,024 | $202,024 | $52.07 | | |
| PUD1 | PUD #1 GENERAL | 0.0597888892 | $202,024 | $202,024 | $12.08 | | |
| STATE | STATE SCHOOL PART 1 | 1.4940692947 | $202,024 | $202,024 | $301.84 | | |
| STATE2 | STATE SCHOOL PART 2 | 0.8050170049 | $202,024 | $202,024 | $162.63 | | |
| EMS2 | FIRE DIST #2 EMS | 0.4251727858 | $202,024 | $202,024 | $85.90 | | |
| | Total Tax Rate: | 7.3751720728 | | | | | |
| | | | | Taxes w/Current Exemptions: | $1,489.97 | | |
| | | | | Taxes w/o Exemptions: | $1,489.97 | | |
Improvement / Building
Sketch
| No sketches available for this property. |
Property Image
Land
| 1 | 2520-1315S | | 1.0000 | 43560.00 | 0.00 | 0.00 | 1.00 | $69,000 | $0 |
| 2 | 1671A | | 6.3400 | 276170.40 | 0.00 | 0.00 | 0.00 | $96,606 | $0 |
| 3 | 1671A | | 2.3900 | 104108.40 | 0.00 | 0.00 | 0.00 | $36,418 | $0 |
Roll Value History
| 2026 | N/A | N/A | N/A | N/A | N/A |
| 2025 | $0 | $202,024 | $0 | $202,024 | $202,024 |
| 2024 | $0 | $193,241 | $0 | $193,241 | $193,241 |
| 2023 | $0 | $169,125 | $0 | $169,125 | $169,125 |
| 2022 | $0 | $147,300 | $0 | $147,300 | $147,300 |
Deed and Sales History
| 1 | 07/28/2022 | SWD | Statutory Warranty Deed | JOHN NORTHEY | DENISE L DILLMAN | | | $399,000.00 | 139557 | |
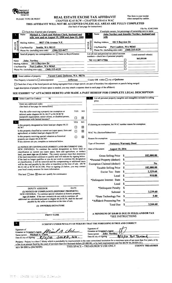
| 2 | 08/10/2016 | SWD | Statutory Warranty Deed | MICHAEL A CLARK | JOHN NORTHEY | | | $182,000.00 | 126038 | |
| 3 | 06/22/2000 | QCD | Quit Claim Deed | SHAHDA, MICHAEL J | CLARK, MICHAEL | 0 | 0 | $0.00 | 89910 | 0 |
| 4 | 06/09/1999 | BLA | Boundary Line Adjustment | SHAHDA, MICHAEL J | CLARK, MICHAEL A | 0 | 0 | $0.00 | 88204 | 0 |
| 5 | 08/17/1998 | QCD | Quit Claim Deed | CLARK, LEONARD F/JR | CLARK, MICHAEL A | 0 | 0 | $0.00 | 85120 | 0 |
Payout Agreement
| No payout information available.. |