Property
Account |
| Property ID: | 18019 | Abbreviated Legal Description: | S11 T27 R2W NESE(LS PTN W OF LINE 400' W OF HWY & PTN E/HWY) LESS TX 31 & 42 |
| Parcel # / Geo ID: | 702113004 | Agent Code: | |
| Type: | Real | | |
| Tax Area: | 0324 - 1-48F2E2H2C2L1Z3 | Land Use Code | 11 |
| Open Space: | N | DFL | N |
| Historic Property: | N | Remodel Property: | N |
| Multi-Family Redevelopment: | N | | |
| Township: | 27N | Section: | 11 |
| Range: | 2W |
Location |
| Address: | 293176 HWY 101 QUILCENE, WA 98376 | Mapsco: | 156/022 |
| Neighborhood: | S11 T27N R2W & K. ELLIS #1, D. ELLIS, & WOODWARD SHORT PLATS | Map ID: | |
| Neighborhood CD: | 2520 |
Owner |
| Name: | MARY J SANDALL | Owner ID: | 111192 |
| Mailing Address: | BRIAN SANDALL SUNG-LING HSU 293176 HWY 101 QUILCENE, WA 98376-9515 | % Ownership: | 100.0000000000% |
| | | Exemptions: | |
Pay Tax Due
Select the appropriate checkbox next to the year to be paid. Multiple years may be selected.
*Convenience Fee not included
Taxes and Assessment Details
Property Tax Information as of
01/26/2026
Click on "Statement Details" to expand or collapse a tax statement.
* Please enter a valid date ** Please enter a valid date *
Statement Details |
| 2026 | 7554 | STATE - STATE LEVY (SCHOOL) | $975.63 | $975.62 | $0.00 | $0.00 | $0.00 | $1951.25 |
| 2026 | 7554 | COUNTY - COUNTY LEVIES (CE, DD, VET, MH) | $390.05 | $390.04 | $0.00 | $0.00 | $0.00 | $780.09 |
| 2026 | 7554 | CONSERVE - CONSERVATION FUTURES | $11.70 | $11.69 | $0.00 | $0.00 | $0.00 | $23.39 |
| 2026 | 7554 | COROADS - COUNTY ROADS (ROADS, DIV TO CE) | $314.66 | $314.66 | $0.00 | $0.00 | $0.00 | $629.32 |
| 2026 | 7554 | PORTPT - PORT DISTRICT | $157.53 | $157.53 | $0.00 | $0.00 | $0.00 | $315.06 |
| 2026 | 7554 | PUD1 - PUD #1 | $25.37 | $25.37 | $0.00 | $0.00 | $0.00 | $50.74 |
| 2026 | 7554 | LIB1 - LIBRARY DIST #1 | $121.74 | $121.74 | $0.00 | $0.00 | $0.00 | $243.48 |
| 2026 | 7554 | HD2 - HOSP DIST #2 | $22.75 | $22.75 | $0.00 | $0.00 | $0.00 | $45.50 |
| 2026 | 7554 | SD48 - SCHOOL DIST #48 | $599.21 | $599.20 | $0.00 | $0.00 | $0.00 | $1198.41 |
| 2026 | 7554 | FD2 - FIRE DISTRICT #2 | $320.39 | $320.38 | $0.00 | $0.00 | $0.00 | $640.77 |
| 2026 | 7554 | EMS2 - FIRE DIST #2 EMS | $180.43 | $180.42 | $0.00 | $0.00 | $0.00 | $360.85 |
| 2026 | 7554 | CEM2 - CEMETERY DIST #2 | $10.24 | $10.24 | $0.00 | $0.00 | $0.00 | $20.48 |
| 2026 | 7554 | FP - DNR Forest Fire Protection Assmt | $8.50 | $8.50 | $0.00 | $0.00 | $0.00 | $17.00 |
| 2026 | 7554 | FPLCA - DNR Landowner Contingency Assmt | $3.00 | $3.00 | $0.00 | $0.00 | $0.00 | $6.00 |
| 2026 | 7554 | JCCD - JC Conservation District | $2.75 | $2.75 | $0.00 | $0.00 | $0.00 | $5.50 |
| 2026 | 7554 | NWA - Noxious Weed Assessment | $3.88 | $3.87 | $0.00 | $0.00 | $0.00 | $7.75 |
| 2026 | 7554 | OSS - On Site Septic | $23.10 | $23.10 | $0.00 | $0.00 | $0.00 | $46.20 |
| 2026 | 7554 | WAT - Clean Water District | $13.00 | $13.00 | $0.00 | $0.00 | $0.00 | $26.00 |
| 2026 | 7554 | FP ADMIN - FP ADMIN | $0.50 | $0.00 | $0.00 | $0.00 | $0.00 | $0.50 |
| 2026 | 7554 | TOTAL: | $3184.43 | $3183.86 | $0.00 | $0.00 | $0.00 | $6368.29 |
|
| 2026 | 7554 | $3184.43 | $3183.86 | $0.00 | $0.00 | $0.00 | $6368.29 |
Statement Details |
| 2025 | 7575 | STATE - STATE LEVY (SCHOOL) | $91.11 | $91.11 | $0.00 | $0.00 | $182.22 | $0.00 |
| 2025 | 7575 | COUNTY - COUNTY LEVIES (CE, DD, VET, MH) | $35.85 | $35.82 | $0.00 | $0.00 | $71.67 | $0.00 |
| 2025 | 7575 | CONSERVE - CONSERVATION FUTURES | $1.08 | $1.07 | $0.00 | $0.00 | $2.15 | $0.00 |
| 2025 | 7575 | COROADS - COUNTY ROADS (ROADS, DIV TO CE) | $28.71 | $28.70 | $0.00 | $0.00 | $57.41 | $0.00 |
| 2025 | 7575 | PORTPT - PORT DISTRICT | $14.63 | $14.61 | $0.00 | $0.00 | $29.24 | $0.00 |
| 2025 | 7575 | PUD1 - PUD #1 | $2.35 | $2.34 | $0.00 | $0.00 | $4.69 | $0.00 |
| 2025 | 7575 | LIB1 - LIBRARY DIST #1 | $11.11 | $11.10 | $0.00 | $0.00 | $22.21 | $0.00 |
| 2025 | 7575 | HD2 - HOSP DIST #2 | $2.09 | $2.09 | $0.00 | $0.00 | $4.18 | $0.00 |
| 2025 | 7575 | SD48 - SCHOOL DIST #48 | $53.65 | $53.65 | $0.00 | $0.00 | $107.30 | $0.00 |
| 2025 | 7575 | FD2 - FIRE DISTRICT #2 | $29.63 | $29.62 | $0.00 | $0.00 | $59.25 | $0.00 |
| 2025 | 7575 | EMS2 - FIRE DIST #2 EMS | $16.68 | $16.68 | $0.00 | $0.00 | $33.36 | $0.00 |
| 2025 | 7575 | CEM2 - CEMETERY DIST #2 | $0.95 | $0.94 | $0.00 | $0.00 | $1.89 | $0.00 |
| 2025 | 7575 | FP - DNR Forest Fire Protection Assmt | $8.50 | $8.50 | $0.00 | $0.00 | $17.00 | $0.00 |
| 2025 | 7575 | FPLCA - DNR Landowner Contingency Assmt | $3.00 | $3.00 | $0.00 | $0.00 | $6.00 | $0.00 |
| 2025 | 7575 | JCCD - JC Conservation District | $2.69 | $2.69 | $0.00 | $0.00 | $5.38 | $0.00 |
| 2025 | 7575 | NWA - Noxious Weed Assessment | $2.75 | $2.75 | $0.00 | $0.00 | $5.50 | $0.00 |
| 2025 | 7575 | WAT - Clean Water District | $13.00 | $13.00 | $0.00 | $0.00 | $26.00 | $0.00 |
| 2025 | 7575 | FP ADMIN - FP ADMIN | $0.50 | $0.00 | $0.00 | $0.00 | $0.50 | $0.00 |
| 2025 | 7575 | TOTAL: | $318.28 | $317.67 | $0.00 | $0.00 | $635.95 | $0.00 |
|
| 2025 | 7575 | $318.28 | $317.67 | $0.00 | $0.00 | $635.95 | $0.00 |
Statement Details |
| 2024 | 7598 | STATE - STATE LEVY (SCHOOL) | $78.18 | $78.17 | $0.00 | $0.00 | $156.35 | $0.00 |
| 2024 | 7598 | COUNTY - COUNTY LEVIES (CE, DD, VET, MH) | $33.45 | $33.45 | $0.00 | $0.00 | $66.90 | $0.00 |
| 2024 | 7598 | CONSERVE - CONSERVATION FUTURES | $1.01 | $1.00 | $0.00 | $0.00 | $2.01 | $0.00 |
| 2024 | 7598 | COROADS - COUNTY ROADS (ROADS, DIV TO CE) | $26.92 | $26.91 | $0.00 | $0.00 | $53.83 | $0.00 |
| 2024 | 7598 | PORTPT - PORT DISTRICT | $13.82 | $13.81 | $0.00 | $0.00 | $27.63 | $0.00 |
| 2024 | 7598 | PUD1 - PUD #1 | $2.20 | $2.19 | $0.00 | $0.00 | $4.39 | $0.00 |
| 2024 | 7598 | LIB1 - LIBRARY DIST #1 | $10.42 | $10.41 | $0.00 | $0.00 | $20.83 | $0.00 |
| 2024 | 7598 | HD2 - HOSP DIST #2 | $1.95 | $1.95 | $0.00 | $0.00 | $3.90 | $0.00 |
| 2024 | 7598 | SD48 - SCHOOL DIST #48 | $35.01 | $35.01 | $0.00 | $0.00 | $70.02 | $0.00 |
| 2024 | 7598 | FD2 - FIRE DISTRICT #2 | $27.81 | $27.81 | $0.00 | $0.00 | $55.62 | $0.00 |
| 2024 | 7598 | EMS2 - FIRE DIST #2 EMS | $15.66 | $15.65 | $0.00 | $0.00 | $31.31 | $0.00 |
| 2024 | 7598 | CEM2 - CEMETERY DIST #2 | $0.89 | $0.89 | $0.00 | $0.00 | $1.78 | $0.00 |
| 2024 | 7598 | FP - DNR Forest Fire Protection Assmt | $8.50 | $8.50 | $0.00 | $0.00 | $17.00 | $0.00 |
| 2024 | 7598 | FPLCA - DNR Landowner Contingency Assmt | $3.00 | $3.00 | $0.00 | $0.00 | $6.00 | $0.00 |
| 2024 | 7598 | JCCD - JC Conservation District | $2.69 | $2.69 | $0.00 | $0.00 | $5.38 | $0.00 |
| 2024 | 7598 | NWA - Noxious Weed Assessment | $2.75 | $2.75 | $0.00 | $0.00 | $5.50 | $0.00 |
| 2024 | 7598 | WAT - Clean Water District | $12.50 | $12.50 | $0.00 | $0.00 | $25.00 | $0.00 |
| 2024 | 7598 | FP ADMIN - FP ADMIN | $0.50 | $0.00 | $0.00 | $0.00 | $0.50 | $0.00 |
| 2024 | 7598 | TOTAL: | $277.26 | $276.69 | $0.00 | $0.00 | $553.95 | $0.00 |
|
| 2024 | 7598 | $277.26 | $276.69 | $0.00 | $0.00 | $553.95 | $0.00 |
Statement Details |
| 2023 | 7612 | STATE - STATE LEVY (SCHOOL) | $76.89 | $76.88 | $0.00 | $0.00 | $153.77 | $0.00 |
| 2023 | 7612 | COUNTY - COUNTY LEVIES (CE, DD, VET, MH) | $33.56 | $33.54 | $0.00 | $0.00 | $67.10 | $0.00 |
| 2023 | 7612 | CONSERVE - CONSERVATION FUTURES | $1.01 | $1.00 | $0.00 | $0.00 | $2.01 | $0.00 |
| 2023 | 7612 | COROADS - COUNTY ROADS (ROADS, DIV TO CE) | $27.15 | $27.14 | $0.00 | $0.00 | $54.29 | $0.00 |
| 2023 | 7612 | PORTPT - PORT DISTRICT | $14.14 | $14.13 | $0.00 | $0.00 | $28.27 | $0.00 |
| 2023 | 7612 | PUD1 - PUD #1 | $2.23 | $2.22 | $0.00 | $0.00 | $4.45 | $0.00 |
| 2023 | 7612 | LIB1 - LIBRARY DIST #1 | $10.50 | $10.50 | $0.00 | $0.00 | $21.00 | $0.00 |
| 2023 | 7612 | HD2 - HOSP DIST #2 | $1.96 | $1.95 | $0.00 | $0.00 | $3.91 | $0.00 |
| 2023 | 7612 | SD48 - SCHOOL DIST #48 | $37.13 | $37.13 | $0.00 | $0.00 | $74.26 | $0.00 |
| 2023 | 7612 | FD2 - FIRE DISTRICT #2 | $29.12 | $29.12 | $0.00 | $0.00 | $58.24 | $0.00 |
| 2023 | 7612 | EMS2 - FIRE DIST #2 EMS | $16.33 | $16.33 | $0.00 | $0.00 | $32.66 | $0.00 |
| 2023 | 7612 | CEM2 - CEMETERY DIST #2 | $0.93 | $0.92 | $0.00 | $0.00 | $1.85 | $0.00 |
| 2023 | 7612 | FP - DNR Forest Fire Protection Assmt | $8.50 | $8.50 | $0.00 | $0.00 | $17.00 | $0.00 |
| 2023 | 7612 | FPLCA - DNR Landowner Contingency Assmt | $3.00 | $3.00 | $0.00 | $0.00 | $6.00 | $0.00 |
| 2023 | 7612 | JCCD - JC Conservation District | $2.69 | $2.69 | $0.00 | $0.00 | $5.38 | $0.00 |
| 2023 | 7612 | NWA - Noxious Weed Assessment | $2.75 | $2.75 | $0.00 | $0.00 | $5.50 | $0.00 |
| 2023 | 7612 | WAT - Clean Water District | $12.00 | $12.00 | $0.00 | $0.00 | $24.00 | $0.00 |
| 2023 | 7612 | FP ADMIN - FP ADMIN | $0.50 | $0.00 | $0.00 | $0.00 | $0.50 | $0.00 |
| 2023 | 7612 | TOTAL: | $280.39 | $279.80 | $0.00 | $0.00 | $560.19 | $0.00 |
|
| 2023 | 7612 | $280.39 | $279.80 | $0.00 | $0.00 | $560.19 | $0.00 |
Values
| (+) Improvement Homesite Value: | + | $0 | |
| (+) Improvement Non-Homesite Value: | + | $734,764 | |
| (+) Land Homesite Value: | + | $0 | |
| (+) Land Non-Homesite Value: | + | $113,942 | |
| (+) Curr Use (HS): | + | $0 | $0 |
| (+) Curr Use (NHS): | + | $0 | $0 |
| | | -------------------------- | |
| (=) Market Value: | = | $848,706 | |
| (–) Productivity Loss: | – | $0 | |
| | | -------------------------- | |
| (=) Subtotal: | = | $848,706 | |
| (+) Senior Appraised Value: | + | $0 | |
| (+) Non-Senior Appraised Value: | + | $848,706 | |
| | | -------------------------- | |
| (=) Total Appraised Value: | = | $848,706 | |
| (–) Senior Exemption Loss: | – | $0 | |
| (–) Exemption Loss: | – | $0 | |
| | | -------------------------- | |
| (=) Taxable Value: | = | $848,706 | |
Taxing Jurisdiction
| Owner: | MARY J SANDALL | | |
| % Ownership: | 100.0000000000% | | |
| Total Value: | N/A | | |
| Tax Area: | 0324 - 1-48F2E2H2C2L1Z3 |
| CE | COUNTY CURRENT EXPENSE | N/A | N/A | N/A | N/A | | |
| CNTYDD | DEVELOPMENTAL DISABILITIES | N/A | N/A | N/A | N/A | | |
| CNTYVET | VETERANS RELIEF | N/A | N/A | N/A | N/A | | |
| MENTAL | MENTAL HEALTH | N/A | N/A | N/A | N/A | | |
| ROADS | COUNTY ROADS | N/A | N/A | N/A | N/A | | |
| HOSP2CASH | HOSP DIST #2 GENERAL | N/A | N/A | N/A | N/A | | |
| SCH48MO | SCHOOL DIST #48 EP & O | N/A | N/A | N/A | N/A | | |
| CEM2 | CEMETERY DIST #2 GENERAL | N/A | N/A | N/A | N/A | | |
| CONSERVE | CONSERVATION FUTURES | N/A | N/A | N/A | N/A | | |
| FD2 | FIRE DIST #2 GENERAL | N/A | N/A | N/A | N/A | | |
| LIB1 | LIBRARY DIST #1 GENERAL | N/A | N/A | N/A | N/A | | |
| PORTPT | PORT OF PT GENERAL | N/A | N/A | N/A | N/A | | |
| PORTPTIDD | PORT OF PT IDD 2019 | N/A | N/A | N/A | N/A | | |
| PUD1 | PUD #1 GENERAL | N/A | N/A | N/A | N/A | | |
| STATE | STATE SCHOOL PART 1 | N/A | N/A | N/A | N/A | | |
| STATE2 | STATE SCHOOL PART 2 | N/A | N/A | N/A | N/A | | |
| EMS2 | FIRE DIST #2 EMS | N/A | N/A | N/A | N/A | | |
| | Total Tax Rate: | N/A | | | | | |
| | | | | Taxes w/Current Exemptions: | N/A | | |
| | | | | Taxes w/o Exemptions: | N/A | | |
Improvement / Building
| Improvement #1: | Residential Bldg | State Code: | 11 | 2938.2 sqft | Value: | $734,764 |
| Bathrooms (#): | 3 (FULL) | Bathrooms (#): | 1 (HALF) | | Bedrooms (#): | 4 | Exterior Wall: | SI/ST | | Fireplace: | DBL 1-GOOD | Floor Construction: | FRAME | | Foundation: | CONPR | Garage Doors: | Single | | Heating/Cooling: | HPUMP | Interior Finish: | FIN | | Roof Cover: | METAL |   |   |
|
| | Type | Description | Class CD | Sub Class CD | Year Built | Area |
| | MA | Main Area | 4+ | 15SF | 2024 | 1752.0 |
| | MA2 | Second Floor Main Area | 4+ | 15SF | 2024 | 1186.2 |
| | GATT | House Attached Garage | 4 | * | 2024 | 528.0 |
| | PATIO | House Patio | 4 | * | 2024 | 771.5 |
| | HCPOR | House Concrete Porch | 4 | * | 2024 | 114.0 |
| | CONCD | Concrete Drive | 4 | * | 2024 | 504.0 |
Sketch
Property Image
Land
| 1 | 1575A | | 3.0100 | 131115.60 | 0.00 | 0.00 | 0.00 | $27,692 | $0 |
| 2 | 2520-1375S | | 1.0000 | 43560.00 | 0.00 | 0.00 | 1.00 | $86,250 | $0 |
Roll Value History
| 2026 | N/A | N/A | N/A | N/A | N/A |
| 2025 | $734,764 | $113,942 | $0 | $848,706 | $848,706 |
| 2024 | $0 | $75,988 | $0 | $75,988 | $75,988 |
| 2023 | $0 | $67,575 | $0 | $67,575 | $67,575 |
| 2022 | $0 | $65,318 | $0 | $65,318 | $65,318 |
Deed and Sales History
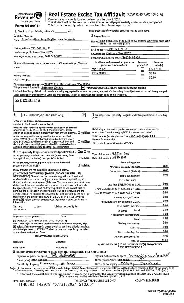
| 1 | 07/30/2024 | QCD | Quit Claim Deed | BRIAN SANDALL & SUNG LING HSU | MARY J SANDALL | | | | 142979 | |
| 2 | 03/04/2015 | SWD | Statutory Warranty Deed | JANE A HIRSCHI | BRIAN SANDALL & SUNG LING HSU | | | $240,000.00 | 122814 | |
|   | |
Payout Agreement
| No payout information available.. |