Property
Account |
| Property ID: | 18066 | Abbreviated Legal Description: | S12 T27 R2W TX 38 1/40TH INT IN COMM. TRACT |
| Parcel # / Geo ID: | 702121011 | Agent Code: | |
| Type: | Real | | |
| Tax Area: | 0324 - 1-48F2E2H2C2L1Z3 | Land Use Code | 11 |
| Open Space: | N | DFL | N |
| Historic Property: | N | Remodel Property: | N |
| Multi-Family Redevelopment: | N | | |
| Township: | 27N | Section: | 12 |
| Range: | 2W |
Location |
| Address: | 531 LAKENESS RD QUILCENE, WA 98376 | Mapsco: | 158/055 |
| Neighborhood: | S12 T27N R2W | Map ID: | |
| Neighborhood CD: | 2525 |
Owner |
| Name: | THOMAS PEARSON | Owner ID: | 112848 |
| Mailing Address: | EVELYN FERNANDEZ 31 WORKMAN ST PORT TOWNSEND, WA 98368-2617 | % Ownership: | 100.0000000000% |
| | | Exemptions: | |
Pay Tax Due
There is currently No Amount Due on this property.
Taxes and Assessment Details
Property Tax Information as of
03/12/2026
Click on "Statement Details" to expand or collapse a tax statement.
* Please enter a valid date ** Please enter a valid date *
Statement Details |
| | TOTAL: | $0.00 | $0.00 | $0.00 | $0.00 | $0.00 | $0.00 |
|
| | $0.00 | $0.00 | $0.00 | $0.00 | $0.00 | $0.00 |
Values
| (+) Improvement Homesite Value: | + | $0 | |
| (+) Improvement Non-Homesite Value: | + | $217,703 | |
| (+) Land Homesite Value: | + | $0 | |
| (+) Land Non-Homesite Value: | + | $150,924 | |
| (+) Curr Use (HS): | + | $0 | $0 |
| (+) Curr Use (NHS): | + | $0 | $0 |
| | | -------------------------- | |
| (=) Market Value: | = | $368,627 | |
| (–) Productivity Loss: | – | $0 | |
| | | -------------------------- | |
| (=) Subtotal: | = | $368,627 | |
| (+) Senior Appraised Value: | + | $0 | |
| (+) Non-Senior Appraised Value: | + | $368,627 | |
| | | -------------------------- | |
| (=) Total Appraised Value: | = | $368,627 | |
| (–) Senior Exemption Loss: | – | $0 | |
| (–) Exemption Loss: | – | $0 | |
| | | -------------------------- | |
| (=) Taxable Value: | = | $368,627 | |
Taxing Jurisdiction
| Owner: | THOMAS PEARSON | | |
| % Ownership: | 100.0000000000% | | |
| Total Value: | $368,627 | | |
| Tax Area: | 0324 - 1-48F2E2H2C2L1Z3 |
| CE | COUNTY CURRENT EXPENSE | 0.9034619479 | $368,627 | $368,627 | $333.04 | | |
| CNTYDD | DEVELOPMENTAL DISABILITIES | 0.0052121823 | $368,627 | $368,627 | $1.92 | | |
| CNTYVET | VETERANS RELIEF | 0.0052777810 | $368,627 | $368,627 | $1.95 | | |
| MENTAL | MENTAL HEALTH | 0.0052121823 | $368,627 | $368,627 | $1.92 | | |
| ROADS | COUNTY ROADS | 0.7415066410 | $368,627 | $368,627 | $273.34 | | |
| ROADSCU | COUNTY ROADS TO CUR EXP | 0.0000000000 | $368,627 | $368,627 | $0.00 | | |
| HOSP2CASH | HOSP DIST #2 GENERAL | 0.0536075306 | $368,627 | $368,627 | $19.76 | | |
| SCH48MO | SCHOOL DIST #48 EP & O | 1.4120478917 | $368,627 | $368,627 | $520.52 | | |
| CEM2 | CEMETERY DIST #2 GENERAL | 0.0241266154 | $368,627 | $368,627 | $8.89 | | |
| CONSERVE | CONSERVATION FUTURES | 0.0275621078 | $368,627 | $368,627 | $10.16 | | |
| FD2 | FIRE DIST #2 GENERAL | 0.7549976873 | $368,627 | $368,627 | $278.31 | | |
| LIB1 | LIBRARY DIST #1 GENERAL | 0.2868827388 | $368,627 | $368,627 | $105.75 | | |
| PORTPT | PORT OF PT GENERAL | 0.1134941229 | $368,627 | $368,627 | $41.84 | | |
| PORTPTIDD | PORT OF PT IDD 2019 | 0.2577346692 | $368,627 | $368,627 | $95.01 | | |
| PUD1 | PUD #1 GENERAL | 0.0597888892 | $368,627 | $368,627 | $22.04 | | |
| STATE | STATE SCHOOL PART 1 | 1.4940692947 | $368,627 | $368,627 | $550.75 | | |
| STATE2 | STATE SCHOOL PART 2 | 0.8050170049 | $368,627 | $368,627 | $296.75 | | |
| EMS2 | FIRE DIST #2 EMS | 0.4251727858 | $368,627 | $368,627 | $156.73 | | |
| | Total Tax Rate: | 7.3751720728 | | | | | |
| | | | | Taxes w/Current Exemptions: | $2,718.68 | | |
| | | | | Taxes w/o Exemptions: | $2,718.68 | | |
Improvement / Building
| Improvement #1: | Residential Bldg | State Code: | 11 | 1144.0 sqft | Value: | $217,703 |
| Bathrooms (#): | 1 (FULL) | Bedrooms (#): | 2 | | Exterior Wall: | SI/ST | Fireplace: | WD ST-GOOD | | Floor Construction: | CONCR | Foundation: | CONPR | | Heating/Cooling: | WD/NO | Inside Verify: | NO | | Roof Cover: | METAL |   |   |
|
| | Type | Description | Class CD | Sub Class CD | Year Built | Area |
| | MA | Main Area | 4 | 15SF | 1980 | 776.0 |
| | MA2 | Second Floor Main Area | 4 | 15SF | 1980 | 368.0 |
| | HDECK | House Deck | 4 | * | 1980 | 100.0 |
| | HWPOR | House Wood Porch | 4 | * | 1980 | 30.0 |
| | HRPO | House Roof Patio | 4 | * | 1980 | 120.0 |
| | HBAL | House Balcony | 4 | 15SF | 1980 | 64.0 |
Sketch
Property Image
Land
| 1 | 2525-1375S | Wooded/No View Sites Area 1+/- Acre | 1.0000 | 43560.00 | 0.00 | 0.00 | 1.00 | $86,250 | $0 |
| 2 | 1572A | Terr/Mtn/No View <6 Acres | 4.0900 | 178160.40 | 0.00 | 0.00 | 0.00 | $64,674 | $0 |
Roll Value History
| 2026 | N/A | N/A | N/A | N/A | N/A |
| 2025 | $217,703 | $150,924 | $0 | $368,627 | $368,627 |
| 2024 | $122,773 | $113,993 | $0 | $236,766 | $236,766 |
| 2023 | $117,435 | $101,414 | $0 | $218,849 | $218,849 |
| 2022 | $106,759 | $89,540 | $0 | $196,299 | $196,299 |
Deed and Sales History
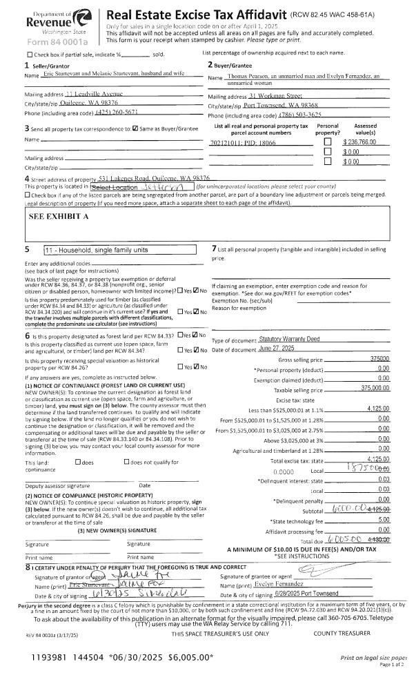
| 1 | 06/27/2025 | SWD | Statutory Warranty Deed | ERIC & MELANIE STURTEVANT | THOMAS PEARSON | | | $375,000.00 | 144504 | |
| 2 | 06/07/2016 | SWD | Statutory Warranty Deed | PETER T LOIKA | ERIC & MELANIE STURTEVANT | | | $125,000.00 | 125588 | |
Payout Agreement
| No payout information available.. |