Property
Account |
| Property ID: | 18093 | Abbreviated Legal Description: | S12 T27 R2W TX 33 WITH & SUBJ TO EASE |
| Parcel # / Geo ID: | 702122029 | Agent Code: | |
| Type: | Real | | |
| Tax Area: | 0321 - 1-48F2E2H2C2L1 | Land Use Code | 18 |
| Open Space: | N | DFL | N |
| Historic Property: | N | Remodel Property: | N |
| Multi-Family Redevelopment: | N | | |
| Township: | 27N | Section: | 12 |
| Range: | 2W |
Location |
| Address: | | Mapsco: | 158/050 |
| Neighborhood: | S12 T27N R2W | Map ID: | |
| Neighborhood CD: | 2525 |
Owner |
| Name: | SUSAN M FULLER | Owner ID: | 108282 |
| Mailing Address: | 2152 NE NORRLAND CT POULSBO, WA 98370-8502 | % Ownership: | 100.0000000000% |
| | | Exemptions: | |
Pay Tax Due
Select the appropriate checkbox next to the year to be paid. Multiple years may be selected.
*Convenience Fee not included
Taxes and Assessment Details
Property Tax Information as of
03/12/2026
Click on "Statement Details" to expand or collapse a tax statement.
* Please enter a valid date ** Please enter a valid date *
Statement Details |
| 2026 | 7626 | STATE - STATE LEVY (SCHOOL) | $122.47 | $122.46 | $0.00 | $0.00 | $0.00 | $244.93 |
| 2026 | 7626 | COUNTY - COUNTY LEVIES (CE, DD, VET, MH) | $48.97 | $48.96 | $0.00 | $0.00 | $0.00 | $97.93 |
| 2026 | 7626 | CONSERVE - CONSERVATION FUTURES | $1.47 | $1.47 | $0.00 | $0.00 | $0.00 | $2.94 |
| 2026 | 7626 | COROADS - COUNTY ROADS (ROADS, DIV TO CE) | $39.50 | $39.50 | $0.00 | $0.00 | $0.00 | $79.00 |
| 2026 | 7626 | PORTPT - PORT DISTRICT | $19.78 | $19.77 | $0.00 | $0.00 | $0.00 | $39.55 |
| 2026 | 7626 | PUD1 - PUD #1 | $3.19 | $3.18 | $0.00 | $0.00 | $0.00 | $6.37 |
| 2026 | 7626 | LIB1 - LIBRARY DIST #1 | $15.28 | $15.28 | $0.00 | $0.00 | $0.00 | $30.56 |
| 2026 | 7626 | HD2 - HOSP DIST #2 | $2.86 | $2.85 | $0.00 | $0.00 | $0.00 | $5.71 |
| 2026 | 7626 | SD48 - SCHOOL DIST #48 | $75.22 | $75.21 | $0.00 | $0.00 | $0.00 | $150.43 |
| 2026 | 7626 | FD2 - FIRE DISTRICT #2 | $40.22 | $40.21 | $0.00 | $0.00 | $0.00 | $80.43 |
| 2026 | 7626 | EMS2 - FIRE DIST #2 EMS | $22.65 | $22.65 | $0.00 | $0.00 | $0.00 | $45.30 |
| 2026 | 7626 | CEM2 - CEMETERY DIST #2 | $1.29 | $1.28 | $0.00 | $0.00 | $0.00 | $2.57 |
| 2026 | 7626 | FP - DNR Forest Fire Protection Assmt | $8.50 | $8.50 | $0.00 | $0.00 | $0.00 | $17.00 |
| 2026 | 7626 | FPLCA - DNR Landowner Contingency Assmt | $3.00 | $3.00 | $0.00 | $0.00 | $0.00 | $6.00 |
| 2026 | 7626 | JCCD - JC Conservation District | $2.65 | $2.65 | $0.00 | $0.00 | $0.00 | $5.30 |
| 2026 | 7626 | NWA - Noxious Weed Assessment | $3.65 | $3.65 | $0.00 | $0.00 | $0.00 | $7.30 |
| 2026 | 7626 | WAT - Clean Water District | $13.00 | $13.00 | $0.00 | $0.00 | $0.00 | $26.00 |
| 2026 | 7626 | FP ADMIN - FP ADMIN | $0.50 | $0.00 | $0.00 | $0.00 | $0.00 | $0.50 |
| 2026 | 7626 | TOTAL: | $424.20 | $423.62 | $0.00 | $0.00 | $0.00 | $847.82 |
|
| 2026 | 7626 | $424.20 | $423.62 | $0.00 | $0.00 | $0.00 | $847.82 |
Statement Details |
| 2025 | 7647 | STATE - STATE LEVY (SCHOOL) | $122.20 | $122.18 | $0.00 | $0.00 | $244.38 | $0.00 |
| 2025 | 7647 | COUNTY - COUNTY LEVIES (CE, DD, VET, MH) | $48.05 | $48.04 | $0.00 | $0.00 | $96.09 | $0.00 |
| 2025 | 7647 | CONSERVE - CONSERVATION FUTURES | $1.44 | $1.44 | $0.00 | $0.00 | $2.88 | $0.00 |
| 2025 | 7647 | COROADS - COUNTY ROADS (ROADS, DIV TO CE) | $38.50 | $38.49 | $0.00 | $0.00 | $76.99 | $0.00 |
| 2025 | 7647 | PORTPT - PORT DISTRICT | $19.62 | $19.60 | $0.00 | $0.00 | $39.22 | $0.00 |
| 2025 | 7647 | PUD1 - PUD #1 | $3.15 | $3.14 | $0.00 | $0.00 | $6.29 | $0.00 |
| 2025 | 7647 | LIB1 - LIBRARY DIST #1 | $14.90 | $14.89 | $0.00 | $0.00 | $29.79 | $0.00 |
| 2025 | 7647 | HD2 - HOSP DIST #2 | $2.81 | $2.80 | $0.00 | $0.00 | $5.61 | $0.00 |
| 2025 | 7647 | SD48 - SCHOOL DIST #48 | $71.96 | $71.95 | $0.00 | $0.00 | $143.91 | $0.00 |
| 2025 | 7647 | FD2 - FIRE DISTRICT #2 | $39.73 | $39.73 | $0.00 | $0.00 | $79.46 | $0.00 |
| 2025 | 7647 | EMS2 - FIRE DIST #2 EMS | $22.37 | $22.37 | $0.00 | $0.00 | $44.74 | $0.00 |
| 2025 | 7647 | CEM2 - CEMETERY DIST #2 | $1.27 | $1.26 | $0.00 | $0.00 | $2.53 | $0.00 |
| 2025 | 7647 | FP - DNR Forest Fire Protection Assmt | $8.50 | $8.50 | $0.00 | $0.00 | $17.00 | $0.00 |
| 2025 | 7647 | FPLCA - DNR Landowner Contingency Assmt | $3.00 | $3.00 | $0.00 | $0.00 | $6.00 | $0.00 |
| 2025 | 7647 | JCCD - JC Conservation District | $2.70 | $2.70 | $0.00 | $0.00 | $5.40 | $0.00 |
| 2025 | 7647 | NWA - Noxious Weed Assessment | $2.60 | $2.60 | $0.00 | $0.00 | $5.20 | $0.00 |
| 2025 | 7647 | WAT - Clean Water District | $13.00 | $13.00 | $0.00 | $0.00 | $26.00 | $0.00 |
| 2025 | 7647 | FP ADMIN - FP ADMIN | $0.50 | $0.00 | $0.00 | $0.00 | $0.50 | $0.00 |
| 2025 | 7647 | TOTAL: | $416.30 | $415.69 | $0.00 | $0.00 | $831.99 | $0.00 |
|
| 2025 | 7647 | $416.30 | $415.69 | $0.00 | $0.00 | $831.99 | $0.00 |
Statement Details |
| 2024 | 7670 | STATE - STATE LEVY (SCHOOL) | $110.74 | $110.73 | $0.00 | $0.00 | $221.47 | $0.00 |
| 2024 | 7670 | COUNTY - COUNTY LEVIES (CE, DD, VET, MH) | $47.39 | $47.39 | $0.00 | $0.00 | $94.78 | $0.00 |
| 2024 | 7670 | CONSERVE - CONSERVATION FUTURES | $1.42 | $1.42 | $0.00 | $0.00 | $2.84 | $0.00 |
| 2024 | 7670 | COROADS - COUNTY ROADS (ROADS, DIV TO CE) | $38.13 | $38.13 | $0.00 | $0.00 | $76.26 | $0.00 |
| 2024 | 7670 | PORTPT - PORT DISTRICT | $19.57 | $19.57 | $0.00 | $0.00 | $39.14 | $0.00 |
| 2024 | 7670 | PUD1 - PUD #1 | $3.11 | $3.11 | $0.00 | $0.00 | $6.22 | $0.00 |
| 2024 | 7670 | LIB1 - LIBRARY DIST #1 | $14.75 | $14.75 | $0.00 | $0.00 | $29.50 | $0.00 |
| 2024 | 7670 | HD2 - HOSP DIST #2 | $2.77 | $2.76 | $0.00 | $0.00 | $5.53 | $0.00 |
| 2024 | 7670 | SD48 - SCHOOL DIST #48 | $49.60 | $49.59 | $0.00 | $0.00 | $99.19 | $0.00 |
| 2024 | 7670 | FD2 - FIRE DISTRICT #2 | $39.40 | $39.39 | $0.00 | $0.00 | $78.79 | $0.00 |
| 2024 | 7670 | EMS2 - FIRE DIST #2 EMS | $22.18 | $22.17 | $0.00 | $0.00 | $44.35 | $0.00 |
| 2024 | 7670 | CEM2 - CEMETERY DIST #2 | $1.26 | $1.26 | $0.00 | $0.00 | $2.52 | $0.00 |
| 2024 | 7670 | FP - DNR Forest Fire Protection Assmt | $8.50 | $8.50 | $0.00 | $0.00 | $17.00 | $0.00 |
| 2024 | 7670 | FPLCA - DNR Landowner Contingency Assmt | $3.00 | $3.00 | $0.00 | $0.00 | $6.00 | $0.00 |
| 2024 | 7670 | JCCD - JC Conservation District | $2.70 | $2.70 | $0.00 | $0.00 | $5.40 | $0.00 |
| 2024 | 7670 | NWA - Noxious Weed Assessment | $2.60 | $2.60 | $0.00 | $0.00 | $5.20 | $0.00 |
| 2024 | 7670 | WAT - Clean Water District | $12.50 | $12.50 | $0.00 | $0.00 | $25.00 | $0.00 |
| 2024 | 7670 | FP ADMIN - FP ADMIN | $0.50 | $0.00 | $0.00 | $0.00 | $0.50 | $0.00 |
| 2024 | 7670 | TOTAL: | $380.12 | $379.57 | $0.00 | $0.00 | $759.69 | $0.00 |
|
| 2024 | 7670 | $380.12 | $379.57 | $0.00 | $0.00 | $759.69 | $0.00 |
Statement Details |
| 2023 | 7684 | STATE - STATE LEVY (SCHOOL) | $104.54 | $104.53 | $0.00 | $0.00 | $209.07 | $0.00 |
| 2023 | 7684 | COUNTY - COUNTY LEVIES (CE, DD, VET, MH) | $45.62 | $45.61 | $0.00 | $0.00 | $91.23 | $0.00 |
| 2023 | 7684 | CONSERVE - CONSERVATION FUTURES | $1.37 | $1.37 | $0.00 | $0.00 | $2.74 | $0.00 |
| 2023 | 7684 | COROADS - COUNTY ROADS (ROADS, DIV TO CE) | $36.92 | $36.90 | $0.00 | $0.00 | $73.82 | $0.00 |
| 2023 | 7684 | PORTPT - PORT DISTRICT | $19.22 | $19.21 | $0.00 | $0.00 | $38.43 | $0.00 |
| 2023 | 7684 | PUD1 - PUD #1 | $3.03 | $3.02 | $0.00 | $0.00 | $6.05 | $0.00 |
| 2023 | 7684 | LIB1 - LIBRARY DIST #1 | $14.28 | $14.28 | $0.00 | $0.00 | $28.56 | $0.00 |
| 2023 | 7684 | HD2 - HOSP DIST #2 | $2.66 | $2.66 | $0.00 | $0.00 | $5.32 | $0.00 |
| 2023 | 7684 | SD48 - SCHOOL DIST #48 | $50.48 | $50.48 | $0.00 | $0.00 | $100.96 | $0.00 |
| 2023 | 7684 | FD2 - FIRE DISTRICT #2 | $39.60 | $39.59 | $0.00 | $0.00 | $79.19 | $0.00 |
| 2023 | 7684 | EMS2 - FIRE DIST #2 EMS | $22.20 | $22.20 | $0.00 | $0.00 | $44.40 | $0.00 |
| 2023 | 7684 | CEM2 - CEMETERY DIST #2 | $1.26 | $1.26 | $0.00 | $0.00 | $2.52 | $0.00 |
| 2023 | 7684 | FP - DNR Forest Fire Protection Assmt | $8.50 | $8.50 | $0.00 | $0.00 | $17.00 | $0.00 |
| 2023 | 7684 | FPLCA - DNR Landowner Contingency Assmt | $3.00 | $3.00 | $0.00 | $0.00 | $6.00 | $0.00 |
| 2023 | 7684 | JCCD - JC Conservation District | $2.70 | $2.70 | $0.00 | $0.00 | $5.40 | $0.00 |
| 2023 | 7684 | NWA - Noxious Weed Assessment | $2.60 | $2.60 | $0.00 | $0.00 | $5.20 | $0.00 |
| 2023 | 7684 | WAT - Clean Water District | $12.00 | $12.00 | $0.00 | $0.00 | $24.00 | $0.00 |
| 2023 | 7684 | FP ADMIN - FP ADMIN | $0.50 | $0.00 | $0.00 | $0.00 | $0.50 | $0.00 |
| 2023 | 7684 | TOTAL: | $370.48 | $369.91 | $0.00 | $0.00 | $740.39 | $0.00 |
|
| 2023 | 7684 | $370.48 | $369.91 | $0.00 | $0.00 | $740.39 | $0.00 |
Values
| (+) Improvement Homesite Value: | + | $0 | |
| (+) Improvement Non-Homesite Value: | + | $3,312 | |
| (+) Land Homesite Value: | + | $0 | |
| (+) Land Non-Homesite Value: | + | $103,224 | |
| (+) Curr Use (HS): | + | $0 | $0 |
| (+) Curr Use (NHS): | + | $0 | $0 |
| | | -------------------------- | |
| (=) Market Value: | = | $106,536 | |
| (–) Productivity Loss: | – | $0 | |
| | | -------------------------- | |
| (=) Subtotal: | = | $106,536 | |
| (+) Senior Appraised Value: | + | $0 | |
| (+) Non-Senior Appraised Value: | + | $106,536 | |
| | | -------------------------- | |
| (=) Total Appraised Value: | = | $106,536 | |
| (–) Senior Exemption Loss: | – | $0 | |
| (–) Exemption Loss: | – | $0 | |
| | | -------------------------- | |
| (=) Taxable Value: | = | $106,536 | |
Taxing Jurisdiction
| Owner: | SUSAN M FULLER | | |
| % Ownership: | 100.0000000000% | | |
| Total Value: | $106,536 | | |
| Tax Area: | 0321 - 1-48F2E2H2C2L1 |
| CE | COUNTY CURRENT EXPENSE | 0.9034619479 | $106,536 | $106,536 | $96.25 | | |
| CNTYDD | DEVELOPMENTAL DISABILITIES | 0.0052121823 | $106,536 | $106,536 | $0.56 | | |
| CNTYVET | VETERANS RELIEF | 0.0052777810 | $106,536 | $106,536 | $0.56 | | |
| MENTAL | MENTAL HEALTH | 0.0052121823 | $106,536 | $106,536 | $0.56 | | |
| ROADS | COUNTY ROADS | 0.7415066410 | $106,536 | $106,536 | $79.00 | | |
| ROADSCU | COUNTY ROADS TO CUR EXP | 0.0000000000 | $106,536 | $106,536 | $0.00 | | |
| HOSP2CASH | HOSP DIST #2 GENERAL | 0.0536075306 | $106,536 | $106,536 | $5.71 | | |
| SCH48MO | SCHOOL DIST #48 EP & O | 1.4120478917 | $106,536 | $106,536 | $150.43 | | |
| CEM2 | CEMETERY DIST #2 GENERAL | 0.0241266154 | $106,536 | $106,536 | $2.57 | | |
| CONSERVE | CONSERVATION FUTURES | 0.0275621078 | $106,536 | $106,536 | $2.94 | | |
| FD2 | FIRE DIST #2 GENERAL | 0.7549976873 | $106,536 | $106,536 | $80.43 | | |
| LIB1 | LIBRARY DIST #1 GENERAL | 0.2868827388 | $106,536 | $106,536 | $30.56 | | |
| PORTPT | PORT OF PT GENERAL | 0.1134941229 | $106,536 | $106,536 | $12.09 | | |
| PORTPTIDD | PORT OF PT IDD 2019 | 0.2577346692 | $106,536 | $106,536 | $27.46 | | |
| PUD1 | PUD #1 GENERAL | 0.0597888892 | $106,536 | $106,536 | $6.37 | | |
| STATE | STATE SCHOOL PART 1 | 1.4940692947 | $106,536 | $106,536 | $159.17 | | |
| STATE2 | STATE SCHOOL PART 2 | 0.8050170049 | $106,536 | $106,536 | $85.76 | | |
| EMS2 | FIRE DIST #2 EMS | 0.4251727858 | $106,536 | $106,536 | $45.30 | | |
| | Total Tax Rate: | 7.3751720728 | | | | | |
| | | | | Taxes w/Current Exemptions: | $785.72 | | |
| | | | | Taxes w/o Exemptions: | $785.72 | | |
Improvement / Building
| Improvement #1: | Site Improvements | State Code: | 18 | 0.0 sqft | Value: | $3,312 |
Sketch
| No sketches available for this property. |
Property Image
Land
| 1 | 2525-1374S | | 1.0000 | 43560.00 | 0.00 | 0.00 | 1.00 | $75,900 | $0 |
| 2 | 1575A | | 2.9700 | 129373.20 | 0.00 | 0.00 | 0.00 | $27,324 | $0 |
Roll Value History
| 2026 | N/A | N/A | N/A | N/A | N/A |
| 2025 | $3,312 | $103,224 | $0 | $106,536 | $106,536 |
| 2024 | $3,174 | $98,736 | $0 | $101,910 | $101,910 |
| 2023 | $3,036 | $92,689 | $0 | $95,725 | $95,725 |
| 2022 | $2,760 | $86,048 | $0 | $88,808 | $88,808 |
Deed and Sales History
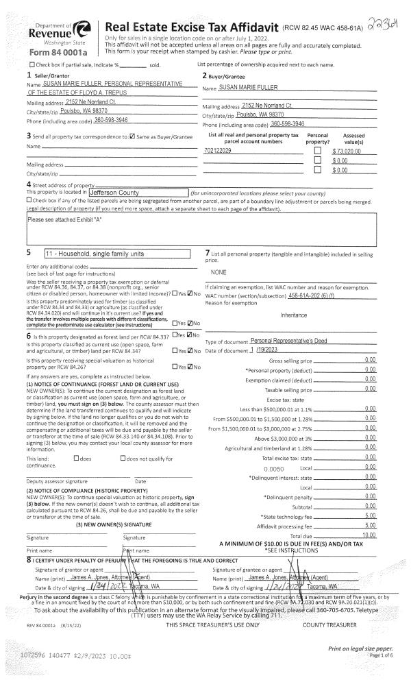
| 1 | 02/09/2023 | PRD | Personal Representatives Deed | LARRY R FULLER | SUSAN M FULLER | | | | 140477 | |
| 2 | 10/07/2004 | SWD | Statutory Warranty Deed | BROOKS, ROBERT D/WENDY S | FULLER, LARRY R/SUSAN M | 0 | 0 | $56,000.00 | 101681 | 0 |
Payout Agreement
| No payout information available.. |