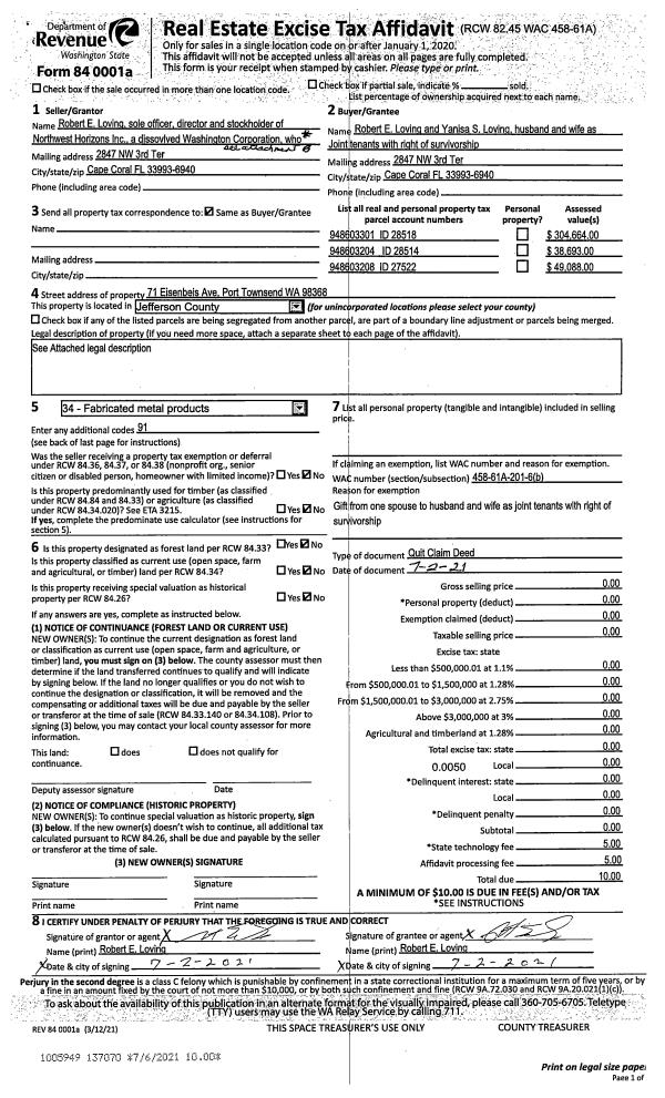
Property
Account |
| Property ID: | 18320 | Abbreviated Legal Description: | S22 T27 R2W TAX 28 BND TGTH THRU BLA#102582 |
| Parcel # / Geo ID: | 702224003 | Agent Code: | |
| Type: | Real | | |
| Tax Area: | 0320 - 1-48F2E2H2C2L1Z2 | Land Use Code | 91 |
| Open Space: | N | DFL | N |
| Historic Property: | N | Remodel Property: | N |
| Multi-Family Redevelopment: | N | | |
| Township: | 27N | Section: | 22 |
| Range: | 2W |
Location |
| Address: | | Mapsco: | 162/075 |
| Neighborhood: | S19-22, S27-34 T27N R2W & RIVER VALLEY VIEW/JEFFCO/LOG CABIN | Map ID: | |
| Neighborhood CD: | 2590 |
Owner |
| Name: | JJC RESOURCES LLC | Owner ID: | 107611 |
| Mailing Address: | A WA LIMITED LIABILITY CO P O BOX 428 PORT ANGELES, WA 98362-0428 | % Ownership: | 100.0000000000% |
| | | Exemptions: | |
Pay Tax Due
Select the appropriate checkbox next to the year to be paid. Multiple years may be selected.
*Convenience Fee not included
Taxes and Assessment Details
Property Tax Information as of
03/11/2026
Click on "Statement Details" to expand or collapse a tax statement.
* Please enter a valid date ** Please enter a valid date *
Statement Details |
| 2026 | 7848 | STATE - STATE LEVY (SCHOOL) | $112.86 | $112.85 | $0.00 | $0.00 | $0.00 | $225.71 |
| 2026 | 7848 | COUNTY - COUNTY LEVIES (CE, DD, VET, MH) | $45.13 | $45.11 | $0.00 | $0.00 | $0.00 | $90.24 |
| 2026 | 7848 | CONSERVE - CONSERVATION FUTURES | $1.36 | $1.35 | $0.00 | $0.00 | $0.00 | $2.71 |
| 2026 | 7848 | COROADS - COUNTY ROADS (ROADS, DIV TO CE) | $36.40 | $36.40 | $0.00 | $0.00 | $0.00 | $72.80 |
| 2026 | 7848 | PORTPT - PORT DISTRICT | $18.22 | $18.22 | $0.00 | $0.00 | $0.00 | $36.44 |
| 2026 | 7848 | PUD1 - PUD #1 | $2.94 | $2.93 | $0.00 | $0.00 | $0.00 | $5.87 |
| 2026 | 7848 | LIB1 - LIBRARY DIST #1 | $14.08 | $14.08 | $0.00 | $0.00 | $0.00 | $28.16 |
| 2026 | 7848 | HD2 - HOSP DIST #2 | $2.63 | $2.63 | $0.00 | $0.00 | $0.00 | $5.26 |
| 2026 | 7848 | SD48 - SCHOOL DIST #48 | $69.31 | $69.31 | $0.00 | $0.00 | $0.00 | $138.62 |
| 2026 | 7848 | FD2 - FIRE DISTRICT #2 | $37.06 | $37.06 | $0.00 | $0.00 | $0.00 | $74.12 |
| 2026 | 7848 | EMS2 - FIRE DIST #2 EMS | $20.87 | $20.87 | $0.00 | $0.00 | $0.00 | $41.74 |
| 2026 | 7848 | CEM2 - CEMETERY DIST #2 | $1.19 | $1.18 | $0.00 | $0.00 | $0.00 | $2.37 |
| 2026 | 7848 | FPLCA - DNR Landowner Contingency Assmt | $3.00 | $3.00 | $0.00 | $0.00 | $0.00 | $6.00 |
| 2026 | 7848 | JCCD - JC Conservation District | $2.85 | $2.85 | $0.00 | $0.00 | $0.00 | $5.70 |
| 2026 | 7848 | NWA - Noxious Weed Assessment | $4.78 | $4.77 | $0.00 | $0.00 | $0.00 | $9.55 |
| 2026 | 7848 | WAT - Clean Water District | $13.00 | $13.00 | $0.00 | $0.00 | $0.00 | $26.00 |
| 2026 | 7848 | TOTAL: | $385.68 | $385.61 | $0.00 | $0.00 | $0.00 | $771.29 |
|
| 2026 | 7848 | $385.68 | $385.61 | $0.00 | $0.00 | $0.00 | $771.29 |
Statement Details |
| 2025 | 7869 | STATE - STATE LEVY (SCHOOL) | $112.60 | $112.58 | $0.00 | $0.00 | $225.18 | $0.00 |
| 2025 | 7869 | COUNTY - COUNTY LEVIES (CE, DD, VET, MH) | $44.28 | $44.27 | $0.00 | $0.00 | $88.55 | $0.00 |
| 2025 | 7869 | CONSERVE - CONSERVATION FUTURES | $1.33 | $1.33 | $0.00 | $0.00 | $2.66 | $0.00 |
| 2025 | 7869 | COROADS - COUNTY ROADS (ROADS, DIV TO CE) | $35.48 | $35.46 | $0.00 | $0.00 | $70.94 | $0.00 |
| 2025 | 7869 | PORTPT - PORT DISTRICT | $18.07 | $18.06 | $0.00 | $0.00 | $36.13 | $0.00 |
| 2025 | 7869 | PUD1 - PUD #1 | $2.90 | $2.89 | $0.00 | $0.00 | $5.79 | $0.00 |
| 2025 | 7869 | LIB1 - LIBRARY DIST #1 | $13.73 | $13.72 | $0.00 | $0.00 | $27.45 | $0.00 |
| 2025 | 7869 | HD2 - HOSP DIST #2 | $2.59 | $2.58 | $0.00 | $0.00 | $5.17 | $0.00 |
| 2025 | 7869 | SD48 - SCHOOL DIST #48 | $66.31 | $66.30 | $0.00 | $0.00 | $132.61 | $0.00 |
| 2025 | 7869 | FD2 - FIRE DISTRICT #2 | $36.61 | $36.61 | $0.00 | $0.00 | $73.22 | $0.00 |
| 2025 | 7869 | EMS2 - FIRE DIST #2 EMS | $20.62 | $20.61 | $0.00 | $0.00 | $41.23 | $0.00 |
| 2025 | 7869 | CEM2 - CEMETERY DIST #2 | $1.17 | $1.17 | $0.00 | $0.00 | $2.34 | $0.00 |
| 2025 | 7869 | FPLCA - DNR Landowner Contingency Assmt | $3.00 | $3.00 | $0.00 | $0.00 | $6.00 | $0.00 |
| 2025 | 7869 | JCCD - JC Conservation District | $2.85 | $2.85 | $0.00 | $0.00 | $5.70 | $0.00 |
| 2025 | 7869 | NWA - Noxious Weed Assessment | $3.35 | $3.35 | $0.00 | $0.00 | $6.70 | $0.00 |
| 2025 | 7869 | WAT - Clean Water District | $13.00 | $13.00 | $0.00 | $0.00 | $26.00 | $0.00 |
| 2025 | 7869 | TOTAL: | $377.89 | $377.78 | $0.00 | $0.00 | $755.67 | $0.00 |
|
| 2025 | 7869 | $377.89 | $377.78 | $0.00 | $0.00 | $755.67 | $0.00 |
Statement Details |
| 2024 | 7892 | STATE - STATE LEVY (SCHOOL) | $101.30 | $101.29 | $0.00 | $0.00 | $202.59 | $0.00 |
| 2024 | 7892 | COUNTY - COUNTY LEVIES (CE, DD, VET, MH) | $43.36 | $43.34 | $0.00 | $0.00 | $86.70 | $0.00 |
| 2024 | 7892 | CONSERVE - CONSERVATION FUTURES | $1.30 | $1.30 | $0.00 | $0.00 | $2.60 | $0.00 |
| 2024 | 7892 | COROADS - COUNTY ROADS (ROADS, DIV TO CE) | $34.89 | $34.87 | $0.00 | $0.00 | $69.76 | $0.00 |
| 2024 | 7892 | PORTPT - PORT DISTRICT | $17.90 | $17.90 | $0.00 | $0.00 | $35.80 | $0.00 |
| 2024 | 7892 | PUD1 - PUD #1 | $2.85 | $2.84 | $0.00 | $0.00 | $5.69 | $0.00 |
| 2024 | 7892 | LIB1 - LIBRARY DIST #1 | $13.50 | $13.49 | $0.00 | $0.00 | $26.99 | $0.00 |
| 2024 | 7892 | HD2 - HOSP DIST #2 | $2.53 | $2.53 | $0.00 | $0.00 | $5.06 | $0.00 |
| 2024 | 7892 | SD48 - SCHOOL DIST #48 | $45.37 | $45.37 | $0.00 | $0.00 | $90.74 | $0.00 |
| 2024 | 7892 | FD2 - FIRE DISTRICT #2 | $36.04 | $36.03 | $0.00 | $0.00 | $72.07 | $0.00 |
| 2024 | 7892 | EMS2 - FIRE DIST #2 EMS | $20.29 | $20.28 | $0.00 | $0.00 | $40.57 | $0.00 |
| 2024 | 7892 | CEM2 - CEMETERY DIST #2 | $1.16 | $1.15 | $0.00 | $0.00 | $2.31 | $0.00 |
| 2024 | 7892 | FPLCA - DNR Landowner Contingency Assmt | $3.00 | $3.00 | $0.00 | $0.00 | $6.00 | $0.00 |
| 2024 | 7892 | JCCD - JC Conservation District | $2.85 | $2.85 | $0.00 | $0.00 | $5.70 | $0.00 |
| 2024 | 7892 | NWA - Noxious Weed Assessment | $3.35 | $3.35 | $0.00 | $0.00 | $6.70 | $0.00 |
| 2024 | 7892 | WAT - Clean Water District | $12.50 | $12.50 | $0.00 | $0.00 | $25.00 | $0.00 |
| 2024 | 7892 | TOTAL: | $342.19 | $342.09 | $0.00 | $0.00 | $684.28 | $0.00 |
|
| 2024 | 7892 | $342.19 | $342.09 | $0.00 | $0.00 | $684.28 | $0.00 |
Statement Details |
| 2023 | 7908 | STATE - STATE LEVY (SCHOOL) | $87.64 | $87.63 | $0.00 | $0.00 | $175.27 | $0.00 |
| 2023 | 7908 | COUNTY - COUNTY LEVIES (CE, DD, VET, MH) | $38.25 | $38.22 | $0.00 | $0.00 | $76.47 | $0.00 |
| 2023 | 7908 | CONSERVE - CONSERVATION FUTURES | $1.15 | $1.14 | $0.00 | $0.00 | $2.29 | $0.00 |
| 2023 | 7908 | COROADS - COUNTY ROADS (ROADS, DIV TO CE) | $30.95 | $30.93 | $0.00 | $0.00 | $61.88 | $0.00 |
| 2023 | 7908 | PORTPT - PORT DISTRICT | $16.11 | $16.10 | $0.00 | $0.00 | $32.21 | $0.00 |
| 2023 | 7908 | PUD1 - PUD #1 | $2.54 | $2.53 | $0.00 | $0.00 | $5.07 | $0.00 |
| 2023 | 7908 | LIB1 - LIBRARY DIST #1 | $11.97 | $11.97 | $0.00 | $0.00 | $23.94 | $0.00 |
| 2023 | 7908 | HD2 - HOSP DIST #2 | $2.24 | $2.22 | $0.00 | $0.00 | $4.46 | $0.00 |
| 2023 | 7908 | SD48 - SCHOOL DIST #48 | $42.32 | $42.32 | $0.00 | $0.00 | $84.64 | $0.00 |
| 2023 | 7908 | FD2 - FIRE DISTRICT #2 | $33.20 | $33.19 | $0.00 | $0.00 | $66.39 | $0.00 |
| 2023 | 7908 | EMS2 - FIRE DIST #2 EMS | $18.62 | $18.61 | $0.00 | $0.00 | $37.23 | $0.00 |
| 2023 | 7908 | CEM2 - CEMETERY DIST #2 | $1.06 | $1.05 | $0.00 | $0.00 | $2.11 | $0.00 |
| 2023 | 7908 | FPLCA - DNR Landowner Contingency Assmt | $3.00 | $3.00 | $0.00 | $0.00 | $6.00 | $0.00 |
| 2023 | 7908 | JCCD - JC Conservation District | $2.85 | $2.85 | $0.00 | $0.00 | $5.70 | $0.00 |
| 2023 | 7908 | NWA - Noxious Weed Assessment | $3.35 | $3.35 | $0.00 | $0.00 | $6.70 | $0.00 |
| 2023 | 7908 | WAT - Clean Water District | $12.00 | $12.00 | $0.00 | $0.00 | $24.00 | $0.00 |
| 2023 | 7908 | TOTAL: | $307.25 | $307.11 | $0.00 | $0.00 | $614.36 | $0.00 |
|
| 2023 | 7908 | $307.25 | $307.11 | $0.00 | $0.00 | $614.36 | $0.00 |
Values
| (+) Improvement Homesite Value: | + | $0 | |
| (+) Improvement Non-Homesite Value: | + | $0 | |
| (+) Land Homesite Value: | + | $0 | |
| (+) Land Non-Homesite Value: | + | $98,173 | |
| (+) Curr Use (HS): | + | $0 | $0 |
| (+) Curr Use (NHS): | + | $0 | $0 |
| | | -------------------------- | |
| (=) Market Value: | = | $98,173 | |
| (–) Productivity Loss: | – | $0 | |
| | | -------------------------- | |
| (=) Subtotal: | = | $98,173 | |
| (+) Senior Appraised Value: | + | $0 | |
| (+) Non-Senior Appraised Value: | + | $98,173 | |
| | | -------------------------- | |
| (=) Total Appraised Value: | = | $98,173 | |
| (–) Senior Exemption Loss: | – | $0 | |
| (–) Exemption Loss: | – | $0 | |
| | | -------------------------- | |
| (=) Taxable Value: | = | $98,173 | |
Taxing Jurisdiction
| Owner: | JJC RESOURCES LLC | | |
| % Ownership: | 100.0000000000% | | |
| Total Value: | N/A | | |
| Tax Area: | 0320 - 1-48F2E2H2C2L1Z2 |
| CE | COUNTY CURRENT EXPENSE | N/A | N/A | N/A | N/A | | |
| CNTYDD | DEVELOPMENTAL DISABILITIES | N/A | N/A | N/A | N/A | | |
| CNTYVET | VETERANS RELIEF | N/A | N/A | N/A | N/A | | |
| MENTAL | MENTAL HEALTH | N/A | N/A | N/A | N/A | | |
| ROADS | COUNTY ROADS | N/A | N/A | N/A | N/A | | |
| HOSP2CASH | HOSP DIST #2 GENERAL | N/A | N/A | N/A | N/A | | |
| SCH48MO | SCHOOL DIST #48 EP & O | N/A | N/A | N/A | N/A | | |
| CEM2 | CEMETERY DIST #2 GENERAL | N/A | N/A | N/A | N/A | | |
| CONSERVE | CONSERVATION FUTURES | N/A | N/A | N/A | N/A | | |
| FD2 | FIRE DIST #2 GENERAL | N/A | N/A | N/A | N/A | | |
| LIB1 | LIBRARY DIST #1 GENERAL | N/A | N/A | N/A | N/A | | |
| PORTPT | PORT OF PT GENERAL | N/A | N/A | N/A | N/A | | |
| PORTPTIDD | PORT OF PT IDD 2019 | N/A | N/A | N/A | N/A | | |
| PUD1 | PUD #1 GENERAL | N/A | N/A | N/A | N/A | | |
| STATE | STATE SCHOOL PART 1 | N/A | N/A | N/A | N/A | | |
| STATE2 | STATE SCHOOL PART 2 | N/A | N/A | N/A | N/A | | |
| EMS2 | FIRE DIST #2 EMS | N/A | N/A | N/A | N/A | | |
| | Total Tax Rate: | N/A | | | | | |
| | | | | Taxes w/Current Exemptions: | N/A | | |
| | | | | Taxes w/o Exemptions: | N/A | | |
Improvement / Building
Sketch
| No sketches available for this property. |
Property Image
Land
| 1 | 2590-1375S | | 1.0000 | 43560.00 | 0.00 | 0.00 | 1.00 | $46,000 | $0 |
| 2 | 1677A | | 7.8900 | 343688.40 | 0.00 | 0.00 | 0.00 | $52,173 | $0 |
Roll Value History
| 2026 | N/A | N/A | N/A | N/A | N/A |
| 2025 | $0 | $98,173 | $0 | $98,173 | $98,173 |
| 2024 | $0 | $93,905 | $0 | $93,905 | $93,905 |
| 2023 | $0 | $87,565 | $0 | $87,565 | $87,565 |
| 2022 | $0 | $74,450 | $0 | $74,450 | $74,450 |
Deed and Sales History
| 1 | 08/24/2022 | BSD | Bargain and Sale Deed | MARILEE PHILLIPS | JJC RESOURCES LLC | | | $1,743,500.00 | 139785 | |
|   | |
| 2 | 01/04/2017 | QCD | Quit Claim Deed | GARY PHILLIPS | MARILEE PHILLIPS | | | | 128672 | |
| 3 | 11/09/2017 | QCD | Quit Claim Deed | | | | | | 129251 | |
| 4 | 01/07/2005 | BLA | Boundary Line Adjustment | PHILLIPS, GARY & MARILEE | PHILLIPS, GARY & MARILEE | 0 | 0 | $0.00 | 102582 | 0 |
| 5 | 12/12/2002 | MISC | MISC | JEFFERSON COUNTY | PHILLIPS, GARY & MARI | 0 | 0 | $43,500.00 | 96186 | 0 |
|   | |
Payout Agreement
| No payout information available.. |