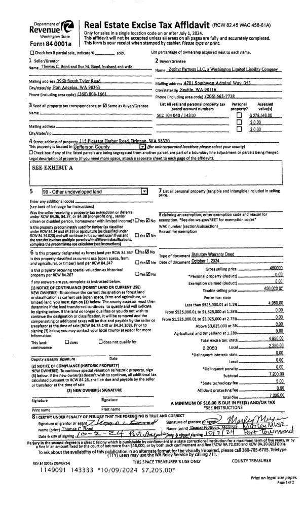
Property
Account |
| Property ID: | 18350 | Abbreviated Legal Description: | S23 T27 R2W TX 7 AND TX 2(S60') SUBJ TO EASE |
| Parcel # / Geo ID: | 702231011 | Agent Code: | |
| Type: | Real | | |
| Tax Area: | 0324 - 1-48F2E2H2C2L1Z3 | Land Use Code | 11 |
| Open Space: | N | DFL | N |
| Historic Property: | N | Remodel Property: | N |
| Multi-Family Redevelopment: | N | | |
| Township: | 27N | Section: | 23 |
| Range: | 2W |
Location |
| Address: | 63 DEEMA SMAKMAN RD 65 QUILCENE, WA 98376 | Mapsco: | 163/026 |
| Neighborhood: | S23 T27N R2W & TRANQUILCENE & ANDERSON S.P. & JONES S.P. | Map ID: | |
| Neighborhood CD: | 2560 |
Owner |
| Name: | STEPHEN T FRENCH | Owner ID: | 16048 |
| Mailing Address: | PO BOX 248 QUILCENE, WA 98376-0248 | % Ownership: | 100.0000000000% |
| | | Exemptions: | |
Pay Tax Due
Select the appropriate checkbox next to the year to be paid. Multiple years may be selected.
*Convenience Fee not included
Taxes and Assessment Details
Property Tax Information as of
03/10/2026
Click on "Statement Details" to expand or collapse a tax statement.
* Please enter a valid date ** Please enter a valid date *
Statement Details |
| 2026 | 7877 | STATE - STATE LEVY (SCHOOL) | $329.72 | $329.72 | $0.00 | $0.00 | $0.00 | $659.44 |
| 2026 | 7877 | COUNTY - COUNTY LEVIES (CE, DD, VET, MH) | $131.83 | $131.80 | $0.00 | $0.00 | $0.00 | $263.63 |
| 2026 | 7877 | CONSERVE - CONSERVATION FUTURES | $3.96 | $3.95 | $0.00 | $0.00 | $0.00 | $7.91 |
| 2026 | 7877 | COROADS - COUNTY ROADS (ROADS, DIV TO CE) | $106.34 | $106.34 | $0.00 | $0.00 | $0.00 | $212.68 |
| 2026 | 7877 | PORTPT - PORT DISTRICT | $53.25 | $53.23 | $0.00 | $0.00 | $0.00 | $106.48 |
| 2026 | 7877 | PUD1 - PUD #1 | $8.58 | $8.57 | $0.00 | $0.00 | $0.00 | $17.15 |
| 2026 | 7877 | LIB1 - LIBRARY DIST #1 | $41.15 | $41.14 | $0.00 | $0.00 | $0.00 | $82.29 |
| 2026 | 7877 | HD2 - HOSP DIST #2 | $7.69 | $7.69 | $0.00 | $0.00 | $0.00 | $15.38 |
| 2026 | 7877 | SD48 - SCHOOL DIST #48 | $202.51 | $202.50 | $0.00 | $0.00 | $0.00 | $405.01 |
| 2026 | 7877 | FD2 - FIRE DISTRICT #2 | $108.28 | $108.27 | $0.00 | $0.00 | $0.00 | $216.55 |
| 2026 | 7877 | EMS2 - FIRE DIST #2 EMS | $60.98 | $60.97 | $0.00 | $0.00 | $0.00 | $121.95 |
| 2026 | 7877 | CEM2 - CEMETERY DIST #2 | $3.46 | $3.46 | $0.00 | $0.00 | $0.00 | $6.92 |
| 2026 | 7877 | FP - DNR Forest Fire Protection Assmt | $8.50 | $8.50 | $0.00 | $0.00 | $0.00 | $17.00 |
| 2026 | 7877 | FPLCA - DNR Landowner Contingency Assmt | $3.00 | $3.00 | $0.00 | $0.00 | $0.00 | $6.00 |
| 2026 | 7877 | JCCD - JC Conservation District | $2.70 | $2.70 | $0.00 | $0.00 | $0.00 | $5.40 |
| 2026 | 7877 | NWA - Noxious Weed Assessment | $3.65 | $3.65 | $0.00 | $0.00 | $0.00 | $7.30 |
| 2026 | 7877 | OSS - On Site Septic | $46.20 | $46.20 | $0.00 | $0.00 | $0.00 | $92.40 |
| 2026 | 7877 | WAT - Clean Water District | $13.00 | $13.00 | $0.00 | $0.00 | $0.00 | $26.00 |
| 2026 | 7877 | FP ADMIN - FP ADMIN | $0.50 | $0.00 | $0.00 | $0.00 | $0.00 | $0.50 |
| 2026 | 7877 | TOTAL: | $1135.30 | $1134.69 | $0.00 | $0.00 | $0.00 | $2269.99 |
|
| 2026 | 7877 | $1135.30 | $1134.69 | $0.00 | $0.00 | $0.00 | $2269.99 |
Statement Details |
| 2025 | 7898 | STATE - STATE LEVY (SCHOOL) | $321.37 | $321.35 | $0.00 | $0.00 | $642.72 | $0.00 |
| 2025 | 7898 | COUNTY - COUNTY LEVIES (CE, DD, VET, MH) | $126.39 | $126.36 | $0.00 | $0.00 | $252.75 | $0.00 |
| 2025 | 7898 | CONSERVE - CONSERVATION FUTURES | $3.79 | $3.79 | $0.00 | $0.00 | $7.58 | $0.00 |
| 2025 | 7898 | COROADS - COUNTY ROADS (ROADS, DIV TO CE) | $101.25 | $101.24 | $0.00 | $0.00 | $202.49 | $0.00 |
| 2025 | 7898 | PORTPT - PORT DISTRICT | $51.58 | $51.56 | $0.00 | $0.00 | $103.14 | $0.00 |
| 2025 | 7898 | PUD1 - PUD #1 | $8.27 | $8.27 | $0.00 | $0.00 | $16.54 | $0.00 |
| 2025 | 7898 | LIB1 - LIBRARY DIST #1 | $39.17 | $39.17 | $0.00 | $0.00 | $78.34 | $0.00 |
| 2025 | 7898 | HD2 - HOSP DIST #2 | $7.38 | $7.37 | $0.00 | $0.00 | $14.75 | $0.00 |
| 2025 | 7898 | SD48 - SCHOOL DIST #48 | $189.24 | $189.24 | $0.00 | $0.00 | $378.48 | $0.00 |
| 2025 | 7898 | FD2 - FIRE DISTRICT #2 | $104.49 | $104.48 | $0.00 | $0.00 | $208.97 | $0.00 |
| 2025 | 7898 | EMS2 - FIRE DIST #2 EMS | $58.83 | $58.83 | $0.00 | $0.00 | $117.66 | $0.00 |
| 2025 | 7898 | CEM2 - CEMETERY DIST #2 | $3.34 | $3.33 | $0.00 | $0.00 | $6.67 | $0.00 |
| 2025 | 7898 | FP - DNR Forest Fire Protection Assmt | $8.50 | $8.50 | $0.00 | $0.00 | $17.00 | $0.00 |
| 2025 | 7898 | FPLCA - DNR Landowner Contingency Assmt | $3.00 | $3.00 | $0.00 | $0.00 | $6.00 | $0.00 |
| 2025 | 7898 | JCCD - JC Conservation District | $2.70 | $2.70 | $0.00 | $0.00 | $5.40 | $0.00 |
| 2025 | 7898 | NWA - Noxious Weed Assessment | $2.60 | $2.60 | $0.00 | $0.00 | $5.20 | $0.00 |
| 2025 | 7898 | OSS - On Site Septic | $43.00 | $43.00 | $0.00 | $0.00 | $86.00 | $0.00 |
| 2025 | 7898 | WAT - Clean Water District | $13.00 | $13.00 | $0.00 | $0.00 | $26.00 | $0.00 |
| 2025 | 7898 | FP ADMIN - FP ADMIN | $0.50 | $0.00 | $0.00 | $0.00 | $0.50 | $0.00 |
| 2025 | 7898 | TOTAL: | $1088.40 | $1087.79 | $0.00 | $0.00 | $2176.19 | $0.00 |
|
| 2025 | 7898 | $1088.40 | $1087.79 | $0.00 | $0.00 | $2176.19 | $0.00 |
Statement Details |
| 2024 | 7921 | STATE - STATE LEVY (SCHOOL) | $226.82 | $226.81 | $0.00 | $0.00 | $453.63 | $0.00 |
| 2024 | 7921 | COUNTY - COUNTY LEVIES (CE, DD, VET, MH) | $97.07 | $97.05 | $0.00 | $0.00 | $194.12 | $0.00 |
| 2024 | 7921 | CONSERVE - CONSERVATION FUTURES | $2.91 | $2.91 | $0.00 | $0.00 | $5.82 | $0.00 |
| 2024 | 7921 | COROADS - COUNTY ROADS (ROADS, DIV TO CE) | $78.11 | $78.09 | $0.00 | $0.00 | $156.20 | $0.00 |
| 2024 | 7921 | PORTPT - PORT DISTRICT | $40.10 | $40.08 | $0.00 | $0.00 | $80.18 | $0.00 |
| 2024 | 7921 | PUD1 - PUD #1 | $6.38 | $6.37 | $0.00 | $0.00 | $12.75 | $0.00 |
| 2024 | 7921 | LIB1 - LIBRARY DIST #1 | $30.22 | $30.21 | $0.00 | $0.00 | $60.43 | $0.00 |
| 2024 | 7921 | HD2 - HOSP DIST #2 | $5.67 | $5.66 | $0.00 | $0.00 | $11.33 | $0.00 |
| 2024 | 7921 | SD48 - SCHOOL DIST #48 | $101.59 | $101.59 | $0.00 | $0.00 | $203.18 | $0.00 |
| 2024 | 7921 | FD2 - FIRE DISTRICT #2 | $80.69 | $80.69 | $0.00 | $0.00 | $161.38 | $0.00 |
| 2024 | 7921 | EMS2 - FIRE DIST #2 EMS | $45.42 | $45.42 | $0.00 | $0.00 | $90.84 | $0.00 |
| 2024 | 7921 | CEM2 - CEMETERY DIST #2 | $2.58 | $2.58 | $0.00 | $0.00 | $5.16 | $0.00 |
| 2024 | 7921 | JCCD - JC Conservation District | $2.70 | $2.70 | $0.00 | $0.00 | $5.40 | $0.00 |
| 2024 | 7921 | NWA - Noxious Weed Assessment | $2.60 | $2.60 | $0.00 | $0.00 | $5.20 | $0.00 |
| 2024 | 7921 | OSS - On Site Septic | $42.00 | $42.00 | $0.00 | $0.00 | $84.00 | $0.00 |
| 2024 | 7921 | WAT - Clean Water District | $12.50 | $12.50 | $0.00 | $0.00 | $25.00 | $0.00 |
| 2024 | 7921 | TOTAL: | $777.36 | $777.26 | $0.00 | $0.00 | $1554.62 | $0.00 |
|
| 2024 | 7921 | $777.36 | $777.26 | $0.00 | $0.00 | $1554.62 | $0.00 |
Statement Details |
| 2023 | 7937 | STATE - STATE LEVY (SCHOOL) | $211.35 | $211.34 | $0.00 | $0.00 | $422.69 | $0.00 |
| 2023 | 7937 | COUNTY - COUNTY LEVIES (CE, DD, VET, MH) | $92.24 | $92.22 | $0.00 | $0.00 | $184.46 | $0.00 |
| 2023 | 7937 | CONSERVE - CONSERVATION FUTURES | $2.77 | $2.76 | $0.00 | $0.00 | $5.53 | $0.00 |
| 2023 | 7937 | COROADS - COUNTY ROADS (ROADS, DIV TO CE) | $74.62 | $74.61 | $0.00 | $0.00 | $149.23 | $0.00 |
| 2023 | 7937 | PORTPT - PORT DISTRICT | $38.86 | $38.85 | $0.00 | $0.00 | $77.71 | $0.00 |
| 2023 | 7937 | PUD1 - PUD #1 | $6.12 | $6.11 | $0.00 | $0.00 | $12.23 | $0.00 |
| 2023 | 7937 | LIB1 - LIBRARY DIST #1 | $28.87 | $28.87 | $0.00 | $0.00 | $57.74 | $0.00 |
| 2023 | 7937 | HD2 - HOSP DIST #2 | $5.39 | $5.37 | $0.00 | $0.00 | $10.76 | $0.00 |
| 2023 | 7937 | SD48 - SCHOOL DIST #48 | $102.06 | $102.06 | $0.00 | $0.00 | $204.12 | $0.00 |
| 2023 | 7937 | FD2 - FIRE DISTRICT #2 | $80.06 | $80.05 | $0.00 | $0.00 | $160.11 | $0.00 |
| 2023 | 7937 | EMS2 - FIRE DIST #2 EMS | $44.89 | $44.89 | $0.00 | $0.00 | $89.78 | $0.00 |
| 2023 | 7937 | CEM2 - CEMETERY DIST #2 | $2.55 | $2.55 | $0.00 | $0.00 | $5.10 | $0.00 |
| 2023 | 7937 | JCCD - JC Conservation District | $2.70 | $2.70 | $0.00 | $0.00 | $5.40 | $0.00 |
| 2023 | 7937 | NWA - Noxious Weed Assessment | $2.60 | $2.60 | $0.00 | $0.00 | $5.20 | $0.00 |
| 2023 | 7937 | OSS - On Site Septic | $41.00 | $41.00 | $0.00 | $0.00 | $82.00 | $0.00 |
| 2023 | 7937 | WAT - Clean Water District | $12.00 | $12.00 | $0.00 | $0.00 | $24.00 | $0.00 |
| 2023 | 7937 | TOTAL: | $748.08 | $747.98 | $0.00 | $0.00 | $1496.06 | $0.00 |
|
| 2023 | 7937 | $748.08 | $747.98 | $0.00 | $0.00 | $1496.06 | $0.00 |
Values
| (+) Improvement Homesite Value: | + | $0 | |
| (+) Improvement Non-Homesite Value: | + | $158,902 | |
| (+) Land Homesite Value: | + | $0 | |
| (+) Land Non-Homesite Value: | + | $127,926 | |
| (+) Curr Use (HS): | + | $0 | $0 |
| (+) Curr Use (NHS): | + | $0 | $0 |
| | | -------------------------- | |
| (=) Market Value: | = | $286,828 | |
| (–) Productivity Loss: | – | $0 | |
| | | -------------------------- | |
| (=) Subtotal: | = | $286,828 | |
| (+) Senior Appraised Value: | + | $0 | |
| (+) Non-Senior Appraised Value: | + | $286,828 | |
| | | -------------------------- | |
| (=) Total Appraised Value: | = | $286,828 | |
| (–) Senior Exemption Loss: | – | $0 | |
| (–) Exemption Loss: | – | $0 | |
| | | -------------------------- | |
| (=) Taxable Value: | = | $286,828 | |
Taxing Jurisdiction
| Owner: | STEPHEN T FRENCH | | |
| % Ownership: | 100.0000000000% | | |
| Total Value: | $286,828 | | |
| Tax Area: | 0324 - 1-48F2E2H2C2L1Z3 |
| CE | COUNTY CURRENT EXPENSE | 0.9034619479 | $286,828 | $286,828 | $259.14 | | |
| CNTYDD | DEVELOPMENTAL DISABILITIES | 0.0052121823 | $286,828 | $286,828 | $1.50 | | |
| CNTYVET | VETERANS RELIEF | 0.0052777810 | $286,828 | $286,828 | $1.51 | | |
| MENTAL | MENTAL HEALTH | 0.0052121823 | $286,828 | $286,828 | $1.50 | | |
| ROADS | COUNTY ROADS | 0.7415066410 | $286,828 | $286,828 | $212.68 | | |
| ROADSCU | COUNTY ROADS TO CUR EXP | 0.0000000000 | $286,828 | $286,828 | $0.00 | | |
| HOSP2CASH | HOSP DIST #2 GENERAL | 0.0536075306 | $286,828 | $286,828 | $15.38 | | |
| SCH48MO | SCHOOL DIST #48 EP & O | 1.4120478917 | $286,828 | $286,828 | $405.01 | | |
| CEM2 | CEMETERY DIST #2 GENERAL | 0.0241266154 | $286,828 | $286,828 | $6.92 | | |
| CONSERVE | CONSERVATION FUTURES | 0.0275621078 | $286,828 | $286,828 | $7.91 | | |
| FD2 | FIRE DIST #2 GENERAL | 0.7549976873 | $286,828 | $286,828 | $216.55 | | |
| LIB1 | LIBRARY DIST #1 GENERAL | 0.2868827388 | $286,828 | $286,828 | $82.29 | | |
| PORTPT | PORT OF PT GENERAL | 0.1134941229 | $286,828 | $286,828 | $32.55 | | |
| PORTPTIDD | PORT OF PT IDD 2019 | 0.2577346692 | $286,828 | $286,828 | $73.93 | | |
| PUD1 | PUD #1 GENERAL | 0.0597888892 | $286,828 | $286,828 | $17.15 | | |
| STATE | STATE SCHOOL PART 1 | 1.4940692947 | $286,828 | $286,828 | $428.54 | | |
| STATE2 | STATE SCHOOL PART 2 | 0.8050170049 | $286,828 | $286,828 | $230.90 | | |
| EMS2 | FIRE DIST #2 EMS | 0.4251727858 | $286,828 | $286,828 | $121.95 | | |
| | Total Tax Rate: | 7.3751720728 | | | | | |
| | | | | Taxes w/Current Exemptions: | $2,115.41 | | |
| | | | | Taxes w/o Exemptions: | $2,115.41 | | |
Improvement / Building
| Improvement #1: | Residential Bldg | State Code: | 11 | 1092.0 sqft | Value: | $157,577 |
| Bathrooms (#): | 1 (FULL) | Bedrooms (#): | 3 | | Exterior Wall: | SI/ST | Fireplace: | WD ST-GOOD | | Floor Construction: | FRAME | Foundation: | CONPR | | Heating/Cooling: | ELBB | Inside Verify: | NO | | Roof Cover: | COMP |   |   |
|
| Improvement #2: | Manufactured Home | State Code: | 11M | 728.0 sqft | Value: | $1,325 |
| Exterior Wall: | ECONO | Floor Construction: | FRAME | | Foundation: | PO&BL | Heating/Cooling: | F/A | | Inside Verify: | NO | Roof Cover: | ROLL |
|
Sketch
Property Image
Land
| 1 | 2560-1374S | | 1.0000 | 43560.00 | 0.00 | 0.00 | 1.00 | $109,250 | $0 |
| 2 | 1575A | | 2.0300 | 88426.80 | 0.00 | 0.00 | 0.00 | $18,676 | $0 |
Roll Value History
| 2026 | N/A | N/A | N/A | N/A | N/A |
| 2025 | $158,902 | $127,926 | $0 | $286,828 | $286,828 |
| 2024 | $145,659 | $122,364 | $0 | $268,023 | $268,023 |
| 2023 | $90,849 | $105,225 | $0 | $196,074 | $196,074 |
| 2022 | $90,849 | $88,703 | $0 | $179,552 | $179,552 |
Deed and Sales History
| 1 | 04/07/2016 | QCD | Quit Claim Deed | | | | | | 125167 | |
| 2 | 08/07/2014 | REC | Real Estate Contract | REBECCA A DOLAN | STEPHEN T FRENCH | | | $65,000.00 | 121684 | |
| 3 | 01/10/2014 | DECF | Declaration of Forfeiture | SCOTT BENSON | REBECCA A DOLAN | | | | 120847 | |
| 4 | 12/10/2004 | REC | Real Estate Contract | DOLAN, REBECCA ANN | BENSON, SCOTT/HEATHER | 0 | 0 | $90,000.00 | 102345 | 0 |
| 5 | 06/12/2003 | QCD | Quit Claim Deed | SMITH, CAROL | DOLAN, REBECCA A | 0 | 0 | $0.00 | 102483 | 0 |
| 6 | 06/05/2003 | QCD | Quit Claim Deed | SMITH, CAROL, HARDIN, MIC | DOLAN, REBECCA A | 0 | 0 | $0.00 | 97616 | 0 |
| 7 | 09/04/2001 | REC | Real Estate Contract | DOLAN, REBECCA A | SMITH, CAROL, HARDIN MICHAEL | 0 | 0 | $0.00 | 93274 | 0 |
| 8 | 04/26/1999 | MH | Mobile Home | MORRISON, THERESE/ET AL | SMITH, CAROL A | 0 | 0 | $700.00 | 89683 | 0 |
| 9 | 06/15/1998 | SWD | Statutory Warranty Deed | DOLAN, REBECCA A | SMITH, CAROL/HARDIN, MICHAEL | 0 | 0 | $120,000.00 | 84644 | 0 |
| 10 | | REC | Real Estate Contract | DOLAN, REBECCA A | SMITH, CAROL/HARDIN, MICHAEL | 0 | 0 | $0.00 | 84783 | 0 |
Payout Agreement
| No payout information available.. |