Property
Account |
| Property ID: | 18368 | Abbreviated Legal Description: | S23 T27 R2W S1/2 S1/2 NW NW |
| Parcel # / Geo ID: | 702232001 | Agent Code: | |
| Type: | Real | | |
| Tax Area: | 0324 - 1-48F2E2H2C2L1Z3 | Land Use Code | 11 |
| Open Space: | N | DFL | N |
| Historic Property: | N | Remodel Property: | N |
| Multi-Family Redevelopment: | N | | |
| Township: | 27N | Section: | 23 |
| Range: | 2W |
Location |
| Address: | 123 PETE BECK RD QUILCENE, WA 98376 | Mapsco: | 163/003 |
| Neighborhood: | S23 T27N R2W & TRANQUILCENE & ANDERSON S.P. & JONES S.P. | Map ID: | |
| Neighborhood CD: | 2560 |
Owner |
| Name: | ROGER A & NANCY J SEVERN LIVING TRUST | Owner ID: | 108969 |
| Mailing Address: | ROGER A & NANCY J SEVERN TRUSTEES PO BOX 143 QUILCENE, WA 98376-0143 | % Ownership: | 100.0000000000% |
| | | Exemptions: | |
Pay Tax Due
Select the appropriate checkbox next to the year to be paid. Multiple years may be selected.
*Convenience Fee not included
Taxes and Assessment Details
Property Tax Information as of
03/09/2026
Click on "Statement Details" to expand or collapse a tax statement.
* Please enter a valid date ** Please enter a valid date *
Statement Details |
| 2026 | 7895 | STATE - STATE LEVY (SCHOOL) | $606.74 | $606.72 | $0.00 | $0.00 | $0.00 | $1213.46 |
| 2026 | 7895 | COUNTY - COUNTY LEVIES (CE, DD, VET, MH) | $242.59 | $242.55 | $0.00 | $0.00 | $0.00 | $485.14 |
| 2026 | 7895 | CONSERVE - CONSERVATION FUTURES | $7.28 | $7.27 | $0.00 | $0.00 | $0.00 | $14.55 |
| 2026 | 7895 | COROADS - COUNTY ROADS (ROADS, DIV TO CE) | $195.69 | $195.68 | $0.00 | $0.00 | $0.00 | $391.37 |
| 2026 | 7895 | PORTPT - PORT DISTRICT | $97.97 | $97.96 | $0.00 | $0.00 | $0.00 | $195.93 |
| 2026 | 7895 | PUD1 - PUD #1 | $15.78 | $15.78 | $0.00 | $0.00 | $0.00 | $31.56 |
| 2026 | 7895 | LIB1 - LIBRARY DIST #1 | $75.71 | $75.71 | $0.00 | $0.00 | $0.00 | $151.42 |
| 2026 | 7895 | HD2 - HOSP DIST #2 | $14.15 | $14.14 | $0.00 | $0.00 | $0.00 | $28.29 |
| 2026 | 7895 | SD48 - SCHOOL DIST #48 | $372.64 | $372.64 | $0.00 | $0.00 | $0.00 | $745.28 |
| 2026 | 7895 | FD2 - FIRE DISTRICT #2 | $199.25 | $199.24 | $0.00 | $0.00 | $0.00 | $398.49 |
| 2026 | 7895 | EMS2 - FIRE DIST #2 EMS | $112.21 | $112.20 | $0.00 | $0.00 | $0.00 | $224.41 |
| 2026 | 7895 | CEM2 - CEMETERY DIST #2 | $6.37 | $6.36 | $0.00 | $0.00 | $0.00 | $12.73 |
| 2026 | 7895 | FP - DNR Forest Fire Protection Assmt | $8.50 | $8.50 | $0.00 | $0.00 | $0.00 | $17.00 |
| 2026 | 7895 | FPLCA - DNR Landowner Contingency Assmt | $3.00 | $3.00 | $0.00 | $0.00 | $0.00 | $6.00 |
| 2026 | 7895 | JCCD - JC Conservation District | $3.00 | $3.00 | $0.00 | $0.00 | $0.00 | $6.00 |
| 2026 | 7895 | NWA - Noxious Weed Assessment | $5.00 | $5.00 | $0.00 | $0.00 | $0.00 | $10.00 |
| 2026 | 7895 | OSS - On Site Septic | $23.10 | $23.10 | $0.00 | $0.00 | $0.00 | $46.20 |
| 2026 | 7895 | WAT - Clean Water District | $13.00 | $13.00 | $0.00 | $0.00 | $0.00 | $26.00 |
| 2026 | 7895 | FP ADMIN - FP ADMIN | $0.50 | $0.00 | $0.00 | $0.00 | $0.00 | $0.50 |
| 2026 | 7895 | TOTAL: | $2002.48 | $2001.85 | $0.00 | $0.00 | $0.00 | $4004.33 |
|
| 2026 | 7895 | $2002.48 | $2001.85 | $0.00 | $0.00 | $0.00 | $4004.33 |
Statement Details |
| 2025 | 7916 | STATE - STATE LEVY (SCHOOL) | $588.35 | $588.35 | $0.00 | $0.00 | $1176.70 | $0.00 |
| 2025 | 7916 | COUNTY - COUNTY LEVIES (CE, DD, VET, MH) | $231.37 | $231.36 | $0.00 | $0.00 | $462.73 | $0.00 |
| 2025 | 7916 | CONSERVE - CONSERVATION FUTURES | $6.94 | $6.94 | $0.00 | $0.00 | $13.88 | $0.00 |
| 2025 | 7916 | COROADS - COUNTY ROADS (ROADS, DIV TO CE) | $185.36 | $185.36 | $0.00 | $0.00 | $370.72 | $0.00 |
| 2025 | 7916 | PORTPT - PORT DISTRICT | $94.41 | $94.41 | $0.00 | $0.00 | $188.82 | $0.00 |
| 2025 | 7916 | PUD1 - PUD #1 | $15.14 | $15.14 | $0.00 | $0.00 | $30.28 | $0.00 |
| 2025 | 7916 | LIB1 - LIBRARY DIST #1 | $71.72 | $71.71 | $0.00 | $0.00 | $143.43 | $0.00 |
| 2025 | 7916 | HD2 - HOSP DIST #2 | $13.50 | $13.50 | $0.00 | $0.00 | $27.00 | $0.00 |
| 2025 | 7916 | SD48 - SCHOOL DIST #48 | $346.46 | $346.46 | $0.00 | $0.00 | $692.92 | $0.00 |
| 2025 | 7916 | FD2 - FIRE DISTRICT #2 | $191.29 | $191.29 | $0.00 | $0.00 | $382.58 | $0.00 |
| 2025 | 7916 | EMS2 - FIRE DIST #2 EMS | $107.71 | $107.71 | $0.00 | $0.00 | $215.42 | $0.00 |
| 2025 | 7916 | CEM2 - CEMETERY DIST #2 | $6.11 | $6.10 | $0.00 | $0.00 | $12.21 | $0.00 |
| 2025 | 7916 | FP - DNR Forest Fire Protection Assmt | $8.50 | $8.50 | $0.00 | $0.00 | $17.00 | $0.00 |
| 2025 | 7916 | FPLCA - DNR Landowner Contingency Assmt | $3.00 | $3.00 | $0.00 | $0.00 | $6.00 | $0.00 |
| 2025 | 7916 | JCCD - JC Conservation District | $3.00 | $3.00 | $0.00 | $0.00 | $6.00 | $0.00 |
| 2025 | 7916 | NWA - Noxious Weed Assessment | $3.50 | $3.50 | $0.00 | $0.00 | $7.00 | $0.00 |
| 2025 | 7916 | OSS - On Site Septic | $21.50 | $21.50 | $0.00 | $0.00 | $43.00 | $0.00 |
| 2025 | 7916 | WAT - Clean Water District | $13.00 | $13.00 | $0.00 | $0.00 | $26.00 | $0.00 |
| 2025 | 7916 | FP ADMIN - FP ADMIN | $0.50 | $0.00 | $0.00 | $0.00 | $0.50 | $0.00 |
| 2025 | 7916 | TOTAL: | $1911.36 | $1910.83 | $0.00 | $0.00 | $3822.19 | $0.00 |
|
| 2025 | 7916 | $1911.36 | $1910.83 | $0.00 | $0.00 | $3822.19 | $0.00 |
Statement Details |
| 2024 | 7939 | STATE - STATE LEVY (SCHOOL) | $507.73 | $507.73 | $0.00 | $0.00 | $1015.46 | $0.00 |
| 2024 | 7939 | COUNTY - COUNTY LEVIES (CE, DD, VET, MH) | $217.27 | $217.24 | $0.00 | $0.00 | $434.51 | $0.00 |
| 2024 | 7939 | CONSERVE - CONSERVATION FUTURES | $6.52 | $6.51 | $0.00 | $0.00 | $13.03 | $0.00 |
| 2024 | 7939 | COROADS - COUNTY ROADS (ROADS, DIV TO CE) | $174.83 | $174.82 | $0.00 | $0.00 | $349.65 | $0.00 |
| 2024 | 7939 | PORTPT - PORT DISTRICT | $89.74 | $89.73 | $0.00 | $0.00 | $179.47 | $0.00 |
| 2024 | 7939 | PUD1 - PUD #1 | $14.27 | $14.27 | $0.00 | $0.00 | $28.54 | $0.00 |
| 2024 | 7939 | LIB1 - LIBRARY DIST #1 | $67.64 | $67.64 | $0.00 | $0.00 | $135.28 | $0.00 |
| 2024 | 7939 | HD2 - HOSP DIST #2 | $12.68 | $12.67 | $0.00 | $0.00 | $25.35 | $0.00 |
| 2024 | 7939 | SD48 - SCHOOL DIST #48 | $227.41 | $227.40 | $0.00 | $0.00 | $454.81 | $0.00 |
| 2024 | 7939 | FD2 - FIRE DISTRICT #2 | $180.62 | $180.62 | $0.00 | $0.00 | $361.24 | $0.00 |
| 2024 | 7939 | EMS2 - FIRE DIST #2 EMS | $101.68 | $101.68 | $0.00 | $0.00 | $203.36 | $0.00 |
| 2024 | 7939 | CEM2 - CEMETERY DIST #2 | $5.78 | $5.78 | $0.00 | $0.00 | $11.56 | $0.00 |
| 2024 | 7939 | FP - DNR Forest Fire Protection Assmt | $8.50 | $8.50 | $0.00 | $0.00 | $17.00 | $0.00 |
| 2024 | 7939 | FPLCA - DNR Landowner Contingency Assmt | $3.00 | $3.00 | $0.00 | $0.00 | $6.00 | $0.00 |
| 2024 | 7939 | JCCD - JC Conservation District | $3.00 | $3.00 | $0.00 | $0.00 | $6.00 | $0.00 |
| 2024 | 7939 | NWA - Noxious Weed Assessment | $3.50 | $3.50 | $0.00 | $0.00 | $7.00 | $0.00 |
| 2024 | 7939 | OSS - On Site Septic | $21.00 | $21.00 | $0.00 | $0.00 | $42.00 | $0.00 |
| 2024 | 7939 | WAT - Clean Water District | $12.50 | $12.50 | $0.00 | $0.00 | $25.00 | $0.00 |
| 2024 | 7939 | FP ADMIN - FP ADMIN | $0.50 | $0.00 | $0.00 | $0.00 | $0.50 | $0.00 |
| 2024 | 7939 | TOTAL: | $1658.17 | $1657.59 | $0.00 | $0.00 | $3315.76 | $0.00 |
|
| 2024 | 7939 | $1658.17 | $1657.59 | $0.00 | $0.00 | $3315.76 | $0.00 |
Statement Details |
| 2023 | 7955 | STATE - STATE LEVY (SCHOOL) | $505.62 | $505.62 | $0.00 | $0.00 | $1011.24 | $0.00 |
| 2023 | 7955 | COUNTY - COUNTY LEVIES (CE, DD, VET, MH) | $220.66 | $220.63 | $0.00 | $0.00 | $441.29 | $0.00 |
| 2023 | 7955 | CONSERVE - CONSERVATION FUTURES | $6.62 | $6.61 | $0.00 | $0.00 | $13.23 | $0.00 |
| 2023 | 7955 | COROADS - COUNTY ROADS (ROADS, DIV TO CE) | $178.51 | $178.51 | $0.00 | $0.00 | $357.02 | $0.00 |
| 2023 | 7955 | PORTPT - PORT DISTRICT | $92.95 | $92.94 | $0.00 | $0.00 | $185.89 | $0.00 |
| 2023 | 7955 | PUD1 - PUD #1 | $14.63 | $14.62 | $0.00 | $0.00 | $29.25 | $0.00 |
| 2023 | 7955 | LIB1 - LIBRARY DIST #1 | $69.07 | $69.06 | $0.00 | $0.00 | $138.13 | $0.00 |
| 2023 | 7955 | HD2 - HOSP DIST #2 | $12.89 | $12.87 | $0.00 | $0.00 | $25.76 | $0.00 |
| 2023 | 7955 | SD48 - SCHOOL DIST #48 | $244.17 | $244.17 | $0.00 | $0.00 | $488.34 | $0.00 |
| 2023 | 7955 | FD2 - FIRE DISTRICT #2 | $191.52 | $191.52 | $0.00 | $0.00 | $383.04 | $0.00 |
| 2023 | 7955 | EMS2 - FIRE DIST #2 EMS | $107.39 | $107.39 | $0.00 | $0.00 | $214.78 | $0.00 |
| 2023 | 7955 | CEM2 - CEMETERY DIST #2 | $6.10 | $6.09 | $0.00 | $0.00 | $12.19 | $0.00 |
| 2023 | 7955 | FP - DNR Forest Fire Protection Assmt | $8.50 | $8.50 | $0.00 | $0.00 | $17.00 | $0.00 |
| 2023 | 7955 | FPLCA - DNR Landowner Contingency Assmt | $3.00 | $3.00 | $0.00 | $0.00 | $6.00 | $0.00 |
| 2023 | 7955 | JCCD - JC Conservation District | $3.00 | $3.00 | $0.00 | $0.00 | $6.00 | $0.00 |
| 2023 | 7955 | NWA - Noxious Weed Assessment | $3.50 | $3.50 | $0.00 | $0.00 | $7.00 | $0.00 |
| 2023 | 7955 | OSS - On Site Septic | $20.50 | $20.50 | $0.00 | $0.00 | $41.00 | $0.00 |
| 2023 | 7955 | WAT - Clean Water District | $12.00 | $12.00 | $0.00 | $0.00 | $24.00 | $0.00 |
| 2023 | 7955 | FP ADMIN - FP ADMIN | $0.50 | $0.00 | $0.00 | $0.00 | $0.50 | $0.00 |
| 2023 | 7955 | TOTAL: | $1701.13 | $1700.53 | $0.00 | $0.00 | $3401.66 | $0.00 |
|
| 2023 | 7955 | $1701.13 | $1700.53 | $0.00 | $0.00 | $3401.66 | $0.00 |
Values
| (+) Improvement Homesite Value: | + | $0 | |
| (+) Improvement Non-Homesite Value: | + | $355,205 | |
| (+) Land Homesite Value: | + | $0 | |
| (+) Land Non-Homesite Value: | + | $172,595 | |
| (+) Curr Use (HS): | + | $0 | $0 |
| (+) Curr Use (NHS): | + | $0 | $0 |
| | | -------------------------- | |
| (=) Market Value: | = | $527,800 | |
| (–) Productivity Loss: | – | $0 | |
| | | -------------------------- | |
| (=) Subtotal: | = | $527,800 | |
| (+) Senior Appraised Value: | + | $0 | |
| (+) Non-Senior Appraised Value: | + | $527,800 | |
| | | -------------------------- | |
| (=) Total Appraised Value: | = | $527,800 | |
| (–) Senior Exemption Loss: | – | $0 | |
| (–) Exemption Loss: | – | $0 | |
| | | -------------------------- | |
| (=) Taxable Value: | = | $527,800 | |
Taxing Jurisdiction
| Owner: | ROGER A & NANCY J SEVERN LIVING TRUST | | |
| % Ownership: | 100.0000000000% | | |
| Total Value: | $527,800 | | |
| Tax Area: | 0324 - 1-48F2E2H2C2L1Z3 |
| CE | COUNTY CURRENT EXPENSE | 0.9034619479 | $527,800 | $527,800 | $476.85 | | |
| CNTYDD | DEVELOPMENTAL DISABILITIES | 0.0052121823 | $527,800 | $527,800 | $2.75 | | |
| CNTYVET | VETERANS RELIEF | 0.0052777810 | $527,800 | $527,800 | $2.79 | | |
| MENTAL | MENTAL HEALTH | 0.0052121823 | $527,800 | $527,800 | $2.75 | | |
| ROADS | COUNTY ROADS | 0.7415066410 | $527,800 | $527,800 | $391.37 | | |
| ROADSCU | COUNTY ROADS TO CUR EXP | 0.0000000000 | $527,800 | $527,800 | $0.00 | | |
| HOSP2CASH | HOSP DIST #2 GENERAL | 0.0536075306 | $527,800 | $527,800 | $28.29 | | |
| SCH48MO | SCHOOL DIST #48 EP & O | 1.4120478917 | $527,800 | $527,800 | $745.28 | | |
| CEM2 | CEMETERY DIST #2 GENERAL | 0.0241266154 | $527,800 | $527,800 | $12.73 | | |
| CONSERVE | CONSERVATION FUTURES | 0.0275621078 | $527,800 | $527,800 | $14.55 | | |
| FD2 | FIRE DIST #2 GENERAL | 0.7549976873 | $527,800 | $527,800 | $398.49 | | |
| LIB1 | LIBRARY DIST #1 GENERAL | 0.2868827388 | $527,800 | $527,800 | $151.42 | | |
| PORTPT | PORT OF PT GENERAL | 0.1134941229 | $527,800 | $527,800 | $59.90 | | |
| PORTPTIDD | PORT OF PT IDD 2019 | 0.2577346692 | $527,800 | $527,800 | $136.03 | | |
| PUD1 | PUD #1 GENERAL | 0.0597888892 | $527,800 | $527,800 | $31.56 | | |
| STATE | STATE SCHOOL PART 1 | 1.4940692947 | $527,800 | $527,800 | $788.57 | | |
| STATE2 | STATE SCHOOL PART 2 | 0.8050170049 | $527,800 | $527,800 | $424.89 | | |
| EMS2 | FIRE DIST #2 EMS | 0.4251727858 | $527,800 | $527,800 | $224.41 | | |
| | Total Tax Rate: | 7.3751720728 | | | | | |
| | | | | Taxes w/Current Exemptions: | $3,892.63 | | |
| | | | | Taxes w/o Exemptions: | $3,892.63 | | |
Improvement / Building
| Improvement #1: | Residential Bldg | State Code: | 11 | 3156.0 sqft | Value: | $355,205 |
| Bathrooms (#): | 1 (FULL) | Bedrooms (#): | 3 | | Exterior Wall: | PL/T1 | Fireplace: | WD ST-GOOD | | Floor Construction: | FRAME | Foundation: | PO&BL | | Heating/Cooling: | ELBB | Inside Verify: | YES | | Roof Cover: | COMP |   |   |
|
| | Type | Description | Class CD | Sub Class CD | Year Built | Area |
| | MA | Main Area | 3- | 15SF | 1920 | 2324.0 |
| | MA2 | Second Floor Main Area | 3 | 15SF | 1920 | 832.0 |
| | HATTIC | House Attic | 2 | * | 1920 | 240.0 |
| | HENCL | House Enclosure | 2 | * | 1920 | 132.0 |
| | HWPOR | House Wood Porch | 3 | * | 1920 | 40.0 |
| | GDET | Detached Garage | 3 | * | 1998 | 1296.0 |
| | GDET | Detached Garage | 3 | * | 1920 | 864.0 |
| | GDET | Detached Garage | 2 | * | 1920 | 210.0 |
| | BARN | Barn (Table Not Dep) | 2 | * | 1920 | 1172.0 |
Sketch
Property Image
Land
| 1 | 1677A | | 8.7100 | 379407.60 | 0.00 | 0.00 | 0.00 | $57,595 | $0 |
| 2 | 2560-1372S | | 1.0000 | 43560.00 | 0.00 | 0.00 | 1.00 | $115,000 | $0 |
Roll Value History
| 2026 | N/A | N/A | N/A | N/A | N/A |
| 2025 | $355,205 | $172,595 | $0 | $527,800 | $527,800 |
| 2024 | $325,604 | $165,091 | $0 | $490,695 | $490,695 |
| 2023 | $296,004 | $142,905 | $0 | $438,909 | $438,909 |
| 2022 | $296,004 | $133,550 | $0 | $429,554 | $429,554 |
Deed and Sales History
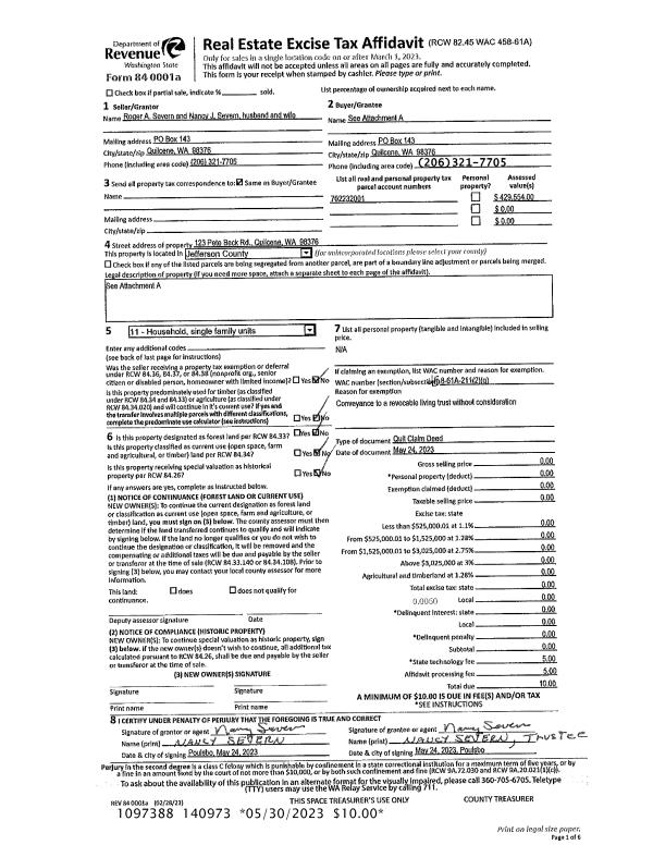
| 1 | 05/24/2023 | QCD | Quit Claim Deed | ROGER A SEVERN | ROGER A & NANCY J SEVERN LIVING TRUST | | | | 140973 | |
Payout Agreement
| No payout information available.. |