Property
Account |
| Property ID: | 18386 | Abbreviated Legal Description: | BASE CAMPS OF AMERICA SHORT PLAT LOT 1(LESS CO RD R/W) SUBJ/EASE |
| Parcel # / Geo ID: | 702232021 | Agent Code: | |
| Type: | Real | | |
| Tax Area: | 0320 - 1-48F2E2H2C2L1Z2 | Land Use Code | 18 |
| Open Space: | N | DFL | N |
| Historic Property: | N | Remodel Property: | N |
| Multi-Family Redevelopment: | N | | |
| Township: | 27N | Section: | 23 |
| Range: | 2W |
Location |
| Address: | | Mapsco: | 175/048 |
| Neighborhood: | S23 T27N R2W & TRANQUILCENE & ANDERSON S.P. & JONES S.P. | Map ID: | |
| Neighborhood CD: | 2560 |
Owner |
| Name: | CENTER VALLEY ANIMAL RESCUE | Owner ID: | 107874 |
| Mailing Address: | 11900 CENTER RD QUILCENE, WA 98376-8574 | % Ownership: | 100.0000000000% |
| | | Exemptions: | |
Pay Tax Due
Select the appropriate checkbox next to the year to be paid. Multiple years may be selected.
*Convenience Fee not included
Taxes and Assessment Details
Property Tax Information as of
03/12/2026
Click on "Statement Details" to expand or collapse a tax statement.
* Please enter a valid date ** Please enter a valid date *
Statement Details |
| 2026 | 7913 | STATE - STATE LEVY (SCHOOL) | $160.27 | $160.26 | $0.00 | $0.00 | $0.00 | $320.53 |
| 2026 | 7913 | COUNTY - COUNTY LEVIES (CE, DD, VET, MH) | $64.09 | $64.07 | $0.00 | $0.00 | $0.00 | $128.16 |
| 2026 | 7913 | CONSERVE - CONSERVATION FUTURES | $1.92 | $1.92 | $0.00 | $0.00 | $0.00 | $3.84 |
| 2026 | 7913 | COROADS - COUNTY ROADS (ROADS, DIV TO CE) | $51.69 | $51.69 | $0.00 | $0.00 | $0.00 | $103.38 |
| 2026 | 7913 | PORTPT - PORT DISTRICT | $25.88 | $25.87 | $0.00 | $0.00 | $0.00 | $51.75 |
| 2026 | 7913 | PUD1 - PUD #1 | $4.17 | $4.17 | $0.00 | $0.00 | $0.00 | $8.34 |
| 2026 | 7913 | LIB1 - LIBRARY DIST #1 | $20.00 | $20.00 | $0.00 | $0.00 | $0.00 | $40.00 |
| 2026 | 7913 | HD2 - HOSP DIST #2 | $3.74 | $3.73 | $0.00 | $0.00 | $0.00 | $7.47 |
| 2026 | 7913 | SD48 - SCHOOL DIST #48 | $98.43 | $98.43 | $0.00 | $0.00 | $0.00 | $196.86 |
| 2026 | 7913 | FD2 - FIRE DISTRICT #2 | $52.63 | $52.63 | $0.00 | $0.00 | $0.00 | $105.26 |
| 2026 | 7913 | EMS2 - FIRE DIST #2 EMS | $29.64 | $29.64 | $0.00 | $0.00 | $0.00 | $59.28 |
| 2026 | 7913 | CEM2 - CEMETERY DIST #2 | $1.68 | $1.68 | $0.00 | $0.00 | $0.00 | $3.36 |
| 2026 | 7913 | FP - DNR Forest Fire Protection Assmt | $8.50 | $8.50 | $0.00 | $0.00 | $0.00 | $17.00 |
| 2026 | 7913 | FPLCA - DNR Landowner Contingency Assmt | $3.00 | $3.00 | $0.00 | $0.00 | $0.00 | $6.00 |
| 2026 | 7913 | JCCD - JC Conservation District | $2.89 | $2.89 | $0.00 | $0.00 | $0.00 | $5.78 |
| 2026 | 7913 | NWA - Noxious Weed Assessment | $5.00 | $5.00 | $0.00 | $0.00 | $0.00 | $10.00 |
| 2026 | 7913 | WAT - Clean Water District | $13.00 | $13.00 | $0.00 | $0.00 | $0.00 | $26.00 |
| 2026 | 7913 | FP ADMIN - FP ADMIN | $0.50 | $0.00 | $0.00 | $0.00 | $0.00 | $0.50 |
| 2026 | 7913 | TOTAL: | $547.03 | $546.48 | $0.00 | $0.00 | $0.00 | $1093.51 |
|
| 2026 | 7913 | $547.03 | $546.48 | $0.00 | $0.00 | $0.00 | $1093.51 |
Statement Details |
| 2025 | 7934 | STATE - STATE LEVY (SCHOOL) | $159.90 | $159.89 | $0.00 | $0.00 | $319.79 | $0.00 |
| 2025 | 7934 | COUNTY - COUNTY LEVIES (CE, DD, VET, MH) | $62.89 | $62.86 | $0.00 | $0.00 | $125.75 | $0.00 |
| 2025 | 7934 | CONSERVE - CONSERVATION FUTURES | $1.89 | $1.88 | $0.00 | $0.00 | $3.77 | $0.00 |
| 2025 | 7934 | COROADS - COUNTY ROADS (ROADS, DIV TO CE) | $50.38 | $50.37 | $0.00 | $0.00 | $100.75 | $0.00 |
| 2025 | 7934 | PORTPT - PORT DISTRICT | $25.67 | $25.65 | $0.00 | $0.00 | $51.32 | $0.00 |
| 2025 | 7934 | PUD1 - PUD #1 | $4.12 | $4.11 | $0.00 | $0.00 | $8.23 | $0.00 |
| 2025 | 7934 | LIB1 - LIBRARY DIST #1 | $19.49 | $19.49 | $0.00 | $0.00 | $38.98 | $0.00 |
| 2025 | 7934 | HD2 - HOSP DIST #2 | $3.67 | $3.67 | $0.00 | $0.00 | $7.34 | $0.00 |
| 2025 | 7934 | SD48 - SCHOOL DIST #48 | $94.16 | $94.16 | $0.00 | $0.00 | $188.32 | $0.00 |
| 2025 | 7934 | FD2 - FIRE DISTRICT #2 | $51.99 | $51.98 | $0.00 | $0.00 | $103.97 | $0.00 |
| 2025 | 7934 | EMS2 - FIRE DIST #2 EMS | $29.27 | $29.27 | $0.00 | $0.00 | $58.54 | $0.00 |
| 2025 | 7934 | CEM2 - CEMETERY DIST #2 | $1.66 | $1.66 | $0.00 | $0.00 | $3.32 | $0.00 |
| 2025 | 7934 | FP - DNR Forest Fire Protection Assmt | $8.50 | $8.50 | $0.00 | $0.00 | $17.00 | $0.00 |
| 2025 | 7934 | FPLCA - DNR Landowner Contingency Assmt | $3.00 | $3.00 | $0.00 | $0.00 | $6.00 | $0.00 |
| 2025 | 7934 | JCCD - JC Conservation District | $3.00 | $3.00 | $0.00 | $0.00 | $6.00 | $0.00 |
| 2025 | 7934 | NWA - Noxious Weed Assessment | $3.50 | $3.50 | $0.00 | $0.00 | $7.00 | $0.00 |
| 2025 | 7934 | WAT - Clean Water District | $13.00 | $13.00 | $0.00 | $0.00 | $26.00 | $0.00 |
| 2025 | 7934 | FP ADMIN - FP ADMIN | $0.50 | $0.00 | $0.00 | $0.00 | $0.50 | $0.00 |
| 2025 | 7934 | TOTAL: | $536.59 | $535.99 | $0.00 | $0.00 | $1072.58 | $0.00 |
|
| 2025 | 7934 | $536.59 | $535.99 | $0.00 | $0.00 | $1072.58 | $0.00 |
Statement Details |
| 2024 | 7957 | STATE - STATE LEVY (SCHOOL) | $135.36 | $135.34 | $0.00 | $0.00 | $270.70 | $0.00 |
| 2024 | 7957 | COUNTY - COUNTY LEVIES (CE, DD, VET, MH) | $57.93 | $57.90 | $0.00 | $0.00 | $115.83 | $0.00 |
| 2024 | 7957 | CONSERVE - CONSERVATION FUTURES | $1.74 | $1.73 | $0.00 | $0.00 | $3.47 | $0.00 |
| 2024 | 7957 | COROADS - COUNTY ROADS (ROADS, DIV TO CE) | $46.61 | $46.60 | $0.00 | $0.00 | $93.21 | $0.00 |
| 2024 | 7957 | PORTPT - PORT DISTRICT | $23.92 | $23.92 | $0.00 | $0.00 | $47.84 | $0.00 |
| 2024 | 7957 | PUD1 - PUD #1 | $3.81 | $3.80 | $0.00 | $0.00 | $7.61 | $0.00 |
| 2024 | 7957 | LIB1 - LIBRARY DIST #1 | $18.03 | $18.03 | $0.00 | $0.00 | $36.06 | $0.00 |
| 2024 | 7957 | HD2 - HOSP DIST #2 | $3.38 | $3.38 | $0.00 | $0.00 | $6.76 | $0.00 |
| 2024 | 7957 | SD48 - SCHOOL DIST #48 | $60.62 | $60.62 | $0.00 | $0.00 | $121.24 | $0.00 |
| 2024 | 7957 | FD2 - FIRE DISTRICT #2 | $48.15 | $48.15 | $0.00 | $0.00 | $96.30 | $0.00 |
| 2024 | 7957 | EMS2 - FIRE DIST #2 EMS | $27.11 | $27.10 | $0.00 | $0.00 | $54.21 | $0.00 |
| 2024 | 7957 | CEM2 - CEMETERY DIST #2 | $1.54 | $1.54 | $0.00 | $0.00 | $3.08 | $0.00 |
| 2024 | 7957 | FP - DNR Forest Fire Protection Assmt | $8.50 | $8.50 | $0.00 | $0.00 | $17.00 | $0.00 |
| 2024 | 7957 | FPLCA - DNR Landowner Contingency Assmt | $3.00 | $3.00 | $0.00 | $0.00 | $6.00 | $0.00 |
| 2024 | 7957 | JCCD - JC Conservation District | $3.00 | $3.00 | $0.00 | $0.00 | $6.00 | $0.00 |
| 2024 | 7957 | NWA - Noxious Weed Assessment | $3.50 | $3.50 | $0.00 | $0.00 | $7.00 | $0.00 |
| 2024 | 7957 | WAT - Clean Water District | $12.50 | $12.50 | $0.00 | $0.00 | $25.00 | $0.00 |
| 2024 | 7957 | FP ADMIN - FP ADMIN | $0.50 | $0.00 | $0.00 | $0.00 | $0.50 | $0.00 |
| 2024 | 7957 | TOTAL: | $459.20 | $458.61 | $0.00 | $0.00 | $917.81 | $0.00 |
|
| 2024 | 7957 | $459.20 | $458.61 | $0.00 | $0.00 | $917.81 | $0.00 |
Statement Details |
| 2023 | 7973 | STATE - STATE LEVY (SCHOOL) | $117.19 | $117.17 | $0.00 | $0.00 | $234.36 | $0.00 |
| 2023 | 7973 | COUNTY - COUNTY LEVIES (CE, DD, VET, MH) | $51.14 | $51.13 | $0.00 | $0.00 | $102.27 | $0.00 |
| 2023 | 7973 | CONSERVE - CONSERVATION FUTURES | $1.54 | $1.53 | $0.00 | $0.00 | $3.07 | $0.00 |
| 2023 | 7973 | COROADS - COUNTY ROADS (ROADS, DIV TO CE) | $41.37 | $41.37 | $0.00 | $0.00 | $82.74 | $0.00 |
| 2023 | 7973 | PORTPT - PORT DISTRICT | $21.55 | $21.53 | $0.00 | $0.00 | $43.08 | $0.00 |
| 2023 | 7973 | PUD1 - PUD #1 | $3.39 | $3.39 | $0.00 | $0.00 | $6.78 | $0.00 |
| 2023 | 7973 | LIB1 - LIBRARY DIST #1 | $16.01 | $16.00 | $0.00 | $0.00 | $32.01 | $0.00 |
| 2023 | 7973 | HD2 - HOSP DIST #2 | $2.99 | $2.98 | $0.00 | $0.00 | $5.97 | $0.00 |
| 2023 | 7973 | SD48 - SCHOOL DIST #48 | $56.59 | $56.58 | $0.00 | $0.00 | $113.17 | $0.00 |
| 2023 | 7973 | FD2 - FIRE DISTRICT #2 | $44.39 | $44.38 | $0.00 | $0.00 | $88.77 | $0.00 |
| 2023 | 7973 | EMS2 - FIRE DIST #2 EMS | $24.89 | $24.89 | $0.00 | $0.00 | $49.78 | $0.00 |
| 2023 | 7973 | CEM2 - CEMETERY DIST #2 | $1.42 | $1.41 | $0.00 | $0.00 | $2.83 | $0.00 |
| 2023 | 7973 | FP - DNR Forest Fire Protection Assmt | $8.50 | $8.50 | $0.00 | $0.00 | $17.00 | $0.00 |
| 2023 | 7973 | FPLCA - DNR Landowner Contingency Assmt | $3.00 | $3.00 | $0.00 | $0.00 | $6.00 | $0.00 |
| 2023 | 7973 | JCCD - JC Conservation District | $3.00 | $3.00 | $0.00 | $0.00 | $6.00 | $0.00 |
| 2023 | 7973 | NWA - Noxious Weed Assessment | $3.50 | $3.50 | $0.00 | $0.00 | $7.00 | $0.00 |
| 2023 | 7973 | WAT - Clean Water District | $12.00 | $12.00 | $0.00 | $0.00 | $24.00 | $0.00 |
| 2023 | 7973 | FP ADMIN - FP ADMIN | $0.50 | $0.00 | $0.00 | $0.00 | $0.50 | $0.00 |
| 2023 | 7973 | TOTAL: | $412.97 | $412.36 | $0.00 | $0.00 | $825.33 | $0.00 |
|
| 2023 | 7973 | $412.97 | $412.36 | $0.00 | $0.00 | $825.33 | $0.00 |
Values
| (+) Improvement Homesite Value: | + | $0 | |
| (+) Improvement Non-Homesite Value: | + | $0 | |
| (+) Land Homesite Value: | + | $0 | |
| (+) Land Non-Homesite Value: | + | $139,418 | |
| (+) Curr Use (HS): | + | $0 | $0 |
| (+) Curr Use (NHS): | + | $0 | $0 |
| | | -------------------------- | |
| (=) Market Value: | = | $139,418 | |
| (–) Productivity Loss: | – | $0 | |
| | | -------------------------- | |
| (=) Subtotal: | = | $139,418 | |
| (+) Senior Appraised Value: | + | $0 | |
| (+) Non-Senior Appraised Value: | + | $139,418 | |
| | | -------------------------- | |
| (=) Total Appraised Value: | = | $139,418 | |
| (–) Senior Exemption Loss: | – | $0 | |
| (–) Exemption Loss: | – | $0 | |
| | | -------------------------- | |
| (=) Taxable Value: | = | $139,418 | |
Taxing Jurisdiction
| Owner: | CENTER VALLEY ANIMAL RESCUE | | |
| % Ownership: | 100.0000000000% | | |
| Total Value: | $139,418 | | |
| Tax Area: | 0320 - 1-48F2E2H2C2L1Z2 |
| CE | COUNTY CURRENT EXPENSE | 0.9034619479 | $139,418 | $139,418 | $125.96 | | |
| CNTYDD | DEVELOPMENTAL DISABILITIES | 0.0052121823 | $139,418 | $139,418 | $0.73 | | |
| CNTYVET | VETERANS RELIEF | 0.0052777810 | $139,418 | $139,418 | $0.74 | | |
| MENTAL | MENTAL HEALTH | 0.0052121823 | $139,418 | $139,418 | $0.73 | | |
| ROADS | COUNTY ROADS | 0.7415066410 | $139,418 | $139,418 | $103.38 | | |
| ROADSCU | COUNTY ROADS TO CUR EXP | 0.0000000000 | $139,418 | $139,418 | $0.00 | | |
| HOSP2CASH | HOSP DIST #2 GENERAL | 0.0536075306 | $139,418 | $139,418 | $7.47 | | |
| SCH48MO | SCHOOL DIST #48 EP & O | 1.4120478917 | $139,418 | $139,418 | $196.86 | | |
| CEM2 | CEMETERY DIST #2 GENERAL | 0.0241266154 | $139,418 | $139,418 | $3.36 | | |
| CONSERVE | CONSERVATION FUTURES | 0.0275621078 | $139,418 | $139,418 | $3.84 | | |
| FD2 | FIRE DIST #2 GENERAL | 0.7549976873 | $139,418 | $139,418 | $105.26 | | |
| LIB1 | LIBRARY DIST #1 GENERAL | 0.2868827388 | $139,418 | $139,418 | $40.00 | | |
| PORTPT | PORT OF PT GENERAL | 0.1134941229 | $139,418 | $139,418 | $15.82 | | |
| PORTPTIDD | PORT OF PT IDD 2019 | 0.2577346692 | $139,418 | $139,418 | $35.93 | | |
| PUD1 | PUD #1 GENERAL | 0.0597888892 | $139,418 | $139,418 | $8.34 | | |
| STATE | STATE SCHOOL PART 1 | 1.4940692947 | $139,418 | $139,418 | $208.30 | | |
| STATE2 | STATE SCHOOL PART 2 | 0.8050170049 | $139,418 | $139,418 | $112.23 | | |
| EMS2 | FIRE DIST #2 EMS | 0.4251727858 | $139,418 | $139,418 | $59.28 | | |
| | Total Tax Rate: | 7.3751720728 | | | | | |
| | | | | Taxes w/Current Exemptions: | $1,028.23 | | |
| | | | | Taxes w/o Exemptions: | $1,028.23 | | |
Improvement / Building
Sketch
| No sketches available for this property. |
Property Image
Land
| 1 | 2560-1374S | | 1.0000 | 43560.00 | 0.00 | 0.00 | 1.00 | $80,500 | $0 |
| 2 | 1677A | | 8.9100 | 388119.60 | 0.00 | 0.00 | 0.00 | $58,918 | $0 |
Roll Value History
| 2026 | N/A | N/A | N/A | N/A | N/A |
| 2025 | $0 | $139,418 | $0 | $139,418 | $139,418 |
| 2024 | $0 | $133,356 | $0 | $133,356 | $133,356 |
| 2023 | $0 | $117,005 | $0 | $117,005 | $117,005 |
| 2022 | $0 | $99,550 | $0 | $99,550 | $99,550 |
Deed and Sales History
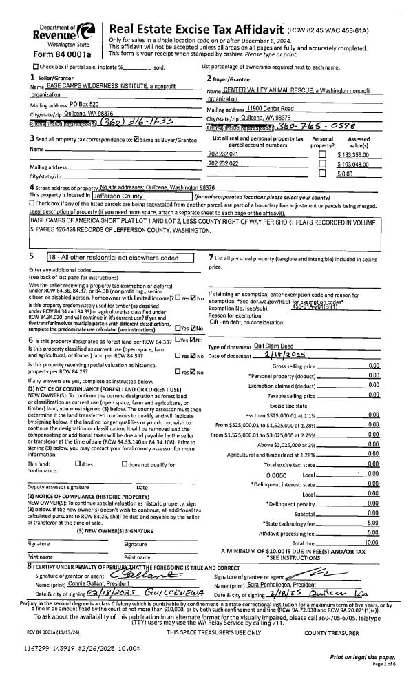
| 1 | 02/18/2025 | QCD | Quit Claim Deed | BASE CAMPS WILDERNESS INSTITUTE | CENTER VALLEY ANIMAL RESCUE | | | | 143919 | |
| 2 | 05/22/2024 | QCD | Quit Claim Deed | BASECAMPS OF AMERICA INC | BASE CAMPS WILDERNESS INSTITUTE | | | | 142634 | |
Payout Agreement
| No payout information available.. |