Property
Account |
| Property ID: | 18387 | Abbreviated Legal Description: | BASE CAMPS OF AMERICA SHORT PLAT LOT 2(LESS CO RD R/W) SUBJ/EASE |
| Parcel # / Geo ID: | 702232022 | Agent Code: | |
| Type: | Real | | |
| Tax Area: | 0320 - 1-48F2E2H2C2L1Z2 | Land Use Code | 18 |
| Open Space: | N | DFL | N |
| Historic Property: | N | Remodel Property: | N |
| Multi-Family Redevelopment: | N | | |
| Township: | 27N | Section: | 23 |
| Range: | 2W |
Location |
| Address: | | Mapsco: | 175/049 |
| Neighborhood: | S23 T27N R2W & TRANQUILCENE & ANDERSON S.P. & JONES S.P. | Map ID: | |
| Neighborhood CD: | 2560 |
Owner |
| Name: | CENTER VALLEY ANIMAL RESCUE | Owner ID: | 107874 |
| Mailing Address: | 11900 CENTER RD QUILCENE, WA 98376-8574 | % Ownership: | 100.0000000000% |
| | | Exemptions: | |
Pay Tax Due
Select the appropriate checkbox next to the year to be paid. Multiple years may be selected.
*Convenience Fee not included
Taxes and Assessment Details
Property Tax Information as of
03/10/2026
Click on "Statement Details" to expand or collapse a tax statement.
* Please enter a valid date ** Please enter a valid date *
Statement Details |
| 2026 | 7914 | STATE - STATE LEVY (SCHOOL) | $123.85 | $123.84 | $0.00 | $0.00 | $0.00 | $247.69 |
| 2026 | 7914 | COUNTY - COUNTY LEVIES (CE, DD, VET, MH) | $49.52 | $49.50 | $0.00 | $0.00 | $0.00 | $99.02 |
| 2026 | 7914 | CONSERVE - CONSERVATION FUTURES | $1.49 | $1.48 | $0.00 | $0.00 | $0.00 | $2.97 |
| 2026 | 7914 | COROADS - COUNTY ROADS (ROADS, DIV TO CE) | $39.94 | $39.94 | $0.00 | $0.00 | $0.00 | $79.88 |
| 2026 | 7914 | PORTPT - PORT DISTRICT | $20.01 | $19.99 | $0.00 | $0.00 | $0.00 | $40.00 |
| 2026 | 7914 | PUD1 - PUD #1 | $3.22 | $3.22 | $0.00 | $0.00 | $0.00 | $6.44 |
| 2026 | 7914 | LIB1 - LIBRARY DIST #1 | $15.46 | $15.45 | $0.00 | $0.00 | $0.00 | $30.91 |
| 2026 | 7914 | HD2 - HOSP DIST #2 | $2.89 | $2.89 | $0.00 | $0.00 | $0.00 | $5.78 |
| 2026 | 7914 | SD48 - SCHOOL DIST #48 | $76.06 | $76.06 | $0.00 | $0.00 | $0.00 | $152.12 |
| 2026 | 7914 | FD2 - FIRE DISTRICT #2 | $40.67 | $40.67 | $0.00 | $0.00 | $0.00 | $81.34 |
| 2026 | 7914 | EMS2 - FIRE DIST #2 EMS | $22.90 | $22.90 | $0.00 | $0.00 | $0.00 | $45.80 |
| 2026 | 7914 | CEM2 - CEMETERY DIST #2 | $1.30 | $1.30 | $0.00 | $0.00 | $0.00 | $2.60 |
| 2026 | 7914 | FPLCA - DNR Landowner Contingency Assmt | $3.00 | $3.00 | $0.00 | $0.00 | $0.00 | $6.00 |
| 2026 | 7914 | JCCD - JC Conservation District | $2.69 | $2.69 | $0.00 | $0.00 | $0.00 | $5.38 |
| 2026 | 7914 | NWA - Noxious Weed Assessment | $3.88 | $3.87 | $0.00 | $0.00 | $0.00 | $7.75 |
| 2026 | 7914 | WAT - Clean Water District | $13.00 | $13.00 | $0.00 | $0.00 | $0.00 | $26.00 |
| 2026 | 7914 | TOTAL: | $419.88 | $419.80 | $0.00 | $0.00 | $0.00 | $839.68 |
|
| 2026 | 7914 | $419.88 | $419.80 | $0.00 | $0.00 | $0.00 | $839.68 |
Statement Details |
| 2025 | 7935 | STATE - STATE LEVY (SCHOOL) | $123.57 | $123.55 | $0.00 | $0.00 | $247.12 | $0.00 |
| 2025 | 7935 | COUNTY - COUNTY LEVIES (CE, DD, VET, MH) | $48.60 | $48.58 | $0.00 | $0.00 | $97.18 | $0.00 |
| 2025 | 7935 | CONSERVE - CONSERVATION FUTURES | $1.46 | $1.45 | $0.00 | $0.00 | $2.91 | $0.00 |
| 2025 | 7935 | COROADS - COUNTY ROADS (ROADS, DIV TO CE) | $38.93 | $38.92 | $0.00 | $0.00 | $77.85 | $0.00 |
| 2025 | 7935 | PORTPT - PORT DISTRICT | $19.83 | $19.82 | $0.00 | $0.00 | $39.65 | $0.00 |
| 2025 | 7935 | PUD1 - PUD #1 | $3.18 | $3.18 | $0.00 | $0.00 | $6.36 | $0.00 |
| 2025 | 7935 | LIB1 - LIBRARY DIST #1 | $15.06 | $15.06 | $0.00 | $0.00 | $30.12 | $0.00 |
| 2025 | 7935 | HD2 - HOSP DIST #2 | $2.84 | $2.83 | $0.00 | $0.00 | $5.67 | $0.00 |
| 2025 | 7935 | SD48 - SCHOOL DIST #48 | $72.76 | $72.76 | $0.00 | $0.00 | $145.52 | $0.00 |
| 2025 | 7935 | FD2 - FIRE DISTRICT #2 | $40.17 | $40.17 | $0.00 | $0.00 | $80.34 | $0.00 |
| 2025 | 7935 | EMS2 - FIRE DIST #2 EMS | $22.62 | $22.62 | $0.00 | $0.00 | $45.24 | $0.00 |
| 2025 | 7935 | CEM2 - CEMETERY DIST #2 | $1.28 | $1.28 | $0.00 | $0.00 | $2.56 | $0.00 |
| 2025 | 7935 | FPLCA - DNR Landowner Contingency Assmt | $3.00 | $3.00 | $0.00 | $0.00 | $6.00 | $0.00 |
| 2025 | 7935 | JCCD - JC Conservation District | $2.75 | $2.75 | $0.00 | $0.00 | $5.50 | $0.00 |
| 2025 | 7935 | NWA - Noxious Weed Assessment | $2.75 | $2.75 | $0.00 | $0.00 | $5.50 | $0.00 |
| 2025 | 7935 | WAT - Clean Water District | $13.00 | $13.00 | $0.00 | $0.00 | $26.00 | $0.00 |
| 2025 | 7935 | TOTAL: | $411.80 | $411.72 | $0.00 | $0.00 | $823.52 | $0.00 |
|
| 2025 | 7935 | $411.80 | $411.72 | $0.00 | $0.00 | $823.52 | $0.00 |
Statement Details |
| 2024 | 7958 | STATE - STATE LEVY (SCHOOL) | $103.05 | $103.03 | $0.00 | $0.00 | $206.08 | $0.00 |
| 2024 | 7958 | COUNTY - COUNTY LEVIES (CE, DD, VET, MH) | $44.10 | $44.09 | $0.00 | $0.00 | $88.19 | $0.00 |
| 2024 | 7958 | CONSERVE - CONSERVATION FUTURES | $1.32 | $1.32 | $0.00 | $0.00 | $2.64 | $0.00 |
| 2024 | 7958 | COROADS - COUNTY ROADS (ROADS, DIV TO CE) | $35.49 | $35.47 | $0.00 | $0.00 | $70.96 | $0.00 |
| 2024 | 7958 | PORTPT - PORT DISTRICT | $18.22 | $18.21 | $0.00 | $0.00 | $36.43 | $0.00 |
| 2024 | 7958 | PUD1 - PUD #1 | $2.90 | $2.89 | $0.00 | $0.00 | $5.79 | $0.00 |
| 2024 | 7958 | LIB1 - LIBRARY DIST #1 | $13.73 | $13.72 | $0.00 | $0.00 | $27.45 | $0.00 |
| 2024 | 7958 | HD2 - HOSP DIST #2 | $2.58 | $2.57 | $0.00 | $0.00 | $5.15 | $0.00 |
| 2024 | 7958 | SD48 - SCHOOL DIST #48 | $46.15 | $46.15 | $0.00 | $0.00 | $92.30 | $0.00 |
| 2024 | 7958 | FD2 - FIRE DISTRICT #2 | $36.66 | $36.65 | $0.00 | $0.00 | $73.31 | $0.00 |
| 2024 | 7958 | EMS2 - FIRE DIST #2 EMS | $20.64 | $20.63 | $0.00 | $0.00 | $41.27 | $0.00 |
| 2024 | 7958 | CEM2 - CEMETERY DIST #2 | $1.18 | $1.17 | $0.00 | $0.00 | $2.35 | $0.00 |
| 2024 | 7958 | FPLCA - DNR Landowner Contingency Assmt | $3.00 | $3.00 | $0.00 | $0.00 | $6.00 | $0.00 |
| 2024 | 7958 | JCCD - JC Conservation District | $2.75 | $2.75 | $0.00 | $0.00 | $5.50 | $0.00 |
| 2024 | 7958 | NWA - Noxious Weed Assessment | $2.75 | $2.75 | $0.00 | $0.00 | $5.50 | $0.00 |
| 2024 | 7958 | WAT - Clean Water District | $12.50 | $12.50 | $0.00 | $0.00 | $25.00 | $0.00 |
| 2024 | 7958 | TOTAL: | $347.02 | $346.90 | $0.00 | $0.00 | $693.92 | $0.00 |
|
| 2024 | 7958 | $347.02 | $346.90 | $0.00 | $0.00 | $693.92 | $0.00 |
Statement Details |
| 2023 | 7974 | STATE - STATE LEVY (SCHOOL) | $85.54 | $85.54 | $0.00 | $0.00 | $171.08 | $0.00 |
| 2023 | 7974 | COUNTY - COUNTY LEVIES (CE, DD, VET, MH) | $37.33 | $37.31 | $0.00 | $0.00 | $74.64 | $0.00 |
| 2023 | 7974 | CONSERVE - CONSERVATION FUTURES | $1.12 | $1.12 | $0.00 | $0.00 | $2.24 | $0.00 |
| 2023 | 7974 | COROADS - COUNTY ROADS (ROADS, DIV TO CE) | $30.21 | $30.19 | $0.00 | $0.00 | $60.40 | $0.00 |
| 2023 | 7974 | PORTPT - PORT DISTRICT | $15.73 | $15.72 | $0.00 | $0.00 | $31.45 | $0.00 |
| 2023 | 7974 | PUD1 - PUD #1 | $2.48 | $2.47 | $0.00 | $0.00 | $4.95 | $0.00 |
| 2023 | 7974 | LIB1 - LIBRARY DIST #1 | $11.69 | $11.68 | $0.00 | $0.00 | $23.37 | $0.00 |
| 2023 | 7974 | HD2 - HOSP DIST #2 | $2.18 | $2.17 | $0.00 | $0.00 | $4.35 | $0.00 |
| 2023 | 7974 | SD48 - SCHOOL DIST #48 | $41.31 | $41.30 | $0.00 | $0.00 | $82.61 | $0.00 |
| 2023 | 7974 | FD2 - FIRE DISTRICT #2 | $32.40 | $32.40 | $0.00 | $0.00 | $64.80 | $0.00 |
| 2023 | 7974 | EMS2 - FIRE DIST #2 EMS | $18.17 | $18.16 | $0.00 | $0.00 | $36.33 | $0.00 |
| 2023 | 7974 | CEM2 - CEMETERY DIST #2 | $1.03 | $1.03 | $0.00 | $0.00 | $2.06 | $0.00 |
| 2023 | 7974 | FPLCA - DNR Landowner Contingency Assmt | $3.00 | $3.00 | $0.00 | $0.00 | $6.00 | $0.00 |
| 2023 | 7974 | JCCD - JC Conservation District | $2.75 | $2.75 | $0.00 | $0.00 | $5.50 | $0.00 |
| 2023 | 7974 | NWA - Noxious Weed Assessment | $2.75 | $2.75 | $0.00 | $0.00 | $5.50 | $0.00 |
| 2023 | 7974 | WAT - Clean Water District | $12.00 | $12.00 | $0.00 | $0.00 | $24.00 | $0.00 |
| 2023 | 7974 | TOTAL: | $299.69 | $299.59 | $0.00 | $0.00 | $599.28 | $0.00 |
|
| 2023 | 7974 | $299.69 | $299.59 | $0.00 | $0.00 | $599.28 | $0.00 |
Values
| (+) Improvement Homesite Value: | + | $0 | |
| (+) Improvement Non-Homesite Value: | + | $0 | |
| (+) Land Homesite Value: | + | $0 | |
| (+) Land Non-Homesite Value: | + | $107,732 | |
| (+) Curr Use (HS): | + | $0 | $0 |
| (+) Curr Use (NHS): | + | $0 | $0 |
| | | -------------------------- | |
| (=) Market Value: | = | $107,732 | |
| (–) Productivity Loss: | – | $0 | |
| | | -------------------------- | |
| (=) Subtotal: | = | $107,732 | |
| (+) Senior Appraised Value: | + | $0 | |
| (+) Non-Senior Appraised Value: | + | $107,732 | |
| | | -------------------------- | |
| (=) Total Appraised Value: | = | $107,732 | |
| (–) Senior Exemption Loss: | – | $0 | |
| (–) Exemption Loss: | – | $0 | |
| | | -------------------------- | |
| (=) Taxable Value: | = | $107,732 | |
Taxing Jurisdiction
| Owner: | CENTER VALLEY ANIMAL RESCUE | | |
| % Ownership: | 100.0000000000% | | |
| Total Value: | $107,732 | | |
| Tax Area: | 0320 - 1-48F2E2H2C2L1Z2 |
| CE | COUNTY CURRENT EXPENSE | 0.9034619479 | $107,732 | $107,732 | $97.33 | | |
| CNTYDD | DEVELOPMENTAL DISABILITIES | 0.0052121823 | $107,732 | $107,732 | $0.56 | | |
| CNTYVET | VETERANS RELIEF | 0.0052777810 | $107,732 | $107,732 | $0.57 | | |
| MENTAL | MENTAL HEALTH | 0.0052121823 | $107,732 | $107,732 | $0.56 | | |
| ROADS | COUNTY ROADS | 0.7415066410 | $107,732 | $107,732 | $79.88 | | |
| ROADSCU | COUNTY ROADS TO CUR EXP | 0.0000000000 | $107,732 | $107,732 | $0.00 | | |
| HOSP2CASH | HOSP DIST #2 GENERAL | 0.0536075306 | $107,732 | $107,732 | $5.78 | | |
| SCH48MO | SCHOOL DIST #48 EP & O | 1.4120478917 | $107,732 | $107,732 | $152.12 | | |
| CEM2 | CEMETERY DIST #2 GENERAL | 0.0241266154 | $107,732 | $107,732 | $2.60 | | |
| CONSERVE | CONSERVATION FUTURES | 0.0275621078 | $107,732 | $107,732 | $2.97 | | |
| FD2 | FIRE DIST #2 GENERAL | 0.7549976873 | $107,732 | $107,732 | $81.34 | | |
| LIB1 | LIBRARY DIST #1 GENERAL | 0.2868827388 | $107,732 | $107,732 | $30.91 | | |
| PORTPT | PORT OF PT GENERAL | 0.1134941229 | $107,732 | $107,732 | $12.23 | | |
| PORTPTIDD | PORT OF PT IDD 2019 | 0.2577346692 | $107,732 | $107,732 | $27.77 | | |
| PUD1 | PUD #1 GENERAL | 0.0597888892 | $107,732 | $107,732 | $6.44 | | |
| STATE | STATE SCHOOL PART 1 | 1.4940692947 | $107,732 | $107,732 | $160.96 | | |
| STATE2 | STATE SCHOOL PART 2 | 0.8050170049 | $107,732 | $107,732 | $86.73 | | |
| EMS2 | FIRE DIST #2 EMS | 0.4251727858 | $107,732 | $107,732 | $45.80 | | |
| | Total Tax Rate: | 7.3751720728 | | | | | |
| | | | | Taxes w/Current Exemptions: | $794.55 | | |
| | | | | Taxes w/o Exemptions: | $794.55 | | |
Improvement / Building
Sketch
| No sketches available for this property. |
Property Image
Land
| 1 | 2560-1374S | | 1.0000 | 43560.00 | 0.00 | 0.00 | 1.00 | $78,200 | $0 |
| 2 | 1575A | | 3.2100 | 139827.60 | 0.00 | 0.00 | 0.00 | $29,532 | $0 |
Roll Value History
| 2026 | N/A | N/A | N/A | N/A | N/A |
| 2025 | $0 | $107,732 | $0 | $107,732 | $107,732 |
| 2024 | $0 | $103,048 | $0 | $103,048 | $103,048 |
| 2023 | $0 | $89,075 | $0 | $89,075 | $89,075 |
| 2022 | $0 | $72,668 | $0 | $72,668 | $72,668 |
Deed and Sales History
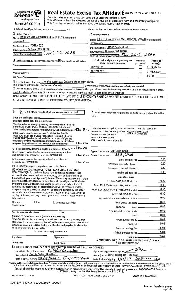
| 1 | 02/18/2025 | QCD | Quit Claim Deed | BASE CAMPS WILDERNESS INSTITUTE | CENTER VALLEY ANIMAL RESCUE | | | | 143919 | |
| 2 | 05/22/2024 | QCD | Quit Claim Deed | BASECAMPS OF AMERICA INC | BASE CAMPS WILDERNESS INSTITUTE | | | | 142634 | |
Payout Agreement
| No payout information available.. |