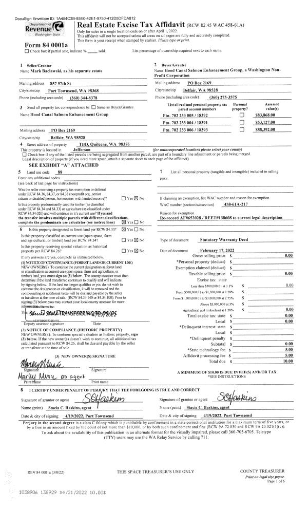
Property
Account |
| Property ID: | 18391 | Abbreviated Legal Description: | S23 T27 R2W W 1/2 NE SW LESS PTN TAX 40 SUBJ TO EASE |
| Parcel # / Geo ID: | 702233004 | Agent Code: | |
| Type: | Real | | |
| Tax Area: | 0320 - 1-48F2E2H2C2L1Z2 | Land Use Code | 88 |
| Open Space: | N | DFL | Y |
| Historic Property: | N | Remodel Property: | N |
| Multi-Family Redevelopment: | N | | |
| Township: | 27N | Section: | 23 |
| Range: | 2W |
Location |
| Address: | 160 GLEN LOGIE RD QUILCENE, WA 98376 | Mapsco: | 163/013 |
| Neighborhood: | S23 T27N R2W & TRANQUILCENE & ANDERSON S.P. & JONES S.P. | Map ID: | |
| Neighborhood CD: | 2560 |
Owner |
| Name: | MARK BACLAWSKI | Owner ID: | 10777 |
| Mailing Address: | 857 57TH ST PORT TOWNSEND, WA 98368-1202 | % Ownership: | 100.0000000000% |
| | | Exemptions: | |
Pay Tax Due
Select the appropriate checkbox next to the year to be paid. Multiple years may be selected.
*Convenience Fee not included
Taxes and Assessment Details
Property Tax Information as of
03/11/2026
Click on "Statement Details" to expand or collapse a tax statement.
* Please enter a valid date ** Please enter a valid date *
Statement Details |
| 2026 | 7918 | STATE - STATE LEVY (SCHOOL) | $100.27 | $100.25 | $0.00 | $0.00 | $0.00 | $200.52 |
| 2026 | 7918 | COUNTY - COUNTY LEVIES (CE, DD, VET, MH) | $40.09 | $40.07 | $0.00 | $0.00 | $0.00 | $80.16 |
| 2026 | 7918 | CONSERVE - CONSERVATION FUTURES | $1.20 | $1.20 | $0.00 | $0.00 | $0.00 | $2.40 |
| 2026 | 7918 | COROADS - COUNTY ROADS (ROADS, DIV TO CE) | $32.34 | $32.33 | $0.00 | $0.00 | $0.00 | $64.67 |
| 2026 | 7918 | PORTPT - PORT DISTRICT | $16.19 | $16.19 | $0.00 | $0.00 | $0.00 | $32.38 |
| 2026 | 7918 | PUD1 - PUD #1 | $2.61 | $2.60 | $0.00 | $0.00 | $0.00 | $5.21 |
| 2026 | 7918 | LIB1 - LIBRARY DIST #1 | $12.51 | $12.51 | $0.00 | $0.00 | $0.00 | $25.02 |
| 2026 | 7918 | HD2 - HOSP DIST #2 | $2.34 | $2.34 | $0.00 | $0.00 | $0.00 | $4.68 |
| 2026 | 7918 | SD48 - SCHOOL DIST #48 | $61.58 | $61.57 | $0.00 | $0.00 | $0.00 | $123.15 |
| 2026 | 7918 | FD2 - FIRE DISTRICT #2 | $32.93 | $32.92 | $0.00 | $0.00 | $0.00 | $65.85 |
| 2026 | 7918 | EMS2 - FIRE DIST #2 EMS | $18.54 | $18.54 | $0.00 | $0.00 | $0.00 | $37.08 |
| 2026 | 7918 | CEM2 - CEMETERY DIST #2 | $1.05 | $1.05 | $0.00 | $0.00 | $0.00 | $2.10 |
| 2026 | 7918 | FPLCA - DNR Landowner Contingency Assmt | $3.00 | $3.00 | $0.00 | $0.00 | $0.00 | $6.00 |
| 2026 | 7918 | NWA - Noxious Weed Assessment | $0.68 | $0.68 | $0.00 | $0.00 | $0.00 | $1.36 |
| 2026 | 7918 | TOTAL: | $325.33 | $325.25 | $0.00 | $0.00 | $0.00 | $650.58 |
|
| 2026 | 7918 | $325.33 | $325.25 | $0.00 | $0.00 | $0.00 | $650.58 |
Statement Details |
| 2025 | 7939 | STATE - STATE LEVY (SCHOOL) | $100.13 | $100.12 | $0.00 | $0.00 | $200.25 | $0.00 |
| 2025 | 7939 | COUNTY - COUNTY LEVIES (CE, DD, VET, MH) | $39.40 | $39.36 | $0.00 | $0.00 | $78.76 | $0.00 |
| 2025 | 7939 | CONSERVE - CONSERVATION FUTURES | $1.18 | $1.18 | $0.00 | $0.00 | $2.36 | $0.00 |
| 2025 | 7939 | COROADS - COUNTY ROADS (ROADS, DIV TO CE) | $31.55 | $31.54 | $0.00 | $0.00 | $63.09 | $0.00 |
| 2025 | 7939 | PORTPT - PORT DISTRICT | $16.07 | $16.06 | $0.00 | $0.00 | $32.13 | $0.00 |
| 2025 | 7939 | PUD1 - PUD #1 | $2.58 | $2.57 | $0.00 | $0.00 | $5.15 | $0.00 |
| 2025 | 7939 | LIB1 - LIBRARY DIST #1 | $12.21 | $12.20 | $0.00 | $0.00 | $24.41 | $0.00 |
| 2025 | 7939 | HD2 - HOSP DIST #2 | $2.30 | $2.29 | $0.00 | $0.00 | $4.59 | $0.00 |
| 2025 | 7939 | SD48 - SCHOOL DIST #48 | $58.96 | $58.96 | $0.00 | $0.00 | $117.92 | $0.00 |
| 2025 | 7939 | FD2 - FIRE DISTRICT #2 | $32.56 | $32.55 | $0.00 | $0.00 | $65.11 | $0.00 |
| 2025 | 7939 | EMS2 - FIRE DIST #2 EMS | $18.33 | $18.33 | $0.00 | $0.00 | $36.66 | $0.00 |
| 2025 | 7939 | CEM2 - CEMETERY DIST #2 | $1.04 | $1.04 | $0.00 | $0.00 | $2.08 | $0.00 |
| 2025 | 7939 | FPLCA - DNR Landowner Contingency Assmt | $3.00 | $3.00 | $0.00 | $0.00 | $6.00 | $0.00 |
| 2025 | 7939 | NWA - Noxious Weed Assessment | $0.47 | $0.47 | $0.00 | $0.00 | $0.94 | $0.00 |
| 2025 | 7939 | TOTAL: | $319.78 | $319.67 | $0.00 | $0.00 | $639.45 | $0.00 |
|
| 2025 | 7939 | $319.78 | $319.67 | $0.00 | $0.00 | $639.45 | $0.00 |
Statement Details |
| 2024 | 7962 | STATE - STATE LEVY (SCHOOL) | $86.24 | $86.23 | $0.00 | $0.00 | $172.47 | $0.00 |
| 2024 | 7962 | COUNTY - COUNTY LEVIES (CE, DD, VET, MH) | $36.91 | $36.90 | $0.00 | $0.00 | $73.81 | $0.00 |
| 2024 | 7962 | CONSERVE - CONSERVATION FUTURES | $1.11 | $1.10 | $0.00 | $0.00 | $2.21 | $0.00 |
| 2024 | 7962 | COROADS - COUNTY ROADS (ROADS, DIV TO CE) | $29.69 | $29.69 | $0.00 | $0.00 | $59.38 | $0.00 |
| 2024 | 7962 | PORTPT - PORT DISTRICT | $15.25 | $15.23 | $0.00 | $0.00 | $30.48 | $0.00 |
| 2024 | 7962 | PUD1 - PUD #1 | $2.43 | $2.42 | $0.00 | $0.00 | $4.85 | $0.00 |
| 2024 | 7962 | LIB1 - LIBRARY DIST #1 | $11.49 | $11.49 | $0.00 | $0.00 | $22.98 | $0.00 |
| 2024 | 7962 | HD2 - HOSP DIST #2 | $2.16 | $2.15 | $0.00 | $0.00 | $4.31 | $0.00 |
| 2024 | 7962 | SD48 - SCHOOL DIST #48 | $38.63 | $38.62 | $0.00 | $0.00 | $77.25 | $0.00 |
| 2024 | 7962 | FD2 - FIRE DISTRICT #2 | $30.68 | $30.67 | $0.00 | $0.00 | $61.35 | $0.00 |
| 2024 | 7962 | EMS2 - FIRE DIST #2 EMS | $17.27 | $17.27 | $0.00 | $0.00 | $34.54 | $0.00 |
| 2024 | 7962 | CEM2 - CEMETERY DIST #2 | $0.98 | $0.98 | $0.00 | $0.00 | $1.96 | $0.00 |
| 2024 | 7962 | FPLCA - DNR Landowner Contingency Assmt | $3.00 | $3.00 | $0.00 | $0.00 | $6.00 | $0.00 |
| 2024 | 7962 | NWA - Noxious Weed Assessment | $0.47 | $0.47 | $0.00 | $0.00 | $0.94 | $0.00 |
| 2024 | 7962 | TOTAL: | $276.31 | $276.22 | $0.00 | $0.00 | $552.53 | $0.00 |
|
| 2024 | 7962 | $276.31 | $276.22 | $0.00 | $0.00 | $552.53 | $0.00 |
Statement Details |
| 2023 | 7978 | STATE - STATE LEVY (SCHOOL) | $78.29 | $78.28 | $0.00 | $0.00 | $156.57 | $0.00 |
| 2023 | 7978 | COUNTY - COUNTY LEVIES (CE, DD, VET, MH) | $34.18 | $34.15 | $0.00 | $0.00 | $68.33 | $0.00 |
| 2023 | 7978 | CONSERVE - CONSERVATION FUTURES | $1.03 | $1.02 | $0.00 | $0.00 | $2.05 | $0.00 |
| 2023 | 7978 | COROADS - COUNTY ROADS (ROADS, DIV TO CE) | $27.64 | $27.64 | $0.00 | $0.00 | $55.28 | $0.00 |
| 2023 | 7978 | PORTPT - PORT DISTRICT | $14.40 | $14.39 | $0.00 | $0.00 | $28.79 | $0.00 |
| 2023 | 7978 | PUD1 - PUD #1 | $2.27 | $2.26 | $0.00 | $0.00 | $4.53 | $0.00 |
| 2023 | 7978 | LIB1 - LIBRARY DIST #1 | $10.70 | $10.69 | $0.00 | $0.00 | $21.39 | $0.00 |
| 2023 | 7978 | HD2 - HOSP DIST #2 | $1.99 | $1.99 | $0.00 | $0.00 | $3.98 | $0.00 |
| 2023 | 7978 | SD48 - SCHOOL DIST #48 | $37.81 | $37.80 | $0.00 | $0.00 | $75.61 | $0.00 |
| 2023 | 7978 | FD2 - FIRE DISTRICT #2 | $29.66 | $29.65 | $0.00 | $0.00 | $59.31 | $0.00 |
| 2023 | 7978 | EMS2 - FIRE DIST #2 EMS | $16.63 | $16.63 | $0.00 | $0.00 | $33.26 | $0.00 |
| 2023 | 7978 | CEM2 - CEMETERY DIST #2 | $0.95 | $0.94 | $0.00 | $0.00 | $1.89 | $0.00 |
| 2023 | 7978 | FPLCA - DNR Landowner Contingency Assmt | $3.00 | $3.00 | $0.00 | $0.00 | $6.00 | $0.00 |
| 2023 | 7978 | NWA - Noxious Weed Assessment | $0.47 | $0.47 | $0.00 | $0.00 | $0.94 | $0.00 |
| 2023 | 7978 | TOTAL: | $259.02 | $258.91 | $0.00 | $0.00 | $517.93 | $0.00 |
|
| 2023 | 7978 | $259.02 | $258.91 | $0.00 | $0.00 | $517.93 | $0.00 |
Values
| (+) Improvement Homesite Value: | + | $0 | |
| (+) Improvement Non-Homesite Value: | + | $0 | |
| (+) Land Homesite Value: | + | $0 | |
| (+) Land Non-Homesite Value: | + | $85,543 | |
| (+) Curr Use (HS): | + | $0 | $0 |
| (+) Curr Use (NHS): | + | $52,550 | $1,673 |
| | | -------------------------- | |
| (=) Market Value: | = | $138,093 | |
| (–) Productivity Loss: | – | $50,877 | |
| | | -------------------------- | |
| (=) Subtotal: | = | $87,216 | |
| (+) Senior Appraised Value: | + | $0 | |
| (+) Non-Senior Appraised Value: | + | $87,216 | |
| | | -------------------------- | |
| (=) Total Appraised Value: | = | $87,216 | |
| (–) Senior Exemption Loss: | – | $0 | |
| (–) Exemption Loss: | – | $0 | |
| | | -------------------------- | |
| (=) Taxable Value: | = | $87,216 | |
Taxing Jurisdiction
| Owner: | MARK BACLAWSKI | | |
| % Ownership: | 100.0000000000% | | |
| Total Value: | $138,093 | | |
| Tax Area: | 0320 - 1-48F2E2H2C2L1Z2 |
| CE | COUNTY CURRENT EXPENSE | 0.9034619479 | $87,216 | $87,216 | $78.80 | | |
| CNTYDD | DEVELOPMENTAL DISABILITIES | 0.0052121823 | $87,216 | $87,216 | $0.45 | | |
| CNTYVET | VETERANS RELIEF | 0.0052777810 | $87,216 | $87,216 | $0.46 | | |
| MENTAL | MENTAL HEALTH | 0.0052121823 | $87,216 | $87,216 | $0.45 | | |
| ROADS | COUNTY ROADS | 0.7415066410 | $87,216 | $87,216 | $64.67 | | |
| ROADSCU | COUNTY ROADS TO CUR EXP | 0.0000000000 | $87,216 | $87,216 | $0.00 | | |
| HOSP2CASH | HOSP DIST #2 GENERAL | 0.0536075306 | $87,216 | $87,216 | $4.68 | | |
| SCH48MO | SCHOOL DIST #48 EP & O | 1.4120478917 | $87,216 | $87,216 | $123.15 | | |
| CEM2 | CEMETERY DIST #2 GENERAL | 0.0241266154 | $87,216 | $87,216 | $2.10 | | |
| CONSERVE | CONSERVATION FUTURES | 0.0275621078 | $87,216 | $87,216 | $2.40 | | |
| FD2 | FIRE DIST #2 GENERAL | 0.7549976873 | $87,216 | $87,216 | $65.85 | | |
| LIB1 | LIBRARY DIST #1 GENERAL | 0.2868827388 | $87,216 | $87,216 | $25.02 | | |
| PORTPT | PORT OF PT GENERAL | 0.1134941229 | $87,216 | $87,216 | $9.90 | | |
| PORTPTIDD | PORT OF PT IDD 2019 | 0.2577346692 | $87,216 | $87,216 | $22.48 | | |
| PUD1 | PUD #1 GENERAL | 0.0597888892 | $87,216 | $87,216 | $5.21 | | |
| STATE | STATE SCHOOL PART 1 | 1.4940692947 | $87,216 | $87,216 | $130.31 | | |
| STATE2 | STATE SCHOOL PART 2 | 0.8050170049 | $87,216 | $87,216 | $70.21 | | |
| EMS2 | FIRE DIST #2 EMS | 0.4251727858 | $87,216 | $87,216 | $37.08 | | |
| | Total Tax Rate: | 7.3751720728 | | | | | |
| | | | | Taxes w/Current Exemptions: | $643.22 | | |
| | | | | Taxes w/o Exemptions: | $643.22 | | |
Improvement / Building
Sketch
| No sketches available for this property. |
Property Image
Land
| 1 | 1775A | | 5.9800 | 260488.80 | 0.00 | 0.00 | 0.00 | $39,543 | $0 |
| 2 | 1777A | | 6.9400 | 302306.40 | 0.00 | 0.00 | 0.00 | $37,910 | $1,291 |
| 3 | 1777A | | 2.4100 | 104979.60 | 0.00 | 0.00 | 0.00 | $13,165 | $359 |
| 4 | 1777A | | 0.2700 | 11761.20 | 0.00 | 0.00 | 0.00 | $1,475 | $23 |
| 5 | 2560-1375S | | 1.0000 | 43560.00 | 0.00 | 0.00 | 1.00 | $46,000 | $0 |
Roll Value History
| 2026 | N/A | N/A | N/A | N/A | N/A |
| 2025 | $0 | $138,093 | $1,673 | $87,216 | $87,216 |
| 2024 | $0 | $132,090 | $1,683 | $83,507 | $83,507 |
| 2023 | $0 | $116,180 | $1,656 | $74,546 | $74,546 |
| 2022 | $0 | $103,380 | $1,611 | $66,511 | $66,511 |
Deed and Sales History
| 1 | 07/22/2021 | BLA | Boundary Line Adjustment | MARK BACLAWSKI | MARK BACLAWSKI | | | | 137207 | |
| 2 | 08/30/2000 | SWD | Statutory Warranty Deed | ROSE, NORMAN J/FAMILY TRU | BACLAWSKI, MARK | 0 | 0 | $0.00 | 90514 | 0 |
| 3 | 08/09/2000 | SWD | Statutory Warranty Deed | ROSE, NORMAN J | ROSE, NORMAN J/FAMILY TRUST | 0 | 0 | $0.00 | 90403 | 0 |
Payout Agreement
| No payout information available.. |