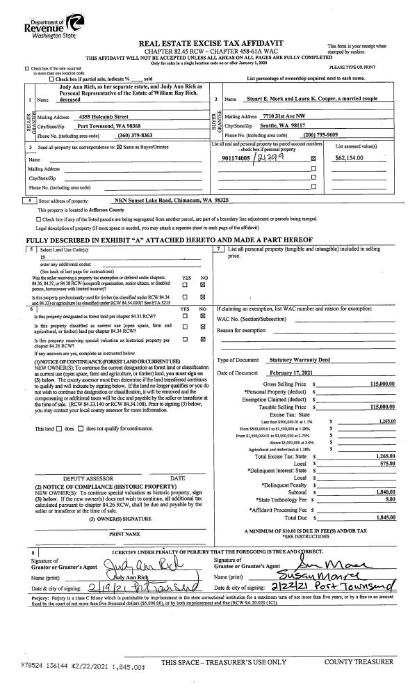
Property
Account |
| Property ID: | 18408 | Abbreviated Legal Description: | S24 T27 R2W TAX 65(BND BY BLA#135151) |
| Parcel # / Geo ID: | 702242001 | Agent Code: | |
| Type: | Real | | |
| Tax Area: | 0320 - 1-48F2E2H2C2L1Z2 | Land Use Code | 16 |
| Open Space: | N | DFL | N |
| Historic Property: | N | Remodel Property: | N |
| Multi-Family Redevelopment: | N | | |
| Township: | 27N | Section: | 24 |
| Range: | 2W |
Location |
| Address: | 61 MAPLE GROVE RD QUILCENE, WA 98376 | Mapsco: | 164/062 |
| Neighborhood: | QUILCENE COMMERCIAL DISTRICT CENTRAL/SOUTH | Map ID: | |
| Neighborhood CD: | 2555C |
Owner |
| Name: | PENINSULA HOST LLC | Owner ID: | 105277 |
| Mailing Address: | 6827 55TH AVE NE SEATTLE, WA 98115-7132 | % Ownership: | 100.0000000000% |
| | | Exemptions: | |
Pay Tax Due
There is currently No Amount Due on this property.
Taxes and Assessment Details
Property Tax Information as of
03/10/2026
Click on "Statement Details" to expand or collapse a tax statement.
* Please enter a valid date ** Please enter a valid date *
Statement Details |
| 2026 | 7935 | STATE - STATE LEVY (SCHOOL) | $1122.98 | $1122.96 | $0.00 | $0.00 | $2245.94 | $0.00 |
| 2026 | 7935 | COUNTY - COUNTY LEVIES (CE, DD, VET, MH) | $448.97 | $448.94 | $0.00 | $0.00 | $897.91 | $0.00 |
| 2026 | 7935 | CONSERVE - CONSERVATION FUTURES | $13.46 | $13.46 | $0.00 | $0.00 | $26.92 | $0.00 |
| 2026 | 7935 | COROADS - COUNTY ROADS (ROADS, DIV TO CE) | $362.18 | $362.18 | $0.00 | $0.00 | $724.36 | $0.00 |
| 2026 | 7935 | PORTPT - PORT DISTRICT | $181.33 | $181.32 | $0.00 | $0.00 | $362.65 | $0.00 |
| 2026 | 7935 | PUD1 - PUD #1 | $29.21 | $29.20 | $0.00 | $0.00 | $58.41 | $0.00 |
| 2026 | 7935 | LIB1 - LIBRARY DIST #1 | $140.13 | $140.12 | $0.00 | $0.00 | $280.25 | $0.00 |
| 2026 | 7935 | HD2 - HOSP DIST #2 | $26.19 | $26.18 | $0.00 | $0.00 | $52.37 | $0.00 |
| 2026 | 7935 | SD48 - SCHOOL DIST #48 | $689.70 | $689.70 | $0.00 | $0.00 | $1379.40 | $0.00 |
| 2026 | 7935 | FD2 - FIRE DISTRICT #2 | $368.77 | $368.77 | $0.00 | $0.00 | $737.54 | $0.00 |
| 2026 | 7935 | EMS2 - FIRE DIST #2 EMS | $207.67 | $207.67 | $0.00 | $0.00 | $415.34 | $0.00 |
| 2026 | 7935 | CEM2 - CEMETERY DIST #2 | $11.79 | $11.78 | $0.00 | $0.00 | $23.57 | $0.00 |
| 2026 | 7935 | FP - DNR Forest Fire Protection Assmt | $8.50 | $8.50 | $0.00 | $0.00 | $17.00 | $0.00 |
| 2026 | 7935 | FPLCA - DNR Landowner Contingency Assmt | $3.00 | $3.00 | $0.00 | $0.00 | $6.00 | $0.00 |
| 2026 | 7935 | JCCD - JC Conservation District | $2.61 | $2.61 | $0.00 | $0.00 | $5.22 | $0.00 |
| 2026 | 7935 | NWA - Noxious Weed Assessment | $3.43 | $3.42 | $0.00 | $0.00 | $6.85 | $0.00 |
| 2026 | 7935 | OSS - On Site Septic | $46.20 | $46.20 | $0.00 | $0.00 | $92.40 | $0.00 |
| 2026 | 7935 | WAT - Clean Water District | $13.00 | $13.00 | $0.00 | $0.00 | $26.00 | $0.00 |
| 2026 | 7935 | FP ADMIN - FP ADMIN | $0.50 | $0.00 | $0.00 | $0.00 | $0.50 | $0.00 |
| 2026 | 7935 | TOTAL: | $3679.62 | $3679.01 | $0.00 | $0.00 | $7358.63 | $0.00 |
|
| 2026 | 7935 | $3679.62 | $3679.01 | $0.00 | $0.00 | $7358.63 | $0.00 |
Statement Details |
| 2025 | 7956 | STATE - STATE LEVY (SCHOOL) | $1171.30 | $1171.29 | $0.00 | $0.00 | $2342.59 | $0.00 |
| 2025 | 7956 | COUNTY - COUNTY LEVIES (CE, DD, VET, MH) | $460.61 | $460.59 | $0.00 | $0.00 | $921.20 | $0.00 |
| 2025 | 7956 | CONSERVE - CONSERVATION FUTURES | $13.81 | $13.81 | $0.00 | $0.00 | $27.62 | $0.00 |
| 2025 | 7956 | COROADS - COUNTY ROADS (ROADS, DIV TO CE) | $369.02 | $369.01 | $0.00 | $0.00 | $738.03 | $0.00 |
| 2025 | 7956 | PORTPT - PORT DISTRICT | $187.96 | $187.95 | $0.00 | $0.00 | $375.91 | $0.00 |
| 2025 | 7956 | PUD1 - PUD #1 | $30.14 | $30.14 | $0.00 | $0.00 | $60.28 | $0.00 |
| 2025 | 7956 | LIB1 - LIBRARY DIST #1 | $142.77 | $142.77 | $0.00 | $0.00 | $285.54 | $0.00 |
| 2025 | 7956 | HD2 - HOSP DIST #2 | $26.88 | $26.87 | $0.00 | $0.00 | $53.75 | $0.00 |
| 2025 | 7956 | SD48 - SCHOOL DIST #48 | $689.74 | $689.74 | $0.00 | $0.00 | $1379.48 | $0.00 |
| 2025 | 7956 | FD2 - FIRE DISTRICT #2 | $380.83 | $380.82 | $0.00 | $0.00 | $761.65 | $0.00 |
| 2025 | 7956 | EMS2 - FIRE DIST #2 EMS | $214.43 | $214.43 | $0.00 | $0.00 | $428.86 | $0.00 |
| 2025 | 7956 | CEM2 - CEMETERY DIST #2 | $12.15 | $12.15 | $0.00 | $0.00 | $24.30 | $0.00 |
| 2025 | 7956 | FP - DNR Forest Fire Protection Assmt | $8.50 | $8.50 | $0.00 | $0.00 | $17.00 | $0.00 |
| 2025 | 7956 | FPLCA - DNR Landowner Contingency Assmt | $3.00 | $3.00 | $0.00 | $0.00 | $6.00 | $0.00 |
| 2025 | 7956 | JCCD - JC Conservation District | $2.61 | $2.61 | $0.00 | $0.00 | $5.22 | $0.00 |
| 2025 | 7956 | NWA - Noxious Weed Assessment | $2.45 | $2.45 | $0.00 | $0.00 | $4.90 | $0.00 |
| 2025 | 7956 | WAT - Clean Water District | $13.00 | $13.00 | $0.00 | $0.00 | $26.00 | $0.00 |
| 2025 | 7956 | FP ADMIN - FP ADMIN | $0.50 | $0.00 | $0.00 | $0.00 | $0.50 | $0.00 |
| 2025 | 7956 | TOTAL: | $3729.70 | $3729.13 | $0.00 | $0.00 | $7458.83 | $0.00 |
|
| 2025 | 7956 | $3729.70 | $3729.13 | $0.00 | $0.00 | $7458.83 | $0.00 |
Statement Details |
| 2024 | 7979 | STATE - STATE LEVY (SCHOOL) | $1124.27 | $1124.27 | $0.00 | $0.00 | $2248.54 | $0.00 |
| 2024 | 7979 | COUNTY - COUNTY LEVIES (CE, DD, VET, MH) | $481.10 | $481.07 | $0.00 | $0.00 | $962.17 | $0.00 |
| 2024 | 7979 | CONSERVE - CONSERVATION FUTURES | $14.43 | $14.42 | $0.00 | $0.00 | $28.85 | $0.00 |
| 2024 | 7979 | COROADS - COUNTY ROADS (ROADS, DIV TO CE) | $387.12 | $387.11 | $0.00 | $0.00 | $774.23 | $0.00 |
| 2024 | 7979 | PORTPT - PORT DISTRICT | $198.71 | $198.70 | $0.00 | $0.00 | $397.41 | $0.00 |
| 2024 | 7979 | PUD1 - PUD #1 | $31.60 | $31.60 | $0.00 | $0.00 | $63.20 | $0.00 |
| 2024 | 7979 | LIB1 - LIBRARY DIST #1 | $149.77 | $149.77 | $0.00 | $0.00 | $299.54 | $0.00 |
| 2024 | 7979 | HD2 - HOSP DIST #2 | $28.07 | $28.07 | $0.00 | $0.00 | $56.14 | $0.00 |
| 2024 | 7979 | SD48 - SCHOOL DIST #48 | $503.54 | $503.54 | $0.00 | $0.00 | $1007.08 | $0.00 |
| 2024 | 7979 | FD2 - FIRE DISTRICT #2 | $399.95 | $399.95 | $0.00 | $0.00 | $799.90 | $0.00 |
| 2024 | 7979 | EMS2 - FIRE DIST #2 EMS | $225.15 | $225.14 | $0.00 | $0.00 | $450.29 | $0.00 |
| 2024 | 7979 | CEM2 - CEMETERY DIST #2 | $12.80 | $12.80 | $0.00 | $0.00 | $25.60 | $0.00 |
| 2024 | 7979 | JCCD - JC Conservation District | $2.61 | $2.61 | $0.00 | $0.00 | $5.22 | $0.00 |
| 2024 | 7979 | NWA - Noxious Weed Assessment | $2.45 | $2.45 | $0.00 | $0.00 | $4.90 | $0.00 |
| 2024 | 7979 | WAT - Clean Water District | $12.50 | $12.50 | $0.00 | $0.00 | $25.00 | $0.00 |
| 2024 | 7979 | TOTAL: | $3574.07 | $3574.00 | $0.00 | $0.00 | $7148.07 | $0.00 |
|
| 2024 | 7979 | $3574.07 | $3574.00 | $0.00 | $0.00 | $7148.07 | $0.00 |
Statement Details |
| 2023 | 7995 | STATE - STATE LEVY (SCHOOL) | $1119.39 | $1119.37 | $0.00 | $0.00 | $2238.76 | $0.00 |
| 2023 | 7995 | COUNTY - COUNTY LEVIES (CE, DD, VET, MH) | $488.48 | $488.45 | $0.00 | $0.00 | $976.93 | $0.00 |
| 2023 | 7995 | CONSERVE - CONSERVATION FUTURES | $14.65 | $14.64 | $0.00 | $0.00 | $29.29 | $0.00 |
| 2023 | 7995 | COROADS - COUNTY ROADS (ROADS, DIV TO CE) | $395.21 | $395.19 | $0.00 | $0.00 | $790.40 | $0.00 |
| 2023 | 7995 | PORTPT - PORT DISTRICT | $205.78 | $205.76 | $0.00 | $0.00 | $411.54 | $0.00 |
| 2023 | 7995 | PUD1 - PUD #1 | $32.38 | $32.38 | $0.00 | $0.00 | $64.76 | $0.00 |
| 2023 | 7995 | LIB1 - LIBRARY DIST #1 | $152.90 | $152.90 | $0.00 | $0.00 | $305.80 | $0.00 |
| 2023 | 7995 | HD2 - HOSP DIST #2 | $28.51 | $28.50 | $0.00 | $0.00 | $57.01 | $0.00 |
| 2023 | 7995 | SD48 - SCHOOL DIST #48 | $540.56 | $540.56 | $0.00 | $0.00 | $1081.12 | $0.00 |
| 2023 | 7995 | FD2 - FIRE DISTRICT #2 | $424.00 | $423.99 | $0.00 | $0.00 | $847.99 | $0.00 |
| 2023 | 7995 | EMS2 - FIRE DIST #2 EMS | $237.75 | $237.74 | $0.00 | $0.00 | $475.49 | $0.00 |
| 2023 | 7995 | CEM2 - CEMETERY DIST #2 | $13.50 | $13.50 | $0.00 | $0.00 | $27.00 | $0.00 |
| 2023 | 7995 | JCCD - JC Conservation District | $2.61 | $2.61 | $0.00 | $0.00 | $5.22 | $0.00 |
| 2023 | 7995 | NWA - Noxious Weed Assessment | $2.45 | $2.45 | $0.00 | $0.00 | $4.90 | $0.00 |
| 2023 | 7995 | WAT - Clean Water District | $12.00 | $12.00 | $0.00 | $0.00 | $24.00 | $0.00 |
| 2023 | 7995 | TOTAL: | $3670.17 | $3670.04 | $0.00 | $0.00 | $7340.21 | $0.00 |
|
| 2023 | 7995 | $3670.17 | $3670.04 | $0.00 | $0.00 | $7340.21 | $0.00 |
Values
| (+) Improvement Homesite Value: | + | $0 | |
| (+) Improvement Non-Homesite Value: | + | $578,920 | |
| (+) Land Homesite Value: | + | $0 | |
| (+) Land Non-Homesite Value: | + | $397,960 | |
| (+) Curr Use (HS): | + | $0 | $0 |
| (+) Curr Use (NHS): | + | $0 | $0 |
| | | -------------------------- | |
| (=) Market Value: | = | $976,880 | |
| (–) Productivity Loss: | – | $0 | |
| | | -------------------------- | |
| (=) Subtotal: | = | $976,880 | |
| (+) Senior Appraised Value: | + | $0 | |
| (+) Non-Senior Appraised Value: | + | $976,880 | |
| | | -------------------------- | |
| (=) Total Appraised Value: | = | $976,880 | |
| (–) Senior Exemption Loss: | – | $0 | |
| (–) Exemption Loss: | – | $0 | |
| | | -------------------------- | |
| (=) Taxable Value: | = | $976,880 | |
Taxing Jurisdiction
| Owner: | PENINSULA HOST LLC | | |
| % Ownership: | 100.0000000000% | | |
| Total Value: | $976,880 | | |
| Tax Area: | 0320 - 1-48F2E2H2C2L1Z2 |
| CE | COUNTY CURRENT EXPENSE | 0.9034619479 | $976,880 | $976,880 | $882.57 | | |
| CNTYDD | DEVELOPMENTAL DISABILITIES | 0.0052121823 | $976,880 | $976,880 | $5.09 | | |
| CNTYVET | VETERANS RELIEF | 0.0052777810 | $976,880 | $976,880 | $5.16 | | |
| MENTAL | MENTAL HEALTH | 0.0052121823 | $976,880 | $976,880 | $5.09 | | |
| ROADS | COUNTY ROADS | 0.7415066410 | $976,880 | $976,880 | $724.36 | | |
| ROADSCU | COUNTY ROADS TO CUR EXP | 0.0000000000 | $976,880 | $976,880 | $0.00 | | |
| HOSP2CASH | HOSP DIST #2 GENERAL | 0.0536075306 | $976,880 | $976,880 | $52.37 | | |
| SCH48MO | SCHOOL DIST #48 EP & O | 1.4120478917 | $976,880 | $976,880 | $1,379.40 | | |
| CEM2 | CEMETERY DIST #2 GENERAL | 0.0241266154 | $976,880 | $976,880 | $23.57 | | |
| CONSERVE | CONSERVATION FUTURES | 0.0275621078 | $976,880 | $976,880 | $26.92 | | |
| FD2 | FIRE DIST #2 GENERAL | 0.7549976873 | $976,880 | $976,880 | $737.54 | | |
| LIB1 | LIBRARY DIST #1 GENERAL | 0.2868827388 | $976,880 | $976,880 | $280.25 | | |
| PORTPT | PORT OF PT GENERAL | 0.1134941229 | $976,880 | $976,880 | $110.87 | | |
| PORTPTIDD | PORT OF PT IDD 2019 | 0.2577346692 | $976,880 | $976,880 | $251.78 | | |
| PUD1 | PUD #1 GENERAL | 0.0597888892 | $976,880 | $976,880 | $58.41 | | |
| STATE | STATE SCHOOL PART 1 | 1.4940692947 | $976,880 | $976,880 | $1,459.53 | | |
| STATE2 | STATE SCHOOL PART 2 | 0.8050170049 | $976,880 | $976,880 | $786.41 | | |
| EMS2 | FIRE DIST #2 EMS | 0.4251727858 | $976,880 | $976,880 | $415.34 | | |
| | Total Tax Rate: | 7.3751720728 | | | | | |
| | | | | Taxes w/Current Exemptions: | $7,204.66 | | |
| | | | | Taxes w/o Exemptions: | $7,204.66 | | |
Improvement / Building
| Improvement #1: | Residential Bldg | State Code: | 11 | 1416.0 sqft | Value: | $191,703 |
| Bathrooms (#): | 1 (FULL) | Bedrooms (#): | 2 | | Exterior Wall: | SI/ST | Fireplace: | SIN 1-GOOD | | Fireplace: | WD ST-GOOD | Floor Construction: | FRAME | | Foundation: | CONPR | Heating/Cooling: | ELBB | | Inside Verify: | YES | Roof Cover: | COMP |
|
| | Type | Description | Class CD | Sub Class CD | Year Built | Area |
| | MA | Main Area | 4 | 1S | 1942 | 1416.0 |
| | HWPOR | House Wood Porch | 4 | * | 1942 | 85.0 |
| | HWPOR | House Wood Porch | 4 | * | 1942 | 176.0 |
| | HCPOR | House Concrete Porch | 4 | * | 1942 | 24.0 |
| | CARPTN | Carport W/O Floor | 4 | * | 1942 | 320.0 |
| | HDECK | House Deck | 4 | * | 1942 | 452.0 |
| Improvement #2: | Commercial/Industrial/Government Bldg | State Code: | 16 | 2000.0 sqft | Value: | $193,784 |
| Exterior Wall: | SI/ST | Floor Construction: | FRAME | | Foundation: | PO&BL | Heating/Cooling: | ELBB | | Interior Finish: | FIN | Roof Cover: | COMP |
|
| Improvement #3: | Commercial/Industrial/Government Bldg | State Code: | 16 | 1280.0 sqft | Value: | $140,153 |
| Exterior Wall: | SI/ST | Floor Construction: | FRAME | | Foundation: | PO&BL | Heating/Cooling: | ELBB | | Interior Finish: | FIN | Roof Cover: | COMP |
|
| Improvement #4: | Residential Bldg | State Code: | 11 | 0.0 sqft | Value: | $10,112 |
| Improvement #5: | Residential Bldg | State Code: | 11 | 0.0 sqft | Value: | $16,656 |
| Improvement #6: | Residential Bldg | State Code: | 11 | 0.0 sqft | Value: | $23,064 |
| Improvement #7: | Residential Bldg | State Code: | 11 | 0.0 sqft | Value: | $3,448 |
Sketch
Property Image
Land
| 1 | 2555-6585Q | | 3.2871 | 143184.00 | 0.00 | 0.00 | 0.00 | $397,960 | $0 |
Roll Value History
| 2026 | N/A | N/A | N/A | N/A | N/A |
| 2025 | $578,920 | $397,960 | $0 | $976,880 | $976,880 |
| 2024 | $578,920 | $397,960 | $0 | $976,880 | $976,880 |
| 2023 | $578,920 | $392,960 | $0 | $971,880 | $971,880 |
| 2022 | $563,018 | $387,960 | $0 | $950,978 | $950,978 |
Deed and Sales History
| 1 | 07/28/2021 | SWD | Statutory Warranty Deed | SEABIENT CORPORATION | PENINSULA HOST LLC | | | $1,000,000.00 | 137294 | |
| 2 | 09/16/2020 | BLA | Boundary Line Adjustment | SEABIENT CORPORATION | SEABIENT CORPORATION | | | | 135151 | |
| 3 | 10/23/2006 | QCD | Quit Claim Deed | PEV ENTERPRISE INC | SEABIENT CORPORATION | 0 | 0 | $0.00 | 107930 | 0 |
| 4 | 10/23/2006 | QCD | Quit Claim Deed | PEV ENTERPRISE INC | SEABIENT CORPORATION | 0 | 0 | $0.00 | 108111 | 0 |
| 5 | 08/21/2002 | SWD | Statutory Warranty Deed | CALVIN F ROGERS | PEV ENTERPRISES INCORPORATED | 0 | 0 | $0.00 | 95383 | 0 |
Payout Agreement
| No payout information available.. |