Property
Account |
| Property ID: | 18440 | Abbreviated Legal Description: | S24 T27 R2W N1/2 SW SE SW |
| Parcel # / Geo ID: | 702243016 | Agent Code: | |
| Type: | Real | | |
| Tax Area: | 0321 - 1-48F2E2H2C2L1 | Land Use Code | 19 |
| Open Space: | N | DFL | N |
| Historic Property: | N | Remodel Property: | N |
| Multi-Family Redevelopment: | N | | |
| Township: | 27N | Section: | 24 |
| Range: | 2W |
Location |
| Address: | 650 CLAYBANKS RD QUILCENE, WA 98376 | Mapsco: | 164/032 |
| Neighborhood: | S24 T27 R2W | Map ID: | |
| Neighborhood CD: | 2550 |
Owner |
| Name: | KARENA L POL | Owner ID: | 105004 |
| Mailing Address: | PO BOX 36 QUILCENE, WA 98376-0036 | % Ownership: | 100.0000000000% |
| | | Exemptions: | |
Pay Tax Due
Select the appropriate checkbox next to the year to be paid. Multiple years may be selected.
*Convenience Fee not included
Taxes and Assessment Details
Property Tax Information as of
03/10/2026
Click on "Statement Details" to expand or collapse a tax statement.
* Please enter a valid date ** Please enter a valid date *
Statement Details |
| 2026 | 7967 | STATE - STATE LEVY (SCHOOL) | $177.18 | $177.18 | $0.00 | $0.00 | $0.00 | $354.36 |
| 2026 | 7967 | COUNTY - COUNTY LEVIES (CE, DD, VET, MH) | $70.84 | $70.82 | $0.00 | $0.00 | $0.00 | $141.66 |
| 2026 | 7967 | CONSERVE - CONSERVATION FUTURES | $2.13 | $2.12 | $0.00 | $0.00 | $0.00 | $4.25 |
| 2026 | 7967 | COROADS - COUNTY ROADS (ROADS, DIV TO CE) | $57.15 | $57.14 | $0.00 | $0.00 | $0.00 | $114.29 |
| 2026 | 7967 | PORTPT - PORT DISTRICT | $28.61 | $28.60 | $0.00 | $0.00 | $0.00 | $57.21 |
| 2026 | 7967 | PUD1 - PUD #1 | $4.61 | $4.61 | $0.00 | $0.00 | $0.00 | $9.22 |
| 2026 | 7967 | LIB1 - LIBRARY DIST #1 | $22.11 | $22.11 | $0.00 | $0.00 | $0.00 | $44.22 |
| 2026 | 7967 | HD2 - HOSP DIST #2 | $4.13 | $4.13 | $0.00 | $0.00 | $0.00 | $8.26 |
| 2026 | 7967 | SD48 - SCHOOL DIST #48 | $108.82 | $108.82 | $0.00 | $0.00 | $0.00 | $217.64 |
| 2026 | 7967 | FD2 - FIRE DISTRICT #2 | $58.19 | $58.18 | $0.00 | $0.00 | $0.00 | $116.37 |
| 2026 | 7967 | EMS2 - FIRE DIST #2 EMS | $32.77 | $32.76 | $0.00 | $0.00 | $0.00 | $65.53 |
| 2026 | 7967 | CEM2 - CEMETERY DIST #2 | $1.86 | $1.86 | $0.00 | $0.00 | $0.00 | $3.72 |
| 2026 | 7967 | FP - DNR Forest Fire Protection Assmt | $8.50 | $8.50 | $0.00 | $0.00 | $0.00 | $17.00 |
| 2026 | 7967 | FPLCA - DNR Landowner Contingency Assmt | $3.00 | $3.00 | $0.00 | $0.00 | $0.00 | $6.00 |
| 2026 | 7967 | JCCD - JC Conservation District | $2.80 | $2.80 | $0.00 | $0.00 | $0.00 | $5.60 |
| 2026 | 7967 | NWA - Noxious Weed Assessment | $4.10 | $4.10 | $0.00 | $0.00 | $0.00 | $8.20 |
| 2026 | 7967 | OSS - On Site Septic | $23.10 | $23.10 | $0.00 | $0.00 | $0.00 | $46.20 |
| 2026 | 7967 | WAT - Clean Water District | $13.00 | $13.00 | $0.00 | $0.00 | $0.00 | $26.00 |
| 2026 | 7967 | FP ADMIN - FP ADMIN | $0.50 | $0.00 | $0.00 | $0.00 | $0.00 | $0.50 |
| 2026 | 7967 | TOTAL: | $623.40 | $622.83 | $0.00 | $0.00 | $0.00 | $1246.23 |
|
| 2026 | 7967 | $623.40 | $622.83 | $0.00 | $0.00 | $0.00 | $1246.23 |
Statement Details |
| 2025 | 7988 | STATE - STATE LEVY (SCHOOL) | $176.87 | $176.86 | $0.00 | $0.00 | $353.73 | $0.00 |
| 2025 | 7988 | COUNTY - COUNTY LEVIES (CE, DD, VET, MH) | $69.57 | $69.54 | $0.00 | $0.00 | $139.11 | $0.00 |
| 2025 | 7988 | CONSERVE - CONSERVATION FUTURES | $2.09 | $2.08 | $0.00 | $0.00 | $4.17 | $0.00 |
| 2025 | 7988 | COROADS - COUNTY ROADS (ROADS, DIV TO CE) | $55.72 | $55.72 | $0.00 | $0.00 | $111.44 | $0.00 |
| 2025 | 7988 | PORTPT - PORT DISTRICT | $28.39 | $28.38 | $0.00 | $0.00 | $56.77 | $0.00 |
| 2025 | 7988 | PUD1 - PUD #1 | $4.55 | $4.55 | $0.00 | $0.00 | $9.10 | $0.00 |
| 2025 | 7988 | LIB1 - LIBRARY DIST #1 | $21.56 | $21.56 | $0.00 | $0.00 | $43.12 | $0.00 |
| 2025 | 7988 | HD2 - HOSP DIST #2 | $4.06 | $4.06 | $0.00 | $0.00 | $8.12 | $0.00 |
| 2025 | 7988 | SD48 - SCHOOL DIST #48 | $104.15 | $104.15 | $0.00 | $0.00 | $208.30 | $0.00 |
| 2025 | 7988 | FD2 - FIRE DISTRICT #2 | $57.51 | $57.50 | $0.00 | $0.00 | $115.01 | $0.00 |
| 2025 | 7988 | EMS2 - FIRE DIST #2 EMS | $32.38 | $32.38 | $0.00 | $0.00 | $64.76 | $0.00 |
| 2025 | 7988 | CEM2 - CEMETERY DIST #2 | $1.84 | $1.83 | $0.00 | $0.00 | $3.67 | $0.00 |
| 2025 | 7988 | FP - DNR Forest Fire Protection Assmt | $8.50 | $8.50 | $0.00 | $0.00 | $17.00 | $0.00 |
| 2025 | 7988 | FPLCA - DNR Landowner Contingency Assmt | $3.00 | $3.00 | $0.00 | $0.00 | $6.00 | $0.00 |
| 2025 | 7988 | JCCD - JC Conservation District | $2.80 | $2.80 | $0.00 | $0.00 | $5.60 | $0.00 |
| 2025 | 7988 | NWA - Noxious Weed Assessment | $2.90 | $2.90 | $0.00 | $0.00 | $5.80 | $0.00 |
| 2025 | 7988 | WAT - Clean Water District | $13.00 | $13.00 | $0.00 | $0.00 | $26.00 | $0.00 |
| 2025 | 7988 | FP ADMIN - FP ADMIN | $0.50 | $0.00 | $0.00 | $0.00 | $0.50 | $0.00 |
| 2025 | 7988 | TOTAL: | $589.39 | $588.81 | $0.00 | $0.00 | $1178.20 | $0.00 |
|
| 2025 | 7988 | $589.39 | $588.81 | $0.00 | $0.00 | $1178.20 | $0.00 |
Statement Details |
| 2024 | 8011 | STATE - STATE LEVY (SCHOOL) | $155.67 | $155.66 | $0.00 | $0.00 | $311.33 | $0.00 |
| 2024 | 8011 | COUNTY - COUNTY LEVIES (CE, DD, VET, MH) | $66.62 | $66.60 | $0.00 | $0.00 | $133.22 | $0.00 |
| 2024 | 8011 | CONSERVE - CONSERVATION FUTURES | $2.00 | $1.99 | $0.00 | $0.00 | $3.99 | $0.00 |
| 2024 | 8011 | COROADS - COUNTY ROADS (ROADS, DIV TO CE) | $53.61 | $53.59 | $0.00 | $0.00 | $107.20 | $0.00 |
| 2024 | 8011 | PORTPT - PORT DISTRICT | $27.52 | $27.51 | $0.00 | $0.00 | $55.03 | $0.00 |
| 2024 | 8011 | PUD1 - PUD #1 | $4.38 | $4.37 | $0.00 | $0.00 | $8.75 | $0.00 |
| 2024 | 8011 | LIB1 - LIBRARY DIST #1 | $20.74 | $20.73 | $0.00 | $0.00 | $41.47 | $0.00 |
| 2024 | 8011 | HD2 - HOSP DIST #2 | $3.89 | $3.88 | $0.00 | $0.00 | $7.77 | $0.00 |
| 2024 | 8011 | SD48 - SCHOOL DIST #48 | $69.72 | $69.72 | $0.00 | $0.00 | $139.44 | $0.00 |
| 2024 | 8011 | FD2 - FIRE DISTRICT #2 | $55.38 | $55.37 | $0.00 | $0.00 | $110.75 | $0.00 |
| 2024 | 8011 | EMS2 - FIRE DIST #2 EMS | $31.18 | $31.17 | $0.00 | $0.00 | $62.35 | $0.00 |
| 2024 | 8011 | CEM2 - CEMETERY DIST #2 | $1.77 | $1.77 | $0.00 | $0.00 | $3.54 | $0.00 |
| 2024 | 8011 | FP - DNR Forest Fire Protection Assmt | $8.50 | $8.50 | $0.00 | $0.00 | $17.00 | $0.00 |
| 2024 | 8011 | FPLCA - DNR Landowner Contingency Assmt | $3.00 | $3.00 | $0.00 | $0.00 | $6.00 | $0.00 |
| 2024 | 8011 | JCCD - JC Conservation District | $2.80 | $2.80 | $0.00 | $0.00 | $5.60 | $0.00 |
| 2024 | 8011 | NWA - Noxious Weed Assessment | $2.90 | $2.90 | $0.00 | $0.00 | $5.80 | $0.00 |
| 2024 | 8011 | WAT - Clean Water District | $12.50 | $12.50 | $0.00 | $0.00 | $25.00 | $0.00 |
| 2024 | 8011 | FP ADMIN - FP ADMIN | $0.50 | $0.00 | $0.00 | $0.00 | $0.50 | $0.00 |
| 2024 | 8011 | TOTAL: | $522.68 | $522.06 | $0.00 | $0.00 | $1044.74 | $0.00 |
|
| 2024 | 8011 | $522.68 | $522.06 | $0.00 | $0.00 | $1044.74 | $0.00 |
Statement Details |
| 2023 | 8027 | STATE - STATE LEVY (SCHOOL) | $133.41 | $133.41 | $0.00 | $0.00 | $266.82 | $0.00 |
| 2023 | 8027 | COUNTY - COUNTY LEVIES (CE, DD, VET, MH) | $58.22 | $58.21 | $0.00 | $0.00 | $116.43 | $0.00 |
| 2023 | 8027 | CONSERVE - CONSERVATION FUTURES | $1.75 | $1.74 | $0.00 | $0.00 | $3.49 | $0.00 |
| 2023 | 8027 | COROADS - COUNTY ROADS (ROADS, DIV TO CE) | $47.10 | $47.10 | $0.00 | $0.00 | $94.20 | $0.00 |
| 2023 | 8027 | PORTPT - PORT DISTRICT | $24.53 | $24.52 | $0.00 | $0.00 | $49.05 | $0.00 |
| 2023 | 8027 | PUD1 - PUD #1 | $3.86 | $3.86 | $0.00 | $0.00 | $7.72 | $0.00 |
| 2023 | 8027 | LIB1 - LIBRARY DIST #1 | $18.23 | $18.22 | $0.00 | $0.00 | $36.45 | $0.00 |
| 2023 | 8027 | HD2 - HOSP DIST #2 | $3.40 | $3.40 | $0.00 | $0.00 | $6.80 | $0.00 |
| 2023 | 8027 | SD48 - SCHOOL DIST #48 | $64.43 | $64.42 | $0.00 | $0.00 | $128.85 | $0.00 |
| 2023 | 8027 | FD2 - FIRE DISTRICT #2 | $50.54 | $50.53 | $0.00 | $0.00 | $101.07 | $0.00 |
| 2023 | 8027 | EMS2 - FIRE DIST #2 EMS | $28.34 | $28.33 | $0.00 | $0.00 | $56.67 | $0.00 |
| 2023 | 8027 | CEM2 - CEMETERY DIST #2 | $1.61 | $1.61 | $0.00 | $0.00 | $3.22 | $0.00 |
| 2023 | 8027 | FP - DNR Forest Fire Protection Assmt | $8.50 | $8.50 | $0.00 | $0.00 | $17.00 | $0.00 |
| 2023 | 8027 | FPLCA - DNR Landowner Contingency Assmt | $3.00 | $3.00 | $0.00 | $0.00 | $6.00 | $0.00 |
| 2023 | 8027 | JCCD - JC Conservation District | $2.80 | $2.80 | $0.00 | $0.00 | $5.60 | $0.00 |
| 2023 | 8027 | NWA - Noxious Weed Assessment | $2.90 | $2.90 | $0.00 | $0.00 | $5.80 | $0.00 |
| 2023 | 8027 | WAT - Clean Water District | $12.00 | $12.00 | $0.00 | $0.00 | $24.00 | $0.00 |
| 2023 | 8027 | FP ADMIN - FP ADMIN | $0.50 | $0.00 | $0.00 | $0.00 | $0.50 | $0.00 |
| 2023 | 8027 | TOTAL: | $465.12 | $464.55 | $0.00 | $0.00 | $929.67 | $0.00 |
|
| 2023 | 8027 | $465.12 | $464.55 | $0.00 | $0.00 | $929.67 | $0.00 |
Values
| (+) Improvement Homesite Value: | + | $0 | |
| (+) Improvement Non-Homesite Value: | + | $44,305 | |
| (+) Land Homesite Value: | + | $0 | |
| (+) Land Non-Homesite Value: | + | $109,825 | |
| (+) Curr Use (HS): | + | $0 | $0 |
| (+) Curr Use (NHS): | + | $0 | $0 |
| | | -------------------------- | |
| (=) Market Value: | = | $154,130 | |
| (–) Productivity Loss: | – | $0 | |
| | | -------------------------- | |
| (=) Subtotal: | = | $154,130 | |
| (+) Senior Appraised Value: | + | $0 | |
| (+) Non-Senior Appraised Value: | + | $154,130 | |
| | | -------------------------- | |
| (=) Total Appraised Value: | = | $154,130 | |
| (–) Senior Exemption Loss: | – | $0 | |
| (–) Exemption Loss: | – | $0 | |
| | | -------------------------- | |
| (=) Taxable Value: | = | $154,130 | |
Taxing Jurisdiction
| Owner: | KARENA L POL | | |
| % Ownership: | 100.0000000000% | | |
| Total Value: | $154,130 | | |
| Tax Area: | 0321 - 1-48F2E2H2C2L1 |
| CE | COUNTY CURRENT EXPENSE | 0.9034619479 | $154,130 | $154,130 | $139.25 | | |
| CNTYDD | DEVELOPMENTAL DISABILITIES | 0.0052121823 | $154,130 | $154,130 | $0.80 | | |
| CNTYVET | VETERANS RELIEF | 0.0052777810 | $154,130 | $154,130 | $0.81 | | |
| MENTAL | MENTAL HEALTH | 0.0052121823 | $154,130 | $154,130 | $0.80 | | |
| ROADS | COUNTY ROADS | 0.7415066410 | $154,130 | $154,130 | $114.29 | | |
| ROADSCU | COUNTY ROADS TO CUR EXP | 0.0000000000 | $154,130 | $154,130 | $0.00 | | |
| HOSP2CASH | HOSP DIST #2 GENERAL | 0.0536075306 | $154,130 | $154,130 | $8.26 | | |
| SCH48MO | SCHOOL DIST #48 EP & O | 1.4120478917 | $154,130 | $154,130 | $217.64 | | |
| CEM2 | CEMETERY DIST #2 GENERAL | 0.0241266154 | $154,130 | $154,130 | $3.72 | | |
| CONSERVE | CONSERVATION FUTURES | 0.0275621078 | $154,130 | $154,130 | $4.25 | | |
| FD2 | FIRE DIST #2 GENERAL | 0.7549976873 | $154,130 | $154,130 | $116.37 | | |
| LIB1 | LIBRARY DIST #1 GENERAL | 0.2868827388 | $154,130 | $154,130 | $44.22 | | |
| PORTPT | PORT OF PT GENERAL | 0.1134941229 | $154,130 | $154,130 | $17.49 | | |
| PORTPTIDD | PORT OF PT IDD 2019 | 0.2577346692 | $154,130 | $154,130 | $39.72 | | |
| PUD1 | PUD #1 GENERAL | 0.0597888892 | $154,130 | $154,130 | $9.22 | | |
| STATE | STATE SCHOOL PART 1 | 1.4940692947 | $154,130 | $154,130 | $230.28 | | |
| STATE2 | STATE SCHOOL PART 2 | 0.8050170049 | $154,130 | $154,130 | $124.08 | | |
| EMS2 | FIRE DIST #2 EMS | 0.4251727858 | $154,130 | $154,130 | $65.53 | | |
| | Total Tax Rate: | 7.3751720728 | | | | | |
| | | | | Taxes w/Current Exemptions: | $1,136.73 | | |
| | | | | Taxes w/o Exemptions: | $1,136.73 | | |
Improvement / Building
| Improvement #1: | Residential Bldg | State Code: | 19 | 400.0 sqft | Value: | $44,305 |
| Bathrooms (#): | 1 (FULL) | Bedrooms (#): | 1 | | Exterior Wall: | PL/T1 | Fireplace: | WD ST-GOOD | | Floor Construction: | FRAME | Foundation: | PO&BL | | Heating/Cooling: | WD/NO | Inside Verify: | NO | | Interior Finish: | FIN | Roof Cover: | COMP |
|
| | Type | Description | Class CD | Sub Class CD | Year Built | Area |
| | MA | Main Area | 3 | C1S | 1994 | 400.0 |
| | CLOFT | Cabin Loft | 3 | C15F | 1994 | 100.0 |
| | CDECK | Cabin Deck | 3 | * | 1994 | 220.0 |
| | SHED | Shed (Table Not Dep) | 2 | * | 1994 | 340.0 |
| | CARPTF | Carport W/Floor | 2 | * | 1994 | 238.0 |
Sketch
Property Image
Land
| 1 | 1578A | | 4.0800 | 177724.80 | 0.00 | 0.00 | 0.00 | $29,325 | $0 |
| 2 | 2550-1375S | | 1.0000 | 43560.00 | 0.00 | 0.00 | 1.00 | $80,500 | $0 |
Roll Value History
| 2026 | N/A | N/A | N/A | N/A | N/A |
| 2025 | $44,305 | $109,825 | $0 | $154,130 | $154,130 |
| 2024 | $42,459 | $105,050 | $0 | $147,509 | $147,509 |
| 2023 | $40,613 | $93,954 | $0 | $134,567 | $134,567 |
| 2022 | $36,921 | $76,420 | $0 | $113,341 | $113,341 |
Deed and Sales History
| 1 | 06/16/2021 | SWD | Statutory Warranty Deed | DANIEL J SIMMONS | KARENA L POL | | | $100,000.00 | 137009 | |
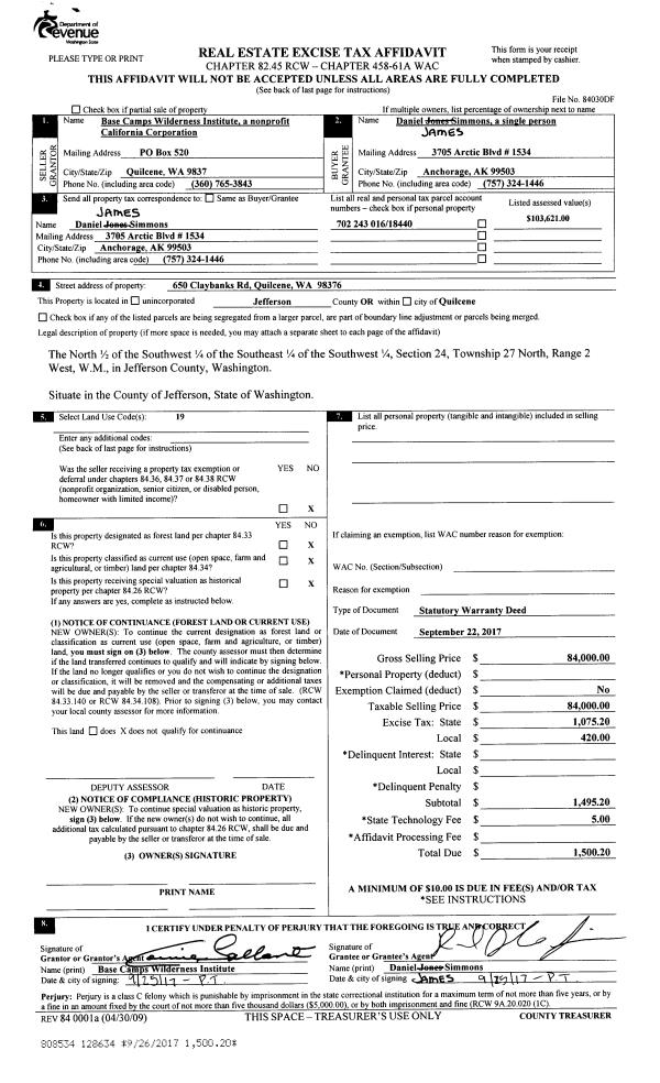
| 2 | 09/22/2017 | SWD | Statutory Warranty Deed | BASE CAMPS WILDERNESS INSTITUTE | DANIEL J SIMMONS | | | $84,000.00 | 128634 | |
| 3 | 06/17/2011 | QCD | Quit Claim Deed | | | | | | 128633 | |
| 4 | 06/17/2011 | QCD | Quit Claim Deed | BASECAMPS OF AMERICA INC | BASE CAMPS WILDERNESS INSTITUT | | | $0.00 | 116148 | 0 |
| 5 | 03/10/2004 | QCD | Quit Claim Deed | BASE CAMPS WILDERNESS INS | BASE CAMPS OF AMERICA | 0 | 0 | $0.00 | 99673 | 0 |
| 6 | 05/25/1999 | SWD | Statutory Warranty Deed | WEAVER, ADRIAN L/SUNIE P | BASE CAMPS WILDERNESS INSTITUT | 0 | 0 | $40,000.00 | 87041 | 0 |
Payout Agreement
| No payout information available.. |