Property
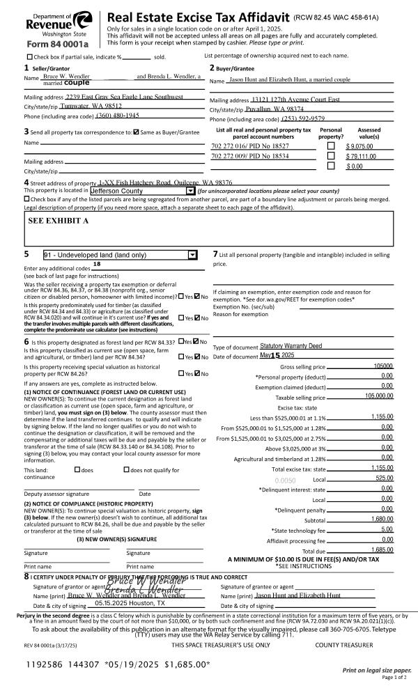
Account |
| Property ID: | 18527 | Abbreviated Legal Description: | S27 T27 R2W TAX 15 WITH EASE |
| Parcel # / Geo ID: | 702272009 | Agent Code: | |
| Type: | Real | | |
| Tax Area: | 0320 - 1-48F2E2H2C2L1Z2 | Land Use Code | 91 |
| Open Space: | N | DFL | N |
| Historic Property: | N | Remodel Property: | N |
| Multi-Family Redevelopment: | N | | |
| Township: | 27N | Section: | 27 |
| Range: | 2W |
Location |
| Address: | | Mapsco: | 166/032 |
| Neighborhood: | S19-22, S27-34 T27N R2W & RIVER VALLEY VIEW/JEFFCO/LOG CABIN | Map ID: | |
| Neighborhood CD: | 2590 |
Owner |
| Name: | JASON & ELIZABETH HUNT | Owner ID: | 112593 |
| Mailing Address: | 13121 127TH AVENUE CT E PUYALLUP, WA 98374-4861 | % Ownership: | 100.0000000000% |
| | | Exemptions: | |
Pay Tax Due
There is currently No Amount Due on this property.
Taxes and Assessment Details
Property Tax Information as of
03/12/2026
Click on "Statement Details" to expand or collapse a tax statement.
* Please enter a valid date ** Please enter a valid date *
Statement Details |
| | TOTAL: | $0.00 | $0.00 | $0.00 | $0.00 | $0.00 | $0.00 |
|
| | $0.00 | $0.00 | $0.00 | $0.00 | $0.00 | $0.00 |
Values
| (+) Improvement Homesite Value: | + | $0 | |
| (+) Improvement Non-Homesite Value: | + | $0 | |
| (+) Land Homesite Value: | + | $0 | |
| (+) Land Non-Homesite Value: | + | $9,488 | |
| (+) Curr Use (HS): | + | $0 | $0 |
| (+) Curr Use (NHS): | + | $0 | $0 |
| | | -------------------------- | |
| (=) Market Value: | = | $9,488 | |
| (–) Productivity Loss: | – | $0 | |
| | | -------------------------- | |
| (=) Subtotal: | = | $9,488 | |
| (+) Senior Appraised Value: | + | $0 | |
| (+) Non-Senior Appraised Value: | + | $9,488 | |
| | | -------------------------- | |
| (=) Total Appraised Value: | = | $9,488 | |
| (–) Senior Exemption Loss: | – | $0 | |
| (–) Exemption Loss: | – | $0 | |
| | | -------------------------- | |
| (=) Taxable Value: | = | $9,488 | |
Taxing Jurisdiction
| Owner: | JASON & ELIZABETH HUNT | | |
| % Ownership: | 100.0000000000% | | |
| Total Value: | N/A | | |
| Tax Area: | 0320 - 1-48F2E2H2C2L1Z2 |
| CE | COUNTY CURRENT EXPENSE | N/A | N/A | N/A | N/A | | |
| CNTYDD | DEVELOPMENTAL DISABILITIES | N/A | N/A | N/A | N/A | | |
| CNTYVET | VETERANS RELIEF | N/A | N/A | N/A | N/A | | |
| MENTAL | MENTAL HEALTH | N/A | N/A | N/A | N/A | | |
| ROADS | COUNTY ROADS | N/A | N/A | N/A | N/A | | |
| HOSP2CASH | HOSP DIST #2 GENERAL | N/A | N/A | N/A | N/A | | |
| SCH48MO | SCHOOL DIST #48 EP & O | N/A | N/A | N/A | N/A | | |
| CEM2 | CEMETERY DIST #2 GENERAL | N/A | N/A | N/A | N/A | | |
| CONSERVE | CONSERVATION FUTURES | N/A | N/A | N/A | N/A | | |
| FD2 | FIRE DIST #2 GENERAL | N/A | N/A | N/A | N/A | | |
| LIB1 | LIBRARY DIST #1 GENERAL | N/A | N/A | N/A | N/A | | |
| PORTPT | PORT OF PT GENERAL | N/A | N/A | N/A | N/A | | |
| PORTPTIDD | PORT OF PT IDD 2019 | N/A | N/A | N/A | N/A | | |
| PUD1 | PUD #1 GENERAL | N/A | N/A | N/A | N/A | | |
| STATE | STATE SCHOOL PART 1 | N/A | N/A | N/A | N/A | | |
| STATE2 | STATE SCHOOL PART 2 | N/A | N/A | N/A | N/A | | |
| EMS2 | FIRE DIST #2 EMS | N/A | N/A | N/A | N/A | | |
| | Total Tax Rate: | N/A | | | | | |
| | | | | Taxes w/Current Exemptions: | N/A | | |
| | | | | Taxes w/o Exemptions: | N/A | | |
Improvement / Building
Sketch
| No sketches available for this property. |
Property Image
Land
| 1 | 2590-1315S | Riverfront Bldg Sites 1+/- Acre | 0.0000 | 0.00 | 0.00 | 0.00 | 1.00 | $9,488 | $0 |
Roll Value History
| 2026 | N/A | N/A | N/A | N/A | N/A |
| 2025 | $0 | $9,488 | $0 | $9,488 | $9,488 |
| 2024 | $0 | $9,075 | $0 | $9,075 | $9,075 |
| 2023 | $0 | $8,663 | $0 | $8,663 | $8,663 |
| 2022 | $0 | $8,250 | $0 | $8,250 | $8,250 |
Deed and Sales History
| 1 | 05/15/2025 | SWD | Statutory Warranty Deed | BRUCE W WENDLER | JASON & ELIZABETH HUNT | | | $105,000.00 | 144307 | |
|   | |
| 2 | 05/02/2012 | SWD | Statutory Warranty Deed | SMITH, RUSSELL A/LORENA S | WENDLER, BRUCE W/BRENDA L | 0 | 0 | $0.00 | 117505 | 0 |
| 3 | 05/02/2006 | ADM | Administrator Deed | MORENO ESTATE, CHARLES | SMITH, RUSSELL/LORENA SUE | | | $145,000.00 | 106585 | 0 |
| 4 | 09/25/2001 | SWD | Statutory Warranty Deed | MARTINSON, DAVID M/KATHY | MORENO, CHARLES | 0 | 0 | $6,000.00 | 93169 | 0 |
Payout Agreement
| No payout information available.. |