Property
Account |
| Property ID: | 18562 | Abbreviated Legal Description: | S27 T27 R2W TAX 43 BND BY BLA#116297 |
| Parcel # / Geo ID: | 702273012 | Agent Code: | |
| Type: | Real | | |
| Tax Area: | 0320 - 1-48F2E2H2C2L1Z2 | Land Use Code | 19 |
| Open Space: | N | DFL | N |
| Historic Property: | N | Remodel Property: | N |
| Multi-Family Redevelopment: | N | | |
| Township: | 27N | Section: | 27 |
| Range: | 2W |
Location |
| Address: | 343 HIDDENDALE DR QUILCENE, WA 98376 | Mapsco: | 166/052 |
| Neighborhood: | S19-22, S27-34 T27N R2W & RIVER VALLEY VIEW/JEFFCO/LOG CABIN | Map ID: | |
| Neighborhood CD: | 2590 |
Owner |
| Name: | JIM H & DIANE M BLANKENSHIP | Owner ID: | 100101 |
| Mailing Address: | 8202 NE STATE HIGHWAY 104 STE 102 # 23 KINGSTON, WA 98346-9454 | % Ownership: | 100.0000000000% |
| | | Exemptions: | |
Pay Tax Due
There is currently No Amount Due on this property.
Taxes and Assessment Details
Property Tax Information as of
03/11/2026
Click on "Statement Details" to expand or collapse a tax statement.
* Please enter a valid date ** Please enter a valid date *
Statement Details |
| | TOTAL: | $0.00 | $0.00 | $0.00 | $0.00 | $0.00 | $0.00 |
|
| | $0.00 | $0.00 | $0.00 | $0.00 | $0.00 | $0.00 |
Values
| (+) Improvement Homesite Value: | + | $0 | |
| (+) Improvement Non-Homesite Value: | + | $70,242 | |
| (+) Land Homesite Value: | + | $0 | |
| (+) Land Non-Homesite Value: | + | $113,850 | |
| (+) Curr Use (HS): | + | $0 | $0 |
| (+) Curr Use (NHS): | + | $0 | $0 |
| | | -------------------------- | |
| (=) Market Value: | = | $184,092 | |
| (–) Productivity Loss: | – | $0 | |
| | | -------------------------- | |
| (=) Subtotal: | = | $184,092 | |
| (+) Senior Appraised Value: | + | $0 | |
| (+) Non-Senior Appraised Value: | + | $184,092 | |
| | | -------------------------- | |
| (=) Total Appraised Value: | = | $184,092 | |
| (–) Senior Exemption Loss: | – | $0 | |
| (–) Exemption Loss: | – | $0 | |
| | | -------------------------- | |
| (=) Taxable Value: | = | $184,092 | |
Taxing Jurisdiction
| Owner: | JIM H & DIANE M BLANKENSHIP | | |
| % Ownership: | 100.0000000000% | | |
| Total Value: | $184,092 | | |
| Tax Area: | 0320 - 1-48F2E2H2C2L1Z2 |
| CE | COUNTY CURRENT EXPENSE | 0.9034619479 | $184,092 | $184,092 | $166.32 | | |
| CNTYDD | DEVELOPMENTAL DISABILITIES | 0.0052121823 | $184,092 | $184,092 | $0.96 | | |
| CNTYVET | VETERANS RELIEF | 0.0052777810 | $184,092 | $184,092 | $0.97 | | |
| MENTAL | MENTAL HEALTH | 0.0052121823 | $184,092 | $184,092 | $0.96 | | |
| ROADS | COUNTY ROADS | 0.7415066410 | $184,092 | $184,092 | $136.51 | | |
| ROADSCU | COUNTY ROADS TO CUR EXP | 0.0000000000 | $184,092 | $184,092 | $0.00 | | |
| HOSP2CASH | HOSP DIST #2 GENERAL | 0.0536075306 | $184,092 | $184,092 | $9.87 | | |
| SCH48MO | SCHOOL DIST #48 EP & O | 1.4120478917 | $184,092 | $184,092 | $259.95 | | |
| CEM2 | CEMETERY DIST #2 GENERAL | 0.0241266154 | $184,092 | $184,092 | $4.44 | | |
| CONSERVE | CONSERVATION FUTURES | 0.0275621078 | $184,092 | $184,092 | $5.07 | | |
| FD2 | FIRE DIST #2 GENERAL | 0.7549976873 | $184,092 | $184,092 | $138.99 | | |
| LIB1 | LIBRARY DIST #1 GENERAL | 0.2868827388 | $184,092 | $184,092 | $52.81 | | |
| PORTPT | PORT OF PT GENERAL | 0.1134941229 | $184,092 | $184,092 | $20.89 | | |
| PORTPTIDD | PORT OF PT IDD 2019 | 0.2577346692 | $184,092 | $184,092 | $47.45 | | |
| PUD1 | PUD #1 GENERAL | 0.0597888892 | $184,092 | $184,092 | $11.01 | | |
| STATE | STATE SCHOOL PART 1 | 1.4940692947 | $184,092 | $184,092 | $275.05 | | |
| STATE2 | STATE SCHOOL PART 2 | 0.8050170049 | $184,092 | $184,092 | $148.20 | | |
| EMS2 | FIRE DIST #2 EMS | 0.4251727858 | $184,092 | $184,092 | $78.27 | | |
| | Total Tax Rate: | 7.3751720728 | | | | | |
| | | | | Taxes w/Current Exemptions: | $1,357.72 | | |
| | | | | Taxes w/o Exemptions: | $1,357.72 | | |
Improvement / Building
| Improvement #1: | Residential Bldg | State Code: | 19 | 348.0 sqft | Value: | $70,242 |
| Bathrooms (#): | 1 (FULL) | Bedrooms (#): | 1 | | Exterior Wall: | SI/ST | Floor Construction: | FRAME | | Foundation: | PO&BL | Heating/Cooling: | ELBB | | Interior Finish: | FIN | Roof Cover: | COMP |
|
| | Type | Description | Class CD | Sub Class CD | Year Built | Area |
| | MA | Main Area | 3 | C15F | 2015 | 348.0 |
| | HLOFT | House Loft | 3 | C15F | 2015 | 192.0 |
| | HWPOR | House Wood Porch | 3 | * | 2015 | 128.0 |
| | SHED | Shed (Table Not Dep) | 4 | * | 2015 | 126.0 |
| | SHED | Shed (Table Not Dep) | 4 | * | 2015 | 200.0 |
| | CARPT | Carport (Table Not Dep) | 3 | * | 2015 | 836.0 |
Sketch
Property Image
Land
| 1 | 2590-1315S | Riverfront Bldg Sites 1+/- Acre | 1.0000 | 43560.00 | 0.00 | 0.00 | 1.00 | $97,750 | $0 |
| 2 | 1577A | Terr/Mtn/No View <6 Acres | 2.0000 | 87120.00 | 0.00 | 0.00 | 0.00 | $16,100 | $0 |
Roll Value History
| 2026 | N/A | N/A | N/A | N/A | N/A |
| 2025 | $70,242 | $113,850 | $0 | $184,092 | $184,092 |
| 2024 | $67,315 | $108,900 | $0 | $176,215 | $176,215 |
| 2023 | $64,389 | $97,650 | $0 | $162,039 | $162,039 |
| 2022 | $58,535 | $87,000 | $0 | $145,535 | $145,535 |
Deed and Sales History
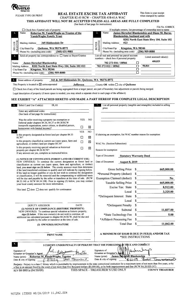
| 1 | 08/08/2019 | SWD | Statutory Warranty Deed | VANDEWEGHE FAMILY TRUST | JIM H & DIANE M BLANKENSHIP | | | $665,000.00 | 133000 | |
|   | |
| 2 | 03/25/2014 | QCD | Quit Claim Deed | ROBERTUS M & JACOBA VANDEWEGHE | VANDEWEGHE FAMILY TRUST | | | | 120968 | |
| 3 | 07/18/2011 | BLA | Boundary Line Adjustment | VANDEWEGHE, ET AL | VANDEWEGHE, ET AL | | | $0.00 | 116297 | 0 |
| 4 | 11/09/2005 | SWD | Statutory Warranty Deed | MAIERS, WILLIAM W | VANDEWEGHE, ROBERTUS & JACOBA | 0 | 0 | $29,500.00 | 105361 | 0 |
Payout Agreement
| No payout information available.. |