Property
Account |
| Property ID: | 18725 | Abbreviated Legal Description: | S29 T27 R11W SE NW (E480' OF W1280' OF N1074') |
| Parcel # / Geo ID: | 711292004 | Agent Code: | |
| Type: | Real | | |
| Tax Area: | 0601 - 1-402H1L1 | Land Use Code | 11 |
| Open Space: | N | DFL | N |
| Historic Property: | N | Remodel Property: | N |
| Multi-Family Redevelopment: | N | | |
| Township: | 27N | Section: | 29 |
| Range: | 11W |
Location |
| Address: | 5841 UPPER HOH RD FORKS, WA 98331 | Mapsco: | 914/040 |
| Neighborhood: | S14 - S36 T27N R11W (UPPER HOH - RESORT/FARMS,FLETCHER RCH) | Map ID: | |
| Neighborhood CD: | 1735 |
Owner |
| Name: | HOH RAINFOREST ENTERPRISES LLC | Owner ID: | 91394 |
| Mailing Address: | 201 TROUT AVE FORKS, WA 98331-9731 | % Ownership: | 100.0000000000% |
| | | Exemptions: | |
Pay Tax Due
Select the appropriate checkbox next to the year to be paid. Multiple years may be selected.
*Convenience Fee not included
Taxes and Assessment Details
Property Tax Information as of
03/10/2026
Click on "Statement Details" to expand or collapse a tax statement.
* Please enter a valid date ** Please enter a valid date *
Statement Details |
| 2026 | 8248 | STATE - STATE LEVY (SCHOOL) | $445.84 | $445.82 | $0.00 | $0.00 | $0.00 | $891.66 |
| 2026 | 8248 | COUNTY - COUNTY LEVIES (CE, DD, VET, MH) | $178.25 | $178.23 | $0.00 | $0.00 | $0.00 | $356.48 |
| 2026 | 8248 | CONSERVE - CONSERVATION FUTURES | $5.35 | $5.34 | $0.00 | $0.00 | $0.00 | $10.69 |
| 2026 | 8248 | COROADS - COUNTY ROADS (ROADS, DIV TO CE) | $143.79 | $143.79 | $0.00 | $0.00 | $0.00 | $287.58 |
| 2026 | 8248 | PORTPT - PORT DISTRICT | $71.99 | $71.99 | $0.00 | $0.00 | $0.00 | $143.98 |
| 2026 | 8248 | PUD1 - PUD #1 | $11.60 | $11.59 | $0.00 | $0.00 | $0.00 | $23.19 |
| 2026 | 8248 | LIB1 - LIBRARY DIST #1 | $55.63 | $55.63 | $0.00 | $0.00 | $0.00 | $111.26 |
| 2026 | 8248 | HD1 - HOSP DIST #1 | $106.73 | $106.72 | $0.00 | $0.00 | $0.00 | $213.45 |
| 2026 | 8248 | SD402 - SCHOOL DIST #402 | $553.73 | $553.72 | $0.00 | $0.00 | $0.00 | $1107.45 |
| 2026 | 8248 | FP - DNR Forest Fire Protection Assmt | $8.50 | $8.50 | $0.00 | $0.00 | $0.00 | $17.00 |
| 2026 | 8248 | FPLCA - DNR Landowner Contingency Assmt | $3.00 | $3.00 | $0.00 | $0.00 | $0.00 | $6.00 |
| 2026 | 8248 | JCCD - JC Conservation District | $3.10 | $3.10 | $0.00 | $0.00 | $0.00 | $6.20 |
| 2026 | 8248 | NWA - Noxious Weed Assessment | $5.45 | $5.45 | $0.00 | $0.00 | $0.00 | $10.90 |
| 2026 | 8248 | OSS - On Site Septic | $23.10 | $23.10 | $0.00 | $0.00 | $0.00 | $46.20 |
| 2026 | 8248 | FP ADMIN - FP ADMIN | $0.50 | $0.00 | $0.00 | $0.00 | $0.00 | $0.50 |
| 2026 | 8248 | TOTAL: | $1616.56 | $1615.98 | $0.00 | $0.00 | $0.00 | $3232.54 |
|
| 2026 | 8248 | $1616.56 | $1615.98 | $0.00 | $0.00 | $0.00 | $3232.54 |
Statement Details |
| 2025 | 8269 | STATE - STATE LEVY (SCHOOL) | $465.03 | $465.01 | $0.00 | $0.00 | $930.04 | $0.00 |
| 2025 | 8269 | COUNTY - COUNTY LEVIES (CE, DD, VET, MH) | $182.88 | $182.86 | $0.00 | $0.00 | $365.74 | $0.00 |
| 2025 | 8269 | CONSERVE - CONSERVATION FUTURES | $5.49 | $5.48 | $0.00 | $0.00 | $10.97 | $0.00 |
| 2025 | 8269 | COROADS - COUNTY ROADS (ROADS, DIV TO CE) | $146.51 | $146.50 | $0.00 | $0.00 | $293.01 | $0.00 |
| 2025 | 8269 | PORTPT - PORT DISTRICT | $74.62 | $74.62 | $0.00 | $0.00 | $149.24 | $0.00 |
| 2025 | 8269 | PUD1 - PUD #1 | $11.97 | $11.96 | $0.00 | $0.00 | $23.93 | $0.00 |
| 2025 | 8269 | LIB1 - LIBRARY DIST #1 | $56.68 | $56.68 | $0.00 | $0.00 | $113.36 | $0.00 |
| 2025 | 8269 | HD1 - HOSP DIST #1 | $109.46 | $109.45 | $0.00 | $0.00 | $218.91 | $0.00 |
| 2025 | 8269 | SD402 - SCHOOL DIST #402 | $422.49 | $422.47 | $0.00 | $0.00 | $844.96 | $0.00 |
| 2025 | 8269 | FP - DNR Forest Fire Protection Assmt | $8.50 | $8.50 | $0.00 | $0.00 | $17.00 | $0.00 |
| 2025 | 8269 | FPLCA - DNR Landowner Contingency Assmt | $3.00 | $3.00 | $0.00 | $0.00 | $6.00 | $0.00 |
| 2025 | 8269 | JCCD - JC Conservation District | $3.10 | $3.10 | $0.00 | $0.00 | $6.20 | $0.00 |
| 2025 | 8269 | NWA - Noxious Weed Assessment | $3.80 | $3.80 | $0.00 | $0.00 | $7.60 | $0.00 |
| 2025 | 8269 | OSS - On Site Septic | $21.50 | $21.50 | $0.00 | $0.00 | $43.00 | $0.00 |
| 2025 | 8269 | FP ADMIN - FP ADMIN | $0.50 | $0.00 | $0.00 | $0.00 | $0.50 | $0.00 |
| 2025 | 8269 | TOTAL: | $1515.53 | $1514.93 | $0.00 | $0.00 | $3030.46 | $0.00 |
|
| 2025 | 8269 | $1515.53 | $1514.93 | $0.00 | $0.00 | $3030.46 | $0.00 |
Statement Details |
| 2024 | 8293 | STATE - STATE LEVY (SCHOOL) | $437.39 | $437.37 | $0.00 | $0.00 | $874.76 | $0.00 |
| 2024 | 8293 | COUNTY - COUNTY LEVIES (CE, DD, VET, MH) | $187.17 | $187.14 | $0.00 | $0.00 | $374.31 | $0.00 |
| 2024 | 8293 | CONSERVE - CONSERVATION FUTURES | $5.61 | $5.61 | $0.00 | $0.00 | $11.22 | $0.00 |
| 2024 | 8293 | COROADS - COUNTY ROADS (ROADS, DIV TO CE) | $150.61 | $150.59 | $0.00 | $0.00 | $301.20 | $0.00 |
| 2024 | 8293 | PORTPT - PORT DISTRICT | $77.31 | $77.30 | $0.00 | $0.00 | $154.61 | $0.00 |
| 2024 | 8293 | PUD1 - PUD #1 | $12.30 | $12.29 | $0.00 | $0.00 | $24.59 | $0.00 |
| 2024 | 8293 | LIB1 - LIBRARY DIST #1 | $58.27 | $58.26 | $0.00 | $0.00 | $116.53 | $0.00 |
| 2024 | 8293 | HD1 - HOSP DIST #1 | $111.19 | $111.18 | $0.00 | $0.00 | $222.37 | $0.00 |
| 2024 | 8293 | SD402 - SCHOOL DIST #402 | $388.44 | $388.43 | $0.00 | $0.00 | $776.87 | $0.00 |
| 2024 | 8293 | FP - DNR Forest Fire Protection Assmt | $8.50 | $8.50 | $0.00 | $0.00 | $17.00 | $0.00 |
| 2024 | 8293 | FPLCA - DNR Landowner Contingency Assmt | $3.00 | $3.00 | $0.00 | $0.00 | $6.00 | $0.00 |
| 2024 | 8293 | JCCD - JC Conservation District | $3.10 | $3.10 | $0.00 | $0.00 | $6.20 | $0.00 |
| 2024 | 8293 | NWA - Noxious Weed Assessment | $3.80 | $3.80 | $0.00 | $0.00 | $7.60 | $0.00 |
| 2024 | 8293 | OSS - On Site Septic | $21.00 | $21.00 | $0.00 | $0.00 | $42.00 | $0.00 |
| 2024 | 8293 | FP ADMIN - FP ADMIN | $0.50 | $0.00 | $0.00 | $0.00 | $0.50 | $0.00 |
| 2024 | 8293 | TOTAL: | $1468.19 | $1467.57 | $0.00 | $0.00 | $2935.76 | $0.00 |
|
| 2024 | 8293 | $1468.19 | $1467.57 | $0.00 | $0.00 | $2935.76 | $0.00 |
Statement Details |
| 2023 | 8310 | STATE - STATE LEVY (SCHOOL) | $445.05 | $445.04 | $0.00 | $0.00 | $890.09 | $0.00 |
| 2023 | 8310 | COUNTY - COUNTY LEVIES (CE, DD, VET, MH) | $194.21 | $194.19 | $0.00 | $0.00 | $388.40 | $0.00 |
| 2023 | 8310 | CONSERVE - CONSERVATION FUTURES | $5.83 | $5.82 | $0.00 | $0.00 | $11.65 | $0.00 |
| 2023 | 8310 | COROADS - COUNTY ROADS (ROADS, DIV TO CE) | $157.13 | $157.12 | $0.00 | $0.00 | $314.25 | $0.00 |
| 2023 | 8310 | PORTPT - PORT DISTRICT | $81.81 | $81.81 | $0.00 | $0.00 | $163.62 | $0.00 |
| 2023 | 8310 | PUD1 - PUD #1 | $12.88 | $12.87 | $0.00 | $0.00 | $25.75 | $0.00 |
| 2023 | 8310 | LIB1 - LIBRARY DIST #1 | $60.79 | $60.79 | $0.00 | $0.00 | $121.58 | $0.00 |
| 2023 | 8310 | HD1 - HOSP DIST #1 | $112.12 | $112.11 | $0.00 | $0.00 | $224.23 | $0.00 |
| 2023 | 8310 | SD402 - SCHOOL DIST #402 | $436.74 | $436.73 | $0.00 | $0.00 | $873.47 | $0.00 |
| 2023 | 8310 | FP - DNR Forest Fire Protection Assmt | $8.50 | $8.50 | $0.00 | $0.00 | $17.00 | $0.00 |
| 2023 | 8310 | FPLCA - DNR Landowner Contingency Assmt | $3.00 | $3.00 | $0.00 | $0.00 | $6.00 | $0.00 |
| 2023 | 8310 | JCCD - JC Conservation District | $3.10 | $3.10 | $0.00 | $0.00 | $6.20 | $0.00 |
| 2023 | 8310 | NWA - Noxious Weed Assessment | $3.80 | $3.80 | $0.00 | $0.00 | $7.60 | $0.00 |
| 2023 | 8310 | OSS - On Site Septic | $20.50 | $20.50 | $0.00 | $0.00 | $41.00 | $0.00 |
| 2023 | 8310 | FP ADMIN - FP ADMIN | $0.50 | $0.00 | $0.00 | $0.00 | $0.50 | $0.00 |
| 2023 | 8310 | TOTAL: | $1545.96 | $1545.38 | $0.00 | $0.00 | $3091.34 | $0.00 |
|
| 2023 | 8310 | $1545.96 | $1545.38 | $0.00 | $0.00 | $3091.34 | $0.00 |
Values
| (+) Improvement Homesite Value: | + | $0 | |
| (+) Improvement Non-Homesite Value: | + | $330,955 | |
| (+) Land Homesite Value: | + | $0 | |
| (+) Land Non-Homesite Value: | + | $56,880 | |
| (+) Curr Use (HS): | + | $0 | $0 |
| (+) Curr Use (NHS): | + | $0 | $0 |
| | | -------------------------- | |
| (=) Market Value: | = | $387,835 | |
| (–) Productivity Loss: | – | $0 | |
| | | -------------------------- | |
| (=) Subtotal: | = | $387,835 | |
| (+) Senior Appraised Value: | + | $0 | |
| (+) Non-Senior Appraised Value: | + | $387,835 | |
| | | -------------------------- | |
| (=) Total Appraised Value: | = | $387,835 | |
| (–) Senior Exemption Loss: | – | $0 | |
| (–) Exemption Loss: | – | $0 | |
| | | -------------------------- | |
| (=) Taxable Value: | = | $387,835 | |
Taxing Jurisdiction
| Owner: | HOH RAINFOREST ENTERPRISES LLC | | |
| % Ownership: | 100.0000000000% | | |
| Total Value: | $387,835 | | |
| Tax Area: | 0601 - 1-402H1L1 |
| CE | COUNTY CURRENT EXPENSE | 0.9034619479 | $387,835 | $387,835 | $350.39 | | |
| CNTYDD | DEVELOPMENTAL DISABILITIES | 0.0052121823 | $387,835 | $387,835 | $2.02 | | |
| CNTYVET | VETERANS RELIEF | 0.0052777810 | $387,835 | $387,835 | $2.05 | | |
| MENTAL | MENTAL HEALTH | 0.0052121823 | $387,835 | $387,835 | $2.02 | | |
| ROADS | COUNTY ROADS | 0.7415066410 | $387,835 | $387,835 | $287.58 | | |
| ROADSCU | COUNTY ROADS TO CUR EXP | 0.0000000000 | $387,835 | $387,835 | $0.00 | | |
| HOS1GEN | HOSP DIST #1 GENERAL | 0.5503668747 | $387,835 | $387,835 | $213.45 | | |
| SCH402BOND | SCHOOL DIST #402 BOND | 1.2974778650 | $387,835 | $387,835 | $503.21 | | |
| SCH402MO | SCHOOL DIST #402 EP & O | 1.5579855743 | $387,835 | $387,835 | $604.24 | | |
| CONSERVE | CONSERVATION FUTURES | 0.0275621078 | $387,835 | $387,835 | $10.69 | | |
| LIB1 | LIBRARY DIST #1 GENERAL | 0.2868827388 | $387,835 | $387,835 | $111.26 | | |
| PORTPT | PORT OF PT GENERAL | 0.1134941229 | $387,835 | $387,835 | $44.02 | | |
| PORTPTIDD | PORT OF PT IDD 2019 | 0.2577346692 | $387,835 | $387,835 | $99.96 | | |
| PUD1 | PUD #1 GENERAL | 0.0597888892 | $387,835 | $387,835 | $23.19 | | |
| STATE | STATE SCHOOL PART 1 | 1.4940692947 | $387,835 | $387,835 | $579.45 | | |
| STATE2 | STATE SCHOOL PART 2 | 0.8050170049 | $387,835 | $387,835 | $312.21 | | |
| | Total Tax Rate: | 8.1110498760 | | | | | |
| | | | | Taxes w/Current Exemptions: | $3,145.74 | | |
| | | | | Taxes w/o Exemptions: | $3,145.74 | | |
Improvement / Building
| Improvement #1: | Manufactured Home | State Code: | 11 | 1080.0 sqft | Value: | $52,999 |
| Bathrooms (#): | 3 (FULL) | Bedrooms (#): | 3 | | Exterior Wall: | PL/T1 | Floor Construction: | FRAME | | Foundation: | PO&BL | Heating/Cooling: | F/A | | Inside Verify: | NO | Roof Cover: | METAL |
|
| | Type | Description | Class CD | Sub Class CD | Year Built | Area |
| | MA | Main Area | 3+ | MDBL | 1994 | 1080.0 |
| | MDECK | MH Deck | 3 | * | 1994 | 384.0 |
| | MDECK | MH Deck | 3 | * | 1994 | 80.0 |
| | SHED | Shed (Table Not Dep) | 4 | * | 2012 | 400.0 |
| | MSKIRT_WD | MH Skirting - Wood | 3 | * | 1994 | 154.0 |
| Improvement #2: | Residential Bldg | State Code: | 11 | 0.0 sqft | Value: | $50,054 |
| Improvement #3: | Residential Bldg | State Code: | 19 | 512.0 sqft | Value: | $60,568 |
| Bathrooms (#): | 1 (FULL) | Bedrooms (#): | 1 | | Exterior Wall: | SI/ST | Fireplace: | PROPS-GOOD | | Floor Construction: | FRAME | Foundation: | CONBL | | Heating/Cooling: | HPUMP | Inside Verify: | NO | | Roof Cover: | METAL |   |   |
|
| | Type | Description | Class CD | Sub Class CD | Year Built | Area |
| | MA | Main Area | 5+ | C1S | 2018 | 512.0 |
| | HDECK | House Deck | 5 | * | 2018 | 228.0 |
| Improvement #4: | Residential Bldg | State Code: | 19 | 440.0 sqft | Value: | $53,383 |
| Bathrooms (#): | 1 (FULL) | Bedrooms (#): | 1 | | Exterior Wall: | SI/ST | Fireplace: | PROPS-GOOD | | Floor Construction: | FRAME | Foundation: | CONPR | | Heating/Cooling: | HPUMP | Inside Verify: | NO | | Roof Cover: | METAL |   |   |
|
| | Type | Description | Class CD | Sub Class CD | Year Built | Area |
| | MA | Main Area | 5+ | C1S | 2018 | 440.0 |
| | HDECK | House Deck | 5 | * | 2018 | 195.0 |
| Improvement #5: | Residential Bldg | State Code: | 19 | 440.0 sqft | Value: | $53,383 |
| Bathrooms (#): | 1 (FULL) | Bedrooms (#): | 1 | | Exterior Wall: | SI/ST | Fireplace: | PROPS-GOOD | | Floor Construction: | FRAME | Foundation: | CONPR | | Heating/Cooling: | HPUMP | Inside Verify: | NO | | Roof Cover: | METAL |   |   |
|
| | Type | Description | Class CD | Sub Class CD | Year Built | Area |
| | MA | Main Area | 5+ | C1S | 2018 | 440.0 |
| | HDECK | House Deck | 5 | * | 2018 | 195.0 |
| Improvement #6: | Residential Bldg | State Code: | 19 | 512.0 sqft | Value: | $60,568 |
| Bathrooms (#): | 1 (FULL) | Bedrooms (#): | 1 | | Exterior Wall: | SI/ST | Fireplace: | PROPS-GOOD | | Floor Construction: | FRAME | Foundation: | CONPR | | Heating/Cooling: | HPUMP | Inside Verify: | NO | | Roof Cover: | METAL |   |   |
|
| | Type | Description | Class CD | Sub Class CD | Year Built | Area |
| | MA | Main Area | 5+ | C1S | 2019 | 512.0 |
| | HDECK | House Deck | 5 | * | 2019 | 228.0 |
| Improvement #7: | Residential Bldg | State Code: | 11 | 0.0 sqft | Value: | $0 |
Sketch
Property Image
Land
| 1 | WEST-1385S | | 1.0000 | 43560.00 | 0.00 | 0.00 | 1.00 | $24,000 | $0 |
| 2 | WEST-1685A | | 10.9600 | 477417.60 | 0.00 | 0.00 | 0.00 | $32,880 | $0 |
Roll Value History
| 2026 | N/A | N/A | N/A | N/A | N/A |
| 2025 | $330,955 | $56,880 | $0 | $387,835 | $387,835 |
| 2024 | $330,955 | $56,880 | $0 | $387,835 | $387,835 |
| 2023 | $330,955 | $47,140 | $0 | $378,095 | $378,095 |
| 2022 | $330,955 | $47,140 | $0 | $378,095 | $378,095 |
Deed and Sales History
| 1 | 10/31/2013 | QCD | Quit Claim Deed | | | | | | 120748 | |
| 2 | 10/31/2013 | QCD | Quit Claim Deed | GARY PETERSON | HOH RAINFOREST ENTERPRISES LLC | | | | 120270 | |
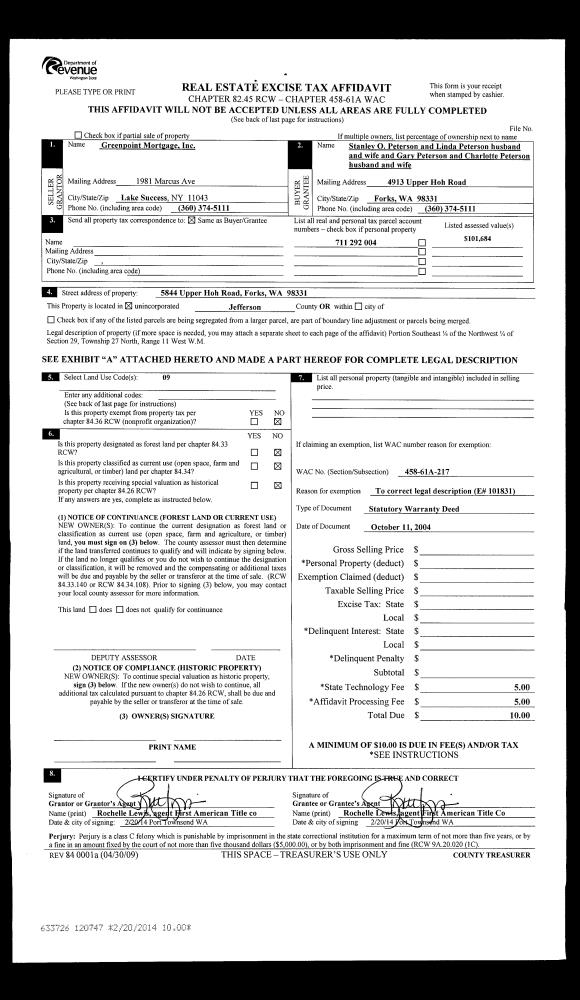
| 3 | 10/11/2004 | SWD | Statutory Warranty Deed | | | | | | 120747 | |
| 4 | 10/11/2004 | SWD | Statutory Warranty Deed | GREENPOINT MORTGAGE INC | PETERSON, STAN/LINDA/GARY/ | 0 | 0 | $90,000.00 | 101831 | 0 |
| 5 | 10/14/2004 | QCD | Quit Claim Deed | FEDERAL HOME LOAN MORTGAG | GREENPOINT MORTGAGE, INC. | 0 | 0 | $0.00 | 101762 | 0 |
| 6 | 07/07/2003 | TRED | Trustee Deed | WASHINGTON ADMIN SERVICES | FEDERAL HOME LOAN MORTGAGE | 0 | 0 | $0.00 | 97707 | 0 |
| 7 | 12/17/1998 | QCD | Quit Claim Deed | HUNT, SUSAN JOYCE | HUNT, JOHN FREDERICK | 0 | 0 | $0.00 | 86202 | 0 |
| 8 | 12/03/1993 | WD | Warranty Deed | SCHOSTAK, MITCHELL J/MARG | HUNT, JOHN F/SUSAN J | 0 | 0 | $55,000.00 | 72786 | 0 |
Payout Agreement
| No payout information available.. |