| 1 | 12/21/2020 | SWD | Statutory Warranty Deed | STANLEY O PETERSON | PETERSON FOREST ENTERPRISES LLC | | | | 135834 | |
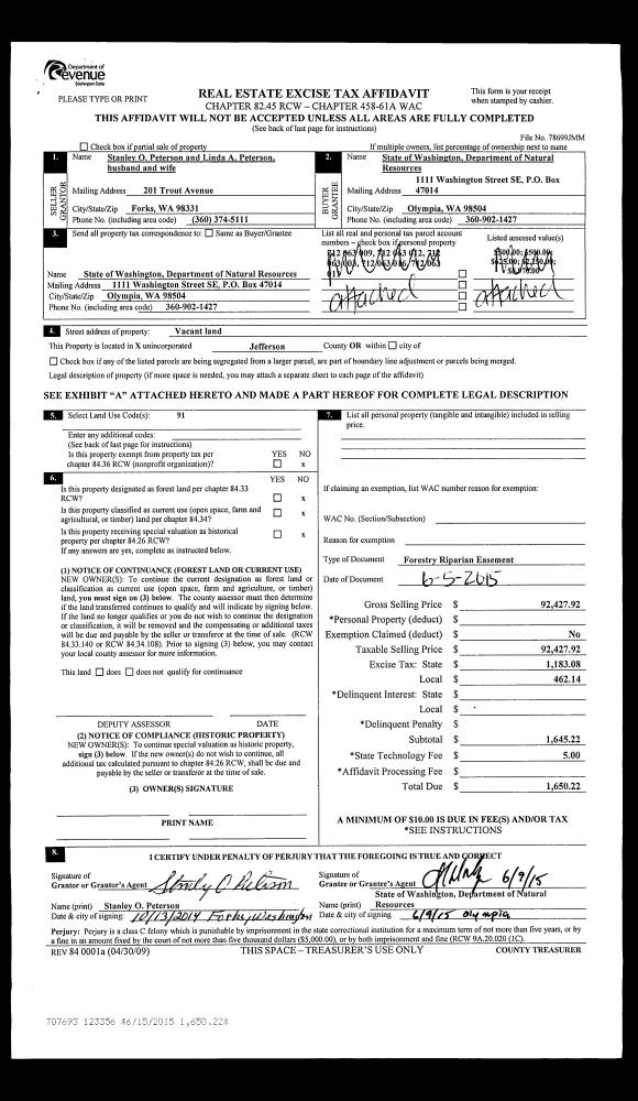
| 2 | 06/05/2015 | EASE | Assignment of Easement | STANLEY O PETERSON | | | | | 123356 | |
| 3 | 01/27/2006 | SWD | Statutory Warranty Deed | BRADY, CHARLES W | PETERSON, STANLEY O/LINDA A | 0 | 0 | $29,000.00 | 105933 | 0 |
|   | |
| 4 | 06/22/2001 | QCD | Quit Claim Deed | HOFFMASTER, JEFFREY A/BON | BRADY, CHARLES W | 0 | 0 | $0.00 | 92816 | 0 |
| 5 | 05/23/2001 | SWD | Statutory Warranty Deed | ANDERSON, EVELYN | HOFFMASTER, JEFFREY A/BONNIE J | 0 | 0 | $12,845.00 | 92410 | 0 |
|   | |
| 6 | 05/17/2001 | QCD | Quit Claim Deed | ANDERSON, ROSS A | ANDERSON, EVELYN, SCAGE, CHARL | 0 | 0 | $0.00 | 92409 | 0 |
| 7 | 01/19/2000 | QCD | Quit Claim Deed | LAMB, CHARLES R | ANDERSON, EVELYN | 0 | 0 | $0.00 | 88853 | 0 |
| 8 | 06/12/1998 | SWD | Statutory Warranty Deed | ANDERSON, EVELYN | LAMB, CHARLES R | 0 | 0 | $26,000.00 | 84673 | 0 |
|   | |
| 9 | 06/02/1998 | QCD | Quit Claim Deed | GAGE, CHARLES | ANDERSON, EVELYN | 0 | 0 | $0.00 | 84577 | 0 |
| 10 | 07/25/1995 | QCD | Quit Claim Deed | ANDERSON, ROSS A | GAGE, CHARLES/ANDERSON, EVELYN | 0 | 0 | $0.00 | 77440 | 0 |