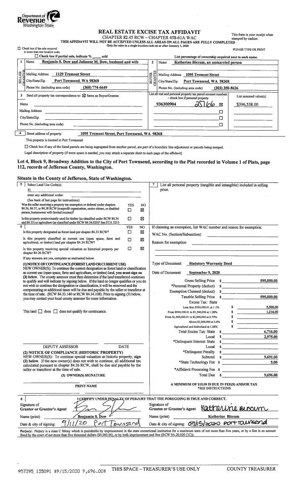
Property
Account |
| Property ID: | 18816 | Abbreviated Legal Description: | S6 T27 R12W TX 15 WITH EASE |
| Parcel # / Geo ID: | 712064008 | Agent Code: | |
| Type: | Real | | |
| Tax Area: | 0691 - 1-402F9H1L1 | Land Use Code | 94 |
| Open Space: | Y | DFL | N |
| Historic Property: | N | Remodel Property: | N |
| Multi-Family Redevelopment: | N | | |
| Township: | 27N | Section: | 6 |
| Range: | 12W |
Location |
| Address: | 2572 DOWANS CREEK RD FORKS, WA 98331 | Mapsco: | 923/044 |
| Neighborhood: | S1 - S17 T27N R12W (END OF S. BOGACHIEL RD)/VVC,VANAUSDLE SP | Map ID: | |
| Neighborhood CD: | 1750 |
Owner |
| Name: | CINDY JO KAVANAGH | Owner ID: | 101171 |
| Mailing Address: | 2674 DOWANS CREEK RD FORKS, WA 98331-9316 | % Ownership: | 100.0000000000% |
| | | Exemptions: | |
Pay Tax Due
There is currently No Amount Due on this property.
Taxes and Assessment Details
Property Tax Information as of
03/12/2026
Click on "Statement Details" to expand or collapse a tax statement.
* Please enter a valid date ** Please enter a valid date *
Statement Details |
| | TOTAL: | $0.00 | $0.00 | $0.00 | $0.00 | $0.00 | $0.00 |
|
| | $0.00 | $0.00 | $0.00 | $0.00 | $0.00 | $0.00 |
Values
| (+) Improvement Homesite Value: | + | $0 | |
| (+) Improvement Non-Homesite Value: | + | $8,965 | |
| (+) Land Homesite Value: | + | $0 | |
| (+) Land Non-Homesite Value: | + | $6,500 | |
| (+) Curr Use (HS): | + | $0 | $0 |
| (+) Curr Use (NHS): | + | $18,360 | $1,836 |
| | | -------------------------- | |
| (=) Market Value: | = | $33,825 | |
| (–) Productivity Loss: | – | $16,524 | |
| | | -------------------------- | |
| (=) Subtotal: | = | $17,301 | |
| (+) Senior Appraised Value: | + | $0 | |
| (+) Non-Senior Appraised Value: | + | $17,301 | |
| | | -------------------------- | |
| (=) Total Appraised Value: | = | $17,301 | |
| (–) Senior Exemption Loss: | – | $0 | |
| (–) Exemption Loss: | – | $0 | |
| | | -------------------------- | |
| (=) Taxable Value: | = | $17,301 | |
Taxing Jurisdiction
| Owner: | CINDY JO KAVANAGH | | |
| % Ownership: | 100.0000000000% | | |
| Total Value: | N/A | | |
| Tax Area: | 0691 - 1-402F9H1L1 |
| CE | COUNTY CURRENT EXPENSE | N/A | N/A | N/A | N/A | | |
| CNTYDD | DEVELOPMENTAL DISABILITIES | N/A | N/A | N/A | N/A | | |
| CNTYVET | VETERANS RELIEF | N/A | N/A | N/A | N/A | | |
| MENTAL | MENTAL HEALTH | N/A | N/A | N/A | N/A | | |
| ROADS | COUNTY ROADS | N/A | N/A | N/A | N/A | | |
| HOS1GEN | HOSP DIST #1 GENERAL | N/A | N/A | N/A | N/A | | |
| SCH402BOND | SCHOOL DIST #402 BOND | N/A | N/A | N/A | N/A | | |
| SCH402MO | SCHOOL DIST #402 EP & O | N/A | N/A | N/A | N/A | | |
| CONSERVE | CONSERVATION FUTURES | N/A | N/A | N/A | N/A | | |
| FD9 | FIRE DIST #9 GENERAL | N/A | N/A | N/A | N/A | | |
| LIB1 | LIBRARY DIST #1 GENERAL | N/A | N/A | N/A | N/A | | |
| PORTPT | PORT OF PT GENERAL | N/A | N/A | N/A | N/A | | |
| PORTPTIDD | PORT OF PT IDD 2019 | N/A | N/A | N/A | N/A | | |
| PUD1 | PUD #1 GENERAL | N/A | N/A | N/A | N/A | | |
| STATE | STATE SCHOOL PART 1 | N/A | N/A | N/A | N/A | | |
| STATE2 | STATE SCHOOL PART 2 | N/A | N/A | N/A | N/A | | |
| | Total Tax Rate: | N/A | | | | | |
| | | | | Taxes w/Current Exemptions: | N/A | | |
| | | | | Taxes w/o Exemptions: | N/A | | |
Improvement / Building
| Improvement #1: | Residential Bldg | State Code: | 81 | 780.0 sqft | Value: | $8,965 |
| Bathrooms (#): | 1 (FULL) | Bedrooms (#): | 1 | | Exterior Wall: | SI/ST | Fireplace: | WD ST-GOOD | | Floor Construction: | FRAME | Foundation: | PO&BL | | Heating/Cooling: | WD/NO | Interior Finish: | FIN | | Roof Cover: | METAL |   |   |
|
| | Type | Description | Class CD | Sub Class CD | Year Built | Area |
| | MA | Main Area | 2 | C1S | 1986 | 780.0 |
| | CDECK | Cabin Deck | 2 | * | 1986 | 64.0 |
| | OTHER | Other | * | * | 1986 | 720.0 |
Sketch
Property Image
Land
| 1 | WEST-1388S | Terr Site (with acreage parcel) 1+/- Acre | 1.0000 | 43560.00 | 0.00 | 0.00 | 1.00 | $6,500 | $0 |
| 2 | WEST-1585A | No/Limited Terr View Acres <6 Ac | 4.5900 | 199940.40 | 0.00 | 0.00 | 0.00 | $18,360 | $1,836 |
Roll Value History
| 2026 | N/A | N/A | N/A | N/A | N/A |
| 2025 | $8,965 | $19,418 | $1,492 | $14,957 | $14,957 |
| 2024 | $8,965 | $19,418 | $1,492 | $14,957 | $14,957 |
| 2023 | $8,965 | $18,270 | $1,377 | $14,842 | $14,842 |
| 2022 | $8,965 | $18,270 | $1,377 | $14,842 | $14,842 |
Deed and Sales History
| 1 | 06/10/2019 | SWD | Statutory Warranty Deed | CHIGGERS L STOKES | CINDY JO KAVANAGH | | | $339,300.00 | 132516 | |
|   | |
| 2 | 02/26/2003 | QCD | Quit Claim Deed | MEYERS, JEANNE | STOKES CHIGGERS L | 0 | 0 | $0.00 | 96689 | 0 |
Payout Agreement
| No payout information available.. |