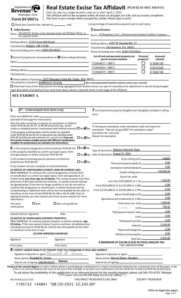
Property
Account |
| Property ID: | 18831 | Abbreviated Legal Description: | S6 T27 R12W TAX 51 WITH & SUBJ TO EASE |
| Parcel # / Geo ID: | 712064025 | Agent Code: | |
| Type: | Real | | |
| Tax Area: | 0691 - 1-402F9H1L1 | Land Use Code | 91 |
| Open Space: | N | DFL | N |
| Historic Property: | N | Remodel Property: | N |
| Multi-Family Redevelopment: | N | | |
| Township: | 27N | Section: | 6 |
| Range: | 12W |
Location |
| Address: | | Mapsco: | 923/071 |
| Neighborhood: | S1 - S17 T27N R12W (END OF S. BOGACHIEL RD)/VVC,VANAUSDLE SP | Map ID: | |
| Neighborhood CD: | 1750 |
Owner |
| Name: | FI PROPERTIES LLC | Owner ID: | 113237 |
| Mailing Address: | 4387 W SWAMP RD 27 DOYLESTOWN, PA 18902-1039 | % Ownership: | 100.0000000000% |
| | | Exemptions: | |
Pay Tax Due
Select the appropriate checkbox next to the year to be paid. Multiple years may be selected.
*Convenience Fee not included
Taxes and Assessment Details
Property Tax Information as of
03/11/2026
Click on "Statement Details" to expand or collapse a tax statement.
* Please enter a valid date ** Please enter a valid date *
Statement Details |
| 2026 | 8354 | STATE - STATE LEVY (SCHOOL) | $22.59 | $22.58 | $0.00 | $0.00 | $0.00 | $45.17 |
| 2026 | 8354 | COUNTY - COUNTY LEVIES (CE, DD, VET, MH) | $9.03 | $9.02 | $0.00 | $0.00 | $0.00 | $18.05 |
| 2026 | 8354 | CONSERVE - CONSERVATION FUTURES | $0.27 | $0.27 | $0.00 | $0.00 | $0.00 | $0.54 |
| 2026 | 8354 | COROADS - COUNTY ROADS (ROADS, DIV TO CE) | $7.29 | $7.28 | $0.00 | $0.00 | $0.00 | $14.57 |
| 2026 | 8354 | PORTPT - PORT DISTRICT | $3.65 | $3.64 | $0.00 | $0.00 | $0.00 | $7.29 |
| 2026 | 8354 | PUD1 - PUD #1 | $0.59 | $0.58 | $0.00 | $0.00 | $0.00 | $1.17 |
| 2026 | 8354 | LIB1 - LIBRARY DIST #1 | $2.82 | $2.82 | $0.00 | $0.00 | $0.00 | $5.64 |
| 2026 | 8354 | HD1 - HOSP DIST #1 | $5.41 | $5.40 | $0.00 | $0.00 | $0.00 | $10.81 |
| 2026 | 8354 | SD402 - SCHOOL DIST #402 | $28.06 | $28.04 | $0.00 | $0.00 | $0.00 | $56.10 |
| 2026 | 8354 | FD9 - FIRE DISTRICT #9 | $4.50 | $4.49 | $0.00 | $0.00 | $0.00 | $8.99 |
| 2026 | 8354 | FPLCA - DNR Landowner Contingency Assmt | $3.00 | $3.00 | $0.00 | $0.00 | $0.00 | $6.00 |
| 2026 | 8354 | JCCD - JC Conservation District | $2.77 | $2.77 | $0.00 | $0.00 | $0.00 | $5.54 |
| 2026 | 8354 | NWA - Noxious Weed Assessment | $4.33 | $4.32 | $0.00 | $0.00 | $0.00 | $8.65 |
| 2026 | 8354 | TOTAL: | $94.31 | $94.21 | $0.00 | $0.00 | $0.00 | $188.52 |
|
| 2026 | 8354 | $94.31 | $94.21 | $0.00 | $0.00 | $0.00 | $188.52 |
Statement Details |
| 2025 | 8375 | STATE - STATE LEVY (SCHOOL) | $23.57 | $23.55 | $1.88 | $1.18 | $23.57 | $26.61 |
| 2025 | 8375 | COUNTY - COUNTY LEVIES (CE, DD, VET, MH) | $9.27 | $9.25 | $0.73 | $0.46 | $9.27 | $10.44 |
| 2025 | 8375 | CONSERVE - CONSERVATION FUTURES | $0.28 | $0.28 | $0.02 | $0.01 | $0.28 | $0.31 |
| 2025 | 8375 | COROADS - COUNTY ROADS (ROADS, DIV TO CE) | $7.43 | $7.42 | $0.59 | $0.37 | $7.43 | $8.38 |
| 2025 | 8375 | PORTPT - PORT DISTRICT | $3.79 | $3.77 | $0.30 | $0.19 | $3.79 | $4.26 |
| 2025 | 8375 | PUD1 - PUD #1 | $0.61 | $0.60 | $0.05 | $0.03 | $0.61 | $0.68 |
| 2025 | 8375 | LIB1 - LIBRARY DIST #1 | $2.87 | $2.87 | $0.23 | $0.14 | $2.87 | $3.24 |
| 2025 | 8375 | HD1 - HOSP DIST #1 | $5.55 | $5.54 | $0.44 | $0.28 | $5.55 | $6.26 |
| 2025 | 8375 | SD402 - SCHOOL DIST #402 | $21.41 | $21.39 | $1.71 | $1.07 | $21.41 | $24.17 |
| 2025 | 8375 | FD9 - FIRE DISTRICT #9 | $4.63 | $4.62 | $0.37 | $0.23 | $4.63 | $5.22 |
| 2025 | 8375 | FPLCA - DNR Landowner Contingency Assmt | $3.00 | $3.00 | $0.24 | $0.15 | $3.00 | $3.39 |
| 2025 | 8375 | JCCD - JC Conservation District | $2.77 | $2.77 | $0.22 | $0.14 | $2.77 | $3.13 |
| 2025 | 8375 | NWA - Noxious Weed Assessment | $3.05 | $3.05 | $0.24 | $0.15 | $3.05 | $3.44 |
| 2025 | 8375 | TOTAL: | $88.23 | $88.11 | $7.02 | $4.40 | $88.23 | $99.53 |
|
| 2025 | 8375 | $88.23 | $88.11 | $7.02 | $4.40 | $88.23 | $99.53 |
Statement Details |
| 2024 | 8399 | STATE - STATE LEVY (SCHOOL) | $20.71 | $20.70 | $0.00 | $0.00 | $41.41 | $0.00 |
| 2024 | 8399 | COUNTY - COUNTY LEVIES (CE, DD, VET, MH) | $8.86 | $8.86 | $0.00 | $0.00 | $17.72 | $0.00 |
| 2024 | 8399 | CONSERVE - CONSERVATION FUTURES | $0.27 | $0.26 | $0.00 | $0.00 | $0.53 | $0.00 |
| 2024 | 8399 | COROADS - COUNTY ROADS (ROADS, DIV TO CE) | $7.13 | $7.13 | $0.00 | $0.00 | $14.26 | $0.00 |
| 2024 | 8399 | PORTPT - PORT DISTRICT | $3.67 | $3.65 | $0.00 | $0.00 | $7.32 | $0.00 |
| 2024 | 8399 | PUD1 - PUD #1 | $0.58 | $0.58 | $0.00 | $0.00 | $1.16 | $0.00 |
| 2024 | 8399 | LIB1 - LIBRARY DIST #1 | $2.76 | $2.76 | $0.00 | $0.00 | $5.52 | $0.00 |
| 2024 | 8399 | HD1 - HOSP DIST #1 | $5.27 | $5.26 | $0.00 | $0.00 | $10.53 | $0.00 |
| 2024 | 8399 | SD402 - SCHOOL DIST #402 | $18.39 | $18.38 | $0.00 | $0.00 | $36.77 | $0.00 |
| 2024 | 8399 | FD9 - FIRE DISTRICT #9 | $4.29 | $4.28 | $0.00 | $0.00 | $8.57 | $0.00 |
| 2024 | 8399 | FPLCA - DNR Landowner Contingency Assmt | $3.00 | $3.00 | $0.00 | $0.00 | $6.00 | $0.00 |
| 2024 | 8399 | JCCD - JC Conservation District | $2.77 | $2.77 | $0.00 | $0.00 | $5.54 | $0.00 |
| 2024 | 8399 | NWA - Noxious Weed Assessment | $3.05 | $3.05 | $0.00 | $0.00 | $6.10 | $0.00 |
| 2024 | 8399 | TOTAL: | $80.75 | $80.68 | $0.00 | $0.00 | $161.43 | $0.00 |
|
| 2024 | 8399 | $80.75 | $80.68 | $0.00 | $0.00 | $161.43 | $0.00 |
Statement Details |
| 2023 | 8416 | STATE - STATE LEVY (SCHOOL) | $21.07 | $21.06 | $0.00 | $0.00 | $42.13 | $0.00 |
| 2023 | 8416 | COUNTY - COUNTY LEVIES (CE, DD, VET, MH) | $9.20 | $9.18 | $0.00 | $0.00 | $18.38 | $0.00 |
| 2023 | 8416 | CONSERVE - CONSERVATION FUTURES | $0.28 | $0.27 | $0.00 | $0.00 | $0.55 | $0.00 |
| 2023 | 8416 | COROADS - COUNTY ROADS (ROADS, DIV TO CE) | $7.44 | $7.43 | $0.00 | $0.00 | $14.87 | $0.00 |
| 2023 | 8416 | PORTPT - PORT DISTRICT | $3.88 | $3.86 | $0.00 | $0.00 | $7.74 | $0.00 |
| 2023 | 8416 | PUD1 - PUD #1 | $0.61 | $0.61 | $0.00 | $0.00 | $1.22 | $0.00 |
| 2023 | 8416 | LIB1 - LIBRARY DIST #1 | $2.88 | $2.88 | $0.00 | $0.00 | $5.76 | $0.00 |
| 2023 | 8416 | HD1 - HOSP DIST #1 | $5.31 | $5.30 | $0.00 | $0.00 | $10.61 | $0.00 |
| 2023 | 8416 | SD402 - SCHOOL DIST #402 | $20.67 | $20.67 | $0.00 | $0.00 | $41.34 | $0.00 |
| 2023 | 8416 | FD9 - FIRE DISTRICT #9 | $4.54 | $4.53 | $0.00 | $0.00 | $9.07 | $0.00 |
| 2023 | 8416 | FPLCA - DNR Landowner Contingency Assmt | $3.00 | $3.00 | $0.00 | $0.00 | $6.00 | $0.00 |
| 2023 | 8416 | JCCD - JC Conservation District | $2.77 | $2.77 | $0.00 | $0.00 | $5.54 | $0.00 |
| 2023 | 8416 | NWA - Noxious Weed Assessment | $3.05 | $3.05 | $0.00 | $0.00 | $6.10 | $0.00 |
| 2023 | 8416 | TOTAL: | $84.70 | $84.61 | $0.00 | $0.00 | $169.31 | $0.00 |
|
| 2023 | 8416 | $84.70 | $84.61 | $0.00 | $0.00 | $169.31 | $0.00 |
Values
| (+) Improvement Homesite Value: | + | $0 | |
| (+) Improvement Non-Homesite Value: | + | $0 | |
| (+) Land Homesite Value: | + | $0 | |
| (+) Land Non-Homesite Value: | + | $19,647 | |
| (+) Curr Use (HS): | + | $0 | $0 |
| (+) Curr Use (NHS): | + | $0 | $0 |
| | | -------------------------- | |
| (=) Market Value: | = | $19,647 | |
| (–) Productivity Loss: | – | $0 | |
| | | -------------------------- | |
| (=) Subtotal: | = | $19,647 | |
| (+) Senior Appraised Value: | + | $0 | |
| (+) Non-Senior Appraised Value: | + | $19,647 | |
| | | -------------------------- | |
| (=) Total Appraised Value: | = | $19,647 | |
| (–) Senior Exemption Loss: | – | $0 | |
| (–) Exemption Loss: | – | $0 | |
| | | -------------------------- | |
| (=) Taxable Value: | = | $19,647 | |
Taxing Jurisdiction
| Owner: | FI PROPERTIES LLC | | |
| % Ownership: | 100.0000000000% | | |
| Total Value: | $19,647 | | |
| Tax Area: | 0691 - 1-402F9H1L1 |
| CE | COUNTY CURRENT EXPENSE | 0.9034619479 | $19,647 | $19,647 | $17.75 | | |
| CNTYDD | DEVELOPMENTAL DISABILITIES | 0.0052121823 | $19,647 | $19,647 | $0.10 | | |
| CNTYVET | VETERANS RELIEF | 0.0052777810 | $19,647 | $19,647 | $0.10 | | |
| MENTAL | MENTAL HEALTH | 0.0052121823 | $19,647 | $19,647 | $0.10 | | |
| ROADS | COUNTY ROADS | 0.7415066410 | $19,647 | $19,647 | $14.57 | | |
| ROADSCU | COUNTY ROADS TO CUR EXP | 0.0000000000 | $19,647 | $19,647 | $0.00 | | |
| HOS1GEN | HOSP DIST #1 GENERAL | 0.5503668747 | $19,647 | $19,647 | $10.81 | | |
| SCH402BOND | SCHOOL DIST #402 BOND | 1.2974778650 | $19,647 | $19,647 | $25.49 | | |
| SCH402MO | SCHOOL DIST #402 EP & O | 1.5579855743 | $19,647 | $19,647 | $30.61 | | |
| CONSERVE | CONSERVATION FUTURES | 0.0275621078 | $19,647 | $19,647 | $0.54 | | |
| FD9 | FIRE DIST #9 GENERAL | 0.4575562199 | $19,647 | $19,647 | $8.99 | | |
| LIB1 | LIBRARY DIST #1 GENERAL | 0.2868827388 | $19,647 | $19,647 | $5.64 | | |
| PORTPT | PORT OF PT GENERAL | 0.1134941229 | $19,647 | $19,647 | $2.23 | | |
| PORTPTIDD | PORT OF PT IDD 2019 | 0.2577346692 | $19,647 | $19,647 | $5.06 | | |
| PUD1 | PUD #1 GENERAL | 0.0597888892 | $19,647 | $19,647 | $1.17 | | |
| STATE | STATE SCHOOL PART 1 | 1.4940692947 | $19,647 | $19,647 | $29.35 | | |
| STATE2 | STATE SCHOOL PART 2 | 0.8050170049 | $19,647 | $19,647 | $15.82 | | |
| | Total Tax Rate: | 8.5686060959 | | | | | |
| | | | | Taxes w/Current Exemptions: | $168.33 | | |
| | | | | Taxes w/o Exemptions: | $168.33 | | |
Improvement / Building
Sketch
| No sketches available for this property. |
Property Image
Land
| 1 | WEST-1528A | | 3.5000 | 152460.00 | 0.00 | 0.00 | 0.00 | $19,250 | $0 |
| 2 | WEST-9303A | | 3.9700 | 172933.20 | 0.00 | 0.00 | 0.00 | $397 | $0 |
Roll Value History
| 2026 | N/A | N/A | N/A | N/A | N/A |
| 2025 | $0 | $19,647 | $0 | $19,647 | $19,647 |
| 2024 | $0 | $19,647 | $0 | $19,647 | $19,647 |
| 2023 | $0 | $17,897 | $0 | $17,897 | $17,897 |
| 2022 | $0 | $17,897 | $0 | $17,897 | $17,897 |
Deed and Sales History
| 1 | 08/22/2025 | SWD | Statutory Warranty Deed | WENDELL B SCISM JR | FI PROPERTIES LLC | | | $140,000.00 | 144841 | |
|   | |
| 2 | 08/01/2023 | QCD | Quit Claim Deed | WENDELL B SCISM SR | WENDELL B SCISM JR | | | | 141419 | |
| 3 | 03/10/2010 | SWD | Statutory Warranty Deed | O'CONNOR, RICHARD | SCISM, WENDELL B/WELLS, WILLIA | | | $0.00 | 114603 | 0 |
| 4 | 03/10/2010 | SWD | Statutory Warranty Deed | O'CONNOR, RICHARD | SCISM, WENDELL/WELLS, WILLIAM | | | $80,000.00 | 114319 | 0 |
| 5 | 03/30/2007 | QCD | Quit Claim Deed | MORGAN, JAMES T/PAMELA J | O'CONNOR, RICHARD L | 0 | 0 | $0.00 | 108904 | 0 |
| 6 | 03/29/2002 | SWD | Statutory Warranty Deed | B MICHAEL SCHMIDT | MORGAN, JAMES T & PAM | 0 | 0 | $18,000.00 | 94380 | 0 |
| 7 | 03/29/2001 | SWD | Statutory Warranty Deed | B MICHAEL SCHMIDT ET AL | JAMES T & PAM MORGAN | 0 | 0 | $0.00 | 95151 | 0 |
| 8 | 04/15/1992 | QCD | Quit Claim Deed | AUSDLE, EARL VAN | VANNAUSDLE, EDWIN D/DELORES | 0 | 0 | $0.00 | 68167 | 0 |
Payout Agreement
| No payout information available.. |