Property
Account |
| Property ID: | 18868 | Abbreviated Legal Description: | S18 T27 R12W TAX 11 |
| Parcel # / Geo ID: | 712182003 | Agent Code: | |
| Type: | Real | | |
| Tax Area: | 0601 - 1-402H1L1 | Land Use Code | 11 |
| Open Space: | N | DFL | N |
| Historic Property: | N | Remodel Property: | N |
| Multi-Family Redevelopment: | N | | |
| Township: | 27N | Section: | 18 |
| Range: | 12W |
Location |
| Address: | | Mapsco: | 924/015 |
| Neighborhood: | S18 - S36 T27N R12W (US101 AROUND HOH RIVER CROSSING) | Map ID: | |
| Neighborhood CD: | 1740 |
Owner |
| Name: | JOHANN E & AMBER A G BERG | Owner ID: | 113841 |
| Mailing Address: | 25715 LAKE CAVANAUGH RD MOUNT VERNON, WA 98274-9192 | % Ownership: | 100.0000000000% |
| | | Exemptions: | |
Pay Tax Due
There is currently No Amount Due on this property.
Taxes and Assessment Details
Property Tax Information as of
03/11/2026
Click on "Statement Details" to expand or collapse a tax statement.
* Please enter a valid date ** Please enter a valid date *
Statement Details |
| 2026 | 8391 | STATE - STATE LEVY (SCHOOL) | $22.21 | $22.20 | $0.00 | $0.00 | $44.41 | $0.00 |
| 2026 | 8391 | COUNTY - COUNTY LEVIES (CE, DD, VET, MH) | $8.88 | $8.87 | $0.00 | $0.00 | $17.75 | $0.00 |
| 2026 | 8391 | CONSERVE - CONSERVATION FUTURES | $0.27 | $0.26 | $0.00 | $0.00 | $0.53 | $0.00 |
| 2026 | 8391 | COROADS - COUNTY ROADS (ROADS, DIV TO CE) | $7.16 | $7.16 | $0.00 | $0.00 | $14.32 | $0.00 |
| 2026 | 8391 | PORTPT - PORT DISTRICT | $3.59 | $3.58 | $0.00 | $0.00 | $7.17 | $0.00 |
| 2026 | 8391 | PUD1 - PUD #1 | $0.58 | $0.58 | $0.00 | $0.00 | $1.16 | $0.00 |
| 2026 | 8391 | LIB1 - LIBRARY DIST #1 | $2.77 | $2.77 | $0.00 | $0.00 | $5.54 | $0.00 |
| 2026 | 8391 | HD1 - HOSP DIST #1 | $5.32 | $5.31 | $0.00 | $0.00 | $10.63 | $0.00 |
| 2026 | 8391 | SD402 - SCHOOL DIST #402 | $27.58 | $27.58 | $0.00 | $0.00 | $55.16 | $0.00 |
| 2026 | 8391 | FP - DNR Forest Fire Protection Assmt | $8.50 | $8.50 | $0.00 | $0.00 | $17.00 | $0.00 |
| 2026 | 8391 | FPLCA - DNR Landowner Contingency Assmt | $3.00 | $3.00 | $0.00 | $0.00 | $6.00 | $0.00 |
| 2026 | 8391 | JCCD - JC Conservation District | $2.70 | $2.70 | $0.00 | $0.00 | $5.40 | $0.00 |
| 2026 | 8391 | NWA - Noxious Weed Assessment | $3.65 | $3.65 | $0.00 | $0.00 | $7.30 | $0.00 |
| 2026 | 8391 | OSS - On Site Septic | $23.10 | $23.10 | $0.00 | $0.00 | $46.20 | $0.00 |
| 2026 | 8391 | FP ADMIN - FP ADMIN | $0.50 | $0.00 | $0.00 | $0.00 | $0.50 | $0.00 |
| 2026 | 8391 | TOTAL: | $119.81 | $119.26 | $0.00 | $0.00 | $239.07 | $0.00 |
|
| 2026 | 8391 | $119.81 | $119.26 | $0.00 | $0.00 | $239.07 | $0.00 |
Statement Details |
| 2025 | 8412 | STATE - STATE LEVY (SCHOOL) | $23.17 | $23.16 | $0.00 | $0.00 | $46.33 | $0.00 |
| 2025 | 8412 | COUNTY - COUNTY LEVIES (CE, DD, VET, MH) | $9.11 | $9.10 | $0.00 | $0.00 | $18.21 | $0.00 |
| 2025 | 8412 | CONSERVE - CONSERVATION FUTURES | $0.28 | $0.27 | $0.00 | $0.00 | $0.55 | $0.00 |
| 2025 | 8412 | COROADS - COUNTY ROADS (ROADS, DIV TO CE) | $7.30 | $7.29 | $0.00 | $0.00 | $14.59 | $0.00 |
| 2025 | 8412 | PORTPT - PORT DISTRICT | $3.72 | $3.71 | $0.00 | $0.00 | $7.43 | $0.00 |
| 2025 | 8412 | PUD1 - PUD #1 | $0.60 | $0.59 | $0.00 | $0.00 | $1.19 | $0.00 |
| 2025 | 8412 | LIB1 - LIBRARY DIST #1 | $2.83 | $2.82 | $0.00 | $0.00 | $5.65 | $0.00 |
| 2025 | 8412 | HD1 - HOSP DIST #1 | $5.45 | $5.45 | $0.00 | $0.00 | $10.90 | $0.00 |
| 2025 | 8412 | SD402 - SCHOOL DIST #402 | $21.05 | $21.04 | $0.00 | $0.00 | $42.09 | $0.00 |
| 2025 | 8412 | FP - DNR Forest Fire Protection Assmt | $8.50 | $8.50 | $0.00 | $0.00 | $17.00 | $0.00 |
| 2025 | 8412 | FPLCA - DNR Landowner Contingency Assmt | $3.00 | $3.00 | $0.00 | $0.00 | $6.00 | $0.00 |
| 2025 | 8412 | JCCD - JC Conservation District | $2.70 | $2.70 | $0.00 | $0.00 | $5.40 | $0.00 |
| 2025 | 8412 | NWA - Noxious Weed Assessment | $2.60 | $2.60 | $0.00 | $0.00 | $5.20 | $0.00 |
| 2025 | 8412 | OSS - On Site Septic | $21.50 | $21.50 | $0.00 | $0.00 | $43.00 | $0.00 |
| 2025 | 8412 | FP ADMIN - FP ADMIN | $0.50 | $0.00 | $0.00 | $0.00 | $0.50 | $0.00 |
| 2025 | 8412 | TOTAL: | $112.31 | $111.73 | $0.00 | $0.00 | $224.04 | $0.00 |
|
| 2025 | 8412 | $112.31 | $111.73 | $0.00 | $0.00 | $224.04 | $0.00 |
Statement Details |
| 2024 | 8436 | STATE - STATE LEVY (SCHOOL) | $21.25 | $21.25 | $0.00 | $0.00 | $42.50 | $0.00 |
| 2024 | 8436 | COUNTY - COUNTY LEVIES (CE, DD, VET, MH) | $9.09 | $9.09 | $0.00 | $0.00 | $18.18 | $0.00 |
| 2024 | 8436 | CONSERVE - CONSERVATION FUTURES | $0.28 | $0.27 | $0.00 | $0.00 | $0.55 | $0.00 |
| 2024 | 8436 | COROADS - COUNTY ROADS (ROADS, DIV TO CE) | $7.32 | $7.31 | $0.00 | $0.00 | $14.63 | $0.00 |
| 2024 | 8436 | PORTPT - PORT DISTRICT | $3.77 | $3.75 | $0.00 | $0.00 | $7.52 | $0.00 |
| 2024 | 8436 | PUD1 - PUD #1 | $0.60 | $0.59 | $0.00 | $0.00 | $1.19 | $0.00 |
| 2024 | 8436 | LIB1 - LIBRARY DIST #1 | $2.83 | $2.83 | $0.00 | $0.00 | $5.66 | $0.00 |
| 2024 | 8436 | HD1 - HOSP DIST #1 | $5.40 | $5.40 | $0.00 | $0.00 | $10.80 | $0.00 |
| 2024 | 8436 | SD402 - SCHOOL DIST #402 | $18.87 | $18.87 | $0.00 | $0.00 | $37.74 | $0.00 |
| 2024 | 8436 | FP - DNR Forest Fire Protection Assmt | $8.50 | $8.50 | $0.00 | $0.00 | $17.00 | $0.00 |
| 2024 | 8436 | FPLCA - DNR Landowner Contingency Assmt | $3.00 | $3.00 | $0.00 | $0.00 | $6.00 | $0.00 |
| 2024 | 8436 | JCCD - JC Conservation District | $2.70 | $2.70 | $0.00 | $0.00 | $5.40 | $0.00 |
| 2024 | 8436 | NWA - Noxious Weed Assessment | $2.60 | $2.60 | $0.00 | $0.00 | $5.20 | $0.00 |
| 2024 | 8436 | OSS - On Site Septic | $21.00 | $21.00 | $0.00 | $0.00 | $42.00 | $0.00 |
| 2024 | 8436 | FP ADMIN - FP ADMIN | $0.50 | $0.00 | $0.00 | $0.00 | $0.50 | $0.00 |
| 2024 | 8436 | TOTAL: | $107.71 | $107.16 | $0.00 | $0.00 | $214.87 | $0.00 |
|
| 2024 | 8436 | $107.71 | $107.16 | $0.00 | $0.00 | $214.87 | $0.00 |
Statement Details |
| 2023 | 8453 | STATE - STATE LEVY (SCHOOL) | $21.63 | $21.62 | $0.00 | $0.00 | $43.25 | $0.00 |
| 2023 | 8453 | COUNTY - COUNTY LEVIES (CE, DD, VET, MH) | $9.46 | $9.42 | $0.00 | $0.00 | $18.88 | $0.00 |
| 2023 | 8453 | CONSERVE - CONSERVATION FUTURES | $0.29 | $0.28 | $0.00 | $0.00 | $0.57 | $0.00 |
| 2023 | 8453 | COROADS - COUNTY ROADS (ROADS, DIV TO CE) | $7.64 | $7.63 | $0.00 | $0.00 | $15.27 | $0.00 |
| 2023 | 8453 | PORTPT - PORT DISTRICT | $3.98 | $3.97 | $0.00 | $0.00 | $7.95 | $0.00 |
| 2023 | 8453 | PUD1 - PUD #1 | $0.63 | $0.62 | $0.00 | $0.00 | $1.25 | $0.00 |
| 2023 | 8453 | LIB1 - LIBRARY DIST #1 | $2.96 | $2.95 | $0.00 | $0.00 | $5.91 | $0.00 |
| 2023 | 8453 | HD1 - HOSP DIST #1 | $5.45 | $5.44 | $0.00 | $0.00 | $10.89 | $0.00 |
| 2023 | 8453 | SD402 - SCHOOL DIST #402 | $21.22 | $21.22 | $0.00 | $0.00 | $42.44 | $0.00 |
| 2023 | 8453 | FP - DNR Forest Fire Protection Assmt | $8.50 | $8.50 | $0.00 | $0.00 | $17.00 | $0.00 |
| 2023 | 8453 | FPLCA - DNR Landowner Contingency Assmt | $3.00 | $3.00 | $0.00 | $0.00 | $6.00 | $0.00 |
| 2023 | 8453 | JCCD - JC Conservation District | $2.65 | $2.65 | $0.00 | $0.00 | $5.30 | $0.00 |
| 2023 | 8453 | NWA - Noxious Weed Assessment | $2.60 | $2.60 | $0.00 | $0.00 | $5.20 | $0.00 |
| 2023 | 8453 | OSS - On Site Septic | $20.50 | $20.50 | $0.00 | $0.00 | $41.00 | $0.00 |
| 2023 | 8453 | FP ADMIN - FP ADMIN | $0.50 | $0.00 | $0.00 | $0.00 | $0.50 | $0.00 |
| 2023 | 8453 | TOTAL: | $111.01 | $110.40 | $0.00 | $0.00 | $221.41 | $0.00 |
|
| 2023 | 8453 | $111.01 | $110.40 | $0.00 | $0.00 | $221.41 | $0.00 |
Values
| (+) Improvement Homesite Value: | + | $0 | |
| (+) Improvement Non-Homesite Value: | + | $0 | |
| (+) Land Homesite Value: | + | $0 | |
| (+) Land Non-Homesite Value: | + | $33,950 | |
| (+) Curr Use (HS): | + | $0 | $0 |
| (+) Curr Use (NHS): | + | $0 | $0 |
| | | -------------------------- | |
| (=) Market Value: | = | $33,950 | |
| (–) Productivity Loss: | – | $0 | |
| | | -------------------------- | |
| (=) Subtotal: | = | $33,950 | |
| (+) Senior Appraised Value: | + | $0 | |
| (+) Non-Senior Appraised Value: | + | $33,950 | |
| | | -------------------------- | |
| (=) Total Appraised Value: | = | $33,950 | |
| (–) Senior Exemption Loss: | – | $0 | |
| (–) Exemption Loss: | – | $0 | |
| | | -------------------------- | |
| (=) Taxable Value: | = | $33,950 | |
Taxing Jurisdiction
| Owner: | JOHANN E & AMBER A G BERG | | |
| % Ownership: | 100.0000000000% | | |
| Total Value: | N/A | | |
| Tax Area: | 0601 - 1-402H1L1 |
| CE | COUNTY CURRENT EXPENSE | N/A | N/A | N/A | N/A | | |
| CNTYDD | DEVELOPMENTAL DISABILITIES | N/A | N/A | N/A | N/A | | |
| CNTYVET | VETERANS RELIEF | N/A | N/A | N/A | N/A | | |
| MENTAL | MENTAL HEALTH | N/A | N/A | N/A | N/A | | |
| ROADS | COUNTY ROADS | N/A | N/A | N/A | N/A | | |
| HOS1GEN | HOSP DIST #1 GENERAL | N/A | N/A | N/A | N/A | | |
| SCH402BOND | SCHOOL DIST #402 BOND | N/A | N/A | N/A | N/A | | |
| SCH402MO | SCHOOL DIST #402 EP & O | N/A | N/A | N/A | N/A | | |
| CONSERVE | CONSERVATION FUTURES | N/A | N/A | N/A | N/A | | |
| LIB1 | LIBRARY DIST #1 GENERAL | N/A | N/A | N/A | N/A | | |
| PORTPT | PORT OF PT GENERAL | N/A | N/A | N/A | N/A | | |
| PORTPTIDD | PORT OF PT IDD 2019 | N/A | N/A | N/A | N/A | | |
| PUD1 | PUD #1 GENERAL | N/A | N/A | N/A | N/A | | |
| STATE | STATE SCHOOL PART 1 | N/A | N/A | N/A | N/A | | |
| STATE2 | STATE SCHOOL PART 2 | N/A | N/A | N/A | N/A | | |
| | Total Tax Rate: | N/A | | | | | |
| | | | | Taxes w/Current Exemptions: | N/A | | |
| | | | | Taxes w/o Exemptions: | N/A | | |
Improvement / Building
Sketch
| No sketches available for this property. |
Property Image
Land
| 1 | WEST-1375S | | 1.0000 | 43560.00 | 0.00 | 0.00 | 1.00 | $15,000 | $0 |
| 2 | WEST-1575A | | 3.7900 | 165092.40 | 0.00 | 0.00 | 0.00 | $18,950 | $0 |
Roll Value History
| 2026 | N/A | N/A | N/A | N/A | N/A |
| 2025 | $0 | $19,318 | $0 | $19,318 | $19,318 |
| 2024 | $0 | $19,318 | $0 | $19,318 | $19,318 |
| 2023 | $0 | $18,370 | $0 | $18,370 | $18,370 |
| 2022 | $0 | $18,370 | $0 | $18,370 | $18,370 |
Deed and Sales History
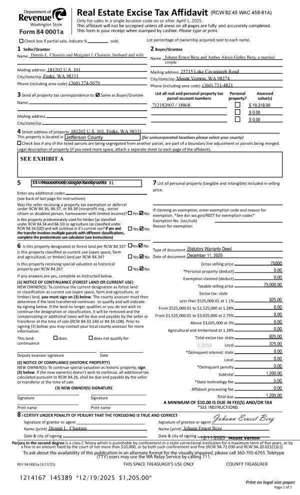
| 1 | 12/11/2025 | SWD | Statutory Warranty Deed | DENNIS L CHASTAIN | JOHANN E & AMBER A G BERG | | | $75,000.00 | 145389 | |
| 2 | 06/15/1999 | SWD | Statutory Warranty Deed | JACKSON, GERALD E/MITSUE | CHASTAIN, DENNIS L/MARGARET J | 0 | 0 | $42,500.00 | 87109 | 0 |
|   | |
| 3 | 04/08/1998 | SWD | Statutory Warranty Deed | KOBAYASHI, YOSUKE/JUNKO | JACKSON, GERALD E/MITSUE | 0 | 0 | $42,000.00 | 84210 | 0 |
|   | |
| 4 | 04/08/1998 | SWD | Statutory Warranty Deed | KOBAYASHI, YOSUKE/JUNKO | JACKSON, GERALD E/MITSUE | 0 | 0 | $0.00 | 84404 | 0 |
Payout Agreement
| No payout information available.. |