Property
Account |
| Property ID: | 18869 | Abbreviated Legal Description: | S18 T27 R12W TAX 12 |
| Parcel # / Geo ID: | 712182004 | Agent Code: | |
| Type: | Real | | |
| Tax Area: | 0601 - 1-402H1L1 | Land Use Code | 91 |
| Open Space: | N | DFL | N |
| Historic Property: | N | Remodel Property: | N |
| Multi-Family Redevelopment: | N | | |
| Township: | 27N | Section: | 18 |
| Range: | 12W |
Location |
| Address: | | Mapsco: | 924/016 |
| Neighborhood: | S18 - S36 T27N R12W (US101 AROUND HOH RIVER CROSSING) | Map ID: | |
| Neighborhood CD: | 1740 |
Owner |
| Name: | ERIK C SCHNEIDER | Owner ID: | 101506 |
| Mailing Address: | 714 E 2ND ST ABERDEEN, WA 98520-3412 | % Ownership: | 100.0000000000% |
| | | Exemptions: | |
Pay Tax Due
There is currently No Amount Due on this property.
Taxes and Assessment Details
Property Tax Information as of
03/13/2026
Click on "Statement Details" to expand or collapse a tax statement.
* Please enter a valid date ** Please enter a valid date *
Statement Details |
| | TOTAL: | $0.00 | $0.00 | $0.00 | $0.00 | $0.00 | $0.00 |
|
| | $0.00 | $0.00 | $0.00 | $0.00 | $0.00 | $0.00 |
Values
| (+) Improvement Homesite Value: | + | $0 | |
| (+) Improvement Non-Homesite Value: | + | $0 | |
| (+) Land Homesite Value: | + | $0 | |
| (+) Land Non-Homesite Value: | + | $14,345 | |
| (+) Curr Use (HS): | + | $0 | $0 |
| (+) Curr Use (NHS): | + | $0 | $0 |
| | | -------------------------- | |
| (=) Market Value: | = | $14,345 | |
| (–) Productivity Loss: | – | $0 | |
| | | -------------------------- | |
| (=) Subtotal: | = | $14,345 | |
| (+) Senior Appraised Value: | + | $0 | |
| (+) Non-Senior Appraised Value: | + | $14,345 | |
| | | -------------------------- | |
| (=) Total Appraised Value: | = | $14,345 | |
| (–) Senior Exemption Loss: | – | $0 | |
| (–) Exemption Loss: | – | $0 | |
| | | -------------------------- | |
| (=) Taxable Value: | = | $14,345 | |
Taxing Jurisdiction
| Owner: | ERIK C SCHNEIDER | | |
| % Ownership: | 100.0000000000% | | |
| Total Value: | $14,345 | | |
| Tax Area: | 0601 - 1-402H1L1 |
| CE | COUNTY CURRENT EXPENSE | 0.9034619479 | $14,345 | $14,345 | $12.96 | | |
| CNTYDD | DEVELOPMENTAL DISABILITIES | 0.0052121823 | $14,345 | $14,345 | $0.07 | | |
| CNTYVET | VETERANS RELIEF | 0.0052777810 | $14,345 | $14,345 | $0.08 | | |
| MENTAL | MENTAL HEALTH | 0.0052121823 | $14,345 | $14,345 | $0.07 | | |
| ROADS | COUNTY ROADS | 0.7415066410 | $14,345 | $14,345 | $10.64 | | |
| ROADSCU | COUNTY ROADS TO CUR EXP | 0.0000000000 | $14,345 | $14,345 | $0.00 | | |
| HOS1GEN | HOSP DIST #1 GENERAL | 0.5503668747 | $14,345 | $14,345 | $7.90 | | |
| SCH402BOND | SCHOOL DIST #402 BOND | 1.2974778650 | $14,345 | $14,345 | $18.61 | | |
| SCH402MO | SCHOOL DIST #402 EP & O | 1.5579855743 | $14,345 | $14,345 | $22.35 | | |
| CONSERVE | CONSERVATION FUTURES | 0.0275621078 | $14,345 | $14,345 | $0.40 | | |
| LIB1 | LIBRARY DIST #1 GENERAL | 0.2868827388 | $14,345 | $14,345 | $4.12 | | |
| PORTPT | PORT OF PT GENERAL | 0.1134941229 | $14,345 | $14,345 | $1.63 | | |
| PORTPTIDD | PORT OF PT IDD 2019 | 0.2577346692 | $14,345 | $14,345 | $3.70 | | |
| PUD1 | PUD #1 GENERAL | 0.0597888892 | $14,345 | $14,345 | $0.86 | | |
| STATE | STATE SCHOOL PART 1 | 1.4940692947 | $14,345 | $14,345 | $21.43 | | |
| STATE2 | STATE SCHOOL PART 2 | 0.8050170049 | $14,345 | $14,345 | $11.55 | | |
| | Total Tax Rate: | 8.1110498760 | | | | | |
| | | | | Taxes w/Current Exemptions: | $116.37 | | |
| | | | | Taxes w/o Exemptions: | $116.37 | | |
Improvement / Building
Sketch
| No sketches available for this property. |
Property Image
Land
| 1 | WEST-1385S | No/Lmtd Terr View Sites 1+/- Acre | 1.0000 | 43560.00 | 0.00 | 0.00 | 1.00 | $7,000 | $0 |
| 2 | WEST-1585A | No/Limited Terr View Acres <6 Ac | 2.2600 | 98445.60 | 0.00 | 0.00 | 0.00 | $7,345 | $0 |
Roll Value History
| 2026 | N/A | N/A | N/A | N/A | N/A |
| 2025 | $0 | $14,345 | $0 | $14,345 | $14,345 |
| 2024 | $0 | $14,345 | $0 | $14,345 | $14,345 |
| 2023 | $0 | $13,780 | $0 | $13,780 | $13,780 |
| 2022 | $0 | $13,780 | $0 | $13,780 | $13,780 |
Deed and Sales History
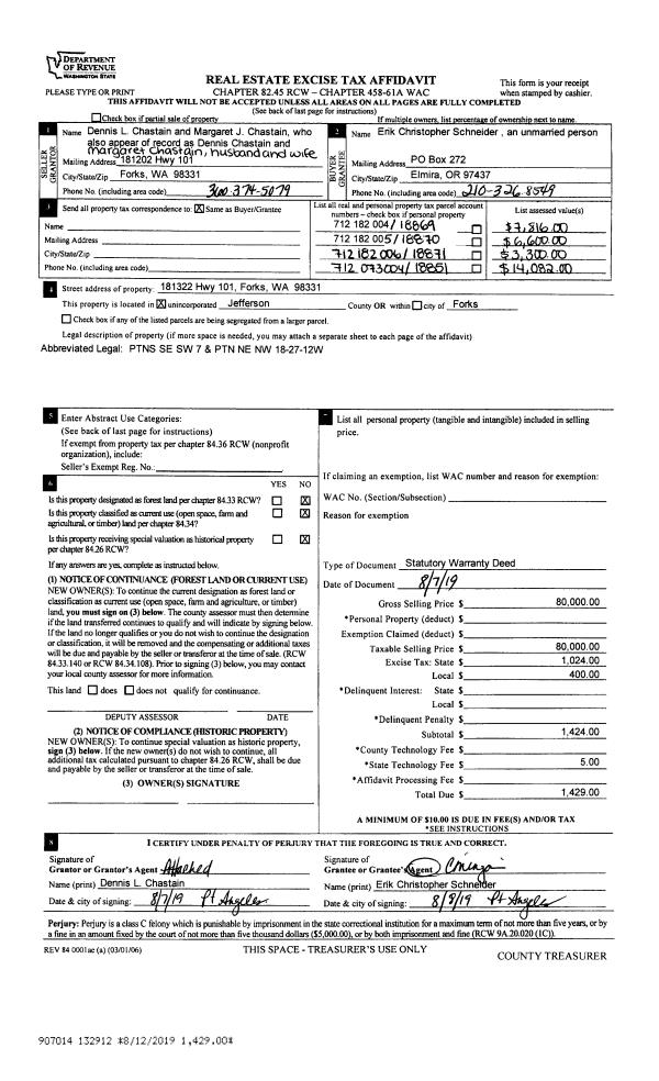
| 1 | 08/07/2019 | SWD | Statutory Warranty Deed | DENNIS L CHASTAIN | ERIK C SCHNEIDER | | | $80,000.00 | 132912 | |
|   | |
| 2 | 06/15/1999 | SWD | Statutory Warranty Deed | JACKSON, GERALD E/MITSUE | CHASTAIN, DENNIS L/MARGARET J | 0 | 0 | $42,500.00 | 87109 | 0 |
|   | |
Payout Agreement
| No payout information available.. |