Property
Account |
| Property ID: | 18885 | Abbreviated Legal Description: | S20 T27 R12W NW1/4 AND SE1/4 |
| Parcel # / Geo ID: | 712202000 | Agent Code: | |
| Type: | Real | | |
| Tax Area: | 0601 - 1-402H1L1 | Land Use Code | 88 |
| Open Space: | N | DFL | Y |
| Historic Property: | N | Remodel Property: | N |
| Multi-Family Redevelopment: | N | | |
| Township: | 27N | Section: | 20 |
| Range: | 12W |
Location |
| Address: | | Mapsco: | 924/025 |
| Neighborhood: | S18 - S36 T27N R12W (US101 AROUND HOH RIVER CROSSING) | Map ID: | |
| Neighborhood CD: | 1740 |
Owner |
| Name: | ECOTRUST FORESTS III LLC | Owner ID: | 108681 |
| Mailing Address: | AN OREGO LLC %ECOTRUST FOREST MANAGEMENT INC 721 NW 9TH AVE STE 230 PORTLAND, OR 97209-3451 | % Ownership: | 100.0000000000% |
| | | Exemptions: | |
Pay Tax Due
Select the appropriate checkbox next to the year to be paid. Multiple years may be selected.
*Convenience Fee not included
Taxes and Assessment Details
Property Tax Information as of
03/10/2026
Click on "Statement Details" to expand or collapse a tax statement.
* Please enter a valid date ** Please enter a valid date *
Statement Details |
| 2026 | 8408 | STATE - STATE LEVY (SCHOOL) | $18.59 | $18.59 | $0.00 | $0.00 | $0.00 | $37.18 |
| 2026 | 8408 | COUNTY - COUNTY LEVIES (CE, DD, VET, MH) | $7.44 | $7.42 | $0.00 | $0.00 | $0.00 | $14.86 |
| 2026 | 8408 | CONSERVE - CONSERVATION FUTURES | $0.23 | $0.22 | $0.00 | $0.00 | $0.00 | $0.45 |
| 2026 | 8408 | COROADS - COUNTY ROADS (ROADS, DIV TO CE) | $6.00 | $5.99 | $0.00 | $0.00 | $0.00 | $11.99 |
| 2026 | 8408 | PORTPT - PORT DISTRICT | $3.01 | $3.00 | $0.00 | $0.00 | $0.00 | $6.01 |
| 2026 | 8408 | PUD1 - PUD #1 | $0.49 | $0.48 | $0.00 | $0.00 | $0.00 | $0.97 |
| 2026 | 8408 | LIB1 - LIBRARY DIST #1 | $2.32 | $2.32 | $0.00 | $0.00 | $0.00 | $4.64 |
| 2026 | 8408 | HD1 - HOSP DIST #1 | $4.45 | $4.45 | $0.00 | $0.00 | $0.00 | $8.90 |
| 2026 | 8408 | SD402 - SCHOOL DIST #402 | $23.09 | $23.09 | $0.00 | $0.00 | $0.00 | $46.18 |
| 2026 | 8408 | FP - DNR Forest Fire Protection Assmt | $44.95 | $44.95 | $0.00 | $0.00 | $0.00 | $89.90 |
| 2026 | 8408 | FPLCA - DNR Landowner Contingency Assmt | $23.25 | $23.25 | $0.00 | $0.00 | $0.00 | $46.50 |
| 2026 | 8408 | NWA - Noxious Weed Assessment | $7.48 | $7.47 | $0.00 | $0.00 | $0.00 | $14.95 |
| 2026 | 8408 | FP ADMIN - FP ADMIN | $0.50 | $0.00 | $0.00 | $0.00 | $0.00 | $0.50 |
| 2026 | 8408 | TOTAL: | $141.80 | $141.23 | $0.00 | $0.00 | $0.00 | $283.03 |
|
| 2026 | 8408 | $141.80 | $141.23 | $0.00 | $0.00 | $0.00 | $283.03 |
Statement Details |
| 2025 | 8429 | STATE - STATE LEVY (SCHOOL) | $19.43 | $19.43 | $0.00 | $0.00 | $38.86 | $0.00 |
| 2025 | 8429 | COUNTY - COUNTY LEVIES (CE, DD, VET, MH) | $7.66 | $7.63 | $0.00 | $0.00 | $15.29 | $0.00 |
| 2025 | 8429 | CONSERVE - CONSERVATION FUTURES | $0.23 | $0.23 | $0.00 | $0.00 | $0.46 | $0.00 |
| 2025 | 8429 | COROADS - COUNTY ROADS (ROADS, DIV TO CE) | $6.13 | $6.11 | $0.00 | $0.00 | $12.24 | $0.00 |
| 2025 | 8429 | PORTPT - PORT DISTRICT | $3.13 | $3.11 | $0.00 | $0.00 | $6.24 | $0.00 |
| 2025 | 8429 | PUD1 - PUD #1 | $0.50 | $0.50 | $0.00 | $0.00 | $1.00 | $0.00 |
| 2025 | 8429 | LIB1 - LIBRARY DIST #1 | $2.37 | $2.37 | $0.00 | $0.00 | $4.74 | $0.00 |
| 2025 | 8429 | HD1 - HOSP DIST #1 | $4.58 | $4.57 | $0.00 | $0.00 | $9.15 | $0.00 |
| 2025 | 8429 | SD402 - SCHOOL DIST #402 | $17.66 | $17.64 | $0.00 | $0.00 | $35.30 | $0.00 |
| 2025 | 8429 | FP - DNR Forest Fire Protection Assmt | $44.95 | $44.95 | $0.00 | $0.00 | $89.90 | $0.00 |
| 2025 | 8429 | FPLCA - DNR Landowner Contingency Assmt | $23.25 | $23.25 | $0.00 | $0.00 | $46.50 | $0.00 |
| 2025 | 8429 | NWA - Noxious Weed Assessment | $5.00 | $5.00 | $0.00 | $0.00 | $10.00 | $0.00 |
| 2025 | 8429 | FP ADMIN - FP ADMIN | $0.50 | $0.00 | $0.00 | $0.00 | $0.50 | $0.00 |
| 2025 | 8429 | TOTAL: | $135.39 | $134.79 | $0.00 | $0.00 | $270.18 | $0.00 |
|
| 2025 | 8429 | $135.39 | $134.79 | $0.00 | $0.00 | $270.18 | $0.00 |
Statement Details |
| 2024 | 8453 | STATE - STATE LEVY (SCHOOL) | $18.35 | $18.33 | $0.00 | $0.00 | $36.68 | $0.00 |
| 2024 | 8453 | COUNTY - COUNTY LEVIES (CE, DD, VET, MH) | $7.87 | $7.83 | $0.00 | $0.00 | $15.70 | $0.00 |
| 2024 | 8453 | CONSERVE - CONSERVATION FUTURES | $0.24 | $0.23 | $0.00 | $0.00 | $0.47 | $0.00 |
| 2024 | 8453 | COROADS - COUNTY ROADS (ROADS, DIV TO CE) | $6.32 | $6.31 | $0.00 | $0.00 | $12.63 | $0.00 |
| 2024 | 8453 | PORTPT - PORT DISTRICT | $3.24 | $3.24 | $0.00 | $0.00 | $6.48 | $0.00 |
| 2024 | 8453 | PUD1 - PUD #1 | $0.52 | $0.51 | $0.00 | $0.00 | $1.03 | $0.00 |
| 2024 | 8453 | LIB1 - LIBRARY DIST #1 | $2.45 | $2.44 | $0.00 | $0.00 | $4.89 | $0.00 |
| 2024 | 8453 | HD1 - HOSP DIST #1 | $4.66 | $4.66 | $0.00 | $0.00 | $9.32 | $0.00 |
| 2024 | 8453 | SD402 - SCHOOL DIST #402 | $16.29 | $16.28 | $0.00 | $0.00 | $32.57 | $0.00 |
| 2024 | 8453 | FP - DNR Forest Fire Protection Assmt | $44.95 | $44.95 | $0.00 | $0.00 | $89.90 | $0.00 |
| 2024 | 8453 | FPLCA - DNR Landowner Contingency Assmt | $23.25 | $23.25 | $0.00 | $0.00 | $46.50 | $0.00 |
| 2024 | 8453 | NWA - Noxious Weed Assessment | $5.00 | $5.00 | $0.00 | $0.00 | $10.00 | $0.00 |
| 2024 | 8453 | FP ADMIN - FP ADMIN | $0.50 | $0.00 | $0.00 | $0.00 | $0.50 | $0.00 |
| 2024 | 8453 | TOTAL: | $133.64 | $133.03 | $0.00 | $0.00 | $266.67 | $0.00 |
|
| 2024 | 8453 | $133.64 | $133.03 | $0.00 | $0.00 | $266.67 | $0.00 |
Statement Details |
| 2023 | 8470 | STATE - STATE LEVY (SCHOOL) | $18.19 | $18.17 | $0.00 | $0.00 | $36.36 | $0.00 |
| 2023 | 8470 | COUNTY - COUNTY LEVIES (CE, DD, VET, MH) | $7.95 | $7.91 | $0.00 | $0.00 | $15.86 | $0.00 |
| 2023 | 8470 | CONSERVE - CONSERVATION FUTURES | $0.24 | $0.24 | $0.00 | $0.00 | $0.48 | $0.00 |
| 2023 | 8470 | COROADS - COUNTY ROADS (ROADS, DIV TO CE) | $6.43 | $6.41 | $0.00 | $0.00 | $12.84 | $0.00 |
| 2023 | 8470 | PORTPT - PORT DISTRICT | $3.34 | $3.34 | $0.00 | $0.00 | $6.68 | $0.00 |
| 2023 | 8470 | PUD1 - PUD #1 | $0.53 | $0.52 | $0.00 | $0.00 | $1.05 | $0.00 |
| 2023 | 8470 | LIB1 - LIBRARY DIST #1 | $2.49 | $2.48 | $0.00 | $0.00 | $4.97 | $0.00 |
| 2023 | 8470 | HD1 - HOSP DIST #1 | $4.58 | $4.58 | $0.00 | $0.00 | $9.16 | $0.00 |
| 2023 | 8470 | SD402 - SCHOOL DIST #402 | $17.84 | $17.84 | $0.00 | $0.00 | $35.68 | $0.00 |
| 2023 | 8470 | FP - DNR Forest Fire Protection Assmt | $44.95 | $44.95 | $0.00 | $0.00 | $89.90 | $0.00 |
| 2023 | 8470 | FPLCA - DNR Landowner Contingency Assmt | $23.25 | $23.25 | $0.00 | $0.00 | $46.50 | $0.00 |
| 2023 | 8470 | NWA - Noxious Weed Assessment | $5.00 | $5.00 | $0.00 | $0.00 | $10.00 | $0.00 |
| 2023 | 8470 | FP ADMIN - FP ADMIN | $0.50 | $0.00 | $0.00 | $0.00 | $0.50 | $0.00 |
| 2023 | 8470 | TOTAL: | $135.29 | $134.69 | $0.00 | $0.00 | $269.98 | $0.00 |
|
| 2023 | 8470 | $135.29 | $134.69 | $0.00 | $0.00 | $269.98 | $0.00 |
Values
| (+) Improvement Homesite Value: | + | $0 | |
| (+) Improvement Non-Homesite Value: | + | $0 | |
| (+) Land Homesite Value: | + | $0 | |
| (+) Land Non-Homesite Value: | + | $0 | |
| (+) Curr Use (HS): | + | $0 | $0 |
| (+) Curr Use (NHS): | + | $288,000 | $16,173 |
| | | -------------------------- | |
| (=) Market Value: | = | $288,000 | |
| (–) Productivity Loss: | – | $271,827 | |
| | | -------------------------- | |
| (=) Subtotal: | = | $16,173 | |
| (+) Senior Appraised Value: | + | $0 | |
| (+) Non-Senior Appraised Value: | + | $16,173 | |
| | | -------------------------- | |
| (=) Total Appraised Value: | = | $16,173 | |
| (–) Senior Exemption Loss: | – | $0 | |
| (–) Exemption Loss: | – | $0 | |
| | | -------------------------- | |
| (=) Taxable Value: | = | $16,173 | |
Taxing Jurisdiction
| Owner: | ECOTRUST FORESTS III LLC | | |
| % Ownership: | 100.0000000000% | | |
| Total Value: | $288,000 | | |
| Tax Area: | 0601 - 1-402H1L1 |
| CE | COUNTY CURRENT EXPENSE | 0.9034619479 | $16,173 | $16,173 | $14.61 | | |
| CNTYDD | DEVELOPMENTAL DISABILITIES | 0.0052121823 | $16,173 | $16,173 | $0.08 | | |
| CNTYVET | VETERANS RELIEF | 0.0052777810 | $16,173 | $16,173 | $0.09 | | |
| MENTAL | MENTAL HEALTH | 0.0052121823 | $16,173 | $16,173 | $0.08 | | |
| ROADS | COUNTY ROADS | 0.7415066410 | $16,173 | $16,173 | $11.99 | | |
| ROADSCU | COUNTY ROADS TO CUR EXP | 0.0000000000 | $16,173 | $16,173 | $0.00 | | |
| HOS1GEN | HOSP DIST #1 GENERAL | 0.5503668747 | $16,173 | $16,173 | $8.90 | | |
| SCH402BOND | SCHOOL DIST #402 BOND | 1.2974778650 | $16,173 | $16,173 | $20.98 | | |
| SCH402MO | SCHOOL DIST #402 EP & O | 1.5579855743 | $16,173 | $16,173 | $25.20 | | |
| CONSERVE | CONSERVATION FUTURES | 0.0275621078 | $16,173 | $16,173 | $0.45 | | |
| LIB1 | LIBRARY DIST #1 GENERAL | 0.2868827388 | $16,173 | $16,173 | $4.64 | | |
| PORTPT | PORT OF PT GENERAL | 0.1134941229 | $16,173 | $16,173 | $1.84 | | |
| PORTPTIDD | PORT OF PT IDD 2019 | 0.2577346692 | $16,173 | $16,173 | $4.17 | | |
| PUD1 | PUD #1 GENERAL | 0.0597888892 | $16,173 | $16,173 | $0.97 | | |
| STATE | STATE SCHOOL PART 1 | 1.4940692947 | $16,173 | $16,173 | $24.16 | | |
| STATE2 | STATE SCHOOL PART 2 | 0.8050170049 | $16,173 | $16,173 | $13.02 | | |
| | Total Tax Rate: | 8.1110498760 | | | | | |
| | | | | Taxes w/Current Exemptions: | $131.18 | | |
| | | | | Taxes w/o Exemptions: | $131.18 | | |
Improvement / Building
Sketch
| No sketches available for this property. |
Property Image
Land
| 1 | WEST-1985A | | 29.9300 | 1303750.80 | 0.00 | 0.00 | 0.00 | $26,937 | $4,280 |
| 2 | WEST-1985A | | 290.0700 | 12635449.20 | 0.00 | 0.00 | 0.00 | $261,063 | $11,893 |
Roll Value History
| 2026 | N/A | N/A | N/A | N/A | N/A |
| 2025 | $0 | $288,000 | $16,173 | $16,173 | $16,173 |
| 2024 | $0 | $288,000 | $16,203 | $16,203 | $16,203 |
| 2023 | $0 | $256,000 | $15,853 | $15,853 | $15,853 |
| 2022 | $0 | $256,000 | $15,443 | $15,443 | $15,443 |
Deed and Sales History
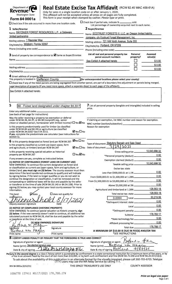
| 1 | 07/29/2021 | BSD | Bargain and Sale Deed | RAYONIER FOREST RESOURCES LP | ECOTRUST FORESTS III LLC | | | $10,043,998.00 | 137411 | |
|   | |
| 2 | 08/02/2013 | SWD | Statutory Warranty Deed | | | | | | 120093 | |
| 3 | 08/04/2013 | BSD | Bargain and Sale Deed | RAYONIER TMBLND OPER CO L P | TIMBERLANDS HOLDING COMPANY WASHINGTON INC | | | | 119758 | |
Payout Agreement
| No payout information available.. |