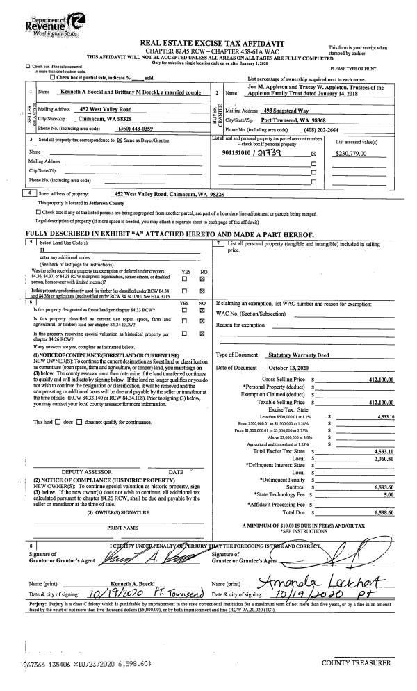
Property
Account |
| Property ID: | 18952 | Abbreviated Legal Description: | GOLDMAN SHORT PLAT LOT 2 |
| Parcel # / Geo ID: | 713014007 | Agent Code: | |
| Type: | Real | | |
| Tax Area: | 0691 - 1-402F9H1L1 | Land Use Code | 11 |
| Open Space: | N | DFL | N |
| Historic Property: | N | Remodel Property: | N |
| Multi-Family Redevelopment: | N | | |
| Township: | 27N | Section: | 1 |
| Range: | 13W |
Location |
| Address: | 3386 UNDIE RD FORKS, WA 98331 | Mapsco: | 934/042 |
| Neighborhood: | S1-S25 T27N R13W /BRANDEBERRY,BROWN,GILES,GOLDMAN SHT PLTS | Map ID: | |
| Neighborhood CD: | 1745 |
Owner |
| Name: | CLIFFORD A GOODMAN | Owner ID: | 104601 |
| Mailing Address: | 900 LENORA ST UNIT 1 SEATTLE, WA 98121-2720 | % Ownership: | 100.0000000000% |
| | | Exemptions: | |
Pay Tax Due
Select the appropriate checkbox next to the year to be paid. Multiple years may be selected.
*Convenience Fee not included
Taxes and Assessment Details
Property Tax Information as of
03/10/2026
Click on "Statement Details" to expand or collapse a tax statement.
* Please enter a valid date ** Please enter a valid date *
Statement Details |
| 2026 | 8475 | STATE - STATE LEVY (SCHOOL) | $300.59 | $300.58 | $0.00 | $0.00 | $0.00 | $601.17 |
| 2026 | 8475 | COUNTY - COUNTY LEVIES (CE, DD, VET, MH) | $120.17 | $120.17 | $0.00 | $0.00 | $0.00 | $240.34 |
| 2026 | 8475 | CONSERVE - CONSERVATION FUTURES | $3.61 | $3.60 | $0.00 | $0.00 | $0.00 | $7.21 |
| 2026 | 8475 | COROADS - COUNTY ROADS (ROADS, DIV TO CE) | $96.95 | $96.94 | $0.00 | $0.00 | $0.00 | $193.89 |
| 2026 | 8475 | PORTPT - PORT DISTRICT | $48.54 | $48.53 | $0.00 | $0.00 | $0.00 | $97.07 |
| 2026 | 8475 | PUD1 - PUD #1 | $7.82 | $7.81 | $0.00 | $0.00 | $0.00 | $15.63 |
| 2026 | 8475 | LIB1 - LIBRARY DIST #1 | $37.51 | $37.50 | $0.00 | $0.00 | $0.00 | $75.01 |
| 2026 | 8475 | HD1 - HOSP DIST #1 | $71.96 | $71.95 | $0.00 | $0.00 | $0.00 | $143.91 |
| 2026 | 8475 | SD402 - SCHOOL DIST #402 | $373.32 | $373.32 | $0.00 | $0.00 | $0.00 | $746.64 |
| 2026 | 8475 | FD9 - FIRE DISTRICT #9 | $59.82 | $59.82 | $0.00 | $0.00 | $0.00 | $119.64 |
| 2026 | 8475 | FP - DNR Forest Fire Protection Assmt | $8.50 | $8.50 | $0.00 | $0.00 | $0.00 | $17.00 |
| 2026 | 8475 | FPLCA - DNR Landowner Contingency Assmt | $3.00 | $3.00 | $0.00 | $0.00 | $0.00 | $6.00 |
| 2026 | 8475 | JCCD - JC Conservation District | $2.75 | $2.75 | $0.00 | $0.00 | $0.00 | $5.50 |
| 2026 | 8475 | NWA - Noxious Weed Assessment | $3.88 | $3.87 | $0.00 | $0.00 | $0.00 | $7.75 |
| 2026 | 8475 | OSS - On Site Septic | $23.10 | $23.10 | $0.00 | $0.00 | $0.00 | $46.20 |
| 2026 | 8475 | FP ADMIN - FP ADMIN | $0.50 | $0.00 | $0.00 | $0.00 | $0.00 | $0.50 |
| 2026 | 8475 | TOTAL: | $1162.02 | $1161.44 | $0.00 | $0.00 | $0.00 | $2323.46 |
|
| 2026 | 8475 | $1162.02 | $1161.44 | $0.00 | $0.00 | $0.00 | $2323.46 |
Statement Details |
| 2025 | 8496 | STATE - STATE LEVY (SCHOOL) | $313.52 | $313.51 | $0.00 | $11.75 | $313.52 | $325.26 |
| 2025 | 8496 | COUNTY - COUNTY LEVIES (CE, DD, VET, MH) | $123.30 | $123.29 | $0.00 | $4.63 | $123.30 | $127.92 |
| 2025 | 8496 | CONSERVE - CONSERVATION FUTURES | $3.70 | $3.69 | $0.00 | $0.14 | $3.70 | $3.83 |
| 2025 | 8496 | COROADS - COUNTY ROADS (ROADS, DIV TO CE) | $98.78 | $98.77 | $0.00 | $3.70 | $98.78 | $102.47 |
| 2025 | 8496 | PORTPT - PORT DISTRICT | $50.32 | $50.30 | $0.00 | $1.89 | $50.32 | $52.19 |
| 2025 | 8496 | PUD1 - PUD #1 | $8.07 | $8.06 | $0.00 | $0.30 | $8.07 | $8.36 |
| 2025 | 8496 | LIB1 - LIBRARY DIST #1 | $38.22 | $38.21 | $0.00 | $1.43 | $38.22 | $39.64 |
| 2025 | 8496 | HD1 - HOSP DIST #1 | $73.80 | $73.79 | $0.00 | $2.77 | $73.80 | $76.56 |
| 2025 | 8496 | SD402 - SCHOOL DIST #402 | $284.84 | $284.84 | $0.00 | $10.69 | $284.84 | $295.53 |
| 2025 | 8496 | FD9 - FIRE DISTRICT #9 | $61.53 | $61.52 | $0.00 | $2.31 | $61.53 | $63.83 |
| 2025 | 8496 | FP - DNR Forest Fire Protection Assmt | $8.50 | $8.50 | $0.00 | $0.32 | $8.50 | $8.82 |
| 2025 | 8496 | FPLCA - DNR Landowner Contingency Assmt | $3.00 | $3.00 | $0.00 | $0.11 | $3.00 | $3.11 |
| 2025 | 8496 | JCCD - JC Conservation District | $2.75 | $2.75 | $0.00 | $0.10 | $2.75 | $2.85 |
| 2025 | 8496 | NWA - Noxious Weed Assessment | $2.75 | $2.75 | $0.00 | $0.10 | $2.75 | $2.85 |
| 2025 | 8496 | OSS - On Site Septic | $21.50 | $21.50 | $0.00 | $0.81 | $21.50 | $22.31 |
| 2025 | 8496 | FP ADMIN - FP ADMIN | $0.50 | $0.00 | $0.00 | $0.00 | $0.50 | $0.00 |
| 2025 | 8496 | TOTAL: | $1095.08 | $1094.48 | $0.00 | $41.05 | $1095.08 | $1135.53 |
|
| 2025 | 8496 | $1095.08 | $1094.48 | $0.00 | $41.05 | $1095.08 | $1135.53 |
Statement Details |
| 2024 | 8520 | STATE - STATE LEVY (SCHOOL) | $291.63 | $291.61 | $0.00 | $0.00 | $583.24 | $0.00 |
| 2024 | 8520 | COUNTY - COUNTY LEVIES (CE, DD, VET, MH) | $124.81 | $124.77 | $0.00 | $0.00 | $249.58 | $0.00 |
| 2024 | 8520 | CONSERVE - CONSERVATION FUTURES | $3.74 | $3.74 | $0.00 | $0.00 | $7.48 | $0.00 |
| 2024 | 8520 | COROADS - COUNTY ROADS (ROADS, DIV TO CE) | $100.42 | $100.41 | $0.00 | $0.00 | $200.83 | $0.00 |
| 2024 | 8520 | PORTPT - PORT DISTRICT | $51.55 | $51.54 | $0.00 | $0.00 | $103.09 | $0.00 |
| 2024 | 8520 | PUD1 - PUD #1 | $8.20 | $8.19 | $0.00 | $0.00 | $16.39 | $0.00 |
| 2024 | 8520 | LIB1 - LIBRARY DIST #1 | $38.85 | $38.85 | $0.00 | $0.00 | $77.70 | $0.00 |
| 2024 | 8520 | HD1 - HOSP DIST #1 | $74.14 | $74.13 | $0.00 | $0.00 | $148.27 | $0.00 |
| 2024 | 8520 | SD402 - SCHOOL DIST #402 | $259.00 | $258.99 | $0.00 | $0.00 | $517.99 | $0.00 |
| 2024 | 8520 | FD9 - FIRE DISTRICT #9 | $60.38 | $60.38 | $0.00 | $0.00 | $120.76 | $0.00 |
| 2024 | 8520 | FP - DNR Forest Fire Protection Assmt | $8.50 | $8.50 | $0.00 | $0.00 | $17.00 | $0.00 |
| 2024 | 8520 | FPLCA - DNR Landowner Contingency Assmt | $3.00 | $3.00 | $0.00 | $0.00 | $6.00 | $0.00 |
| 2024 | 8520 | JCCD - JC Conservation District | $2.75 | $2.75 | $0.00 | $0.00 | $5.50 | $0.00 |
| 2024 | 8520 | NWA - Noxious Weed Assessment | $2.75 | $2.75 | $0.00 | $0.00 | $5.50 | $0.00 |
| 2024 | 8520 | FP ADMIN - FP ADMIN | $0.50 | $0.00 | $0.00 | $0.00 | $0.50 | $0.00 |
| 2024 | 8520 | TOTAL: | $1030.22 | $1029.61 | $0.00 | $0.00 | $2059.83 | $0.00 |
|
| 2024 | 8520 | $1030.22 | $1029.61 | $0.00 | $0.00 | $2059.83 | $0.00 |
Statement Details |
| 2023 | 8537 | STATE - STATE LEVY (SCHOOL) | $296.74 | $296.74 | $0.00 | $0.00 | $593.48 | $0.00 |
| 2023 | 8537 | COUNTY - COUNTY LEVIES (CE, DD, VET, MH) | $129.50 | $129.47 | $0.00 | $0.00 | $258.97 | $0.00 |
| 2023 | 8537 | CONSERVE - CONSERVATION FUTURES | $3.89 | $3.88 | $0.00 | $0.00 | $7.77 | $0.00 |
| 2023 | 8537 | COROADS - COUNTY ROADS (ROADS, DIV TO CE) | $104.77 | $104.76 | $0.00 | $0.00 | $209.53 | $0.00 |
| 2023 | 8537 | PORTPT - PORT DISTRICT | $54.55 | $54.55 | $0.00 | $0.00 | $109.10 | $0.00 |
| 2023 | 8537 | PUD1 - PUD #1 | $8.59 | $8.58 | $0.00 | $0.00 | $17.17 | $0.00 |
| 2023 | 8537 | LIB1 - LIBRARY DIST #1 | $40.53 | $40.53 | $0.00 | $0.00 | $81.06 | $0.00 |
| 2023 | 8537 | HD1 - HOSP DIST #1 | $74.75 | $74.75 | $0.00 | $0.00 | $149.50 | $0.00 |
| 2023 | 8537 | SD402 - SCHOOL DIST #402 | $291.20 | $291.19 | $0.00 | $0.00 | $582.39 | $0.00 |
| 2023 | 8537 | FD9 - FIRE DISTRICT #9 | $63.91 | $63.91 | $0.00 | $0.00 | $127.82 | $0.00 |
| 2023 | 8537 | FP - DNR Forest Fire Protection Assmt | $8.50 | $8.50 | $0.00 | $0.00 | $17.00 | $0.00 |
| 2023 | 8537 | FPLCA - DNR Landowner Contingency Assmt | $3.00 | $3.00 | $0.00 | $0.00 | $6.00 | $0.00 |
| 2023 | 8537 | JCCD - JC Conservation District | $2.75 | $2.75 | $0.00 | $0.00 | $5.50 | $0.00 |
| 2023 | 8537 | NWA - Noxious Weed Assessment | $2.75 | $2.75 | $0.00 | $0.00 | $5.50 | $0.00 |
| 2023 | 8537 | FP ADMIN - FP ADMIN | $0.50 | $0.00 | $0.00 | $0.00 | $0.50 | $0.00 |
| 2023 | 8537 | TOTAL: | $1085.93 | $1085.36 | $0.00 | $0.00 | $2171.29 | $0.00 |
|
| 2023 | 8537 | $1085.93 | $1085.36 | $0.00 | $0.00 | $2171.29 | $0.00 |
Values
| (+) Improvement Homesite Value: | + | $0 | |
| (+) Improvement Non-Homesite Value: | + | $170,705 | |
| (+) Land Homesite Value: | + | $0 | |
| (+) Land Non-Homesite Value: | + | $90,775 | |
| (+) Curr Use (HS): | + | $0 | $0 |
| (+) Curr Use (NHS): | + | $0 | $0 |
| | | -------------------------- | |
| (=) Market Value: | = | $261,480 | |
| (–) Productivity Loss: | – | $0 | |
| | | -------------------------- | |
| (=) Subtotal: | = | $261,480 | |
| (+) Senior Appraised Value: | + | $0 | |
| (+) Non-Senior Appraised Value: | + | $261,480 | |
| | | -------------------------- | |
| (=) Total Appraised Value: | = | $261,480 | |
| (–) Senior Exemption Loss: | – | $0 | |
| (–) Exemption Loss: | – | $0 | |
| | | -------------------------- | |
| (=) Taxable Value: | = | $261,480 | |
Taxing Jurisdiction
| Owner: | CLIFFORD A GOODMAN | | |
| % Ownership: | 100.0000000000% | | |
| Total Value: | $261,480 | | |
| Tax Area: | 0691 - 1-402F9H1L1 |
| CE | COUNTY CURRENT EXPENSE | 0.9034619479 | $261,480 | $261,480 | $236.24 | | |
| CNTYDD | DEVELOPMENTAL DISABILITIES | 0.0052121823 | $261,480 | $261,480 | $1.36 | | |
| CNTYVET | VETERANS RELIEF | 0.0052777810 | $261,480 | $261,480 | $1.38 | | |
| MENTAL | MENTAL HEALTH | 0.0052121823 | $261,480 | $261,480 | $1.36 | | |
| ROADS | COUNTY ROADS | 0.7415066410 | $261,480 | $261,480 | $193.89 | | |
| ROADSCU | COUNTY ROADS TO CUR EXP | 0.0000000000 | $261,480 | $261,480 | $0.00 | | |
| HOS1GEN | HOSP DIST #1 GENERAL | 0.5503668747 | $261,480 | $261,480 | $143.91 | | |
| SCH402BOND | SCHOOL DIST #402 BOND | 1.2974778650 | $261,480 | $261,480 | $339.26 | | |
| SCH402MO | SCHOOL DIST #402 EP & O | 1.5579855743 | $261,480 | $261,480 | $407.38 | | |
| CONSERVE | CONSERVATION FUTURES | 0.0275621078 | $261,480 | $261,480 | $7.21 | | |
| FD9 | FIRE DIST #9 GENERAL | 0.4575562199 | $261,480 | $261,480 | $119.64 | | |
| LIB1 | LIBRARY DIST #1 GENERAL | 0.2868827388 | $261,480 | $261,480 | $75.01 | | |
| PORTPT | PORT OF PT GENERAL | 0.1134941229 | $261,480 | $261,480 | $29.68 | | |
| PORTPTIDD | PORT OF PT IDD 2019 | 0.2577346692 | $261,480 | $261,480 | $67.39 | | |
| PUD1 | PUD #1 GENERAL | 0.0597888892 | $261,480 | $261,480 | $15.63 | | |
| STATE | STATE SCHOOL PART 1 | 1.4940692947 | $261,480 | $261,480 | $390.67 | | |
| STATE2 | STATE SCHOOL PART 2 | 0.8050170049 | $261,480 | $261,480 | $210.50 | | |
| | Total Tax Rate: | 8.5686060959 | | | | | |
| | | | | Taxes w/Current Exemptions: | $2,240.51 | | |
| | | | | Taxes w/o Exemptions: | $2,240.51 | | |
Improvement / Building
| Improvement #1: | Residential Bldg | State Code: | 11 | 864.0 sqft | Value: | $170,705 |
| Exterior Wall: | METAL | Floor Construction: | FRAME | | Foundation: | PO&BL | Roof Cover: | METAL |
|
| | Type | Description | Class CD | Sub Class CD | Year Built | Area |
| | MA | Main Area | 5 | 1S | 2004 | 864.0 |
| | HWPOR | House Wood Porch | 5 | * | 2004 | 192.0 |
| | HDECK | House Deck | 5 | * | 2004 | 888.0 |
| | HLOFT | House Loft | 5 | * | 2004 | 288.0 |
Sketch
Property Image
Land
| 1 | WEST-1325S | | 1.0000 | 43560.00 | 0.00 | 0.00 | 1.00 | $55,000 | $0 |
| 2 | WEST-1525A | | 3.1800 | 138520.80 | 0.00 | 0.00 | 0.00 | $35,775 | $0 |
Roll Value History
| 2026 | N/A | N/A | N/A | N/A | N/A |
| 2025 | $170,705 | $90,775 | $0 | $261,480 | $261,480 |
| 2024 | $170,705 | $90,775 | $0 | $261,480 | $261,480 |
| 2023 | $170,705 | $81,390 | $0 | $252,095 | $252,095 |
| 2022 | $170,705 | $81,390 | $0 | $252,095 | $252,095 |
Deed and Sales History
| 1 | 04/13/2021 | SWD | Statutory Warranty Deed | ED E CARRIERE | CLIFFORD A GOODMAN | | | $285,000.00 | 136560 | |
| 2 | 08/04/2020 | SWD | Statutory Warranty Deed | MARK GRAY & LAURA LILLY | ED E CARRIERE | | | $242,500.00 | 134817 | |
| 3 | 04/23/2015 | SWD | Statutory Warranty Deed | MELANIE J GUTHRIE | MARK GRAY & LAURA LILLY | | | $78,500.00 | 123138 | |
| 4 | 07/05/2001 | SWD | Statutory Warranty Deed | DEMATTIES, ALLISON/JOHN A | GUTHRIE, MELANIE J | 0 | 0 | $38,000.00 | 92603 | 0 |
| 5 | 09/14/1995 | QCD | Quit Claim Deed | DEMATTIES, CHRISTINE A | DEMATTIES, JOHN A | 0 | 0 | $0.00 | 77808 | 0 |
| 6 | 09/24/1993 | QCD | Quit Claim Deed | BECKTOLD, KIM M | BECKTOLD, KENNETH P | 0 | 0 | $0.00 | 72237 | 0 |
| 7 | 09/24/1993 | QCD | Quit Claim Deed | DE MATTEIS, CHRISTINE A | DE MATTEIS, JOHN A | 0 | 0 | $0.00 | 72238 | 0 |
| 8 | 09/17/1993 | WD | Warranty Deed | GOLDMAN, JOHN | BECKTOLD, K P/DE MATTEIS, J A | 0 | 0 | $40,000.00 | 72236 | 0 |
Payout Agreement
| No payout information available.. |