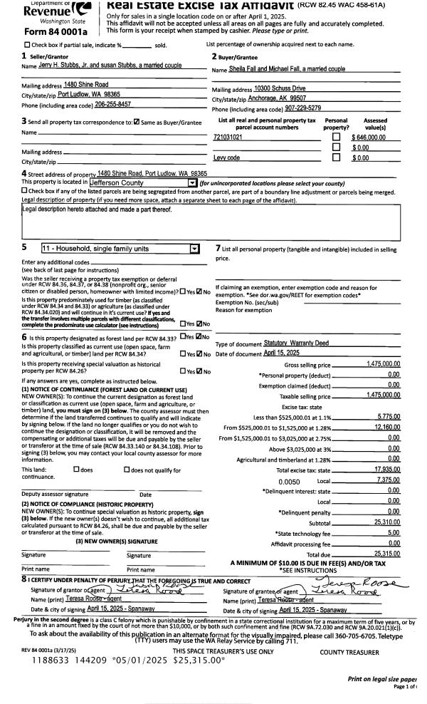
Property
Account |
| Property ID: | 19058 | Abbreviated Legal Description: | SQUAMISH HARBOR SHORT PLAT LOT 1 W/S TO EASE |
| Parcel # / Geo ID: | 721031021 | Agent Code: | |
| Type: | Real | | |
| Tax Area: | 0213 - 1-49F1E1H2L1 | Land Use Code | 11 |
| Open Space: | N | DFL | N |
| Historic Property: | N | Remodel Property: | N |
| Multi-Family Redevelopment: | N | | |
| Township: | 27N | Section: | 3 |
| Range: | 1E |
Location |
| Address: | 1480 SHINE RD PORT LUDLOW, WA 98365 | Mapsco: | 243/079 |
| Neighborhood: | S2 & S3 T27N R1E; SQUAMISH HARBOR & LONGMIRE SHORT PLATS | Map ID: | |
| Neighborhood CD: | 3410 |
Owner |
| Name: | SHEILA & MICHAEL FALL | Owner ID: | 112486 |
| Mailing Address: | 10300 SCHUSS DR ANCHORAGE, AK 99507-6282 | % Ownership: | 100.0000000000% |
| | | Exemptions: | |
Pay Tax Due
Select the appropriate checkbox next to the year to be paid. Multiple years may be selected.
*Convenience Fee not included
Taxes and Assessment Details
Property Tax Information as of
03/11/2026
Click on "Statement Details" to expand or collapse a tax statement.
* Please enter a valid date ** Please enter a valid date *
Statement Details |
| 2026 | 8581 | STATE - STATE LEVY (SCHOOL) | $1449.14 | $1449.13 | $0.00 | $0.00 | $0.00 | $2898.27 |
| 2026 | 8581 | COUNTY - COUNTY LEVIES (CE, DD, VET, MH) | $579.37 | $579.34 | $0.00 | $0.00 | $0.00 | $1158.71 |
| 2026 | 8581 | CONSERVE - CONSERVATION FUTURES | $17.38 | $17.37 | $0.00 | $0.00 | $0.00 | $34.75 |
| 2026 | 8581 | COROADS - COUNTY ROADS (ROADS, DIV TO CE) | $467.38 | $467.38 | $0.00 | $0.00 | $0.00 | $934.76 |
| 2026 | 8581 | PORTPT - PORT DISTRICT | $233.99 | $233.98 | $0.00 | $0.00 | $0.00 | $467.97 |
| 2026 | 8581 | PUD1 - PUD #1 | $37.69 | $37.68 | $0.00 | $0.00 | $0.00 | $75.37 |
| 2026 | 8581 | LIB1 - LIBRARY DIST #1 | $180.83 | $180.82 | $0.00 | $0.00 | $0.00 | $361.65 |
| 2026 | 8581 | HD2 - HOSP DIST #2 | $33.79 | $33.79 | $0.00 | $0.00 | $0.00 | $67.58 |
| 2026 | 8581 | SD49 - SCHOOL DIST #49 | $797.70 | $797.68 | $0.00 | $0.00 | $0.00 | $1595.38 |
| 2026 | 8581 | FD1 - FIRE DISTRICT #1 | $767.21 | $767.21 | $0.00 | $0.00 | $0.00 | $1534.42 |
| 2026 | 8581 | EMS1 - FIRE DIST #1 EMS | $294.98 | $294.98 | $0.00 | $0.00 | $0.00 | $589.96 |
| 2026 | 8581 | FP - DNR Forest Fire Protection Assmt | $8.50 | $8.50 | $0.00 | $0.00 | $0.00 | $17.00 |
| 2026 | 8581 | FPLCA - DNR Landowner Contingency Assmt | $3.00 | $3.00 | $0.00 | $0.00 | $0.00 | $6.00 |
| 2026 | 8581 | JCCD - JC Conservation District | $2.65 | $2.65 | $0.00 | $0.00 | $0.00 | $5.30 |
| 2026 | 8581 | NWA - Noxious Weed Assessment | $3.43 | $3.42 | $0.00 | $0.00 | $0.00 | $6.85 |
| 2026 | 8581 | OSS - On Site Septic | $23.10 | $23.10 | $0.00 | $0.00 | $0.00 | $46.20 |
| 2026 | 8581 | WAT - Clean Water District | $13.00 | $13.00 | $0.00 | $0.00 | $0.00 | $26.00 |
| 2026 | 8581 | FP ADMIN - FP ADMIN | $0.50 | $0.00 | $0.00 | $0.00 | $0.00 | $0.50 |
| 2026 | 8581 | TOTAL: | $4913.64 | $4913.03 | $0.00 | $0.00 | $0.00 | $9826.67 |
|
| 2026 | 8581 | $4913.64 | $4913.03 | $0.00 | $0.00 | $0.00 | $9826.67 |
Statement Details |
| 2025 | 8602 | STATE - STATE LEVY (SCHOOL) | $1120.37 | $1120.36 | $0.00 | $0.00 | $2240.73 | $0.00 |
| 2025 | 8602 | COUNTY - COUNTY LEVIES (CE, DD, VET, MH) | $440.60 | $440.56 | $0.00 | $0.00 | $881.16 | $0.00 |
| 2025 | 8602 | CONSERVE - CONSERVATION FUTURES | $13.21 | $13.21 | $0.00 | $0.00 | $26.42 | $0.00 |
| 2025 | 8602 | COROADS - COUNTY ROADS (ROADS, DIV TO CE) | $352.98 | $352.96 | $0.00 | $0.00 | $705.94 | $0.00 |
| 2025 | 8602 | PORTPT - PORT DISTRICT | $179.78 | $179.78 | $0.00 | $0.00 | $359.56 | $0.00 |
| 2025 | 8602 | PUD1 - PUD #1 | $28.83 | $28.83 | $0.00 | $0.00 | $57.66 | $0.00 |
| 2025 | 8602 | LIB1 - LIBRARY DIST #1 | $136.56 | $136.56 | $0.00 | $0.00 | $273.12 | $0.00 |
| 2025 | 8602 | HD2 - HOSP DIST #2 | $25.71 | $25.70 | $0.00 | $0.00 | $51.41 | $0.00 |
| 2025 | 8602 | SD49 - SCHOOL DIST #49 | $600.45 | $600.44 | $0.00 | $0.00 | $1200.89 | $0.00 |
| 2025 | 8602 | FD1 - FIRE DISTRICT #1 | $581.39 | $581.39 | $0.00 | $0.00 | $1162.78 | $0.00 |
| 2025 | 8602 | EMS1 - FIRE DIST #1 EMS | $223.62 | $223.61 | $0.00 | $0.00 | $447.23 | $0.00 |
| 2025 | 8602 | FP - DNR Forest Fire Protection Assmt | $8.50 | $8.50 | $0.00 | $0.00 | $17.00 | $0.00 |
| 2025 | 8602 | FPLCA - DNR Landowner Contingency Assmt | $3.00 | $3.00 | $0.00 | $0.00 | $6.00 | $0.00 |
| 2025 | 8602 | JCCD - JC Conservation District | $2.65 | $2.65 | $0.00 | $0.00 | $5.30 | $0.00 |
| 2025 | 8602 | NWA - Noxious Weed Assessment | $2.45 | $2.45 | $0.00 | $0.00 | $4.90 | $0.00 |
| 2025 | 8602 | OSS - On Site Septic | $21.50 | $21.50 | $0.00 | $0.00 | $43.00 | $0.00 |
| 2025 | 8602 | WAT - Clean Water District | $13.00 | $13.00 | $0.00 | $0.00 | $26.00 | $0.00 |
| 2025 | 8602 | FP ADMIN - FP ADMIN | $0.50 | $0.00 | $0.00 | $0.00 | $0.50 | $0.00 |
| 2025 | 8602 | TOTAL: | $3755.10 | $3754.50 | $0.00 | $0.00 | $7509.60 | $0.00 |
|
| 2025 | 8602 | $3755.10 | $3754.50 | $0.00 | $0.00 | $7509.60 | $0.00 |
Statement Details |
| 2024 | 8626 | STATE - STATE LEVY (SCHOOL) | $1075.14 | $1075.13 | $0.00 | $0.00 | $2150.27 | $0.00 |
| 2024 | 8626 | COUNTY - COUNTY LEVIES (CE, DD, VET, MH) | $460.07 | $460.06 | $0.00 | $0.00 | $920.13 | $0.00 |
| 2024 | 8626 | CONSERVE - CONSERVATION FUTURES | $13.80 | $13.79 | $0.00 | $0.00 | $27.59 | $0.00 |
| 2024 | 8626 | COROADS - COUNTY ROADS (ROADS, DIV TO CE) | $370.20 | $370.19 | $0.00 | $0.00 | $740.39 | $0.00 |
| 2024 | 8626 | PORTPT - PORT DISTRICT | $190.03 | $190.02 | $0.00 | $0.00 | $380.05 | $0.00 |
| 2024 | 8626 | PUD1 - PUD #1 | $30.22 | $30.22 | $0.00 | $0.00 | $60.44 | $0.00 |
| 2024 | 8626 | LIB1 - LIBRARY DIST #1 | $143.23 | $143.22 | $0.00 | $0.00 | $286.45 | $0.00 |
| 2024 | 8626 | HD2 - HOSP DIST #2 | $26.85 | $26.84 | $0.00 | $0.00 | $53.69 | $0.00 |
| 2024 | 8626 | SD49 - SCHOOL DIST #49 | $480.10 | $480.10 | $0.00 | $0.00 | $960.20 | $0.00 |
| 2024 | 8626 | FD1 - FIRE DISTRICT #1 | $608.31 | $608.31 | $0.00 | $0.00 | $1216.62 | $0.00 |
| 2024 | 8626 | EMS1 - FIRE DIST #1 EMS | $232.35 | $232.35 | $0.00 | $0.00 | $464.70 | $0.00 |
| 2024 | 8626 | FP - DNR Forest Fire Protection Assmt | $8.50 | $8.50 | $0.00 | $0.00 | $17.00 | $0.00 |
| 2024 | 8626 | FPLCA - DNR Landowner Contingency Assmt | $3.00 | $3.00 | $0.00 | $0.00 | $6.00 | $0.00 |
| 2024 | 8626 | JCCD - JC Conservation District | $2.65 | $2.65 | $0.00 | $0.00 | $5.30 | $0.00 |
| 2024 | 8626 | NWA - Noxious Weed Assessment | $2.45 | $2.45 | $0.00 | $0.00 | $4.90 | $0.00 |
| 2024 | 8626 | OSS - On Site Septic | $21.00 | $21.00 | $0.00 | $0.00 | $42.00 | $0.00 |
| 2024 | 8626 | WAT - Clean Water District | $12.50 | $12.50 | $0.00 | $0.00 | $25.00 | $0.00 |
| 2024 | 8626 | FP ADMIN - FP ADMIN | $0.50 | $0.00 | $0.00 | $0.00 | $0.50 | $0.00 |
| 2024 | 8626 | TOTAL: | $3680.90 | $3680.33 | $0.00 | $0.00 | $7361.23 | $0.00 |
|
| 2024 | 8626 | $3680.90 | $3680.33 | $0.00 | $0.00 | $7361.23 | $0.00 |
Statement Details |
| 2023 | 8643 | STATE - STATE LEVY (SCHOOL) | $1088.11 | $1088.09 | $0.00 | $0.00 | $2176.20 | $0.00 |
| 2023 | 8643 | COUNTY - COUNTY LEVIES (CE, DD, VET, MH) | $474.82 | $474.80 | $0.00 | $0.00 | $949.62 | $0.00 |
| 2023 | 8643 | CONSERVE - CONSERVATION FUTURES | $14.24 | $14.24 | $0.00 | $0.00 | $28.48 | $0.00 |
| 2023 | 8643 | COROADS - COUNTY ROADS (ROADS, DIV TO CE) | $384.16 | $384.15 | $0.00 | $0.00 | $768.31 | $0.00 |
| 2023 | 8643 | PORTPT - PORT DISTRICT | $200.02 | $200.01 | $0.00 | $0.00 | $400.03 | $0.00 |
| 2023 | 8643 | PUD1 - PUD #1 | $31.48 | $31.47 | $0.00 | $0.00 | $62.95 | $0.00 |
| 2023 | 8643 | LIB1 - LIBRARY DIST #1 | $148.63 | $148.62 | $0.00 | $0.00 | $297.25 | $0.00 |
| 2023 | 8643 | HD2 - HOSP DIST #2 | $27.71 | $27.70 | $0.00 | $0.00 | $55.41 | $0.00 |
| 2023 | 8643 | SD49 - SCHOOL DIST #49 | $508.63 | $508.62 | $0.00 | $0.00 | $1017.25 | $0.00 |
| 2023 | 8643 | FD3 - FIRE DISTRICT #3 | $472.37 | $472.37 | $0.00 | $0.00 | $944.74 | $0.00 |
| 2023 | 8643 | EMS3 - FIRE DIST #3 EMS | $168.88 | $168.87 | $0.00 | $0.00 | $337.75 | $0.00 |
| 2023 | 8643 | FP - DNR Forest Fire Protection Assmt | $8.50 | $8.50 | $0.00 | $0.00 | $17.00 | $0.00 |
| 2023 | 8643 | FPLCA - DNR Landowner Contingency Assmt | $3.00 | $3.00 | $0.00 | $0.00 | $6.00 | $0.00 |
| 2023 | 8643 | JCCD - JC Conservation District | $2.65 | $2.65 | $0.00 | $0.00 | $5.30 | $0.00 |
| 2023 | 8643 | NWA - Noxious Weed Assessment | $2.45 | $2.45 | $0.00 | $0.00 | $4.90 | $0.00 |
| 2023 | 8643 | OSS - On Site Septic | $20.50 | $20.50 | $0.00 | $0.00 | $41.00 | $0.00 |
| 2023 | 8643 | WAT - Clean Water District | $12.00 | $12.00 | $0.00 | $0.00 | $24.00 | $0.00 |
| 2023 | 8643 | FP ADMIN - FP ADMIN | $0.50 | $0.00 | $0.00 | $0.00 | $0.50 | $0.00 |
| 2023 | 8643 | TOTAL: | $3568.65 | $3568.04 | $0.00 | $0.00 | $7136.69 | $0.00 |
|
| 2023 | 8643 | $3568.65 | $3568.04 | $0.00 | $0.00 | $7136.69 | $0.00 |
Values
| (+) Improvement Homesite Value: | + | $0 | |
| (+) Improvement Non-Homesite Value: | + | $582,318 | |
| (+) Land Homesite Value: | + | $0 | |
| (+) Land Non-Homesite Value: | + | $678,300 | |
| (+) Curr Use (HS): | + | $0 | $0 |
| (+) Curr Use (NHS): | + | $0 | $0 |
| | | -------------------------- | |
| (=) Market Value: | = | $1,260,618 | |
| (–) Productivity Loss: | – | $0 | |
| | | -------------------------- | |
| (=) Subtotal: | = | $1,260,618 | |
| (+) Senior Appraised Value: | + | $0 | |
| (+) Non-Senior Appraised Value: | + | $1,260,618 | |
| | | -------------------------- | |
| (=) Total Appraised Value: | = | $1,260,618 | |
| (–) Senior Exemption Loss: | – | $0 | |
| (–) Exemption Loss: | – | $0 | |
| | | -------------------------- | |
| (=) Taxable Value: | = | $1,260,618 | |
Taxing Jurisdiction
| Owner: | SHEILA & MICHAEL FALL | | |
| % Ownership: | 100.0000000000% | | |
| Total Value: | $1,260,618 | | |
| Tax Area: | 0213 - 1-49F1E1H2L1 |
| CE | COUNTY CURRENT EXPENSE | 0.9034619479 | $1,260,618 | $1,260,618 | $1,138.92 | | |
| CNTYDD | DEVELOPMENTAL DISABILITIES | 0.0052121823 | $1,260,618 | $1,260,618 | $6.57 | | |
| CNTYVET | VETERANS RELIEF | 0.0052777810 | $1,260,618 | $1,260,618 | $6.65 | | |
| MENTAL | MENTAL HEALTH | 0.0052121823 | $1,260,618 | $1,260,618 | $6.57 | | |
| ROADS | COUNTY ROADS | 0.7415066410 | $1,260,618 | $1,260,618 | $934.76 | | |
| ROADSCU | COUNTY ROADS TO CUR EXP | 0.0000000000 | $1,260,618 | $1,260,618 | $0.00 | | |
| HOSP2CASH | HOSP DIST #2 GENERAL | 0.0536075306 | $1,260,618 | $1,260,618 | $67.58 | | |
| SCH49CP | SCHOOL DIST #49 CAP PROJ | 0.6279093905 | $1,260,618 | $1,260,618 | $791.55 | | |
| SCH49MO | SCHOOL DIST #49 EP & O | 0.6376483602 | $1,260,618 | $1,260,618 | $803.83 | | |
| CONSERVE | CONSERVATION FUTURES | 0.0275621078 | $1,260,618 | $1,260,618 | $34.75 | | |
| EMS1 | FIRE DIST #1 EMS | 0.4679948282 | $1,260,618 | $1,260,618 | $589.96 | | |
| FD1 | FIRE DIST #1 GENERAL | 1.2171942929 | $1,260,618 | $1,260,618 | $1,534.42 | | |
| LIB1 | LIBRARY DIST #1 GENERAL | 0.2868827388 | $1,260,618 | $1,260,618 | $361.65 | | |
| PORTPT | PORT OF PT GENERAL | 0.1134941229 | $1,260,618 | $1,260,618 | $143.07 | | |
| PORTPTIDD | PORT OF PT IDD 2019 | 0.2577346692 | $1,260,618 | $1,260,618 | $324.90 | | |
| PUD1 | PUD #1 GENERAL | 0.0597888892 | $1,260,618 | $1,260,618 | $75.37 | | |
| STATE | STATE SCHOOL PART 1 | 1.4940692947 | $1,260,618 | $1,260,618 | $1,883.45 | | |
| STATE2 | STATE SCHOOL PART 2 | 0.8050170049 | $1,260,618 | $1,260,618 | $1,014.82 | | |
| | Total Tax Rate: | 7.7095739644 | | | | | |
| | | | | Taxes w/Current Exemptions: | $9,718.82 | | |
| | | | | Taxes w/o Exemptions: | $9,718.82 | | |
Improvement / Building
| Improvement #1: | Residential Bldg | State Code: | 11 | 2020.0 sqft | Value: | $582,318 |
| Bathrooms (#): | 3 (FULL) | Bedrooms (#): | 3 | | Exterior Wall: | SI/ST | Fireplace: | WD ST-GOOD | | Floor Construction: | FRAME | Foundation: | CONPR | | Heating/Cooling: | HPUMP | Inside Verify: | NO | | Roof Cover: | COMP |   |   |
|
| | Type | Description | Class CD | Sub Class CD | Year Built | Area |
| | MA | Main Area | 5 | 15SF | 1982 | 1059.0 |
| | MA2 | Second Floor Main Area | 5 | 15SF | 1982 | 961.0 |
| | HWPOR | House Wood Porch | 5 | * | 1982 | 344.0 |
| | HDECK | House Deck | 5 | * | 1982 | 520.0 |
| | GBLTIN | Builtin Garage | 5 | * | 1982 | 588.0 |
| | OTHER | Other | 5 | * | 1982 | 0.0 |
| | CONCD | Concrete Drive | 5 | * | 1982 | 1100.0 |
Sketch
Property Image
Land
| 1 | 3410-1525F | | 0.0000 | 0.00 | 0.00 | 0.00 | 0.00 | $325,500 | $0 |
| 2 | 3410-1525F | | 0.0000 | 0.00 | 0.00 | 0.00 | 0.00 | $352,800 | $0 |
Roll Value History
| 2026 | N/A | N/A | N/A | N/A | N/A |
| 2025 | $582,318 | $678,300 | $0 | $1,260,618 | $1,260,618 |
| 2024 | $288,404 | $646,000 | $0 | $934,404 | $934,404 |
| 2023 | $288,404 | $641,000 | $0 | $929,404 | $929,404 |
| 2022 | $288,404 | $636,000 | $0 | $924,404 | $924,404 |
Deed and Sales History
| 1 | 04/05/2025 | SWD | Statutory Warranty Deed | JERRY H STUBBS JR | SHEILA & MICHAEL FALL | | | $1,475,000.00 | 144209 | |
| 2 | 07/06/2011 | QCD | Quit Claim Deed | KROUM, LESLIE ANN AKA HAN | STUGGS, JR., JERRY H | | | $250,000.00 | 116234 | 0 |
| 3 | 02/26/2008 | QCD | Quit Claim Deed | STUBBS, JR, JERRY H, KROU | STUBBS, JR, JERRY H, KROUM, LE | 0 | 0 | $0.00 | 110955 | 0 |
| 4 | 01/10/1992 | QCD | Quit Claim Deed | STUBBS, JERRY H | STUBBS, JERRY H, TRUSTEE | 0 | 0 | $0.00 | 67537 | 0 |
Payout Agreement
| No payout information available.. |