Property
Account |
| Property ID: | 19112 | Abbreviated Legal Description: | DEPUTY SHORT PLAT LOT 1 |
| Parcel # / Geo ID: | 721093027 | Agent Code: | |
| Type: | Real | | |
| Tax Area: | 0213 - 1-49F1E1H2L1 | Land Use Code | 11 |
| Open Space: | N | DFL | N |
| Historic Property: | N | Remodel Property: | N |
| Multi-Family Redevelopment: | N | | |
| Township: | 27N | Section: | 9 |
| Range: | 1E |
Location |
| Address: | 154 MAXVIEW DR PORT LUDLOW, WA 98365 | Mapsco: | 228/018 |
| Neighborhood: | S9 & S16 T27N R1E & OLYMPIC SHORES & ADMIRAL'S ROW | Map ID: | |
| Neighborhood CD: | 3425 |
Owner |
| Name: | GREGORY & DEANNA CHASE | Owner ID: | 105527 |
| Mailing Address: | 232 DECATUR ST APT 2D NEW ORLEANS, LA 70130-1050 | % Ownership: | 100.0000000000% |
| | | Exemptions: | |
Pay Tax Due
Select the appropriate checkbox next to the year to be paid. Multiple years may be selected.
*Convenience Fee not included
Taxes and Assessment Details
Property Tax Information as of
02/13/2026
Click on "Statement Details" to expand or collapse a tax statement.
* Please enter a valid date ** Please enter a valid date *
Statement Details |
| 2026 | 8635 | STATE - STATE LEVY (SCHOOL) | $1202.97 | $1202.96 | $0.00 | $0.00 | $0.00 | $2405.93 |
| 2026 | 8635 | COUNTY - COUNTY LEVIES (CE, DD, VET, MH) | $480.95 | $480.92 | $0.00 | $0.00 | $0.00 | $961.87 |
| 2026 | 8635 | CONSERVE - CONSERVATION FUTURES | $14.42 | $14.42 | $0.00 | $0.00 | $0.00 | $28.84 |
| 2026 | 8635 | COROADS - COUNTY ROADS (ROADS, DIV TO CE) | $387.98 | $387.98 | $0.00 | $0.00 | $0.00 | $775.96 |
| 2026 | 8635 | PORTPT - PORT DISTRICT | $194.25 | $194.23 | $0.00 | $0.00 | $0.00 | $388.48 |
| 2026 | 8635 | PUD1 - PUD #1 | $31.29 | $31.28 | $0.00 | $0.00 | $0.00 | $62.57 |
| 2026 | 8635 | LIB1 - LIBRARY DIST #1 | $150.11 | $150.10 | $0.00 | $0.00 | $0.00 | $300.21 |
| 2026 | 8635 | HD2 - HOSP DIST #2 | $28.05 | $28.05 | $0.00 | $0.00 | $0.00 | $56.10 |
| 2026 | 8635 | SD49 - SCHOOL DIST #49 | $662.19 | $662.18 | $0.00 | $0.00 | $0.00 | $1324.37 |
| 2026 | 8635 | FD1 - FIRE DISTRICT #1 | $636.88 | $636.88 | $0.00 | $0.00 | $0.00 | $1273.76 |
| 2026 | 8635 | EMS1 - FIRE DIST #1 EMS | $244.87 | $244.87 | $0.00 | $0.00 | $0.00 | $489.74 |
| 2026 | 8635 | FPLCA - DNR Landowner Contingency Assmt | $3.00 | $3.00 | $0.00 | $0.00 | $0.00 | $6.00 |
| 2026 | 8635 | JCCD - JC Conservation District | $2.55 | $2.55 | $0.00 | $0.00 | $0.00 | $5.10 |
| 2026 | 8635 | NWA - Noxious Weed Assessment | $2.98 | $2.97 | $0.00 | $0.00 | $0.00 | $5.95 |
| 2026 | 8635 | OSS - On Site Septic | $23.10 | $23.10 | $0.00 | $0.00 | $0.00 | $46.20 |
| 2026 | 8635 | WAT - Clean Water District | $13.00 | $13.00 | $0.00 | $0.00 | $0.00 | $26.00 |
| 2026 | 8635 | TOTAL: | $4078.59 | $4078.49 | $0.00 | $0.00 | $0.00 | $8157.08 |
|
| 2026 | 8635 | $4078.59 | $4078.49 | $0.00 | $0.00 | $0.00 | $8157.08 |
Statement Details |
| 2025 | 8656 | STATE - STATE LEVY (SCHOOL) | $1199.61 | $1199.60 | $0.00 | $0.00 | $2399.21 | $0.00 |
| 2025 | 8656 | COUNTY - COUNTY LEVIES (CE, DD, VET, MH) | $471.74 | $471.73 | $0.00 | $0.00 | $943.47 | $0.00 |
| 2025 | 8656 | CONSERVE - CONSERVATION FUTURES | $14.15 | $14.14 | $0.00 | $0.00 | $28.29 | $0.00 |
| 2025 | 8656 | COROADS - COUNTY ROADS (ROADS, DIV TO CE) | $377.94 | $377.93 | $0.00 | $0.00 | $755.87 | $0.00 |
| 2025 | 8656 | PORTPT - PORT DISTRICT | $192.50 | $192.50 | $0.00 | $0.00 | $385.00 | $0.00 |
| 2025 | 8656 | PUD1 - PUD #1 | $30.87 | $30.87 | $0.00 | $0.00 | $61.74 | $0.00 |
| 2025 | 8656 | LIB1 - LIBRARY DIST #1 | $146.22 | $146.22 | $0.00 | $0.00 | $292.44 | $0.00 |
| 2025 | 8656 | HD2 - HOSP DIST #2 | $27.52 | $27.52 | $0.00 | $0.00 | $55.04 | $0.00 |
| 2025 | 8656 | SD49 - SCHOOL DIST #49 | $642.92 | $642.90 | $0.00 | $0.00 | $1285.82 | $0.00 |
| 2025 | 8656 | FD1 - FIRE DISTRICT #1 | $622.51 | $622.51 | $0.00 | $0.00 | $1245.02 | $0.00 |
| 2025 | 8656 | EMS1 - FIRE DIST #1 EMS | $239.44 | $239.43 | $0.00 | $0.00 | $478.87 | $0.00 |
| 2025 | 8656 | FPLCA - DNR Landowner Contingency Assmt | $3.00 | $3.00 | $0.00 | $0.00 | $6.00 | $0.00 |
| 2025 | 8656 | JCCD - JC Conservation District | $2.55 | $2.55 | $0.00 | $0.00 | $5.10 | $0.00 |
| 2025 | 8656 | NWA - Noxious Weed Assessment | $2.15 | $2.15 | $0.00 | $0.00 | $4.30 | $0.00 |
| 2025 | 8656 | OSS - On Site Septic | $21.50 | $21.50 | $0.00 | $0.00 | $43.00 | $0.00 |
| 2025 | 8656 | WAT - Clean Water District | $13.00 | $13.00 | $0.00 | $0.00 | $26.00 | $0.00 |
| 2025 | 8656 | TOTAL: | $4007.62 | $4007.55 | $0.00 | $0.00 | $8015.17 | $0.00 |
|
| 2025 | 8656 | $4007.62 | $4007.55 | $0.00 | $0.00 | $8015.17 | $0.00 |
Statement Details |
| 2024 | 8680 | STATE - STATE LEVY (SCHOOL) | $1151.59 | $1151.58 | $0.00 | $0.00 | $2303.17 | $0.00 |
| 2024 | 8680 | COUNTY - COUNTY LEVIES (CE, DD, VET, MH) | $492.78 | $492.76 | $0.00 | $0.00 | $985.54 | $0.00 |
| 2024 | 8680 | CONSERVE - CONSERVATION FUTURES | $14.78 | $14.77 | $0.00 | $0.00 | $29.55 | $0.00 |
| 2024 | 8680 | COROADS - COUNTY ROADS (ROADS, DIV TO CE) | $396.52 | $396.52 | $0.00 | $0.00 | $793.04 | $0.00 |
| 2024 | 8680 | PORTPT - PORT DISTRICT | $203.54 | $203.53 | $0.00 | $0.00 | $407.07 | $0.00 |
| 2024 | 8680 | PUD1 - PUD #1 | $32.37 | $32.36 | $0.00 | $0.00 | $64.73 | $0.00 |
| 2024 | 8680 | LIB1 - LIBRARY DIST #1 | $153.41 | $153.41 | $0.00 | $0.00 | $306.82 | $0.00 |
| 2024 | 8680 | HD2 - HOSP DIST #2 | $28.75 | $28.75 | $0.00 | $0.00 | $57.50 | $0.00 |
| 2024 | 8680 | SD49 - SCHOOL DIST #49 | $514.24 | $514.23 | $0.00 | $0.00 | $1028.47 | $0.00 |
| 2024 | 8680 | FD1 - FIRE DISTRICT #1 | $651.57 | $651.56 | $0.00 | $0.00 | $1303.13 | $0.00 |
| 2024 | 8680 | EMS1 - FIRE DIST #1 EMS | $248.88 | $248.87 | $0.00 | $0.00 | $497.75 | $0.00 |
| 2024 | 8680 | JCCD - JC Conservation District | $2.55 | $2.55 | $0.00 | $0.00 | $5.10 | $0.00 |
| 2024 | 8680 | NWA - Noxious Weed Assessment | $2.15 | $2.15 | $0.00 | $0.00 | $4.30 | $0.00 |
| 2024 | 8680 | OSS - On Site Septic | $21.00 | $21.00 | $0.00 | $0.00 | $42.00 | $0.00 |
| 2024 | 8680 | WAT - Clean Water District | $12.50 | $12.50 | $0.00 | $0.00 | $25.00 | $0.00 |
| 2024 | 8680 | TOTAL: | $3926.63 | $3926.54 | $0.00 | $0.00 | $7853.17 | $0.00 |
|
| 2024 | 8680 | $3926.63 | $3926.54 | $0.00 | $0.00 | $7853.17 | $0.00 |
Statement Details |
| 2023 | 8697 | STATE - STATE LEVY (SCHOOL) | $1118.25 | $1118.24 | $0.00 | $0.00 | $2236.49 | $0.00 |
| 2023 | 8697 | COUNTY - COUNTY LEVIES (CE, DD, VET, MH) | $487.97 | $487.96 | $0.00 | $0.00 | $975.93 | $0.00 |
| 2023 | 8697 | CONSERVE - CONSERVATION FUTURES | $14.63 | $14.63 | $0.00 | $0.00 | $29.26 | $0.00 |
| 2023 | 8697 | COROADS - COUNTY ROADS (ROADS, DIV TO CE) | $394.81 | $394.79 | $0.00 | $0.00 | $789.60 | $0.00 |
| 2023 | 8697 | PORTPT - PORT DISTRICT | $205.56 | $205.55 | $0.00 | $0.00 | $411.11 | $0.00 |
| 2023 | 8697 | PUD1 - PUD #1 | $32.35 | $32.34 | $0.00 | $0.00 | $64.69 | $0.00 |
| 2023 | 8697 | LIB1 - LIBRARY DIST #1 | $152.75 | $152.74 | $0.00 | $0.00 | $305.49 | $0.00 |
| 2023 | 8697 | HD2 - HOSP DIST #2 | $28.49 | $28.47 | $0.00 | $0.00 | $56.96 | $0.00 |
| 2023 | 8697 | SD49 - SCHOOL DIST #49 | $522.72 | $522.71 | $0.00 | $0.00 | $1045.43 | $0.00 |
| 2023 | 8697 | FD3 - FIRE DISTRICT #3 | $485.46 | $485.46 | $0.00 | $0.00 | $970.92 | $0.00 |
| 2023 | 8697 | EMS3 - FIRE DIST #3 EMS | $173.55 | $173.55 | $0.00 | $0.00 | $347.10 | $0.00 |
| 2023 | 8697 | JCCD - JC Conservation District | $2.55 | $2.55 | $0.00 | $0.00 | $5.10 | $0.00 |
| 2023 | 8697 | NWA - Noxious Weed Assessment | $2.15 | $2.15 | $0.00 | $0.00 | $4.30 | $0.00 |
| 2023 | 8697 | OSS - On Site Septic | $20.50 | $20.50 | $0.00 | $0.00 | $41.00 | $0.00 |
| 2023 | 8697 | WAT - Clean Water District | $12.00 | $12.00 | $0.00 | $0.00 | $24.00 | $0.00 |
| 2023 | 8697 | TOTAL: | $3653.74 | $3653.64 | $0.00 | $0.00 | $7307.38 | $0.00 |
|
| 2023 | 8697 | $3653.74 | $3653.64 | $0.00 | $0.00 | $7307.38 | $0.00 |
Values
| (+) Improvement Homesite Value: | + | $0 | |
| (+) Improvement Non-Homesite Value: | + | $930,970 | |
| (+) Land Homesite Value: | + | $0 | |
| (+) Land Non-Homesite Value: | + | $115,500 | |
| (+) Curr Use (HS): | + | $0 | $0 |
| (+) Curr Use (NHS): | + | $0 | $0 |
| | | -------------------------- | |
| (=) Market Value: | = | $1,046,470 | |
| (–) Productivity Loss: | – | $0 | |
| | | -------------------------- | |
| (=) Subtotal: | = | $1,046,470 | |
| (+) Senior Appraised Value: | + | $0 | |
| (+) Non-Senior Appraised Value: | + | $1,046,470 | |
| | | -------------------------- | |
| (=) Total Appraised Value: | = | $1,046,470 | |
| (–) Senior Exemption Loss: | – | $0 | |
| (–) Exemption Loss: | – | $0 | |
| | | -------------------------- | |
| (=) Taxable Value: | = | $1,046,470 | |
Taxing Jurisdiction
| Owner: | GREGORY & DEANNA CHASE | | |
| % Ownership: | 100.0000000000% | | |
| Total Value: | N/A | | |
| Tax Area: | 0213 - 1-49F1E1H2L1 |
| CE | COUNTY CURRENT EXPENSE | N/A | N/A | N/A | N/A | | |
| CNTYDD | DEVELOPMENTAL DISABILITIES | N/A | N/A | N/A | N/A | | |
| CNTYVET | VETERANS RELIEF | N/A | N/A | N/A | N/A | | |
| MENTAL | MENTAL HEALTH | N/A | N/A | N/A | N/A | | |
| ROADS | COUNTY ROADS | N/A | N/A | N/A | N/A | | |
| HOSP2CASH | HOSP DIST #2 GENERAL | N/A | N/A | N/A | N/A | | |
| SCH49CP | SCHOOL DIST #49 CAP PROJ | N/A | N/A | N/A | N/A | | |
| SCH49MO | SCHOOL DIST #49 EP & O | N/A | N/A | N/A | N/A | | |
| CONSERVE | CONSERVATION FUTURES | N/A | N/A | N/A | N/A | | |
| EMS1 | FIRE DIST #1 EMS | N/A | N/A | N/A | N/A | | |
| FD1 | FIRE DIST #1 GENERAL | N/A | N/A | N/A | N/A | | |
| LIB1 | LIBRARY DIST #1 GENERAL | N/A | N/A | N/A | N/A | | |
| PORTPT | PORT OF PT GENERAL | N/A | N/A | N/A | N/A | | |
| PORTPTIDD | PORT OF PT IDD 2019 | N/A | N/A | N/A | N/A | | |
| PUD1 | PUD #1 GENERAL | N/A | N/A | N/A | N/A | | |
| STATE | STATE SCHOOL PART 1 | N/A | N/A | N/A | N/A | | |
| STATE2 | STATE SCHOOL PART 2 | N/A | N/A | N/A | N/A | | |
| | Total Tax Rate: | N/A | | | | | |
| | | | | Taxes w/Current Exemptions: | N/A | | |
| | | | | Taxes w/o Exemptions: | N/A | | |
Improvement / Building
| Improvement #1: | Residential Bldg | State Code: | 11 | 3361.0 sqft | Value: | $930,970 |
| Bathrooms (#): | 3 (FULL) | Bedrooms (#): | 3 | | Exterior Wall: | PL/T1 | Fireplace: | SIN 1-GOOD | | Floor Construction: | FRAME | Foundation: | CONPR | | Heating/Cooling: | HPUMP | Inside Verify: | YES | | Roof Cover: | TILE |   |   |
|
| | Type | Description | Class CD | Sub Class CD | Year Built | Area |
| | MA | Main Area | 5+ | 1S | 1992 | 3361.0 |
| | PATIO | House Patio | 5 | * | 1992 | 1990.0 |
| | GATT | House Attached Garage | 4 | * | 1992 | 891.0 |
| | SHED | Shed (Table Not Dep) | 4 | * | 1992 | 200.0 |
Sketch
| No sketches available for this property. |
Property Image
Land
| 1 | 3425-1345S | | 0.0000 | 0.00 | 0.00 | 0.00 | 1.00 | $115,500 | $0 |
Roll Value History
| 2026 | N/A | N/A | N/A | N/A | N/A |
| 2025 | $930,970 | $115,500 | $0 | $1,046,470 | $1,046,470 |
| 2024 | $890,493 | $110,000 | $0 | $1,000,493 | $1,000,493 |
| 2023 | $890,493 | $105,000 | $0 | $995,493 | $995,493 |
| 2022 | $850,016 | $100,000 | $0 | $950,016 | $950,016 |
Deed and Sales History
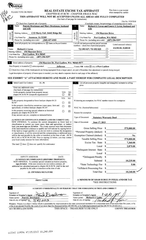
| 1 | 09/07/2021 | SWD | Statutory Warranty Deed | RICHARD J & LAURA J LOVAS | GREGORY & DEANNA CHASE | | | $1,064,000.00 | 137573 | |
|   | |
| 2 | 06/17/2013 | SWD | Statutory Warranty Deed | | RICHARD J & LAURA J LOVAS | | | $575,000.00 | 119596 | |
|   | |
| 3 | 04/01/2004 | SWD | Statutory Warranty Deed | MATHURIN, EDWARD L/MYRTLE | DRECKMAN, PATRICK/MARY | 0 | 0 | $0.00 | 99877 | 0 |
Payout Agreement
| No payout information available.. |