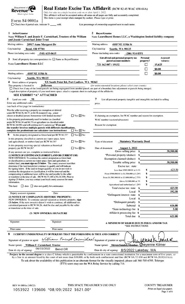
Property
Account |
| Property ID: | 19132 | Abbreviated Legal Description: | S16 T27 R1E TAX 6 & TLS FRTG |
| Parcel # / Geo ID: | 721162007 | Agent Code: | |
| Type: | Real | | |
| Tax Area: | 0213 - 1-49F1E1H2L1 | Land Use Code | 91 |
| Open Space: | N | DFL | N |
| Historic Property: | N | Remodel Property: | N |
| Multi-Family Redevelopment: | N | | |
| Township: | 27N | Section: | 16 |
| Range: | 1E |
Location |
| Address: | 2617 SOUTH POINT RD PORT LUDLOW, WA 98365 | Mapsco: | 147/150 |
| Neighborhood: | S9 & S16 T27N R1E & OLYMPIC SHORES & ADMIRAL'S ROW | Map ID: | |
| Neighborhood CD: | 3425 |
Owner |
| Name: | LAURELHURST HOMES LLC | Owner ID: | 104019 |
| Mailing Address: | 117 EAGLE VIEW LN PORT LUDLOW, WA 98365-9282 | % Ownership: | 100.0000000000% |
| | | Exemptions: | |
Pay Tax Due
There is currently No Amount Due on this property.
Taxes and Assessment Details
Property Tax Information as of
03/12/2026
Click on "Statement Details" to expand or collapse a tax statement.
* Please enter a valid date ** Please enter a valid date *
Statement Details |
| | TOTAL: | $0.00 | $0.00 | $0.00 | $0.00 | $0.00 | $0.00 |
|
| | $0.00 | $0.00 | $0.00 | $0.00 | $0.00 | $0.00 |
Values
| (+) Improvement Homesite Value: | + | $0 | |
| (+) Improvement Non-Homesite Value: | + | $0 | |
| (+) Land Homesite Value: | + | $0 | |
| (+) Land Non-Homesite Value: | + | $34,125 | |
| (+) Curr Use (HS): | + | $0 | $0 |
| (+) Curr Use (NHS): | + | $0 | $0 |
| | | -------------------------- | |
| (=) Market Value: | = | $34,125 | |
| (–) Productivity Loss: | – | $0 | |
| | | -------------------------- | |
| (=) Subtotal: | = | $34,125 | |
| (+) Senior Appraised Value: | + | $0 | |
| (+) Non-Senior Appraised Value: | + | $34,125 | |
| | | -------------------------- | |
| (=) Total Appraised Value: | = | $34,125 | |
| (–) Senior Exemption Loss: | – | $0 | |
| (–) Exemption Loss: | – | $0 | |
| | | -------------------------- | |
| (=) Taxable Value: | = | $34,125 | |
Taxing Jurisdiction
| Owner: | LAURELHURST HOMES LLC | | |
| % Ownership: | 100.0000000000% | | |
| Total Value: | $34,125 | | |
| Tax Area: | 0213 - 1-49F1E1H2L1 |
| CE | COUNTY CURRENT EXPENSE | 0.9034619479 | $34,125 | $34,125 | $30.83 | | |
| CNTYDD | DEVELOPMENTAL DISABILITIES | 0.0052121823 | $34,125 | $34,125 | $0.18 | | |
| CNTYVET | VETERANS RELIEF | 0.0052777810 | $34,125 | $34,125 | $0.18 | | |
| MENTAL | MENTAL HEALTH | 0.0052121823 | $34,125 | $34,125 | $0.18 | | |
| ROADS | COUNTY ROADS | 0.7415066410 | $34,125 | $34,125 | $25.30 | | |
| ROADSCU | COUNTY ROADS TO CUR EXP | 0.0000000000 | $34,125 | $34,125 | $0.00 | | |
| HOSP2CASH | HOSP DIST #2 GENERAL | 0.0536075306 | $34,125 | $34,125 | $1.83 | | |
| SCH49CP | SCHOOL DIST #49 CAP PROJ | 0.6279093905 | $34,125 | $34,125 | $21.43 | | |
| SCH49MO | SCHOOL DIST #49 EP & O | 0.6376483602 | $34,125 | $34,125 | $21.76 | | |
| CONSERVE | CONSERVATION FUTURES | 0.0275621078 | $34,125 | $34,125 | $0.94 | | |
| EMS1 | FIRE DIST #1 EMS | 0.4679948282 | $34,125 | $34,125 | $15.97 | | |
| FD1 | FIRE DIST #1 GENERAL | 1.2171942929 | $34,125 | $34,125 | $41.54 | | |
| LIB1 | LIBRARY DIST #1 GENERAL | 0.2868827388 | $34,125 | $34,125 | $9.79 | | |
| PORTPT | PORT OF PT GENERAL | 0.1134941229 | $34,125 | $34,125 | $3.87 | | |
| PORTPTIDD | PORT OF PT IDD 2019 | 0.2577346692 | $34,125 | $34,125 | $8.80 | | |
| PUD1 | PUD #1 GENERAL | 0.0597888892 | $34,125 | $34,125 | $2.04 | | |
| STATE | STATE SCHOOL PART 1 | 1.4940692947 | $34,125 | $34,125 | $50.99 | | |
| STATE2 | STATE SCHOOL PART 2 | 0.8050170049 | $34,125 | $34,125 | $27.47 | | |
| | Total Tax Rate: | 7.7095739644 | | | | | |
| | | | | Taxes w/Current Exemptions: | $263.10 | | |
| | | | | Taxes w/o Exemptions: | $263.10 | | |
Improvement / Building
Sketch
| No sketches available for this property. |
Property Image
Land
| 1 | 3425-1527F | Medium bank Wtrfrt - May inc off-site septic | 0.0000 | 0.00 | 0.00 | 0.00 | 0.00 | $31,500 | $0 |
| 2 | 9301F | Tidelands | 0.0000 | 0.00 | 0.00 | 0.00 | 0.00 | $2,625 | $0 |
Roll Value History
| 2026 | N/A | N/A | N/A | N/A | N/A |
| 2025 | $0 | $34,125 | $0 | $34,125 | $34,125 |
| 2024 | $0 | $32,500 | $0 | $32,500 | $32,500 |
| 2023 | $0 | $32,500 | $0 | $32,500 | $32,500 |
| 2022 | $0 | $32,500 | $0 | $32,500 | $32,500 |
Deed and Sales History
| 1 | 08/01/2022 | SWD | Statutory Warranty Deed | WILLIAM & JEANIE CARMICHAEL JOINT TRUST | LAURELHURST HOMES LLC | | | $38,500.00 | 139606 | |
| 2 | 08/15/2013 | SWD | Statutory Warranty Deed | MARGOT D WYATT TRUST | WILLIAM & JEANIE CARMICHAEL JOINT TRUST | | | | 119914 | |
| 3 | 08/15/2013 | SWD | Statutory Warranty Deed | | | | | | 120010 | |
| 4 | 05/14/2010 | QCD | Quit Claim Deed | JACK R WYATT TRUSTEE | MARGOT D WYATT TRUST | | | | 114607 | |
| 5 | 08/08/1994 | QCD | Quit Claim Deed | WYATT, JACK R/MARGOT D | WYATT FAMILY TRUST | 0 | 0 | $0.00 | 74947 | 0 |
Payout Agreement
| No payout information available.. |