Property
Account |
| Property ID: | 19162 | Abbreviated Legal Description: | S17 T27 R1E LOT 3(S660'LSPTN LY NW OF CO RD) |
| Parcel # / Geo ID: | 721173002 | Agent Code: | |
| Type: | Real | | |
| Tax Area: | 0213 - 1-49F1E1H2L1 | Land Use Code | 91 |
| Open Space: | N | DFL | N |
| Historic Property: | N | Remodel Property: | N |
| Multi-Family Redevelopment: | N | | |
| Township: | 27N | Section: | 17 |
| Range: | 1E |
Location |
| Address: | | Mapsco: | 148/007 |
| Neighborhood: | S17 - S20 T27N R1E & THORNDYKE BAY SHORT PLATS 1 - 4 | Map ID: | |
| Neighborhood CD: | 3440 |
Owner |
| Name: | ROBERT G & MARY WOODMAN | Owner ID: | 93307 |
| Mailing Address: | DBC# 1 LLC 27184 WASHINGTON BLVD NE KINGSTON, WA 98346-7713 | % Ownership: | 100.0000000000% |
| | | Exemptions: | |
Pay Tax Due
Select the appropriate checkbox next to the year to be paid. Multiple years may be selected.
*Convenience Fee not included
Taxes and Assessment Details
Property Tax Information as of
03/10/2026
Click on "Statement Details" to expand or collapse a tax statement.
* Please enter a valid date ** Please enter a valid date *
Statement Details |
| 2026 | 8684 | STATE - STATE LEVY (SCHOOL) | $746.23 | $746.23 | $0.00 | $0.00 | $0.00 | $1492.46 |
| 2026 | 8684 | COUNTY - COUNTY LEVIES (CE, DD, VET, MH) | $298.34 | $298.33 | $0.00 | $0.00 | $0.00 | $596.67 |
| 2026 | 8684 | CONSERVE - CONSERVATION FUTURES | $8.95 | $8.94 | $0.00 | $0.00 | $0.00 | $17.89 |
| 2026 | 8684 | COROADS - COUNTY ROADS (ROADS, DIV TO CE) | $240.68 | $240.67 | $0.00 | $0.00 | $0.00 | $481.35 |
| 2026 | 8684 | PORTPT - PORT DISTRICT | $120.50 | $120.48 | $0.00 | $0.00 | $0.00 | $240.98 |
| 2026 | 8684 | PUD1 - PUD #1 | $19.41 | $19.40 | $0.00 | $0.00 | $0.00 | $38.81 |
| 2026 | 8684 | LIB1 - LIBRARY DIST #1 | $93.12 | $93.11 | $0.00 | $0.00 | $0.00 | $186.23 |
| 2026 | 8684 | HD2 - HOSP DIST #2 | $17.40 | $17.40 | $0.00 | $0.00 | $0.00 | $34.80 |
| 2026 | 8684 | SD49 - SCHOOL DIST #49 | $410.78 | $410.76 | $0.00 | $0.00 | $0.00 | $821.54 |
| 2026 | 8684 | FD1 - FIRE DISTRICT #1 | $395.07 | $395.07 | $0.00 | $0.00 | $0.00 | $790.14 |
| 2026 | 8684 | EMS1 - FIRE DIST #1 EMS | $151.90 | $151.90 | $0.00 | $0.00 | $0.00 | $303.80 |
| 2026 | 8684 | FP - DNR Forest Fire Protection Assmt | $8.50 | $8.50 | $0.00 | $0.00 | $0.00 | $17.00 |
| 2026 | 8684 | FPLCA - DNR Landowner Contingency Assmt | $3.00 | $3.00 | $0.00 | $0.00 | $0.00 | $6.00 |
| 2026 | 8684 | JCCD - JC Conservation District | $3.05 | $3.05 | $0.00 | $0.00 | $0.00 | $6.10 |
| 2026 | 8684 | NWA - Noxious Weed Assessment | $5.90 | $5.90 | $0.00 | $0.00 | $0.00 | $11.80 |
| 2026 | 8684 | WAT - Clean Water District | $13.00 | $13.00 | $0.00 | $0.00 | $0.00 | $26.00 |
| 2026 | 8684 | FP ADMIN - FP ADMIN | $0.50 | $0.00 | $0.00 | $0.00 | $0.00 | $0.50 |
| 2026 | 8684 | TOTAL: | $2536.33 | $2535.74 | $0.00 | $0.00 | $0.00 | $5072.07 |
|
| 2026 | 8684 | $2536.33 | $2535.74 | $0.00 | $0.00 | $0.00 | $5072.07 |
Statement Details |
| 2025 | 8705 | STATE - STATE LEVY (SCHOOL) | $741.28 | $741.28 | $0.00 | $0.00 | $1482.56 | $0.00 |
| 2025 | 8705 | COUNTY - COUNTY LEVIES (CE, DD, VET, MH) | $291.51 | $291.50 | $0.00 | $0.00 | $583.01 | $0.00 |
| 2025 | 8705 | CONSERVE - CONSERVATION FUTURES | $8.74 | $8.74 | $0.00 | $0.00 | $17.48 | $0.00 |
| 2025 | 8705 | COROADS - COUNTY ROADS (ROADS, DIV TO CE) | $233.54 | $233.54 | $0.00 | $0.00 | $467.08 | $0.00 |
| 2025 | 8705 | PORTPT - PORT DISTRICT | $118.96 | $118.94 | $0.00 | $0.00 | $237.90 | $0.00 |
| 2025 | 8705 | PUD1 - PUD #1 | $19.08 | $19.07 | $0.00 | $0.00 | $38.15 | $0.00 |
| 2025 | 8705 | LIB1 - LIBRARY DIST #1 | $90.36 | $90.35 | $0.00 | $0.00 | $180.71 | $0.00 |
| 2025 | 8705 | HD2 - HOSP DIST #2 | $17.01 | $17.00 | $0.00 | $0.00 | $34.01 | $0.00 |
| 2025 | 8705 | SD49 - SCHOOL DIST #49 | $397.29 | $397.27 | $0.00 | $0.00 | $794.56 | $0.00 |
| 2025 | 8705 | FD1 - FIRE DISTRICT #1 | $384.67 | $384.67 | $0.00 | $0.00 | $769.34 | $0.00 |
| 2025 | 8705 | EMS1 - FIRE DIST #1 EMS | $147.96 | $147.95 | $0.00 | $0.00 | $295.91 | $0.00 |
| 2025 | 8705 | FP - DNR Forest Fire Protection Assmt | $8.50 | $8.50 | $0.00 | $0.00 | $17.00 | $0.00 |
| 2025 | 8705 | FPLCA - DNR Landowner Contingency Assmt | $3.00 | $3.00 | $0.00 | $0.00 | $6.00 | $0.00 |
| 2025 | 8705 | JCCD - JC Conservation District | $3.05 | $3.05 | $0.00 | $0.00 | $6.10 | $0.00 |
| 2025 | 8705 | NWA - Noxious Weed Assessment | $4.10 | $4.10 | $0.00 | $0.00 | $8.20 | $0.00 |
| 2025 | 8705 | WAT - Clean Water District | $13.00 | $13.00 | $0.00 | $0.00 | $26.00 | $0.00 |
| 2025 | 8705 | FP ADMIN - FP ADMIN | $0.50 | $0.00 | $0.00 | $0.00 | $0.50 | $0.00 |
| 2025 | 8705 | TOTAL: | $2482.55 | $2481.96 | $0.00 | $0.00 | $4964.51 | $0.00 |
|
| 2025 | 8705 | $2482.55 | $2481.96 | $0.00 | $0.00 | $4964.51 | $0.00 |
Statement Details |
| 2024 | 8729 | STATE - STATE LEVY (SCHOOL) | $715.18 | $715.18 | $0.00 | $0.00 | $1430.36 | $0.00 |
| 2024 | 8729 | COUNTY - COUNTY LEVIES (CE, DD, VET, MH) | $306.04 | $306.03 | $0.00 | $0.00 | $612.07 | $0.00 |
| 2024 | 8729 | CONSERVE - CONSERVATION FUTURES | $9.18 | $9.17 | $0.00 | $0.00 | $18.35 | $0.00 |
| 2024 | 8729 | COROADS - COUNTY ROADS (ROADS, DIV TO CE) | $246.26 | $246.25 | $0.00 | $0.00 | $492.51 | $0.00 |
| 2024 | 8729 | PORTPT - PORT DISTRICT | $126.41 | $126.39 | $0.00 | $0.00 | $252.80 | $0.00 |
| 2024 | 8729 | PUD1 - PUD #1 | $20.10 | $20.10 | $0.00 | $0.00 | $40.20 | $0.00 |
| 2024 | 8729 | LIB1 - LIBRARY DIST #1 | $95.28 | $95.27 | $0.00 | $0.00 | $190.55 | $0.00 |
| 2024 | 8729 | HD2 - HOSP DIST #2 | $17.86 | $17.85 | $0.00 | $0.00 | $35.71 | $0.00 |
| 2024 | 8729 | SD49 - SCHOOL DIST #49 | $319.36 | $319.36 | $0.00 | $0.00 | $638.72 | $0.00 |
| 2024 | 8729 | FD1 - FIRE DISTRICT #1 | $404.65 | $404.64 | $0.00 | $0.00 | $809.29 | $0.00 |
| 2024 | 8729 | EMS1 - FIRE DIST #1 EMS | $154.56 | $154.56 | $0.00 | $0.00 | $309.12 | $0.00 |
| 2024 | 8729 | FP - DNR Forest Fire Protection Assmt | $8.50 | $8.50 | $0.00 | $0.00 | $17.00 | $0.00 |
| 2024 | 8729 | FPLCA - DNR Landowner Contingency Assmt | $3.00 | $3.00 | $0.00 | $0.00 | $6.00 | $0.00 |
| 2024 | 8729 | JCCD - JC Conservation District | $3.05 | $3.05 | $0.00 | $0.00 | $6.10 | $0.00 |
| 2024 | 8729 | NWA - Noxious Weed Assessment | $4.10 | $4.10 | $0.00 | $0.00 | $8.20 | $0.00 |
| 2024 | 8729 | WAT - Clean Water District | $12.50 | $12.50 | $0.00 | $0.00 | $25.00 | $0.00 |
| 2024 | 8729 | FP ADMIN - FP ADMIN | $0.50 | $0.00 | $0.00 | $0.00 | $0.50 | $0.00 |
| 2024 | 8729 | TOTAL: | $2446.53 | $2445.95 | $0.00 | $0.00 | $4892.48 | $0.00 |
|
| 2024 | 8729 | $2446.53 | $2445.95 | $0.00 | $0.00 | $4892.48 | $0.00 |
Statement Details |
| 2023 | 8746 | STATE - STATE LEVY (SCHOOL) | $727.72 | $727.72 | $0.00 | $0.00 | $1455.44 | $0.00 |
| 2023 | 8746 | COUNTY - COUNTY LEVIES (CE, DD, VET, MH) | $317.57 | $317.54 | $0.00 | $0.00 | $635.11 | $0.00 |
| 2023 | 8746 | CONSERVE - CONSERVATION FUTURES | $9.52 | $9.52 | $0.00 | $0.00 | $19.04 | $0.00 |
| 2023 | 8746 | COROADS - COUNTY ROADS (ROADS, DIV TO CE) | $256.93 | $256.92 | $0.00 | $0.00 | $513.85 | $0.00 |
| 2023 | 8746 | PORTPT - PORT DISTRICT | $133.77 | $133.77 | $0.00 | $0.00 | $267.54 | $0.00 |
| 2023 | 8746 | PUD1 - PUD #1 | $21.05 | $21.05 | $0.00 | $0.00 | $42.10 | $0.00 |
| 2023 | 8746 | LIB1 - LIBRARY DIST #1 | $99.40 | $99.40 | $0.00 | $0.00 | $198.80 | $0.00 |
| 2023 | 8746 | HD2 - HOSP DIST #2 | $18.54 | $18.52 | $0.00 | $0.00 | $37.06 | $0.00 |
| 2023 | 8746 | SD49 - SCHOOL DIST #49 | $340.17 | $340.16 | $0.00 | $0.00 | $680.33 | $0.00 |
| 2023 | 8746 | FD3 - FIRE DISTRICT #3 | $315.92 | $315.92 | $0.00 | $0.00 | $631.84 | $0.00 |
| 2023 | 8746 | EMS3 - FIRE DIST #3 EMS | $112.94 | $112.94 | $0.00 | $0.00 | $225.88 | $0.00 |
| 2023 | 8746 | FP - DNR Forest Fire Protection Assmt | $8.50 | $8.50 | $0.00 | $0.00 | $17.00 | $0.00 |
| 2023 | 8746 | FPLCA - DNR Landowner Contingency Assmt | $3.00 | $3.00 | $0.00 | $0.00 | $6.00 | $0.00 |
| 2023 | 8746 | JCCD - JC Conservation District | $3.05 | $3.05 | $0.00 | $0.00 | $6.10 | $0.00 |
| 2023 | 8746 | NWA - Noxious Weed Assessment | $4.10 | $4.10 | $0.00 | $0.00 | $8.20 | $0.00 |
| 2023 | 8746 | WAT - Clean Water District | $12.00 | $12.00 | $0.00 | $0.00 | $24.00 | $0.00 |
| 2023 | 8746 | FP ADMIN - FP ADMIN | $0.50 | $0.00 | $0.00 | $0.00 | $0.50 | $0.00 |
| 2023 | 8746 | TOTAL: | $2384.68 | $2384.11 | $0.00 | $0.00 | $4768.79 | $0.00 |
|
| 2023 | 8746 | $2384.68 | $2384.11 | $0.00 | $0.00 | $4768.79 | $0.00 |
Values
| (+) Improvement Homesite Value: | + | $0 | |
| (+) Improvement Non-Homesite Value: | + | $0 | |
| (+) Land Homesite Value: | + | $0 | |
| (+) Land Non-Homesite Value: | + | $649,152 | |
| (+) Curr Use (HS): | + | $0 | $0 |
| (+) Curr Use (NHS): | + | $0 | $0 |
| | | -------------------------- | |
| (=) Market Value: | = | $649,152 | |
| (–) Productivity Loss: | – | $0 | |
| | | -------------------------- | |
| (=) Subtotal: | = | $649,152 | |
| (+) Senior Appraised Value: | + | $0 | |
| (+) Non-Senior Appraised Value: | + | $649,152 | |
| | | -------------------------- | |
| (=) Total Appraised Value: | = | $649,152 | |
| (–) Senior Exemption Loss: | – | $0 | |
| (–) Exemption Loss: | – | $0 | |
| | | -------------------------- | |
| (=) Taxable Value: | = | $649,152 | |
Taxing Jurisdiction
| Owner: | ROBERT G & MARY WOODMAN | | |
| % Ownership: | 100.0000000000% | | |
| Total Value: | $649,152 | | |
| Tax Area: | 0213 - 1-49F1E1H2L1 |
| CE | COUNTY CURRENT EXPENSE | 0.9034619479 | $649,152 | $649,152 | $586.48 | | |
| CNTYDD | DEVELOPMENTAL DISABILITIES | 0.0052121823 | $649,152 | $649,152 | $3.38 | | |
| CNTYVET | VETERANS RELIEF | 0.0052777810 | $649,152 | $649,152 | $3.43 | | |
| MENTAL | MENTAL HEALTH | 0.0052121823 | $649,152 | $649,152 | $3.38 | | |
| ROADS | COUNTY ROADS | 0.7415066410 | $649,152 | $649,152 | $481.35 | | |
| ROADSCU | COUNTY ROADS TO CUR EXP | 0.0000000000 | $649,152 | $649,152 | $0.00 | | |
| HOSP2CASH | HOSP DIST #2 GENERAL | 0.0536075306 | $649,152 | $649,152 | $34.80 | | |
| SCH49CP | SCHOOL DIST #49 CAP PROJ | 0.6279093905 | $649,152 | $649,152 | $407.61 | | |
| SCH49MO | SCHOOL DIST #49 EP & O | 0.6376483602 | $649,152 | $649,152 | $413.93 | | |
| CONSERVE | CONSERVATION FUTURES | 0.0275621078 | $649,152 | $649,152 | $17.89 | | |
| EMS1 | FIRE DIST #1 EMS | 0.4679948282 | $649,152 | $649,152 | $303.80 | | |
| FD1 | FIRE DIST #1 GENERAL | 1.2171942929 | $649,152 | $649,152 | $790.14 | | |
| LIB1 | LIBRARY DIST #1 GENERAL | 0.2868827388 | $649,152 | $649,152 | $186.23 | | |
| PORTPT | PORT OF PT GENERAL | 0.1134941229 | $649,152 | $649,152 | $73.67 | | |
| PORTPTIDD | PORT OF PT IDD 2019 | 0.2577346692 | $649,152 | $649,152 | $167.31 | | |
| PUD1 | PUD #1 GENERAL | 0.0597888892 | $649,152 | $649,152 | $38.81 | | |
| STATE | STATE SCHOOL PART 1 | 1.4940692947 | $649,152 | $649,152 | $969.88 | | |
| STATE2 | STATE SCHOOL PART 2 | 0.8050170049 | $649,152 | $649,152 | $522.58 | | |
| | Total Tax Rate: | 7.7095739644 | | | | | |
| | | | | Taxes w/Current Exemptions: | $5,004.67 | | |
| | | | | Taxes w/o Exemptions: | $5,004.67 | | |
Improvement / Building
Sketch
| No sketches available for this property. |
Property Image
Land
| 1 | 3440-1525F | | 0.0000 | 0.00 | 0.00 | 0.00 | 0.00 | $220,500 | $0 |
| 2 | 3440-1525F | | 0.0000 | 0.00 | 0.00 | 0.00 | 0.00 | $428,652 | $0 |
Roll Value History
| 2026 | N/A | N/A | N/A | N/A | N/A |
| 2025 | $0 | $649,152 | $0 | $649,152 | $649,152 |
| 2024 | $0 | $618,240 | $0 | $618,240 | $618,240 |
| 2023 | $0 | $618,240 | $0 | $618,240 | $618,240 |
| 2022 | $0 | $618,240 | $0 | $618,240 | $618,240 |
Deed and Sales History
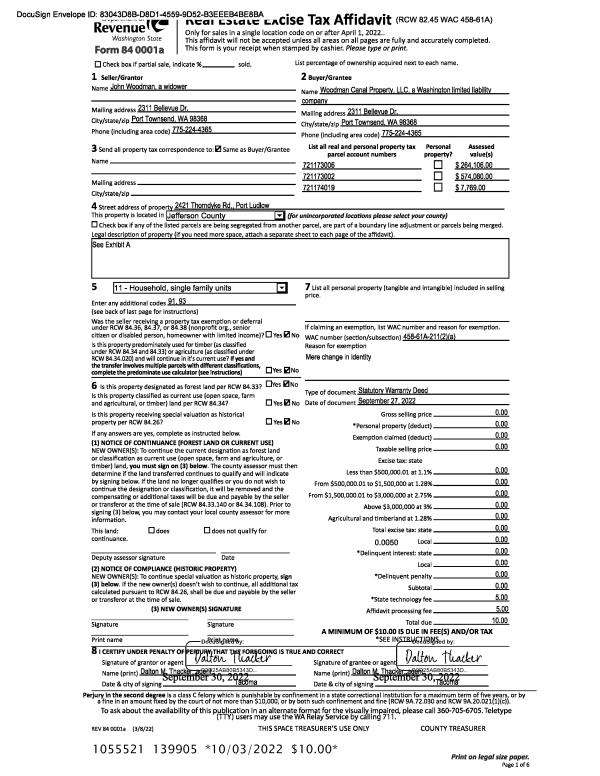
| 1 | 01/07/2015 | SWD | Statutory Warranty Deed | | | | | | 122811 | |
| 2 | 12/23/2014 | SWD | Statutory Warranty Deed | | | | | | 122810 | |
| 3 | 12/23/2014 | SWD | Statutory Warranty Deed | | | | | | 122467 | |
Payout Agreement
| No payout information available.. |