Property
Account |
| Property ID: | 19163 | Abbreviated Legal Description: | S17 T27 R1E GOV LT 3(PTN LYING SE OF CO RD) & NE SW (PTN LYING SE OF CO RD) |
| Parcel # / Geo ID: | 721173006 | Agent Code: | |
| Type: | Real | | |
| Tax Area: | 0213 - 1-49F1E1H2L1 | Land Use Code | 11 |
| Open Space: | N | DFL | N |
| Historic Property: | N | Remodel Property: | N |
| Multi-Family Redevelopment: | N | | |
| Township: | 27N | Section: | 17 |
| Range: | 1E |
Location |
| Address: | 2421 THORNDYKE RD PORT LUDLOW, WA 98365 | Mapsco: | 148/009 |
| Neighborhood: | S17 - S20 T27N R1E & THORNDYKE BAY SHORT PLATS 1 - 4 | Map ID: | |
| Neighborhood CD: | 3440 |
Owner |
| Name: | WOODMAN CANAL PROPERTY LLC | Owner ID: | 107747 |
| Mailing Address: | 27184 WASHINGTON BLVD NE KINGSTON, WA 98346-7713 | % Ownership: | 100.0000000000% |
| | | Exemptions: | |
Pay Tax Due
Select the appropriate checkbox next to the year to be paid. Multiple years may be selected.
*Convenience Fee not included
Taxes and Assessment Details
Property Tax Information as of
03/12/2026
Click on "Statement Details" to expand or collapse a tax statement.
* Please enter a valid date ** Please enter a valid date *
Statement Details |
| 2026 | 8685 | STATE - STATE LEVY (SCHOOL) | $400.43 | $400.42 | $0.00 | $0.00 | $0.00 | $800.85 |
| 2026 | 8685 | COUNTY - COUNTY LEVIES (CE, DD, VET, MH) | $160.10 | $160.09 | $0.00 | $0.00 | $0.00 | $320.19 |
| 2026 | 8685 | CONSERVE - CONSERVATION FUTURES | $4.80 | $4.80 | $0.00 | $0.00 | $0.00 | $9.60 |
| 2026 | 8685 | COROADS - COUNTY ROADS (ROADS, DIV TO CE) | $129.15 | $129.14 | $0.00 | $0.00 | $0.00 | $258.29 |
| 2026 | 8685 | PORTPT - PORT DISTRICT | $64.66 | $64.65 | $0.00 | $0.00 | $0.00 | $129.31 |
| 2026 | 8685 | PUD1 - PUD #1 | $10.42 | $10.41 | $0.00 | $0.00 | $0.00 | $20.83 |
| 2026 | 8685 | LIB1 - LIBRARY DIST #1 | $49.97 | $49.96 | $0.00 | $0.00 | $0.00 | $99.93 |
| 2026 | 8685 | HD2 - HOSP DIST #2 | $9.34 | $9.33 | $0.00 | $0.00 | $0.00 | $18.67 |
| 2026 | 8685 | SD49 - SCHOOL DIST #49 | $220.42 | $220.41 | $0.00 | $0.00 | $0.00 | $440.83 |
| 2026 | 8685 | FD1 - FIRE DISTRICT #1 | $212.00 | $211.99 | $0.00 | $0.00 | $0.00 | $423.99 |
| 2026 | 8685 | EMS1 - FIRE DIST #1 EMS | $81.51 | $81.51 | $0.00 | $0.00 | $0.00 | $163.02 |
| 2026 | 8685 | FP - DNR Forest Fire Protection Assmt | $8.50 | $8.50 | $0.00 | $0.00 | $0.00 | $17.00 |
| 2026 | 8685 | FPLCA - DNR Landowner Contingency Assmt | $3.00 | $3.00 | $0.00 | $0.00 | $0.00 | $6.00 |
| 2026 | 8685 | JCCD - JC Conservation District | $2.95 | $2.95 | $0.00 | $0.00 | $0.00 | $5.90 |
| 2026 | 8685 | NWA - Noxious Weed Assessment | $4.78 | $4.77 | $0.00 | $0.00 | $0.00 | $9.55 |
| 2026 | 8685 | OSS - On Site Septic | $23.10 | $23.10 | $0.00 | $0.00 | $0.00 | $46.20 |
| 2026 | 8685 | WAT - Clean Water District | $13.00 | $13.00 | $0.00 | $0.00 | $0.00 | $26.00 |
| 2026 | 8685 | FP ADMIN - FP ADMIN | $0.50 | $0.00 | $0.00 | $0.00 | $0.00 | $0.50 |
| 2026 | 8685 | TOTAL: | $1398.63 | $1398.03 | $0.00 | $0.00 | $0.00 | $2796.66 |
|
| 2026 | 8685 | $1398.63 | $1398.03 | $0.00 | $0.00 | $0.00 | $2796.66 |
Statement Details |
| 2025 | 8706 | STATE - STATE LEVY (SCHOOL) | $398.33 | $398.33 | $0.00 | $0.00 | $796.66 | $0.00 |
| 2025 | 8706 | COUNTY - COUNTY LEVIES (CE, DD, VET, MH) | $156.65 | $156.62 | $0.00 | $0.00 | $313.27 | $0.00 |
| 2025 | 8706 | CONSERVE - CONSERVATION FUTURES | $4.70 | $4.69 | $0.00 | $0.00 | $9.39 | $0.00 |
| 2025 | 8706 | COROADS - COUNTY ROADS (ROADS, DIV TO CE) | $125.50 | $125.49 | $0.00 | $0.00 | $250.99 | $0.00 |
| 2025 | 8706 | PORTPT - PORT DISTRICT | $63.92 | $63.91 | $0.00 | $0.00 | $127.83 | $0.00 |
| 2025 | 8706 | PUD1 - PUD #1 | $10.25 | $10.25 | $0.00 | $0.00 | $20.50 | $0.00 |
| 2025 | 8706 | LIB1 - LIBRARY DIST #1 | $48.55 | $48.55 | $0.00 | $0.00 | $97.10 | $0.00 |
| 2025 | 8706 | HD2 - HOSP DIST #2 | $9.14 | $9.14 | $0.00 | $0.00 | $18.28 | $0.00 |
| 2025 | 8706 | SD49 - SCHOOL DIST #49 | $213.48 | $213.47 | $0.00 | $0.00 | $426.95 | $0.00 |
| 2025 | 8706 | FD1 - FIRE DISTRICT #1 | $206.71 | $206.70 | $0.00 | $0.00 | $413.41 | $0.00 |
| 2025 | 8706 | EMS1 - FIRE DIST #1 EMS | $79.51 | $79.50 | $0.00 | $0.00 | $159.01 | $0.00 |
| 2025 | 8706 | FP - DNR Forest Fire Protection Assmt | $8.50 | $8.50 | $0.00 | $0.00 | $17.00 | $0.00 |
| 2025 | 8706 | FPLCA - DNR Landowner Contingency Assmt | $3.00 | $3.00 | $0.00 | $0.00 | $6.00 | $0.00 |
| 2025 | 8706 | JCCD - JC Conservation District | $2.95 | $2.95 | $0.00 | $0.00 | $5.90 | $0.00 |
| 2025 | 8706 | NWA - Noxious Weed Assessment | $3.35 | $3.35 | $0.00 | $0.00 | $6.70 | $0.00 |
| 2025 | 8706 | OSS - On Site Septic | $21.50 | $21.50 | $0.00 | $0.00 | $43.00 | $0.00 |
| 2025 | 8706 | WAT - Clean Water District | $13.00 | $13.00 | $0.00 | $0.00 | $26.00 | $0.00 |
| 2025 | 8706 | FP ADMIN - FP ADMIN | $0.50 | $0.00 | $0.00 | $0.00 | $0.50 | $0.00 |
| 2025 | 8706 | TOTAL: | $1369.54 | $1368.95 | $0.00 | $0.00 | $2738.49 | $0.00 |
|
| 2025 | 8706 | $1369.54 | $1368.95 | $0.00 | $0.00 | $2738.49 | $0.00 |
Statement Details |
| 2024 | 8730 | STATE - STATE LEVY (SCHOOL) | $376.84 | $376.84 | $0.00 | $0.00 | $753.68 | $0.00 |
| 2024 | 8730 | COUNTY - COUNTY LEVIES (CE, DD, VET, MH) | $161.25 | $161.25 | $0.00 | $0.00 | $322.50 | $0.00 |
| 2024 | 8730 | CONSERVE - CONSERVATION FUTURES | $4.84 | $4.83 | $0.00 | $0.00 | $9.67 | $0.00 |
| 2024 | 8730 | COROADS - COUNTY ROADS (ROADS, DIV TO CE) | $129.75 | $129.75 | $0.00 | $0.00 | $259.50 | $0.00 |
| 2024 | 8730 | PORTPT - PORT DISTRICT | $66.61 | $66.60 | $0.00 | $0.00 | $133.21 | $0.00 |
| 2024 | 8730 | PUD1 - PUD #1 | $10.59 | $10.59 | $0.00 | $0.00 | $21.18 | $0.00 |
| 2024 | 8730 | LIB1 - LIBRARY DIST #1 | $50.20 | $50.20 | $0.00 | $0.00 | $100.40 | $0.00 |
| 2024 | 8730 | HD2 - HOSP DIST #2 | $9.41 | $9.41 | $0.00 | $0.00 | $18.82 | $0.00 |
| 2024 | 8730 | SD49 - SCHOOL DIST #49 | $168.28 | $168.27 | $0.00 | $0.00 | $336.55 | $0.00 |
| 2024 | 8730 | FD1 - FIRE DISTRICT #1 | $213.22 | $213.21 | $0.00 | $0.00 | $426.43 | $0.00 |
| 2024 | 8730 | EMS1 - FIRE DIST #1 EMS | $81.44 | $81.44 | $0.00 | $0.00 | $162.88 | $0.00 |
| 2024 | 8730 | FP - DNR Forest Fire Protection Assmt | $8.50 | $8.50 | $0.00 | $0.00 | $17.00 | $0.00 |
| 2024 | 8730 | FPLCA - DNR Landowner Contingency Assmt | $3.00 | $3.00 | $0.00 | $0.00 | $6.00 | $0.00 |
| 2024 | 8730 | JCCD - JC Conservation District | $2.95 | $2.95 | $0.00 | $0.00 | $5.90 | $0.00 |
| 2024 | 8730 | NWA - Noxious Weed Assessment | $3.35 | $3.35 | $0.00 | $0.00 | $6.70 | $0.00 |
| 2024 | 8730 | OSS - On Site Septic | $21.00 | $21.00 | $0.00 | $0.00 | $42.00 | $0.00 |
| 2024 | 8730 | WAT - Clean Water District | $12.50 | $12.50 | $0.00 | $0.00 | $25.00 | $0.00 |
| 2024 | 8730 | FP ADMIN - FP ADMIN | $0.50 | $0.00 | $0.00 | $0.00 | $0.50 | $0.00 |
| 2024 | 8730 | TOTAL: | $1324.23 | $1323.69 | $0.00 | $0.00 | $2647.92 | $0.00 |
|
| 2024 | 8730 | $1324.23 | $1323.69 | $0.00 | $0.00 | $2647.92 | $0.00 |
Statement Details |
| 2023 | 8747 | STATE - STATE LEVY (SCHOOL) | $374.14 | $374.13 | $0.00 | $0.00 | $748.27 | $0.00 |
| 2023 | 8747 | COUNTY - COUNTY LEVIES (CE, DD, VET, MH) | $163.27 | $163.25 | $0.00 | $0.00 | $326.52 | $0.00 |
| 2023 | 8747 | CONSERVE - CONSERVATION FUTURES | $4.90 | $4.89 | $0.00 | $0.00 | $9.79 | $0.00 |
| 2023 | 8747 | COROADS - COUNTY ROADS (ROADS, DIV TO CE) | $132.10 | $132.08 | $0.00 | $0.00 | $264.18 | $0.00 |
| 2023 | 8747 | PORTPT - PORT DISTRICT | $68.78 | $68.77 | $0.00 | $0.00 | $137.55 | $0.00 |
| 2023 | 8747 | PUD1 - PUD #1 | $10.82 | $10.82 | $0.00 | $0.00 | $21.64 | $0.00 |
| 2023 | 8747 | LIB1 - LIBRARY DIST #1 | $51.11 | $51.10 | $0.00 | $0.00 | $102.21 | $0.00 |
| 2023 | 8747 | HD2 - HOSP DIST #2 | $9.53 | $9.52 | $0.00 | $0.00 | $19.05 | $0.00 |
| 2023 | 8747 | SD49 - SCHOOL DIST #49 | $174.90 | $174.88 | $0.00 | $0.00 | $349.78 | $0.00 |
| 2023 | 8747 | FD3 - FIRE DISTRICT #3 | $162.42 | $162.42 | $0.00 | $0.00 | $324.84 | $0.00 |
| 2023 | 8747 | EMS3 - FIRE DIST #3 EMS | $58.07 | $58.06 | $0.00 | $0.00 | $116.13 | $0.00 |
| 2023 | 8747 | FP - DNR Forest Fire Protection Assmt | $8.50 | $8.50 | $0.00 | $0.00 | $17.00 | $0.00 |
| 2023 | 8747 | FPLCA - DNR Landowner Contingency Assmt | $3.00 | $3.00 | $0.00 | $0.00 | $6.00 | $0.00 |
| 2023 | 8747 | JCCD - JC Conservation District | $2.95 | $2.95 | $0.00 | $0.00 | $5.90 | $0.00 |
| 2023 | 8747 | NWA - Noxious Weed Assessment | $3.35 | $3.35 | $0.00 | $0.00 | $6.70 | $0.00 |
| 2023 | 8747 | OSS - On Site Septic | $20.50 | $20.50 | $0.00 | $0.00 | $41.00 | $0.00 |
| 2023 | 8747 | WAT - Clean Water District | $12.00 | $12.00 | $0.00 | $0.00 | $24.00 | $0.00 |
| 2023 | 8747 | FP ADMIN - FP ADMIN | $0.50 | $0.00 | $0.00 | $0.00 | $0.50 | $0.00 |
| 2023 | 8747 | TOTAL: | $1260.84 | $1260.22 | $0.00 | $0.00 | $2521.06 | $0.00 |
|
| 2023 | 8747 | $1260.84 | $1260.22 | $0.00 | $0.00 | $2521.06 | $0.00 |
Values
| (+) Improvement Homesite Value: | + | $0 | |
| (+) Improvement Non-Homesite Value: | + | $215,666 | |
| (+) Land Homesite Value: | + | $0 | |
| (+) Land Non-Homesite Value: | + | $132,668 | |
| (+) Curr Use (HS): | + | $0 | $0 |
| (+) Curr Use (NHS): | + | $0 | $0 |
| | | -------------------------- | |
| (=) Market Value: | = | $348,334 | |
| (–) Productivity Loss: | – | $0 | |
| | | -------------------------- | |
| (=) Subtotal: | = | $348,334 | |
| (+) Senior Appraised Value: | + | $0 | |
| (+) Non-Senior Appraised Value: | + | $348,334 | |
| | | -------------------------- | |
| (=) Total Appraised Value: | = | $348,334 | |
| (–) Senior Exemption Loss: | – | $0 | |
| (–) Exemption Loss: | – | $0 | |
| | | -------------------------- | |
| (=) Taxable Value: | = | $348,334 | |
Taxing Jurisdiction
| Owner: | WOODMAN CANAL PROPERTY LLC | | |
| % Ownership: | 100.0000000000% | | |
| Total Value: | $348,334 | | |
| Tax Area: | 0213 - 1-49F1E1H2L1 |
| CE | COUNTY CURRENT EXPENSE | 0.9034619479 | $348,334 | $348,334 | $314.71 | | |
| CNTYDD | DEVELOPMENTAL DISABILITIES | 0.0052121823 | $348,334 | $348,334 | $1.82 | | |
| CNTYVET | VETERANS RELIEF | 0.0052777810 | $348,334 | $348,334 | $1.84 | | |
| MENTAL | MENTAL HEALTH | 0.0052121823 | $348,334 | $348,334 | $1.82 | | |
| ROADS | COUNTY ROADS | 0.7415066410 | $348,334 | $348,334 | $258.29 | | |
| ROADSCU | COUNTY ROADS TO CUR EXP | 0.0000000000 | $348,334 | $348,334 | $0.00 | | |
| HOSP2CASH | HOSP DIST #2 GENERAL | 0.0536075306 | $348,334 | $348,334 | $18.67 | | |
| SCH49CP | SCHOOL DIST #49 CAP PROJ | 0.6279093905 | $348,334 | $348,334 | $218.72 | | |
| SCH49MO | SCHOOL DIST #49 EP & O | 0.6376483602 | $348,334 | $348,334 | $222.11 | | |
| CONSERVE | CONSERVATION FUTURES | 0.0275621078 | $348,334 | $348,334 | $9.60 | | |
| EMS1 | FIRE DIST #1 EMS | 0.4679948282 | $348,334 | $348,334 | $163.02 | | |
| FD1 | FIRE DIST #1 GENERAL | 1.2171942929 | $348,334 | $348,334 | $423.99 | | |
| LIB1 | LIBRARY DIST #1 GENERAL | 0.2868827388 | $348,334 | $348,334 | $99.93 | | |
| PORTPT | PORT OF PT GENERAL | 0.1134941229 | $348,334 | $348,334 | $39.53 | | |
| PORTPTIDD | PORT OF PT IDD 2019 | 0.2577346692 | $348,334 | $348,334 | $89.78 | | |
| PUD1 | PUD #1 GENERAL | 0.0597888892 | $348,334 | $348,334 | $20.83 | | |
| STATE | STATE SCHOOL PART 1 | 1.4940692947 | $348,334 | $348,334 | $520.44 | | |
| STATE2 | STATE SCHOOL PART 2 | 0.8050170049 | $348,334 | $348,334 | $280.41 | | |
| | Total Tax Rate: | 7.7095739644 | | | | | |
| | | | | Taxes w/Current Exemptions: | $2,685.51 | | |
| | | | | Taxes w/o Exemptions: | $2,685.51 | | |
Improvement / Building
| Improvement #1: | Residential Bldg | State Code: | 11 | 1472.0 sqft | Value: | $215,666 |
| Bathrooms (#): | 2 (FULL) | Bedrooms (#): | 3 | | Exterior Wall: | PL/T1 | Fireplace: | WD ST-GOOD | | Floor Construction: | FRAME | Foundation: | CONPR | | Heating/Cooling: | ELBB | Inside Verify: | NO | | Roof Cover: | COMP |   |   |
|
| | Type | Description | Class CD | Sub Class CD | Year Built | Area |
| | MA | Main Area | 3- | 15SF | 1986 | 864.0 |
| | MA2 | Second Floor Main Area | 3- | 15SF | 1986 | 608.0 |
| | HBAL | House Balcony | 3 | * | 1986 | 36.0 |
| | HDECK | House Deck | 3 | * | 1986 | 576.0 |
| | BSMTF | House basement finished | 1 | * | 1986 | 432.0 |
| | BSMTU | House basement unfinished | 1 | * | 1986 | 432.0 |
Sketch
Property Image
Land
| 1 | 3440-1355S | | 1.0000 | 43560.00 | 0.00 | 0.00 | 1.00 | $94,500 | $0 |
| 2 | 1677A | | 7.2700 | 316681.20 | 0.00 | 0.00 | 0.00 | $38,168 | $0 |
Roll Value History
| 2026 | N/A | N/A | N/A | N/A | N/A |
| 2025 | $215,666 | $132,668 | $0 | $348,334 | $348,334 |
| 2024 | $205,863 | $126,350 | $0 | $332,213 | $332,213 |
| 2023 | $205,863 | $119,896 | $0 | $325,759 | $325,759 |
| 2022 | $205,863 | $111,988 | $0 | $317,851 | $317,851 |
Deed and Sales History
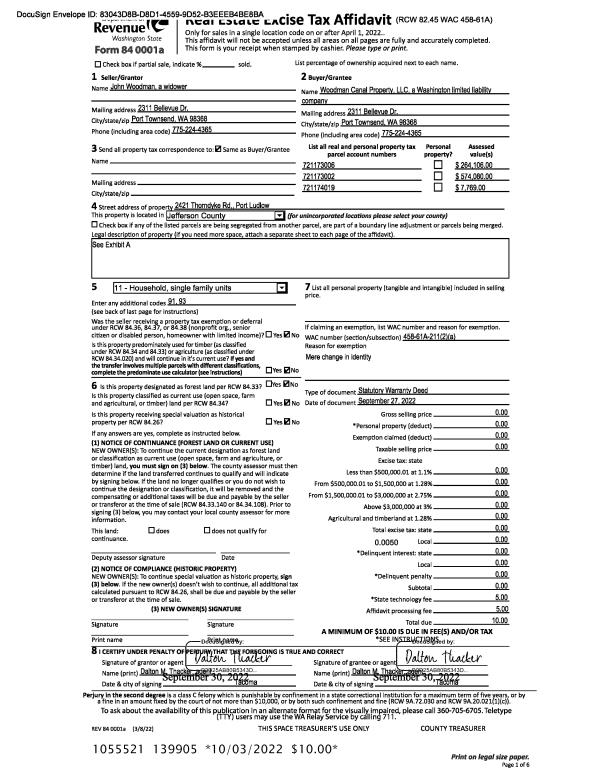
| 1 | 09/27/2022 | SWD | Statutory Warranty Deed | ROBERT G WOODMAN | WOODMAN CANAL PROPERTY LLC | | | | 139905 | |
| 2 | 09/27/2022 | SPWD | Special Warranty Deed | ESTATE OF MARY WOODMAN | ROBERT G WOODMAN | | | | 139903 | |
| 3 | 01/07/2015 | SWD | Statutory Warranty Deed | | | | | | 122812 | |
| 4 | 12/23/2014 | SWD | Statutory Warranty Deed | | | | | | 122468 | |
Payout Agreement
| No payout information available.. |