Property
Account |
| Property ID: | 19234 | Abbreviated Legal Description: | S1 28 R1W TAX 2(LESS TAX 4) |
| Parcel # / Geo ID: | 801012007 | Agent Code: | |
| Type: | Real | | |
| Tax Area: | 0213 - 1-49F1E1H2L1 | Land Use Code | 11 |
| Open Space: | N | DFL | N |
| Historic Property: | N | Remodel Property: | N |
| Multi-Family Redevelopment: | N | | |
| Township: | 28N | Section: | 1 |
| Range: | 1W |
Location |
| Address: | 2601 EGG & I RD CHIMACUM, WA 98325 | Mapsco: | 191/042 |
| Neighborhood: | S1 T28N R1W | Map ID: | |
| Neighborhood CD: | 3110 |
Owner |
| Name: | SAM A JUSTIS | Owner ID: | 111275 |
| Mailing Address: | ZOE A MOORE 2601 EGG AND I RD CHIMACUM, WA 98325-9724 | % Ownership: | 100.0000000000% |
| | | Exemptions: | |
Pay Tax Due
Select the appropriate checkbox next to the year to be paid. Multiple years may be selected.
*Convenience Fee not included
Taxes and Assessment Details
Property Tax Information as of
03/11/2026
Click on "Statement Details" to expand or collapse a tax statement.
* Please enter a valid date ** Please enter a valid date *
Statement Details |
| 2026 | 8756 | STATE - STATE LEVY (SCHOOL) | $337.18 | $337.17 | $0.00 | $0.00 | $0.00 | $674.35 |
| 2026 | 8756 | COUNTY - COUNTY LEVIES (CE, DD, VET, MH) | $134.82 | $134.79 | $0.00 | $0.00 | $0.00 | $269.61 |
| 2026 | 8756 | CONSERVE - CONSERVATION FUTURES | $4.04 | $4.04 | $0.00 | $0.00 | $0.00 | $8.08 |
| 2026 | 8756 | COROADS - COUNTY ROADS (ROADS, DIV TO CE) | $108.75 | $108.75 | $0.00 | $0.00 | $0.00 | $217.50 |
| 2026 | 8756 | PORTPT - PORT DISTRICT | $54.45 | $54.44 | $0.00 | $0.00 | $0.00 | $108.89 |
| 2026 | 8756 | PUD1 - PUD #1 | $8.77 | $8.77 | $0.00 | $0.00 | $0.00 | $17.54 |
| 2026 | 8756 | LIB1 - LIBRARY DIST #1 | $42.08 | $42.07 | $0.00 | $0.00 | $0.00 | $84.15 |
| 2026 | 8756 | HD2 - HOSP DIST #2 | $7.86 | $7.86 | $0.00 | $0.00 | $0.00 | $15.72 |
| 2026 | 8756 | SD49 - SCHOOL DIST #49 | $185.61 | $185.60 | $0.00 | $0.00 | $0.00 | $371.21 |
| 2026 | 8756 | FD1 - FIRE DISTRICT #1 | $178.51 | $178.51 | $0.00 | $0.00 | $0.00 | $357.02 |
| 2026 | 8756 | EMS1 - FIRE DIST #1 EMS | $68.64 | $68.63 | $0.00 | $0.00 | $0.00 | $137.27 |
| 2026 | 8756 | FP - DNR Forest Fire Protection Assmt | $8.50 | $8.50 | $0.00 | $0.00 | $0.00 | $17.00 |
| 2026 | 8756 | FPLCA - DNR Landowner Contingency Assmt | $3.00 | $3.00 | $0.00 | $0.00 | $0.00 | $6.00 |
| 2026 | 8756 | JCCD - JC Conservation District | $2.65 | $2.65 | $0.00 | $0.00 | $0.00 | $5.30 |
| 2026 | 8756 | NWA - Noxious Weed Assessment | $3.43 | $3.42 | $0.00 | $0.00 | $0.00 | $6.85 |
| 2026 | 8756 | OSS - On Site Septic | $23.10 | $23.10 | $0.00 | $0.00 | $0.00 | $46.20 |
| 2026 | 8756 | WAT - Clean Water District | $13.00 | $13.00 | $0.00 | $0.00 | $0.00 | $26.00 |
| 2026 | 8756 | FP ADMIN - FP ADMIN | $0.50 | $0.00 | $0.00 | $0.00 | $0.00 | $0.50 |
| 2026 | 8756 | TOTAL: | $1184.89 | $1184.30 | $0.00 | $0.00 | $0.00 | $2369.19 |
|
| 2026 | 8756 | $1184.89 | $1184.30 | $0.00 | $0.00 | $0.00 | $2369.19 |
Statement Details |
| 2025 | 8777 | STATE - STATE LEVY (SCHOOL) | $336.79 | $336.78 | $0.00 | $0.00 | $673.57 | $0.00 |
| 2025 | 8777 | COUNTY - COUNTY LEVIES (CE, DD, VET, MH) | $132.44 | $132.44 | $0.00 | $0.00 | $264.88 | $0.00 |
| 2025 | 8777 | CONSERVE - CONSERVATION FUTURES | $3.97 | $3.97 | $0.00 | $0.00 | $7.94 | $0.00 |
| 2025 | 8777 | COROADS - COUNTY ROADS (ROADS, DIV TO CE) | $106.11 | $106.10 | $0.00 | $0.00 | $212.21 | $0.00 |
| 2025 | 8777 | PORTPT - PORT DISTRICT | $54.05 | $54.04 | $0.00 | $0.00 | $108.09 | $0.00 |
| 2025 | 8777 | PUD1 - PUD #1 | $8.67 | $8.66 | $0.00 | $0.00 | $17.33 | $0.00 |
| 2025 | 8777 | LIB1 - LIBRARY DIST #1 | $41.05 | $41.05 | $0.00 | $0.00 | $82.10 | $0.00 |
| 2025 | 8777 | HD2 - HOSP DIST #2 | $7.73 | $7.72 | $0.00 | $0.00 | $15.45 | $0.00 |
| 2025 | 8777 | SD49 - SCHOOL DIST #49 | $180.51 | $180.49 | $0.00 | $0.00 | $361.00 | $0.00 |
| 2025 | 8777 | FD1 - FIRE DISTRICT #1 | $174.77 | $174.77 | $0.00 | $0.00 | $349.54 | $0.00 |
| 2025 | 8777 | EMS1 - FIRE DIST #1 EMS | $67.22 | $67.22 | $0.00 | $0.00 | $134.44 | $0.00 |
| 2025 | 8777 | FP - DNR Forest Fire Protection Assmt | $8.50 | $8.50 | $0.00 | $0.00 | $17.00 | $0.00 |
| 2025 | 8777 | FPLCA - DNR Landowner Contingency Assmt | $3.00 | $3.00 | $0.00 | $0.00 | $6.00 | $0.00 |
| 2025 | 8777 | JCCD - JC Conservation District | $2.65 | $2.65 | $0.00 | $0.00 | $5.30 | $0.00 |
| 2025 | 8777 | NWA - Noxious Weed Assessment | $2.45 | $2.45 | $0.00 | $0.00 | $4.90 | $0.00 |
| 2025 | 8777 | WAT - Clean Water District | $13.00 | $13.00 | $0.00 | $0.00 | $26.00 | $0.00 |
| 2025 | 8777 | FP ADMIN - FP ADMIN | $0.50 | $0.00 | $0.00 | $0.00 | $0.50 | $0.00 |
| 2025 | 8777 | TOTAL: | $1143.41 | $1142.84 | $0.00 | $0.00 | $2286.25 | $0.00 |
|
| 2025 | 8777 | $1143.41 | $1142.84 | $0.00 | $0.00 | $2286.25 | $0.00 |
Statement Details |
| 2024 | 8801 | STATE - STATE LEVY (SCHOOL) | $109.55 | $109.53 | $0.00 | $0.00 | $219.08 | $0.00 |
| 2024 | 8801 | COUNTY - COUNTY LEVIES (CE, DD, VET, MH) | $51.16 | $51.16 | $0.00 | $0.00 | $102.32 | $0.00 |
| 2024 | 8801 | CONSERVE - CONSERVATION FUTURES | $1.54 | $1.53 | $0.00 | $0.00 | $3.07 | $0.00 |
| 2024 | 8801 | COROADS - COUNTY ROADS (ROADS, DIV TO CE) | $41.17 | $41.17 | $0.00 | $0.00 | $82.34 | $0.00 |
| 2024 | 8801 | PORTPT - PORT DISTRICT | $21.14 | $21.12 | $0.00 | $0.00 | $42.26 | $0.00 |
| 2024 | 8801 | PUD1 - PUD #1 | $3.36 | $3.36 | $0.00 | $0.00 | $6.72 | $0.00 |
| 2024 | 8801 | LIB1 - LIBRARY DIST #1 | $15.93 | $15.92 | $0.00 | $0.00 | $31.85 | $0.00 |
| 2024 | 8801 | HD2 - HOSP DIST #2 | $2.99 | $2.98 | $0.00 | $0.00 | $5.97 | $0.00 |
| 2024 | 8801 | SD49 - SCHOOL DIST #49 | $40.58 | $40.57 | $0.00 | $0.00 | $81.15 | $0.00 |
| 2024 | 8801 | FD1 - FIRE DISTRICT #1 | $67.65 | $67.64 | $0.00 | $0.00 | $135.29 | $0.00 |
| 2024 | 8801 | EMS1 - FIRE DIST #1 EMS | $25.84 | $25.84 | $0.00 | $0.00 | $51.68 | $0.00 |
| 2024 | 8801 | FP - DNR Forest Fire Protection Assmt | $8.50 | $8.50 | $0.00 | $0.00 | $17.00 | $0.00 |
| 2024 | 8801 | FPLCA - DNR Landowner Contingency Assmt | $3.00 | $3.00 | $0.00 | $0.00 | $6.00 | $0.00 |
| 2024 | 8801 | FP ADMIN - FP ADMIN | $0.50 | $0.00 | $0.00 | $0.00 | $0.50 | $0.00 |
| 2024 | 8801 | TOTAL: | $392.91 | $392.32 | $0.00 | $0.00 | $785.23 | $0.00 |
|
| 2024 | 8801 | $392.91 | $392.32 | $0.00 | $0.00 | $785.23 | $0.00 |
Statement Details |
| 2023 | 8818 | STATE - STATE LEVY (SCHOOL) | $31.94 | $31.94 | $0.00 | $0.00 | $63.88 | $0.00 |
| 2023 | 8818 | COUNTY - COUNTY LEVIES (CE, DD, VET, MH) | $21.40 | $21.39 | $0.00 | $0.00 | $42.79 | $0.00 |
| 2023 | 8818 | CONSERVE - CONSERVATION FUTURES | $0.64 | $0.64 | $0.00 | $0.00 | $1.28 | $0.00 |
| 2023 | 8818 | COROADS - COUNTY ROADS (ROADS, DIV TO CE) | $17.31 | $17.31 | $0.00 | $0.00 | $34.62 | $0.00 |
| 2023 | 8818 | PORTPT - PORT DISTRICT | $9.01 | $9.01 | $0.00 | $0.00 | $18.02 | $0.00 |
| 2023 | 8818 | PUD1 - PUD #1 | $1.42 | $1.42 | $0.00 | $0.00 | $2.84 | $0.00 |
| 2023 | 8818 | LIB1 - LIBRARY DIST #1 | $6.70 | $6.69 | $0.00 | $0.00 | $13.39 | $0.00 |
| 2023 | 8818 | HD2 - HOSP DIST #2 | $1.25 | $1.25 | $0.00 | $0.00 | $2.50 | $0.00 |
| 2023 | 8818 | SD49 - SCHOOL DIST #49 | $0.00 | $0.00 | $0.00 | $0.00 | $0.00 | $0.00 |
| 2023 | 8818 | FD3 - FIRE DISTRICT #3 | $21.29 | $21.28 | $0.00 | $0.00 | $42.57 | $0.00 |
| 2023 | 8818 | EMS3 - FIRE DIST #3 EMS | $7.61 | $7.61 | $0.00 | $0.00 | $15.22 | $0.00 |
| 2023 | 8818 | FP - DNR Forest Fire Protection Assmt | $8.50 | $8.50 | $0.00 | $0.00 | $17.00 | $0.00 |
| 2023 | 8818 | FPLCA - DNR Landowner Contingency Assmt | $3.00 | $3.00 | $0.00 | $0.00 | $6.00 | $0.00 |
| 2023 | 8818 | FP ADMIN - FP ADMIN | $0.50 | $0.00 | $0.00 | $0.00 | $0.50 | $0.00 |
| 2023 | 8818 | TOTAL: | $130.57 | $130.04 | $0.00 | $0.00 | $260.61 | $0.00 |
|
| 2023 | 8818 | $130.57 | $130.04 | $0.00 | $0.00 | $260.61 | $0.00 |
Values
| (+) Improvement Homesite Value: | + | $178,674 | |
| (+) Improvement Non-Homesite Value: | + | $0 | |
| (+) Land Homesite Value: | + | $114,641 | |
| (+) Land Non-Homesite Value: | + | $0 | |
| (+) Curr Use (HS): | + | $0 | $0 |
| (+) Curr Use (NHS): | + | $0 | $0 |
| | | -------------------------- | |
| (=) Market Value: | = | $293,315 | |
| (–) Productivity Loss: | – | $0 | |
| | | -------------------------- | |
| (=) Subtotal: | = | $293,315 | |
| (+) Senior Appraised Value: | + | $0 | |
| (+) Non-Senior Appraised Value: | + | $293,315 | |
| | | -------------------------- | |
| (=) Total Appraised Value: | = | $293,315 | |
| (–) Senior Exemption Loss: | – | $0 | |
| (–) Exemption Loss: | – | $0 | |
| | | -------------------------- | |
| (=) Taxable Value: | = | $293,315 | |
Taxing Jurisdiction
| Owner: | SAM A JUSTIS | | |
| % Ownership: | 100.0000000000% | | |
| Total Value: | $293,315 | | |
| Tax Area: | 0213 - 1-49F1E1H2L1 |
| CE | COUNTY CURRENT EXPENSE | 0.9034619479 | $293,315 | $293,315 | $265.00 | | |
| CNTYDD | DEVELOPMENTAL DISABILITIES | 0.0052121823 | $293,315 | $293,315 | $1.53 | | |
| CNTYVET | VETERANS RELIEF | 0.0052777810 | $293,315 | $293,315 | $1.55 | | |
| MENTAL | MENTAL HEALTH | 0.0052121823 | $293,315 | $293,315 | $1.53 | | |
| ROADS | COUNTY ROADS | 0.7415066410 | $293,315 | $293,315 | $217.50 | | |
| ROADSCU | COUNTY ROADS TO CUR EXP | 0.0000000000 | $293,315 | $293,315 | $0.00 | | |
| HOSP2CASH | HOSP DIST #2 GENERAL | 0.0536075306 | $293,315 | $293,315 | $15.72 | | |
| SCH49CP | SCHOOL DIST #49 CAP PROJ | 0.6279093905 | $293,315 | $293,315 | $184.18 | | |
| SCH49MO | SCHOOL DIST #49 EP & O | 0.6376483602 | $293,315 | $293,315 | $187.03 | | |
| CONSERVE | CONSERVATION FUTURES | 0.0275621078 | $293,315 | $293,315 | $8.08 | | |
| EMS1 | FIRE DIST #1 EMS | 0.4679948282 | $293,315 | $293,315 | $137.27 | | |
| FD1 | FIRE DIST #1 GENERAL | 1.2171942929 | $293,315 | $293,315 | $357.02 | | |
| LIB1 | LIBRARY DIST #1 GENERAL | 0.2868827388 | $293,315 | $293,315 | $84.15 | | |
| PORTPT | PORT OF PT GENERAL | 0.1134941229 | $293,315 | $293,315 | $33.29 | | |
| PORTPTIDD | PORT OF PT IDD 2019 | 0.2577346692 | $293,315 | $293,315 | $75.60 | | |
| PUD1 | PUD #1 GENERAL | 0.0597888892 | $293,315 | $293,315 | $17.54 | | |
| STATE | STATE SCHOOL PART 1 | 1.4940692947 | $293,315 | $293,315 | $438.23 | | |
| STATE2 | STATE SCHOOL PART 2 | 0.8050170049 | $293,315 | $293,315 | $236.12 | | |
| | Total Tax Rate: | 7.7095739644 | | | | | |
| | | | | Taxes w/Current Exemptions: | $2,261.34 | | |
| | | | | Taxes w/o Exemptions: | $2,261.34 | | |
Improvement / Building
| Improvement #1: | Residential Bldg | State Code: | 11 | 1341.0 sqft | Value: | $178,674 |
| Bathrooms (#): | 1 (FULL) | Bedrooms (#): | 3 | | Exterior Wall: | PL/T1 | Floor Construction: | FRAME | | Foundation: | CONPR | Heating/Cooling: | F/A | | Inside Verify: | YES-FIX | Roof Cover: | COMP |
|
| | Type | Description | Class CD | Sub Class CD | Year Built | Area |
| | MA | Main Area | 3- | 1S | 1950 | 1341.0 |
| | PATIO | House Patio | 3 | 1S | 1950 | 840.0 |
| | GDET | Detached Garage | 3 | 1S | 1950 | 1120.0 |
Sketch
| No sketches available for this property. |
Property Image
Land
| 1 | 1572A | | 1.2500 | 54450.00 | 0.00 | 0.00 | 0.00 | $22,641 | $0 |
| 2 | 3110-1385S | | 1.0000 | 43560.00 | 0.00 | 0.00 | 1.00 | $92,000 | $0 |
Roll Value History
| 2026 | N/A | N/A | N/A | N/A | N/A |
| 2025 | $178,674 | $114,641 | $0 | $293,315 | $293,315 |
| 2024 | $171,229 | $109,657 | $0 | $280,886 | $280,886 |
| 2023 | $108,617 | $85,625 | $0 | $194,242 | $41,652 |
| 2022 | $103,680 | $79,375 | $0 | $183,055 | $41,652 |
Deed and Sales History
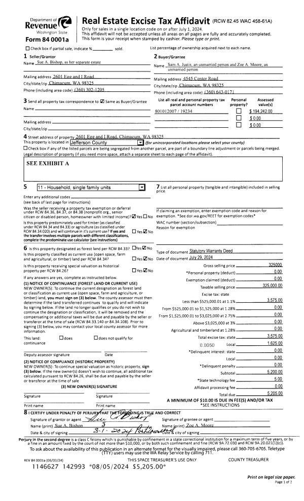
| 1 | 07/29/2024 | SWD | Statutory Warranty Deed | SUE A BISHOP | SAM A JUSTIS | | | $325,000.00 | 142993 | |
| 2 | 01/09/2023 | DTH CERT | Death Certificate | ALVIN R BISHOP | SUE A BISHOP | | | | 0 | |
| 3 | 06/02/1997 | QCD | Quit Claim Deed | BISHOP, ALVIN R | BISHOP, ALVIN R/SUE A | 0 | 0 | $0.00 | 82065 | 0 |
Payout Agreement
| No payout information available.. |