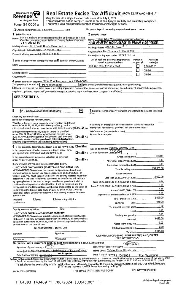
Property
Account |
| Property ID: | 19404 | Abbreviated Legal Description: | S5 T28 R1W TAX 3 |
| Parcel # / Geo ID: | 801051004 | Agent Code: | |
| Type: | Real | | |
| Tax Area: | 0151 - 1-50F5E5H2L1 | Land Use Code | 11 |
| Open Space: | N | DFL | N |
| Historic Property: | N | Remodel Property: | N |
| Multi-Family Redevelopment: | N | | |
| Township: | 28N | Section: | 5 |
| Range: | 1W |
Location |
| Address: | 160 BERRY HILL LN PORT TOWNSEND, WA 98368 | Mapsco: | 073/011 |
| Neighborhood: | S 5-8 T28 R1W | Map ID: | |
| Neighborhood CD: | 5110 |
Owner |
| Name: | JASSEN L BOWMAN | Owner ID: | 102304 |
| Mailing Address: | PO BOX 217 CHIMACUM, WA 98325-0217 | % Ownership: | 100.0000000000% |
| | | Exemptions: | |
Pay Tax Due
Select the appropriate checkbox next to the year to be paid. Multiple years may be selected.
*Convenience Fee not included
Taxes and Assessment Details
Property Tax Information as of
03/11/2026
Click on "Statement Details" to expand or collapse a tax statement.
* Please enter a valid date ** Please enter a valid date *
Statement Details |
| 2026 | 8923 | STATE - STATE LEVY (SCHOOL) | $663.18 | $663.16 | $0.00 | $0.00 | $0.00 | $1326.34 |
| 2026 | 8923 | COUNTY - COUNTY LEVIES (CE, DD, VET, MH) | $265.15 | $265.12 | $0.00 | $0.00 | $0.00 | $530.27 |
| 2026 | 8923 | CONSERVE - CONSERVATION FUTURES | $7.95 | $7.95 | $0.00 | $0.00 | $0.00 | $15.90 |
| 2026 | 8923 | COROADS - COUNTY ROADS (ROADS, DIV TO CE) | $213.89 | $213.88 | $0.00 | $0.00 | $0.00 | $427.77 |
| 2026 | 8923 | PORTPT - PORT DISTRICT | $107.09 | $107.07 | $0.00 | $0.00 | $0.00 | $214.16 |
| 2026 | 8923 | PUD1 - PUD #1 | $17.25 | $17.24 | $0.00 | $0.00 | $0.00 | $34.49 |
| 2026 | 8923 | LIB1 - LIBRARY DIST #1 | $82.75 | $82.75 | $0.00 | $0.00 | $0.00 | $165.50 |
| 2026 | 8923 | HD2 - HOSP DIST #2 | $15.47 | $15.46 | $0.00 | $0.00 | $0.00 | $30.93 |
| 2026 | 8923 | SD50 - SCHOOL DIST #50 | $525.37 | $525.37 | $0.00 | $0.00 | $0.00 | $1050.74 |
| 2026 | 8923 | FD5 - FIRE DISTRICT #5 | $308.17 | $308.17 | $0.00 | $0.00 | $0.00 | $616.34 |
| 2026 | 8923 | EMS5 - FIRE DIST #5 EMS | $109.95 | $109.94 | $0.00 | $0.00 | $0.00 | $219.89 |
| 2026 | 8923 | FP - DNR Forest Fire Protection Assmt | $8.50 | $8.50 | $0.00 | $0.00 | $0.00 | $17.00 |
| 2026 | 8923 | FPLCA - DNR Landowner Contingency Assmt | $3.00 | $3.00 | $0.00 | $0.00 | $0.00 | $6.00 |
| 2026 | 8923 | JCCD - JC Conservation District | $2.80 | $2.80 | $0.00 | $0.00 | $0.00 | $5.60 |
| 2026 | 8923 | NWA - Noxious Weed Assessment | $4.10 | $4.10 | $0.00 | $0.00 | $0.00 | $8.20 |
| 2026 | 8923 | OSS - On Site Septic | $23.10 | $23.10 | $0.00 | $0.00 | $0.00 | $46.20 |
| 2026 | 8923 | WAT - Clean Water District | $13.00 | $13.00 | $0.00 | $0.00 | $0.00 | $26.00 |
| 2026 | 8923 | FP ADMIN - FP ADMIN | $0.50 | $0.00 | $0.00 | $0.00 | $0.00 | $0.50 |
| 2026 | 8923 | TOTAL: | $2371.22 | $2370.61 | $0.00 | $0.00 | $0.00 | $4741.83 |
|
| 2026 | 8923 | $2371.22 | $2370.61 | $0.00 | $0.00 | $0.00 | $4741.83 |
Statement Details |
| 2025 | 8944 | STATE - STATE LEVY (SCHOOL) | $630.75 | $630.75 | $0.00 | $0.00 | $1261.50 | $0.00 |
| 2025 | 8944 | COUNTY - COUNTY LEVIES (CE, DD, VET, MH) | $249.74 | $249.71 | $0.00 | $0.00 | $499.45 | $0.00 |
| 2025 | 8944 | CONSERVE - CONSERVATION FUTURES | $7.49 | $7.49 | $0.00 | $0.00 | $14.98 | $0.00 |
| 2025 | 8944 | COROADS - COUNTY ROADS (ROADS, DIV TO CE) | $200.07 | $200.06 | $0.00 | $0.00 | $400.13 | $0.00 |
| 2025 | 8944 | PORTPT - PORT DISTRICT | $101.91 | $101.89 | $0.00 | $0.00 | $203.80 | $0.00 |
| 2025 | 8944 | PUD1 - PUD #1 | $16.34 | $16.34 | $0.00 | $0.00 | $32.68 | $0.00 |
| 2025 | 8944 | LIB1 - LIBRARY DIST #1 | $77.41 | $77.40 | $0.00 | $0.00 | $154.81 | $0.00 |
| 2025 | 8944 | HD2 - HOSP DIST #2 | $14.57 | $14.57 | $0.00 | $0.00 | $29.14 | $0.00 |
| 2025 | 8944 | SD50 - SCHOOL DIST #50 | $455.17 | $455.15 | $0.00 | $0.00 | $910.32 | $0.00 |
| 2025 | 8944 | FD5 - FIRE DISTRICT #5 | $290.41 | $290.40 | $0.00 | $0.00 | $580.81 | $0.00 |
| 2025 | 8944 | EMS5 - FIRE DIST #5 EMS | $103.68 | $103.68 | $0.00 | $0.00 | $207.36 | $0.00 |
| 2025 | 8944 | FP - DNR Forest Fire Protection Assmt | $8.50 | $8.50 | $0.00 | $0.00 | $17.00 | $0.00 |
| 2025 | 8944 | FPLCA - DNR Landowner Contingency Assmt | $3.00 | $3.00 | $0.00 | $0.00 | $6.00 | $0.00 |
| 2025 | 8944 | JCCD - JC Conservation District | $2.80 | $2.80 | $0.00 | $0.00 | $5.60 | $0.00 |
| 2025 | 8944 | NWA - Noxious Weed Assessment | $2.90 | $2.90 | $0.00 | $0.00 | $5.80 | $0.00 |
| 2025 | 8944 | OSS - On Site Septic | $21.50 | $21.50 | $0.00 | $0.00 | $43.00 | $0.00 |
| 2025 | 8944 | WAT - Clean Water District | $13.00 | $13.00 | $0.00 | $0.00 | $26.00 | $0.00 |
| 2025 | 8944 | FP ADMIN - FP ADMIN | $0.50 | $0.00 | $0.00 | $0.00 | $0.50 | $0.00 |
| 2025 | 8944 | TOTAL: | $2199.74 | $2199.14 | $0.00 | $0.00 | $4398.88 | $0.00 |
|
| 2025 | 8944 | $2199.74 | $2199.14 | $0.00 | $0.00 | $4398.88 | $0.00 |
Statement Details |
| 2024 | 8968 | STATE - STATE LEVY (SCHOOL) | $91.05 | $91.03 | $0.00 | $0.00 | $182.08 | $0.00 |
| 2024 | 8968 | COUNTY - COUNTY LEVIES (CE, DD, VET, MH) | $55.91 | $55.89 | $0.00 | $0.00 | $111.80 | $0.00 |
| 2024 | 8968 | CONSERVE - CONSERVATION FUTURES | $1.68 | $1.67 | $0.00 | $0.00 | $3.35 | $0.00 |
| 2024 | 8968 | COROADS - COUNTY ROADS (ROADS, DIV TO CE) | $44.99 | $44.97 | $0.00 | $0.00 | $89.96 | $0.00 |
| 2024 | 8968 | PORTPT - PORT DISTRICT | $23.09 | $23.08 | $0.00 | $0.00 | $46.17 | $0.00 |
| 2024 | 8968 | PUD1 - PUD #1 | $3.67 | $3.67 | $0.00 | $0.00 | $7.34 | $0.00 |
| 2024 | 8968 | LIB1 - LIBRARY DIST #1 | $17.41 | $17.40 | $0.00 | $0.00 | $34.81 | $0.00 |
| 2024 | 8968 | HD2 - HOSP DIST #2 | $3.26 | $3.26 | $0.00 | $0.00 | $6.52 | $0.00 |
| 2024 | 8968 | SD50 - SCHOOL DIST #50 | $13.93 | $13.93 | $0.00 | $0.00 | $27.86 | $0.00 |
| 2024 | 8968 | FD5 - FIRE DISTRICT #5 | $53.78 | $53.77 | $0.00 | $0.00 | $107.55 | $0.00 |
| 2024 | 8968 | EMS5 - FIRE DIST #5 EMS | $22.42 | $22.41 | $0.00 | $0.00 | $44.83 | $0.00 |
| 2024 | 8968 | FP - DNR Forest Fire Protection Assmt | $8.50 | $8.50 | $0.00 | $0.00 | $17.00 | $0.00 |
| 2024 | 8968 | FPLCA - DNR Landowner Contingency Assmt | $3.00 | $3.00 | $0.00 | $0.00 | $6.00 | $0.00 |
| 2024 | 8968 | FP ADMIN - FP ADMIN | $0.50 | $0.00 | $0.00 | $0.00 | $0.50 | $0.00 |
| 2024 | 8968 | TOTAL: | $343.19 | $342.58 | $0.00 | $0.00 | $685.77 | $0.00 |
|
| 2024 | 8968 | $343.19 | $342.58 | $0.00 | $0.00 | $685.77 | $0.00 |
Statement Details |
| 2023 | 8985 | STATE - STATE LEVY (SCHOOL) | $150.17 | $150.16 | $0.00 | $0.00 | $300.33 | $0.00 |
| 2023 | 8985 | COUNTY - COUNTY LEVIES (CE, DD, VET, MH) | $96.87 | $96.86 | $0.00 | $0.00 | $193.73 | $0.00 |
| 2023 | 8985 | CONSERVE - CONSERVATION FUTURES | $2.91 | $2.90 | $0.00 | $0.00 | $5.81 | $0.00 |
| 2023 | 8985 | COROADS - COUNTY ROADS (ROADS, DIV TO CE) | $78.38 | $78.36 | $0.00 | $0.00 | $156.74 | $0.00 |
| 2023 | 8985 | PORTPT - PORT DISTRICT | $40.81 | $40.80 | $0.00 | $0.00 | $81.61 | $0.00 |
| 2023 | 8985 | PUD1 - PUD #1 | $6.42 | $6.42 | $0.00 | $0.00 | $12.84 | $0.00 |
| 2023 | 8985 | LIB1 - LIBRARY DIST #1 | $30.32 | $30.32 | $0.00 | $0.00 | $60.64 | $0.00 |
| 2023 | 8985 | HD2 - HOSP DIST #2 | $5.65 | $5.65 | $0.00 | $0.00 | $11.30 | $0.00 |
| 2023 | 8985 | SD50 - SCHOOL DIST #50 | $12.61 | $12.60 | $0.00 | $0.00 | $25.21 | $0.00 |
| 2023 | 8985 | FD5 - FIRE DISTRICT #5 | $92.01 | $92.00 | $0.00 | $0.00 | $184.01 | $0.00 |
| 2023 | 8985 | EMS5 - FIRE DIST #5 EMS | $37.89 | $37.89 | $0.00 | $0.00 | $75.78 | $0.00 |
| 2023 | 8985 | FP - DNR Forest Fire Protection Assmt | $8.50 | $8.50 | $0.00 | $0.00 | $17.00 | $0.00 |
| 2023 | 8985 | FPLCA - DNR Landowner Contingency Assmt | $3.00 | $3.00 | $0.00 | $0.00 | $6.00 | $0.00 |
| 2023 | 8985 | JCCD - JC Conservation District | $2.80 | $2.80 | $0.00 | $0.00 | $5.60 | $0.00 |
| 2023 | 8985 | NWA - Noxious Weed Assessment | $2.90 | $2.90 | $0.00 | $0.00 | $5.80 | $0.00 |
| 2023 | 8985 | WAT - Clean Water District | $12.00 | $12.00 | $0.00 | $0.00 | $24.00 | $0.00 |
| 2023 | 8985 | FP ADMIN - FP ADMIN | $0.50 | $0.00 | $0.00 | $0.00 | $0.50 | $0.00 |
| 2023 | 8985 | TOTAL: | $583.74 | $583.16 | $0.00 | $0.00 | $1166.90 | $0.00 |
|
| 2023 | 8985 | $583.74 | $583.16 | $0.00 | $0.00 | $1166.90 | $0.00 |
Values
| (+) Improvement Homesite Value: | + | $512,189 | |
| (+) Improvement Non-Homesite Value: | + | $23,000 | |
| (+) Land Homesite Value: | + | $39,875 | |
| (+) Land Non-Homesite Value: | + | $1,835 | |
| (+) Curr Use (HS): | + | $0 | $0 |
| (+) Curr Use (NHS): | + | $0 | $0 |
| | | -------------------------- | |
| (=) Market Value: | = | $576,899 | |
| (–) Productivity Loss: | – | $0 | |
| | | -------------------------- | |
| (=) Subtotal: | = | $576,899 | |
| (+) Senior Appraised Value: | + | $0 | |
| (+) Non-Senior Appraised Value: | + | $576,899 | |
| | | -------------------------- | |
| (=) Total Appraised Value: | = | $576,899 | |
| (–) Senior Exemption Loss: | – | $0 | |
| (–) Exemption Loss: | – | $0 | |
| | | -------------------------- | |
| (=) Taxable Value: | = | $576,899 | |
Taxing Jurisdiction
| Owner: | JASSEN L BOWMAN | | |
| % Ownership: | 100.0000000000% | | |
| Total Value: | $576,899 | | |
| Tax Area: | 0151 - 1-50F5E5H2L1 |
| CE | COUNTY CURRENT EXPENSE | 0.9034619479 | $576,899 | $576,899 | $521.21 | | |
| CNTYDD | DEVELOPMENTAL DISABILITIES | 0.0052121823 | $576,899 | $576,899 | $3.01 | | |
| CNTYVET | VETERANS RELIEF | 0.0052777810 | $576,899 | $576,899 | $3.04 | | |
| MENTAL | MENTAL HEALTH | 0.0052121823 | $576,899 | $576,899 | $3.01 | | |
| ROADS | COUNTY ROADS | 0.7415066410 | $576,899 | $576,899 | $427.77 | | |
| ROADSCU | COUNTY ROADS TO CUR EXP | 0.0000000000 | $576,899 | $576,899 | $0.00 | | |
| HOSP2CASH | HOSP DIST #2 GENERAL | 0.0536075306 | $576,899 | $576,899 | $30.93 | | |
| SCH50BOND | SCHOOL DIST #50 BOND 2016 | 0.5377451389 | $576,899 | $576,899 | $310.22 | | |
| SCH50CP | SCHOOL DIST #50 CAP PROJ | 0.4573475088 | $576,899 | $576,899 | $263.84 | | |
| SCH50MO | SCHOOL DIST #50 EP & O | 0.8262822886 | $576,899 | $576,899 | $476.68 | | |
| CONSERVE | CONSERVATION FUTURES | 0.0275621078 | $576,899 | $576,899 | $15.90 | | |
| EMS5 | FIRE DIST #5 EMS | 0.3811607070 | $576,899 | $576,899 | $219.89 | | |
| FD5 | FIRE DIST #5 GENERAL | 0.8460827285 | $576,899 | $576,899 | $488.10 | | |
| FD5BOND | FIRE DIST #5 BOND 2016 | 0.2222840608 | $576,899 | $576,899 | $128.24 | | |
| LIB1 | LIBRARY DIST #1 GENERAL | 0.2868827388 | $576,899 | $576,899 | $165.50 | | |
| PORTPT | PORT OF PT GENERAL | 0.1134941229 | $576,899 | $576,899 | $65.47 | | |
| PORTPTIDD | PORT OF PT IDD 2019 | 0.2577346692 | $576,899 | $576,899 | $148.69 | | |
| PUD1 | PUD #1 GENERAL | 0.0597888892 | $576,899 | $576,899 | $34.49 | | |
| STATE | STATE SCHOOL PART 1 | 1.4940692947 | $576,899 | $576,899 | $861.93 | | |
| STATE2 | STATE SCHOOL PART 2 | 0.8050170049 | $576,899 | $576,899 | $464.41 | | |
| | Total Tax Rate: | 8.0297295252 | | | | | |
| | | | | Taxes w/Current Exemptions: | $4,632.33 | | |
| | | | | Taxes w/o Exemptions: | $4,632.33 | | |
Improvement / Building
| Improvement #1: | Residential Bldg | State Code: | 11 | 2156.0 sqft | Value: | $512,189 |
| Bathrooms (#): | 1 (FULL) | Bedrooms (#): | 1 | | Exterior Wall: | METAL | Fireplace: | PROPS-GOOD | | Fireplace: | WD ST-GOOD | Foundation: | CONPR | | Roof Cover: | METAL |   |   |
|
| | Type | Description | Class CD | Sub Class CD | Year Built | Area |
| | MA | Main Area | 5 | 2S | 2018 | 1078.0 |
| | MA2 | Second Floor Main Area | 5 | 2S | 2018 | 1078.0 |
| Improvement #2: | Residential Bldg | State Code: | 11 | 0.0 sqft | Value: | $23,000 |
Sketch
Property Image
Land
| 1 | 1579A | | 5.0000 | 217800.00 | 0.00 | 0.00 | 0.00 | $39,875 | $0 |
| 2 | 1579A | | 0.2300 | 10018.80 | 0.00 | 0.00 | 0.00 | $1,835 | $0 |
Roll Value History
| 2026 | N/A | N/A | N/A | N/A | N/A |
| 2025 | $535,189 | $41,710 | $0 | $576,899 | $576,899 |
| 2024 | $535,189 | $41,710 | $0 | $576,899 | $122,874 |
| 2023 | $247,057 | $38,441 | $0 | $285,498 | $112,930 |
| 2022 | $224,597 | $33,995 | $0 | $258,592 | $188,592 |
Deed and Sales History
| 1 | 01/31/2025 | SWD | Statutory Warranty Deed | LEA JO LECHTENBERG | JASSEN L BOWMAN | | | $575,000.00 | 143856 | |
| 2 | 09/23/2024 | QCD | Quit Claim Deed | LEA JO CHRISTIE | LEA JO LECHTENBERG | | | | 143277 | |
| 3 | 08/22/2022 | QCD | Quit Claim Deed | RANDALL J LECHTENBERG | LEA JO CHRISTIE | | | | 139679 | |
| 4 | 01/18/2017 | QCD | Quit Claim Deed | PAMELA J MORGAN | RANDALL J LECHTENBERG | | | | 127104 | |
| 5 | 01/20/2017 | DTH CERT | Death Certificate | JAMES T MORGAN | PAMELA J MORGAN | | | | 126995 | |
| 6 | 10/31/2003 | REC | Real Estate Contract | SMITH, MARGUERITE/MARG LA | MORGAN, JAMES T/PAMELA J | 0 | 0 | $0.00 | 98927 | 0 |
| 7 | 10/31/2003 | REC | Real Estate Contract | SMITH, MARGUERITE R | MORGAN, JAMES T/PAMELA J | 0 | 0 | $0.00 | 98972 | 0 |
| 8 | 10/21/2003 | SWD | Statutory Warranty Deed | SMITH, MARGUERITE R ET AL | MORGAN, JAMES T & PAMELA J | 0 | 0 | $78,000.00 | 98752 | 0 |
|   | |
Payout Agreement
| No payout information available.. |