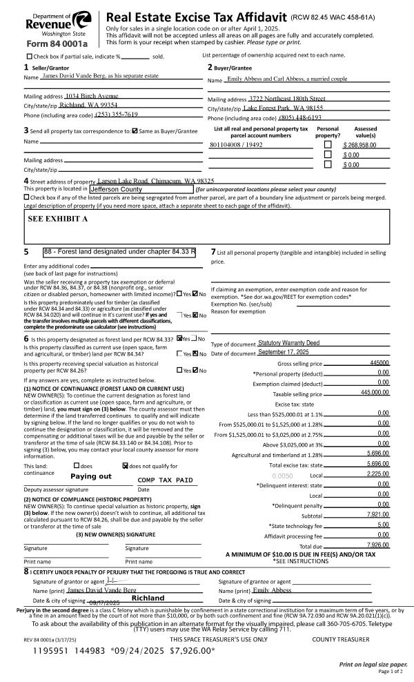
Property
Account |
| Property ID: | 19492 | Abbreviated Legal Description: | S10 T28 R1W TAX 26-PARCEL C-SURVEY V19/P79-80 |
| Parcel # / Geo ID: | 801104008 | Agent Code: | |
| Type: | Real | | |
| Tax Area: | 0202 - 1-49E1H2L1 | Land Use Code | 91 |
| Open Space: | N | DFL | N |
| Historic Property: | N | Remodel Property: | N |
| Multi-Family Redevelopment: | N | | |
| Township: | 28N | Section: | 10 |
| Range: | 1W |
Location |
| Address: | 1185 LARSON LAKE RD CHIMACUM, WA 98325 | Mapsco: | 194/028 |
| Neighborhood: | S9, S10, & S11 T28N R1W | Map ID: | |
| Neighborhood CD: | 4330 |
Owner |
| Name: | EMILY ABBESS | Owner ID: | 113421 |
| Mailing Address: | CARL ABBESS 3722 NE 180TH ST LAKE FOREST PARK, WA 98155 | % Ownership: | 100.0000000000% |
| | | Exemptions: | |
Pay Tax Due
There is currently No Amount Due on this property.
Taxes and Assessment Details
Property Tax Information as of
03/12/2026
Click on "Statement Details" to expand or collapse a tax statement.
* Please enter a valid date ** Please enter a valid date *
Statement Details |
| 2026 | 9009 | STATE - STATE LEVY (SCHOOL) | $323.91 | $323.90 | $0.00 | $0.00 | $647.81 | $0.00 |
| 2026 | 9009 | COUNTY - COUNTY LEVIES (CE, DD, VET, MH) | $129.51 | $129.48 | $0.00 | $0.00 | $258.99 | $0.00 |
| 2026 | 9009 | CONSERVE - CONSERVATION FUTURES | $3.89 | $3.88 | $0.00 | $0.00 | $7.77 | $0.00 |
| 2026 | 9009 | COROADS - COUNTY ROADS (ROADS, DIV TO CE) | $104.47 | $104.46 | $0.00 | $0.00 | $208.93 | $0.00 |
| 2026 | 9009 | PORTPT - PORT DISTRICT | $52.30 | $52.30 | $0.00 | $0.00 | $104.60 | $0.00 |
| 2026 | 9009 | PUD1 - PUD #1 | $8.43 | $8.42 | $0.00 | $0.00 | $16.85 | $0.00 |
| 2026 | 9009 | LIB1 - LIBRARY DIST #1 | $40.42 | $40.41 | $0.00 | $0.00 | $80.83 | $0.00 |
| 2026 | 9009 | HD2 - HOSP DIST #2 | $7.55 | $7.55 | $0.00 | $0.00 | $15.10 | $0.00 |
| 2026 | 9009 | SD49 - SCHOOL DIST #49 | $178.30 | $178.29 | $0.00 | $0.00 | $356.59 | $0.00 |
| 2026 | 9009 | EMS1 - FIRE DIST #1 EMS | $65.93 | $65.93 | $0.00 | $0.00 | $131.86 | $0.00 |
| 2026 | 9009 | FP - DNR Forest Fire Protection Assmt | $8.50 | $8.50 | $0.00 | $0.00 | $17.00 | $0.00 |
| 2026 | 9009 | FPLCA - DNR Landowner Contingency Assmt | $3.00 | $3.00 | $0.00 | $0.00 | $6.00 | $0.00 |
| 2026 | 9009 | JCCD - JC Conservation District | $3.73 | $3.73 | $0.00 | $0.00 | $7.46 | $0.00 |
| 2026 | 9009 | NWA - Noxious Weed Assessment | $0.98 | $0.97 | $0.00 | $0.00 | $1.95 | $0.00 |
| 2026 | 9009 | WAT - Clean Water District | $13.00 | $13.00 | $0.00 | $0.00 | $26.00 | $0.00 |
| 2026 | 9009 | FP ADMIN - FP ADMIN | $0.50 | $0.00 | $0.00 | $0.00 | $0.50 | $0.00 |
| 2026 | 9009 | TOTAL: | $944.42 | $943.82 | $0.00 | $0.00 | $1888.24 | $0.00 |
|
| 2026 | 9009 | $944.42 | $943.82 | $0.00 | $0.00 | $1888.24 | $0.00 |
Statement Details |
| 2025 | 9030 | STATE - STATE LEVY (SCHOOL) | $187.48 | $0.00 | $0.00 | $0.00 | $187.48 | $0.00 |
| 2025 | 9030 | COUNTY - COUNTY LEVIES (CE, DD, VET, MH) | $73.73 | $0.00 | $0.00 | $0.00 | $73.73 | $0.00 |
| 2025 | 9030 | CONSERVE - CONSERVATION FUTURES | $2.21 | $0.00 | $0.00 | $0.00 | $2.21 | $0.00 |
| 2025 | 9030 | COROADS - COUNTY ROADS (ROADS, DIV TO CE) | $59.05 | $0.00 | $0.00 | $0.00 | $59.05 | $0.00 |
| 2025 | 9030 | PORTPT - PORT DISTRICT | $30.08 | $0.00 | $0.00 | $0.00 | $30.08 | $0.00 |
| 2025 | 9030 | PUD1 - PUD #1 | $4.82 | $0.00 | $0.00 | $0.00 | $4.82 | $0.00 |
| 2025 | 9030 | LIB1 - LIBRARY DIST #1 | $22.85 | $0.00 | $0.00 | $0.00 | $22.85 | $0.00 |
| 2025 | 9030 | HD2 - HOSP DIST #2 | $4.30 | $0.00 | $0.00 | $0.00 | $4.30 | $0.00 |
| 2025 | 9030 | SD49 - SCHOOL DIST #49 | $100.46 | $0.00 | $0.00 | $0.00 | $100.46 | $0.00 |
| 2025 | 9030 | EMS1 - FIRE DIST #1 EMS | $37.42 | $0.00 | $0.00 | $0.00 | $37.42 | $0.00 |
| 2025 | 9030 | FP - DNR Forest Fire Protection Assmt | $17.00 | $0.00 | $0.00 | $0.00 | $17.00 | $0.00 |
| 2025 | 9030 | FPLCA - DNR Landowner Contingency Assmt | $6.00 | $0.00 | $0.00 | $0.00 | $6.00 | $0.00 |
| 2025 | 9030 | JCCD - JC Conservation District | $3.30 | $0.00 | $0.00 | $0.00 | $3.30 | $0.00 |
| 2025 | 9030 | NWA - Noxious Weed Assessment | $1.33 | $0.00 | $0.00 | $0.00 | $1.33 | $0.00 |
| 2025 | 9030 | FP ADMIN - FP ADMIN | $0.50 | $0.00 | $0.00 | $0.00 | $0.50 | $0.00 |
| 2025 | 9030 | TOTAL: | $550.53 | $0.00 | $0.00 | $0.00 | $550.53 | $0.00 |
|
| 2025 | 9030 | $550.53 | $0.00 | $0.00 | $0.00 | $550.53 | $0.00 |
Statement Details |
| 2025 | 34649 | STATE - STATE LEVY (SCHOOL) | $6494.87 | $0.00 | $0.00 | $0.00 | $6494.87 | $0.00 |
| 2025 | 34649 | COUNTY - COUNTY LEVIES (CE, DD, VET, MH) | $2554.06 | $0.00 | $0.00 | $0.00 | $2554.06 | $0.00 |
| 2025 | 34649 | CONSERVE - CONSERVATION FUTURES | $76.59 | $0.00 | $0.00 | $0.00 | $76.59 | $0.00 |
| 2025 | 34649 | COROADS - COUNTY ROADS (ROADS, DIV TO CE) | $2046.21 | $0.00 | $0.00 | $0.00 | $2046.21 | $0.00 |
| 2025 | 34649 | PORTPT - PORT DISTRICT | $1042.22 | $0.00 | $0.00 | $0.00 | $1042.22 | $0.00 |
| 2025 | 34649 | PUD1 - PUD #1 | $167.12 | $0.00 | $0.00 | $0.00 | $167.12 | $0.00 |
| 2025 | 34649 | LIB1 - LIBRARY DIST #1 | $791.66 | $0.00 | $0.00 | $0.00 | $791.66 | $0.00 |
| 2025 | 34649 | HD2 - HOSP DIST #2 | $149.01 | $0.00 | $0.00 | $0.00 | $149.01 | $0.00 |
| 2025 | 34649 | SD49 - SCHOOL DIST #49 | $3480.86 | $0.00 | $0.00 | $0.00 | $3480.86 | $0.00 |
| 2025 | 34649 | EMS1 - FIRE DIST #1 EMS | $1296.33 | $0.00 | $0.00 | $0.00 | $1296.33 | $0.00 |
| 2025 | 34649 | TOTAL: | $18098.93 | $0.00 | $0.00 | $0.00 | $18098.93 | $0.00 |
|
| 2025 | 34649 | $18098.93 | $0.00 | $0.00 | $0.00 | $18098.93 | $0.00 |
Statement Details |
| 2024 | 9054 | STATE - STATE LEVY (SCHOOL) | $7.84 | $0.00 | $0.00 | $0.00 | $7.84 | $0.00 |
| 2024 | 9054 | COUNTY - COUNTY LEVIES (CE, DD, VET, MH) | $3.36 | $0.00 | $0.00 | $0.00 | $3.36 | $0.00 |
| 2024 | 9054 | CONSERVE - CONSERVATION FUTURES | $0.10 | $0.00 | $0.00 | $0.00 | $0.10 | $0.00 |
| 2024 | 9054 | COROADS - COUNTY ROADS (ROADS, DIV TO CE) | $2.70 | $0.00 | $0.00 | $0.00 | $2.70 | $0.00 |
| 2024 | 9054 | PORTPT - PORT DISTRICT | $1.38 | $0.00 | $0.00 | $0.00 | $1.38 | $0.00 |
| 2024 | 9054 | PUD1 - PUD #1 | $0.22 | $0.00 | $0.00 | $0.00 | $0.22 | $0.00 |
| 2024 | 9054 | LIB1 - LIBRARY DIST #1 | $1.04 | $0.00 | $0.00 | $0.00 | $1.04 | $0.00 |
| 2024 | 9054 | HD2 - HOSP DIST #2 | $0.20 | $0.00 | $0.00 | $0.00 | $0.20 | $0.00 |
| 2024 | 9054 | SD49 - SCHOOL DIST #49 | $3.50 | $0.00 | $0.00 | $0.00 | $3.50 | $0.00 |
| 2024 | 9054 | EMS1 - FIRE DIST #1 EMS | $1.69 | $0.00 | $0.00 | $0.00 | $1.69 | $0.00 |
| 2024 | 9054 | FP - DNR Forest Fire Protection Assmt | $17.00 | $0.00 | $0.00 | $0.00 | $17.00 | $0.00 |
| 2024 | 9054 | FPLCA - DNR Landowner Contingency Assmt | $6.00 | $0.00 | $0.00 | $0.00 | $6.00 | $0.00 |
| 2024 | 9054 | JCCD - JC Conservation District | $3.30 | $0.00 | $0.00 | $0.00 | $3.30 | $0.00 |
| 2024 | 9054 | NWA - Noxious Weed Assessment | $1.33 | $0.00 | $0.00 | $0.00 | $1.33 | $0.00 |
| 2024 | 9054 | FP ADMIN - FP ADMIN | $0.50 | $0.00 | $0.00 | $0.00 | $0.50 | $0.00 |
| 2024 | 9054 | TOTAL: | $50.16 | $0.00 | $0.00 | $0.00 | $50.16 | $0.00 |
|
| 2024 | 9054 | $50.16 | $0.00 | $0.00 | $0.00 | $50.16 | $0.00 |
Statement Details |
| 2023 | 9071 | STATE - STATE LEVY (SCHOOL) | $7.76 | $0.00 | $0.00 | $0.00 | $7.76 | $0.00 |
| 2023 | 9071 | COUNTY - COUNTY LEVIES (CE, DD, VET, MH) | $3.39 | $0.00 | $0.00 | $0.00 | $3.39 | $0.00 |
| 2023 | 9071 | CONSERVE - CONSERVATION FUTURES | $0.10 | $0.00 | $0.00 | $0.00 | $0.10 | $0.00 |
| 2023 | 9071 | COROADS - COUNTY ROADS (ROADS, DIV TO CE) | $2.74 | $0.00 | $0.00 | $0.00 | $2.74 | $0.00 |
| 2023 | 9071 | PORTPT - PORT DISTRICT | $1.43 | $0.00 | $0.00 | $0.00 | $1.43 | $0.00 |
| 2023 | 9071 | PUD1 - PUD #1 | $0.22 | $0.00 | $0.00 | $0.00 | $0.22 | $0.00 |
| 2023 | 9071 | LIB1 - LIBRARY DIST #1 | $1.06 | $0.00 | $0.00 | $0.00 | $1.06 | $0.00 |
| 2023 | 9071 | HD2 - HOSP DIST #2 | $0.20 | $0.00 | $0.00 | $0.00 | $0.20 | $0.00 |
| 2023 | 9071 | SD49 - SCHOOL DIST #49 | $3.63 | $0.00 | $0.00 | $0.00 | $3.63 | $0.00 |
| 2023 | 9071 | EMS1 - FIRE DIST #1 EMS | $1.19 | $0.00 | $0.00 | $0.00 | $1.19 | $0.00 |
| 2023 | 9071 | FP - DNR Forest Fire Protection Assmt | $17.00 | $0.00 | $0.00 | $0.00 | $17.00 | $0.00 |
| 2023 | 9071 | FPLCA - DNR Landowner Contingency Assmt | $6.00 | $0.00 | $0.00 | $0.00 | $6.00 | $0.00 |
| 2023 | 9071 | JCCD - JC Conservation District | $3.30 | $0.00 | $0.00 | $0.00 | $3.30 | $0.00 |
| 2023 | 9071 | NWA - Noxious Weed Assessment | $1.33 | $0.00 | $0.00 | $0.00 | $1.33 | $0.00 |
| 2023 | 9071 | FP ADMIN - FP ADMIN | $0.50 | $0.00 | $0.00 | $0.00 | $0.50 | $0.00 |
| 2023 | 9071 | TOTAL: | $49.85 | $0.00 | $0.00 | $0.00 | $49.85 | $0.00 |
|
| 2023 | 9071 | $49.85 | $0.00 | $0.00 | $0.00 | $49.85 | $0.00 |
Values
| (+) Improvement Homesite Value: | + | $0 | |
| (+) Improvement Non-Homesite Value: | + | $0 | |
| (+) Land Homesite Value: | + | $0 | |
| (+) Land Non-Homesite Value: | + | $281,765 | |
| (+) Curr Use (HS): | + | $0 | $0 |
| (+) Curr Use (NHS): | + | $0 | $0 |
| | | -------------------------- | |
| (=) Market Value: | = | $281,765 | |
| (–) Productivity Loss: | – | $0 | |
| | | -------------------------- | |
| (=) Subtotal: | = | $281,765 | |
| (+) Senior Appraised Value: | + | $0 | |
| (+) Non-Senior Appraised Value: | + | $281,765 | |
| | | -------------------------- | |
| (=) Total Appraised Value: | = | $281,765 | |
| (–) Senior Exemption Loss: | – | $0 | |
| (–) Exemption Loss: | – | $0 | |
| | | -------------------------- | |
| (=) Taxable Value: | = | $281,765 | |
Taxing Jurisdiction
| Owner: | EMILY ABBESS | | |
| % Ownership: | 100.0000000000% | | |
| Total Value: | $281,765 | | |
| Tax Area: | 0202 - 1-49E1H2L1 |
| CE | COUNTY CURRENT EXPENSE | 0.9034619479 | $281,765 | $281,765 | $254.56 | | |
| CNTYDD | DEVELOPMENTAL DISABILITIES | 0.0052121823 | $281,765 | $281,765 | $1.47 | | |
| CNTYVET | VETERANS RELIEF | 0.0052777810 | $281,765 | $281,765 | $1.49 | | |
| MENTAL | MENTAL HEALTH | 0.0052121823 | $281,765 | $281,765 | $1.47 | | |
| ROADS | COUNTY ROADS | 0.7415066410 | $281,765 | $281,765 | $208.93 | | |
| ROADSCU | COUNTY ROADS TO CUR EXP | 0.0000000000 | $281,765 | $281,765 | $0.00 | | |
| HOSP2CASH | HOSP DIST #2 GENERAL | 0.0536075306 | $281,765 | $281,765 | $15.10 | | |
| SCH49CP | SCHOOL DIST #49 CAP PROJ | 0.6279093905 | $281,765 | $281,765 | $176.92 | | |
| SCH49MO | SCHOOL DIST #49 EP & O | 0.6376483602 | $281,765 | $281,765 | $179.67 | | |
| CONSERVE | CONSERVATION FUTURES | 0.0275621078 | $281,765 | $281,765 | $7.77 | | |
| EMS1 | FIRE DIST #1 EMS | 0.4679948282 | $281,765 | $281,765 | $131.86 | | |
| LIB1 | LIBRARY DIST #1 GENERAL | 0.2868827388 | $281,765 | $281,765 | $80.83 | | |
| PORTPT | PORT OF PT GENERAL | 0.1134941229 | $281,765 | $281,765 | $31.98 | | |
| PORTPTIDD | PORT OF PT IDD 2019 | 0.2577346692 | $281,765 | $281,765 | $72.62 | | |
| PUD1 | PUD #1 GENERAL | 0.0597888892 | $281,765 | $281,765 | $16.85 | | |
| STATE | STATE SCHOOL PART 1 | 1.4940692947 | $281,765 | $281,765 | $420.98 | | |
| STATE2 | STATE SCHOOL PART 2 | 0.8050170049 | $281,765 | $281,765 | $226.83 | | |
| | Total Tax Rate: | 6.4923796715 | | | | | |
| | | | | Taxes w/Current Exemptions: | $1,829.33 | | |
| | | | | Taxes w/o Exemptions: | $1,829.33 | | |
Improvement / Building
Sketch
| No sketches available for this property. |
Property Image
Land
| 1 | 4330-1375S | | 1.0000 | 43560.00 | 0.00 | 0.00 | 1.00 | $60,500 | $0 |
| 2 | 1874A | | 29.8000 | 1298088.00 | 0.00 | 0.00 | 0.00 | $221,265 | $0 |
Roll Value History
| 2026 | N/A | N/A | N/A | N/A | N/A |
| 2025 | $0 | $281,765 | $0 | $281,765 | $281,765 |
| 2024 | $0 | $268,958 | $3,450 | $3,450 | $3,450 |
| 2023 | $0 | $248,700 | $3,388 | $3,388 | $3,388 |
| 2022 | $0 | $223,800 | $3,296 | $3,296 | $3,296 |
Deed and Sales History
| 1 | 09/17/2025 | SWD | Statutory Warranty Deed | JAMES D VANDE BERG | EMILY ABBESS | | | $445,000.00 | 144983 | |
| 2 | 08/05/2024 | QCD | Quit Claim Deed | KATHLEEN VLADEFF | JAMES D VANDE BERG | | | $0.00 | 143684 | |
| 3 | 05/03/2010 | PRD | Personal Representatives Deed | VLADEFF, DONALD L ESTATE | VLADEFF, KATHLEEN | | | $0.00 | 114421 | 0 |
| 4 | 11/25/1997 | QCD | Quit Claim Deed | CARSTENSEN, FLORENCE K/ES | VLADEFF, DONALD L | 0 | 0 | $0.00 | 83592 | 0 |
Payout Agreement
| No payout information available.. |