Property
Account |
| Property ID: | 19549 | Abbreviated Legal Description: | MARSH AND MEADOW SHORT PLAT LOT 3(ENLG BY TAX 10)BLA#116582 SUBJ TO PLAT RESTRICTIONS SUBJ/JLT CONSERV EASE AF#432689 |
| Parcel # / Geo ID: | 801124013 | Agent Code: | |
| Type: | Real | | |
| Tax Area: | 0213 - 1-49F1E1H2L1 | Land Use Code | 94 |
| Open Space: | Y | DFL | N |
| Historic Property: | N | Remodel Property: | N |
| Multi-Family Redevelopment: | N | | |
| Township: | 28N | Section: | 12 |
| Range: | 1W |
Location |
| Address: | 407 EMBODY RD PORT LUDLOW, WA 98365 | Mapsco: | 237/003 |
| Neighborhood: | S12 & S13 T28N R1W | Map ID: | |
| Neighborhood CD: | 3120 |
Owner |
| Name: | ALEX & TOBEY BOLINGER | Owner ID: | 110590 |
| Mailing Address: | BRIAN BOLINGER 407 EMBODY RD PORT LUDLOW, WA 98365-8771 | % Ownership: | 100.0000000000% |
| | | Exemptions: | |
Pay Tax Due
Select the appropriate checkbox next to the year to be paid. Multiple years may be selected.
*Convenience Fee not included
Taxes and Assessment Details
Property Tax Information as of
03/12/2026
Click on "Statement Details" to expand or collapse a tax statement.
* Please enter a valid date ** Please enter a valid date *
Statement Details |
| 2026 | 9063 | STATE - STATE LEVY (SCHOOL) | $706.31 | $706.31 | $0.00 | $0.00 | $0.00 | $1412.62 |
| 2026 | 9063 | COUNTY - COUNTY LEVIES (CE, DD, VET, MH) | $282.38 | $282.37 | $0.00 | $0.00 | $0.00 | $564.75 |
| 2026 | 9063 | CONSERVE - CONSERVATION FUTURES | $8.47 | $8.46 | $0.00 | $0.00 | $0.00 | $16.93 |
| 2026 | 9063 | COROADS - COUNTY ROADS (ROADS, DIV TO CE) | $227.80 | $227.80 | $0.00 | $0.00 | $0.00 | $455.60 |
| 2026 | 9063 | PORTPT - PORT DISTRICT | $114.05 | $114.04 | $0.00 | $0.00 | $0.00 | $228.09 |
| 2026 | 9063 | PUD1 - PUD #1 | $18.37 | $18.37 | $0.00 | $0.00 | $0.00 | $36.74 |
| 2026 | 9063 | LIB1 - LIBRARY DIST #1 | $88.14 | $88.13 | $0.00 | $0.00 | $0.00 | $176.27 |
| 2026 | 9063 | HD2 - HOSP DIST #2 | $16.47 | $16.47 | $0.00 | $0.00 | $0.00 | $32.94 |
| 2026 | 9063 | SD49 - SCHOOL DIST #49 | $388.80 | $388.79 | $0.00 | $0.00 | $0.00 | $777.59 |
| 2026 | 9063 | FD1 - FIRE DISTRICT #1 | $373.94 | $373.94 | $0.00 | $0.00 | $0.00 | $747.88 |
| 2026 | 9063 | EMS1 - FIRE DIST #1 EMS | $143.78 | $143.77 | $0.00 | $0.00 | $0.00 | $287.55 |
| 2026 | 9063 | FP - DNR Forest Fire Protection Assmt | $8.50 | $8.50 | $0.00 | $0.00 | $0.00 | $17.00 |
| 2026 | 9063 | FPLCA - DNR Landowner Contingency Assmt | $3.00 | $3.00 | $0.00 | $0.00 | $0.00 | $6.00 |
| 2026 | 9063 | JCCD - JC Conservation District | $2.86 | $2.85 | $0.00 | $0.00 | $0.00 | $5.71 |
| 2026 | 9063 | NWA - Noxious Weed Assessment | $4.78 | $4.77 | $0.00 | $0.00 | $0.00 | $9.55 |
| 2026 | 9063 | OSS - On Site Septic | $23.10 | $23.10 | $0.00 | $0.00 | $0.00 | $46.20 |
| 2026 | 9063 | WAT - Clean Water District | $13.00 | $13.00 | $0.00 | $0.00 | $0.00 | $26.00 |
| 2026 | 9063 | FP ADMIN - FP ADMIN | $0.50 | $0.00 | $0.00 | $0.00 | $0.00 | $0.50 |
| 2026 | 9063 | TOTAL: | $2424.25 | $2423.67 | $0.00 | $0.00 | $0.00 | $4847.92 |
|
| 2026 | 9063 | $2424.25 | $2423.67 | $0.00 | $0.00 | $0.00 | $4847.92 |
Statement Details |
| 2025 | 9084 | STATE - STATE LEVY (SCHOOL) | $705.79 | $705.79 | $0.00 | $0.00 | $1411.58 | $0.00 |
| 2025 | 9084 | COUNTY - COUNTY LEVIES (CE, DD, VET, MH) | $277.55 | $277.54 | $0.00 | $0.00 | $555.09 | $0.00 |
| 2025 | 9084 | CONSERVE - CONSERVATION FUTURES | $8.33 | $8.32 | $0.00 | $0.00 | $16.65 | $0.00 |
| 2025 | 9084 | COROADS - COUNTY ROADS (ROADS, DIV TO CE) | $222.37 | $222.35 | $0.00 | $0.00 | $444.72 | $0.00 |
| 2025 | 9084 | PORTPT - PORT DISTRICT | $113.26 | $113.25 | $0.00 | $0.00 | $226.51 | $0.00 |
| 2025 | 9084 | PUD1 - PUD #1 | $18.16 | $18.16 | $0.00 | $0.00 | $36.32 | $0.00 |
| 2025 | 9084 | LIB1 - LIBRARY DIST #1 | $86.03 | $86.03 | $0.00 | $0.00 | $172.06 | $0.00 |
| 2025 | 9084 | HD2 - HOSP DIST #2 | $16.20 | $16.19 | $0.00 | $0.00 | $32.39 | $0.00 |
| 2025 | 9084 | SD49 - SCHOOL DIST #49 | $378.26 | $378.25 | $0.00 | $0.00 | $756.51 | $0.00 |
| 2025 | 9084 | FD1 - FIRE DISTRICT #1 | $366.26 | $366.25 | $0.00 | $0.00 | $732.51 | $0.00 |
| 2025 | 9084 | EMS1 - FIRE DIST #1 EMS | $140.87 | $140.87 | $0.00 | $0.00 | $281.74 | $0.00 |
| 2025 | 9084 | FP - DNR Forest Fire Protection Assmt | $8.50 | $8.50 | $0.00 | $0.00 | $17.00 | $0.00 |
| 2025 | 9084 | FPLCA - DNR Landowner Contingency Assmt | $3.00 | $3.00 | $0.00 | $0.00 | $6.00 | $0.00 |
| 2025 | 9084 | JCCD - JC Conservation District | $2.86 | $2.85 | $0.00 | $0.00 | $5.71 | $0.00 |
| 2025 | 9084 | NWA - Noxious Weed Assessment | $3.35 | $3.35 | $0.00 | $0.00 | $6.70 | $0.00 |
| 2025 | 9084 | OSS - On Site Septic | $21.50 | $21.50 | $0.00 | $0.00 | $43.00 | $0.00 |
| 2025 | 9084 | WAT - Clean Water District | $13.00 | $13.00 | $0.00 | $0.00 | $26.00 | $0.00 |
| 2025 | 9084 | FP ADMIN - FP ADMIN | $0.50 | $0.00 | $0.00 | $0.00 | $0.50 | $0.00 |
| 2025 | 9084 | TOTAL: | $2385.79 | $2385.20 | $0.00 | $0.00 | $4770.99 | $0.00 |
|
| 2025 | 9084 | $2385.79 | $2385.20 | $0.00 | $0.00 | $4770.99 | $0.00 |
Statement Details |
| 2024 | 9108 | STATE - STATE LEVY (SCHOOL) | $639.83 | $639.82 | $0.00 | $0.00 | $1279.65 | $0.00 |
| 2024 | 9108 | COUNTY - COUNTY LEVIES (CE, DD, VET, MH) | $273.80 | $273.77 | $0.00 | $0.00 | $547.57 | $0.00 |
| 2024 | 9108 | CONSERVE - CONSERVATION FUTURES | $8.21 | $8.21 | $0.00 | $0.00 | $16.42 | $0.00 |
| 2024 | 9108 | COROADS - COUNTY ROADS (ROADS, DIV TO CE) | $220.31 | $220.30 | $0.00 | $0.00 | $440.61 | $0.00 |
| 2024 | 9108 | PORTPT - PORT DISTRICT | $113.09 | $113.08 | $0.00 | $0.00 | $226.17 | $0.00 |
| 2024 | 9108 | PUD1 - PUD #1 | $17.99 | $17.98 | $0.00 | $0.00 | $35.97 | $0.00 |
| 2024 | 9108 | LIB1 - LIBRARY DIST #1 | $85.24 | $85.23 | $0.00 | $0.00 | $170.47 | $0.00 |
| 2024 | 9108 | HD2 - HOSP DIST #2 | $15.98 | $15.97 | $0.00 | $0.00 | $31.95 | $0.00 |
| 2024 | 9108 | SD49 - SCHOOL DIST #49 | $285.72 | $285.71 | $0.00 | $0.00 | $571.43 | $0.00 |
| 2024 | 9108 | FD1 - FIRE DISTRICT #1 | $362.01 | $362.01 | $0.00 | $0.00 | $724.02 | $0.00 |
| 2024 | 9108 | EMS1 - FIRE DIST #1 EMS | $138.28 | $138.27 | $0.00 | $0.00 | $276.55 | $0.00 |
| 2024 | 9108 | FP - DNR Forest Fire Protection Assmt | $8.50 | $8.50 | $0.00 | $0.00 | $17.00 | $0.00 |
| 2024 | 9108 | FPLCA - DNR Landowner Contingency Assmt | $3.00 | $3.00 | $0.00 | $0.00 | $6.00 | $0.00 |
| 2024 | 9108 | JCCD - JC Conservation District | $2.86 | $2.85 | $0.00 | $0.00 | $5.71 | $0.00 |
| 2024 | 9108 | NWA - Noxious Weed Assessment | $3.35 | $3.35 | $0.00 | $0.00 | $6.70 | $0.00 |
| 2024 | 9108 | OSS - On Site Septic | $21.00 | $21.00 | $0.00 | $0.00 | $42.00 | $0.00 |
| 2024 | 9108 | WAT - Clean Water District | $12.50 | $12.50 | $0.00 | $0.00 | $25.00 | $0.00 |
| 2024 | 9108 | FP ADMIN - FP ADMIN | $0.50 | $0.00 | $0.00 | $0.00 | $0.50 | $0.00 |
| 2024 | 9108 | TOTAL: | $2212.17 | $2211.55 | $0.00 | $0.00 | $4423.72 | $0.00 |
|
| 2024 | 9108 | $2212.17 | $2211.55 | $0.00 | $0.00 | $4423.72 | $0.00 |
Statement Details |
| 2023 | 9126 | STATE - STATE LEVY (SCHOOL) | $619.31 | $619.31 | $0.00 | $0.00 | $1238.62 | $0.00 |
| 2023 | 9126 | COUNTY - COUNTY LEVIES (CE, DD, VET, MH) | $270.27 | $270.23 | $0.00 | $0.00 | $540.50 | $0.00 |
| 2023 | 9126 | CONSERVE - CONSERVATION FUTURES | $8.11 | $8.10 | $0.00 | $0.00 | $16.21 | $0.00 |
| 2023 | 9126 | COROADS - COUNTY ROADS (ROADS, DIV TO CE) | $218.65 | $218.65 | $0.00 | $0.00 | $437.30 | $0.00 |
| 2023 | 9126 | PORTPT - PORT DISTRICT | $113.85 | $113.84 | $0.00 | $0.00 | $227.69 | $0.00 |
| 2023 | 9126 | PUD1 - PUD #1 | $17.92 | $17.91 | $0.00 | $0.00 | $35.83 | $0.00 |
| 2023 | 9126 | LIB1 - LIBRARY DIST #1 | $84.60 | $84.59 | $0.00 | $0.00 | $169.19 | $0.00 |
| 2023 | 9126 | HD2 - HOSP DIST #2 | $15.78 | $15.76 | $0.00 | $0.00 | $31.54 | $0.00 |
| 2023 | 9126 | SD49 - SCHOOL DIST #49 | $289.50 | $289.49 | $0.00 | $0.00 | $578.99 | $0.00 |
| 2023 | 9126 | FD3 - FIRE DISTRICT #3 | $268.86 | $268.86 | $0.00 | $0.00 | $537.72 | $0.00 |
| 2023 | 9126 | EMS3 - FIRE DIST #3 EMS | $96.12 | $96.11 | $0.00 | $0.00 | $192.23 | $0.00 |
| 2023 | 9126 | FP - DNR Forest Fire Protection Assmt | $8.50 | $8.50 | $0.00 | $0.00 | $17.00 | $0.00 |
| 2023 | 9126 | FPLCA - DNR Landowner Contingency Assmt | $3.00 | $3.00 | $0.00 | $0.00 | $6.00 | $0.00 |
| 2023 | 9126 | JCCD - JC Conservation District | $2.86 | $2.85 | $0.00 | $0.00 | $5.71 | $0.00 |
| 2023 | 9126 | NWA - Noxious Weed Assessment | $3.35 | $3.35 | $0.00 | $0.00 | $6.70 | $0.00 |
| 2023 | 9126 | OSS - On Site Septic | $20.50 | $20.50 | $0.00 | $0.00 | $41.00 | $0.00 |
| 2023 | 9126 | WAT - Clean Water District | $12.00 | $12.00 | $0.00 | $0.00 | $24.00 | $0.00 |
| 2023 | 9126 | FP ADMIN - FP ADMIN | $0.50 | $0.00 | $0.00 | $0.00 | $0.50 | $0.00 |
| 2023 | 9126 | TOTAL: | $2053.68 | $2053.05 | $0.00 | $0.00 | $4106.73 | $0.00 |
|
| 2023 | 9126 | $2053.68 | $2053.05 | $0.00 | $0.00 | $4106.73 | $0.00 |
Values
| (+) Improvement Homesite Value: | + | $0 | |
| (+) Improvement Non-Homesite Value: | + | $512,119 | |
| (+) Land Homesite Value: | + | $0 | |
| (+) Land Non-Homesite Value: | + | $97,836 | |
| (+) Curr Use (HS): | + | $0 | $0 |
| (+) Curr Use (NHS): | + | $44,711 | $4,471 |
| | | -------------------------- | |
| (=) Market Value: | = | $654,666 | |
| (–) Productivity Loss: | – | $40,240 | |
| | | -------------------------- | |
| (=) Subtotal: | = | $614,426 | |
| (+) Senior Appraised Value: | + | $0 | |
| (+) Non-Senior Appraised Value: | + | $614,426 | |
| | | -------------------------- | |
| (=) Total Appraised Value: | = | $614,426 | |
| (–) Senior Exemption Loss: | – | $0 | |
| (–) Exemption Loss: | – | $0 | |
| | | -------------------------- | |
| (=) Taxable Value: | = | $614,426 | |
Taxing Jurisdiction
| Owner: | ALEX & TOBEY BOLINGER | | |
| % Ownership: | 100.0000000000% | | |
| Total Value: | N/A | | |
| Tax Area: | 0213 - 1-49F1E1H2L1 |
| CE | COUNTY CURRENT EXPENSE | N/A | N/A | N/A | N/A | | |
| CNTYDD | DEVELOPMENTAL DISABILITIES | N/A | N/A | N/A | N/A | | |
| CNTYVET | VETERANS RELIEF | N/A | N/A | N/A | N/A | | |
| MENTAL | MENTAL HEALTH | N/A | N/A | N/A | N/A | | |
| ROADS | COUNTY ROADS | N/A | N/A | N/A | N/A | | |
| HOSP2CASH | HOSP DIST #2 GENERAL | N/A | N/A | N/A | N/A | | |
| SCH49CP | SCHOOL DIST #49 CAP PROJ | N/A | N/A | N/A | N/A | | |
| SCH49MO | SCHOOL DIST #49 EP & O | N/A | N/A | N/A | N/A | | |
| CONSERVE | CONSERVATION FUTURES | N/A | N/A | N/A | N/A | | |
| EMS1 | FIRE DIST #1 EMS | N/A | N/A | N/A | N/A | | |
| FD1 | FIRE DIST #1 GENERAL | N/A | N/A | N/A | N/A | | |
| LIB1 | LIBRARY DIST #1 GENERAL | N/A | N/A | N/A | N/A | | |
| PORTPT | PORT OF PT GENERAL | N/A | N/A | N/A | N/A | | |
| PORTPTIDD | PORT OF PT IDD 2019 | N/A | N/A | N/A | N/A | | |
| PUD1 | PUD #1 GENERAL | N/A | N/A | N/A | N/A | | |
| STATE | STATE SCHOOL PART 1 | N/A | N/A | N/A | N/A | | |
| STATE2 | STATE SCHOOL PART 2 | N/A | N/A | N/A | N/A | | |
| | Total Tax Rate: | N/A | | | | | |
| | | | | Taxes w/Current Exemptions: | N/A | | |
| | | | | Taxes w/o Exemptions: | N/A | | |
Improvement / Building
| Improvement #1: | Residential Bldg | State Code: | 81 | 3477.0 sqft | Value: | $512,119 |
| Bathrooms (#): | 2 (FULL) | Bathrooms (#): | 1 (HALF) | | Bedrooms (#): | 3 | Exterior Wall: | SI/ST | | Floor Construction: | FRAME | Foundation: | CONPR | | Heating/Cooling: | F/A | Roof Cover: | COMP |
|
| | Type | Description | Class CD | Sub Class CD | Year Built | Area |
| | MA | Main Area | 3+ | 2S | 2004 | 1824.0 |
| | MA2 | Second Floor Main Area | 3+ | 2S | 2004 | 1653.0 |
| | GBLTIN | Builtin Garage | 3 | 2S | 2004 | 495.0 |
| | BARN | Barn (Table Not Dep) | 2 | 2S | 2004 | 720.0 |
Sketch
Property Image
Land
| 1 | 1675A | | 7.1500 | 311454.00 | 0.00 | 0.00 | 0.00 | $44,711 | $4,471 |
| 2 | 3120-1385S | | 1.0000 | 43560.00 | 0.00 | 0.00 | 1.00 | $92,000 | $0 |
| 3 | 1675A | | 0.7000 | 30492.00 | 0.00 | 0.00 | 0.00 | $5,836 | $0 |
Roll Value History
| 2026 | N/A | N/A | N/A | N/A | N/A |
| 2025 | $512,119 | $142,547 | $4,471 | $614,426 | $614,426 |
| 2024 | $490,781 | $136,350 | $4,277 | $588,641 | $588,641 |
| 2023 | $469,443 | $117,438 | $3,754 | $553,097 | $553,097 |
| 2022 | $448,104 | $109,406 | $3,486 | $526,140 | $526,140 |
Deed and Sales History
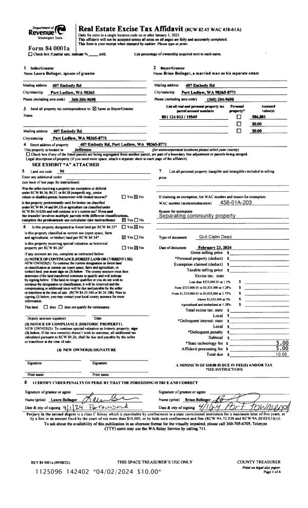
| 1 | 02/23/2024 | QCD | Quit Claim Deed | LAURA BOLINGER | BRIAN BOLINGER | | | | 142402 | |
| 2 | 02/23/2024 | SWD | Statutory Warranty Deed | ROMAN R ROULST | ALEX & TOBEY BOLINGER | | | $699,000.00 | 142401 | |
| 3 | 08/10/2021 | QCD | Quit Claim Deed | ROMAN R ROULST | ROMAN R ROULST | | | | 137866 | |
| 4 | 11/04/2011 | SWD | Statutory Warranty Deed | COX, LARRY V, VILVANDRE, | ROULST, ROMAN R, MEEHAN-ROULST | 0 | 0 | $375,000.00 | 116792 | 0 |
|   | |
| 5 | 01/27/2009 | SWD | Statutory Warranty Deed | ACCREDITED HOME LENDERS I | COX, LARRY V/VILVANDRE, ANNE | 0 | 0 | $240,000.00 | 112482 | 0 |
| 6 | 07/06/2008 | TRED | Trustee Deed | NORTHWEST TRUSTEE SERVICE | ACCREDITED HOME LENDERS INC | | | $357,383.00 | 111560 | 0 |
| 7 | 05/18/2001 | SWD | Statutory Warranty Deed | PORTER, BRUCE D | BREES, RICHARD J/MARIE B | 0 | 0 | $77,000.00 | 92215 | 0 |
Payout Agreement
| No payout information available.. |