Property
Account |
| Property ID: | 19585 | Abbreviated Legal Description: | S17 T28 R1W TAX 6 W/EASE SUBJ/CONSERVATION EASE #620207 |
| Parcel # / Geo ID: | 801171008 | Agent Code: | |
| Type: | Real | | |
| Tax Area: | 0221 - 1-49F2E2H2L1 | Land Use Code | 91 |
| Open Space: | N | DFL | N |
| Historic Property: | N | Remodel Property: | N |
| Multi-Family Redevelopment: | N | | |
| Township: | 28N | Section: | 17 |
| Range: | 1W |
Location |
| Address: | | Mapsco: | 196/041 |
| Neighborhood: | S16, S17, S20, & S21 T28N R1W | Map ID: | |
| Neighborhood CD: | 4350 |
Owner |
| Name: | DW ARTS LLC | Owner ID: | 110287 |
| Mailing Address: | 7360 CENTER RD QUILCENE, WA 98376-9714 | % Ownership: | 100.0000000000% |
| | | Exemptions: | |
Pay Tax Due
Select the appropriate checkbox next to the year to be paid. Multiple years may be selected.
*Convenience Fee not included
Taxes and Assessment Details
Property Tax Information as of
03/11/2026
Click on "Statement Details" to expand or collapse a tax statement.
* Please enter a valid date ** Please enter a valid date *
Statement Details |
| 2026 | 9099 | STATE - STATE LEVY (SCHOOL) | $307.01 | $306.99 | $0.00 | $0.00 | $0.00 | $614.00 |
| 2026 | 9099 | COUNTY - COUNTY LEVIES (CE, DD, VET, MH) | $122.75 | $122.72 | $0.00 | $0.00 | $0.00 | $245.47 |
| 2026 | 9099 | CONSERVE - CONSERVATION FUTURES | $3.68 | $3.68 | $0.00 | $0.00 | $0.00 | $7.36 |
| 2026 | 9099 | COROADS - COUNTY ROADS (ROADS, DIV TO CE) | $99.02 | $99.01 | $0.00 | $0.00 | $0.00 | $198.03 |
| 2026 | 9099 | PORTPT - PORT DISTRICT | $49.58 | $49.56 | $0.00 | $0.00 | $0.00 | $99.14 |
| 2026 | 9099 | PUD1 - PUD #1 | $7.99 | $7.98 | $0.00 | $0.00 | $0.00 | $15.97 |
| 2026 | 9099 | LIB1 - LIBRARY DIST #1 | $38.31 | $38.30 | $0.00 | $0.00 | $0.00 | $76.61 |
| 2026 | 9099 | HD2 - HOSP DIST #2 | $7.16 | $7.16 | $0.00 | $0.00 | $0.00 | $14.32 |
| 2026 | 9099 | SD49 - SCHOOL DIST #49 | $169.00 | $168.98 | $0.00 | $0.00 | $0.00 | $337.98 |
| 2026 | 9099 | FD2 - FIRE DISTRICT #2 | $100.82 | $100.81 | $0.00 | $0.00 | $0.00 | $201.63 |
| 2026 | 9099 | EMS2 - FIRE DIST #2 EMS | $56.78 | $56.77 | $0.00 | $0.00 | $0.00 | $113.55 |
| 2026 | 9099 | FPLCA - DNR Landowner Contingency Assmt | $3.00 | $3.00 | $0.00 | $0.00 | $0.00 | $6.00 |
| 2026 | 9099 | JCCD - JC Conservation District | $3.13 | $3.13 | $0.00 | $0.00 | $0.00 | $6.26 |
| 2026 | 9099 | NWA - Noxious Weed Assessment | $6.35 | $6.35 | $0.00 | $0.00 | $0.00 | $12.70 |
| 2026 | 9099 | WAT - Clean Water District | $13.00 | $13.00 | $0.00 | $0.00 | $0.00 | $26.00 |
| 2026 | 9099 | TOTAL: | $987.58 | $987.44 | $0.00 | $0.00 | $0.00 | $1975.02 |
|
| 2026 | 9099 | $987.58 | $987.44 | $0.00 | $0.00 | $0.00 | $1975.02 |
Statement Details |
| 2025 | 9120 | STATE - STATE LEVY (SCHOOL) | $305.66 | $305.65 | $0.00 | $0.00 | $611.31 | $0.00 |
| 2025 | 9120 | COUNTY - COUNTY LEVIES (CE, DD, VET, MH) | $120.20 | $120.20 | $0.00 | $0.00 | $240.40 | $0.00 |
| 2025 | 9120 | CONSERVE - CONSERVATION FUTURES | $3.61 | $3.60 | $0.00 | $0.00 | $7.21 | $0.00 |
| 2025 | 9120 | COROADS - COUNTY ROADS (ROADS, DIV TO CE) | $96.30 | $96.29 | $0.00 | $0.00 | $192.59 | $0.00 |
| 2025 | 9120 | PORTPT - PORT DISTRICT | $49.05 | $49.04 | $0.00 | $0.00 | $98.09 | $0.00 |
| 2025 | 9120 | PUD1 - PUD #1 | $7.87 | $7.86 | $0.00 | $0.00 | $15.73 | $0.00 |
| 2025 | 9120 | LIB1 - LIBRARY DIST #1 | $37.26 | $37.25 | $0.00 | $0.00 | $74.51 | $0.00 |
| 2025 | 9120 | HD2 - HOSP DIST #2 | $7.02 | $7.01 | $0.00 | $0.00 | $14.03 | $0.00 |
| 2025 | 9120 | SD49 - SCHOOL DIST #49 | $163.82 | $163.81 | $0.00 | $0.00 | $327.63 | $0.00 |
| 2025 | 9120 | FD2 - FIRE DISTRICT #2 | $99.38 | $99.37 | $0.00 | $0.00 | $198.75 | $0.00 |
| 2025 | 9120 | EMS2 - FIRE DIST #2 EMS | $55.96 | $55.95 | $0.00 | $0.00 | $111.91 | $0.00 |
| 2025 | 9120 | FPLCA - DNR Landowner Contingency Assmt | $3.00 | $3.00 | $0.00 | $0.00 | $6.00 | $0.00 |
| 2025 | 9120 | JCCD - JC Conservation District | $3.13 | $3.13 | $0.00 | $0.00 | $6.26 | $0.00 |
| 2025 | 9120 | NWA - Noxious Weed Assessment | $4.40 | $4.40 | $0.00 | $0.00 | $8.80 | $0.00 |
| 2025 | 9120 | WAT - Clean Water District | $13.00 | $13.00 | $0.00 | $0.00 | $26.00 | $0.00 |
| 2025 | 9120 | TOTAL: | $969.66 | $969.56 | $0.00 | $0.00 | $1939.22 | $0.00 |
|
| 2025 | 9120 | $969.66 | $969.56 | $0.00 | $0.00 | $1939.22 | $0.00 |
Statement Details |
| 2024 | 9144 | STATE - STATE LEVY (SCHOOL) | $165.83 | $165.81 | $0.00 | $0.00 | $331.64 | $0.00 |
| 2024 | 9144 | COUNTY - COUNTY LEVIES (CE, DD, VET, MH) | $70.96 | $70.95 | $0.00 | $0.00 | $141.91 | $0.00 |
| 2024 | 9144 | CONSERVE - CONSERVATION FUTURES | $2.13 | $2.13 | $0.00 | $0.00 | $4.26 | $0.00 |
| 2024 | 9144 | COROADS - COUNTY ROADS (ROADS, DIV TO CE) | $57.10 | $57.09 | $0.00 | $0.00 | $114.19 | $0.00 |
| 2024 | 9144 | PORTPT - PORT DISTRICT | $29.31 | $29.30 | $0.00 | $0.00 | $58.61 | $0.00 |
| 2024 | 9144 | PUD1 - PUD #1 | $4.66 | $4.66 | $0.00 | $0.00 | $9.32 | $0.00 |
| 2024 | 9144 | LIB1 - LIBRARY DIST #1 | $22.09 | $22.09 | $0.00 | $0.00 | $44.18 | $0.00 |
| 2024 | 9144 | HD2 - HOSP DIST #2 | $4.14 | $4.14 | $0.00 | $0.00 | $8.28 | $0.00 |
| 2024 | 9144 | SD49 - SCHOOL DIST #49 | $74.05 | $74.04 | $0.00 | $0.00 | $148.09 | $0.00 |
| 2024 | 9144 | FD2 - FIRE DISTRICT #2 | $58.99 | $58.99 | $0.00 | $0.00 | $117.98 | $0.00 |
| 2024 | 9144 | EMS2 - FIRE DIST #2 EMS | $33.21 | $33.20 | $0.00 | $0.00 | $66.41 | $0.00 |
| 2024 | 9144 | FPLCA - DNR Landowner Contingency Assmt | $3.00 | $3.00 | $0.00 | $0.00 | $6.00 | $0.00 |
| 2024 | 9144 | JCCD - JC Conservation District | $3.13 | $3.13 | $0.00 | $0.00 | $6.26 | $0.00 |
| 2024 | 9144 | NWA - Noxious Weed Assessment | $4.40 | $4.40 | $0.00 | $0.00 | $8.80 | $0.00 |
| 2024 | 9144 | WAT - Clean Water District | $12.50 | $12.50 | $0.00 | $0.00 | $25.00 | $0.00 |
| 2024 | 9144 | TOTAL: | $545.50 | $545.43 | $0.00 | $0.00 | $1090.93 | $0.00 |
|
| 2024 | 9144 | $545.50 | $545.43 | $0.00 | $0.00 | $1090.93 | $0.00 |
Statement Details |
| 2023 | 9162 | STATE - STATE LEVY (SCHOOL) | $114.55 | $114.55 | $0.00 | $0.00 | $229.10 | $0.00 |
| 2023 | 9162 | COUNTY - COUNTY LEVIES (CE, DD, VET, MH) | $50.00 | $49.97 | $0.00 | $0.00 | $99.97 | $0.00 |
| 2023 | 9162 | CONSERVE - CONSERVATION FUTURES | $1.50 | $1.50 | $0.00 | $0.00 | $3.00 | $0.00 |
| 2023 | 9162 | COROADS - COUNTY ROADS (ROADS, DIV TO CE) | $40.45 | $40.43 | $0.00 | $0.00 | $80.88 | $0.00 |
| 2023 | 9162 | PORTPT - PORT DISTRICT | $21.06 | $21.05 | $0.00 | $0.00 | $42.11 | $0.00 |
| 2023 | 9162 | PUD1 - PUD #1 | $3.32 | $3.31 | $0.00 | $0.00 | $6.63 | $0.00 |
| 2023 | 9162 | LIB1 - LIBRARY DIST #1 | $15.65 | $15.64 | $0.00 | $0.00 | $31.29 | $0.00 |
| 2023 | 9162 | HD2 - HOSP DIST #2 | $2.92 | $2.91 | $0.00 | $0.00 | $5.83 | $0.00 |
| 2023 | 9162 | SD49 - SCHOOL DIST #49 | $53.55 | $53.54 | $0.00 | $0.00 | $107.09 | $0.00 |
| 2023 | 9162 | FD2 - FIRE DISTRICT #2 | $43.39 | $43.39 | $0.00 | $0.00 | $86.78 | $0.00 |
| 2023 | 9162 | EMS2 - FIRE DIST #2 EMS | $24.33 | $24.33 | $0.00 | $0.00 | $48.66 | $0.00 |
| 2023 | 9162 | FPLCA - DNR Landowner Contingency Assmt | $3.00 | $3.00 | $0.00 | $0.00 | $6.00 | $0.00 |
| 2023 | 9162 | JCCD - JC Conservation District | $3.13 | $3.13 | $0.00 | $0.00 | $6.26 | $0.00 |
| 2023 | 9162 | NWA - Noxious Weed Assessment | $4.40 | $4.40 | $0.00 | $0.00 | $8.80 | $0.00 |
| 2023 | 9162 | WAT - Clean Water District | $12.00 | $12.00 | $0.00 | $0.00 | $24.00 | $0.00 |
| 2023 | 9162 | TOTAL: | $393.25 | $393.15 | $0.00 | $0.00 | $786.40 | $0.00 |
|
| 2023 | 9162 | $393.25 | $393.15 | $0.00 | $0.00 | $786.40 | $0.00 |
Values
| (+) Improvement Homesite Value: | + | $0 | |
| (+) Improvement Non-Homesite Value: | + | $0 | |
| (+) Land Homesite Value: | + | $0 | |
| (+) Land Non-Homesite Value: | + | $267,060 | |
| (+) Curr Use (HS): | + | $0 | $0 |
| (+) Curr Use (NHS): | + | $0 | $0 |
| | | -------------------------- | |
| (=) Market Value: | = | $267,060 | |
| (–) Productivity Loss: | – | $0 | |
| | | -------------------------- | |
| (=) Subtotal: | = | $267,060 | |
| (+) Senior Appraised Value: | + | $0 | |
| (+) Non-Senior Appraised Value: | + | $267,060 | |
| | | -------------------------- | |
| (=) Total Appraised Value: | = | $267,060 | |
| (–) Senior Exemption Loss: | – | $0 | |
| (–) Exemption Loss: | – | $0 | |
| | | -------------------------- | |
| (=) Taxable Value: | = | $267,060 | |
Taxing Jurisdiction
| Owner: | DW ARTS LLC | | |
| % Ownership: | 100.0000000000% | | |
| Total Value: | N/A | | |
| Tax Area: | 0221 - 1-49F2E2H2L1 |
| CE | COUNTY CURRENT EXPENSE | N/A | N/A | N/A | N/A | | |
| CNTYDD | DEVELOPMENTAL DISABILITIES | N/A | N/A | N/A | N/A | | |
| CNTYVET | VETERANS RELIEF | N/A | N/A | N/A | N/A | | |
| MENTAL | MENTAL HEALTH | N/A | N/A | N/A | N/A | | |
| ROADS | COUNTY ROADS | N/A | N/A | N/A | N/A | | |
| HOSP2CASH | HOSP DIST #2 GENERAL | N/A | N/A | N/A | N/A | | |
| SCH49CP | SCHOOL DIST #49 CAP PROJ | N/A | N/A | N/A | N/A | | |
| SCH49MO | SCHOOL DIST #49 EP & O | N/A | N/A | N/A | N/A | | |
| CONSERVE | CONSERVATION FUTURES | N/A | N/A | N/A | N/A | | |
| FD2 | FIRE DIST #2 GENERAL | N/A | N/A | N/A | N/A | | |
| LIB1 | LIBRARY DIST #1 GENERAL | N/A | N/A | N/A | N/A | | |
| PORTPT | PORT OF PT GENERAL | N/A | N/A | N/A | N/A | | |
| PORTPTIDD | PORT OF PT IDD 2019 | N/A | N/A | N/A | N/A | | |
| PUD1 | PUD #1 GENERAL | N/A | N/A | N/A | N/A | | |
| STATE | STATE SCHOOL PART 1 | N/A | N/A | N/A | N/A | | |
| STATE2 | STATE SCHOOL PART 2 | N/A | N/A | N/A | N/A | | |
| EMS2 | FIRE DIST #2 EMS | N/A | N/A | N/A | N/A | | |
| | Total Tax Rate: | N/A | | | | | |
| | | | | Taxes w/Current Exemptions: | N/A | | |
| | | | | Taxes w/o Exemptions: | N/A | | |
Improvement / Building
Sketch
| No sketches available for this property. |
Property Image
Land
| 1 | 4350-1375S | | 1.0000 | 43560.00 | 0.00 | 0.00 | 1.00 | $71,500 | $0 |
| 2 | 1672A | | 14.1800 | 617680.80 | 0.00 | 0.00 | 0.00 | $195,560 | $0 |
Roll Value History
| 2026 | N/A | N/A | N/A | N/A | N/A |
| 2025 | $0 | $267,060 | $0 | $267,060 | $267,060 |
| 2024 | $0 | $254,921 | $0 | $254,921 | $254,921 |
| 2023 | $0 | $143,345 | $0 | $143,345 | $143,345 |
| 2022 | $0 | $97,318 | $0 | $97,318 | $97,318 |
Deed and Sales History
| 1 | 01/11/2024 | SWD | Statutory Warranty Deed | LEIGH MILES HEARON | DW ARTS LLC | | | $1,700,000.00 | 142135 | |
|   | |
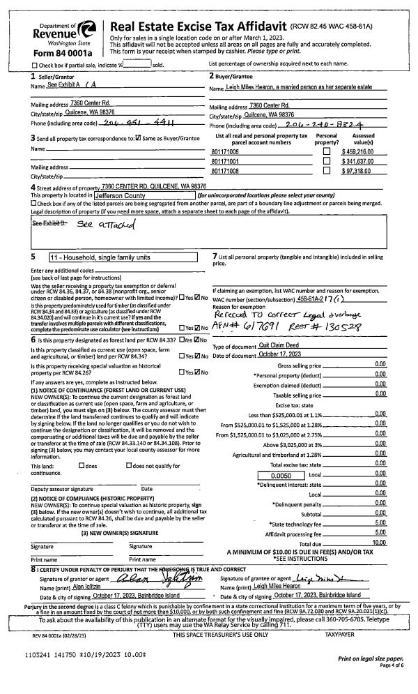
| 2 | 10/17/2023 | QCD | Quit Claim Deed | | LEIGH MILES HEARON | | | | 141750 | |
| 3 | 10/24/2018 | CONS EASE | CONSERVATION EASEMENT | LEIGH MILES HEARON | JEFFERSON LAND TRUST | | | | 131265 | RE-RECORD |
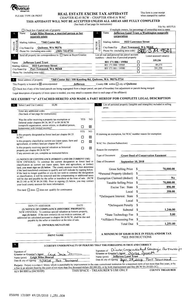
| 4 | 09/10/2018 | CONS EASE | CONSERVATION EASEMENT | LEIGH MILES HEARON | JEFFERSON LAND TRUST | | | $70,000.00 | 131089 | |
|   | |
| 5 | 06/19/2018 | QCD | Quit Claim Deed | ALAN IGLITZIN TRSTEE | LEIGH MILES HEARON | | | | 130528 | |
| 6 | 03/12/2010 | QCD | Quit Claim Deed | IGLITZIN, ALAN | A I RREVOCABLE LIVING TRUST, A | 0 | 0 | $0.00 | 114209 | 0 |
| 7 | 05/25/2000 | QCD | Quit Claim Deed | IGLITZIN-FARRELL LIVING T | IGLITZIN, ALAN | 0 | 0 | $0.00 | 89721 | 0 |
| 8 | 01/23/1997 | QCD | Quit Claim Deed | IGLITZIN, ALAN | IGLITZIN-FARRELL LIVING TRUST | 0 | 0 | $0.00 | 81323 | 0 |
| 9 | 04/17/1996 | SWD | Statutory Warranty Deed | KEMP, JAMES P/DAWN M | IGLITZIN, ALAN | 0 | 0 | $88,500.00 | 79384 | 0 |
Payout Agreement
| No payout information available.. |