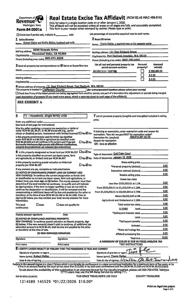
Property
Account |
| Property ID: | 19640 | Abbreviated Legal Description: | S21 T28 R1W TAX 5 |
| Parcel # / Geo ID: | 801213007 | Agent Code: | |
| Type: | Real | | |
| Tax Area: | 0221 - 1-49F2E2H2L1 | Land Use Code | 11 |
| Open Space: | N | DFL | N |
| Historic Property: | N | Remodel Property: | N |
| Multi-Family Redevelopment: | N | | |
| Township: | 28N | Section: | 21 |
| Range: | 1W |
Location |
| Address: | 1561 DABOB RD QUILCENE, WA 98376 | Mapsco: | 197/017 |
| Neighborhood: | S16, S17, S20, & S21 T28N R1W | Map ID: | |
| Neighborhood CD: | 4350 |
Owner |
| Name: | THOMAS E JOHNSON JR | Owner ID: | 19282 |
| Mailing Address: | 1561 DABOB RD QUILCENE, WA 98376-9725 | % Ownership: | 100.0000000000% |
| | | Exemptions: | |
Pay Tax Due
Select the appropriate checkbox next to the year to be paid. Multiple years may be selected.
*Convenience Fee not included
Taxes and Assessment Details
Property Tax Information as of
03/10/2026
Click on "Statement Details" to expand or collapse a tax statement.
* Please enter a valid date ** Please enter a valid date *
Statement Details |
| 2026 | 9154 | STATE - STATE LEVY (SCHOOL) | $266.37 | $266.35 | $0.00 | $0.00 | $0.00 | $532.72 |
| 2026 | 9154 | COUNTY - COUNTY LEVIES (CE, DD, VET, MH) | $106.50 | $106.48 | $0.00 | $0.00 | $0.00 | $212.98 |
| 2026 | 9154 | CONSERVE - CONSERVATION FUTURES | $3.20 | $3.19 | $0.00 | $0.00 | $0.00 | $6.39 |
| 2026 | 9154 | COROADS - COUNTY ROADS (ROADS, DIV TO CE) | $85.91 | $85.90 | $0.00 | $0.00 | $0.00 | $171.81 |
| 2026 | 9154 | PORTPT - PORT DISTRICT | $43.01 | $43.01 | $0.00 | $0.00 | $0.00 | $86.02 |
| 2026 | 9154 | PUD1 - PUD #1 | $6.93 | $6.92 | $0.00 | $0.00 | $0.00 | $13.85 |
| 2026 | 9154 | LIB1 - LIBRARY DIST #1 | $33.24 | $33.23 | $0.00 | $0.00 | $0.00 | $66.47 |
| 2026 | 9154 | HD2 - HOSP DIST #2 | $6.21 | $6.21 | $0.00 | $0.00 | $0.00 | $12.42 |
| 2026 | 9154 | SD49 - SCHOOL DIST #49 | $146.63 | $146.61 | $0.00 | $0.00 | $0.00 | $293.24 |
| 2026 | 9154 | FD2 - FIRE DISTRICT #2 | $87.47 | $87.47 | $0.00 | $0.00 | $0.00 | $174.94 |
| 2026 | 9154 | EMS2 - FIRE DIST #2 EMS | $49.26 | $49.26 | $0.00 | $0.00 | $0.00 | $98.52 |
| 2026 | 9154 | FP - DNR Forest Fire Protection Assmt | $8.50 | $8.50 | $0.00 | $0.00 | $0.00 | $17.00 |
| 2026 | 9154 | FPLCA - DNR Landowner Contingency Assmt | $3.00 | $3.00 | $0.00 | $0.00 | $0.00 | $6.00 |
| 2026 | 9154 | JCCD - JC Conservation District | $2.65 | $2.65 | $0.00 | $0.00 | $0.00 | $5.30 |
| 2026 | 9154 | NWA - Noxious Weed Assessment | $3.43 | $3.42 | $0.00 | $0.00 | $0.00 | $6.85 |
| 2026 | 9154 | OSS - On Site Septic | $23.10 | $23.10 | $0.00 | $0.00 | $0.00 | $46.20 |
| 2026 | 9154 | WAT - Clean Water District | $13.00 | $13.00 | $0.00 | $0.00 | $0.00 | $26.00 |
| 2026 | 9154 | FP ADMIN - FP ADMIN | $0.50 | $0.00 | $0.00 | $0.00 | $0.00 | $0.50 |
| 2026 | 9154 | TOTAL: | $888.91 | $888.30 | $0.00 | $0.00 | $0.00 | $1777.21 |
|
| 2026 | 9154 | $888.91 | $888.30 | $0.00 | $0.00 | $0.00 | $1777.21 |
Statement Details |
| 2025 | 9175 | STATE - STATE LEVY (SCHOOL) | $265.42 | $265.41 | $0.00 | $0.00 | $530.83 | $0.00 |
| 2025 | 9175 | COUNTY - COUNTY LEVIES (CE, DD, VET, MH) | $104.38 | $104.37 | $0.00 | $0.00 | $208.75 | $0.00 |
| 2025 | 9175 | CONSERVE - CONSERVATION FUTURES | $3.13 | $3.13 | $0.00 | $0.00 | $6.26 | $0.00 |
| 2025 | 9175 | COROADS - COUNTY ROADS (ROADS, DIV TO CE) | $83.62 | $83.61 | $0.00 | $0.00 | $167.23 | $0.00 |
| 2025 | 9175 | PORTPT - PORT DISTRICT | $42.60 | $42.59 | $0.00 | $0.00 | $85.19 | $0.00 |
| 2025 | 9175 | PUD1 - PUD #1 | $6.83 | $6.83 | $0.00 | $0.00 | $13.66 | $0.00 |
| 2025 | 9175 | LIB1 - LIBRARY DIST #1 | $32.35 | $32.35 | $0.00 | $0.00 | $64.70 | $0.00 |
| 2025 | 9175 | HD2 - HOSP DIST #2 | $6.09 | $6.09 | $0.00 | $0.00 | $12.18 | $0.00 |
| 2025 | 9175 | SD49 - SCHOOL DIST #49 | $142.25 | $142.25 | $0.00 | $0.00 | $284.50 | $0.00 |
| 2025 | 9175 | FD2 - FIRE DISTRICT #2 | $86.30 | $86.29 | $0.00 | $0.00 | $172.59 | $0.00 |
| 2025 | 9175 | EMS2 - FIRE DIST #2 EMS | $48.59 | $48.59 | $0.00 | $0.00 | $97.18 | $0.00 |
| 2025 | 9175 | FP - DNR Forest Fire Protection Assmt | $8.50 | $8.50 | $0.00 | $0.00 | $17.00 | $0.00 |
| 2025 | 9175 | FPLCA - DNR Landowner Contingency Assmt | $3.00 | $3.00 | $0.00 | $0.00 | $6.00 | $0.00 |
| 2025 | 9175 | JCCD - JC Conservation District | $2.65 | $2.65 | $0.00 | $0.00 | $5.30 | $0.00 |
| 2025 | 9175 | NWA - Noxious Weed Assessment | $2.45 | $2.45 | $0.00 | $0.00 | $4.90 | $0.00 |
| 2025 | 9175 | OSS - On Site Septic | $21.50 | $21.50 | $0.00 | $0.00 | $43.00 | $0.00 |
| 2025 | 9175 | WAT - Clean Water District | $13.00 | $13.00 | $0.00 | $0.00 | $26.00 | $0.00 |
| 2025 | 9175 | FP ADMIN - FP ADMIN | $0.50 | $0.00 | $0.00 | $0.00 | $0.50 | $0.00 |
| 2025 | 9175 | TOTAL: | $873.16 | $872.61 | $0.00 | $0.00 | $1745.77 | $0.00 |
|
| 2025 | 9175 | $873.16 | $872.61 | $0.00 | $0.00 | $1745.77 | $0.00 |
Statement Details |
| 2024 | 9199 | STATE - STATE LEVY (SCHOOL) | $237.78 | $237.76 | $0.00 | $0.00 | $475.54 | $0.00 |
| 2024 | 9199 | COUNTY - COUNTY LEVIES (CE, DD, VET, MH) | $101.76 | $101.73 | $0.00 | $0.00 | $203.49 | $0.00 |
| 2024 | 9199 | CONSERVE - CONSERVATION FUTURES | $3.05 | $3.05 | $0.00 | $0.00 | $6.10 | $0.00 |
| 2024 | 9199 | COROADS - COUNTY ROADS (ROADS, DIV TO CE) | $81.88 | $81.87 | $0.00 | $0.00 | $163.75 | $0.00 |
| 2024 | 9199 | PORTPT - PORT DISTRICT | $42.03 | $42.02 | $0.00 | $0.00 | $84.05 | $0.00 |
| 2024 | 9199 | PUD1 - PUD #1 | $6.69 | $6.68 | $0.00 | $0.00 | $13.37 | $0.00 |
| 2024 | 9199 | LIB1 - LIBRARY DIST #1 | $31.68 | $31.67 | $0.00 | $0.00 | $63.35 | $0.00 |
| 2024 | 9199 | HD2 - HOSP DIST #2 | $5.94 | $5.93 | $0.00 | $0.00 | $11.87 | $0.00 |
| 2024 | 9199 | SD49 - SCHOOL DIST #49 | $106.18 | $106.18 | $0.00 | $0.00 | $212.36 | $0.00 |
| 2024 | 9199 | FD2 - FIRE DISTRICT #2 | $84.59 | $84.58 | $0.00 | $0.00 | $169.17 | $0.00 |
| 2024 | 9199 | EMS2 - FIRE DIST #2 EMS | $47.62 | $47.61 | $0.00 | $0.00 | $95.23 | $0.00 |
| 2024 | 9199 | FP - DNR Forest Fire Protection Assmt | $8.50 | $8.50 | $0.00 | $0.00 | $17.00 | $0.00 |
| 2024 | 9199 | FPLCA - DNR Landowner Contingency Assmt | $3.00 | $3.00 | $0.00 | $0.00 | $6.00 | $0.00 |
| 2024 | 9199 | JCCD - JC Conservation District | $2.65 | $2.65 | $0.00 | $0.00 | $5.30 | $0.00 |
| 2024 | 9199 | NWA - Noxious Weed Assessment | $2.45 | $2.45 | $0.00 | $0.00 | $4.90 | $0.00 |
| 2024 | 9199 | OSS - On Site Septic | $21.00 | $21.00 | $0.00 | $0.00 | $42.00 | $0.00 |
| 2024 | 9199 | WAT - Clean Water District | $12.50 | $12.50 | $0.00 | $0.00 | $25.00 | $0.00 |
| 2024 | 9199 | FP ADMIN - FP ADMIN | $0.50 | $0.00 | $0.00 | $0.00 | $0.50 | $0.00 |
| 2024 | 9199 | TOTAL: | $799.80 | $799.18 | $0.00 | $0.00 | $1598.98 | $0.00 |
|
| 2024 | 9199 | $799.80 | $799.18 | $0.00 | $0.00 | $1598.98 | $0.00 |
Statement Details |
| 2023 | 9217 | STATE - STATE LEVY (SCHOOL) | $65.44 | $351.56 | $0.00 | $0.00 | $417.00 | $0.00 |
| 2023 | 9217 | COUNTY - COUNTY LEVIES (CE, DD, VET, MH) | $28.55 | $153.41 | $0.00 | $0.00 | $181.96 | $0.00 |
| 2023 | 9217 | CONSERVE - CONSERVATION FUTURES | $0.86 | $4.60 | $0.00 | $0.00 | $5.46 | $0.00 |
| 2023 | 9217 | COROADS - COUNTY ROADS (ROADS, DIV TO CE) | $23.10 | $124.12 | $0.00 | $0.00 | $147.22 | $0.00 |
| 2023 | 9217 | PORTPT - PORT DISTRICT | $12.04 | $64.62 | $0.00 | $0.00 | $76.66 | $0.00 |
| 2023 | 9217 | PUD1 - PUD #1 | $1.90 | $10.16 | $0.00 | $0.00 | $12.06 | $0.00 |
| 2023 | 9217 | LIB1 - LIBRARY DIST #1 | $8.94 | $48.02 | $0.00 | $0.00 | $56.96 | $0.00 |
| 2023 | 9217 | HD2 - HOSP DIST #2 | $1.67 | $8.95 | $0.00 | $0.00 | $10.62 | $0.00 |
| 2023 | 9217 | SD49 - SCHOOL DIST #49 | $30.60 | $164.32 | $0.00 | $0.00 | $194.92 | $0.00 |
| 2023 | 9217 | FD2 - FIRE DISTRICT #2 | $24.79 | $133.16 | $0.00 | $0.00 | $157.95 | $0.00 |
| 2023 | 9217 | EMS2 - FIRE DIST #2 EMS | $13.90 | $74.67 | $0.00 | $0.00 | $88.57 | $0.00 |
| 2023 | 9217 | FP - DNR Forest Fire Protection Assmt | $2.67 | $14.33 | $0.00 | $0.00 | $17.00 | $0.00 |
| 2023 | 9217 | FPLCA - DNR Landowner Contingency Assmt | $0.94 | $5.06 | $0.00 | $0.00 | $6.00 | $0.00 |
| 2023 | 9217 | JCCD - JC Conservation District | $0.83 | $4.47 | $0.00 | $0.00 | $5.30 | $0.00 |
| 2023 | 9217 | NWA - Noxious Weed Assessment | $0.77 | $4.13 | $0.00 | $0.00 | $4.90 | $0.00 |
| 2023 | 9217 | OSS - On Site Septic | $6.43 | $34.57 | $0.00 | $0.00 | $41.00 | $0.00 |
| 2023 | 9217 | WAT - Clean Water District | $3.77 | $20.23 | $0.00 | $0.00 | $24.00 | $0.00 |
| 2023 | 9217 | FP ADMIN - FP ADMIN | $0.08 | $0.42 | $0.00 | $0.00 | $0.50 | $0.00 |
| 2023 | 9217 | TOTAL: | $227.28 | $1220.80 | $0.00 | $0.00 | $1448.08 | $0.00 |
|
| 2023 | 9217 | $227.28 | $1220.80 | $0.00 | $0.00 | $1448.08 | $0.00 |
Values
| (+) Improvement Homesite Value: | + | $0 | |
| (+) Improvement Non-Homesite Value: | + | $93,308 | |
| (+) Land Homesite Value: | + | $0 | |
| (+) Land Non-Homesite Value: | + | $138,402 | |
| (+) Curr Use (HS): | + | $0 | $0 |
| (+) Curr Use (NHS): | + | $0 | $0 |
| | | -------------------------- | |
| (=) Market Value: | = | $231,710 | |
| (–) Productivity Loss: | – | $0 | |
| | | -------------------------- | |
| (=) Subtotal: | = | $231,710 | |
| (+) Senior Appraised Value: | + | $0 | |
| (+) Non-Senior Appraised Value: | + | $231,710 | |
| | | -------------------------- | |
| (=) Total Appraised Value: | = | $231,710 | |
| (–) Senior Exemption Loss: | – | $0 | |
| (–) Exemption Loss: | – | $0 | |
| | | -------------------------- | |
| (=) Taxable Value: | = | $231,710 | |
Taxing Jurisdiction
| Owner: | THOMAS E JOHNSON JR | | |
| % Ownership: | 100.0000000000% | | |
| Total Value: | $231,710 | | |
| Tax Area: | 0221 - 1-49F2E2H2L1 |
| CE | COUNTY CURRENT EXPENSE | 0.9034619479 | $231,710 | $231,710 | $209.34 | | |
| CNTYDD | DEVELOPMENTAL DISABILITIES | 0.0052121823 | $231,710 | $231,710 | $1.21 | | |
| CNTYVET | VETERANS RELIEF | 0.0052777810 | $231,710 | $231,710 | $1.22 | | |
| MENTAL | MENTAL HEALTH | 0.0052121823 | $231,710 | $231,710 | $1.21 | | |
| ROADS | COUNTY ROADS | 0.7415066410 | $231,710 | $231,710 | $171.81 | | |
| ROADSCU | COUNTY ROADS TO CUR EXP | 0.0000000000 | $231,710 | $231,710 | $0.00 | | |
| HOSP2CASH | HOSP DIST #2 GENERAL | 0.0536075306 | $231,710 | $231,710 | $12.42 | | |
| SCH49CP | SCHOOL DIST #49 CAP PROJ | 0.6279093905 | $231,710 | $231,710 | $145.49 | | |
| SCH49MO | SCHOOL DIST #49 EP & O | 0.6376483602 | $231,710 | $231,710 | $147.75 | | |
| CONSERVE | CONSERVATION FUTURES | 0.0275621078 | $231,710 | $231,710 | $6.39 | | |
| FD2 | FIRE DIST #2 GENERAL | 0.7549976873 | $231,710 | $231,710 | $174.94 | | |
| LIB1 | LIBRARY DIST #1 GENERAL | 0.2868827388 | $231,710 | $231,710 | $66.47 | | |
| PORTPT | PORT OF PT GENERAL | 0.1134941229 | $231,710 | $231,710 | $26.30 | | |
| PORTPTIDD | PORT OF PT IDD 2019 | 0.2577346692 | $231,710 | $231,710 | $59.72 | | |
| PUD1 | PUD #1 GENERAL | 0.0597888892 | $231,710 | $231,710 | $13.85 | | |
| STATE | STATE SCHOOL PART 1 | 1.4940692947 | $231,710 | $231,710 | $346.19 | | |
| STATE2 | STATE SCHOOL PART 2 | 0.8050170049 | $231,710 | $231,710 | $186.53 | | |
| EMS2 | FIRE DIST #2 EMS | 0.4251727858 | $231,710 | $231,710 | $98.52 | | |
| | Total Tax Rate: | 7.2045553164 | | | | | |
| | | | | Taxes w/Current Exemptions: | $1,669.36 | | |
| | | | | Taxes w/o Exemptions: | $1,669.36 | | |
Improvement / Building
| Improvement #1: | Residential Bldg | State Code: | 11 | 1560.0 sqft | Value: | $93,308 |
| Bathrooms (#): | 1 (FULL) | Bedrooms (#): | 3 | | Exterior Wall: | SI/ST | Fireplace: | SIN 1-FAIR | | Floor Construction: | FRAME | Foundation: | CONBL | | Heating/Cooling: | ELBB | Inside Verify: | YES-FIX | | Roof Cover: | COMP |   |   |
|
| | Type | Description | Class CD | Sub Class CD | Year Built | Area |
| | MA | Main Area | 2 | 1S | 1967 | 1560.0 |
| | HDECK | House Deck | 2 | * | 1967 | 240.0 |
| | OTHER | Other | * | * | 1967 | 0.0 |
Sketch
Property Image
Land
| 1 | 4350-1375S | | 1.0000 | 43560.00 | 0.00 | 0.00 | 1.00 | $122,375 | $0 |
| 2 | 1577A | | 1.8800 | 81892.80 | 0.00 | 0.00 | 0.00 | $16,027 | $0 |
Roll Value History
| 2026 | N/A | N/A | N/A | N/A | N/A |
| 2025 | $93,308 | $138,402 | $0 | $231,710 | $231,710 |
| 2024 | $89,251 | $132,112 | $0 | $221,363 | $221,363 |
| 2023 | $85,194 | $120,350 | $0 | $205,544 | $205,544 |
| 2022 | $93,973 | $83,160 | $0 | $177,133 | $177,133 |
Deed and Sales History
| 1 | 12/18/2025 | DTH CERT | Death Certificate | VERTTA E JOHNSON | THOMAS E JOHNSON JR | | | | 145501 | |
| 2 | 10/03/2023 | TRED | Trustee Deed | THOMAS & VERTTA JOHNSON TRUST AGREEMENT | VERTTA E JOHNSON | | | | 141809 | |
| 3 | 11/13/2014 | QCD | Quit Claim Deed | THOMAS E JOHNSON JR | THOMAS & VERTTA JOHNSON TRUST AGREEMENT | | | | 122295 | |
Payout Agreement
| No payout information available.. |