| 1 | 11/07/2019 | CONS EASE | CONSERVATION EASEMENT | NORTHWEST WATERSHED INSTITUTE | JEFFERSON LAND TRUST | | | $65,000.00 | 133516 | |
|   | |
| 2 | 11/07/2019 | CONS EASE | CONSERVATION EASEMENT | NORTHWEST WATERSHED INSTITUTE | JEFFERSON LAND TRUST | | | $150,000.00 | 133515 | |
|   | |
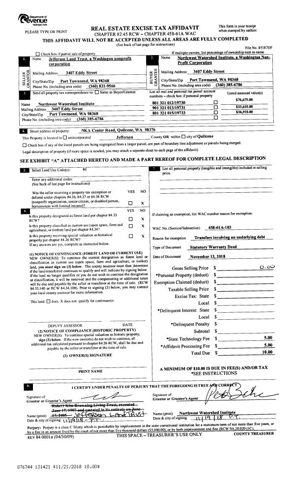
| 3 | 11/13/2018 | SWD | Statutory Warranty Deed | JEFFERSON LAND TRUST | NORTHWEST WATERSHED INSTITUTE | | | | 131421 | |
| 4 | 11/13/2018 | SWD | Statutory Warranty Deed | ROBERT KIM BROWNING TRSTE | JEFFERSON LAND TRUST | | | $225,000.00 | 131420 | |
|   | |
| 5 | 07/28/2003 | QCD | Quit Claim Deed | BROWNING, ROBERT KIM | BROWNING LIVING TRUST/R KIM | 0 | 0 | $0.00 | 97932 | 0 |
| 6 | 02/21/2003 | QCD | Quit Claim Deed | BROWNING, ROBERT KIM | BROWNING, ROBERT KIM LIVING TR | 0 | 0 | $0.00 | 96765 | 0 |
| 7 | 02/21/2003 | QCD | Quit Claim Deed | WALTERS, LORRAINE JEAN | BROWNING, ROBERT KIM | 0 | 0 | $0.00 | 96764 | 0 |
| 8 | 07/07/1997 | QCD | Quit Claim Deed | BROWNING, ROBERT KIM | BROWNING, ROBERT KIM/TRUST | 0 | 0 | $0.00 | 82274 | 0 |