Property
Account |
| Property ID: | 19787 | Abbreviated Legal Description: | S33 T28 R1W SW QUARTER(LY E'LY OF DABOB PO RD AND LY N'LY OF COYLE RD) LS TX 4 |
| Parcel # / Geo ID: | 801333001 | Agent Code: | |
| Type: | Real | | |
| Tax Area: | 0221 - 1-49F2E2H2L1 | Land Use Code | 88 |
| Open Space: | N | DFL | Y |
| Historic Property: | N | Remodel Property: | N |
| Multi-Family Redevelopment: | N | | |
| Township: | 28N | Section: | 33 |
| Range: | 1W |
Location |
| Address: | 175 DABOB POST OFFICE RD QUILCENE, WA 98376 | Mapsco: | 200/014 |
| Neighborhood: | S32, 33, 34 & 35 T28N R1W | Map ID: | |
| Neighborhood CD: | 4370 |
Owner |
| Name: | ZOE ZUKER | Owner ID: | 109372 |
| Mailing Address: | EUGENE ALLDAY 175 DABOB POST OFFICE RD QUILCENE, WA 98376-9716 | % Ownership: | 100.0000000000% |
| | | Exemptions: | |
Pay Tax Due
Select the appropriate checkbox next to the year to be paid. Multiple years may be selected.
*Convenience Fee not included
Taxes and Assessment Details
Property Tax Information as of
03/11/2026
Click on "Statement Details" to expand or collapse a tax statement.
* Please enter a valid date ** Please enter a valid date *
Statement Details |
| 2026 | 9299 | STATE - STATE LEVY (SCHOOL) | $1537.10 | $1537.10 | $0.00 | $0.00 | $0.00 | $3074.20 |
| 2026 | 9299 | COUNTY - COUNTY LEVIES (CE, DD, VET, MH) | $614.54 | $614.51 | $0.00 | $0.00 | $0.00 | $1229.05 |
| 2026 | 9299 | CONSERVE - CONSERVATION FUTURES | $18.43 | $18.42 | $0.00 | $0.00 | $0.00 | $36.85 |
| 2026 | 9299 | COROADS - COUNTY ROADS (ROADS, DIV TO CE) | $495.75 | $495.75 | $0.00 | $0.00 | $0.00 | $991.50 |
| 2026 | 9299 | PORTPT - PORT DISTRICT | $248.20 | $248.19 | $0.00 | $0.00 | $0.00 | $496.39 |
| 2026 | 9299 | PUD1 - PUD #1 | $39.98 | $39.97 | $0.00 | $0.00 | $0.00 | $79.95 |
| 2026 | 9299 | LIB1 - LIBRARY DIST #1 | $191.80 | $191.80 | $0.00 | $0.00 | $0.00 | $383.60 |
| 2026 | 9299 | HD2 - HOSP DIST #2 | $35.84 | $35.84 | $0.00 | $0.00 | $0.00 | $71.68 |
| 2026 | 9299 | SD49 - SCHOOL DIST #49 | $846.11 | $846.11 | $0.00 | $0.00 | $0.00 | $1692.22 |
| 2026 | 9299 | FD2 - FIRE DISTRICT #2 | $504.77 | $504.77 | $0.00 | $0.00 | $0.00 | $1009.54 |
| 2026 | 9299 | EMS2 - FIRE DIST #2 EMS | $284.26 | $284.25 | $0.00 | $0.00 | $0.00 | $568.51 |
| 2026 | 9299 | FP - DNR Forest Fire Protection Assmt | $16.49 | $16.48 | $0.00 | $0.00 | $0.00 | $32.97 |
| 2026 | 9299 | FPLCA - DNR Landowner Contingency Assmt | $7.44 | $7.43 | $0.00 | $0.00 | $0.00 | $14.87 |
| 2026 | 9299 | JCCD - JC Conservation District | $2.06 | $2.05 | $0.00 | $0.00 | $0.00 | $4.11 |
| 2026 | 9299 | NWA - Noxious Weed Assessment | $2.80 | $2.79 | $0.00 | $0.00 | $0.00 | $5.59 |
| 2026 | 9299 | OSS - On Site Septic | $23.10 | $23.10 | $0.00 | $0.00 | $0.00 | $46.20 |
| 2026 | 9299 | WAT - Clean Water District | $13.00 | $13.00 | $0.00 | $0.00 | $0.00 | $26.00 |
| 2026 | 9299 | FP ADMIN - FP ADMIN | $0.50 | $0.00 | $0.00 | $0.00 | $0.00 | $0.50 |
| 2026 | 9299 | TOTAL: | $4882.17 | $4881.56 | $0.00 | $0.00 | $0.00 | $9763.73 |
|
| 2026 | 9299 | $4882.17 | $4881.56 | $0.00 | $0.00 | $0.00 | $9763.73 |
Statement Details |
| 2025 | 9321 | STATE - STATE LEVY (SCHOOL) | $1532.89 | $1532.87 | $0.00 | $0.00 | $3065.76 | $0.00 |
| 2025 | 9321 | COUNTY - COUNTY LEVIES (CE, DD, VET, MH) | $602.80 | $602.79 | $0.00 | $0.00 | $1205.59 | $0.00 |
| 2025 | 9321 | CONSERVE - CONSERVATION FUTURES | $18.08 | $18.07 | $0.00 | $0.00 | $36.15 | $0.00 |
| 2025 | 9321 | COROADS - COUNTY ROADS (ROADS, DIV TO CE) | $482.94 | $482.93 | $0.00 | $0.00 | $965.87 | $0.00 |
| 2025 | 9321 | PORTPT - PORT DISTRICT | $245.98 | $245.97 | $0.00 | $0.00 | $491.95 | $0.00 |
| 2025 | 9321 | PUD1 - PUD #1 | $39.45 | $39.44 | $0.00 | $0.00 | $78.89 | $0.00 |
| 2025 | 9321 | LIB1 - LIBRARY DIST #1 | $186.85 | $186.84 | $0.00 | $0.00 | $373.69 | $0.00 |
| 2025 | 9321 | HD2 - HOSP DIST #2 | $35.17 | $35.17 | $0.00 | $0.00 | $70.34 | $0.00 |
| 2025 | 9321 | SD49 - SCHOOL DIST #49 | $821.54 | $821.52 | $0.00 | $0.00 | $1643.06 | $0.00 |
| 2025 | 9321 | FD2 - FIRE DISTRICT #2 | $498.39 | $498.38 | $0.00 | $0.00 | $996.77 | $0.00 |
| 2025 | 9321 | EMS2 - FIRE DIST #2 EMS | $280.63 | $280.62 | $0.00 | $0.00 | $561.25 | $0.00 |
| 2025 | 9321 | FP - DNR Forest Fire Protection Assmt | $16.49 | $16.48 | $0.00 | $0.00 | $32.97 | $0.00 |
| 2025 | 9321 | FPLCA - DNR Landowner Contingency Assmt | $7.44 | $7.43 | $0.00 | $0.00 | $14.87 | $0.00 |
| 2025 | 9321 | JCCD - JC Conservation District | $2.06 | $2.05 | $0.00 | $0.00 | $4.11 | $0.00 |
| 2025 | 9321 | NWA - Noxious Weed Assessment | $1.88 | $1.88 | $0.00 | $0.00 | $3.76 | $0.00 |
| 2025 | 9321 | OSS - On Site Septic | $21.50 | $21.50 | $0.00 | $0.00 | $43.00 | $0.00 |
| 2025 | 9321 | WAT - Clean Water District | $13.00 | $13.00 | $0.00 | $0.00 | $26.00 | $0.00 |
| 2025 | 9321 | FP ADMIN - FP ADMIN | $0.50 | $0.00 | $0.00 | $0.00 | $0.50 | $0.00 |
| 2025 | 9321 | TOTAL: | $4807.59 | $4806.94 | $0.00 | $0.00 | $9614.53 | $0.00 |
|
| 2025 | 9321 | $4807.59 | $4806.94 | $0.00 | $0.00 | $9614.53 | $0.00 |
Statement Details |
| 2024 | 9345 | STATE - STATE LEVY (SCHOOL) | $1388.04 | $1388.03 | $0.00 | $0.00 | $2776.07 | $0.00 |
| 2024 | 9345 | COUNTY - COUNTY LEVIES (CE, DD, VET, MH) | $593.97 | $593.94 | $0.00 | $0.00 | $1187.91 | $0.00 |
| 2024 | 9345 | CONSERVE - CONSERVATION FUTURES | $17.81 | $17.81 | $0.00 | $0.00 | $35.62 | $0.00 |
| 2024 | 9345 | COROADS - COUNTY ROADS (ROADS, DIV TO CE) | $477.94 | $477.93 | $0.00 | $0.00 | $955.87 | $0.00 |
| 2024 | 9345 | PORTPT - PORT DISTRICT | $245.33 | $245.33 | $0.00 | $0.00 | $490.66 | $0.00 |
| 2024 | 9345 | PUD1 - PUD #1 | $39.02 | $39.01 | $0.00 | $0.00 | $78.03 | $0.00 |
| 2024 | 9345 | LIB1 - LIBRARY DIST #1 | $184.91 | $184.91 | $0.00 | $0.00 | $369.82 | $0.00 |
| 2024 | 9345 | HD2 - HOSP DIST #2 | $34.66 | $34.65 | $0.00 | $0.00 | $69.31 | $0.00 |
| 2024 | 9345 | SD49 - SCHOOL DIST #49 | $619.83 | $619.82 | $0.00 | $0.00 | $1239.65 | $0.00 |
| 2024 | 9345 | FD2 - FIRE DISTRICT #2 | $493.79 | $493.78 | $0.00 | $0.00 | $987.57 | $0.00 |
| 2024 | 9345 | EMS2 - FIRE DIST #2 EMS | $277.97 | $277.97 | $0.00 | $0.00 | $555.94 | $0.00 |
| 2024 | 9345 | FP - DNR Forest Fire Protection Assmt | $16.49 | $16.48 | $0.00 | $0.00 | $32.97 | $0.00 |
| 2024 | 9345 | FPLCA - DNR Landowner Contingency Assmt | $7.44 | $7.43 | $0.00 | $0.00 | $14.87 | $0.00 |
| 2024 | 9345 | JCCD - JC Conservation District | $2.06 | $2.05 | $0.00 | $0.00 | $4.11 | $0.00 |
| 2024 | 9345 | NWA - Noxious Weed Assessment | $1.88 | $1.88 | $0.00 | $0.00 | $3.76 | $0.00 |
| 2024 | 9345 | OSS - On Site Septic | $21.00 | $21.00 | $0.00 | $0.00 | $42.00 | $0.00 |
| 2024 | 9345 | WAT - Clean Water District | $12.50 | $12.50 | $0.00 | $0.00 | $25.00 | $0.00 |
| 2024 | 9345 | FP ADMIN - FP ADMIN | $0.50 | $0.00 | $0.00 | $0.00 | $0.50 | $0.00 |
| 2024 | 9345 | TOTAL: | $4435.14 | $4434.52 | $0.00 | $0.00 | $8869.66 | $0.00 |
|
| 2024 | 9345 | $4435.14 | $4434.52 | $0.00 | $0.00 | $8869.66 | $0.00 |
Statement Details |
| 2023 | 9363 | STATE - STATE LEVY (SCHOOL) | $1087.36 | $1087.35 | $0.00 | $0.00 | $2174.71 | $0.00 |
| 2023 | 9363 | COUNTY - COUNTY LEVIES (CE, DD, VET, MH) | $474.51 | $474.47 | $0.00 | $0.00 | $948.98 | $0.00 |
| 2023 | 9363 | CONSERVE - CONSERVATION FUTURES | $14.23 | $14.23 | $0.00 | $0.00 | $28.46 | $0.00 |
| 2023 | 9363 | COROADS - COUNTY ROADS (ROADS, DIV TO CE) | $383.90 | $383.89 | $0.00 | $0.00 | $767.79 | $0.00 |
| 2023 | 9363 | PORTPT - PORT DISTRICT | $199.89 | $199.88 | $0.00 | $0.00 | $399.77 | $0.00 |
| 2023 | 9363 | PUD1 - PUD #1 | $31.45 | $31.45 | $0.00 | $0.00 | $62.90 | $0.00 |
| 2023 | 9363 | LIB1 - LIBRARY DIST #1 | $148.53 | $148.52 | $0.00 | $0.00 | $297.05 | $0.00 |
| 2023 | 9363 | HD2 - HOSP DIST #2 | $27.70 | $27.68 | $0.00 | $0.00 | $55.38 | $0.00 |
| 2023 | 9363 | SD49 - SCHOOL DIST #49 | $508.29 | $508.27 | $0.00 | $0.00 | $1016.56 | $0.00 |
| 2023 | 9363 | FD2 - FIRE DISTRICT #2 | $411.87 | $411.87 | $0.00 | $0.00 | $823.74 | $0.00 |
| 2023 | 9363 | EMS2 - FIRE DIST #2 EMS | $230.95 | $230.94 | $0.00 | $0.00 | $461.89 | $0.00 |
| 2023 | 9363 | FP - DNR Forest Fire Protection Assmt | $16.49 | $16.48 | $0.00 | $0.00 | $32.97 | $0.00 |
| 2023 | 9363 | FPLCA - DNR Landowner Contingency Assmt | $7.44 | $7.43 | $0.00 | $0.00 | $14.87 | $0.00 |
| 2023 | 9363 | JCCD - JC Conservation District | $2.06 | $2.05 | $0.00 | $0.00 | $4.11 | $0.00 |
| 2023 | 9363 | NWA - Noxious Weed Assessment | $1.88 | $1.88 | $0.00 | $0.00 | $3.76 | $0.00 |
| 2023 | 9363 | OSS - On Site Septic | $20.50 | $20.50 | $0.00 | $0.00 | $41.00 | $0.00 |
| 2023 | 9363 | WAT - Clean Water District | $12.00 | $12.00 | $0.00 | $0.00 | $24.00 | $0.00 |
| 2023 | 9363 | FP ADMIN - FP ADMIN | $0.50 | $0.00 | $0.00 | $0.00 | $0.50 | $0.00 |
| 2023 | 9363 | TOTAL: | $3579.55 | $3578.89 | $0.00 | $0.00 | $7158.44 | $0.00 |
|
| 2023 | 9363 | $3579.55 | $3578.89 | $0.00 | $0.00 | $7158.44 | $0.00 |
Values
| (+) Improvement Homesite Value: | + | $311,448 | |
| (+) Improvement Non-Homesite Value: | + | $519,611 | |
| (+) Land Homesite Value: | + | $0 | |
| (+) Land Non-Homesite Value: | + | $496,942 | |
| (+) Curr Use (HS): | + | $0 | $0 |
| (+) Curr Use (NHS): | + | $522,499 | $9,136 |
| | | -------------------------- | |
| (=) Market Value: | = | $1,850,500 | |
| (–) Productivity Loss: | – | $513,363 | |
| | | -------------------------- | |
| (=) Subtotal: | = | $1,337,137 | |
| (+) Senior Appraised Value: | + | $0 | |
| (+) Non-Senior Appraised Value: | + | $1,337,137 | |
| | | -------------------------- | |
| (=) Total Appraised Value: | = | $1,337,137 | |
| (–) Senior Exemption Loss: | – | $0 | |
| (–) Exemption Loss: | – | $0 | |
| | | -------------------------- | |
| (=) Taxable Value: | = | $1,337,137 | |
Taxing Jurisdiction
| Owner: | ZOE ZUKER | | |
| % Ownership: | 100.0000000000% | | |
| Total Value: | $1,850,500 | | |
| Tax Area: | 0221 - 1-49F2E2H2L1 |
| CE | COUNTY CURRENT EXPENSE | 0.9034619479 | $1,337,137 | $1,337,137 | $1,208.05 | | |
| CNTYDD | DEVELOPMENTAL DISABILITIES | 0.0052121823 | $1,337,137 | $1,337,137 | $6.97 | | |
| CNTYVET | VETERANS RELIEF | 0.0052777810 | $1,337,137 | $1,337,137 | $7.06 | | |
| MENTAL | MENTAL HEALTH | 0.0052121823 | $1,337,137 | $1,337,137 | $6.97 | | |
| ROADS | COUNTY ROADS | 0.7415066410 | $1,337,137 | $1,337,137 | $991.50 | | |
| ROADSCU | COUNTY ROADS TO CUR EXP | 0.0000000000 | $1,337,137 | $1,337,137 | $0.00 | | |
| HOSP2CASH | HOSP DIST #2 GENERAL | 0.0536075306 | $1,337,137 | $1,337,137 | $71.68 | | |
| SCH49CP | SCHOOL DIST #49 CAP PROJ | 0.6279093905 | $1,337,137 | $1,337,137 | $839.60 | | |
| SCH49MO | SCHOOL DIST #49 EP & O | 0.6376483602 | $1,337,137 | $1,337,137 | $852.62 | | |
| CONSERVE | CONSERVATION FUTURES | 0.0275621078 | $1,337,137 | $1,337,137 | $36.85 | | |
| FD2 | FIRE DIST #2 GENERAL | 0.7549976873 | $1,337,137 | $1,337,137 | $1,009.54 | | |
| LIB1 | LIBRARY DIST #1 GENERAL | 0.2868827388 | $1,337,137 | $1,337,137 | $383.60 | | |
| PORTPT | PORT OF PT GENERAL | 0.1134941229 | $1,337,137 | $1,337,137 | $151.76 | | |
| PORTPTIDD | PORT OF PT IDD 2019 | 0.2577346692 | $1,337,137 | $1,337,137 | $344.63 | | |
| PUD1 | PUD #1 GENERAL | 0.0597888892 | $1,337,137 | $1,337,137 | $79.95 | | |
| STATE | STATE SCHOOL PART 1 | 1.4940692947 | $1,337,137 | $1,337,137 | $1,997.78 | | |
| STATE2 | STATE SCHOOL PART 2 | 0.8050170049 | $1,337,137 | $1,337,137 | $1,076.42 | | |
| EMS2 | FIRE DIST #2 EMS | 0.4251727858 | $1,337,137 | $1,337,137 | $568.51 | | |
| | Total Tax Rate: | 7.2045553164 | | | | | |
| | | | | Taxes w/Current Exemptions: | $9,633.49 | | |
| | | | | Taxes w/o Exemptions: | $9,633.49 | | |
Improvement / Building
| Improvement #1: | Residential Bldg | State Code: | 11 | 2025.0 sqft | Value: | $459,403 |
| Bathrooms (#): | 2 (FULL) | Bedrooms (#): | 3 | | Exterior Wall: | PL/T1 | Fireplace: | WD ST-GOOD | | Floor Construction: | FRAME | Foundation: | CONPR | | Heating/Cooling: | HPUMP | Inside Verify: | YES-FIX | | Roof Cover: | COMP |   |   |
|
| | Type | Description | Class CD | Sub Class CD | Year Built | Area |
| | MA | Main Area | 4 | 1S | 1977 | 2025.0 |
| | HCPOR | House Concrete Porch | 4 | * | 1977 | 491.0 |
| | BARN | Barn (Table Not Dep) | 3 | * | 1977 | 1600.0 |
| | GARAG | Garage (Table Not Dep) | 3 | * | 1977 | 2160.0 |
| | CARPTN | Carport W/O Floor | 4 | * | 2016 | 1232.0 |
| Improvement #2: | Residential Bldg | State Code: | 11 | 909.0 sqft | Value: | $60,208 |
| Bathrooms (#): | 1 (FULL) | Bedrooms (#): | 2 | | Exterior Wall: | SI/ST | Floor Construction: | FRAME | | Foundation: | PO&BL | Heating/Cooling: | WD/NO | | Inside Verify: | YES-FIX | Roof Cover: | COMP |
|
| | Type | Description | Class CD | Sub Class CD | Year Built | Area |
| | MA | Main Area | 2+ | 1S | 1915 | 909.0 |
| | OTHER | Other | * | * | 1915 | 0.0 |
| | GARAG | Garage (Table Not Dep) | 3 | * | 1915 | 800.0 |
| Improvement #3: | Residential Bldg | State Code: | 11 | 1472.0 sqft | Value: | $311,448 |
| Bathrooms (#): | 1 (FULL) | Bedrooms (#): | 2 | | Exterior Wall: | MASON | Floor Construction: | CONCR | | Foundation: | CONPR | Heating/Cooling: | HTWTR | | Roof Cover: | METAL |   |   |
|
| | Type | Description | Class CD | Sub Class CD | Year Built | Area |
| | MA | Main Area | 3 | 1S | 2016 | 1472.0 |
| | HLOFT | House Loft | 3 | 1S | 2016 | 384.0 |
| | SOLAR | Solar Panel | * | * | 2016 | 0.0 |
Sketch
Property Image
Land
| 1 | 1972A | | 6.0500 | 263538.00 | 0.00 | 0.00 | 0.00 | $44,922 | $103 |
| 2 | 1972A | | 25.8400 | 1125590.40 | 0.00 | 0.00 | 0.00 | $191,862 | $2,894 |
| 3 | 1972A | | 6.0500 | 263538.00 | 0.00 | 0.00 | 0.00 | $44,922 | $901 |
| 4 | 1972A | | 16.4800 | 717868.80 | 0.00 | 0.00 | 0.00 | $122,364 | $2,390 |
| 5 | 1972A | | 2.7600 | 120225.60 | 0.00 | 0.00 | 0.00 | $20,493 | $395 |
| 6 | 1972A | | 13.1900 | 574556.40 | 0.00 | 0.00 | 0.00 | $97,936 | $2,453 |
| 7 | 1972A | | 38.7800 | 1689256.80 | 0.00 | 0.00 | 0.00 | $287,942 | $0 |
| 8 | 4370-1375S | | 2.0000 | 87120.00 | 0.00 | 0.00 | 2.00 | $209,000 | $0 |
Roll Value History
| 2026 | N/A | N/A | N/A | N/A | N/A |
| 2025 | $831,059 | $1,019,441 | $9,136 | $1,337,137 | $1,337,137 |
| 2024 | $794,926 | $973,103 | $9,175 | $1,278,454 | $1,278,454 |
| 2023 | $758,793 | $889,475 | $9,032 | $1,199,895 | $1,199,895 |
| 2022 | $619,868 | $576,600 | $8,788 | $923,776 | $923,776 |
Deed and Sales History
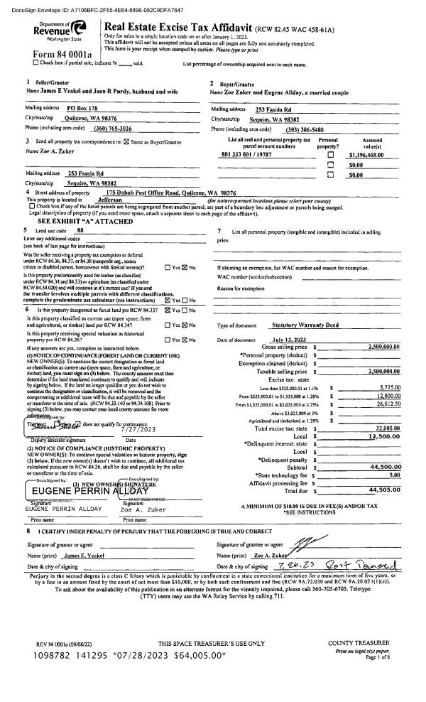
| 1 | 07/13/2023 | SWD | Statutory Warranty Deed | JAMES E YEAKEL | ZOE ZUKER | | | $2,500,000.00 | 141295 | |
| 2 | 04/30/1998 | SWD | Statutory Warranty Deed | HELM, THEODORE M/ROBIN D | YEAKEL, JAMES E/PURDY, JOAN R | 0 | 0 | $575,000.00 | 84349 | 0 |
| 3 | 07/20/1993 | SWD | Statutory Warranty Deed | CLAGETT, CHARLES T/SIMON | HELM, THEODORE M/ROBIN D | 0 | 0 | $475,000.00 | 71786 | 0 |
Payout Agreement
| No payout information available.. |