Property
Account |
| Property ID: | 19859 | Abbreviated Legal Description: | S12 T28 R2W TAX 1 WITH EASE |
| Parcel # / Geo ID: | 802123005 | Agent Code: | |
| Type: | Real | | |
| Tax Area: | 0321 - 1-48F2E2H2C2L1 | Land Use Code | 91 |
| Open Space: | N | DFL | N |
| Historic Property: | N | Remodel Property: | N |
| Multi-Family Redevelopment: | N | | |
| Township: | 28N | Section: | 12 |
| Range: | 2W |
Location |
| Address: | | Mapsco: | 168/010 |
| Neighborhood: | S1 & 2, S11 & 12 T28N R2W & CROCKER LAKE (PLAT) | Map ID: | |
| Neighborhood CD: | 2610 |
Owner |
| Name: | LANCE M & HANNAH L CROFT | Owner ID: | 112055 |
| Mailing Address: | 7337 N KELLOGG ST PORTLAND, OR 97203-3966 | % Ownership: | 100.0000000000% |
| | | Exemptions: | |
Pay Tax Due
Select the appropriate checkbox next to the year to be paid. Multiple years may be selected.
*Convenience Fee not included
Taxes and Assessment Details
Property Tax Information as of
03/10/2026
Click on "Statement Details" to expand or collapse a tax statement.
* Please enter a valid date ** Please enter a valid date *
Statement Details |
| 2026 | 9370 | STATE - STATE LEVY (SCHOOL) | $261.72 | $261.72 | $0.00 | $0.00 | $0.00 | $523.44 |
| 2026 | 9370 | COUNTY - COUNTY LEVIES (CE, DD, VET, MH) | $104.65 | $104.62 | $0.00 | $0.00 | $0.00 | $209.27 |
| 2026 | 9370 | CONSERVE - CONSERVATION FUTURES | $3.14 | $3.14 | $0.00 | $0.00 | $0.00 | $6.28 |
| 2026 | 9370 | COROADS - COUNTY ROADS (ROADS, DIV TO CE) | $84.41 | $84.41 | $0.00 | $0.00 | $0.00 | $168.82 |
| 2026 | 9370 | PORTPT - PORT DISTRICT | $42.26 | $42.26 | $0.00 | $0.00 | $0.00 | $84.52 |
| 2026 | 9370 | PUD1 - PUD #1 | $6.81 | $6.80 | $0.00 | $0.00 | $0.00 | $13.61 |
| 2026 | 9370 | LIB1 - LIBRARY DIST #1 | $32.66 | $32.65 | $0.00 | $0.00 | $0.00 | $65.31 |
| 2026 | 9370 | HD2 - HOSP DIST #2 | $6.10 | $6.10 | $0.00 | $0.00 | $0.00 | $12.20 |
| 2026 | 9370 | SD48 - SCHOOL DIST #48 | $160.74 | $160.74 | $0.00 | $0.00 | $0.00 | $321.48 |
| 2026 | 9370 | FD2 - FIRE DISTRICT #2 | $85.95 | $85.94 | $0.00 | $0.00 | $0.00 | $171.89 |
| 2026 | 9370 | EMS2 - FIRE DIST #2 EMS | $48.40 | $48.40 | $0.00 | $0.00 | $0.00 | $96.80 |
| 2026 | 9370 | CEM2 - CEMETERY DIST #2 | $2.75 | $2.74 | $0.00 | $0.00 | $0.00 | $5.49 |
| 2026 | 9370 | FP - DNR Forest Fire Protection Assmt | $8.50 | $8.50 | $0.00 | $0.00 | $0.00 | $17.00 |
| 2026 | 9370 | FPLCA - DNR Landowner Contingency Assmt | $3.00 | $3.00 | $0.00 | $0.00 | $0.00 | $6.00 |
| 2026 | 9370 | JCCD - JC Conservation District | $3.13 | $3.13 | $0.00 | $0.00 | $0.00 | $6.26 |
| 2026 | 9370 | NWA - Noxious Weed Assessment | $6.35 | $6.35 | $0.00 | $0.00 | $0.00 | $12.70 |
| 2026 | 9370 | WAT - Clean Water District | $13.00 | $13.00 | $0.00 | $0.00 | $0.00 | $26.00 |
| 2026 | 9370 | FP ADMIN - FP ADMIN | $0.50 | $0.00 | $0.00 | $0.00 | $0.00 | $0.50 |
| 2026 | 9370 | TOTAL: | $874.07 | $873.50 | $0.00 | $0.00 | $0.00 | $1747.57 |
|
| 2026 | 9370 | $874.07 | $873.50 | $0.00 | $0.00 | $0.00 | $1747.57 |
Statement Details |
| 2025 | 9392 | STATE - STATE LEVY (SCHOOL) | $261.12 | $261.10 | $0.00 | $0.00 | $522.22 | $0.00 |
| 2025 | 9392 | COUNTY - COUNTY LEVIES (CE, DD, VET, MH) | $102.68 | $102.68 | $0.00 | $0.00 | $205.36 | $0.00 |
| 2025 | 9392 | CONSERVE - CONSERVATION FUTURES | $3.08 | $3.08 | $0.00 | $0.00 | $6.16 | $0.00 |
| 2025 | 9392 | COROADS - COUNTY ROADS (ROADS, DIV TO CE) | $82.27 | $82.26 | $0.00 | $0.00 | $164.53 | $0.00 |
| 2025 | 9392 | PORTPT - PORT DISTRICT | $41.90 | $41.90 | $0.00 | $0.00 | $83.80 | $0.00 |
| 2025 | 9392 | PUD1 - PUD #1 | $6.72 | $6.72 | $0.00 | $0.00 | $13.44 | $0.00 |
| 2025 | 9392 | LIB1 - LIBRARY DIST #1 | $31.83 | $31.82 | $0.00 | $0.00 | $63.65 | $0.00 |
| 2025 | 9392 | HD2 - HOSP DIST #2 | $5.99 | $5.99 | $0.00 | $0.00 | $11.98 | $0.00 |
| 2025 | 9392 | SD48 - SCHOOL DIST #48 | $153.76 | $153.76 | $0.00 | $0.00 | $307.52 | $0.00 |
| 2025 | 9392 | FD2 - FIRE DISTRICT #2 | $84.90 | $84.89 | $0.00 | $0.00 | $169.79 | $0.00 |
| 2025 | 9392 | EMS2 - FIRE DIST #2 EMS | $47.80 | $47.80 | $0.00 | $0.00 | $95.60 | $0.00 |
| 2025 | 9392 | CEM2 - CEMETERY DIST #2 | $2.71 | $2.71 | $0.00 | $0.00 | $5.42 | $0.00 |
| 2025 | 9392 | FP - DNR Forest Fire Protection Assmt | $8.50 | $8.50 | $0.00 | $0.00 | $17.00 | $0.00 |
| 2025 | 9392 | FPLCA - DNR Landowner Contingency Assmt | $3.00 | $3.00 | $0.00 | $0.00 | $6.00 | $0.00 |
| 2025 | 9392 | JCCD - JC Conservation District | $3.13 | $3.13 | $0.00 | $0.00 | $6.26 | $0.00 |
| 2025 | 9392 | NWA - Noxious Weed Assessment | $4.40 | $4.40 | $0.00 | $0.00 | $8.80 | $0.00 |
| 2025 | 9392 | WAT - Clean Water District | $13.00 | $13.00 | $0.00 | $0.00 | $26.00 | $0.00 |
| 2025 | 9392 | FP ADMIN - FP ADMIN | $0.50 | $0.00 | $0.00 | $0.00 | $0.50 | $0.00 |
| 2025 | 9392 | TOTAL: | $857.29 | $856.74 | $0.00 | $0.00 | $1714.03 | $0.00 |
|
| 2025 | 9392 | $857.29 | $856.74 | $0.00 | $0.00 | $1714.03 | $0.00 |
Statement Details |
| 2024 | 9416 | STATE - STATE LEVY (SCHOOL) | $236.13 | $236.12 | $0.00 | $0.00 | $472.25 | $0.00 |
| 2024 | 9416 | COUNTY - COUNTY LEVIES (CE, DD, VET, MH) | $101.04 | $101.04 | $0.00 | $0.00 | $202.08 | $0.00 |
| 2024 | 9416 | CONSERVE - CONSERVATION FUTURES | $3.03 | $3.03 | $0.00 | $0.00 | $6.06 | $0.00 |
| 2024 | 9416 | COROADS - COUNTY ROADS (ROADS, DIV TO CE) | $81.31 | $81.30 | $0.00 | $0.00 | $162.61 | $0.00 |
| 2024 | 9416 | PORTPT - PORT DISTRICT | $41.74 | $41.73 | $0.00 | $0.00 | $83.47 | $0.00 |
| 2024 | 9416 | PUD1 - PUD #1 | $6.64 | $6.63 | $0.00 | $0.00 | $13.27 | $0.00 |
| 2024 | 9416 | LIB1 - LIBRARY DIST #1 | $31.46 | $31.45 | $0.00 | $0.00 | $62.91 | $0.00 |
| 2024 | 9416 | HD2 - HOSP DIST #2 | $5.90 | $5.89 | $0.00 | $0.00 | $11.79 | $0.00 |
| 2024 | 9416 | SD48 - SCHOOL DIST #48 | $105.76 | $105.75 | $0.00 | $0.00 | $211.51 | $0.00 |
| 2024 | 9416 | FD2 - FIRE DISTRICT #2 | $84.00 | $84.00 | $0.00 | $0.00 | $168.00 | $0.00 |
| 2024 | 9416 | EMS2 - FIRE DIST #2 EMS | $47.29 | $47.28 | $0.00 | $0.00 | $94.57 | $0.00 |
| 2024 | 9416 | CEM2 - CEMETERY DIST #2 | $2.69 | $2.69 | $0.00 | $0.00 | $5.38 | $0.00 |
| 2024 | 9416 | FP - DNR Forest Fire Protection Assmt | $8.50 | $8.50 | $0.00 | $0.00 | $17.00 | $0.00 |
| 2024 | 9416 | FPLCA - DNR Landowner Contingency Assmt | $3.00 | $3.00 | $0.00 | $0.00 | $6.00 | $0.00 |
| 2024 | 9416 | JCCD - JC Conservation District | $3.13 | $3.13 | $0.00 | $0.00 | $6.26 | $0.00 |
| 2024 | 9416 | NWA - Noxious Weed Assessment | $4.40 | $4.40 | $0.00 | $0.00 | $8.80 | $0.00 |
| 2024 | 9416 | WAT - Clean Water District | $12.50 | $12.50 | $0.00 | $0.00 | $25.00 | $0.00 |
| 2024 | 9416 | FP ADMIN - FP ADMIN | $0.50 | $0.00 | $0.00 | $0.00 | $0.50 | $0.00 |
| 2024 | 9416 | TOTAL: | $779.02 | $778.44 | $0.00 | $0.00 | $1557.46 | $0.00 |
|
| 2024 | 9416 | $779.02 | $778.44 | $0.00 | $0.00 | $1557.46 | $0.00 |
Statement Details |
| 2023 | 9434 | STATE - STATE LEVY (SCHOOL) | $220.41 | $220.41 | $0.00 | $0.00 | $440.82 | $0.00 |
| 2023 | 9434 | COUNTY - COUNTY LEVIES (CE, DD, VET, MH) | $96.20 | $96.16 | $0.00 | $0.00 | $192.36 | $0.00 |
| 2023 | 9434 | CONSERVE - CONSERVATION FUTURES | $2.89 | $2.88 | $0.00 | $0.00 | $5.77 | $0.00 |
| 2023 | 9434 | COROADS - COUNTY ROADS (ROADS, DIV TO CE) | $77.82 | $77.82 | $0.00 | $0.00 | $155.64 | $0.00 |
| 2023 | 9434 | PORTPT - PORT DISTRICT | $40.52 | $40.51 | $0.00 | $0.00 | $81.03 | $0.00 |
| 2023 | 9434 | PUD1 - PUD #1 | $6.38 | $6.37 | $0.00 | $0.00 | $12.75 | $0.00 |
| 2023 | 9434 | LIB1 - LIBRARY DIST #1 | $30.11 | $30.10 | $0.00 | $0.00 | $60.21 | $0.00 |
| 2023 | 9434 | HD2 - HOSP DIST #2 | $5.62 | $5.61 | $0.00 | $0.00 | $11.23 | $0.00 |
| 2023 | 9434 | SD48 - SCHOOL DIST #48 | $106.44 | $106.43 | $0.00 | $0.00 | $212.87 | $0.00 |
| 2023 | 9434 | FD2 - FIRE DISTRICT #2 | $83.49 | $83.48 | $0.00 | $0.00 | $166.97 | $0.00 |
| 2023 | 9434 | EMS2 - FIRE DIST #2 EMS | $46.82 | $46.81 | $0.00 | $0.00 | $93.63 | $0.00 |
| 2023 | 9434 | CEM2 - CEMETERY DIST #2 | $2.66 | $2.66 | $0.00 | $0.00 | $5.32 | $0.00 |
| 2023 | 9434 | FP - DNR Forest Fire Protection Assmt | $8.50 | $8.50 | $0.00 | $0.00 | $17.00 | $0.00 |
| 2023 | 9434 | FPLCA - DNR Landowner Contingency Assmt | $3.00 | $3.00 | $0.00 | $0.00 | $6.00 | $0.00 |
| 2023 | 9434 | JCCD - JC Conservation District | $3.13 | $3.13 | $0.00 | $0.00 | $6.26 | $0.00 |
| 2023 | 9434 | NWA - Noxious Weed Assessment | $4.40 | $4.40 | $0.00 | $0.00 | $8.80 | $0.00 |
| 2023 | 9434 | WAT - Clean Water District | $12.00 | $12.00 | $0.00 | $0.00 | $24.00 | $0.00 |
| 2023 | 9434 | FP ADMIN - FP ADMIN | $0.50 | $0.00 | $0.00 | $0.00 | $0.50 | $0.00 |
| 2023 | 9434 | TOTAL: | $750.89 | $750.27 | $0.00 | $0.00 | $1501.16 | $0.00 |
|
| 2023 | 9434 | $750.89 | $750.27 | $0.00 | $0.00 | $1501.16 | $0.00 |
Values
| (+) Improvement Homesite Value: | + | $0 | |
| (+) Improvement Non-Homesite Value: | + | $0 | |
| (+) Land Homesite Value: | + | $0 | |
| (+) Land Non-Homesite Value: | + | $227,671 | |
| (+) Curr Use (HS): | + | $0 | $0 |
| (+) Curr Use (NHS): | + | $0 | $0 |
| | | -------------------------- | |
| (=) Market Value: | = | $227,671 | |
| (–) Productivity Loss: | – | $0 | |
| | | -------------------------- | |
| (=) Subtotal: | = | $227,671 | |
| (+) Senior Appraised Value: | + | $0 | |
| (+) Non-Senior Appraised Value: | + | $227,671 | |
| | | -------------------------- | |
| (=) Total Appraised Value: | = | $227,671 | |
| (–) Senior Exemption Loss: | – | $0 | |
| (–) Exemption Loss: | – | $0 | |
| | | -------------------------- | |
| (=) Taxable Value: | = | $227,671 | |
Taxing Jurisdiction
| Owner: | LANCE M & HANNAH L CROFT | | |
| % Ownership: | 100.0000000000% | | |
| Total Value: | $227,671 | | |
| Tax Area: | 0321 - 1-48F2E2H2C2L1 |
| CE | COUNTY CURRENT EXPENSE | 0.9034619479 | $227,671 | $227,671 | $205.69 | | |
| CNTYDD | DEVELOPMENTAL DISABILITIES | 0.0052121823 | $227,671 | $227,671 | $1.19 | | |
| CNTYVET | VETERANS RELIEF | 0.0052777810 | $227,671 | $227,671 | $1.20 | | |
| MENTAL | MENTAL HEALTH | 0.0052121823 | $227,671 | $227,671 | $1.19 | | |
| ROADS | COUNTY ROADS | 0.7415066410 | $227,671 | $227,671 | $168.82 | | |
| ROADSCU | COUNTY ROADS TO CUR EXP | 0.0000000000 | $227,671 | $227,671 | $0.00 | | |
| HOSP2CASH | HOSP DIST #2 GENERAL | 0.0536075306 | $227,671 | $227,671 | $12.20 | | |
| SCH48MO | SCHOOL DIST #48 EP & O | 1.4120478917 | $227,671 | $227,671 | $321.48 | | |
| CEM2 | CEMETERY DIST #2 GENERAL | 0.0241266154 | $227,671 | $227,671 | $5.49 | | |
| CONSERVE | CONSERVATION FUTURES | 0.0275621078 | $227,671 | $227,671 | $6.28 | | |
| FD2 | FIRE DIST #2 GENERAL | 0.7549976873 | $227,671 | $227,671 | $171.89 | | |
| LIB1 | LIBRARY DIST #1 GENERAL | 0.2868827388 | $227,671 | $227,671 | $65.31 | | |
| PORTPT | PORT OF PT GENERAL | 0.1134941229 | $227,671 | $227,671 | $25.84 | | |
| PORTPTIDD | PORT OF PT IDD 2019 | 0.2577346692 | $227,671 | $227,671 | $58.68 | | |
| PUD1 | PUD #1 GENERAL | 0.0597888892 | $227,671 | $227,671 | $13.61 | | |
| STATE | STATE SCHOOL PART 1 | 1.4940692947 | $227,671 | $227,671 | $340.16 | | |
| STATE2 | STATE SCHOOL PART 2 | 0.8050170049 | $227,671 | $227,671 | $183.28 | | |
| EMS2 | FIRE DIST #2 EMS | 0.4251727858 | $227,671 | $227,671 | $96.80 | | |
| | Total Tax Rate: | 7.3751720728 | | | | | |
| | | | | Taxes w/Current Exemptions: | $1,679.11 | | |
| | | | | Taxes w/o Exemptions: | $1,679.11 | | |
Improvement / Building
Sketch
| No sketches available for this property. |
Property Image
Land
| 1 | 2610-1372S | | 1.0000 | 43560.00 | 0.00 | 0.00 | 1.00 | $92,000 | $0 |
| 2 | 1771A | | 14.3000 | 622908.00 | 0.00 | 0.00 | 0.00 | $135,671 | $0 |
Roll Value History
| 2026 | N/A | N/A | N/A | N/A | N/A |
| 2025 | $0 | $227,671 | $0 | $227,671 | $227,671 |
| 2024 | $0 | $217,773 | $0 | $217,773 | $217,773 |
| 2023 | $0 | $204,120 | $0 | $204,120 | $204,120 |
| 2022 | $0 | $187,250 | $0 | $187,250 | $187,250 |
Deed and Sales History
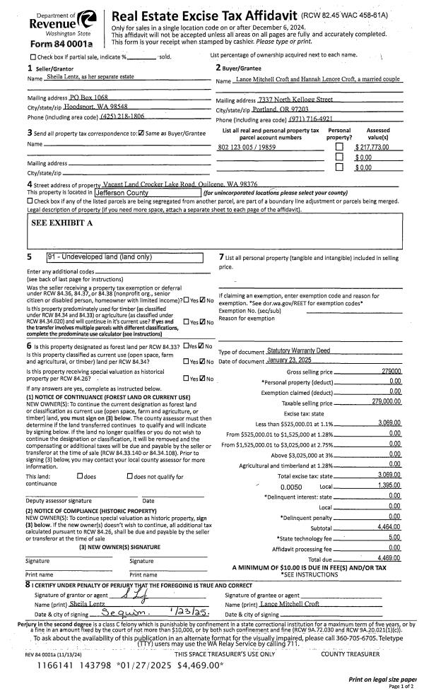
| 1 | 01/23/2025 | SWD | Statutory Warranty Deed | SHEILA LENTZ | LANCE M & HANNAH L CROFT | | | $279,000.00 | 143798 | |
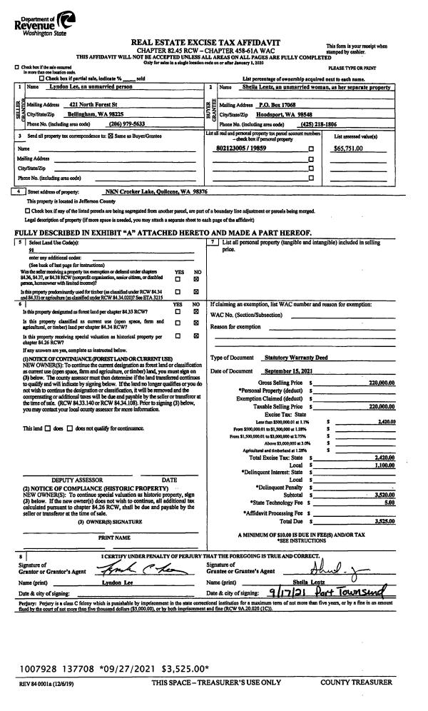
| 2 | 09/15/2021 | SWD | Statutory Warranty Deed | LYNDON C LEE | SHEILA LENTZ | | | $220,000.00 | 137708 | |
| 3 | 01/14/2009 | QCD | Quit Claim Deed | LEE, KATHARINE | LEE, LYNDON | 0 | 0 | $0.00 | 112446 | 0 |
| 4 | 01/03/2005 | SWD | Statutory Warranty Deed | MONTGOMERY TRUST, MONTY | LEE, LYNDON/KATHERINE | 0 | 0 | $62,000.00 | 102524 | 0 |
| 5 | 12/16/1997 | QCD | Quit Claim Deed | MONTGOMERY, R A/ELLEN T | MONTGOMERY, MONTY & EILEEN/TR | 0 | 0 | $0.00 | 84029 | 0 |
Payout Agreement
| No payout information available.. |