Property
Account |
| Property ID: | 19887 | Abbreviated Legal Description: | S14 T28 R2W TAX 4 LESS TAX 5 |
| Parcel # / Geo ID: | 802141008 | Agent Code: | |
| Type: | Real | | |
| Tax Area: | 0321 - 1-48F2E2H2C2L1 | Land Use Code | 11 |
| Open Space: | N | DFL | N |
| Historic Property: | N | Remodel Property: | N |
| Multi-Family Redevelopment: | N | | |
| Township: | 28N | Section: | 14 |
| Range: | 2W |
Location |
| Address: | 287425 HIGHWAY 101 QUILCENE, WA 98376 | Mapsco: | 168/075 |
| Neighborhood: | S13 & 14 T28N R2W | Map ID: | |
| Neighborhood CD: | 2620 |
Owner |
| Name: | PETERSON LIVING TRUST | Owner ID: | 95370 |
| Mailing Address: | HOLLY H PETERSON TRUSTEE PO BOX 152 PORT HADLOCK, WA 98339-0152 | % Ownership: | 100.0000000000% |
| | | Exemptions: | SNR/DSBL |
Pay Tax Due
Select the appropriate checkbox next to the year to be paid. Multiple years may be selected.
*Convenience Fee not included
Taxes and Assessment Details
Property Tax Information as of
03/10/2026
Click on "Statement Details" to expand or collapse a tax statement.
* Please enter a valid date ** Please enter a valid date *
Statement Details |
| 2026 | 9398 | STATE - STATE LEVY (SCHOOL) | $60.94 | $60.93 | $0.00 | $0.00 | $0.00 | $121.87 |
| 2026 | 9398 | COUNTY - COUNTY LEVIES (CE, DD, VET, MH) | $36.58 | $36.55 | $0.00 | $0.00 | $0.00 | $73.13 |
| 2026 | 9398 | CONSERVE - CONSERVATION FUTURES | $1.10 | $1.09 | $0.00 | $0.00 | $0.00 | $2.19 |
| 2026 | 9398 | COROADS - COUNTY ROADS (ROADS, DIV TO CE) | $29.51 | $29.50 | $0.00 | $0.00 | $0.00 | $59.01 |
| 2026 | 9398 | PORTPT - PORT DISTRICT | $14.78 | $14.76 | $0.00 | $0.00 | $0.00 | $29.54 |
| 2026 | 9398 | PUD1 - PUD #1 | $2.38 | $2.38 | $0.00 | $0.00 | $0.00 | $4.76 |
| 2026 | 9398 | LIB1 - LIBRARY DIST #1 | $11.42 | $11.41 | $0.00 | $0.00 | $0.00 | $22.83 |
| 2026 | 9398 | HD2 - HOSP DIST #2 | $2.14 | $2.13 | $0.00 | $0.00 | $0.00 | $4.27 |
| 2026 | 9398 | SD48 - SCHOOL DIST #48 | $2.62 | $2.61 | $0.00 | $0.00 | $0.00 | $5.23 |
| 2026 | 9398 | FD2 - FIRE DISTRICT #2 | $30.04 | $30.04 | $0.00 | $0.00 | $0.00 | $60.08 |
| 2026 | 9398 | EMS2 - FIRE DIST #2 EMS | $16.92 | $16.91 | $0.00 | $0.00 | $0.00 | $33.83 |
| 2026 | 9398 | CEM2 - CEMETERY DIST #2 | $0.96 | $0.96 | $0.00 | $0.00 | $0.00 | $1.92 |
| 2026 | 9398 | FPLCA - DNR Landowner Contingency Assmt | $3.00 | $3.00 | $0.00 | $0.00 | $0.00 | $6.00 |
| 2026 | 9398 | OSS - On Site Septic | $23.10 | $23.10 | $0.00 | $0.00 | $0.00 | $46.20 |
| 2026 | 9398 | TOTAL: | $235.49 | $235.37 | $0.00 | $0.00 | $0.00 | $470.86 |
|
| 2026 | 9398 | $235.49 | $235.37 | $0.00 | $0.00 | $0.00 | $470.86 |
Statement Details |
| 2025 | 9420 | STATE - STATE LEVY (SCHOOL) | $63.39 | $63.38 | $0.00 | $0.00 | $126.77 | $0.00 |
| 2025 | 9420 | COUNTY - COUNTY LEVIES (CE, DD, VET, MH) | $37.45 | $37.43 | $0.00 | $0.00 | $74.88 | $0.00 |
| 2025 | 9420 | CONSERVE - CONSERVATION FUTURES | $1.13 | $1.12 | $0.00 | $0.00 | $2.25 | $0.00 |
| 2025 | 9420 | COROADS - COUNTY ROADS (ROADS, DIV TO CE) | $30.01 | $29.99 | $0.00 | $0.00 | $60.00 | $0.00 |
| 2025 | 9420 | PORTPT - PORT DISTRICT | $15.29 | $15.27 | $0.00 | $0.00 | $30.56 | $0.00 |
| 2025 | 9420 | PUD1 - PUD #1 | $2.45 | $2.45 | $0.00 | $0.00 | $4.90 | $0.00 |
| 2025 | 9420 | LIB1 - LIBRARY DIST #1 | $11.61 | $11.60 | $0.00 | $0.00 | $23.21 | $0.00 |
| 2025 | 9420 | HD2 - HOSP DIST #2 | $2.19 | $2.18 | $0.00 | $0.00 | $4.37 | $0.00 |
| 2025 | 9420 | SD48 - SCHOOL DIST #48 | $2.50 | $2.50 | $0.00 | $0.00 | $5.00 | $0.00 |
| 2025 | 9420 | FD2 - FIRE DISTRICT #2 | $30.96 | $30.96 | $0.00 | $0.00 | $61.92 | $0.00 |
| 2025 | 9420 | EMS2 - FIRE DIST #2 EMS | $17.43 | $17.43 | $0.00 | $0.00 | $34.86 | $0.00 |
| 2025 | 9420 | CEM2 - CEMETERY DIST #2 | $0.99 | $0.99 | $0.00 | $0.00 | $1.98 | $0.00 |
| 2025 | 9420 | FPLCA - DNR Landowner Contingency Assmt | $3.00 | $3.00 | $0.00 | $0.00 | $6.00 | $0.00 |
| 2025 | 9420 | OSS - On Site Septic | $21.50 | $21.50 | $0.00 | $0.00 | $43.00 | $0.00 |
| 2025 | 9420 | TOTAL: | $239.90 | $239.80 | $0.00 | $0.00 | $479.70 | $0.00 |
|
| 2025 | 9420 | $239.90 | $239.80 | $0.00 | $0.00 | $479.70 | $0.00 |
Statement Details |
| 2024 | 9444 | STATE - STATE LEVY (SCHOOL) | $60.59 | $60.58 | $0.00 | $0.00 | $121.17 | $0.00 |
| 2024 | 9444 | COUNTY - COUNTY LEVIES (CE, DD, VET, MH) | $39.05 | $39.03 | $0.00 | $0.00 | $78.08 | $0.00 |
| 2024 | 9444 | CONSERVE - CONSERVATION FUTURES | $1.17 | $1.17 | $0.00 | $0.00 | $2.34 | $0.00 |
| 2024 | 9444 | COROADS - COUNTY ROADS (ROADS, DIV TO CE) | $31.41 | $31.41 | $0.00 | $0.00 | $62.82 | $0.00 |
| 2024 | 9444 | PORTPT - PORT DISTRICT | $16.13 | $16.12 | $0.00 | $0.00 | $32.25 | $0.00 |
| 2024 | 9444 | PUD1 - PUD #1 | $2.57 | $2.56 | $0.00 | $0.00 | $5.13 | $0.00 |
| 2024 | 9444 | LIB1 - LIBRARY DIST #1 | $12.16 | $12.15 | $0.00 | $0.00 | $24.31 | $0.00 |
| 2024 | 9444 | HD2 - HOSP DIST #2 | $2.28 | $2.28 | $0.00 | $0.00 | $4.56 | $0.00 |
| 2024 | 9444 | SD48 - SCHOOL DIST #48 | $1.55 | $1.55 | $0.00 | $0.00 | $3.10 | $0.00 |
| 2024 | 9444 | FD2 - FIRE DISTRICT #2 | $32.46 | $32.45 | $0.00 | $0.00 | $64.91 | $0.00 |
| 2024 | 9444 | EMS2 - FIRE DIST #2 EMS | $18.27 | $18.27 | $0.00 | $0.00 | $36.54 | $0.00 |
| 2024 | 9444 | CEM2 - CEMETERY DIST #2 | $1.04 | $1.04 | $0.00 | $0.00 | $2.08 | $0.00 |
| 2024 | 9444 | FPLCA - DNR Landowner Contingency Assmt | $3.00 | $3.00 | $0.00 | $0.00 | $6.00 | $0.00 |
| 2024 | 9444 | OSS - On Site Septic | $21.00 | $21.00 | $0.00 | $0.00 | $42.00 | $0.00 |
| 2024 | 9444 | TOTAL: | $242.68 | $242.61 | $0.00 | $0.00 | $485.29 | $0.00 |
|
| 2024 | 9444 | $242.68 | $242.61 | $0.00 | $0.00 | $485.29 | $0.00 |
Statement Details |
| 2023 | 9462 | STATE - STATE LEVY (SCHOOL) | $61.43 | $61.43 | $0.00 | $0.00 | $122.86 | $0.00 |
| 2023 | 9462 | COUNTY - COUNTY LEVIES (CE, DD, VET, MH) | $40.39 | $40.39 | $0.00 | $0.00 | $80.78 | $0.00 |
| 2023 | 9462 | CONSERVE - CONSERVATION FUTURES | $1.21 | $1.21 | $0.00 | $0.00 | $2.42 | $0.00 |
| 2023 | 9462 | COROADS - COUNTY ROADS (ROADS, DIV TO CE) | $32.69 | $32.67 | $0.00 | $0.00 | $65.36 | $0.00 |
| 2023 | 9462 | PORTPT - PORT DISTRICT | $17.02 | $17.00 | $0.00 | $0.00 | $34.02 | $0.00 |
| 2023 | 9462 | PUD1 - PUD #1 | $2.68 | $2.67 | $0.00 | $0.00 | $5.35 | $0.00 |
| 2023 | 9462 | LIB1 - LIBRARY DIST #1 | $12.65 | $12.64 | $0.00 | $0.00 | $25.29 | $0.00 |
| 2023 | 9462 | HD2 - HOSP DIST #2 | $2.36 | $2.36 | $0.00 | $0.00 | $4.72 | $0.00 |
| 2023 | 9462 | SD48 - SCHOOL DIST #48 | $1.57 | $1.57 | $0.00 | $0.00 | $3.14 | $0.00 |
| 2023 | 9462 | FD2 - FIRE DISTRICT #2 | $35.06 | $35.06 | $0.00 | $0.00 | $70.12 | $0.00 |
| 2023 | 9462 | EMS2 - FIRE DIST #2 EMS | $19.66 | $19.66 | $0.00 | $0.00 | $39.32 | $0.00 |
| 2023 | 9462 | CEM2 - CEMETERY DIST #2 | $1.12 | $1.11 | $0.00 | $0.00 | $2.23 | $0.00 |
| 2023 | 9462 | FPLCA - DNR Landowner Contingency Assmt | $3.00 | $3.00 | $0.00 | $0.00 | $6.00 | $0.00 |
| 2023 | 9462 | OSS - On Site Septic | $20.50 | $20.50 | $0.00 | $0.00 | $41.00 | $0.00 |
| 2023 | 9462 | TOTAL: | $251.34 | $251.27 | $0.00 | $0.00 | $502.61 | $0.00 |
|
| 2023 | 9462 | $251.34 | $251.27 | $0.00 | $0.00 | $502.61 | $0.00 |
Values
| (+) Improvement Homesite Value: | + | $182,688 | |
| (+) Improvement Non-Homesite Value: | + | $0 | |
| (+) Land Homesite Value: | + | $106,950 | |
| (+) Land Non-Homesite Value: | + | $3,703 | |
| (+) Curr Use (HS): | + | $0 | $0 |
| (+) Curr Use (NHS): | + | $0 | $0 |
| | | -------------------------- | |
| (=) Market Value: | = | $293,341 | |
| (–) Productivity Loss: | – | $0 | |
| | | -------------------------- | |
| (=) Subtotal: | = | $293,341 | |
| (+) Senior Appraised Value: | + | $189,679 | |
| (+) Non-Senior Appraised Value: | + | $3,703 | |
| | | -------------------------- | |
| (=) Total Appraised Value: | = | $193,382 | |
| (–) Senior Exemption Loss: | – | $113,807 | |
| (–) Exemption Loss: | – | $0 | |
| | | -------------------------- | |
| (=) Taxable Value: | = | $79,575 | |
Taxing Jurisdiction
| Owner: | PETERSON LIVING TRUST | | |
| % Ownership: | 100.0000000000% | | |
| Total Value: | $293,341 | | |
| Tax Area: | 0321 - 1-48F2E2H2C2L1 |
| CE | COUNTY CURRENT EXPENSE | 0.9034619479 | $293,341 | $79,575 | $71.89 | | |
| CNTYDD | DEVELOPMENTAL DISABILITIES | 0.0052121823 | $293,341 | $79,575 | $0.41 | | |
| CNTYVET | VETERANS RELIEF | 0.0052777810 | $293,341 | $79,575 | $0.42 | | |
| MENTAL | MENTAL HEALTH | 0.0052121823 | $293,341 | $79,575 | $0.41 | | |
| ROADS | COUNTY ROADS | 0.7415066410 | $293,341 | $79,575 | $59.01 | | |
| ROADSCU | COUNTY ROADS TO CUR EXP | 0.0000000000 | $293,341 | $79,575 | $0.00 | | |
| HOSP2CASH | HOSP DIST #2 GENERAL | 0.0536075306 | $293,341 | $79,575 | $4.27 | | |
| SCH48MO | SCHOOL DIST #48 EP & O | 0.0000000000 | $293,341 | $3,703 | $5.23 | | |
| CEM2 | CEMETERY DIST #2 GENERAL | 0.0241266154 | $293,341 | $79,575 | $1.92 | | |
| CONSERVE | CONSERVATION FUTURES | 0.0275621078 | $293,341 | $79,575 | $2.19 | | |
| FD2 | FIRE DIST #2 GENERAL | 0.7549976873 | $293,341 | $79,575 | $60.08 | | |
| LIB1 | LIBRARY DIST #1 GENERAL | 0.2868827388 | $293,341 | $79,575 | $22.83 | | |
| PORTPT | PORT OF PT GENERAL | 0.1134941229 | $293,341 | $79,575 | $9.03 | | |
| PORTPTIDD | PORT OF PT IDD 2019 | 0.2577346692 | $293,341 | $79,575 | $20.51 | | |
| PUD1 | PUD #1 GENERAL | 0.0597888892 | $293,341 | $79,575 | $4.76 | | |
| STATE | STATE SCHOOL PART 1 | 1.4940692947 | $293,341 | $79,575 | $118.89 | | |
| STATE2 | STATE SCHOOL PART 2 | 0.0000000000 | $293,341 | $3,703 | $2.98 | | |
| EMS2 | FIRE DIST #2 EMS | 0.4251727858 | $293,341 | $79,575 | $33.83 | | |
| | Total Tax Rate: | 5.1581071762 | | | | | |
| | | | | Taxes w/Current Exemptions: | $418.66 | | |
| | | | | Taxes w/o Exemptions: | $2,163.43 | | |
Improvement / Building
| Improvement #1: | Residential Bldg | State Code: | 11 | 1104.0 sqft | Value: | $182,688 |
| Bathrooms (#): | 1 (FULL) | Bedrooms (#): | 1 | | Exterior Wall: | SI/ST | Fireplace: | WD ST-GOOD | | Floor Construction: | FRAME | Foundation: | CONPR | | Heating/Cooling: | ELBB | Roof Cover: | METAL |
|
| | Type | Description | Class CD | Sub Class CD | Year Built | Area |
| | MA | Main Area | 3 | 15SF | 1980 | 768.0 |
| | MA2 | Second Floor Main Area | 3 | 15SF | 1980 | 336.0 |
| | HWPOR | House Wood Porch | 3 | * | 1980 | 192.0 |
| | HDECK | House Deck | 3 | * | 1980 | 780.0 |
| | CARPTN | Carport W/O Floor | 3 | * | 1980 | 480.0 |
| | GDET | Detached Garage | 2 | * | 1980 | 480.0 |
| | BSMTU | House basement unfinished | 2 | * | 1980 | 768.0 |
Sketch
Property Image
Land
| 1 | 2620-1375S | | 1.0000 | 43560.00 | 0.00 | 0.00 | 1.00 | $74,750 | $0 |
| 2 | 1577A | | 4.0000 | 174240.00 | 0.00 | 0.00 | 0.00 | $32,200 | $0 |
| 3 | 1577A | | 0.4600 | 20037.60 | 0.00 | 0.00 | 0.00 | $3,703 | $0 |
Roll Value History
| 2026 | N/A | N/A | N/A | N/A | N/A |
| 2025 | $182,688 | $110,653 | $0 | $293,341 | $79,575 |
| 2024 | $175,076 | $105,842 | $0 | $280,918 | $79,414 |
| 2023 | $167,464 | $88,990 | $0 | $256,454 | $78,862 |
| 2022 | $152,240 | $81,760 | $0 | $234,000 | $78,632 |
Deed and Sales History
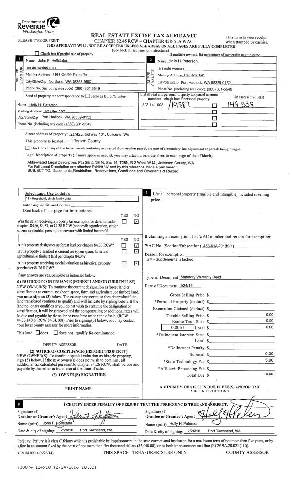
| 1 | 05/12/2016 | SWD | Statutory Warranty Deed | HOLLY H PETERSON | PETERSON LIVING TRUST | | | | 125374 | |
| 2 | 02/24/2016 | SWD | Statutory Warranty Deed | JOHN F HOFFSTATER | HOLLY H PETERSON | | | | 124917 | |
Payout Agreement
| No payout information available.. |