Property
Account |
| Property ID: | 19888 | Abbreviated Legal Description: | S14 T28 R2W TAX 5 |
| Parcel # / Geo ID: | 802141009 | Agent Code: | |
| Type: | Real | | |
| Tax Area: | 0321 - 1-48F2E2H2C2L1 | Land Use Code | 18 |
| Open Space: | N | DFL | N |
| Historic Property: | N | Remodel Property: | N |
| Multi-Family Redevelopment: | N | | |
| Township: | 28N | Section: | 14 |
| Range: | 2W |
Location |
| Address: | | Mapsco: | 168/076 |
| Neighborhood: | S13 & 14 T28N R2W | Map ID: | |
| Neighborhood CD: | 2620 |
Owner |
| Name: | PETERSON LIVING TRUST | Owner ID: | 95370 |
| Mailing Address: | HOLLY H PETERSON TRUSTEE PO BOX 152 PORT HADLOCK, WA 98339-0152 | % Ownership: | 100.0000000000% |
| | | Exemptions: | |
Pay Tax Due
Select the appropriate checkbox next to the year to be paid. Multiple years may be selected.
*Convenience Fee not included
Taxes and Assessment Details
Property Tax Information as of
03/10/2026
Click on "Statement Details" to expand or collapse a tax statement.
* Please enter a valid date ** Please enter a valid date *
Statement Details |
| 2026 | 9399 | STATE - STATE LEVY (SCHOOL) | $71.19 | $71.17 | $0.00 | $0.00 | $0.00 | $142.36 |
| 2026 | 9399 | COUNTY - COUNTY LEVIES (CE, DD, VET, MH) | $28.46 | $28.45 | $0.00 | $0.00 | $0.00 | $56.91 |
| 2026 | 9399 | CONSERVE - CONSERVATION FUTURES | $0.86 | $0.85 | $0.00 | $0.00 | $0.00 | $1.71 |
| 2026 | 9399 | COROADS - COUNTY ROADS (ROADS, DIV TO CE) | $22.96 | $22.95 | $0.00 | $0.00 | $0.00 | $45.91 |
| 2026 | 9399 | PORTPT - PORT DISTRICT | $11.50 | $11.49 | $0.00 | $0.00 | $0.00 | $22.99 |
| 2026 | 9399 | PUD1 - PUD #1 | $1.85 | $1.85 | $0.00 | $0.00 | $0.00 | $3.70 |
| 2026 | 9399 | LIB1 - LIBRARY DIST #1 | $8.88 | $8.88 | $0.00 | $0.00 | $0.00 | $17.76 |
| 2026 | 9399 | HD2 - HOSP DIST #2 | $1.66 | $1.66 | $0.00 | $0.00 | $0.00 | $3.32 |
| 2026 | 9399 | SD48 - SCHOOL DIST #48 | $43.72 | $43.71 | $0.00 | $0.00 | $0.00 | $87.43 |
| 2026 | 9399 | FD2 - FIRE DISTRICT #2 | $23.38 | $23.37 | $0.00 | $0.00 | $0.00 | $46.75 |
| 2026 | 9399 | EMS2 - FIRE DIST #2 EMS | $13.17 | $13.16 | $0.00 | $0.00 | $0.00 | $26.33 |
| 2026 | 9399 | CEM2 - CEMETERY DIST #2 | $0.75 | $0.74 | $0.00 | $0.00 | $0.00 | $1.49 |
| 2026 | 9399 | FP - DNR Forest Fire Protection Assmt | $8.50 | $8.50 | $0.00 | $0.00 | $0.00 | $17.00 |
| 2026 | 9399 | FPLCA - DNR Landowner Contingency Assmt | $3.00 | $3.00 | $0.00 | $0.00 | $0.00 | $6.00 |
| 2026 | 9399 | JCCD - JC Conservation District | $2.73 | $2.73 | $0.00 | $0.00 | $0.00 | $5.46 |
| 2026 | 9399 | NWA - Noxious Weed Assessment | $4.10 | $4.10 | $0.00 | $0.00 | $0.00 | $8.20 |
| 2026 | 9399 | WAT - Clean Water District | $13.00 | $13.00 | $0.00 | $0.00 | $0.00 | $26.00 |
| 2026 | 9399 | FP ADMIN - FP ADMIN | $0.50 | $0.00 | $0.00 | $0.00 | $0.00 | $0.50 |
| 2026 | 9399 | TOTAL: | $260.21 | $259.61 | $0.00 | $0.00 | $0.00 | $519.82 |
|
| 2026 | 9399 | $260.21 | $259.61 | $0.00 | $0.00 | $0.00 | $519.82 |
Statement Details |
| 2025 | 9421 | STATE - STATE LEVY (SCHOOL) | $71.04 | $71.03 | $0.00 | $0.00 | $142.07 | $0.00 |
| 2025 | 9421 | COUNTY - COUNTY LEVIES (CE, DD, VET, MH) | $27.94 | $27.94 | $0.00 | $0.00 | $55.88 | $0.00 |
| 2025 | 9421 | CONSERVE - CONSERVATION FUTURES | $0.84 | $0.84 | $0.00 | $0.00 | $1.68 | $0.00 |
| 2025 | 9421 | COROADS - COUNTY ROADS (ROADS, DIV TO CE) | $22.39 | $22.37 | $0.00 | $0.00 | $44.76 | $0.00 |
| 2025 | 9421 | PORTPT - PORT DISTRICT | $11.40 | $11.40 | $0.00 | $0.00 | $22.80 | $0.00 |
| 2025 | 9421 | PUD1 - PUD #1 | $1.83 | $1.83 | $0.00 | $0.00 | $3.66 | $0.00 |
| 2025 | 9421 | LIB1 - LIBRARY DIST #1 | $8.66 | $8.66 | $0.00 | $0.00 | $17.32 | $0.00 |
| 2025 | 9421 | HD2 - HOSP DIST #2 | $1.63 | $1.63 | $0.00 | $0.00 | $3.26 | $0.00 |
| 2025 | 9421 | SD48 - SCHOOL DIST #48 | $41.83 | $41.83 | $0.00 | $0.00 | $83.66 | $0.00 |
| 2025 | 9421 | FD2 - FIRE DISTRICT #2 | $23.10 | $23.09 | $0.00 | $0.00 | $46.19 | $0.00 |
| 2025 | 9421 | EMS2 - FIRE DIST #2 EMS | $13.01 | $13.00 | $0.00 | $0.00 | $26.01 | $0.00 |
| 2025 | 9421 | CEM2 - CEMETERY DIST #2 | $0.74 | $0.73 | $0.00 | $0.00 | $1.47 | $0.00 |
| 2025 | 9421 | FP - DNR Forest Fire Protection Assmt | $8.50 | $8.50 | $0.00 | $0.00 | $17.00 | $0.00 |
| 2025 | 9421 | FPLCA - DNR Landowner Contingency Assmt | $3.00 | $3.00 | $0.00 | $0.00 | $6.00 | $0.00 |
| 2025 | 9421 | JCCD - JC Conservation District | $2.80 | $2.80 | $0.00 | $0.00 | $5.60 | $0.00 |
| 2025 | 9421 | NWA - Noxious Weed Assessment | $2.90 | $2.90 | $0.00 | $0.00 | $5.80 | $0.00 |
| 2025 | 9421 | WAT - Clean Water District | $13.00 | $13.00 | $0.00 | $0.00 | $26.00 | $0.00 |
| 2025 | 9421 | FP ADMIN - FP ADMIN | $0.50 | $0.00 | $0.00 | $0.00 | $0.50 | $0.00 |
| 2025 | 9421 | TOTAL: | $255.11 | $254.55 | $0.00 | $0.00 | $509.66 | $0.00 |
|
| 2025 | 9421 | $255.11 | $254.55 | $0.00 | $0.00 | $509.66 | $0.00 |
Statement Details |
| 2024 | 9445 | STATE - STATE LEVY (SCHOOL) | $60.27 | $60.26 | $0.00 | $0.00 | $120.53 | $0.00 |
| 2024 | 9445 | COUNTY - COUNTY LEVIES (CE, DD, VET, MH) | $25.80 | $25.77 | $0.00 | $0.00 | $51.57 | $0.00 |
| 2024 | 9445 | CONSERVE - CONSERVATION FUTURES | $0.78 | $0.77 | $0.00 | $0.00 | $1.55 | $0.00 |
| 2024 | 9445 | COROADS - COUNTY ROADS (ROADS, DIV TO CE) | $20.75 | $20.75 | $0.00 | $0.00 | $41.50 | $0.00 |
| 2024 | 9445 | PORTPT - PORT DISTRICT | $10.66 | $10.65 | $0.00 | $0.00 | $21.31 | $0.00 |
| 2024 | 9445 | PUD1 - PUD #1 | $1.70 | $1.69 | $0.00 | $0.00 | $3.39 | $0.00 |
| 2024 | 9445 | LIB1 - LIBRARY DIST #1 | $8.03 | $8.03 | $0.00 | $0.00 | $16.06 | $0.00 |
| 2024 | 9445 | HD2 - HOSP DIST #2 | $1.51 | $1.50 | $0.00 | $0.00 | $3.01 | $0.00 |
| 2024 | 9445 | SD48 - SCHOOL DIST #48 | $26.99 | $26.99 | $0.00 | $0.00 | $53.98 | $0.00 |
| 2024 | 9445 | FD2 - FIRE DISTRICT #2 | $21.44 | $21.44 | $0.00 | $0.00 | $42.88 | $0.00 |
| 2024 | 9445 | EMS2 - FIRE DIST #2 EMS | $12.07 | $12.07 | $0.00 | $0.00 | $24.14 | $0.00 |
| 2024 | 9445 | CEM2 - CEMETERY DIST #2 | $0.69 | $0.68 | $0.00 | $0.00 | $1.37 | $0.00 |
| 2024 | 9445 | FP - DNR Forest Fire Protection Assmt | $8.50 | $8.50 | $0.00 | $0.00 | $17.00 | $0.00 |
| 2024 | 9445 | FPLCA - DNR Landowner Contingency Assmt | $3.00 | $3.00 | $0.00 | $0.00 | $6.00 | $0.00 |
| 2024 | 9445 | JCCD - JC Conservation District | $2.80 | $2.80 | $0.00 | $0.00 | $5.60 | $0.00 |
| 2024 | 9445 | NWA - Noxious Weed Assessment | $2.90 | $2.90 | $0.00 | $0.00 | $5.80 | $0.00 |
| 2024 | 9445 | WAT - Clean Water District | $12.50 | $12.50 | $0.00 | $0.00 | $25.00 | $0.00 |
| 2024 | 9445 | FP ADMIN - FP ADMIN | $0.50 | $0.00 | $0.00 | $0.00 | $0.50 | $0.00 |
| 2024 | 9445 | TOTAL: | $220.89 | $220.30 | $0.00 | $0.00 | $441.19 | $0.00 |
|
| 2024 | 9445 | $220.89 | $220.30 | $0.00 | $0.00 | $441.19 | $0.00 |
Statement Details |
| 2023 | 9463 | STATE - STATE LEVY (SCHOOL) | $57.73 | $57.71 | $0.00 | $0.00 | $115.44 | $0.00 |
| 2023 | 9463 | COUNTY - COUNTY LEVIES (CE, DD, VET, MH) | $25.21 | $25.17 | $0.00 | $0.00 | $50.38 | $0.00 |
| 2023 | 9463 | CONSERVE - CONSERVATION FUTURES | $0.76 | $0.75 | $0.00 | $0.00 | $1.51 | $0.00 |
| 2023 | 9463 | COROADS - COUNTY ROADS (ROADS, DIV TO CE) | $20.39 | $20.37 | $0.00 | $0.00 | $40.76 | $0.00 |
| 2023 | 9463 | PORTPT - PORT DISTRICT | $10.61 | $10.61 | $0.00 | $0.00 | $21.22 | $0.00 |
| 2023 | 9463 | PUD1 - PUD #1 | $1.67 | $1.67 | $0.00 | $0.00 | $3.34 | $0.00 |
| 2023 | 9463 | LIB1 - LIBRARY DIST #1 | $7.89 | $7.88 | $0.00 | $0.00 | $15.77 | $0.00 |
| 2023 | 9463 | HD2 - HOSP DIST #2 | $1.48 | $1.46 | $0.00 | $0.00 | $2.94 | $0.00 |
| 2023 | 9463 | SD48 - SCHOOL DIST #48 | $27.88 | $27.87 | $0.00 | $0.00 | $55.75 | $0.00 |
| 2023 | 9463 | FD2 - FIRE DISTRICT #2 | $21.87 | $21.86 | $0.00 | $0.00 | $43.73 | $0.00 |
| 2023 | 9463 | EMS2 - FIRE DIST #2 EMS | $12.26 | $12.26 | $0.00 | $0.00 | $24.52 | $0.00 |
| 2023 | 9463 | CEM2 - CEMETERY DIST #2 | $0.70 | $0.69 | $0.00 | $0.00 | $1.39 | $0.00 |
| 2023 | 9463 | FP - DNR Forest Fire Protection Assmt | $8.50 | $8.50 | $0.00 | $0.00 | $17.00 | $0.00 |
| 2023 | 9463 | FPLCA - DNR Landowner Contingency Assmt | $3.00 | $3.00 | $0.00 | $0.00 | $6.00 | $0.00 |
| 2023 | 9463 | JCCD - JC Conservation District | $2.80 | $2.80 | $0.00 | $0.00 | $5.60 | $0.00 |
| 2023 | 9463 | NWA - Noxious Weed Assessment | $2.90 | $2.90 | $0.00 | $0.00 | $5.80 | $0.00 |
| 2023 | 9463 | WAT - Clean Water District | $12.00 | $12.00 | $0.00 | $0.00 | $24.00 | $0.00 |
| 2023 | 9463 | FP ADMIN - FP ADMIN | $0.50 | $0.00 | $0.00 | $0.00 | $0.50 | $0.00 |
| 2023 | 9463 | TOTAL: | $218.15 | $217.50 | $0.00 | $0.00 | $435.65 | $0.00 |
|
| 2023 | 9463 | $218.15 | $217.50 | $0.00 | $0.00 | $435.65 | $0.00 |
Values
| (+) Improvement Homesite Value: | + | $0 | |
| (+) Improvement Non-Homesite Value: | + | $10,078 | |
| (+) Land Homesite Value: | + | $0 | |
| (+) Land Non-Homesite Value: | + | $51,842 | |
| (+) Curr Use (HS): | + | $0 | $0 |
| (+) Curr Use (NHS): | + | $0 | $0 |
| | | -------------------------- | |
| (=) Market Value: | = | $61,920 | |
| (–) Productivity Loss: | – | $0 | |
| | | -------------------------- | |
| (=) Subtotal: | = | $61,920 | |
| (+) Senior Appraised Value: | + | $0 | |
| (+) Non-Senior Appraised Value: | + | $61,920 | |
| | | -------------------------- | |
| (=) Total Appraised Value: | = | $61,920 | |
| (–) Senior Exemption Loss: | – | $0 | |
| (–) Exemption Loss: | – | $0 | |
| | | -------------------------- | |
| (=) Taxable Value: | = | $61,920 | |
Taxing Jurisdiction
| Owner: | PETERSON LIVING TRUST | | |
| % Ownership: | 100.0000000000% | | |
| Total Value: | $61,920 | | |
| Tax Area: | 0321 - 1-48F2E2H2C2L1 |
| CE | COUNTY CURRENT EXPENSE | 0.9034619479 | $61,920 | $61,920 | $55.94 | | |
| CNTYDD | DEVELOPMENTAL DISABILITIES | 0.0052121823 | $61,920 | $61,920 | $0.32 | | |
| CNTYVET | VETERANS RELIEF | 0.0052777810 | $61,920 | $61,920 | $0.33 | | |
| MENTAL | MENTAL HEALTH | 0.0052121823 | $61,920 | $61,920 | $0.32 | | |
| ROADS | COUNTY ROADS | 0.7415066410 | $61,920 | $61,920 | $45.91 | | |
| ROADSCU | COUNTY ROADS TO CUR EXP | 0.0000000000 | $61,920 | $61,920 | $0.00 | | |
| HOSP2CASH | HOSP DIST #2 GENERAL | 0.0536075306 | $61,920 | $61,920 | $3.32 | | |
| SCH48MO | SCHOOL DIST #48 EP & O | 1.4120478917 | $61,920 | $61,920 | $87.43 | | |
| CEM2 | CEMETERY DIST #2 GENERAL | 0.0241266154 | $61,920 | $61,920 | $1.49 | | |
| CONSERVE | CONSERVATION FUTURES | 0.0275621078 | $61,920 | $61,920 | $1.71 | | |
| FD2 | FIRE DIST #2 GENERAL | 0.7549976873 | $61,920 | $61,920 | $46.75 | | |
| LIB1 | LIBRARY DIST #1 GENERAL | 0.2868827388 | $61,920 | $61,920 | $17.76 | | |
| PORTPT | PORT OF PT GENERAL | 0.1134941229 | $61,920 | $61,920 | $7.03 | | |
| PORTPTIDD | PORT OF PT IDD 2019 | 0.2577346692 | $61,920 | $61,920 | $15.96 | | |
| PUD1 | PUD #1 GENERAL | 0.0597888892 | $61,920 | $61,920 | $3.70 | | |
| STATE | STATE SCHOOL PART 1 | 1.4940692947 | $61,920 | $61,920 | $92.51 | | |
| STATE2 | STATE SCHOOL PART 2 | 0.8050170049 | $61,920 | $61,920 | $49.85 | | |
| EMS2 | FIRE DIST #2 EMS | 0.4251727858 | $61,920 | $61,920 | $26.33 | | |
| | Total Tax Rate: | 7.3751720728 | | | | | |
| | | | | Taxes w/Current Exemptions: | $456.66 | | |
| | | | | Taxes w/o Exemptions: | $456.66 | | |
Improvement / Building
| Improvement #1: | Site Improvements | State Code: | 18 | 0.0 sqft | Value: | $10,078 |
Sketch
Property Image
Land
| 1 | 1577A | | 4.4400 | 193406.40 | 0.00 | 0.00 | 0.00 | $35,742 | $0 |
| 2 | 2620-1375S | | 1.0000 | 43560.00 | 0.00 | 0.00 | 1.00 | $16,100 | $0 |
Roll Value History
| 2026 | N/A | N/A | N/A | N/A | N/A |
| 2025 | $10,078 | $51,842 | $0 | $61,920 | $61,920 |
| 2024 | $9,658 | $49,588 | $0 | $59,246 | $59,246 |
| 2023 | $9,238 | $42,860 | $0 | $52,098 | $52,098 |
| 2022 | $8,398 | $40,640 | $0 | $49,038 | $49,038 |
Deed and Sales History
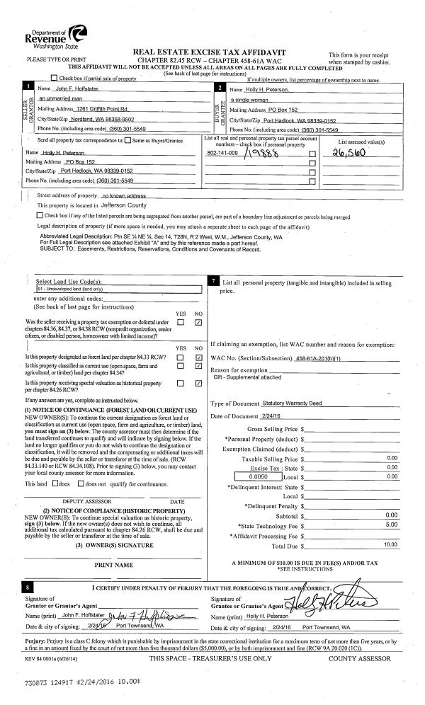
| 1 | 05/12/2016 | SWD | Statutory Warranty Deed | HOLLY H PETERSON | PETERSON LIVING TRUST | | | | 125375 | |
| 2 | 02/24/2016 | SWD | Statutory Warranty Deed | JOHN F HOFFSTATER | HOLLY H PETERSON | | | | 124918 | |
Payout Agreement
| No payout information available.. |