Property
Account |
| Property ID: | 19996 | Abbreviated Legal Description: | S24 T28 R2W TAX 19 |
| Parcel # / Geo ID: | 802244005 | Agent Code: | |
| Type: | Real | | |
| Tax Area: | 0324 - 1-48F2E2H2C2L1Z3 | Land Use Code | 76 |
| Open Space: | N | DFL | N |
| Historic Property: | N | Remodel Property: | N |
| Multi-Family Redevelopment: | N | | |
| Township: | 28N | Section: | 24 |
| Range: | 2W |
Location |
| Address: | | Mapsco: | 170/035 |
| Neighborhood: | S23, 24, 25 & 26 T28N R2W & GARRISON & TAYLOR-JOHNSON SP | Map ID: | |
| Neighborhood CD: | 2630 |
Owner |
| Name: | ALLAN D KESSLER | Owner ID: | 58022 |
| Mailing Address: | 20 PRAIRIE VIEW DR ELGIN, OK 73538-1004 | % Ownership: | 100.0000000000% |
| | | Exemptions: | |
Pay Tax Due
Select the appropriate checkbox next to the year to be paid. Multiple years may be selected.
*Convenience Fee not included
Taxes and Assessment Details
Property Tax Information as of
03/11/2026
Click on "Statement Details" to expand or collapse a tax statement.
* Please enter a valid date ** Please enter a valid date *
Statement Details |
| 2026 | 9506 | STATE - STATE LEVY (SCHOOL) | $78.27 | $78.26 | $0.00 | $0.00 | $0.00 | $156.53 |
| 2026 | 9506 | COUNTY - COUNTY LEVIES (CE, DD, VET, MH) | $31.30 | $31.27 | $0.00 | $0.00 | $0.00 | $62.57 |
| 2026 | 9506 | CONSERVE - CONSERVATION FUTURES | $0.94 | $0.94 | $0.00 | $0.00 | $0.00 | $1.88 |
| 2026 | 9506 | COROADS - COUNTY ROADS (ROADS, DIV TO CE) | $25.24 | $25.24 | $0.00 | $0.00 | $0.00 | $50.48 |
| 2026 | 9506 | PORTPT - PORT DISTRICT | $12.65 | $12.63 | $0.00 | $0.00 | $0.00 | $25.28 |
| 2026 | 9506 | PUD1 - PUD #1 | $2.04 | $2.03 | $0.00 | $0.00 | $0.00 | $4.07 |
| 2026 | 9506 | LIB1 - LIBRARY DIST #1 | $9.77 | $9.76 | $0.00 | $0.00 | $0.00 | $19.53 |
| 2026 | 9506 | HD2 - HOSP DIST #2 | $1.83 | $1.82 | $0.00 | $0.00 | $0.00 | $3.65 |
| 2026 | 9506 | SD48 - SCHOOL DIST #48 | $48.07 | $48.06 | $0.00 | $0.00 | $0.00 | $96.13 |
| 2026 | 9506 | FD2 - FIRE DISTRICT #2 | $25.70 | $25.70 | $0.00 | $0.00 | $0.00 | $51.40 |
| 2026 | 9506 | EMS2 - FIRE DIST #2 EMS | $14.48 | $14.47 | $0.00 | $0.00 | $0.00 | $28.95 |
| 2026 | 9506 | CEM2 - CEMETERY DIST #2 | $0.82 | $0.82 | $0.00 | $0.00 | $0.00 | $1.64 |
| 2026 | 9506 | JCCD - JC Conservation District | $2.53 | $2.53 | $0.00 | $0.00 | $0.00 | $5.06 |
| 2026 | 9506 | NWA - Noxious Weed Assessment | $2.98 | $2.97 | $0.00 | $0.00 | $0.00 | $5.95 |
| 2026 | 9506 | WAT - Clean Water District | $13.00 | $13.00 | $0.00 | $0.00 | $0.00 | $26.00 |
| 2026 | 9506 | TOTAL: | $269.62 | $269.50 | $0.00 | $0.00 | $0.00 | $539.12 |
|
| 2026 | 9506 | $269.62 | $269.50 | $0.00 | $0.00 | $0.00 | $539.12 |
Statement Details |
| 2025 | 9528 | STATE - STATE LEVY (SCHOOL) | $84.68 | $84.67 | $0.00 | $0.00 | $169.35 | $0.00 |
| 2025 | 9528 | COUNTY - COUNTY LEVIES (CE, DD, VET, MH) | $33.30 | $33.30 | $0.00 | $0.00 | $66.60 | $0.00 |
| 2025 | 9528 | CONSERVE - CONSERVATION FUTURES | $1.00 | $1.00 | $0.00 | $0.00 | $2.00 | $0.00 |
| 2025 | 9528 | COROADS - COUNTY ROADS (ROADS, DIV TO CE) | $26.68 | $26.67 | $0.00 | $0.00 | $53.35 | $0.00 |
| 2025 | 9528 | PORTPT - PORT DISTRICT | $13.59 | $13.58 | $0.00 | $0.00 | $27.17 | $0.00 |
| 2025 | 9528 | PUD1 - PUD #1 | $2.18 | $2.18 | $0.00 | $0.00 | $4.36 | $0.00 |
| 2025 | 9528 | LIB1 - LIBRARY DIST #1 | $10.32 | $10.32 | $0.00 | $0.00 | $20.64 | $0.00 |
| 2025 | 9528 | HD2 - HOSP DIST #2 | $1.95 | $1.94 | $0.00 | $0.00 | $3.89 | $0.00 |
| 2025 | 9528 | SD48 - SCHOOL DIST #48 | $49.86 | $49.86 | $0.00 | $0.00 | $99.72 | $0.00 |
| 2025 | 9528 | FD2 - FIRE DISTRICT #2 | $27.53 | $27.53 | $0.00 | $0.00 | $55.06 | $0.00 |
| 2025 | 9528 | EMS2 - FIRE DIST #2 EMS | $15.50 | $15.50 | $0.00 | $0.00 | $31.00 | $0.00 |
| 2025 | 9528 | CEM2 - CEMETERY DIST #2 | $0.88 | $0.88 | $0.00 | $0.00 | $1.76 | $0.00 |
| 2025 | 9528 | JCCD - JC Conservation District | $2.53 | $2.53 | $0.00 | $0.00 | $5.06 | $0.00 |
| 2025 | 9528 | NWA - Noxious Weed Assessment | $2.15 | $2.15 | $0.00 | $0.00 | $4.30 | $0.00 |
| 2025 | 9528 | WAT - Clean Water District | $13.00 | $13.00 | $0.00 | $0.00 | $26.00 | $0.00 |
| 2025 | 9528 | TOTAL: | $285.15 | $285.11 | $0.00 | $0.00 | $570.26 | $0.00 |
|
| 2025 | 9528 | $285.15 | $285.11 | $0.00 | $0.00 | $570.26 | $0.00 |
Statement Details |
| 2024 | 9552 | STATE - STATE LEVY (SCHOOL) | $74.27 | $74.26 | $0.00 | $0.00 | $148.53 | $0.00 |
| 2024 | 9552 | COUNTY - COUNTY LEVIES (CE, DD, VET, MH) | $31.78 | $31.78 | $0.00 | $0.00 | $63.56 | $0.00 |
| 2024 | 9552 | CONSERVE - CONSERVATION FUTURES | $0.96 | $0.95 | $0.00 | $0.00 | $1.91 | $0.00 |
| 2024 | 9552 | COROADS - COUNTY ROADS (ROADS, DIV TO CE) | $25.58 | $25.57 | $0.00 | $0.00 | $51.15 | $0.00 |
| 2024 | 9552 | PORTPT - PORT DISTRICT | $13.13 | $13.12 | $0.00 | $0.00 | $26.25 | $0.00 |
| 2024 | 9552 | PUD1 - PUD #1 | $2.09 | $2.08 | $0.00 | $0.00 | $4.17 | $0.00 |
| 2024 | 9552 | LIB1 - LIBRARY DIST #1 | $9.90 | $9.89 | $0.00 | $0.00 | $19.79 | $0.00 |
| 2024 | 9552 | HD2 - HOSP DIST #2 | $1.86 | $1.85 | $0.00 | $0.00 | $3.71 | $0.00 |
| 2024 | 9552 | SD48 - SCHOOL DIST #48 | $33.27 | $33.26 | $0.00 | $0.00 | $66.53 | $0.00 |
| 2024 | 9552 | FD2 - FIRE DISTRICT #2 | $26.42 | $26.42 | $0.00 | $0.00 | $52.84 | $0.00 |
| 2024 | 9552 | EMS2 - FIRE DIST #2 EMS | $14.88 | $14.87 | $0.00 | $0.00 | $29.75 | $0.00 |
| 2024 | 9552 | CEM2 - CEMETERY DIST #2 | $0.85 | $0.84 | $0.00 | $0.00 | $1.69 | $0.00 |
| 2024 | 9552 | JCCD - JC Conservation District | $2.53 | $2.53 | $0.00 | $0.00 | $5.06 | $0.00 |
| 2024 | 9552 | NWA - Noxious Weed Assessment | $2.15 | $2.15 | $0.00 | $0.00 | $4.30 | $0.00 |
| 2024 | 9552 | WAT - Clean Water District | $12.50 | $12.50 | $0.00 | $0.00 | $25.00 | $0.00 |
| 2024 | 9552 | TOTAL: | $252.17 | $252.07 | $0.00 | $0.00 | $504.24 | $0.00 |
|
| 2024 | 9552 | $252.17 | $252.07 | $0.00 | $0.00 | $504.24 | $0.00 |
Statement Details |
| 2023 | 9570 | STATE - STATE LEVY (SCHOOL) | $75.58 | $75.56 | $0.00 | $0.00 | $151.14 | $0.00 |
| 2023 | 9570 | COUNTY - COUNTY LEVIES (CE, DD, VET, MH) | $32.98 | $32.96 | $0.00 | $0.00 | $65.94 | $0.00 |
| 2023 | 9570 | CONSERVE - CONSERVATION FUTURES | $0.99 | $0.99 | $0.00 | $0.00 | $1.98 | $0.00 |
| 2023 | 9570 | COROADS - COUNTY ROADS (ROADS, DIV TO CE) | $26.68 | $26.68 | $0.00 | $0.00 | $53.36 | $0.00 |
| 2023 | 9570 | PORTPT - PORT DISTRICT | $13.89 | $13.89 | $0.00 | $0.00 | $27.78 | $0.00 |
| 2023 | 9570 | PUD1 - PUD #1 | $2.19 | $2.18 | $0.00 | $0.00 | $4.37 | $0.00 |
| 2023 | 9570 | LIB1 - LIBRARY DIST #1 | $10.32 | $10.32 | $0.00 | $0.00 | $20.64 | $0.00 |
| 2023 | 9570 | HD2 - HOSP DIST #2 | $1.93 | $1.92 | $0.00 | $0.00 | $3.85 | $0.00 |
| 2023 | 9570 | SD48 - SCHOOL DIST #48 | $36.50 | $36.49 | $0.00 | $0.00 | $72.99 | $0.00 |
| 2023 | 9570 | FD2 - FIRE DISTRICT #2 | $28.63 | $28.62 | $0.00 | $0.00 | $57.25 | $0.00 |
| 2023 | 9570 | EMS2 - FIRE DIST #2 EMS | $16.05 | $16.05 | $0.00 | $0.00 | $32.10 | $0.00 |
| 2023 | 9570 | CEM2 - CEMETERY DIST #2 | $0.91 | $0.91 | $0.00 | $0.00 | $1.82 | $0.00 |
| 2023 | 9570 | JCCD - JC Conservation District | $2.53 | $2.53 | $0.00 | $0.00 | $5.06 | $0.00 |
| 2023 | 9570 | NWA - Noxious Weed Assessment | $2.15 | $2.15 | $0.00 | $0.00 | $4.30 | $0.00 |
| 2023 | 9570 | WAT - Clean Water District | $12.00 | $12.00 | $0.00 | $0.00 | $24.00 | $0.00 |
| 2023 | 9570 | TOTAL: | $263.33 | $263.25 | $0.00 | $0.00 | $526.58 | $0.00 |
|
| 2023 | 9570 | $263.33 | $263.25 | $0.00 | $0.00 | $526.58 | $0.00 |
Values
| (+) Improvement Homesite Value: | + | $0 | |
| (+) Improvement Non-Homesite Value: | + | $0 | |
| (+) Land Homesite Value: | + | $0 | |
| (+) Land Non-Homesite Value: | + | $68,080 | |
| (+) Curr Use (HS): | + | $0 | $0 |
| (+) Curr Use (NHS): | + | $0 | $0 |
| | | -------------------------- | |
| (=) Market Value: | = | $68,080 | |
| (–) Productivity Loss: | – | $0 | |
| | | -------------------------- | |
| (=) Subtotal: | = | $68,080 | |
| (+) Senior Appraised Value: | + | $0 | |
| (+) Non-Senior Appraised Value: | + | $68,080 | |
| | | -------------------------- | |
| (=) Total Appraised Value: | = | $68,080 | |
| (–) Senior Exemption Loss: | – | $0 | |
| (–) Exemption Loss: | – | $0 | |
| | | -------------------------- | |
| (=) Taxable Value: | = | $68,080 | |
Taxing Jurisdiction
| Owner: | ALLAN D KESSLER | | |
| % Ownership: | 100.0000000000% | | |
| Total Value: | N/A | | |
| Tax Area: | 0324 - 1-48F2E2H2C2L1Z3 |
| CE | COUNTY CURRENT EXPENSE | N/A | N/A | N/A | N/A | | |
| CNTYDD | DEVELOPMENTAL DISABILITIES | N/A | N/A | N/A | N/A | | |
| CNTYVET | VETERANS RELIEF | N/A | N/A | N/A | N/A | | |
| MENTAL | MENTAL HEALTH | N/A | N/A | N/A | N/A | | |
| ROADS | COUNTY ROADS | N/A | N/A | N/A | N/A | | |
| HOSP2CASH | HOSP DIST #2 GENERAL | N/A | N/A | N/A | N/A | | |
| SCH48MO | SCHOOL DIST #48 EP & O | N/A | N/A | N/A | N/A | | |
| CEM2 | CEMETERY DIST #2 GENERAL | N/A | N/A | N/A | N/A | | |
| CONSERVE | CONSERVATION FUTURES | N/A | N/A | N/A | N/A | | |
| FD2 | FIRE DIST #2 GENERAL | N/A | N/A | N/A | N/A | | |
| LIB1 | LIBRARY DIST #1 GENERAL | N/A | N/A | N/A | N/A | | |
| PORTPT | PORT OF PT GENERAL | N/A | N/A | N/A | N/A | | |
| PORTPTIDD | PORT OF PT IDD 2019 | N/A | N/A | N/A | N/A | | |
| PUD1 | PUD #1 GENERAL | N/A | N/A | N/A | N/A | | |
| STATE | STATE SCHOOL PART 1 | N/A | N/A | N/A | N/A | | |
| STATE2 | STATE SCHOOL PART 2 | N/A | N/A | N/A | N/A | | |
| EMS2 | FIRE DIST #2 EMS | N/A | N/A | N/A | N/A | | |
| | Total Tax Rate: | N/A | | | | | |
| | | | | Taxes w/Current Exemptions: | N/A | | |
| | | | | Taxes w/o Exemptions: | N/A | | |
Improvement / Building
Sketch
| No sketches available for this property. |
Property Image
Land
| 1 | 2630-1345S | | 0.0000 | 0.00 | 0.00 | 0.00 | 1.00 | $68,080 | $0 |
Roll Value History
| 2026 | N/A | N/A | N/A | N/A | N/A |
| 2025 | $0 | $68,080 | $0 | $68,080 | $68,080 |
| 2024 | $0 | $70,620 | $0 | $70,620 | $70,620 |
| 2023 | $0 | $64,200 | $0 | $64,200 | $64,200 |
| 2022 | $0 | $64,200 | $0 | $64,200 | $64,200 |
Deed and Sales History
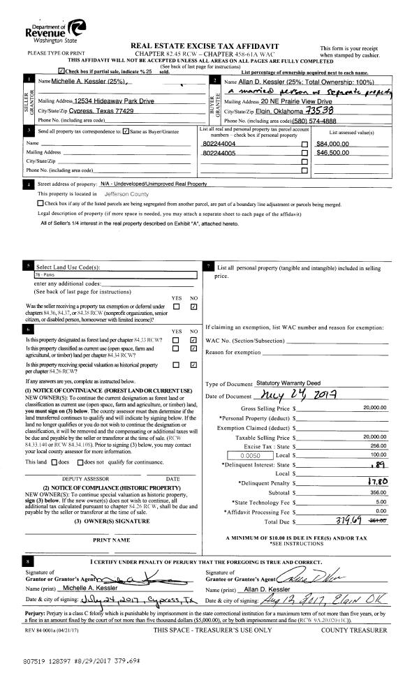
| 1 | 07/24/2017 | SWD | Statutory Warranty Deed | ALLAN D KESSLER | ALLAN D KESSLER | | | $20,000.00 | 128397 | |
|   | |
| 2 | 06/17/2010 | SWD | Statutory Warranty Deed | HUNT, DEBORAH L | KESSLER, ALLAN D/MICHELLE | | | $16,500.00 | 114547 | 0 |
| 3 | 11/21/2005 | MISC | MISC | KESSLER, DWAYNE A ESTATE | KESSLER, MICHELLE/HUNT,DEBORAH | 0 | 0 | $0.00 | 105396 | 0 |
| 4 | 09/30/2005 | MISC | MISC | KESSLER, DWAINE A ESTATE | KESSLER, MICHELLE/HUNT,DEBORAH | 0 | 0 | $0.00 | 105224 | 0 |
| 5 | 07/19/2001 | QCD | Quit Claim Deed | KESSLER, DWAINE A | KESSLER, ALLAN D | 0 | 0 | $0.00 | 92720 | 0 |
| 6 | 01/07/1996 | QCD | Quit Claim Deed | KESSLER, LOIS M | KESSLER, DWAINE A | 0 | 0 | $0.00 | 79665 | 0 |
Payout Agreement
| No payout information available.. |